MAISON DU PEUPLE ET THÉÂTRE MUNICIPAL
89 - Auxerre
56 rue Joubert
- Dossier IA89000003 réalisé en 1996 revu en 2023
- Auteur(s) : Claudine Hugonnet-Berger, Laurent Poupard
Présentation
Le 1er février 1932 est établi un projet visant à transférer l’école pratique d’industrie dans le bâtiment du « grenier d’abondance » (actuel lycée Gambetta), au 12 avenue Gambetta. La bourse du travail et le patronage laïc Paul Bert qui s’y trouvent doivent pour leur part être réunis avec la maison du peuple dans les locaux de l’école, rue Joubert. Le transfert avenue Gambetta est effectif en 1935 mais l’installation rue Joubert ne se fera qu’à partir de la fin de 1939, et pour la seule bourse du travail. La maison du peuple ne sera en effet inaugurée qu'en 1953. Suivant le Thésaurus de la désignation des œuvres architecturales et des espaces aménagés (Inventaire général du Patrimoine culturel - Ministère de la Culture et de la Communication), dans son édition de décembre 2013, une maison du peuple est un « édifice destiné aux ouvriers et à leur famille, regroupant magasin coopératif et centre de culture et de loisirs (salles de réunion, généralement syndicale, bibliothèque, théâtre, salle des fêtes, salles de sports, débit de boissons non alcoolisées, etc.) ». Le réalité sera plus nuancée à Auxerre : le magasin coopératif sera absent tandis que les locaux syndicaux seront hébergés dans la bourse du travail (donnant sur la place des Véens). En fait, le bâtiment sera dès l’origine plutôt conçu comme une maison des associations, dotée d’une salle des fêtes et à destination de l’ensemble des Auxerrois.
Le programme
Le déplacement de l’école d’industrie, quittant la rue Joubert, doit s’accompagner du mouvement inverse des occupants du 12 avenue Gambetta : bourse du travail et patronage laïque Paul Bert. Association loi 1901 reconnue d’utilité publique par le décret du 3 mai 1923, ce dernier a pour but : « le complet développement physique, intellectuel, moral et civique, en particulier de la jeunesse et plus généralement du citoyen ». Ce type de patronage est souvent créé au début du 20e siècle par des associations ouvrières ou des municipalités socialistes pour assister matériellement les jeunes et contribuer à leur éducation par des activités sportives et éducatives. Il se pose alors en alternative au patronage catholique, qui peut d’ailleurs lui-aussi adopter le statut d’association loi 1901 (tel le patronage paroissial Saint-Joseph que l’abbé Deschamps transforme le 29 décembre 1905 en Association de la Jeunesse auxerroise).Le nouveau programme va être considérablement étoffé, dans des conditions relativement favorables. D’une part les locaux de l’école s’avérant inadaptés, leur destruction fera disparaître une partie des contraintes liées à l’existant (à l’exception, bien entendu, de celles résultant du parcellaire). D’autre part le maire d’Auxerre (de 1929 à 1941), Jean-Michel Renaitour (1891-1986, de son vrai nom Pierre André Tournaire), député de l’Yonne de 1928 à 1942, est un représentant de la gauche indépendante, sensible à la question sociale. Celle-ci sera bien traitée avec la réunion dans un même lieu de la bourse du travail, du patronage laïque mais aussi de ce que le maire évoquera comme « la partie que nous pourrions appeler, si vous le voulez bien, la "maison du peuple" ». Cet établissement existe déjà : établi en 1903-1904 dans la propriété Leblanc-Duvernoy, lors de la prolongation de la rue Soufflot jusqu’au boulevard du Temple (actuel boulevard du 11 Novembre), il est connu sous le nom de « maison Soufflot » (achevé en mars 1904, il a été présenté en septembre au président de la République Emile Combes). Par ailleurs, la création d’une salle des fêtes polyvalente est un bon moyen pour la Ville de se doter, enfin, d’une salle de spectacle digne de ce nom, constituant une alternative au vieux théâtre (la Comédie, aménagée en 1801 dans la chapelle du collège, rue du Lycée Jacques Amyot, qui sera démolie en 1960) et au Grand Casino auxerrois (boulevard du 11 Novembre), qui est une salle privée. Dans un courrier demandant en novembre 1935 aux associations d’exprimer leurs besoins, la mairie écrit : « Je crois devoir vous signaler, d’ores et déjà, qu’une grande salle des fêtes sera vraisemblablement aménagée dans ce local avec petite scène de théâtre et cabine cinématographique. » Lorsque sa création puis son extension seront confirmées, plusieurs dirigeants d’associations s’en féliciteront, en 1937, arguant qu’elle devrait contenir au moins 1 200 places : « Tous les ans pendant la période d’hiver, nous donnons une ou plusieurs soirées, et à chaque fois et malgré la grandeur de la salle du Casino, nous sommes obligés de refuser du monde. »
Georges Simonot, l’adjoint de l’architecte-voyer Henri Lhermitte, est chargé de mettre en forme ce programme, dont les grandes lignes sont ainsi rappelées dans un rapport non daté : « En premier lieu il y avait, certes, la nécessité de donner aux syndicats ouvriers les locaux nouveaux en échange de ceux qui allaient leur être ravis […] En second lieu nous indiquons les oeuvres auxquelles la municipalité apporte une bienveillance toute particulière et qu’elle désirerait aider par les moyens en son pouvoir. Patronage laïque Paul Bert. - Le transfert de l’école d’industrie va accaparer toutes les salles qui lui sont actuellement octroyées. L’essor nouveau pris par ce patronage, les multiples branches de son activité, l’intérêt tout particulier qu’il porte à la jeunesse de nos écoles publiques nous font un devoir de lui faciliter amplement le travail de ses différentes sections (éducation physique, soirées récréatives et instructives, gymnastique, sports, escrime, boxe, tambours et clairons). Nous lui devons une salle des fêtes pour ses soirées et pour les conférences qu’il donne. Cinémathèque. - Un baraquement existe actuellement. Il devra disparaître. Nous nous devons de le remplacer pour continuer et arrondir la fréquentation de nos enfants aux séances de cinéma instructif. Le conseil municipal a d’ailleurs consenti un effort pécuniaire assez important pour que nos écoliers soient aidés par la cinémathèque de l’enseignement primaire. Enseignement ménager. - Concurrencé sérieusement par l’enseignement privé, il menace de péricliter. L’endroit actuel, presque insalubre, a dû être gardé par manque de place ailleurs pour mieux l’installer. Nous voudrions le vivifier en lui donnant au moins les locaux indispensables. Nous prévoyons une école de coupe, de couture, de cuisine. Ouvrage du trousseau. - Constitué pour donner aux jeunes filles un trousseau complet au moment de leur mariage ou de leur majorité, son succès a dépassé les espérances. Actuellement les administrateurs ne savent où loger les travaux terminés dont ils doivent accepter la garde. Ces travaux sont logés un peu partout, dans certaines écoles, dans d’autres salles de réunions. Leur nombre s’accroissant encore il y a intérêt évident à centraliser le tout. La garde et la conservation y gagneront. Par ailleurs cette oeuvre se continue après l’école, les jeunes filles travaillant à l’atelier se réunissant périodiquement pour continuer leur instruction de couture et compléter leur trousseau, sous la direction de leurs anciennes maîtresses. Cours d’adultes. - Nous aurions voulu centraliser dans des locaux spéciaux les cours faits actuellement aux militaires illettrés. Il ne nous semble pas normal de les faire occuper des salles de classe ce qui, dans certains endroits, apporte une perturbation dans les études surveillées. Noua voudrions centraliser également les cours d’adultes aujourd’hui éparpillés dans différentes écoles. Ces cours ainsi réorganisés, utilisant mieux les disponibilités pourraient, comme l’indique M. Herriot dans sa circulaire du 4 décembre 1926 : "collaborer avec les cours professionnels, les premiers étant chargés de cette partie d’enseignement général que suppose nécessairement l’enseignement professionnel". Ces cours professionnels font partie du projet de transformation de notre école actuelle ; nous voulons les créer et les étendre. »
Simonot rédige un avant-projet de bourse du travail et de maison du peuple, accepté le 25 juillet 1935 par le conseil municipal, qui lui demande de fournir plans et devis (un peu plus de 1 807 000 F). Dans le rapport qui accompagne ces documents le 10 octobre suivant, il présente ce qui a constitué une étude « particulièrement difficile et délicate : Difficile, car il s’agissait d’utiliser au maximum un terrain n’ayant aucune forme rectiligne et présentant un étranglement en son milieu, tout en essayant de conserver des murs et des fondations de murs existants. Délicate, parce que le projet comportait la construction d’une salle de fêtes devant servir aussi bien au théâtre qu’au cinéma ou même à la danse et que les conditions d’utilisation et de visibilité d’une salle de spectacle sont totalement différentes suivant que l’on est appelé à regarder une pièce de théâtre ou une projection cinématographique. » Il expose : « Le plan d’ensemble a été divisé en cinq parties bien distinctes : 1° - Au centre, la salle de fêtes ; 2° - A droite, le patronage laïque de filles ; 3° - A gauche, le patronage laïque de garçons ; 4° - En annexe, dans la cour, l’oeuvre du trousseau et l’enseignement ménager ; 5° - Au fond, avec accès direct sur la place des Véens et sans aucune communication avec les autres bâtiments : la bourse du travail. » La salle des fêtes, à l’emplacement de l’ancien atelier du fer, aura une capacité de 910 places (475 à l’orchestre, 430 au balcon plus celles des deux loges). Elle comportera une scène, une fosse d’orchestre, une cabine de projection cinématographique, un foyer et des loges d’acteur, un foyer bar. « Enfin, la salle, au rez de chaussée débarrassée de ses fauteuils, qui pourront être remisés sous l’estrade, pourra faire une salle de danse carrée de 16 m 90 de côté. » Le patronage laïque de filles comportera au rez-de-chaussée une salle de récréation, une salle pour le conseil d’administration (devant aussi servir de bibliothèque) et au premier étage « une salle de couture avec magasin et un ouvroir ». Celui des garçons aura au rez-de-chaussée « une grande salle de gymnastique avec agrès », au premier une salle de récréation pouvant servir de salle de réunion et au deuxième une salle d’escrime. Chaque patronage dispose en propre d’un préau couvert au rez-de-chaussée et de terrasses de récréation au deuxième étage ; ils partagent en outre une salle de douches « contenant 15 cabines avec déshabilloirs ». Un petit bâtiment côté rue Joubert (à gauche) abritera au rez-de-chaussée « une salle pour l’oeuvre du trousseau et une cuisine pour l’enseignement ménager », à l’étage une salle de couture.
La présentation des plans par le maire en 1936 apporte quelques précisions intéressantes. Sur la salle des fêtes tout d’abord : « Au milieu du grand bâtiment, face à la rue Joubert, se trouverait une salle des fêtes et de cinéma pouvant contenir environ 1 000 personnes assises ou 2 500 debout. Cette salle servirait au patronage mais ne serait pas réservée à son usage exclusif ; en réalité le patronage n’en aurait besoin que pour quelques soirées annuelles et pour faire du cinéma aux enfants le jeudi. Tout le reste du temps, elle pourrait être mise à la disposition des sociétés de la ville pour leurs fêtes ou concerts le samedi ou le dimanche et elle pourrait aussi fort bien être employée à faire des séances de cinéma populaire avec des prix d’entrée relativement bas ou bien des conférences et des réunions publiques. » Autre précision concernant les terrasses de récréation du deuxième étage : « En raison de l’exiguïté de la cour, séparée en deux par une grille pour que garçons et filles ne soient pas mélangés, de grandes cours en terrasse ont été prévues. Cette disposition a particulièrement séduit les dames patronnesses. »
D’autres informations sont données par les réponses des associations à une enquête de la mairie s’informant de leurs besoins, qui pointe, par exemple, l’insuffisance du local occupé par l’Oeuvre du Trousseau dans la salle Soufflot ou de ceux destinés au PLPB (patronage laïque Paul Bert), accueillant 200 pupilles en 1933. Son président, Rousseau, note ainsi : « Répétitions des fêtes. Se font un peu partout, dans les classes, sous les préaux des écoles, où le vent souffle, où la lumière est insuffisante » ; du coup, il y a moins de fêtes organisées alors qu’elles servent notamment à « attirer au Patronage le plus d’adhérents possibles ». La question du cinéma est soulevée : « Les jours de cinéma, c’est un problème d’entasser dans ce baraquement [au « sol poussiéreux » et installé sur le terrain des cours complémentaires] les 4 ou 500 garçons et filles qui se présentent. Je n’ose parler du danger d’incendie par le poêle qui y est installé. D’ailleurs c’est cette question de manque de salle convenable pour cinéma qui a fait que le P.L. a reculé devant l’achat d’un appareil sonore aujourd’hui employé dans nombre d’écoles et patronages. » L’ESA (Etoile sportive auxerroise) est elle-aussi concernée, qui ne reçoit qu’une seule subvention (accordée par la patronage Paul Bert) et dont les activités sont dispersées entre plusieurs lieux. Dirigée par Jules Igot, elle compte en novembre 1935 628 membres (187 membres actifs de 14 à 21 ans, 172 au-dessus de 21 ans et 319 membres honoraires). Elle est organisée en neuf sections : football, basket, gymnastique, éducation physique, escrime, cyclisme, haltérophilie, boxe, tir ; trois autres sont en cours de création : natation, tennis et jeu de boules.
Le projet est soumis au conseil départemental des Bâtiments civils, qui demande quelques modifications mineures (notamment la création de deux sorties de secours supplémentaires pour la galerie du premier étage).
1937, le début des travaux
Georges Simonot divise les travaux en 16 lots dont un, le 16e (décor et mobilier de la salle des fêtes), ne doit être attribué qu’une fois la construction bien avancée. 80 entreprises soumissionnent et l’adjudication se fait le 18 février 1937, au rabais ou au forfait. Certains lots font l’objet d’un marché de gré à gré, comme les lots 1 (terrassement et maçonnerie) et 3 (béton armé) attribués le 28 février 1937 à Jean Hémery, entrepreneur à Joigny (19 avenue Gambetta) et Bar-le-Duc (42 rue de Popey). Les adjudicataires peuvent d’ailleurs venir de plus ou moins loin : Auxerre mais aussi Paris pour la société Rubéroïd (lot 4, étanchéité des terrasses), Bar-le-Duc pour Chevalier (lot 8, menuiserie et parquets) et Longeaux et Agrapart (lot 9, serrurerie, quincaillerie et charpente en fer), Limoges pour Louis Chunlaud (lot 2, cloisons, plâtrerie et revêtements), qui finalement se désistera et sera remplacé par Paul Piciocchi (de Pargny-sur-Saulx dans la Marne)… L’estimation à l’issue de l’adjudication fait état d’une augmentation de 53 760 F par rapport au montant initial, ce que l’adjoint au maire Henri Moreau explique ainsi le 1er mars 1937 dans son rapport au conseil municipal : « Toutefois, il convient de noter que cette majoration sur le montant global du devis primitif provient, en très grande partie, du fait que vos commissions des travaux et d’adjudication réunies n’ont pas cru devoir porter leur choix sur les propositions les meilleur marché pour les 6 lots à attribuer par voie de concours. Vos commissions ont, en effet, estimé que ce qui était le meilleur marché aujourd’hui risquait fort de devenir le plus cher demain. Je crois qu’elles ont fait preuve, là, d’une grande sagesse, surtout lorsqu’il s’agit de réalisations aussi durables que devront l’être la maison du peuple et la bourse du travail de la ville d’Auxerre. »Mais l’augmentation est aussi due à l’envolée des prix des matériaux et de la main-d’œuvre, liée aux lois sociales de 1936. De ce fait, par exemple, l’entrepreneur de maçonnerie souhaite dès le 15 octobre une révision du bordereau de prix de son adjudication sous peine d’être obligé d’en demander la résiliation. Simonot note : « Le demande de M. Hémery est justifiée. Depuis l’adjudication qui a eu lieu le 17 février dernier, les salaires des ouvriers ont été relevés avec effet rétroactif du 15 juillet 1937 et les prix des matériaux ont été en hausse constante. » L’augmentation du taux horaire varie de 13 % (premier ouvrier sans enfant) à 46,5 % (manœuvre ayant 7 enfants) tandis que « le réajustement des salaires dans toutes les branches de l’industrie du bâtiment a obligatoirement entraîné la hausse du prix des matières premières et de tous les produits fabriqués. » Simonot estime que l’augmentation totale cumulée est en moyenne de 16 % pour les salaires et d’autant pour les matériaux, soit un total de 32 %. Le conseil municipal décide de valider une première majoration provisionnelle de 16 %, avec révision du marché à la fin des travaux. C’est la raison du désistement de Chunlaud, qui voulait une majoration de ses prix de 35 % (notons toutefois qu’il avait soumissionné au prix exact du devis initial alors que ses huit concurrents demandaient une augmentation de 12 à 45 %). Chunlaud expose : « Quant à la révision de marché en fin de travaux, c’est un leurre pour l’Entrepreneur. J’en ai fait moi-même la douloureuse expérience en 1936 pour deux chantiers, une école maternelle en Haute Vienne et une école de garçons en Indre et Loire […] Non seulement ces marchés n’ont pas été révisés, mais l’un d’eux n’est pas soldé […] Je préfère d’ailleurs, le cas échéant, la résiliation du marché à une telle incertitude. »
Les travaux débutent donc en 1937 mais le projet n’est pas encore stabilisé. En effet, des acquisitions (parcelles cadastrées M 701 et 714) sont réalisées en 1938 afin de pouvoir construire la scène et lui donner un accès direct à la rue du Pont : maison et cour au 11 rue du Pont appartenant à Fernand Passera, ruelle et petit terrain les jouxtant propriété d’André Jean Philippe Richet. C’est également une réponse aux observations du conseil départemental des Bâtiments civils, qui souhaitait quelques modifications incluant la création de sorties de secours et de dégagements supplémentaires. Les démolitions ont lieu d’avril à juin 1937 puis les travaux de terrassement débutent par la bourse du travail. Avec des découvertes, telle celle relatée le 20 janvier 1938 dans le registre des délibérations du conseil municipal : « Au cours de l’exécution de travaux de construction de la maison du peuple, nous avons trouvé sous la salle des fêtes une cave de 11 m. de long sur 6 m. de largeur, parfaitement voûtée et communiquant par un couloir avec la cave existant sous la maison Petit. La commission des travaux ayant décidé sur le chantier d’aménager ces caves en salles de répétition pour les clairons du P.L.P.B., nous avons étudié ce projet et la dépense se chiffre (prix actuels, nets de toute majoration future) à […] 14 979 F. » Dépense acceptée par le conseil. L’entrepreneur de maçonnerie n’hésite d’ailleurs pas à proposer lui-même des modifications : « Par lettre en date du 10 janvier 1938, M. Hémery, entrepreneur des 1° et 3° lots de construction de la maison du peuple, expose qu’il aurait avantage à exécuter en béton armé la charpente prévue en fer pour la couverture de la bourse du travail et de la salle des fêtes parce qu’il considère qu’il pourrait lier les armatures des planchers en béton avec celles des charpentes ». L’entrepreneur de la partie en fer, Longeaux, étant d’accord, sa proposition offre plusieurs avantages : une économie (30 900 F au lieu de 36 753 F), un travail plus rationnel et moins d’entretien à envisager (« Il supprime tout entretien pour l’avenir. Tandis qu’avec des fermes métalliques il aurait été nécessaire de les repeindre de temps en temps. »). La commission municipale des travaux accepte cette modification pour la maison du peuple mais pas pour la bourse du travail : « elle estime que si pour une cause d’agrandissement il y avait nécessité de monter l’immeuble d’un étage, il faudrait procéder à une destruction complète des fermes et pannes alors que celles-ci étant métalliques, toutes les transformations sont possibles. » Les calculs techniques de la charpente en béton sont effectués par la société des Bétons armés Hennebique (via son agence du 80 rue de Longvic à Dijon, A. Caquineau ingénieur).
En décembre 1937, le rez-de-chaussée et le premier étage sont réalisés, le plancher haut de ce dernier étant à l’étude. La charpente de la bourse du travail est expédiée le 15 juin 1938 tandis que les terrasses sont réalisées la même année : le coffrage et la pose des hourdis ont débuté en février et leur étanchéité est en cours en novembre (elle est réalisée à l’aide de deux couches de feutre - fabriqué dans l’usine Rubéroïd d’Epinay-sur-Seine - et trois couches intercalées de Concrétine solide, un « bitume pur étendu à chaud »). La couverture aussi, si bien qu’il est demandé à l’entrepreneur de plâtrerie de démarrer son chantier le 1er décembre. La vitrerie est mise en place à compter de janvier 1939. Des changements interviennent dans le courant de 1939 : le maire demande, pour dégager la façade de la maison du peuple, que soient démolies les deux bâtisses encadrant l’entrée de la cour sur la rue Joubert (maison Petit à gauche et loge du concierge à droite). De ce fait, l’architecte doit rédiger un projet pour une nouvelle conciergerie, à construire à l’emplacement du préau des filles, dans un renfoncement derrière la maison Dufour. Ce projet prend aussi en compte aménagement de la cour : « Ce dernier devis comprend : le nivellement et l’empierrement de la cour ; les dallages en ciment au-dessus des anciennes caves et notamment de celle de l’ancienne maison Petit, à la reconstruction de laquelle vous avez renoncé ; la maçonnerie et les grilles en fer forgé du mur de clôture, les préaux en ciment armé derrière l’immeuble Louet, les grilles extensibles de la salle de spectacles ; une vasque décorative en béton armé. Il s’élève y compris la construction du logement de concierge mentionné ci-dessus à la somme de 165.900 frs. en chiffres ronds. » Chiffre accepté une fois ramené à 142 844 F par la suppression des préaux et de la vasque.
Le chantier se poursuit, compliqué par la conjoncture : la mobilisation générale commence le 2 septembre 1939, la veille de la déclaration de guerre à l’Allemagne. En octobre, la bourse du travail est achevée et les travaux le maison du peuple presque finis. Henri Moreau, l’adjoint au maire délégué aux travaux et aux bâtiments, note : « 9ème lot - Serrurerie - presque achevé - La grille de la cour est en construction […] 11ème lot - Décoration - Très avancée […] 14ème lot - bains douches - en cours d’exécution […] 16ème lot - Mobilier - sera livré fin octobre. » Le 14e lot, attribué à Henri Guimier, constructeur à Auxerre (29 rue Haute-Perrière puis 16 boulevard Davoust), comprend 15 cabines et fait l’objet de consignes précises : « L’installation sera comprise de façon à doucher sans interruption 200 enfants, la durée d’occupation d’une cabine pour une douche étant de quinze minutes, déshabillage et habillage compris. » Moreau ajoute : « Dans sa séance du 2 octobre, le conseil municipal d’Auxerre a décidé d’achever très rapidement les travaux de la maison du peuple, afin d’installer, pendant la durée des hostilités, dans les locaux des patronages filles et garçons, des salles de classe pour palier à l’insuffisance des locaux scolaires, insuffisance due à l’afflux d’élèves évacués. » Cette modification provisoire liée à la guerre n’est pas la seule et dans un courrier de relance de l’électricien, Edmond Marceau (de Clamecy), Simonot écrit : « Je vous prie de vouloir bien commencer le plus tôt possible l’installation électrique de la salle de gymnastique et de l’escalier descendant à l’abri de bombardement. » Il précise d’ailleurs le 11 octobre 1939 : « je suis actuellement mobilisé, mais je passe chaque semaine à mon bureau et puis ainsi m’occuper de mon chantier » (il est alors sergent-chef à l’établissement militaire de Jaulges). Le décor est extrêmement réduit (Simonot ne l’évoquait, le 5 octobre 1935, que par cette simple mention : « Cette salle des fêtes sera sobrement décorée ). Ce lot est confié en 1938 au peintre Jean Burkhalter, qui réalisera la coupole (1939), une grande peinture sur chaque mur latéral de la salle (1939-1942), cinq décors de scène et les rideaux de scène. La ferronnerie (rampes et grilles) sera l’oeuvre des Ateliers de Constructions mécaniques Longeaux et Agrapart, de Bar-le-Duc (impasse du Moulin).
1953, un achèvement de chantier laborieux
Le 5 février 1940, le conseil municipal récapitule les dépenses engagées et celles encore prévisibles. Le devis primitif de 1 807 984 F a été porté à 2 722 180 F du fait des augmentations (du prix des matériaux et de celui de la main d’œuvre) et de quelques travaux supplémentaires. « Devant l’impossibilité, par suite des circonstances de guerre, d’obtenir une aide complémentaire de l’Etat », il envisage d’emprunter 820 000 F au Crédit foncier de France. En fait, si la bourse du travail a pris possession de ses locaux en 1939, la maison du peuple accueille successivement en 1939-1940 une école, des réfugiés (mai-juin 1940), les troupes d’occupation et, de septembre 1940 jusqu’en 1946, les établissements Soisson et James dont le magasin de chaussures et vêtements vient d’être incendié le 14 septembre. Les affaires reprennent cependant petit à petit un cours plus normal, alors que Georges Simonot devient architecte-voyer en 1940. Le chantier est cependant à l’arrêt. Le bombardement de la ville le lundi 17 juillet 1944 occasionne des dégâts dont rend compte un dirigeant de Soisson et James : vitres brisées « dans la salle de gymnastique servant aux rayons de mercerie et confection pour dames », dans la salle de spectacle, « au 1er étage dans la salle de confection pour dames » et « dans la salle de couture sur la terrasse où travaillent nos ouvrières ». Sans oublier : « sur les 18 glaces-vitrines mesurant 2m29 x 0m52 il n’en reste que cinq, les autres s’étant effondrées par suite du soufflement ».Lors d’une réunion du conseil municipal, le 12 mars 1945, il est fait état de sept entreprises ayant totalement achevé leurs travaux : Rubéroïd (lot 4, étanchéité), Hémery (pour le lot 5, charpente en bois), Burkhalter (lot 11, décoration), Bertrand Faure (lot 16, mobilier), Kieffer (serrurerie), Leclaire et Godard (menuiserie) et Charrier (vitrerie). La municipalité décide la reprise du chantier en 1947, vote un crédit provisionnel de 5 000 000 F « mais les difficultés surgirent immédiatement et faute de matériaux et de crédits, il fut impossible de terminer cette affaire » (en effet, le Crédit foncier de France refuse de lui accorder la totalité du prêt demandé). Elle a cependant eu le temps de lancer des appels d’offre et de passer, le 20 décembre, un marché de gré à gré avec l’entreprise Hémery pour les travaux de son ressort (terrassement, maçonnerie et carrelage), qui sont en cours d’achèvement en novembre 1948. Une visite des lieux, le 17 juin 1949, signale l’absence de dégradations à l’exception du mobilier : « l’ameublement, notamment les sièges de la salle ont eu à souffrir de cette longue interruption. Les fauteuils en velours de laine sont mités ; une grande partie devra être recouverte ». Par ailleurs, le patronage laïque a aménagé une pièce du premier étage en salle de cinéma sans respect de la sécurité incendie : murs et plafond « revêtus de toile d’emballage clouée sur des châssis en bois », circuit électrique précaire, cabine de projection « installée dans la salle même et constituée par des cloisons légères en planches de sapin ».
Le déblocage des crédits n’intervient qu’en 1950 et il faudra attendre l’année suivante pour que le ministère de l’Intérieur annonce l’octroi d’une subvention de 4 000 000 F. Le bilan financier établi en 1950 fait état de plusieurs emprunts pour un total de 7 277 000 F en 1947 et d’une subvention de 850 000 F effectivement versée ; le montant des dépenses est de 7 260 934 F mais celui des travaux restant à exécuter est évalué à 20 000 000 F. Le déroulement des décisions est rappelé par l’architecte Simonot dans une « Note pour M. Cuillier » : « 1° Le projet a été accepté par le conseil municipal le 25 novembre 1950 ; 2° Il n’a été approuvé par le préfet que le 3 octobre 1951 ; 3° La subvention n’a été accordée que le 27 décembre 1951 ». Sans attendre l’approbation préfectorale, la Ville contacte les entrepreneurs afin d’essayer d’obtenir d’eux qu’ils reprennent et achèvent leur chantier, mais certains sont défaillants, comme l’électricien Marceau à Clamecy qui sera remplacé par Bernier, d’Auxerre, ou l’entreprise Hémery, déclarée en faillite le 9 novembre 1951, qui cède la place à la maison G. Picarat (15 rue Marcelin Berthelot). Celle-ci se charge des travaux de parachèvement et de construction du mur de clôture (1 400 000 F) ainsi que, au début 1953, de l’aménagement de la cour, comprenant la pose (en février) d’une vasque en pierre de Massangis, due à la marbrerie M. Picand Fils, de Chablis. La réalisation de la grille et des portes de cette clôture (960 000 F), qui restent à faire, sont confiés à la serrurerie d’art Maurice Kieffer (bureau 21 rue d’Egleny et ateliers 31 rue Joubert et place des Véens).
Le lot menuiserie (350 000 F) comprend essentiellement la pose des parquets (qui seront fournis par l’entreprise Guyon, de Migennes) ; sont aussi listés les lots Peintures (600 000 F), Chauffage et conditionnement d’air (1 000 000 F), Décors et rideaux (500 000 F), Installations électriques et appareillages de scène (5 500 000 F). L’installation de chauffage est complétée en 1953 par la SA Hygiène et Confort (12 rue de Preuilly), qui ajoute une chaudière à vapeur à la bourse du travail, installe un « ruban de chaleur » sur la scène, des radiateurs dans la salle de gymnastique et des tuyaux à ailettes dans les douches, une chaudière à mazout « dans la nouvelle chaufferie »… Le 8e lot (aménagement de scène) « ne peut être exécuté que par une maison spécialisée », en l’occurrence la maison Clémançon (SA Compagnie générale de Travaux, d’Eclairage et de Force, 23 rue Lamartine à Paris), de même que le 9e (décors) confié aux Ets Leblanc (Nançois-Tronville, Meuse), qui fournissent aussi la machinerie. Attribués en 1950, ils sont reçus provisoirement le 5 janvier 1953.
Les travaux avancent, comme l’indique le point fait par Simonot le 2 décembre 1952 : « La salle de théâtre est terminée ainsi que toutes ses annexes : scène, machinerie, décors, loges d’artistes, foyer des artistes, foyer du théâtre, cabine de projection, éclairage, chauffage et conditionnement d’air. Il ne reste plus qu’à effectuer la peinture du hall, des escaliers, des couloirs, du vestiaire et du bar. Ce travail qui se poursuit régulièrement sera rapidement achevé. En ce qui concerne la partie réservée à l’éducation sportive, elle est également très avancée […] » Le poste de « secrétaire régisseur du théâtre » est confié cette année-là à Antonin Beghin, chef d’orchestre de l’harmonie municipale et re-fondateur de l’école de musique. Le chantier de la salle de spectacle s’achève finalement le 25 février 1953. Un bilan financier donnait en janvier un montant total de 32 971 840 F pour l’ensemble de la construction (celui du 1er septembre 1954 se montera à 42 169 900 F, celui du 24 mars 1956 à 42 728 800 F). Le théâtre ouvre le 1er mars, avec une jauge de 900 places, mais son inauguration officielle n’a lieu que le 8 mars. Il n’est d’ailleurs alors plus question de salle des fêtes : lors de la réunion du conseil municipal du 6 décembre 1952, le maire soulignait en préambule « que, la Ville d’Auxerre se trouvant privée de toute salle de théâtre, il a paru souhaitable à la municipalité de désigner les salles de la rue Joubert par un nom correspondant à leur principale utilisation ». La salle de spectacle est dès lors identifiée comme théâtre municipal, au sein du « Centre artistique et culturel » d’Auxerre, tandis que l’appellation maison du peuple est transférée à la bourse du travail afin d’éviter qu’elle ne disparaisse.
Une lettre, datée du 28 février 1953 et non signée, donne un récapitulatif anecdotique de la construction : « Le projet a été étudié en 1937 et les travaux de démolition de l’ancienne école d’Industrie (photo n° 1) et de construction du gros œuvre exécutés en 1937 - 1938 - 1939. » « Poutre principale en béton armé qui supporte la coupole, la cabine de projection et la salle d’escrime. Elle mesure 18 m. 50 de portée - 1 m. 60 de hauteur - 0,45 de largeur. Le poids des armatures est de 6 tonnes. Cette poutre supporte une charge de 180 tonnes. En 1939, arrêt du chantier par suite de la guerre et de la mobilisation des ouvriers, des entrepreneurs et de l’architecte. Les locaux sont alors occupés successivement en 1939-1940 par une école - par des réfugiés (mai-juin 1940) - par des troupes d’occupation et, fin 1940, par les établissements Soisson & James dont les magasins viennent de brûler. Après la guerre, la municipalité envisage d’achever les travaux mais impossibilité d’abord par suite du contingentement des matériaux, ensuite par restriction des crédits. Fin 1951, la Ville est enfin en possession des fonds nécessaires et le chantier reprend au début de 1952. » « Caractéristiques générales du projet - Une partie des fondations de la façade de l’ancienne école d’industrie a été conservée. Les autres fondations ont été effectuées par puits profonds espacés de 3 m. remplis en gros béton et reliées entre eux par de semelles en béton armé. Les fondations de la scène ont été effectuées dans une ancienne carrière de terre d’arène et ont nécessité des puits qui atteignent par place une profondeur de 4 mètres. L’ossature des bâtiments, les planchers, la charpente sont en béton armé. Les remplissages intérieurs sont en briques creuses. Les murs du pourtour sont en moellons de Chevroches. Le mur de scène en moellons de Chevroches a 18 mètres de hauteur et 1 mètre d’épaisseur à la base. La coupole a 11 mètres de diamètre. Les planchers en béton représentent 2.338 m2 à tous étages. Il a été posé 700 m2 de carrelages et dallages. Je passe sur les travaux de charpente, plâtrerie, menuiserie, plomberie, etc. qui sont ceux que l’on rencontre partout. Il a été posé 805 m2 de parquet. Méritent seulement un mot au passage : Le chauffage - 3 chaufferies - 1 pour le chauffage général du théâtre et de ses annexes, par radiateurs, chaudières à vapeur à chargement automatique, chauffées par grains d’anthracite. 1 pour les douches et la salle de gymnastique, chaudière avec brûleur à mazout. 1 pour le conditionnement d’air, servant au chauffage et à la climatisation de la salle. L’éclairage - perfectionné et moderne. Peut être commandé de 3 points différents : - de la caisse principale ; - du jeu d’orgue de la scène et de la cabine de projection. Le jeu d’orgue permet toutes les combinaisons de lumière - graduation réglage de l’intensité - jeux de lumière de couleurs différentes et avec l’aide d’une projection filmée [pour] donner l’illusion parfaite de la pluie, de l’orage, de la neige et des différents aspects du ciel. »
1959, un équipement sportif différé
Premiers destinataires de la maison du peuple, le patronage laïque Paul Bert et l’Etoile sportive auxerroise ont des besoins importants en matière de locaux sportifs. Rappelons que l’ESA compte une dizaine de sections parmi lesquelles la gymnastique, l’escrime, l’haltérophilie et la boxe, qui se pratiquent en salle. Le programme du patronage de garçons inclut explicitement au rez-de-chaussée « une grande salle de gymnastique avec agrès » et au deuxième une salle d’escrime. Le 2 décembre 1952, Simonot écrit : « En ce qui concerne la partie réservée à l’éducation sportive, elle est également très avancée : la salle de gymnastique, les douches, la salle d’escrime sont presque terminées. Le chauffage fonctionne et il y a encore l’installation électrique et la peinture. Ces travaux vont faire suite immédiatement à ceux du théâtre. » La création de cette partie est de nouveau validée lors de la réunion du conseil municipal du 6 décembre 1952, qui classe la salle de gymnastique comme « salle d’éducation physique scolaire » (son règlement d’utilisation la réservera aux usagers scolaires jusqu’à 18 h, aux sociétés sportives et gymniques locales après). Elle mesure 15,90 m sur 9,40 m, avec une hauteur sous plafond de 5 m mais « il a été ménagé au fond de la salle un vide pour l’installation des agrès de 9m35 de hauteur. » Elle est accompagnée d’un vestiaire, d’un bureau - surmontant une chaufferie équipée d’une chaudière à mazout - et de douches (14 cabines dans une pièce de 7,30 m sur 5,50 m, et 5,05 m de hauteur sous plafond). La salle d’escrime (au deuxième étage), accompagnée de son vestiaire, mesure 11,50 m sur 5,35 m, a 3 m de hauteur sous plafond et un sol en parquet chêne. Elle fait l’objet, le 25 février 1953, d’un courrier de l’inspecteur d’Académie (service départemental de la Jeunesse et des Sports) quant à ses modalités d’utilisation. Il liste trois groupements d’escrimeurs susceptibles d’être intéressés : la section d’escrime de l’Association de la Jeunesse auxerroise (agréée le 16 septembre 1920), la section d’escrime du Stade auxerrois (agréée le 1er février 1946) et le Cercle municipal d’Escrime auxerrois. « Les deux sections d’escrime (A.J.A. et Stade auxerrois) sont sans doute actuellement en sommeil. Mais les dirigeants pourront prétendre que l’arrêt de leurs activités fut la conséquence de la pénurie de locaux pendant la période de 1945 à 1952, et considérer que la création de la salle d’armes est un facteur de résurrection possible qui légitimerait une demande d’utilisation du local. » Par ailleurs, de nouvelles créations de sections étant possibles, la salle d’armes demeure un local important du programme. Le 3 avril 1954, le conseil municipal décide de lui donner le nom de Gabriel Le Teinturier, « ancien préfet de l’Yonne, champion de France d’escrime ».L’aménagement définitif des salles de gymnastique et d’escrime se fait fin 1958 ou début 1959. La première doit également accueillir la salle de gymnastique corrective « actuellement installée, dans des conditions d’hygiène extrêmement mauvaises, dans une des salles de l’ancienne caserne Gouré » (ou Cité Gouré). Ce transfert, décidé unilatéralement par la mairie pour mettre un local à disposition du directeur de l’Enregistrement et des Domaines, déclenche les foudres de l’inspecteur d’Académie qui estime ses conditions et le lieu retenu inadaptés. Il déplore notamment une acoustique extrêmement mauvaise : « L’écho d’un son dure 5 secondes. Une conversation à voix normale est quasiment inaudible. Cette situation est d’autant plus grave qu’en raison des horaires et des emplois du temps des différents établissements où se recrutent les élèves à rééduquer et les professeurs, 2 groupes, et par conséquent 2 professeurs, sont appelés à travailler simultanément. » La liste des reproches est longue, qui se conclut par : « au point où nous en sommes, il ne reste qu’à fermer le centre de rééducation et à priver 140 enfants déficients d’un traitement kinésithérapeutique qui permet de les reclasser en un an dans le groupe des forts ». Les passions se calment et dans sa délibération du 28 février 1959, le conseil municipal signale que la salle de gymnastique est terminée et « rendue insonore ». Le chef du service départemental de la Jeunesse et des Sports met alors le matériel du centre de rééducation à la disposition de la Ville qui, le 12 mars, passe commande aux Ets Thomasson et Cie (7 rue Notre-Dame à Lyon) d’un complément pour « l’équipement de la salle de gymnastique du Centre Culturel au Théâtre Municipal ». Les Ets Aubin-Krier (40 avenue Yver) ont également fourni, en 1955, tant pour la salle de gymnastique que pour celle d’escrime, du matériel qui n’est mis en place qu’au cours du premier semestre 1959 (la société a alors disparu). Le procès-verbal de réception définitive des deux salles est signé le 22 juin 1959. En 1977, les utilisateurs de la salle de gymnastique seront une douzaine d’organismes et associations, dont cinq écoles primaires.
Théâtre ou cinéma ?
Le 11 juillet 1955, le conseil municipal décide l’attribution, pour dix ans, de la gestion de l’exploitation cinématographique du théâtre du « Centre artistique et culturel » à la Seca, Société d’exploitation cinématographique auxerroise, représentée par ses deux gérants : Jean Musat, directeur de cinéma, et Juliette Poupet, épouse divorcée de René Pinon (le contrat est enregistré par le notaire Coste le 5 août 1955). Un relevé sur la période du 10 août 1955 au 31 octobre 1956 totalise 295 projections cinématographiques pour 83 séances théâtrales. Le bail permet à la Ville de jouir du théâtre pour ses propres besoins mais le met à disposition de la Seca au moins 200 jours par an, dont 10 week-ends durant la période du 15 septembre au 30 avril. Le directeur est ensuite (à partir du début 1958 ?) Gaston Lalbat, également exploitant du Grand Casino auxerrois et du cinéma Select (devenu le Paris).En avril 1964, le nouveau directeur du théâtre, Roger Chabrier, signale les inconvénients des projections cinématographiques dans l’établissement : « Dans l’intérêt de la bonne marche de notre prochaine saison j’insiste, monsieur le maire, sur la nécessité de pouvoir disposer des samedis et dimanches exploités par le cinéma ; en effet, il arrive souvent que les dates proposées par les impresarii se trouvent être les mêmes que celles des représentations cinématographiques. Je suis donc, de ce fait, amené à refuser de très bons spectacles. De plus, la tenue de quelques jeunes gens laisse vraiment à désirer. Nous avons presque toujours à constater des dégâts matériels, tels que velours de fauteuils brûlés, lacérés ou tachés de chewing-gum. » Cette demande fait écho à celle présentée en juin 1958 par l’exploitant du cinéma, Lalbat : « Les spectateurs ne vont au cinéma qu’à jour fixe par semaine et particulièrement les samedis et dimanches […] J’ai constaté que depuis mon arrivée la Ville prend de plus en plus de jours surtout en samedi et dimanche […] Il serait normal que la Ville garde certains jours de semaine pour des séances théâtrales, mais les gens qui veulent voir une pièce y vont aussi bien en semaine que le dimanche car c’est un public spécial, qui ne se dérange que pour le théâtre. Pour les tournées locales, les spectateurs n’y vont que pour voir jouer les gens qu’ils connaissent et la date ne joue pas dans ce cas là. »
La municipalité donne satisfaction à Chabrier : le bail avec la Société d’exploitation cinématographique auxerroise est résilié à son échéance en 1965. Dans son argumentaire pour en demander le renouvellement, son pdg, Pierre Reynaud (6 rue de l’Alboni à Paris), successeur de Gaston Lalbat démissionnaire le 1er avril 1959 et à la tête de 14 salles de cinéma, avance une fréquentation annuelle moyenne de 30 000 à 40 000 personnes, pour 60 à 70 films et 300 projections, tout en reconnaissant « une légère baisse de fréquentation ces dernières années du fait de l’apparition de données nouvelles (télévision, pari-mutuel urbain, confort ménager, etc.) ». Il est bien conscient de l’évolution du paysage culturel en cours : « Il est certainement vrai que dans l’optique gouvernementale actuelle axée vers "les Maisons de la Culture", la continuité d’une activité cinématographique indépendante au théâtre municipal peut paraître gênante […] Il est certainement vrai que l’on assiste actuellement à une décentralisation artistique, théâtrale, culturelle et que le théâtre municipal doit pouvoir répondre à cette évolution. Mais IL EST AUSSI VRAI qu’une suppression pure et simple des spectacles cinématographiques au cinéma municipal d’Auxerre est non justifiée, contraire aux intérêts de la Ville et des Auxerrois et par ailleurs la Culture Cinématographique existe. » Le 8 août 1965 a lieu la dernière projection (il y en avait quatre jours par semaine) ; le matériel est composé de deux appareils Cameca (n° 485 et 488) à lanterne automatique type Radiarc (la société devient Radio-Cinéma, créée en 1929, est devenue en 1954 Cameca - Compagnie des Applications mécaniques et électroniques au Cinéma et à l’Atomistique - et a cessé en 1960 la fabrication des projecteurs de cinéma). L’établissement se trouve dorénavant disponible pour une activité théâtrale à plein temps.
Les améliorations des années 1960
L’équipement scénique se révèle rapidement insatisfaisant et demande des compléments - voire une rénovation - dès les années 1960. Ainsi, le 15 novembre 1961, un marché de gré à gré est passé avec la société A. Féchoz (17 rue Ernestine, à Paris) pour la fourniture d’un rideau coupe-feu. La pose de ce rideau métallique rigide intervient en juin 1962 et sa réception provisoire le 18 juillet suivant. Le décor de scène est partiellement renouvelé en 1963. Devenu l’unique exploitant de la salle de spectacle, Roger Chabrier demande sa modernisation le 14 avril 1965. « Afin de répondre au désir exprimé par nos spectateurs (qui sont passés de 9.000, les années précédentes, à 22.000 en 1964) de trouver plus de confort et une salle plus accueillante, j’ai l’honneur de vous proposer les transformations indispensables à la rénovation du théâtre : 1 - Remplacement des sièges de la salle de spectacle, en premier lieu tous les fauteuils qui forment le parterre et l’orchestre, au nombre de 400. 2 - Aménagement du foyer en bar fumoir, comme il a été prévu. 3 - Transformation du bureau du directeur […] » Le remplacement des sièges se fera en deux tranches, en 1966 et 1967, et la jauge passera à 875 places. 1965 voit également une extension de la scène, dont les dimensions réduites sont un problème récurrent. Elle est agrandie d’1,50 m « pour permettre une meilleure évolution des artistes » et la société Féchoz déplace le rideau vers la salle.L’aménagement du foyer a été long à se concrétiser. Le 29 juillet 1954, le maire, Jean Moreau, s’inquiétait de sa nudité et écrivait : « Je voudrais que ce foyer ait un caractère très auxerrois et qu’aux murs soient apposées des peintures relatives à la Ville d’Auxerre, portraits d’hommes illustres de notre Cité, peintures ayant trait à des paysages de notre ville, bords de l’Yonne, monuments, nos rues et places, photographies modernes et rétrospectives. » Il imaginait emprunter des peintures au musée municipal et demander des photographies au Photo-club auxerrois. Il faut cependant attendre 1968 pour que le foyer soit inauguré, doté d’un bar conçu par la société Décoration et Technique (9 rue Ampère à Auxerre) réunissant le décorateur R. Danielou et le technicien R. Benard.
En 1970, outre la salle de spectacle, l’établissement comporte au rez-de-chaussée une grande salle disponible pour des réunions et « occupée également par le Centre chorégraphique de l’Yonne qui compte deux à trois cents élèves » (ancienne salle de récréation du patronage des filles), au premier étage une salle de conférence avec 150 places assises et le foyer (ancienne salle de récréation des garçons) « doté d’un bar moderne depuis trois ans », au deuxième étage l’école de musique (ancienne salle d’escrime) dirigée par Chabrier et forte de 400 élèves et 14 professeurs. Succédant à un cours de solfège (1892-1909) puis à une première école municipale de musique (1909-1919), recréée en 1948, cette dernière était auparavant hébergée dans la Cité Gouré avant de gagner le théâtre (1965). A la tête du théâtre de 1964 à 1977 (date de son remplacement par Daniel Hamelin), Roger Chabrier est d’ailleurs, de 1965 à 1976, le directeur de l’Harmonie municipale (anciennement la Lyre auxerroise).
La réhabilitation de la décennie 1970
Le théâtre est fermé en 1974. Le maire Jean-Pierre Soisson en rappellera les raisons dans son discours du 7 janvier 1977 : la fermeture « est intervenue pour deux raisons : le chauffage était déficient et les normes de sécurité n’étaient pas respectées ». Plusieurs pistes s’offrent alors : la rénovation du théâtre, la construction d’une salle de 1 500 places sur la rive droite de l’Yonne ou la création d’une « salle expérimentale de 200 places ». Cette dernière proposition est directement issue de la mission d’étude en onze points confiée en avril 1976 à l’actrice Catherine Brieux (demeurant 1 rue de Tubie, à Champs-sur-Yonne). Premier point : « étude technique et recherche de l’esthétique pour la construction du théâtre d’essai situé dans le gymnase attenant à l’actuel théâtre municipal ». Le quatrième point - « élaboration du projet pour la création du conservatoire d’art dramatique au sein du théâtre » - fait l’objet d’un « projet annexe » débutant ainsi : « Suivant l’exemple de certaines institutions d’Amérique du Nord et d’Europe centrale, nous souhaiterions créer à Auxerre, au sein du théâtre, une école d’enseignement complet qui regrouperait toutes les disciplines nécessaires à la formation du futur comédien, lui donnant ainsi la possibilité d’aborder ce métier dans les meilleures conditions. Ce "théâtre-école" aurait également pour but de favoriser l’épanouissement de certains individus complexés, timides, solitaires. Cette "thérapeutique" leur permettrait très certainement de s’intégrer plus facilement dans la société. Nous nous permettons de vous signaler que nous avons expérimenté cette formule pendant dix ans à Paris avec les meilleurs résultats. »Catherine Brieux préconise la création d’un théâtre d’essai « pour apporter au public auxerrois une impression de renouveau, dans une installation moderne, fonctionnelle, en rapport avec la forme du théâtre actuel. Cela créerait une atmosphère artistique et culturelle favorable à la représentation d’œuvres très diverses : classiques, contemporaines ou poétiques. Nous avons donc étudié avec les architectes de la ville et Monsieur Kressmann un projet de salle transformable avec des gradins amovibles. Cela permettrait : a) le jeu traditionnel sur le plateau ; b) "le théâtre en rond" ; c) une participation avec la salle (voir la Cartoucherie de Vincennes). Ce "théâtre d’essai" aurait environ 200 places. » Le décorateur Roger Kressmann imagine ainsi les lieux : « hall d’accueil d’une polychromie très blanche, très jeune. Quelques structures animeront les murs sur façade - fleurs - plantes. Un éclairage d’ambiance très doux pour convenir à l’attente […] théâtre contemporain - d’essai - donc un espace d’esprit libre tant dans la disposition des plans de travail (scène - plateau amovible) que des gradins mobiles se disposant suivant l’esprit des représentations. Plateaux mobiles pénétrant profondément ; quelquefois parmi les spectateurs (dans l’esprit d’un théâtre d’essai à divers points de représentation) […] Le plafond en staff suivant un plan acoustique couvrira la totalité de cette surface […] » Les couleurs retenues seraient le noir pour le plafond, le brun (moquette) pour le sol et les murs, une teinte gris brun pour les sièges, l’estrade et les gradins.
La municipalité décide que le théâtre doit rester au centre-ville. Elle donne la priorité à sa réhabilitation et le 28 mai 1976, valide le projet rédigé par les services municipaux, sous la direction de l’ingénieur Claude Gervais, dont les grandes lignes sont : « rénovation de la grande salle comprenant le déplacement des installations scéniques, de sonorisation et l’agrandissement du plateau ; création d’un théâtre d’essai à l’emplacement du gymnase actuel ; agrandissement du hall d’accueil en façade du bâtiment ; redistribution des loges ». Notons tout de suite que certaines des pistes explorées depuis le début des années 1970 ne se concrétiseront pas. Ainsi de l’agrandissement du plateau : en 1973, les services techniques de la ville avaient élaboré un projet d’extension vers l’ouest, en empiétant sur des parcelles appartenant à des particuliers et sur la bourse du travail. La profondeur de cette dernière aurait été diminuée de moitié mais celle de la scène doublée. De même, une extension était également envisagée vers l’est, dans la cour : des dessins de 1973 à 1976 montrent un nouveau corps de bâtiment, plaqué contre la façade existante, qui aurait abrité le hall d’accueil au rez-de-chaussée et un « bar-fumoir » à l’étage. L’étude du chauffage, réalisée par le bureau Infratel (21 avenue de Clichy, Le Raincy), présente l’affectation des locaux envisagée en août 1976 : « L’ensemble du bâtiment comprend principalement au rez-de-chaussée : - le parterre de la grande salle de théâtre (environ 400 places) ; - un petit théâtre de 140 places ; - une salle de réunions publiques de 150 places ; - le hall d’accueil ; - quelques locaux annexes, tels que rangement accessoires, bureaux, sanitaires, loges, etc. Un premier étage comprenant : - les balcons de la grande salle (environ 400 places) ; - un foyer pouvant recevoir 150 personnes ; - une école de théâtre (30 personnes) ; - le bureau du conseil d’administration ; - des sanitaires et des loges. Il sera également prévu ultérieurement la création d’un bar fumoir. »
Les travaux sont organisés en trois tranches dont la première, débutant en octobre 1976, comprend le chauffage (remplacement du chauffage central à vapeur) et la mise en conformité de la cage de scène. Le chauffage est confié à la SA Champel Fils et Allaigre (26 rue Jean Moulin, à Orléans), conjointement avec l’entreprise auxerroise Bornhauser-Molinari (56 boulevard Vaulabelle). L’installation doit aussi assurer la ventilation et la climatisation, avec une pompe à chaleur permettant de récupérer la chaleur perdue et assurant un chauffage électrique à air pulsé. La chaufferie est installée dans l’ancienne salle d’escrime, libérée par l’école municipale de musique (partie en 1974-1975 au 8 rue du Lycée Jacques Amyot puis à l’abbaye Saint-Germain). La mise en conformité des installations scéniques est due à la société Sores (Société d’Etudes et de Réalisations d’Equipements spéciaux, établie au 47 avenue de Fontainebleau à La Chapelle-la-Reine, avec administration et bureaux au 119 rue Manin à Paris), l’éclairage scénique aux Ets Scenilux (9-11 rue Henri Regnault), la sonorisation aux Ets Sonotechnic (13 rue Rubens), toutes trois des entreprises parisiennes. La Sores doit notamment établir un nouveau rideau pare-flammes rigide (pour fermer la baie de scène, large de 10,40 m et haute de 6,50 m), supprimer l’estrade de scène et remplacer le plateau par un nouveau porté par une structure métallique (« pour ces dessous, il n’est pas prévu de costière pour chariots de mâts »). Ces éléments seront en fait réalisés en septembre-octobre 1979 par la société AZ Scénotechnique, qui se dit locataire-gérante de la Sores. La décoration est confiée à Roger Kressmann (12 rue du Four à Saint-Bris-le-Vineux), « les peintures et céramiques de Burkhalter étant à tout prix conservées », assisté du staffeur Pichon. La salle de spectacle, dont la jauge diminue, est rénovée et les sièges de l’orchestre redistribués (à une allée centrale unique succèdent deux allées). La régie est dotée d’un jeu d’orgue de 80 circuits et de nouvelles loges d’acteur sont aménagées dans le cours de la saison. A l’extérieur, la clôture au long de la rue est supprimée, de même que la vasque. La réouverture provisoire a lieu le 7 janvier 1977, l’inauguration officielle le 15 janvier. Le journaliste qui en rend compte loue la décoration du hall d’accueil « d’une élégante sobriété avec notamment, de part et d’autre des escaliers conduisant au balcon, deux motifs sculptés en bois naturel de Kressman ». L’école municipale d’art dramatique, ouverte cette même année, se voit affecter la salle Molière, ancienne salle de récréation des filles (côté cour), mais le théâtre d’essai n’est pas encore réalisé.
La deuxième tranche de travaux a lieu en 1979. En effet, les modifications apportées n’ont pas réglé tous les problèmes, notamment en matière de sécurité. Ainsi le rideau de fer n’est-il pas opérationnel lorsque des décors sont en place. Le conseil municipal valide donc le 22 juin 1979 le projet de mise en conformité établi par les services techniques. La scène est abaissée de 30 cm ce qui permet l’aménagement, pour le transport des décors, d’un cheminement sans rupture de niveau depuis le quai de chargement. Elle est agrandie du côté de la salle, passant de 6,50 m de profondeur à 9 m (la largeur étant maintenue à 11 m), d’où la suppression de la fosse d’orchestre et des deux loges d’avant-scène, directement accessibles depuis le balcon. Un nouveau rideau de fer peut ainsi être mis en place tandis qu’une installation de sécurité incendie (rideau d’eau, réseau grand secours et secours ordinaire) est réalisée par la société montargoise pressentie pour la chauffage, Champel Allaigre Sorets. La cage de scène n’est pas la seule concernée. Le conseil municipal expose dans sa réunion du 17 février 1978 : « L’aile droite des bâtiments du théâtre municipal comprend une salle polyvalente non encore rénovée qui fait l’objet de nombreuses demandes d’utilisation. Cette salle, indépendante de la salle des spectacles, peut accueillir conférences, banquets, réunions, etc. » Il valide le projet de rénovation comprenant chauffage (convecteurs et « aéro chauffeur »), menuiserie (pose d’un parquet en chêne et des portes), miroiterie (remplacement/pose de fermetures en verre sécurit), éclairage (« éclairage fluorescent de base ») et staff : « Un abaissement du plafond est nécessaire pour permettre le passage des gaines de chauffage, l’encastrement des luminaires et assurer une acoustique correcte dans la salle. Pour ce dernier effet, la disposition de volumes selon une composition géométrique est envisagée. » Le projet pour cet espace qui accueillera le bar est donné par Kressmann. L’étanchéité des toitures terrasse est également revue en 1980.
La rénovation des années 1990
Le trentième anniversaire du théâtre, qui offre en moyenne 80 spectacles par an, est fêté le 5 octobre 1983. Trois ans plus tard, le 29 décembre 1986, Claude Gervais, des Services techniques, fait le point sur la nécessité d’une nouvelle rénovation, avec appel à un scénographe. Il explique ce qui motive sa proposition : « Les services techniques ont été sollicités, après délibération de la commission culturelle de juillet 1985, pour une décoration légère mais gaie du hall d’entrée du théâtre. Une rencontre avec monsieur Le Carpentier, nouveau directeur du théâtre, a fait apparaître des besoins différents : - inconfort notoire des conditions des travail des services administratifs ; - mauvais accueil du public (location renseignements). » En réponse, les services techniques ont envisagé l’installation de l’administration au rez-de-chaussée, « en emprise dans la cour intérieure existante », avec modification des sanitaires mais le coût de l’opération (900 000 F) a conduit à la différer. « Les différentes réunions, liées à cette étude, ont fait apparaître ou remis à jour plusieurs problèmes liés au fonctionnement du théâtre : - les dimensions de la scène et l’absence de coulisses limitent beaucoup le directeur dans la programmation des spectacles ; - l’accès du matériel, son stockage et sa mise en place sont difficiles ; - l’état de la salle souffre de certaines critiques : vétusté des fauteuils, usure du revêtement de sol, inconfort des spectateurs au balcon ; - les remarques et la demande de la commission culturelle citée précédemment sont à prendre en compte pour l’ensemble du théâtre ; - la façade est en mauvais état : éclairage insuffisant et l’ensemble ne projette pas une image de marque satisfaisante du théâtre. On sait qu’un projet d’aménagement de la place est lié à la réfection de la rue Joubert ; - à l’intérieur du théâtre, il existe des locaux qui sont inexploités (ancien bar au 1er étage, anciennes loges), des locaux dont l’utilisation est actuellement indépendante du fonctionnement du théâtre mais qui à terme devraient lui être rattachés (école de théâtre, gymnase) ; - les locaux libérés par le déplacement de la bourse du travail ont été affectés en annexe au théâtre et pourraient permettre des solutions aux problèmes d’accès et de dégagement de la scène ; - les travaux qui ont été exécutés, il y a presque dix ans, dans le cadre de la mise en conformité sécurité incendie ont d’un point de vue technique et réglementaire, donné satisfaction. Par contre, des problèmes de fonctionnement, qui subsistent, auraient pu être résolus avec l’appui d’un technicien spécialisé dans les lieux de spectacle » […]Se renseignant plus avant, notamment avec la visite des théâtres rénovés de Besançon et Belfort, Gervais prend conscience de la nécessité de faire appel à un scénographe. Il préconise le recours à Laurent Besançon, de l’Atelier d’Architecture Boucon et Besançon (20 rue des Pierrettes, à Châtillon, Hauts-de-Seine) qui a visité les lieux. Une mission d’étude lui est confiée en 1987 et, soulignant l’inadaptation des capacités scénographiques, le cabinet fait cinq propositions de réaménagement (six avec la variante 1 bis). La solution n° 1 prévoit une extension du hall dans la cour (surmontée d’un grande régie), le transfert de l’administration au rez-de-chaussée à l’emplacement du bar, qui gagne le 1er étage côté jardin tandis que l’école de théâtre récupère les bureaux de l’administration, la création d’une salle de répétition dans l’ancienne salle d’escrime, etc. La n° 1 bis reprend les grandes lignes de la n° 1 mais sans l’extension dans la cour ; la n° 2 reprend aussi la 1 mais avec l’aménagement d’un accès et d’un local pour les décors dans l’ancienne bourse du travail. Dans la solution n° 3, la cage de scène s’étend côté bourse du travail mais en annexant aussi - ce que proposait déjà un plan de 1973 - trois ou quatre maison voisines (par ailleurs protégées dans le cadre du secteur sauvegardé, créé en 1976) et les autres modifications reprennent grosso modo celles de la proposition n° 1. La solution n° 4 consiste en une destruction/reconstruction sur place, avec transfert de l’entrée principale côté place de Véens ; la n° 5 correspond à une construction ex nihilo ailleurs. La solution n° 1 coûte 10 millions de F, la 1 bis 3 à 4 millions, la 2 14 millions, la 3 18 millions, la 4 et la 5 25 millions. En attendant que soit prise une décision, les travaux urgents sont réalisés : des sanitaires sont aménagés au rez-de-chaussée en 1988, les installations scéniques mise en conformité, les fauteuils du parterre réparés et des chaudières à gaz installées en 1989. Le parvis est aménagé et la façade rénovée en 1990, à l’occasion de la venue du chef de l’Etat ; les loges sont rafraîchies en 1992, le gril de scène mis en conformité en 1994.
Le projet est repris en 1990 par le groupe de travail Théâtre, qui choisit la proposition n° 1 bis du cabinet Boucon et Besançon, conservant l’emprise du théâtre et ne touchant ni à la scène ni à la salle (la coupole et les peintures de Burkhalter sont donc respectées). Cette proposition, agréée par la municipalité qui souhaite que le théâtre reste au centre-ville, est soumise à Vincent Daujat, architecte-conseil du ministère de la Culture et de la Communication, d’autant qu’il est question de transformer l’école municipale de musique en école nationale. Daujat présente le résultat de ses réflexions le 14 décembre : « […] ce théâtre n’a en tant que salle de spectacle que les apparences d’un véritable théâtre. En effet, les dimensions de la scène sont rédhibitoires si l’on ne réduit pas la jauge. » La scène existante fait 130 m2 alors qu’il en faudrait le double : le plateau devrait mesurer au moins 22 m sur 12 m et avoir une ouverture utile de 14 m. « La question est de savoir si l’on veut conserver un théâtre ou créer une autre fonction dans cet espace. L’installation de la future école nationale de musique autour d’une salle réduite qui servirait d’auditorium pourrait être envisagée pour un montant de 15 millions de francs soit 4 millions d’auditorium petit théâtre et 11 million d’aménagement de salles de cours. » Il propose trois hypothèses de travail : 1) réduire la salle : « On peut faire passer la jauge de 800 places à 450 places environ ; ainsi pourrait-on gagner en profondeur une surface de scène importante sans bien sûr pouvoir jouer sur la largeur. On aurait donc un petit théâtre pour accueillir des spectacles dramatiques, chorégraphiques et des concerts où acteurs et exécutants sont peu nombreux. Le rez-de-chaussée et le balcon seraient reliés, la partie arrière du balcon étant transformée en zone de circulation. La scène pourrait être abaissée, le chauffage repris et le grill technique rénové. » Coût : 4 000 000 F. 2) dans un deuxième temps, créer des salles d’enseignement : « après cette transformation, installer dans tous les espaces libres, les salles nécessaires à l’enseignement musical. La surface est suffisante pour faire de l’ensemble théâtre-gymnase-cour intérieure une école nationale de musique ; elle bénéficierait donc d’un auditorium qui continuerait à être utilisé comme théâtre. » Coût : 11 000 000 F. 3) finalement créer une nouvelle salle de spectacle, installée dans une friche industrielle ou construite ex nihilo : « recréer une salle de spectacle de grande dimension où la scène devrait être de l’ordre de 18 mètres de large sur 22 mètres de profondeur et où la jauge serait de 800 à 900 places. » Coût : 40 à 50 000 000 F. Il conclut : « L’hypothèse d’une salle de théâtre-auditorium au centre d’une école nationale de musique est très séduisante. » L’Atelier d’Architecture Boucon et Besançon, devenu Boucon Besançon Lenal (il associe au scénographe Laurent Besançon les programmateurs Thierry Boucon et Jean-Claude Lenal), établi 21 avenue Lombart à Auxerre, rend son étude de faisabilité le 18 juillet 1991. Il a travaillé sur la proposition de Daujat de « réduire la jauge de la salle à 500/550 places en reliant le parterre au balcon par une courbe de gradin continue » et propose trois configurations, avec rejet de la régie dans un volume à créer en façade. Le montant total (infrastructure et mobilier) serait de 5 945 000 F.
La municipalité privilégie cependant une autre piste. Elle dédie à l’école de musique les locaux de… l’ancienne école pratique d’industrie avenue Gambetta, et réserve le site de la rue Joubert au théâtre. Elle valide le 10 novembre 1995 le principe de rénover le théâtre et confie le 8 mars 1996 cette mission à un autre architecte scénographe, Yves Le Jeune (5 rue Eugène Jumin, à Paris), assisté de l’architecte d’intérieur auxerrois Patrice Migairou (14 quai de la Marine). La rénovation sera précédée par un jeu des chaises musicales : l’administration s’installera en juillet 1995, au premier étage, dans les locaux de l’école de théâtre, transférée dans l’ancien foyer qui deviendra donc salle de répétition. La proposition de Le Jeune : créer des sas vitrés en façade pour un meilleur accès et une meilleure lisibilité, une grande banque d’accueil centrale entre les deux escaliers d’accès au balcon (avec enlèvement des sculptures de Kressmann), un sas à gauche donnant accès aux sanitaires et au théâtre d’essai (d’une capacité de 140 personnes) aménagé dans le gymnase (entièrement peint en noir), son pendant à droite (« verrière-affichage ») servant à l’affichage des informations. Le grand foyer bar à droite sera rénové, ce qui permettra d’y placer le panneau de céramique de Klein (alors stocké à la cave) ; il donnera accès à un petit foyer, au foyer des techniciens et à un atelier (dans la cour qui sera couverte). L’administration occupera donc le côté cour, avec un « hall » au rez-de-chaussée de l’ancien logement du concierge, tandis que le côté jardin sera réservé aux huit loges (environ 40 p.) et à la salle de répétition. La jauge de la salle sera ramenée à 601 places (307 au parterre, 294 au balcon) mais son aspect ne sera pas modifié, suivant en cela ce qu’écrivait le directeur de l’établissement, Jean Piret, en octobre 1995 dans son Projet culturel pour une rénovation du théâtre d’Auxerre : « Nous garderons la disposition dite "à l’italienne" comprenant orchestre et balcon, pour lui laisser son cachet ancien qu’elle perdrait par la transformation en amphithéâtre. » La régie s’installera au fond du parterre, sous le balcon. La scène verra son plancher baissé d’un mètre « afin de pouvoir creuser le parterre de la salle et d’augmenter la visibilité » (hauteur sous gril : 14,60 m) et il sera mis de niveau. En avant du cadre de scène fixe (10,20 m de largeur pour 7,20 m de hauteur) prendra place un proscenium démontable, recouvrant les deux premiers rangs de sièges ; le rideau de scène passera côté salle (il encombre la scène), dégageant derrière lui une profondeur maximum de 18 m. Un dépôt sera ajouté dans l’impasse côté rue du Pont. Le permis de construire est délivré le 19 février 1997, pour des travaux estimés à 17 300 000 F. L’édifice rouvre ses portes en janvier 1999.
Le 20 juillet 2012, considérant qu’il « présente un intérêt d’art et d’histoire suffisant pour en rendre désirable la protection en raison de sa qualité architecturale d’inspiration Art Déco et de la présence de décors monumentaux de Jean Burkhalter, artiste fondateur de l’Union des Artistes Modernes », le théâtre est protégé au titre des Monuments historiques. Cette inscription prend en compte les façades, toitures et structures porteuses, la grand salle de spectacle avec les décors de Burkhalter et les deux panneaux en céramique de Sèvres. Il reçoit le 1er janvier 2018 du ministère de la Culture le label de Scène conventionnée d’Intérêt national - Art et Création. En 2022, la jauge de la grande salle est de 570 places (dont 550 louées) et celle de la petite salle de 100 places. L’équipe du théâtre réunit 14 personnes, dont deux à temps partiel, et la saison totalise environ 120 représentations par an, scolaires inclus, sur une plage d’ouverture de 250 jours.
Historique
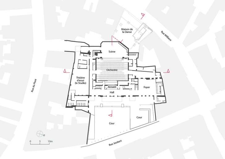
Au départ de l'école d'industrie en 1935, les locaux qu'elle quitte rue Joubert sont affectés à trois organismes : la bourse du travail, la maison du peuple et le patronage laïc Paul Bert. Ils s'avèrent toutefois inadaptés si bien que leur destruction est décidée. L’architecte-voyer Georges Simonot rédige pour les nouveaux bâtiments un avant-projet, accepté le 25 juillet 1935 par le conseil municipal : « Le plan d’ensemble a été divisé en cinq parties bien distinctes : 1° - Au centre, la salle de fêtes [d'une capacité de 910 places] ; 2° - A droite, le patronage laïque de filles ; 3° - A gauche, le patronage laïque de garçons ; 4° - En annexe, dans la cour, l’oeuvre du trousseau et l’enseignement ménager ; 5° - Au fond, avec accès direct sur la place des Véens et sans aucune communication avec les autres bâtiments : la bourse du travail. » L’adjudication des travaux se fait le 18 février 1937 mais certains lots font l’objet d’un marché de gré à gré, comme les lots 1 (terrassement et maçonnerie) et 3 (béton armé) attribués le 28 février à Jean Hémery, entrepreneur à Joigny (19 avenue Gambetta) et Bar-le-Duc (42 rue de Popey). Les démolitions ont lieu d’avril à juin 1937 ; le rez-de-chaussée et le premier étage sont réalisés en décembre de cette année ; la charpente métallique de la bourse du travail est expédiée le 15 juin 1938 tandis que les terrasses sont coulées la même année. Bien que le chantier soit compliqué par la mobilisation, le 2 septembre 1939, la bourse du travail est achevée en octobre 1939 mais la maison du peuple accueille différents occupants dont, de septembre 1940 à 1946, le magasin de chaussures et vêtements des Ets Soisson et James. Les travaux redémarrent en 1948 mais surtout en 1951. La maison du peuple, devenue théâtre municipal, est inaugurée le 8 mars 1953.
Le 11 juillet 1955, le conseil municipal décide l’attribution de la gestion de l’exploitation cinématographique du théâtre à la Seca, Société d’exploitation cinématographique auxerroise, à la tête du Grand Casino auxerrois et du cinéma Select (le Paris). L’aménagement définitif des salles de gymnastique et d’escrime se fait fin 1958 ou début 1959. En 1970, outre la salle de spectacle, l’établissement comporte au rez-de-chaussée une grande salle disponible pour des réunions et « occupée également par le Centre chorégraphique de l’Yonne qui compte deux à trois cents élèves » (ancienne salle de récréation du patronage des filles), au premier étage une salle de conférence avec 150 places assises et le foyer (ancienne salle de récréation des garçons) « doté d’un bar moderne depuis trois ans », au deuxième étage l’école de musique (ancienne salle d’escrime) dirigée par Chabrier et forte de 400 élèves et 14 professeurs. Fermé en 1974, le théâtre est rénové sous la direction de l’ingénieur Claude Gervais suivant le projet des services municipaux, validé le 28 mai 1976, prévoyant la reprise de la grande salle (avec agrandissement du plateau), la création d’un théâtre d’essai à l’emplacement du gymnase (non réalisé), l’agrandissement du hall d’accueil en façade du bâtiment (non réalisé) et la redistribution des loges. Les travaux sont effectués en plusieurs tranches : la 1re conduit à une inauguration le 15 janvier 1977, la 2e en 1979 inclut l'abaissement de la scène et son agrandissement vers la salle (entraînant la démolition de la fosse d'orchestre et des deux loges d'avant-scène, semi-circulaires et en surplomb, sans cloison ni couvrement, directement accessibles depuis le balcon) ; le foyer bar est transféré au rez-de-chaussée à cette époque. Une nouvelle campagne de rénovation est lancée en 1997 suivant le projet de l'architecte scénographe, Yves Le Jeune (5 rue Eugène Jumin, à Paris), assisté de l’architecte d’intérieur auxerrois Patrice Migairou (14 quai de la Marine). La jauge de la salle doit être ramenée à 601 places (307 au parterre, 294 au balcon), le plateau baissé d'un mètre, un proscenium démontable établi en avant du cadre de scène, une petite salle de spectacle (le théâtre d'essai) créée. L’édifice rouvre ses portes en janvier 1999. Protégé au titre des Monuments historiques le 20 juillet 2012, il reçoit le 1er janvier 2018 du ministère de la Culture le label de Scène conventionnée d’Intérêt national - Art et Création. En 2022, la jauge de la grande salle est de 570 places et celle de la petite de 100 places. L’équipe du théâtre réunit 14 personnes, dont deux à temps partiel, et la saison totalise environ 120 représentations par an, scolaires inclus, sur une plage d’ouverture de 250 jours.
- 2e quart 20e siècle
- 3e quart 20e siècle
- 4e quart 20e siècle
Simonot, Georges. Adjoint à l’architecte-voyer de la ville d'Auxerre Henri Lhermitte en 1935, puis architecte-voyer de cette ville à partir de 1940. Demeure 14 rue de la Tour d’Auvergne à Auxerre en 1964.
Gervais, Claude. Ingénieur des services techniques de la ville d'Auxerre en 1976 et 1986.
Le Jeune, Yves. Architecte scénographe, établi à Paris (5 rue Eugène Jumin) en 1997.
Migairou, Patrice. Architecte d'intérieur, établi à Auxerre au 14 quai de la Marine (1996) puis au 2 rue de Lavoir à Vaux.
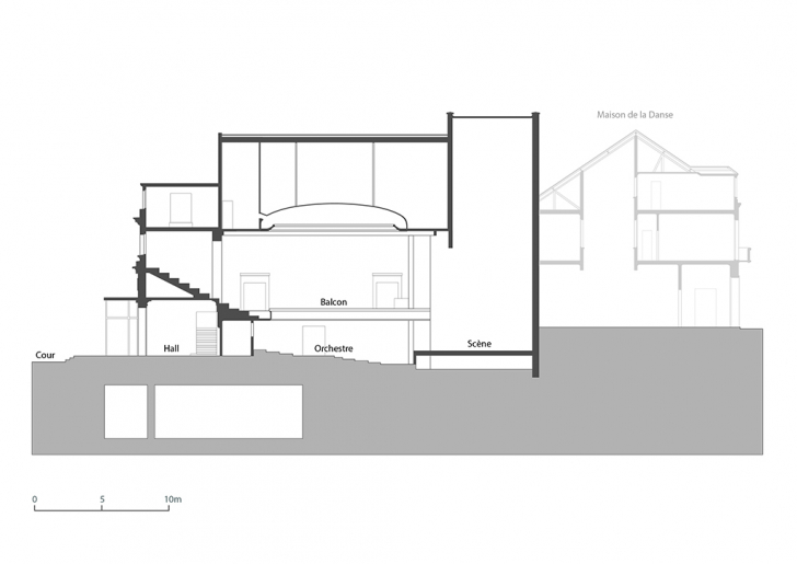
Description
Le bâtiment est réalisé en pan de béton armé et moellons calcaires. Outre un sous-sol (caves voûtées en berceau plein-cintre), il compte deux étages carrés et un étage en surcroît, desservis par des escaliers dans-oeuvre en béton, tournants à retours ou droits. La salle de plan rectangulaire a un balcon unique et une coupole en béton. Dotée d'une charpente aussi en béton, elle est coiffée d'un toit à longs pans, pignon découvert et ardoises ; les autres corps sont protégés par des terrasses en béton. Le foyer du public, autrefois situé au 1er étage côté jardin, est actuellement au rez-de-chaussée côté cour.
- calcaire
- béton
- moellon
- pan de béton armé
- enduit
- béton en couverture
- ardoise
- sous-sol
- 2 étages carrés
- voûte en berceau plein-cintre
- coupole sans trompe en béton armé
- charpente en béton armé apparente
- élévation ordonnancée
- toit à longs pans, pignon découvert
- escalier dans-oeuvre, escalier tournant à retours, en maçonnerie
- escalier dans-oeuvre, escalier droit, en maçonnerie
Source(s) documentaire(s)
-
Archives municipales d'Auxerre : 1 M 9-15 Bourse du travail et maison du peuple. 1905-1947.
Archives municipales d'Auxerre : 1 M 9-15 Bourse du travail et maison du peuple. 1905-1947.Notamment : Projet de construction d'une maison du peuple et d'une bourse dans les locaux de l'ancienne école pratique d'industrie rue Joubert & rue Milliaux. Rapport de l'architecte-adjoint Simonot, 5 octobre 1935. (1 M 9)Lieu de conservation : Archives municipales, Auxerre - Cote du document : 1 M 9-15 -
Archives municipales d'Auxerre : 1 Mprov 24 Maison du peuple et bourse du travail. Constructions : plans. 1936-1937.
Archives municipales d'Auxerre : 1 Mprov 24 Maison du peuple et bourse du travail. Constructions : plans. 1936-1937.Lieu de conservation : Archives municipales, Auxerre - Cote du document : 1 Mprov 24 -
Archives municipales d'Auxerre : 1 Oprov 2046 Ouverture d'une voie donnant accès à la maison du peuple. Acquisition de terrains (Fernand Passea et André Richet). 1938.
Archives municipales d'Auxerre : 1 Oprov 2046 Ouverture d'une voie donnant accès à la maison du peuple. Acquisition de terrains (Fernand Passea et André Richet). 1938.Lieu de conservation : Archives municipales, Auxerre - Cote du document : 1 Oprov 2046 -
Archives municipales d'Auxerre : 550 W 63 Théâtre. Plans. 1994-1999.
Archives municipales d'Auxerre : 550 W 63 Théâtre. Plans. 1994-1999.Lieu de conservation : Archives municipales, Auxerre - Cote du document : 550 W 63 -
Archives municipales d'Auxerre : 563 W 1 Théâtre. Plans. 1937-1978.
Archives municipales d'Auxerre : 563 W 1 Théâtre. Plans. 1937-1978.Lieu de conservation : Archives municipales, Auxerre - Cote du document : 563 W 1 -
Archives municipales d'Auxerre : 563 W 11-12 Théâtre. Rénovation, plans. 1974-1988.
Archives municipales d'Auxerre : 563 W 11-12 Théâtre. Rénovation, plans. 1974-1988.Lieu de conservation : Archives municipales, Auxerre - Cote du document : 563 W 11-12 -
Archives municipales d'Auxerre : 563 W 14 Théâtre. Rénovation scénographique. 1975-1980.
Archives municipales d'Auxerre : 563 W 14 Théâtre. Rénovation scénographique. 1975-1980.Lieu de conservation : Archives municipales, Auxerre - Cote du document : 563 W 14 -
Archives municipales d'Auxerre : 563 W 27 Théâtre. Réaménagement : dossier d'étude de faisabilité. 1987-1991.
Archives municipales d'Auxerre : 563 W 27 Théâtre. Réaménagement : dossier d'étude de faisabilité. 1987-1991.Lieu de conservation : Archives municipales, Auxerre - Cote du document : 563 W 27 -
Archives municipales d'Auxerre : 563 W 40, 70, 71 Théâtre. Rénovation : photographies (avant, pendant et après les travaux). 1950-1999.
Archives municipales d'Auxerre : 563 W 40, 70, 71 Théâtre. Rénovation : photographies (avant, pendant et après les travaux). 1950-1999.Lieu de conservation : Archives municipales, Auxerre - Cote du document : 563 W 40, 70, 71 -
Archives municipales d'Auxerre : 563 W 41 Théâtre. Rénovation : étude de faisabilité. 1996.
Archives municipales d'Auxerre : 563 W 41 Théâtre. Rénovation : étude de faisabilité. 1996.Lieu de conservation : Archives municipales, Auxerre - Cote du document : 563 W 41 -
Archives municipales d'Auxerre : 563 W 54, 69 Théâtre. Rénovation : lot n° 16 (fauteuils), plans (dossier de suivi du directeur des Bâtiments). 1996-1999.
Archives municipales d'Auxerre : 563 W 54, 69 Théâtre. Rénovation : lot n° 16 (fauteuils), plans (dossier de suivi du directeur des Bâtiments). 1996-1999.Lieu de conservation : Archives municipales, Auxerre - Cote du document : 563 W 54, 69 -
Archives municipales d'Auxerre : BN 670 Achat de mobilier ; décors ; rideau coupe-feu ; extension de la scène. 1953-1973.
Archives municipales d'Auxerre : BN 670 Achat de mobilier ; décors ; rideau coupe-feu ; extension de la scène. 1953-1973.Notamment : Dossier de la société Scénographie Ateliers Ganne et courriers à la mairie d'Auxerre. 1962-1963.Lieu de conservation : Archives municipales, Auxerre - Cote du document : BN 670 -
Archives municipales d'Auxerre : BN 671-675 Maison du peuple-théâtre. Achat de mobilier ; décors ; travaux ; exploitation cinématographique, etc. 1952-1983.
Archives municipales d'Auxerre : BN 671-675 Maison du peuple-théâtre. Achat de sièges ; décors ; travaux ; exploitation cinématographique, etc. 1952-1983.Lieu de conservation : Archives municipales, Auxerre - Cote du document : BN 671-675 -
Archives municipales d'Auxerre : BN 668-669 Célébration du trentenaire du théâtre municipal depuis son ouverture en 1953. 1980-1983.
Archives municipales d'Auxerre : BN 668-669 Célébration du trentenaire du théâtre municipal depuis son ouverture en 1953. 1980-1983.Lieu de conservation : Archives municipales, Auxerre - Cote du document : BN 668-669 -
Archives municipales d'Auxerre : BN 681 Maison du peuple-théâtre. Plans. 1973-1976.
Archives municipales d'Auxerre : BN 681 Maison du peuple-théâtre. Plans. 1973-1976.Lieu de conservation : Archives municipales, Auxerre - Cote du document : BN 681 -
Archives municipales d'Auxerre : BN 694 Maison du peuple-théâtre. Achat de matériel et mobilier, travaux. 1953-1983.
Archives municipales d'Auxerre : BN 694 Maison du peuple-théâtre. Achat de matériel et mobilier, travaux. 1953-1983.Lieu de conservation : Archives municipales, Auxerre - Cote du document : BN 694 -
Archives municipales d'Auxerre : BN 698-704 Maison du peuple-théâtre. Reprise des travaux de construction. 1936-1971.
Archives municipales d'Auxerre : BN 698-704 Maison du peuple-théâtre. Reprise des travaux de construction. 1936-1971.Lieu de conservation : Archives municipales, Auxerre - Cote du document : BN 698-704 -
Archives municipales d'Auxerre : CP 5/1-6, 6/7-20, 10/44 Ecole pratique d'Industrie, Maison du Peuple et Bourse du Travail. Plans. 1921-1945.
Archives municipales d'Auxerre : CP 5/1-6, 6/7-20, 10/44 Ecole pratique d'Industrie, Maison du Peuple et Bourse du Travail. Plans. 1921-1945.Lieu de conservation : Archives municipales, Auxerre - Cote du document : CP 5/1-6, 6/7-20, 10/44 -
Piret, Jean. Projet culturel pour une rénovation du théâtre d’Auxerre 1996-2000. Octobre 1995.
Piret, Jean. Projet culturel pour une rénovation du théâtre d’Auxerre 1996-2000. Octobre 1995. [14] p. ; 30 cm. -
Le Théâtre d'Auxerre, scène conventionnée d'intérêt national. Dossier technique. 1er septembre 2023.
Le Théâtre d'Auxerre, scène conventionnée d'intérêt national. Dossier technique. Auxerre : Théâtre municipal, 1er septembre 2023. 9 p. ; 30 cm.
-
Projet d’aménagement d’une maison du peuple [plan n° 1 et coupes]. 5 octobre 1936.
Projet d’aménagement d’une maison du peuple. Dessin (tirage), par l’architecte Simonot. Auxerre le 5 octobre 1936. 1/100.- 1 [élévation rue Joubert]. 41,5 x 70,5 cm. Plan visé par le ministère de l’Intérieur.- Maison du peuple [coupes]. S.n. 55 x 90,5 cm.Lieu de conservation : Archives municipales, Auxerre - Cote du document : 1 Mprov 24 -
Projet d’aménagement d’une maison du peuple et d’une bourse du travail. Bourse du travail [et] Maison du peuple [plans et coupes n° 3 à 9]. 5 octobre 1936.
Projet d’aménagement d’une maison du peuple et d’une bourse du travail. Dessin (tirage), par l’architecte Simonot. Auxerre le 5 octobre 1936. 1/100. Plan visé par le ministère de l’Intérieur.- 3. Plan des fondations, canalisations. 108,5 x 74 cm. - 4. Salle des fêtes et patronages rue Joubert, plan du rez-de-chaussée. Bourse du travail rue Milliaux, fondations. 104,5 x 76 cm. - 5. Salle des fêtes et patronages rue Joubert, plan du premier étage. Bourse du travail rue Milliaux, plan du rez de chaussée. 104 x 75,5 cm. - 6. Salle des fêtes et patronages rue Joubert, plan des terrasses. Bourse du travail rue Milliaux, plan du premier étage. 104,5 x 76 cm. - 7. Bourse du travail [et] Maison du peuple [coupes]. 51,5 x 87,5 cm. - 8. Maison du peuple [coupes]. 51,5 x 88 cm. - 9. Projet de construction d’une maison du peuple et d’une bourse du travail. Plan des démolitions. Dessin sur calque (tirage, crayon de couleur), s.n. S.d. [5 octobre 1936]. 88,5 x 72,5 cm.Lieu de conservation : Archives municipales, Auxerre - Cote du document : 1 Mprov 24 -
[Projet de salle des fêtes, patronages et bourse du travail]. 5 avril 1937.
[Projet de salle des fêtes, patronages et bourse du travail]. Dessin (tirage), par l’architecte [Simonot]. Auxerre le 5 avril 1937. 1/50.- 1. Salle des fêtes et patronages rue Joubert. Façade principale. 69 x 127 cm.- 2. Bourse du Travail rue Milliaux. Façade sur rue, coupe suivant IJ. 68,5 x 111 cm.- 3. Salle des fêtes et patronages rue Joubert. Fondations. 115 x 109,5 cm.- 4. Salle des fêtes et patronages rue Joubert. Rez de chaussée. Bourse du travail rue Milliaux. Fondations. 116,5 x 107,5 cm.- 5. Salle des fêtes et patronages rue Joubert. Etage. Bourse du travail rue Milliaux. Rez de chaussée. 117 x 107 cm.- 6. Salle des fêtes et patronages rue Joubert. Terrasses. Bourse du travail rue Milliaux. Etage. 113,5 x 108,5 cm.- 9. Salle des fêtes et patronages rue Joubert. Coupe suivant GH, aménagement du bar. 68,5 x 101,5 cm.Lieu de conservation : Archives municipales, Auxerre - Cote du document : CP 5/5 -
Bétons Armés Hennebique. Maison du peuple et bourse du travail à Auxerre. 1937.
Bétons Armés Hennebique. Maison du peuple et bourse du travail à Auxerre. Dessin (tirage), par la société Hennebique, A. Caquineau ingénieur. 1937. 1/100. Ensemble de plans de la société Bétons armés Hennebique (fondations, planchers, galerie, fermes, escaliers, etc.), notamment :- Plancher et balcon. Plan n° 2 du 29 janvier 1937. 101,5 x 67 cm.- Coupes. Plan n° 5 du 29 janvier 1937. 67 x 92 cm, sans éch.Lieu de conservation : Archives municipales, Auxerre - Cote du document : 1 Mprov 24 -
[La coupole en construction]. S.d. [1938].
[La coupole en construction]. Photographie, s.n. S.d. [1938]. Tirage N&B, 18,5 x 29 cm.Lieu de conservation : Musée des Arts naïfs et populaires de Noyers -
[Mur de clôture et de sa grille]. S.d. [1939].
[Mur de clôture et de sa grille]. Dessin (tirage), s.n. [par l'architecte Simonot ?]. S.d. [1939]. 1/50.- [Ensemble]. 28,5 x 79,5 cm.- [Détail]. 36 x 35 cm, 1/10.- [Détail d’un portail]. 49,5 x 74,5 cm, 1/10.Lieu de conservation : Archives municipales, Auxerre - Cote du document : 1 M 10 -
Ville d’Auxerre. Théâtre municipal. Projet de grille. 15 décembre 1952.
Ville d’Auxerre. Théâtre municipal. Projet de grille. Dessin (tirage), par l’architecte voyer [Simonot]. 15 décembre 1952. 31 x 101,5 cm, 1/50.Lieu de conservation : Archives municipales, Auxerre - Cote du document : BN 671 -
[Blason de la ville] Grandeur d’exécution. S.d. [1952 ?].
[Lion du blason de la ville] Grandeur d’exécution. Dessin (tirage), s.n. S.d. [1952 ?]. 75 x 52,5 cm.Lieu de conservation : Archives municipales, Auxerre - Cote du document : BN 671 -
Ville d’Auxerre. Théâtre municipal [plans]. S.d. [1952 ?].
Ville d’Auxerre. Théâtre municipal [plans]. Dessin (tirage), par l’architecte voyer [Simonot]. Auxerre le [1952 ?]. 1/50.- Rez de chaussée. 92,5 x 106,5 cm.- Etages. 93 x 105 cm.Lieu de conservation : Archives municipales, Auxerre - Cote du document : BN 681 -
Ville d’Auxerre. Théâtre municipal. Salle d'escrime. Plan et coupe. 2 décembre 1952.
Ville d’Auxerre. Théâtre municipal. Salle d'escrime. Plan et coupe. Dessin (tirage), par l’architecte-voyer Simonot. 2 décembre 1952. 30 x 104 cm, 1/50. Plan 27-H.Lieu de conservation : Archives municipales, Auxerre - Cote du document : BN 702 -
Ville d’Auxerre. Théâtre municipal. Salle de gymnastique. 15 janvier 1953.
Ville d’Auxerre. Théâtre municipal. Salle de gymnastique. Dessin (tirage), par l’architecte-voyer Simonot. 2 décembre 1952, modifié le 15 janvier 1953. 1/50.- Plan. 31 x 68 cm. Plan 27-A3, remplace 27-A2.- Coupes et façade. 31 x 125 cm. Plan 27-B3, remplace 27-B2.Lieu de conservation : Archives municipales, Auxerre - Cote du document : BN 702 -
Location du... [plan de repérage des places du théâtre]. S.d. [décennie 1950 ?].
Location du... [plan de repérage des places du théâtre]. Dessin imprimé, s.n. S.d. [décennie 1950 ?]. 35 x 43 cm, sans échelle.Lieu de conservation : Archives municipales, Auxerre - Cote du document : BN 681 -
[Façade antérieure]. S.d. [1957].
[Façade antérieure]. Photographie, par R. Coqueugniot. S.d. [1957]. Tirage N&B.Lieu de conservation : Archives municipales, Auxerre - Cote du document : 563 W 40 -
[Vues extérieures du théâtre]. S.d. [3e quart 20e siècle].
[Vues extérieures du théâtre]. Photographie, s.n. S.d. [3e quart 20e siècle]. 10 tirages N&B 9 x 9 cm.Notamment :- [Façade antérieure]. (1218)- [L'aile nord]. (1389)Lieu de conservation : Archives municipales, Auxerre - Cote du document : 505 W 300 -
[Vues intérieures du théâtre]. S.d. [3e quart 20e siècle].
[Vues intérieures du théâtre]. Photographie, s.n. S.d. [3e quart 20e siècle]. Tirages N&B.Lieu de conservation : Archives municipales, Auxerre - Cote du document : 563 W 40 -
Théâtre municipal. Rez de chaussée. Etat actuel. S.d. [1975]
Théâtre municipal. Rez de chaussée. Etat actuel. Dessin (tirage), par l’ingénieur subdivisionnaire [J. Jenain], Services techniques de la ville. S.d. [1975]. 80 x 130 cm, sans éch.Lieu de conservation : Archives municipales, Auxerre - Cote du document : BN 681 -
Théâtre municipal. Rez de chaussée. Etat projeté. Aménagement. 16 juin 1975.
Théâtre municipal. Rez de chaussée. Etat projeté. Aménagement. Dessin (tirage), par l’ingénieur subdivisionnaire [J. Jenain], dessiné par R. Gemble, Services techniques de la ville. 10 octobre 1974, modifié le 16 juin 1975. 80,5 x 128 cm. 1/50.Lieu de conservation : Archives municipales, Auxerre - Cote du document : BN 681 -
Théâtre municipal. Bourse du travail. Coupe CD-EF. 10 mars 1975.
Théâtre municipal. Bourse du travail. Coupe CD-EF. Dessin (tirage), par l’ingénieur subdivisionnaire Jenain [?], Services techniques de la ville. 10 mars 1975. 44,5 x 133,5 cm, 1/50.Lieu de conservation : Archives municipales, Auxerre - Cote du document : BN 681 -
Théâtre municipal. Extension scène. Suivant coupe CD EF [projet]. S.d. [1975].
Théâtre municipal. Extension scène. Suivant coupe CD EF [projet]. Dessin (tirage), par l’ingénieur subdivisionnaire [Jenain]. S.d. [1975]. 69 x 117 cm, 1/50.Lieu de conservation : Archives municipales, Auxerre - Cote du document : BN 681 -
Théâtre municipal [état actuel et état projeté : plans, coupes et élévation]. 20 mai 1976.
Théâtre municipal [état actuel et état projeté : plans, coupes et élévation]. Dessin (tirage), par l’ingénieur subdivisionnaire Canovas, Services techniques de la ville. 20 mai 1976. 1/50.- Rez de chaussée. Etat actuel. 79,5 x 129,5 cm. Sans éch.- 1er étage. Etat actuel. 92 x 196 cm.- Etat actuel. Coupe CD.EF. 41,5 x 133 cm.- Etat actuel. Coupe transversale. Dessiné par Régine Gemble (sur un fond de plan du 5 avril 1937). 13 juin 1975. 66 x 106,5 cm.- Rez de chaussée. Etat projeté. Modification gros-œuvre. 10 octobre 1974. 80 x 127,5 cm.- Rez de chaussée. Etat projeté. Aménagement. 10 octobre 1974, repris par R. Gemble 16 juin 1975. 80,5 x 127,5 cm.- 1er étage. Etat projeté. 90 x 107 cm.- Etat projeté. Coupes AA BB CC. Détails. 10 octobre 1974. 87,5 x 103,5 cm, 1/50 et 1/10.- Etat projeté. Coupe CD. Dessiné par Régine Gemble. 13 juin 1975. 41,5 x 121 cm.- Façade projetée. Dessiné par G. Rocherieux. 13 septembre 1973. 67,5 x 104 cm.Lieu de conservation : Archives municipales, Auxerre - Cote du document : BN 675 -
[Vues extérieures du théâtre]. S.d. [années 1990, avant 1997].
[Vues extérieures du théâtre]. Photographie, s.n. S.d. [années 1990, avant 1997]. Tirages N&B.Lieu de conservation : Archives du théâtre municipal, Auxerre -
[Salle de gymnastique avant transformation]. Photographie, s.n. S.d. [années 1990, avant 1997].
[Salle de gymnastique avant transformation]. Photographie, s.n. S.d. [années 1990, avant 1997]. Tirages en couleur.Lieu de conservation : Archives municipales, Auxerre - Cote du document : 563 W 40 -
Photographies de l'état actuel de la salle (1996).
Photographies de l'état actuel de la salle (1996). Photographie, s.n. Tirages N&B.Lieu de conservation : Archives municipales, Auxerre - Cote du document : 563 W 40 -
[Vues intérieures du théâtre (avant restauration)]. 1996.
[Vues intérieures du théâtre (avant restauration)]. Photographie, par Josette Laliaux, ville d’Auxerre. 1996. Tirages couleur.Lieu de conservation : Archives municipales, Auxerre - Cote du document : 563 W 70 -
Rénovation du théâtre municipal. Avant-projet définitif. Etat actuel. Plan des sous-sols. 30 octobre 1996.
Rénovation du théâtre municipal. Avant-projet définitif. Etat actuel. Plan des sous-sols. Dessin sur calque, s.n. [par Yves Le Jeune ?]. 30 octobre 1996. 82 x 118 cm, 1/50.Lieu de conservation : Archives municipales, Auxerre - Cote du document : 550 W 63 -
Rénovation du théâtre municipal. Demande de permis de construire modificatif. Projet. 22 juillet 1998.
Rénovation du théâtre municipal. Demande de permis de construire modificatif. Projet. Dessin sur calque, s.n. [par Yves Le Jeune ?]. 22 juillet 1998. 1/50.- Coupe PP’ sur théâtre & façade local EDF [coupe transversale]. 72,5 x 100 cm.- Coupe WW’ & grande façade sur cour [coupe longitudinale]. 75,5 x 112 cm.Lieu de conservation : Archives municipales, Auxerre - Cote du document : 550 W 63 -
[Gril en cours de restauration, vu du dessous]. S.d. [1997-1998].
[Gril en cours de restauration, vu du dessous]. Photographie, par Josette Laliaux. S.d. [1997-1998]. Tirage couleur.Lieu de conservation : Archives du théâtre municipal, Auxerre -
[Régie restaurée]. S.d. [1997-1998].
[Régie restaurée]. Photographie, s.n. S.d. [1997-1998]. Tirage couleur.Lieu de conservation : Archives du théâtre municipal, Auxerre
-
CAUE de Saône-et-Loire. Guide d'architecture en Bourgogne, 1893-2007. 2008.
CAUE de Saône-et-Loire. Guide d'architecture en Bourgogne, 1893-2007. Paris : Picard, 2008. 399 p. : ill. ; 25 cm. -
Chronologie [du théâtre d'Auxerre]. S.d.
Chronologie [du théâtre d'Auxerre]. S.l. : s.n., s.d. [8] p. ; 19 x 23,5 cm.Lieu de conservation : Archives du théâtre municipal, Auxerre -
D., P. Travaux d’envergure au théâtre. La sécurité d’abord. 30 août 1979.
D., P. Travaux d’envergure au théâtre. La sécurité d’abord. L’Yonne républicaine, jeudi 30 août 1979, p. 5 : ill. -
De l’école d’industrie au lycée technique. 1er octobre 2016.
De l’école d’industrie au lycée technique. L’Yonne républicaine [en ligne], 1er octobre 2016, ill. [consulté le 6 avril 2023]. Adresse internet : https://www.lyonne.fr/auxerre-89000/actualites/de-l-ecole-d-industrie-au-lycee-technique_12094674/ -
Guillaume, Jean-Charles. De Lesseré à Soisson et James : un magasin du centre-ville à Auxerre 1759 à 1963. 2013.
Guillaume, Jean-Charles. De Lesseré à Soisson et James : un magasin du centre-ville à Auxerre 1759 à 1963 / Notes et résumé par Monique Caron. [Auxerre] : Société des Sciences historiques et naturelles de l'Yonne, 2013. 2 p. ; 30 cm. Compte-rendu de la conférence de J.-C. Guillaume le 9 juin 2013. Document accessible en ligne sur le site de la SSHNY : http://www.sshny.org/13-06-09%20Conf%C3%A9rence%20Guillaume.pdf. -
Hamelin, Daniel. Rétrospectaculairement. 1983.
Hamelin, Daniel. Rétrospectaculairement. Dans Théâtre municipal d’Auxerre. 53-83, 30 années de spectacle. S.l. [Auxerre] : Caisse régionale du Crédit agricole, octobre 1983, [p. 5-12] : ill. -
Hugonnet-Berger, Claudine ; Maulmin, Pascale de ; Sonnet, Bernard. Théâtres en Bourgogne : architectures du spectacle 1800-1940. 1996.
Hugonnet-Berger, Claudine ; Maulmin, Pascale de ; Sonnet, Bernard. Théâtres en Bourgogne : architectures du spectacle 1800-1940 / Service régional de l'Inventaire général, Direction régionale des Affaires culturelles de Bourgogne ; photogr. Michel Rosso ; carte Alain Morelière. Dijon : Direction régionale des Affaires culturelles, 1996. 28 p. : ill. ; 23 cm. (Itinéraires du Patrimoine ; 124). -
Pineaux, Denise. Architecture civile et urbanisme à Auxerre 1800-1914. 1978.
Pineaux, Denise. Architecture civile et urbanisme à Auxerre 1800-1914. Auxerre : Imprimerie moderne, 1978. 477 p. : ill. ; 24 cm. -
Poupard, Laurent. Le théâtre d'Auxerre. Yonne. 2024.
Poupard, Laurent. Le théâtre d'Auxerre. Yonne / collab. Sylvain Aumard, Claire Clément, Laura Delauney, Yorick Eustache, Pierre Kechkéguian ; photogr. Pierre-Marie Barbe-Richaud ; cartogr. Aline Thomas. Lyon : Editions Lieux-Dits, 2024. 47 p. : ill. ; 23 cm. (Parcours du Patrimoine ; 430). -
Rat-Morris, Viviane. Théâtre municipal, ancienne Maison du Peuple. 2012.
Rat-Morris, Viviane. Théâtre municipal, ancienne Maison du Peuple. Auxerre : DRAC Bourgogne, 2012. 1 vol. de texte (14 p.), 1 vol. d’ill. ; 30 cm.Rapport en vue de la présentation devant la CRPS du 24 mai 2012. Biographies p. 6-9. -
Sapin, Christian (dir.) ; Bonnerue, Pierre ; Desaive, Jean-Paul ; Guyot, Philippe ; Henrion, Fabrice ; Wahlen, Patrice. Auxerre. 1998.
Sapin, Christian (dir.) ; Bonnerue, Pierre ; Desaive, Jean-Paul ; Guyot, Philippe ; Henrion, Fabrice ; Wahlen, Patrice. Auxerre. Paris : Ministère de la Culture et de la Communication, Direction de l'Architecture et du Patrimoine, 1998. 192 p. ; 30 cm. (Documents d'évaluation du patrimoine archéologique des villes de France ; 16). -
Théâtre municipal d’Auxerre. 53-83, 30 années de spectacle. 1983.
Théâtre municipal d’Auxerre. 53-83, 30 années de spectacle. S.l. [Auxerre] : Caisse régionale du Crédit agricole, octobre 1983. Non paginé : ill. ; 21 cm.Lieu de conservation : Archives municipales, Auxerre - Cote du document : BN 668
-
Kechkéguian, Pierre (témoignage oral)
Kechkéguian, Pierre. Directeur du théâtre d'Auxerre en 2022.
À voir
Informations complémentaires
VILLE D’AUXERRE
PROJET DE CONSTRUCTION D'UNE MAISON DU PEUPLE ET D'UNE BOURSE
DANS LES LOCAUX DE L'ANCIENNE ECOLE PRATIQUE D'INDUSTRIE
RUE JOUBERT & RUE MILLIAUX
RAPPORT DE L'ARCHITECTE-ADJOINT auteur du projet
Par délibération du 25 juillet 1935, le Conseil Municipal a accepté l'avant-projet présenté, de construction d'une Maison du Peuple et d'une Bourse du Travail, dans les locaux de l'ancienne école pratique d'Industrie, rue Joubert et rue Milliaux et nous a chargé d'établir les plans définitifs ainsi que les devis descriptifs et estimatifs des différents travaux.
Nous avons tenu à donner satisfaction et à présenter, dans un délai très court le projet demandé.
L'étude en était particulièrement difficile et délicate :
Difficile, car il s'agissait d'utiliser au maximum un terrain n'ayant aucune forme rectiligne et présentant un étranglement en son milieu, tout en essayant de conserver des murs et des fondations de murs existants.
Délicate, parce que le projet comportait la construction d'une salle de fêtes devant servir aussi bien au théâtre qu'au cinéma ou même à la danse et que les conditions d'utilisation et de visibilité d'une salle de spectacle sont totalement différentes suivant que l'on est appelé à regarder une pièce de théâtre ou une projection cinématographique.
En outre, il ne fallait pas que la galerie débordât trop sur la salle, afin de ne pas en réduire la hauteur sous plafond pour qu'on y puisse danser sans être incommodé par la chaleur.
Enfin, il y avait lieu de tenir compte, pour ces différentes utilisations des règlements en vigueur, particuliers à chaque cas, relatifs aux conditions de construction des salles de spectacle.
Nous pensons avoir réussi, après d'assez longues études, à résoudre ces différents problèmes et les épures de visibilité que nous avons faites nous ont prouvé que de toutes les places de la salle, aussi bien au rez de chaussée qu'aux galeries, on pourra voir l’ensemble de la scène ou la totalité de l'écran cinématographique. Enfin, la salle, au rez de chaussée débarrassée de ses fauteuils, qui pourront être remisés sous l'estrade, pourra faire une salle de danse carrée de 16 m 90 de côté.
DISPOSITION GENERALE DU PROJET
Le plan d'ensemble a été divisé en cinq parties bien distinctes :
1° - Au centre, la salle de fêtes ;
2° - A droite, le patronage laïque de filles ;
3° - A gauche, le patronage laïque de garçons ;
4° - En annexe, dans la cour, l'oeuvre du trousseau et l'enseignement ménager ;
5° - Au fond, avec accès direct sur la place des Véens et sans aucune communication avec les autres bâtiments : la Bourse du Travail.
1/ La salle des fêtes
Située au centre des bâtiments, à l’emplacement de l’ancien atelier du fer, elle comporte :
Un grand vestibule servant de dégagement avec 5 doubles portes à va-et-vient sur la cour et 3 doubles-portes également à va-et vient donnant accès aux fauteuils d’orchestre ;
A droite, un foyer bar, à gauche un vestiaire et une salle pouvant servir de grand vestiaire pour les bals ou de cuisine pour le service des banquets ;
A droite et à gauche de l'entrée, 2 guichets pour la distribution des billets ;
Au fond, également à droite et à gauche, 2 escaliers donnant accès aux galeries.
La fosse pour les musiciens
La scène et le magasin aux décors
Un foyer et des loges d'artistes avec escalier spécial
Une cabine de projections cinématographiques,
Au rez-de-chaussée et aux étages W.C. pour hommes et dames.
Le parterre comprend 475 fauteuils d'orchestre, la galerie 430 fauteuils et 2 loges indépendantes.
La circulaire ministérielle du 29 novembre 1935, sur la sécurité dans les salles de spectacle a été respectée en tous points. En dehors des sorties et des escaliers réglementaires, nous avons prévu 2 sorties supplémentaires de secours au rez-de-chaussée et une sortie supplémentaire de secours avec escalier spécial pour la galerie ainsi qu’une entrée spéciale pour les artistes pouvant également servir de dégagement de secours pour la scène.
Les W.C. sont suffisamment nombreux, pourvus de lavabos et bien ventilés.
Toutes les prescriptions ont été observées en ce qui concerne le service d'incendie.
La salle des fêtes et les dégagements, ainsi que toutes les autres parties de la Maison du Peuple et de la Bourse du Travail seront chauffés au moyen du chauffage central.
La salle sera, en outre, pourvue de ventilateurs spéciaux pour assurer une absorption rapide des fumées et des mauvaises odeurs et d'appareils humidificateurs permettant de renouveler l'air vicié par de l'air frais humidifié et d'abaisser la température de quelques degrés.
Cette salle des fêtes sera sobrement décorée et pourvue d'un éclairage direct abondant, d'un éclairage indirect en plafond sous la coupole, ainsi que d'un éclairage de secours devant fonctionner en cas d'arrêt de l'éclairage public.
2° - Le patronage laïque de filles à droite de la salle des fêtes comprend :
Au rez-de-chaussée, une grande salle de récréation avec vestiaire, lavabos et petite cuisine dans la courette,
Une salle du Conseil d'Administration devant servir de bibliothèque.
Un préau couvert et des W.C. dans la cour sur la rue Joubert,
Au premier étage, une salle de couture avec magasin et un ouvroir,
Au deuxième étage des terrasses de récréation.
3° - Le patronage laïque de garçons, à gauche de la salle des fêtes, comporte au rez de chaussée, une grande salle de gymnastique avec agrès.
Dans la cour sur la rue Joubert, préau couvert avec W.C. et lavabos.
Au 1er étage, une grande salle de récréation pouvant servir de salle de réunions.
Au 2eme étage une terrasse de récréation et une salle d’escrime.
Toutes les terrasses seront construites avec les meilleurs procédés d'étanchéité connus. Celles qui seront accessibles auront leurs chapes de protection recouvertes par un dallage ou par un carrelage en carreaux de céramique.
Au rez de chaussée, au fond du vestibule, à côté du magasin aux décors, salle de douches commune aux deux patronages et contenant 15 cabines avec déshabilloirs.
4° - L'oeuvre du Trousseau et l’Enseignement ménager, petit bâtiment en annexe sur la rue Joubert (Maison Petit) possédera :
Au rez de chaussée, une salle pour l'oeuvre du trousseau et une cuisine pour l'enseignement ménager.
Au premier étage, une grande salle de couture.
5° - La Bourse du Travail sera située sur la rue Milliaux, elle sera complètement indépendante et comprendra :
Au rez de chaussée : un grand vestibule, un bureau et une salle d'archives, une grande salle de réunion pouvant contenir 350 personnes assises, éclairée et ventilée au milieu par un grand lanterneau, une salle d'accueil et des W.C.
A l'étage : 5 salles de réunion et des W.C.
Au 2ème étage : le logement du concierge.
Les travaux ci-dessus seraient entrepris par adjudication ou au concours en 16 lots, savoir :
1er lot - Terrasse, Maçonnerie, carrelages, fumisterie, canalisations sanitaires
2ème lot - Cloisons, plâtrerie, revêtements,
3ème lot - Béton armé,
4ème lot - Etanchéité des terrasses,
5ème lot - Charpente,
6ème lot - Couverture, zinguerie,
7ème lot - Plomberie, appareils sanitaires,
8ème lot - Menuiserie, parquets,
9ème lot - Serrurerie, quincaillerie, charpente en fer,
10ème lot - Peinture, vitrerie, tentures,
11ème lot- Décoration et décors,
12ème lot - Chauffage central, ventilation et conditionnement de l'air,
13ème lot - Eclairage électrique,
14ème lot - Installation de bains-douches,
15ème lot - Fosses septiques et épuration biologique,
16ème lot - Mobilier.
Le devis de l’ensemble des travaux ci-dessus s'élève à la somme de 1.807.984 fr. 59. S'il est un peu supérieur au chiffre approximatif que nous avions donné lors de la présentation de l’avant-projet, cela tient tout simplement à ce que nous avons majoré tous les prix de notre première estimation de 20 % afin de tenir compte de l’application des nouvelles lois sociales.
Sous avons l'honneur de demander que le présent projet soit soumis au Conseil Municipal pour acceptation et vote de crédits, puis à M. le Préfet de l'Yonne, pour approbation.
Auxerre, le 5 octobre 1935
L'Architecte-Adjoint, (Signé) Simonot.
Vu et présenté
L'Architecte-Voyer, (Signé) Lhermitte
Vu :
Pour le Maire, L'Adjoint, (Signé) Moreau
Approuvé :
Auxerre, le 17 décembre 1936
Pour le Préfet, Le secrétaire Général, (Signé) Tenot.
Texte publié dans la collection des Itinéraires du Patrimoine : Hugonnet-Berger, Claudine ; Maulmin, Pascale de ; Sonnet, Bernard. Théâtres en Bourgogne : architectures du spectacle 1800-1940. Dijon : Direction régionale des Affaires culturelles, 1996, p. 2, 4-5 : ill. (itinéraires du patrimoine ; 124).
Une grange de la rue de La Fraternité accueillit au XVIIIe siècle la première salle de spectacle auxerroise, transférée en 1801 dans l'ancienne chapelle du collège. Malgré ses insuffisances, ce théâtre perdura, relayé dans les années 1910 par des salles privées, tel le « cinéma-théâtre Botex ».
En 1936, alors que triomphait le Front Populaire, le Conseil Municipal approuva le projet de construction d'une nouvelle « Maison du Peuple », en remplacement de celle qui avait été aménagée, non sans mal, dans la Maison Soufflet, en 1903-1904.
Le nouvel édifice, bâti sur les plans de l'architecte-voyer adjoint Simonnot, allait s'élever au cœur de la vieille ville, à l'emplacement de l'Ecole Pratique d'Industrie. Le chantier débuta en 1937 mais, freinés par la guerre et l'Occupation, les travaux d'aménagement se prolongèrent jusqu'en 1950. La salle de spectacle de la Maison du Peuple, devenue entre-temps théâtre municipal, sera inaugurée le 8 mars 1953. Depuis 1975, le chauffage, l'électricité, la sécurité, la régie et les dispositifs scéniques ont périodiquement fait l'objet d'améliorations. En 1976, l'agrandissement de la scène, vers la salle (toute extension vers l'arrière étant impossible), fit disparaître la fosse d'orchestre et deux loges d'avant-scène semi-circulaires, en surplomb, sans cloison ni couvrement, directement accessibles depuis le balcon. La rénovation du théâtre, imminente, se propose de lui restituer son parti esthétique initial.
La façade principale de l'édifice, précédée d'une petite place autrefois agrémentée d'un bassin, s'inscrit dans la « modernité » par sa géométrie, sa nudité, ses toits-terrasses et son fronton dissimulant le toit à deux versants de la salle. Elle témoigne, comme les aménagements intérieurs, d'un parti d'austérité visant à bannir toute expression d'élitisme. Un vestibule d'entrée donne accès au rez-de-chaussée de la salle, par trois portes axiales, et aux escaliers latéraux en équerre qui desservent l'étage. Meublé de fauteuils disposés en gradins, le balcon occupe les trois côtés de la salle, couverte d'une coupole aplatie. Rompant avec l'austérité de l'architecture, des peintures exécutées par Jean Burkhalter animent la coupole et les murs latéraux du balcon. L'artiste, à la fois peintre, architecte, décorateur, naquit à Auxerre en 1895. Elève de l'Ecole Nationale Supérieure des Arts Décoratifs (Paris), il créa des modèles pour les ateliers Primavera (grands magasins du Printemps) et pour la Manufacture de Sèvres. Il dirigea l'Ecole municipale d'Auxerre (1935), puis l'Ecole Nationale des Arts Décoratifs de Limoges (1946). En 1934 il adhéra à l'Union des Artistes Modernes aux côtés de Le Corbusier, Mallet-Stevens, Chareau... Le décor qu'il peignit en 1939 sur la coupole du théâtre d'Auxerre représente les douze signes du zodiaque : mis en exergue au centre de la composition, le Lion, traité de manière héraldique, symbolise également la ville d'Auxerre dont il meuble le blason. Les peintures plus sombres du balcon, datées de 1939 et de 1940-42, associent le thème du spectacle (évocation chronologique du Théâtre, choristes, orchestre, danseuses nues) à des scènes d'un tout autre ordre, exaltant notamment le travail de la terre et la construction. Burkhalter est également l'auteur d'un panneau de céramique ornemental visible dans l'ancien foyer du public (à l'étage, côté jardin) : ce panneau, exécuté d'après un dessin de l'artiste par les décorateurs C. Freyssinges et R. Sivault de la Manufacture de Sèvres, symbolise l'ouïe en mettant en scène des musiciens et une danseuse à l'écoute. Il figura à l'Exposition Internationale des Arts et Techniques de 1937, dans le Pavillon de la Manufacture.
Le Théâtre d'Auxerre, scène conventionnée d'intérêt national. Dossier technique. Auxerre : Théâtre municipal, 1er septembre 2023. 9 p. ; 30 cm.
Archives municipales d'Auxerre : BN 670-704 Théâtre municipal. 1936-1983.
Inventaire des boîtes à numéro (archives classées selon le système de classification décimale universelle CDU). Répertoire provisoire - 2012.
Façades ; toitures ; structures porteuses ; grande salle de spectacle, incluant le balcon et les décors réalisés par Jean Burkhalter sur les murs et la coupole ; le panneau en céramique de Sèvres figurant une allégorie de la Vue par Clément Freyssinges et Roger Sivault d'après un dessin de Georges-André Klein (cad. BI 229, cf plan annexé à l'arrêté) : inscription par arrêté du 20 juillet 2012.
- théâtres de Bourgogne
- salles de spectacle de Bourgogne-Franche-Comté
- © Région Bourgogne-Franche-Comté, Inventaire du patrimoine
