ÉGLISE PAROISSIALE SAINT-JEAN, ACTUELLEMENT THÉÂTRE DU PARVIS SAINT-JEAN
21 - Dijon
15 rue Danton
- Dossier IA21005817 réalisé en 2021 revu en 2022
- Auteur(s) : Laurent Poupard
Historique
L'église est bâtie de 1448 à 1470 environ. Elle succède à une basilique située dans un cimetière et qui aurait été érigée au 5e siècle par l'évêque de Langres, saint Urbain. Rebâtie et agrandie, celle-ci était devenue église paroissiale à la fin du 9e siècle (et l'une des sept églises de Dijon au 12e siècle). Cet édifice est démoli en 1445, à la demande des paroissiens désireux de le reconstruire, et les travaux démarrent en 1448 environ. L'évêque Guy Bernard lui accorde en 1455 le statut d'église capitulaire et elle est livrée au culte en 1459 (bénédiction d'un autel provisoire) puis consacrée et érigée en collégiale par le même Bernard en 1468 ou en 1478. Des travaux sont encore mentionnés aux tours et à la flèche en 1497 et 1503. L'église, qui accueille des inhumations jusque vers 1783 au moins, connaît des modifications intérieures en 1643, 1704, 1711 (clôture du choeur), 1713 (reconstruction du maître-autel) et 1777 (repavement).
La paroisse Saint-Jean est supprimée à la Révolution (1791), époque où l'édifice perd les deux tours qui encadrent son abside à chevet plat. Il sert de dépôt de fourrage en 1796 puis la ville l'achète le 19 germinal an 9 (9 avril 1801) et le transforme en marché. Comme l'indique (en 1809) Pierre Louis Baudot, sa conversion en théâtre avait été envisagée en 1793-1794 "en construisant dans l'intérieur de l'édifice tout ce qui seroit nécessaire pour le théâtre et ses dépendances, et en élevant une façade à la place des tours et du choeur de l'église". Le projet renaît en 1803 sous la plume de Pierre-Joseph Antoine, "ancien ingénieur en chef des Ponts et Chaussées, ingénieur architecte de la commune de Dijon", mais reste sans suite. L'une des raisons avancée est l'éloignement du centre ; Baudot en signale une autre : "Il faut convenir qu'il doit paraître bizarre que la terre de la chrétienté, formée des cendres de tant de célèbres chrétiens qui y sont inhumés depuis quinze siècles, soit foulée par les danses du monde, et que les voûtes, si long-temps frappées du son des cantiques sacrés, retentissent des accens de l'amour et du plaisir." Il est toutefois favorable à cette reconversion, permettant de sauver le bâtiment de la destruction. Celui-ci est effectivement en mauvais état si bien que le voyer L. J. Duleu prévoyait en 1807 la démolition des trois flèches (dont celle de la croisée du transept, refaite en 1647 et qui sera remplacée par un "chapeau à octogonne"), du chevet, de chapelles et de la sacristie. Ces démolitions sont réalisées en 1809, ce qui permet de créer la place Bossuet (où sera installée en 1921 la statue du célèbre prédicateur, né à proximité), et un mur de clôture percé d'une porte est élevé l'année suivante. Par contre demeure sans suite le projet de 1813 de l'architecte Caristie pour sa transformation en marché, avec aménagement d'une "gallerie décorée de portiques ionique antique [en bois] composés de vingt six loges, dont treize de chaque côté", de douze magasins donnant sur la rue, d'un logement de concierge et d'un bureau des poids et mesures. Le bâtiment connaît de multiples affectations au 19e siècle : halle de boucherie, entrepôt de vin en 1807, logement de garnison en 1820, de nouveau dépôt de fourrage pour l'armée de 1823 à 1838, marché (dit "du midi") et poids public en 1841, entrepôt de farine en 1852 puis magasin général de boulangerie pour la ville en 1860 (suite au décret du 16 novembre 1858) "pour réunir les 9 640 sacs de farine formant cet entrepôt" (ce qui nécessite la réfection du dallage, de la voûte et de la toiture suivant le projet de l'architecte municipal Scheffer).
L'édifice est classé au titre des monuments historiques par la liste de 1862. Le 20 février 1863, le conseil municipal vote le principe de rendre au diocèse une église devenue nécessaire du fait de l'augmentation de la population et pour laquelle est recréée la paroisse Saint-Jean (avec validation par le décret impérial du 13 août 1865). L'église est restaurée sous la direction de l'architecte Scheffer et son chevet décoré d'une peinture monumentale par le peintre Benoît dit Bénédict Masson. Elle est inaugurée le 13 novembre 1866 et dotée quatre ans plus tard de quatre cloches de la fonderie Chambon, de Montargis, baptisées le 5 juin 1870. De nombreuses réparations sont effectuées, notamment à la toiture et aux tours (couverture, fenêtres et balustrades), au début du 20e siècle (jusqu'à la Première Guerre mondiale) sous la direction de l'architecte en chef des Monuments historiques Charles Suisse puis de son successeur en 1906 Saint-Anne Louzier. "L'édifice eut, en outre, beaucoup à souffrir du cyclone du 30 juin 1901" relatait Suisse dans un rapport dressé en 1904 (avec au sud des vitraux abîmés et une toiture partiellement découverte). Cet architecte fait refaire en 1906, dans le style du 15e siècle et par l'entrepreneur A. Fournier (ou Fournier-Faucher, rue de Mirande à Dijon), la croix de la fin du 18e siècle dominant le pignon occidental. Un calorifère à vapeur (à chaudière "Idéal") est installé en 1929-1930, sous le contrôle de l'architecte en chef Jules Tillet, avec création au nord d'une chaufferie (dans l'angle de la nef et du transept) et d'une cheminée (contre le mur ouest du croisillon), et d'un caniveau dans le sol de la nef afin de diffuser l'air chaud. Après la reprise des couvertures des bas-côtés au milieu des années 1920, la toiture est de nouveau l'objet de travaux en 1941, 1949 et au début des années 1960 (sous la direction de l'architecte en chef Georges Jouven).
Désaffectée durant l'hiver 1971-1972, l'église est remise à la Ville en mai 1973 (sa désacralisation intervient le 1er octobre) et sert de réserve pour le musée des Beaux-Arts. Les balustrades de ses tours sont refaites puis, endommagée par la foudre, elle est restaurée de 1974 à 1978, sous le contrôle de Jouven, avec réfection de la toiture du bas-côté sud (où les laves sont remplacées par des tuiles plates). Elle est alors transformée en théâtre, avec la création d'une structure interne démontable (une boîte dans la boîte), accueillant à partir de 1974 le Centre dramatique national de Bourgogne, qui s'y installe de manière permanente en 1980. De nouveaux travaux ont lieu de 1984 à 1986 (architecte en chef Michel Jantzen) avec la réparation (par le maître verrier Weinling ?) des vitraux endommagés par un orage de grêle le 11 juillet 1984 (baies occidentales de l'entrée et du transept), la réfection de la toiture des chapelles nord (remplacement des laves par des tuiles plates), le relevage de dalles funéraires contre les murs, la création de locaux techniques, d'un local d'enregistrement, d'un atelier de couture, de loges d'acteur, d'un bar, la mise en place de nouveaux gradins, etc. Après une première étude du scénographe Igor Hilbert en 1985 (sans suite car jugée trop coûteuse), l'architecte en chef de la Ville Jean-François Devalière, assisté de l'architecte adjoint Michel Grangy, élabore un projet avec gradin de 296 places, réalisé à partir de 1985. La salle est inaugurée fin mars 1987. De graves désordres à la charpente conduisent en 1992 à sa restauration et à celle de la couverture, suivant le projet de l'architecte en chef Bernard Collette. Simultanément, le théâtre est modernisé, avec la création d'un grill et de passerelles techniques, le remplacement du faux plafond acoustique suspendu. Le CDN devient Théâtre national Dijon-Bourgogne en 1996 puis Théâtre Dijon-Bourgogne en 2000 (il dispose également depuis 1999 d'une salle de répétition, baptisée salle Jacques Fornier, créée dans un ancien garage aux 30-34 rue d'Ahuy).
- milieu 15e siècle
- 1er quart 19e siècle
- 4e quart 20e siècle
Date de naissance : 1926 - date de décès : 21/11/2021
Devalière, Jean-François (1926-2021). Architecte en chef de la ville de Dijon en 1991.
Date de naissance : 05/04/1936
Grangy, Michel. Né en 1936 à Saint-Maur-des-Fossés. Architecte municipal de Dijon jusqu'en 1995 (il a débuté comme architecte adjoint en 1968). (Source : fonds Michel Grangy 1969-1991 aux Archives municipales de Dijon : https://archivesmunicipalesdijon.files.wordpress.com/2020/05/ir_80z.pdf)
Date de naissance : 23/04/1819 - date de décès : 26/06/1893
Masson, Benoît dit Bénédict (1819-1893). Peintre de portraits et d'histoire, élève du peintre parisien Paul Delaroche puis du Lyonnais Paul Chenavard. Expose au Salon de Paris de 1840 à 1881. Auteurs de décors à Paris (salle du Contentieux au Conseil d'Etat, théâtre de la porte Saint-Martin, hôtel de ville).
Description
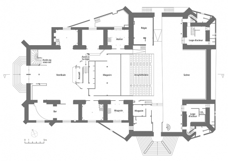
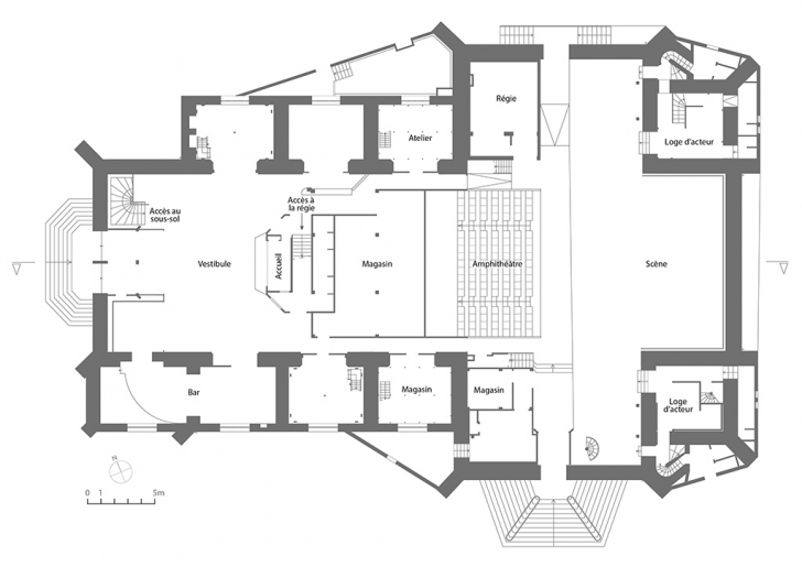
L'église a des murs en pierre de taille calcaire et un plan en croix latine, tronqué à l'est par la démolition de son chevet dont subsiste une travée droite encadrée par deux tours. Surélevée du fait de la présence de caveaux, elle est accessible par des escaliers extérieurs droits (des sanitaires ont été aménagés en sous-sol dans l'angle nord-ouest). Elle est constituée d'une nef unique bordée de chapelles latérales séparées par des contreforts : trois au nord, quatre au sud (la 1re et la 2e, réunies en 1875, accueillent actuellement le bar). La nef est couverte d'une charpente lambrissée en berceau brisé, la croisée du transept étant marquée par un motif à 8 clés pendantes ; les chapelles ont des voûtes d'ogives. La façade antérieure et les façades latérales (transept) ont un dessin similaire : une porte inscrite dans un encadrement à voussures (avec, pour le transept, une fenêtre placée plus haut à droite), surmontée de deux fenêtres hautes jumelées et d'un oculus. Ces baies sont en arc brisé ou inscrites dans un encadrement en arc brisé, avec remplage gothique flamboyant pour les fenêtres. Les tours sont accessibles par deux escaliers hors-oeuvre en vis, en pierre, complétés par des escaliers droits ou tournant à retours avec jour, en bois. Le bâtiment est couvert d'un toit à longs pans et pignons découverts ; les tours ont un toit en pavillon et l'emplacement de la flèche à la croisée du transept est marqué par un toit polygonal. La couverture est en ardoise, sauf sur les chapelles, en appentis et protégées par des tuiles plates mécaniques. Close à l'ouest (vers l'entrée), la salle en gradins est accessible par un couloir en avant des chapelles ; côté scène, les trois niveaux de passerelle le sont par des escaliers métalliques. Les murs de la scène et des coulisses sont masqués par des tentures et protégés par une structure métallique, permettant aussi de fixer éléments de décor, d'éclairage, etc.
- calcaire
- pierre de taille
- ardoise
- tuile plate mécanique
- plan en croix latine
- sous-sol
- 1 vaisseau
- lambris de couvrement
- voûte d'ogives
- toit à longs pans, pignon couvert
- noue
- appentis
- toit en pavillon
- toit polygonal
- escalier de distribution extérieur, escalier droit, en maçonnerie
- escalier hors-oeuvre, escalier en vis sans jour, en maçonnerie
- escalier dans-oeuvre, escalier droit, en charpente en charpente métallique
- escalier dans-oeuvre, escalier tournant à retours avec jour, en charpente
- escalier dans-oeuvre, escalier en vis sans jour, en charpente métallique
- armoiries ornement végétal quadrilobe ornement géométrique
Les murs sont peints d'un décor néo-gothique. Le lambris habillant la charpente est orné, au niveau des nervures, d'un décor floral associant motifs peints et motifs sculptés, associés à des blasons disposés à la ligne de faite.
- peinture
Les murs sont peints d'un décor néo-gothique. Le lambris habillant la charpente est orné, au niveau des nervures, d'un décor floral associant motifs peints et motifs sculptés, associés à des blasons disposés à la ligne de faite.
Source(s) documentaire(s)
-
Médiathèque du patrimoine et de la photographie, Charenton-le-Pont : D/1996/25/228-11 Dossiers de recensement d’édifices dits « Casier archéologique ». Bourgogne-Franche-Comté ; Côte-d'Or ; Dijon ; Eglise Saint-Jean. Vers 1930-vers 1960.
Médiathèque du patrimoine et de la photographie, Charenton-le-Pont : D/1996/25/228-11 Dossiers de recensement d’édifices dits « Casier archéologique ». Bourgogne-Franche-Comté ; Côte-d'Or ; Dijon ; Eglise Saint-Jean. Vers 1930-vers 1960.Lieu de conservation : Médiathèque du patrimoine et de la photographie, Charenton-le-Pont - Cote du document : D/1996/25/228-11 -
Médiathèque du patrimoine et de la photographie, Charenton-le-Pont : E/81/21/37-170 (1) à (3) Restauration des édifices de la Côte-d'Or, série générale Dijon (Côte-d'Or). Eglise Saint-Jean. 1853-1993.
Médiathèque du patrimoine et de la photographie, Charenton-le-Pont : E/81/21/37-170 (1) à (3) Restauration des édifices de la Côte-d'Or, série générale Dijon (Côte-d'Or). Eglise Saint-Jean. 1853-1993.Lieu de conservation : Médiathèque du patrimoine et de la photographie, Charenton-le-Pont - Cote du document : E/81/21/37-170 (1) à (3) -
Médiathèque du patrimoine et de la photographie, Charenton-le-Pont : ETU/0075 Collette, Bernard. Côte-d'Or. Dijon. Eglise St Jean. Rapport. S.d. [1991].
Médiathèque du patrimoine et de la photographie, Charenton-le-Pont : ETU/0075 Collette, Bernard. Côte-d'Or. Dijon. Eglise St Jean. Rapport. Fontainebleau : l'auteur, s.d. [1991]. [43] p. : ill. ; 30 cm. Complété par un volume de documents graphiques : [12] p. : ill. ; 30 x 42 cm .Lieu de conservation : Médiathèque du patrimoine et de la photographie, Charenton-le-Pont - Cote du document : ETU/0075 -
Archives départementales de la Côte-d'Or : XXXT2 C/13 Monuments historiques. Immeubles (classements, restaurations et travaux). Eglise Saint-Jean à Dijon. 1853-1915.
Archives départementales de la Côte-d'Or : XXXT2 C/13 Monuments historiques. Immeubles (classements, restaurations et travaux). Eglise Saint-Jean à Dijon. 1853-1915.Lieu de conservation : Archives départementales de la Côte-d'Or, Dijon - Cote du document : XXXT2 C/13 -
Archives municipales de Dijon : 2 M 1 Eglise Saint-Jean. An XI-1953.
Archives municipales de Dijon : 2 M 1 Eglise Saint-Jean. An XI-1953.Notamment :- Estimation de la ci-devant Ste Chapelle et de l'église St-Jean, par Philippe Vionnois, ingénieur des Ponts et Chaussées, et Louis Joseph Duleu, voyer, le 13 ventôse an 8 (4 mars 1800).- Devis estimatif des travaux à exécuter à l'ancienne église St Jean pour rendre cet édifice à sa destination primitive et le mettre en état de servir à l'exercice du culte, par l'architecte A. Scheffer, 28 décembre 1862.Lieu de conservation : Archives municipales, Dijon - Cote du document : 2 M 1 -
Conservation régionale des monuments historiques, Dijon : Eglise Saint-Jean (théâtre) - Dijon. Dossier de restauration. Décennies 1960-1990.
Conservation régionale des monuments historiques, Dijon : Eglise Saint-Jean (théâtre) - Dijon. Dossier de restauration, par la Conservation régionale des Monuments historiques. Décennies 1960-1990.Lieu de conservation : Conservation régionale des monuments historiques, Dijon -
Théâtre Dijon Bourgogne. Parvis Saint-Jean. Fiche technique. 2021.
Théâtre Dijon Bourgogne. Parvis Saint-Jean. Fiche technique. Dijon : Théâtre Dijon Bourgogne, 2021. 15 p. : ill. ; 30 cm.
-
[Plan de l'église, relevés et projet de choeur pour Saint-jean]. 1724.
[Plan de l'église, relevés et projet de choeur pour Saint-jean]. Dessin (crayon), s.n. 1724.- [Plan]. 49,2 x 33,5 cm. (https://gallica.bnf.fr/ark:/12148/btv1b6939152j)- Plan du coeur et de lhotelles [sic] de Saint-Jean comme cela est presantement. 50,9 x 23,2 cm. (https://gallica.bnf.fr/ark:/12148/btv1b6939154c)- [Elévation de la double verrière et de la rosace de l'abside de Saint-Jean]. 49x 38,3 cm. (https://gallica.bnf.fr/ark:/12148/btv1b6939155s)- [Plan du nouveau choeur]. Dessin (crayon, plume, encre de Chine). 31,3 x 41 cm. (https://gallica.bnf.fr/ark:/12148/btv1b6939153z)Lieu de conservation : Bibliothèque nationale, Paris - Cote du document : Fonds Robert de Cotte -
Nouveau plan de la ville et des environs de Dijon [... par] de Beaurain géographe ordinaire du Roy. Corrigé et augmenté en 1767.
Nouveau plan de la ville et des environs de Dijon dédié à son altesse sérénissime Monseigneur le Duc par son très heumble et très obéissant serviteur de Beaurain géographe ordinaire du Roy. Corrigé et augmenté en 1767. Dessin en couleur imprimé, 1767. 53 x 70 cm, éch. de 700 pieds de France [4,8 cm], 1000 palmes romaines [4,9 cm], 900 pieds d’Espagne [5,4 cm]. A Paris chez le sieur Desnos, ingénieur géographe rue Saint-Jacques au Globe 1767. En haut : "Veüe de Dijon du cotté de la venüe de Paris. Dessiné sur les lieüx par André Gambu arpent[eu]r juré du Roy, de Dijon".Lieu de conservation : Archives municipales, Dijon - Cote du document : 4 Fi 29 -
Elévation principale d'une salle de spectacle projettée dans la cy devant Eglise Saint-Jean de Dijon [par Ubriot de Montfeu ?]. S.d. [fin 18e siècle ou début 19e siècle].
Elévation principale d'une salle de spectacle projettée dans la cy devant Eglise Saint-Jean de Dijon. Dessin (plume, lavis), s.n. [par Ubriot de Montfeu ?]. S.d. [fin 18e siècle ou début 19e siècle]. 50 x 65 cm, éch. de 40 m."Nota. On ne démolit par ce projet que la flèche, les deux clochers, et la partie du choeur nécessaire à l'élargissement de la route, on conserve les deux tours ainsy que les murs et la couverture de cet édifice." Inscription manuscrite dans l'angle droit attribuant le document à de Montfeu.Lieu de conservation : Bibliothèque municipale, Dijon - Cote du document : L Est. 5027 AM-II 1 -
Projet d'un théâtre à construire dans l'église Saint-Jean, à Dijon [d'après Pierre Joseph Antoine]. S.d. [décennie 1800].
Projet d'un théâtre à construire dans l'église Saint-Jean, à Dijon [d'après Pierre Joseph Antoine]. Dessin imprimé, par P. L. Baudot, s.d. [décennie 1800]. Publié dans : Baudot, Pierre Louis. Sur le théâtre de Dijon. Paris : Impr. de Mme Huzard, 1809, folio 142. - [Plan]. Ech. de 120 pieds et 40 m. Mentions : "Antoine inv" et "La couleur brune désigne les constructions à conserver. Le rouge désigne les nouvelles constructions." - [Façade antérieure]. Mentions : "Antoine inv" et "Baudot del".Lieu de conservation : Bibliothèque municipale, Dijon - Cote du document : Ms. 1082 fol. 142 -
Etendue superficielle de plusieurs théâtres. S.d. [décennie 1800].
Etendue superficielle de plusieurs théâtres. Dessin (plume, lavis), s.n. S.d. [décennie 1800]. Ech. de 300 pieds et 100 m. Publié dans : Baudot, Pierre Louis. Sur le théâtre de Dijon. Paris : Impr. de Mme Huzard, 1809, folio 144.De gauche à droite et de haut en bas : Odéon de Paris, Bordeaux et Lyon sur la 1re ligne, Besançon, Autun et projet dans l'église Saint-Jean de Dijon sur la 2e ligne, ancienne Comédie et projet à l'emplacement de la Sainte-Chapelle à Dijon sur la 3e ligne.Lieu de conservation : Bibliothèque municipale, Dijon - Cote du document : Ms. 1082 fol. 144 -
Dijon. Eglise St Jean [façade orientale]. S.d. [19e siècle, après 1810].
Dijon. Eglise St Jean [façade orientale]. Gravure en couleur, s.n. S.d. [19e siècle, après 1810]. 12,5 x 2 cm.Lieu de conservation : Archives municipales, Dijon - Cote du document : 14 Fi 138 -
Plan des constructions à faire pour l'établissement des foires dans le bâtiment de la ci-devant église St Jean de Dijon. 4 janvier 1813.
Plan des constructions à faire pour l'établissement des foires dans le bâtiment de la ci-devant église St Jean de Dijon. Dessin (plume, lavis), par Caristie. 4 janvier 1813. 31,5 x 47,5 cm, échelle approximative 1/120.- [Plan]. 31,5 x 47,5 cm. Trois rabats.- [Plan et élévation des aménagements intérieurs côté nord, et coupe transversale]. 40 x 57,5 cm.Lieu de conservation : Archives municipales, Dijon - Cote du document : 2 M 1 -
Plan, profil et élévation d'une échoppe, ou petites boutiques à construire entre les piliers de l'église St Jean. 28 mai 1816.
Plan, profil et élévation d'une échoppe, ou petites boutiques à construire entre les piliers de l'église St Jean. Dessin (plume, lavis), par l'adjoint au voyer de la ville Caumont. Dijon le 28 mai 1816. 26 x 35,5 cm, éch. approximative 1/40.Lieu de conservation : Archives municipales, Dijon - Cote du document : 2 M 1 -
[La place Bossuet, avec une tour de l'église Saint-Jean]. Octobre 1834.
[La place Bossuet, avec une tour de l'église Saint-Jean]. Dessin rehaussé de gouache (lithographie), par James Duffield Harding. Octobre 1834 [1831 ?]. 37 x 47,5 cm.Date 1834 avancée par le site Artofprint.com : http://www.artoftheprint.com/artistpages/harding_james_duffield_dijon.htm (consultation : 14 septembre 2022).Lieu de conservation : Archives municipales, Dijon - Cote du document : 14 Fi 319 -
Réserve de la boulangerie (ancienne église St Jean). Création d'un étage sur la grande nef. 10 juin 1860.
Réserve de la boulangerie (ancienne église St Jean). Création d'un étage sur la grande nef. Dessin sur calque (plume, lavis), par l'architecte de la ville Scheffer. Dijon le 10 juin 1860. 43 x 55,5 cm, 1/100.- [Plan].- Coupe longitudinale.Lieu de conservation : Archives municipales, Dijon - Cote du document : 2 M 1 -
350. Dijon. - Place Saint-Jean [Place Bossuet]. S.d. [limite 19e siècle 20e siècle].
350. Dijon. - Place Saint-Jean [Place Bossuet]. Photographie, par Neurdein Frères. S.d. [limite 19e siècle 20e siècle]. Tirage photo, 22 x 27,5 cm.Lieu de conservation : Archives municipales, Dijon - Cote du document : 11 Fi 8 -
[Vues extérieures]. 1905.
[Vues extérieures]. Photographie, par Jean-Eugène Durand. 1905. Plaques de verre.- Ensemble ouest. Plaque de verre. (APMH00011778)- Façade nord : partie ouest. (APMH00020747). En fait la façade sud.- Façade sud : transept et partie ouest. (APMH00013232)Lieu de conservation : Médiathèque du patrimoine et de la photographie, Charenton-le-Pont -
Nef, choeur [la croisée du transept et le choeur avec sa peinture monumentale]. 1905.
Nef, choeur [la croisée du transept et le choeur avec sa peinture monumentale]. Photographie, par Jean-Eugène Durand. 1905. Plaque de verre.Lieu de conservation : Médiathèque du patrimoine et de la photographie, Charenton-le-Pont - Cote du document : APMH00011779 -
Façade principale. Pignon ouest. Restauration de la croix. 11 mai 1905.
Façade principale. Pignon ouest. Restauration de la croix. Dessin (plume, lavis), par l'architecte Charles Suisse. 11 mai 1905. Feuille 58 x 49 cm collée sur une autre 75 x 51 cm, 1/10.Lieu de conservation : Médiathèque du patrimoine et de la photographie, Charenton-le-Pont - Cote du document : G/82/21/2018-013460 -
Plan des toitures. 1908.
Plan des toitures. Dessin sur calque (plume, lavis), s.n. 1908. 47,5 x 28 cm, 1/20.Lieu de conservation : Médiathèque du patrimoine et de la photographie, Charenton-le-Pont - Cote du document : G/82/21/2018-099897 -
Projet de réinstall[ati]on du monum[en]t Bossuet contre le chevet de l'église St Jean. 25 janvier 1920.
Projet de réinstall[ati]on du monum[en]t Bossuet contre le chevet de l'église St Jean. Dessin (tirage, lavis), par l'architecte de la ville Deshérault. 25 janvier 1920. 98,5 x 67,5 cm, 1/50.Lieu de conservation : Médiathèque du patrimoine et de la photographie, Charenton-le-Pont - Cote du document : G/82/21/1017-099969 -
Schéma du clocher pour l'installation électrique de sonnerie des cloches. S.d. [1927 ?].
Schéma du clocher pour l'installation électrique de sonnerie des cloches. Dessin sur calque (plume), par P. M. Tony. S.d. [1927 ?]. 52 x 21,5 cm, sans éch.Lieu de conservation : Médiathèque du patrimoine et de la photographie, Charenton-le-Pont - Cote du document : G/82/21/2018-058073 -
Eglise St Jean. Dijon. Côte d'Or. Cheminée chauffage central. S.d. [1929].
Eglise St Jean. Dijon. Côte d'Or. Cheminée chauffage central. Dessin sur calque (plume), s.n. [par l'architecte Tillet ?]. S.d. [1929]. 1/50.Lieu de conservation : Médiathèque du patrimoine et de la photographie, Charenton-le-Pont - Cote du document : E/81/21/37-170 (2) -
260 Dijon. - Eglise St-Jean et Monument Bossuet. S.d. [milieu 20e siècle].
260 Dijon. - Eglise St-Jean et Monument Bossuet. Carte postale, par la Compagnie des Arts Photomécaniques Strasbourg-Schiltigheim. S.d. [milieu 20e siècle].Lieu de conservation : Médiathèque du patrimoine et de la photographie, Charenton-le-Pont - Cote du document : E/81/21/37-170(2) -
[Vue aérienne du quartier avec l'église Saint-Jean au premier plan]. S.d. [entre 1945 et 1975].
[Vue aérienne du quartier avec l'église Saint-Jean au premier plan]. Photographie, par Roger Henrard. S.d. [entre 1945 et 1975]. Tirage 18 x 24 cm.Lieu de conservation : Médiathèque du patrimoine et de la photographie, Charenton-le-Pont - Cote du document : AP21HN0085 -
Plan de la toiture. Décembre 1959.
Plan de la toiture. Dessin (tirage), par Tonka (dess), Georges Jouven architecte en chef des Monuments historiques. Décembre 1959. 43 x 89 cm, 1/100.Lieu de conservation : Médiathèque du patrimoine et de la photographie, Charenton-le-Pont - Cote du document : G/82/21/2018-030224 -
Théâtre du Parvis St Jean (ancienne église St Jean). 1984.
Théâtre du Parvis St Jean (ancienne église St Jean). Dessin (tirage), par le service d'architecture de la Ville de Dijon : Jean-François Devalière architecte en chef de la ville, Michel Grangy architecte adjoint. 1984.- Rez de chaussée. Plan de repérage. Plan de masse, plan de situation. 6 juin 1984. 56,5 x 94 cm, 1/100.- Locaux techniques côté rue Monge. Transformateur. Par P.C. 1er juin 1984, modif. 13 décembre 1984. 67 x 123,5 cm, 1/50.- Coupes. Etat actuel. 25 mai 1984. 41 x 109,5 cm, 1/100.Lieu de conservation : Conservation régionale des monuments historiques, Dijon -
Théâtre du Parvis St Jean (ancienne église St Jean). Aménagement des gradins. Plans et coupe. 28 janvier 1986.
Théâtre du Parvis St Jean (ancienne église St Jean). Aménagement des gradins. Plans et coupe. Dessin (tirage), par le service d'architecture de la Ville de Dijon : Jean-François Devalière architecte en chef de la ville, Michel Grangy architecte adjoint. 28 janvier 1986. 71 x 111,5 cm, 1/50.Lieu de conservation : Conservation régionale des monuments historiques, Dijon -
Théâtre du Parvis St Jean (ancienne église St Jean). Aménagement des gradins. Coupe longitudinale. 24 janvier 1986.
Théâtre du Parvis St Jean (ancienne église St Jean). Aménagement des gradins. Coupe longitudinale. Dessin (tirage), par le service d'architecture de la Ville de Dijon : Jean-François Devalière architecte en chef de la ville, Michel Grangy architecte adjoint. 24 janvier 1986. 1/50.Lieu de conservation : Médiathèque du patrimoine et de la photographie, Charenton-le-Pont - Cote du document : E/81/21/37-170 (3) -
Théâtre du Parvis St Jean (ancienne église St Jean). Travaux de restructuration. 1991.
Théâtre du Parvis St Jean (ancienne église St Jean). Travaux de restructuration. Dessin (tirage), par le service d'architecture de la Ville de Dijon : Jean-François Devalière architecte en chef de la ville, Michel Grangy architecte adjoint. 1991. 1/100 et 1/50.- Plan de situation. S.d. [1991]. 65,5 x 60 cm, 1/1000.- Rez de chaussée. Sanitaires, chaufferie. Par G.B. 19 février 1991, modif. 11 et 19 mars 1991. 59 x 87 cm.- Grill technique - chauffage - plafond acoustique. Plan aux niveaux des gradins et des passerelles. Par G.B. 19 février 1991, modif. 11 et 19 mars 1991. 84,5 x 119 cm.- Grill technique - chauffage - plafond acoustique. Plan du gril - faux gril et structures. Par G.B. 19 février 1991, modif. 11 et 19 mars 1991. 86 x 116,5 cm.- Grill technique - chauffage - plafond acoustique. Coupe longitudinale A.A. Par G.B. 19 février 1991, modif. 11 et 19 mars 1991. 66 x 131 cm.- Grill technique - chauffage - plafond acoustique. Coupes B.B - C.C - D.D - Façade "E". Par G.B. 19 février 1991, modif. 11 et 19 mars 1991. 87,5 x 127 cm, 1/50.Lieu de conservation : Conservation régionale des monuments historiques, Dijon
-
Bacheley, Brigitte. Que sont devenus les anciens lieux de culte ? 14 février 1999.
Bacheley, Brigitte. Que sont devenus les anciens lieux de culte ? Le Bien public, dimanche 14 février 1999, p. 9 : ill. -
Baudot, Pierre Louis. Sur le théâtre de Dijon. 1809.
Baudot, Pierre Louis. Sur le théâtre de Dijon. Paris : Impr. de Mme Huzard, 1809. In 8° : ill. ; 24 cm.Lieu de conservation : Bibliothèque municipale, Dijon - Cote du document : Ms.1082 (fol. 128-147) -
Bazin, Jean-François. Le tout Dijon. 2003.
Bazin, Jean-François. Le tout Dijon. Dijon : Editions Cléa, 2003. 966 p. : ill. ; 23 cm. -
Bénédiction des cloches de Saint-Jean. 1870.
Bénédiction des cloches de Saint-Jean. Dijon : impr. J. Marchand, 1870. 15 p. ; 22 cm.Lieu de conservation : Bibliothèque municipale, Dijon - Cote du document : Br III 5549 -
Bioul-Pelletier, Cécile. Sauvetage archéologique, [Dijon] : Théâtre du Parvis Saint-Jean. 1991.
Bioul-Pelletier, Cécile. Sauvetage archéologique, [Dijon] : Théâtre du Parvis Saint-Jean. Ministère de la Culture, de la Communication et des Grands Travaux, Service régional de l'Archéologie, Association des Fouilles archéologiques nationales, 1991. 2 vol. ; 194-60 p. : ill., pl. dépl. ; 30 cm. Rapport de fouilles. Vol. 1 : texte et annexes. Vol. 2 : planches. -
Bougaud, Emile (abbé). L’église Saint-Jean de Dijon. 1863.
Bougaud, Emile (abbé). L’église Saint-Jean de Dijon. Dijon : impr. J.-E. Rabutot, 1863. 84 p. ; 24,5 cm.Lieu de conservation : Archives départementales de la Côte-d'Or, Dijon - Cote du document : Br 1/1921 -
L'église St-Jean, rendue officiellement à la ville de Dijon, deviendra (peut-être) un haut lieu culturel. 5 juin 1973.
L'église St-Jean, rendue officiellement à la ville de Dijon, deviendra (peut-être) un haut lieu culturel. Les Dépêches, mardi 5 juin 1973, ill. -
Giroux, Henri. A Saint-Jean, le théâtre d'Antoine. Mars 1987.
Giroux, Henri. A Saint-Jean, le théâtre d'Antoine. Bleu nuit, mars 1987, p. 34-35 : ill. Bleu nuit : périodique du Centre dramatique national de Bourgogne. -
Jolimont, T. de. Description historique et vues pittoresques des monuments les plus remarquables de Dijon, 1830.
Jolimont, T. de. Description historique et vues pittoresques des monuments les plus remarquables de Dijon. Paris : impr. A. Barbier, 1830. -
Pascal, Marie-Claude. Le Parvis Saint-Jean : une histoire théâtrale. 2007.
Pascal, Marie-Claude. Le Parvis Saint-Jean : une histoire théâtrale. Dijon : Ville de Dijon, 2007. 1 dépl. : ill. ; 21 x 41,5 cm. (Dijon. Capitale de la Bourgogne). -
Roze, Jean-Pierre. Saint-Jean de Dijon. Eglise collégiale, paroisse et théâtre. Synthèse abrégée provisoire. Mai 2022.
Roze, Jean-Pierre. Saint-Jean de Dijon. Eglise collégiale, paroisse et théâtre. Synthèse abrégée provisoire. [Dijon] : l'auteur, mai 2022. 118 p. : ill. ; 30 cm. Avec son complément du 16 août 2022.
À voir
Informations complémentaires
Théâtre Dijon Bourgogne. Parvis Saint-Jean. Fiche technique. Dijon : Théâtre Dijon Bourgogne, 2021. 15 p. : ill. ; 30 cm.
Inscription (de la fin du 15e siècle ou du début du 16e ?) gravée à l'extérieur du bâtiment, transcrite par Jean-Pierre Roze (16 août 2022).
Cy gisent [..g ?]a le ja[..?] ma[… ?]thienette sa /
Fem[m]e et perrenette le[u]r fille laquelle a fondé en /
Leglise de ceans une a[n]niversaire de pain [et] vin qy se distribu[ra] /
[par les ?] chapellains de lad. eglise. ladite fund[atrice] leur [paie] de[ux pinte ?] /
[illisible : que leur versera?] le plus prochain [parent ? ] lequel se celebrera /
annuellement le XII j[our de ?] septembre. Laquelle trepassa le [non gravé] jo /
du mois de [non gravé]. Priez dieu po[ur] leurs ames. Amen.
Eglise Saint-Jean : classement par liste de 1862.
- salles de spectacle de Bourgogne-Franche-Comté
- © Région Bourgogne-Franche-Comté, Inventaire du patrimoine
