THÉÂTRE MUNICIPAL
21 - Beaune
64 rue de Lorraine
- Dossier IA21000001 réalisé en 1996 revu en 2021
- Auteur(s) : Claudine Hugonnet-Berger, Laurent Poupard
Historique
Le théâtre succède en 1862, sur le bastion Saint-Nicolas, à un "wauxhall" (vauxhall) : salle de danse, concert, jeux, etc. Créé en 1801 suivant les plans du sculpteur et architecte Bonnet, ce premier établissement était l'œuvre de cinq couples d'entrepreneurs de bal qui s'étaient engagés à le laisser à la Ville à l'expiration de leur bail de 29 ans. En mauvais état, le vauxhall n'a plus été exploité que comme café à partir de 1853, avant d'être démoli en 1860. La Ville décide alors d'édifier sur ce terrain (excavé sur 4,50 m de hauteur) un théâtre, un premier temps envisagé contre l'hôtel de ville, qui remplacera la Comédie (rue Eugène Spuller).
L'architecte voyer Félix Goin donne le 1er mars 1860 un devis de 72 600 F et les plans "pour une salle contenant six cents personnes, réparties dans trois rangs de loges et le parterre", avec foyer au premier étage et loges d'acteurs. Le vestibule accueille "deux bureaux, l'un pour les premières et secondes, l'autre pour le parterre et les troisièmes" ces dernières desservies par leurs propres escaliers interdisant toute communication directe avec le foyer. Cette disposition répond à une observation prônant la séparation entre les 2e et 3e loges : "Ces deux catégories de places doivent être nettement séparées l'une de l'autre, tant à cause des différences de prix qu'à cause des habitudes très dissemblables de convenance et de tranquillité". L'architecte note : "La partie la plus fidèle du public étant celle du parterre, on a donné à ce dernier toute la place possible sans rien restreindre toutefois des dimensions qu'exige la commodité, chaque banc avec son espace libre a de largeur 0,65". Il y aura 11 loges au 1er et au 2e, plus 2 loges d'avant-scène (celles du 1er disposant chacune de son petit salon), le 3e n'étant pas cloisonné. La hauteur sous cintre sera de 9,10 m et derrière la scène est prévu un bâtiment plus bas destiné aux acteurs. Ce projet est approuvé par la commission départementale des Bâtiments civils, qui le reconnaît "bien conçu [et] de bon goût" tout en regrettant que la façade manque "du caractère monumental que réclament les constructions de ce genre", souhaitant "qu'elle eut plus de mouvement et s’écartât davantage de l'aspect d'un bâtiment ordinaire". Il connaît quelques modifications et additions (augmentation des dimensions, ajout de deux frontons cintrés, etc.), notamment le remplacement de peintures par des sculptures en carton-pâte "considérant que les loges d'avant-scène sont la partie la plus exposée aux yeux des spectateurs, et que s'il est permis de faire un peu de luxe, c'en est incontestablement la place". Les travaux sont adjugés le 1er juillet 1860 aux entrepreneurs dijonnais Jean-Baptiste Guenot et Truchetet. Les décors (21 000 F) sont exécutés par le peintre décorateur parisien Charles Cambon et son associé Joseph François Désiré Thierry (56 rue d'Angoulême du Temple), de même que le plafond, le rideau d'avant-scène et le cadre d'arlequin ; les médaillons représentant la Comédie et la Tragédie, peints sur les garde-corps des premières loges d'avant-scène, sont l'œuvre du peintre beaunois Hippolyte Michaud. Le bâtiment est inauguré le 6 décembre 1862 et sa réception définitive est prononcée en janvier 1866 (le montant s'élevant à 101 290 F).
En 1913, la commission municipale du théâtre, qui "entend donner à notre population beaunoise le moyen de parfaire son éducation déjà façonnée par l'œuvre si féconde de l'instruction obligatoire", propose une nouvelle répartition des 724 places existantes (dont 230 au parterre et 180 au 3e balcon) : ajouter 40 fauteuils (46 en fait) et convertir en parterre réservé quatre rangées de fauteuils (96 places) du parterre, dont sont d'ailleurs exclues les femmes (mais avec cette interrogation : "Dans ce siècle de progrès féministe avons-nous le droit de maintenir si imposant ce privilège de la toute puissance masculine ?"). L'électricité arrive en 1918 puis l'éclairage de scène est renforcé en 1926. Des travaux ont lieu au milieu des années 1930 (1933-1935) sous le contrôle de l'architecte voyer Abel Lobot : installation du chauffage central, création d'une cabine de projection cinématographique, suppression des cloisons des loges, réaménagement du parterre, remplacement des sièges, etc. En effet, le 26 juillet 1934, le maire signe avec Philippe Lacroix, directeur de cinéma à Bagneux (35 rue du Belvédère), un bail l'autorisant à "établir et exploiter un établissement cinématographique parlant et sonore" dans le théâtre, qui devient donc un cinéma (les premières projections cinématographiques de Beaune y avaient eu lieu à la fin de 1908), sous le nom de Rex-Cinéma-Théâtre, tout en conservant une fonction de salle de spectacle (avec des représentations théâtrales, des concerts, des conférences, etc.). En 1951, l'architecte Georges Peynet (3 rue de la Terrasse, à Paris) rédige un projet pour une reprise totale de l'intérieur avec suppression de la majeure partie de la scène et démolition des trois galeries, à remplacer par deux balcons étagés en fond de salle. Ce projet demeure sans suite. Des travaux ont lieu au fil du temps (remplacement du chauffage central en 1952, création de sanitaires sur le côté nord en 1956, réfection de la toiture en 1960, installation d'un rideau coupe-feu en fer et réfection du parquet de la scène en 1963-1964, etc.), qui s'accompagnent de la disparition des décors de la salle (seul celui des loges d'avant-scène est entièrement conservé). Nouveau projet important en 1977 pour transformer le bâtiment en multiplexe cinématographique, en créant deux nouvelles salles (une dans le foyer et une dans le dessous, c'est-à-dire sous la scène), et en le complétant éventuellement par un palais des congrès, à bâtir à proximité. Le coût trop important dissuade le partenaire privé (qui a fait appel au Collectif Architecture, représenté par M Rouaud, et à l'Atelier Peynet). Le cinéma Rex ferme en octobre 1983 et le fond, acquis par un exploitant privé, est transféré dans un établissement implanté avenue de la République (cinéma Patria puis Marey, détruit depuis).
La municipalité entreprend à partir de 1985 de restaurer le théâtre. Pour des raisons de sécurité et de modernisation, la machinerie en bois est supprimée ; le plancher de la scène est refait de même que la charpente du 1er dessous (où le fer remplace le bois) et son sol (création d'une dalle en béton) ; la pente du plateau, trop importante, est ramenée alors de 6,5 % environ à 2,5 %. Une extension (chaufferie et magasin à décor) est aussi bâtie dans l'angle nord-est par l'entreprise Zinetti (certainement suivant des plans du Bureau d'Urbanisme et d'Architecture de la ville, dirigé par P. Vagner). La salle est repeinte et les fauteuils sont changés. L'établissement ouvre de nouveau le 23 février 1989. A la fin de la décennie 2020, il donne habituellement chaque année une vingtaine de spectacles représentant une trentaine de séances, sans compter la quinzaine de séances hors programmation. Il a une capacité de 322 places (pour 600 environ à l'origine) et l'équipe qui l'anime est forte de six permanents (dont deux techniciens).
- 3e quart 19e siècle
- 4e quart 20e siècle
Date de naissance : 1824
Goin, Félix Louis (1824-?). Né au Mans le 4 novembre 1824, mort avant 1906. Elève à l'école des Beaux-Arts de Paris, 1848-1849. Architecte voyer à Beaune. (Source : INHA, https://ssl-swordgroup-agorha2.sword-group.com/ark:/54721/78bf3ccb-39bc-419f-a4f5-9b2c5ee37e55).
Description
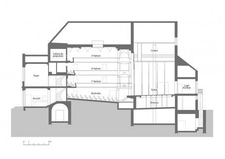
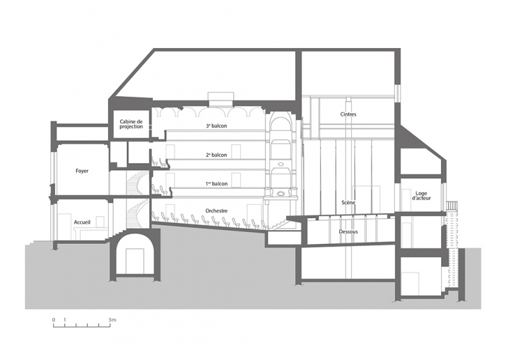
Le théâtre se compose d'un corps de bâtiment en moellons de calcaire enduits, encadré par deux corps plus bas. Le corps principal comporte sous-sol, rez-de-chaussée (dessous de scène) et étage carré (salle et cage de scène) surmontés d'un étage de comble. Il est coiffé d'un toit en ardoises, à longs pans, croupe à l'ouest et pignon couvert à l'est. Couvert en zinc, le corps occidental (entrée et foyer) présente une façade en pierre de taille, avec un avant-corps de cinq travées (la 1re et la 5e agrémentées de niches vides) flanqué de massifs latéraux, bossage continu en table au rez-de-chaussée, pilastres ioniques à l'étage. Le corps oriental (sept loges d'acteur), dont les trois travées centrales sont en retrait, compte un sous-sol, un rez-de-chaussée et un étage carré (desservi par un escalier extérieur métallique), protégés par un toit à croupes à couverture d'ardoise. La salle, de plan en U, présente trois balcons et des loges d'avant-scène. Les 1er et 2e balcons sont accessibles par deux escaliers symétriques à volée courbe, le 3e directement depuis le vestibule par deux escaliers tournants à retours et volées droites ; le foyer du public (au niveau du 1er balcon) est accessible uniquement aux spectateurs des 1er et 2e balcons. La fosse d'orchestre subsiste mais elle est couverte. L'extension au nord-est (chaufferie et magasin à décors avec monte-charge) est en pan de métal, vitré au nord et avec essentage de tôles sur les deux autres murs, coiffé d'un appentis métallique ; celle au nord-ouest (sanitaires) est en parpaings de béton enduits.
- calcaire
- aluminium
- pierre de taille
- moellon
- pan de métal
- enduit
- mur-rideau
- essentage de tôle
- ardoise
- zinc en couverture
- acier en couverture
- sous-sol
- 1 étage carré
- étage de comble
- élévation ordonnancée
- toit à longs pans, croupe
- pignon couvert
- appentis
- escalier dans-oeuvre, escalier tournant à retours, en maçonnerie
- escalier dans-oeuvre, escalier droit, en maçonnerie
- escalier de distribution extérieur, escalier tournant, en charpente métallique
- monte-charge
- tête de femme
- ornement végétal
Décor peint sur le garde-corps des premières loges d'avant-scène : deux têtes de femme, l'une représentant la Tragédie (côté jardin), l'autre la Comédie (côté cour). Sujet : ornement végétal ; support : garde-corps et encadrement des loges d'avant-scène, bordures des garde-corps des galeries.
- peinture
- décor stuqué
Décor peint sur le garde-corps des premières loges d'avant-scène : deux têtes de femme, l'une représentant la Tragédie (côté jardin), l'autre la Comédie (côté cour). Sujet : ornement végétal ; support : garde-corps et encadrement des loges d'avant-scène, bordures des garde-corps des galeries.
- restauré
Source(s) documentaire(s)
-
Archives départementales de la Côte-d'Or : 2 O 57/15 Pompiers. 1850-1922.
Archives départementales de la Côte-d'Or : 2 O 57/15 Pompiers. 1850-1922.Lieu de conservation : Archives départementales de la Côte-d'Or, Dijon - Cote du document : 2 O 57/15 -
Archives municipales de Beaune : 4 M 6 Vauxhall. An IX-1860.
Archives municipales de Beaune : 4 M 6 Vauxhall. An IX-1860.Lieu de conservation : Archives municipales, Beaune - Cote du document : 4 M 6 -
Archives municipales de Beaune : 4 M 7 Théâtre municipal. 1859-1986.
Archives municipales de Beaune : 4 M 7 Théâtre municipal. 1859-1986.(Ancienne cote : M IV § 14 art. 2.)Lieu de conservation : Archives municipales, Beaune - Cote du document : 4 M 7 -
Archives municipales de Dole : 2 R 6 Cinéma. 1913-1947.
Archives municipales de Dole : 2 R 6 Cinéma. 1913-1947.Lieu de conservation : Archives municipales, Dole - Cote du document : 2 R 6 B -
Ville de Beaune, Direction du Spectacle vivant. Théâtre de Beaune. Fiche technique. 2021.
Ville de Beaune, Direction du Spectacle vivant. Théâtre de Beaune. Fiche technique. Beaune : Ville de Beaune, 2021. 9 p. : ill. ; 30 cm.
-
Plan du Wauxhall ventôse an 9. Février-mars 1801.
Plan du Wauxhall ventôse an 9. Dessin (plume, lavis), par le sculpteur Bonnet. Février-mars 1801. 44,5 x 59,5 cm, échelle de 12 toises pour 16 cm [1/150].Lieu de conservation : Archives municipales, Beaune - Cote du document : 4 M 6 -
Beaune [plan de la ville]. 1837.
Beaune [plan de la ville]. Dessin imprimé, par F. C. Busset. 1837. Extrait de : "Atlas du département de la Côte d'Or", 28ème feuille, canton de Beaune. 1/10 000. -
Ville de Beaune. Projet de théâtre. 1er mars 1860.
Ville de Beaune. Projet de théâtre. Dessin sur calque (plume, lavis), par l’architecte voyer Félix Goin. Beaune le 1er mars 1860. 1/100.- Plan du foyer [et] Plan à niveau des secondes loges. 28 x 43,5 cm.- Coupe longitudinale. 39,5 x 54 cm.Lieu de conservation : Archives municipales, Beaune - Cote du document : 4 M 7.1 -
Ville de Beaune. Théâtre municipal [plan de répartition des places]. S.d. [20e siècle].
Ville de Beaune. Théâtre municipal [plan de répartition des places]. Dessin (tirage), s.n. S.d. [20e siècle]. 44 x 56 cm, sans éch.Lieu de conservation : Archives municipales, Beaune - Cote du document : 4 M 7.3 -
Le Théâtre. S.d. [limite 19e siècle 20e siècle, avant 1903].
Le Théâtre. Carte postale, s.n. S.d. [limite 19e siècle 20e siècle, avant 1903]. B.F. éd. [?] à Paris.Lieu de conservation : Archives municipales, Beaune - Cote du document : 4 Fi 5 -
Beaune - Le Théâtre. S.d. [limite 19e siècle 20e siècle, avant 1905].
Beaune - Le Théâtre. Carte postale, s.n. S.d. [limite 19e siècle 20e siècle, avant 1905]. P.M. éd., Beaune. Porte la date 24 décembre 1905 (tampon) au recto.Lieu de conservation : Archives municipales, Beaune - Cote du document : 25 Fi 856 -
Beaune. - La Porte St-Nicolas et le Théâtre. S.d. [1er quart 20e siècle, avant 1912].
Beaune. - La Porte St-Nicolas et le Théâtre. Carte postale, par R. Hudelot. S.d. [1er quart 20e siècle, avant 1912]. R. Hudelot phot.-éd., Beaune. Porte la date 19 août 1912 (tampon) au verso.Lieu de conservation : Archives municipales, Beaune - Cote du document : 25 Fi 151-1 -
35. Beaune. - Tribunal de Commerce. Porte St-Nicolas et Théâtre. S.d. [1er quart 20e siècle, avant 1912].
35. Beaune. - Tribunal de Commerce. Porte St-Nicolas et Théâtre. Carte postale, s.n. S.d. [1er quart 20e siècle, avant 1912]. B.F. éd. [?], Chalon-sur-Saône. Porte la date 24 septembre 1909 (tampon) au recto et au verso.Lieu de conservation : Archives municipales, Beaune - Cote du document : 25 Fi 968 -
Ville de Beaune. Théâtre. Remplacement de trois rangs du parterre réservé par deux rangs de fauteuils. 25 juin 1913.
Ville de Beaune. Théâtre. Remplacement de trois rangs du parterre réservé par deux rangs de fauteuils. Dessin (plume, lavis, crayon de papier), par l’architecte voyer A. Lobot. Beaune le 25 juin 1913. 43,5 x 49 cm, 1/50.Lieu de conservation : Archives municipales, Beaune - Cote du document : 4 M 7.2 -
Beaune - Le Théâtre. S.d. [1907].
Beaune - Le Théâtre. Carte postale, s.n. S.d. [1907]. Ronco Aîné éd., Beaune ; Louis Bauer impr., Dijon.L'affiche porte la date 14 mai 1907 pour le spectacle Le duel.Lieu de conservation : Archives municipales, Beaune - Cote du document : 4 Fi 87 -
Ville de Beaune. Théâtre. Coupe longitudinale [plan surchargé à l’encre rouge d’indications se rapportant à l’éclairage de la cage de scène]. 24 juillet 1933.
Ville de Beaune. Théâtre. Coupe longitudinale [plan surchargé à l’encre rouge d’indications se rapportant à l’éclairage de la cage de scène]. Dessin (tirage, plume), par l’architecte voyer A. Lobot. Beaune le 24 juillet 1933. 42 x 58,5 cm, 1/100.Lieu de conservation : Archives municipales, Beaune - Cote du document : 4 M 7.2 -
[Croquis de répartition des 280 places du parterre]. S.d. [1933 ou 1934].
[Croquis de répartition des 280 places du parterre]. Dessin sur calque (crayon de papier), s.n. S.d. [1933 ou 1934]. 30 x 25,5 cm, sans éch.5 catégories : banc d’orchestre, stalles d'orchestre, fauteuils d’orchestre, parterre réservé, parterre. Parterre : fauteuils 208, strapontins 50, bancs 16, baignoires 6, ensemble 280 [places].Lieu de conservation : Archives municipales, Beaune - Cote du document : 4 M 7.2 -
Cinéma Rex à Beaune. 800 places. Avant projet. 1er avril 1951.
Cinéma Rex à Beaune. 800 places. Avant projet. Dessin (tirage), par l’architecte G. Peynet. 1er avril 1951. 41,5 x 103 cm, 1/100.Lieu de conservation : Archives municipales, Beaune - Cote du document : 4 M 7.3 -
Ville de Beaune. Direction des Services techniques. Théâtre Rex. Etat actuel. 6 novembre 1978.
Ville de Beaune. Direction des Services techniques. Théâtre Rex. Etat actuel. Dessin (tirage), par J. P. 6 novembre 1978. 1/50.- Rez de chaussée. 56 x 83 cm.- Coupe. 42,5 x 47 cm. [Fonds de plan de 1933 au 1/100].Lieu de conservation : Archives municipales, Beaune - Cote du document : 4 M 7.3
-
Archives municipales de Beaune. Théâtre municipal. 2016.
Archives municipales de Beaune. Théâtre municipal / d'après François Mortureux [en ligne]. Beaune : Archives municipales, 29 août 2016. Ill. [consultation du 18 juin 2021]. Accès internet : https://archivesbeaune.wordpress.com/2016/08/29/theatre-municipal/
-
1895-1995, 100 ans de cinéma en Bourgogne. 1995.
1895-1995, 100 ans de cinéma en Bourgogne. Dijon : Conseil régional de Bourgogne, 1995. 168 p. : ill. ; 26 cm. -
Annuaire du cinéma Bellefaye
Annuaire du cinéma Bellefaye. Paris : Bellefaye, 1948-2015.Titres :Annuaire du cinéma. [1948]-1963.Annuaire du cinéma et télévision. 1964-1985Annuaire du cinéma, télévision, vidéo. 1986-2005.Annuaire du cinéma et de l'audiovisuel. 2006-2015.Numérique à partir de 2016. -
Hugonnet-Berger, Claudine ; Maulmin, Pascale de ; Sonnet, Bernard. Théâtres en Bourgogne : architectures du spectacle 1800-1940. 1996.
Hugonnet-Berger, Claudine ; Maulmin, Pascale de ; Sonnet, Bernard. Théâtres en Bourgogne : architectures du spectacle 1800-1940 / Service régional de l'Inventaire général, Direction régionale des Affaires culturelles de Bourgogne ; photogr. Michel Rosso ; carte Alain Morelière. Dijon : Direction régionale des Affaires culturelles, 1996. 28 p. : ill. ; 23 cm. (Itinéraires du Patrimoine ; 124). -
Inauguration du théâtre de Beaune. 10 décembre 1862.
Inauguration du théâtre de Beaune. Journal de Beaune. 10 décembre 1862. -
Mortureux, François. Le théâtre à Beaune. 1983.
Mortureux, François. Le théâtre à Beaune. 1983. 5 p. ; 30 cm. Texte dactylographié destiné à l'exposition 100 ans d'histoire de notre théâtre : Beaune, octobre-novembre 1983.Lieu de conservation : Bibliothèque municipale, Beaune -
Théâtre de Beaune. Mise en scène d'une histoire. 2016.
Théâtre de Beaune. Mise en scène d'une histoire. Beaune : Ville de Beaune, 2016. 25 p. : ill. ; 21 cm.
-
Sabre, Jérôme (témoignage oral)
Sabre, Jérôme. Directeur du Spectacle vivant, théâtre de Beaune, en 2021.
À voir
Informations complémentaires
Inauguration du théâtre de Beaune. Journal de Beaune. 10 décembre 1862.
L'ouverture de notre nouvelle salle de spectacle était annoncée chaque jour, et attendue avec impatience depuis quelque temps ; elle a eu lieu enfin samedi soir, six décembre. Nous savons que la construction d'un théâtre, surtout en province, est une affaire très-compliquée par les détails de toute nature qu’elle comporte. Quelle que soit la prévoyance de l’architecte, il se trouve presque toujours une cause de retard au moment où l'on croit toucher au but ; c'est une livraison qui n’arrive pas à temps promis, un accident fortuit qu'il faut réparer ; toutes choses dont notre exigence ne tient pas compte et qui sont les petites misères d'une pareille entreprise. Aussi, malgré cette différence de quelques jours, devons-nous savoir gré à M. Goin et aux artistes qui l'ont secondé, d'avoir répondu aussi tôt à l'appel impatient du public.
D'ailleurs, comme on le dit vulgairement, nous n'avons pas perdu pour attendre, et nous voici en possession d'un théâtre charmant, et que bien des villes, supérieures à la nôtre en population, nous envieraient.
La façade, élevée au-dessus d'un large perron, et à laquelle il ne manque pour être complète que les deux statues qu'attendent les niches vides, est d'une élégante simplicité. Le péristyle, les couloirs, les escaliers conduisant aux deux premières galeries, et en général tous les dégagements intérieurs, nous ont paru bien appropriés et fort commodes. Nous trouvons, il est vrai, les portes des loges un peu basses, mais nous n'avons pas appris que personne jusqu’ici se soit décapité en entrant.
La salle offre un aspect très-gracieux et tout à fait séduisant ; le ton en est doux et harmonieux ; rien de criard, rien de lourd dans la décoration sobre et de bon goût. Au-dessus des trois galeries, tapissées d'un fond rouge-clair, et dont les devants, blanc et or, sont ornés, suivant les étages, d'entrelacs, de cartouches et de médaillons en camaïeu, reliés par des guirlandes de fleurs, le plafond, porté sur des voussures, s'élève comme un dôme d'azur pâle entouré d'une balustrade fleurie, et coupé de treillages à jour qui ouvrent à l'oeil ravi les perspectives éthérées. Cet effet est d'une illusion pleine de charme et de fraîcheur.
Les loges d'avant-scène, encadrées par des pilastres, et plus mouvementées que celles des galeries, sont drapées de velours dont la couleur pourpre tranche vigoureusement sur les devants, blanc et or, de style néo-grec, comme l'ensemble de la salle. Les deux loges à salon des premières nous offrent, au milieu de l’enroulement de leurs rinceaux, deux médaillons dus au pinceau brillant et habile de notre compatriote Hippolyte Michaud, et représentant, sur fond d'or, les figures de la Tragédie et de la Comédie, d'un beau caractère et très-largement peintes.
Le rideau attire l'oeil du spectateur par une composition originale et d'une grande distinction. Entre les plis opulens d'une draperie pourpre à demi ouverte et rehaussée d'une riche crépine d’or, se déroule une sorte de tapisserie à fonds gris perle, entourée d'ornements dans le goût du siècle dernier ; au centre se détache un cippe de marbre blanc, dont la base est jonchée d'attributs scéniques ; sur le chapiteau, s'ébattent deux colombes aux ailes frémissantes, - symbole de l'amour, inépuisable thème du théâtre antique et moderne ; au-dessus se balancent les blanches couronnes de l'hyménée. L'agencement du rideau proprement dit, avec la partie supérieure ou manteau d’Arlequin, est des plus heureux. Des plis magistralement dessinés, partant des frises de l'avant-scène, viennent s'attacher à un écusson timbré d'un raisin, et portant pour légende ces mots qui figuraient autrefois, nous dit-on, dans les armoiries de Beaune : CAUSA NOSTRAE LAETITIAE. Ce rideau, qui sort des compositions ordinaires, est certes un des mieux réussis que nous connaissions.
Les décors sont à l'avenant. La première représentation nous a déjà fait voir un palais d'architecture italienne du XVIe siècle, rappelant dans ses splendides perspectives le palais Doria de Gênes, et un délicieux fond de parc aux pelouses verdoyantes, aux grands arbres frissonnants, et parsemé d'admirables massifs de pivoines et de roses trémières. Nous avons connaissance des autres décors, et nous pouvons affirmer qu'ils ne le cèdent nullement en mérite à ceux dont nous venons de parler.
Nos éloges ne sauraient rien ajouter à la réputation de M. Cambon, l'auteur des peintures de la salle et des décors de la scène ; disons seulement qu’il a été dans cette oeuvre à la hauteur de son talent et de sa juste renommée. Mais rendons grâce à notre municipalité d'avoir eu l'heureuse inspiration de s'adresser à cet éminent artiste.
Au dire des gens du métier, la scène est parfaitement machinée et offre toutes les ressources d'un grand théâtre.
Par contre, le système d'éclairage laisse à désirer ; si nous l'avons trouvé suffisant pour la scène, il nous a paru très-défectueux pour la salle. Que ce soit défaut de pression ou de qualité du gaz, ou bien encore insuffisance de becs, il nous semble difficile que les choses restent en cet état, et nous appelons sur ce point l’attention de qui de droit.
Quant au foyer, il n'est pas encore meublé. Malgré ses proportions peut être un peu exiguës, nous pensons qu'il suffira à sa destination.
Texte publié dans la collection des Itinéraires du Patrimoine : Hugonnet-Berger, Claudine ; Maulmin, Pascale de ; Sonnet, Bernard. Théâtres en Bourgogne : architectures du spectacle 1800-1940. Dijon : Direction régionale des Affaires culturelles, 1996, p. 4, 6-7 : ill. (itinéraires du patrimoine ; 124).
L'ancienne « Comédie », construite en 1768, dresse encore sa façade rue Eugène Spuller (n° 28) : la symbolique des sculptures qui agrémentent sa porte d'entrée rappelle au promeneur le passé artistique de l'édifice qui sera salle de spectacle municipale jusqu'à l'inauguration du théâtre actuel, édifié sur l'ancien bastion Saint-Nicolas, à l'emplacement du Vauxhall dont la démolition ne suscita aucun regret tant il était vétuste.
Les plans du théâtre, datés du 1er mars 1860, sont l'œuvre de l'architecte-voyer Félix Goin. Les travaux de construction, adjugés aux entrepreneurs dijonnais Guenot et Truchetet, prirent fin en novembre 1862. L'inauguration eut lieu dès le 6 décembre avec la représentation de deux comédies, « L'esclave du mari » et « Mademoiselle de la Seiglière », suivies d'une bluette, « Un mari dans du coton ».
La façade principale, dont la Commission Départementale des Bâtiments Civils regrettait le manque de monumentalité, est représentative d'un type de théâtre qui eut la faveur des architectes dans la seconde moitié du XIXe siècle : elle se caractérise par un corps central à travées, flanqué de massifs latéraux, ici agrémentés de niches restées vides.
Traditionnelle, la salle en fer à cheval superpose trois galeries. Les spectateurs des premières et secondes loges empruntaient deux escaliers symétriques, à volée courbe, accessibles à partir du couloir en U qui desservait le parterre, l'orchestre et les deux baignoires grillagées. Le public plus pauvre de la troisième galerie était canalisé, dès le vestibule, par deux escaliers latéraux indépendants : l'accès aux couloirs des premières et secondes loges lui était donc interdit ce qui, fatalement, l'excluait du foyer du public et des comptoirs attenants affectés à la vente des rafraîchissements et « comestibles ».
Composé, selon les étages, « d'entrelacs, de cartouches et de médaillons en camaïeu reliés par des guirlandes de fleurs », le décor blanc et or du garde-corps des galeries s'alliait au rouge des tissus et des papiers peints pour s'harmoniser avec le rideau d'avant-scène dont le Journal de Beaune a gardé le souvenir : « Entre les plis opulents d'une draperie pourpre à demi ouverte et rehaussée d'une riche crépine d'or, se déroule une sorte de tapisserie à fond gris perle, entourée d'ornements dans le goût du siècle dernier; au centre se détache un cippe de marbre blanc dont la base est jonchée d'attributs scéniques ; sur le chapiteau s'ébattent deux colombes aux ailes frémissantes... » Ce rideau somptueux était l'œuvre d'un peintre-décorateur parisien particulièrement renommé, Ch. Cambon. Avec son associé J.-F.-D. Thierry, il exécuta également le décor du plafond qui, nous dit le Journal de Beaune, « s'élève comme un dôme d'azur pâle entouré d'une balustrade fleurie, et coupé de treillages à jour qui ouvrent à l'œil ravi les perspectives éthérées ». Le garde-corps des premières loges d'avant-scène s'agrémente de médaillons figurant la Comédie (côté jardin) et la Tragédie (côté cour), œuvres de l'artiste beaunois Hippolyte Michaud. Les décors de scène (place publique, jardin, forêt, prison, salon dit Molière, salon Louis XV...), également exécutés par Cambon et Thierry, se manœuvraient à partir de deux planchers de service situés à 7 m. au-dessus de la scène et reliés par un pont appliqué contre le mur de fond.
En 1934 le théâtre accueillit un appareil de projection cinématographique mais n'abandonna pas pour autant sa mission de salle de spectacle : les remaniements dont il fut alors l'objet épargnèrent l'essentiel de ses dispositions intérieures mais le temps eut raison du décor des galeries et du plafond.
Depuis 1989, grâce à quatre années de travaux, le théâtre restauré et modernisé accueille à nouveau spectacles et concerts.
Ville de Beaune, Direction du Spectacle vivant. Théâtre de Beaune. Fiche technique. Beaune : Ville de Beaune, 2021. 9 p. : ill. ; 30 cm.
- théâtres de Bourgogne
- salles de spectacle de Bourgogne-Franche-Comté
- © Région Bourgogne-Franche-Comté, Inventaire du patrimoine
