THÉÂTRE MUNICIPAL
21 - Dijon
place du Théâtre
- Dossier IA21000003 réalisé en 1996 revu en 2021
- Auteur(s) : Laurent Poupard, Claudine Hugonnet-Berger
Présentation
Le théâtre a été édifié de 1810 à 1828.
Des projets des années 1780 aux travaux de 1810-1811
La Comédie (8 rue Buffon), créée en 1718, montre ses limites dans le troisième quart du 18e siècle et dans un courrier adressé au préfet en 1807, le maire rappellera "les dangers de la salle actuelle, sa construction vicieuse, son défaut de solidité" mais aussi "la nécessité bien prouvée des spectacles en ce qu'il retien[nen]t les jeune gens et les éloignent d'autres lieux qui, sans doute, entraineroient plus de dépenses et plus de dangers". La Ville cherche donc à créer une nouvelle salle de spectacle, plus centrale. Pour ce faire, elle sollicite du roi, le 16 juillet 1785, la concession de l'ancien couvent des jacobines installé à proximité du palais des ducs et états de Bourgogne, sur l'ancien terrain du palais des évêques de Langres, abandonné par les religieuses en 1768 et réuni au domaine du roi dix ans plus tard. Elle souhaite "y établir une salle de spectacle sure, commode, sans luxe, et la moins coûteuse, de manière même qu'elle puisse avant peu d'années être un objet de revenu". L'arrêt du Conseil du roi du 20 mai 1786 lui répond favorablement. La Ville demande alors à l'architecte de l'Intendance de Paris Jacques Cellerier, originaire de Dijon, d'élaborer un projet. Celui rédigé prévoit un remodelage du quartier afin de mettre en valeur la salle, qui donne sur la place Royale (actuelle place de la Libération), et nécessite la destruction de l'église conventuelle. L'évêque des Monstiers de Mérinville s'y oppose le 5 février 1788, refusant la construction à cet emplacement d' "aucun bâtiment pour servir à une salle de Comédie ou autres spectacles deffendus par les saints Canons". Pour leur part, les "notables habitants" disent, le 19 février, ne vouloir bâtir qu'une salle de spectacle qui "serait faitte sans décorations extérieures et placée derrière le mur de ceinture de la place royalle sans pouvoir changer son ordonnance d'architecture". Cellerier revoit son projet, dont la Révolution diffère durablement l'examen. Le terrain des jacobines étant vendu en 1792, de nouveaux lieux sont reherchés, dont l'église Saint-Jean en 1793-1794 puis en 1803 (par Pierre-Joseph Antoine).La municipalité relance son dessein au tournant du siècle, cherchant à en diminuer le coût : nouvel emplacement (le coût d'acquisition des bâtiments à détruire étant trop élevé sur le site initial), possibilité de créer des commerces au rez-de-chaussée (18 boutiques, un café et un restaurant) - piste qui sera de nouveau envisagée une décennie plus tard avec une cave, un café et un "magazin de m[archan]d de modes", six boutiques, 12 à 15 logements aux étages -, etc. Après bien des hésitations, elle valide en 1803 le choix de la place de la Sainte-Chapelle, en cours de démolition : "attendu sur tout que l'édifice à bâtir dans cette place sera isolé de toute part, fermé par trois rues d'une grande largeur, aura sa principale façade sur une belle place et sera d'un accès extrêmement facile de toute part et au centre de la ville". Pour assurer le financement, elle vend diverses propriétés dont l'ancienne Comédie ("vieille et peu solide"). Le 20 avril 1807, le conseil municipal rappelle son intention "de se procurer une salle commode dans son intérieur et un monument qui, par son extérieur, ne soit pas indigne du beau siècle qui l'aura vu s'élever". Il réitère son choix de l'emplacement retenu (sur lequel toutefois deux maison resteront à détruire au début de 1810) et de Cellerier, après avoir consulté au fil du temps les architectes Antoine et Saint-Père, de Dijon, et E. Cailliet, de Chalon-sur-Saône. Cellerier présente des projets pour un bâtiment isolé des autres constructions "de sorte qu'en cas d'incendie du théâtre, les propriétés voisines n'eussent rien à redouter". Ces propositions sont rejetées car trop coûteuses et d'autres projets sont envisagés avec installation dans un bâtiment existant : "ancienne cathédrale" (église Saint-Etienne devenue halle au blé) ou "palais de la légion d'honneur" (aile du palais des états de Bourgogne abritant le musée) suivant la proposition de l'ingénieur en chef des Ponts et Chaussées de Montfeu. Cellerier réplique en mettant en avant, pour un coût similaire, les contraintes moindres d'un projet ex-nihilo, son aspect plus imposant, la présence à l'étage d'un foyer public de 20 m x 8 m "qui pourrait servir de salle de concert" et les dimensions de la salle qui "serait plus large de dix pieds que celle des Variétés, boulevard Montmartre" (de fait, Cellerier est l'auteur, avec Alavoine, de ce théâtre parisien inauguré en 1807 et il avait auparavant, en 1786, agrandi la salle de l'Ambigu-Comique). Le dernier argument est critiqué par le préfet pour qui "le moyen le plus certain pour attirer la foule est l'apparence d'une salle toujours pleine. Je crois donc que loin de la faire plus grande que la salle des Variétés, il conviendrait de la faire plus petite". Le projet de Cellerier est adopté le 20 septembre 1809 (avec une capacité de 1 256 personnes contre 856 pour l'ancienne Comédie). Il prévoit un portique délimité par huit colonnes et ouvrant sur un vestibule divisé par dix colonnes et surmonté d'un vaste foyer public. La salle en U a des loges d'avant-scène, deux balcons et un poulailler à gradins, une fosse d'orchestre ; la cage de scène compte deux dessous, grill et passerelles ; l'arrière accueille une loge de concierge et un café, surmontés de magasins, de loges et d'un foyer pour les acteurs. Ce projet est validé par le conseil des Bâtiments civils le 26 janvier 1810, moyennant la suppression de deux colonnes du vestibule, et approuvé par décret impérial le 13 mars suivant, tout comme le sera le choix de l'emplacement de la Sainte-Chapelle (dont l'édifice occupera le cloître). Les travaux sont adjugés le 10 août à l' "architecte-ingénieur" Louis Alexandre François Reux (à propos duquel Baudot note : "On dit tout bas que c'est un intrigant qui n'a rien à lui et qui n'offre aucune responsabilité"). Les plans sont modifiés le 9 novembre suivant (suppression de loges en baignoires et inversion des emplacements du café et du logement du concierge) en fonction des observations de Pierre-Joseph Antoine, qui est dit "professeur d'architecture, directeur des travaux relatifs à la construction de la salle de spectacles de Dijon". La première pierre est posée le 2 décembre 1810 (les travaux ayant débuté en août, sans d'ailleurs que Cellerier n'en ait été avisé). Des problèmes liés à l'imprécision des plans et le retard de la Ville à le payer conduisent dès 1811 Reux à arrêter le chantier, alors que le sous-sol est déjà voûté du côté de la façade antérieure. En faillite, il obtient le 18 février 1812 la résiliation de l'adjudication. Le 11 août 1814, le conseil des Bâtiments civils valide cette résiliation tout en constatant la réalité de l'existence de malfaçons, dues à l'insuffisance des plans et devis de Cellerier et à la mauvaise qualité des bois de menuiserie. Cellerier décédant cette année-là, le ministre de l'Intérieur choisit, le 11 octobre, pour le remplacer Guy de Gisors (1732-1835), membre du conseil des Bâtiments civils. Sachant les finances de la Ville au plus bas, celui-ci délaisse le projet.
La construction (1823-1828)
Compte tenu de la conjoncture défavorable (chute de l'Empire), cette interruption se prolonge quelques années. Le 6 juillet 1818, le préfet se félicite que la municipalité envisage de reprendre le projet en raison des "convenances qui semblent exiger qu'une ville si belle dans ses bâtiments publics et particuliers, mette en harmonie avec tout le reste un édifice qui sert à la réunion habituelle d'un très grand nombre de citoyens, et où les Princes, les Grands et les étrangers qui la visitent ne manquent jamais de se rendre". Récusant Gisors, la Ville s'adresse à l'associé de Cellerier, Jean-Antoine Alavoine (1778-1834), lequel rapporte le 24 juillet 1820 : "M le maire me demanda que l'intérieur de la salle projetée par Mr Cellerier fut diminuée et simplifiée, autant par raison d'économies que de convenance, relativement à la population de la ville et aux moeurs des habitants ; mais il résultait de ce changement que l'ordre corinthien de l'ancien projet rendait la façade beaucoup trop riche et qu'elle n'était plus en harmonie avec l'intérieur ; je crus donc devoir proposer de lui substituer l'ordre dorique dont la simplicité élégante convenait d'avantage sous le rapport du goût et pouvait s'exécuter sans dépasser le crédit ouvert pour cette entreprise." Alavoine critique la façade "d'un style trop sévère, plus convenable pour un temple que pour un théâtre", la colonnade "d'une disproportion aussi choquante avec les proportions des colonnes intérieures que sa richesse est inconvenante relativement aux autres parties de l'édifice", le portique qui "ne peut abriter ni de la pluie ni du soleil" mais "augmentera de beaucoup la dépense". Les deux propositions qu'il présente sont rejetées par la municipalité, la première à cause de ses dispositions intérieures et la deuxième (pourtant validée par le conseil des Bâtiments civils) à cause de la modification des colonnes, si bien qu'il démissionne. La Ville s'adresse alors à l'architecte du roi Pierre Fontaine en lui demandant de superviser le travail d'un architecte local, Antoine Chaussier-Couturier, proposition que Fontaine décline estimant son confrère suffisamment compétent. Elle choisit finalement Simon Vallot, architecte et ingénieur en chef des Ponts et Chaussées, successeur de Cellerier au Conseil des Travaux publics de la Seine. Vallot apporte en 1821 diverses modifications, changeant notamment la forme de la salle pour améliorer la visibilité depuis les loges, ce que valide le 21 mars 1822 le conseil des Bâtiments civils qui écrit : "On s'aperçoit facilement en comparant les deux plans que celui de M. Cellerier n'eut donné qu'une salle fort défectueuse sous le rapport de la vision". Il en réduit d'ailleurs le nombre ("le nombre de rangs des loges s'accorde aujourd'hui, d'après les renseignements que M. l'architecte et M. le maire de Dijon m'ont donnés, avec la population à recevoir"). Il ajoute des petits salons à l'arrière des loges d'honneur (changement imposé), des escaliers et des sorties. Modifications et devis, qui se monte à 500 000 F (il était d'environ 290 000 F au début de la décennie), sont approuvés par le conseil des Bâtiments civils qui, constatant l'attachement de la Ville aux élévations dessinées par Cellerier, écrit : "au surplus lorsque cet édifice aura reçu son entière exécution, il ne peut manquer de produire un certain effet monumental qui pourra contribuer à l'embellissement de la Ville". Il préconise toutefois de revoir l'entablement de la façade antérieure influencé par le "l'ordre du frontispice de Néron" (évoqué par François Blondel dans ses Cours d'architecture..., 1675-1683) et d'ajouter "les améliorations apportées depuis quelques temps aux théâtres pour atténuer les périls des incendies" (dépôt de pompes, réservoir et distribution d'eau, murs de refend à pignon découvert). La Ville approuve le projet le 21 novembre 1822. Elle achète d'ailleurs en février 1823 le Traité sur l'art de la charpente théorique et pratique, de Jean-Charles Krafft, dont le tome 2 paru en 1821 traite notamment des théâtres ("cet ouvrage composé par Kraft et enrichi de notes par M. Lomet contient des idées neuves, et qui peuvent nous être d'un très utile secours pour notre charpentier qui n'a jamais exécuté des ouvrages de théâtre").L'adjudication des travaux est homologuée fin janvier 1823. La maçonnerie a été confiée à Papinot Frères et Gaudriot, qui doivent commencer par araser au niveau du sol les départs de murs existants. La base des murs, les colonnes, les pilastres extérieurs et la corniche sont réalisés en pierre de l'Abbaye-Damparis (Damparis, Jura), livrée par le canal ; le reste de la pierre de taille provient de Plombières-lès-Dijon ou d'Asnières-lès-Dijon, les moellons de Plombières ou des carrières des Chartreux (à Dijon même), la "pierre tendre pour les sculptures et balustres" d'Asnières. Cela posera des problèmes qu'expliqueront les entrepreneurs le 29 janvier 1829 : "A Plombières, il y avait de grandes découvertes à faire et beaucoup de pierre bleue dont l'emploi étant prohibé pour l'extérieur des façades, nous fumes obligés d'abandonner beaucoup de cette pierre en carrière, ou de la céder à vil prix. Les carrière d'Asnières sont ruinées ; le travail y est absolument incertain, et lorsque, sur des apparences, on croit avoir un beau bloc de pierre, on n'a rien ou peu de choses [...]" La charpente (en bois de marine pour les grosses pièces) a été adjugée le 17 juin 1822 à Jean Tournier et Antoine Guignard, la couverture le 20 août à Florimond Neveu (initialement prévue en ardoises puis en tuiles plates vernissées jaune et noire des tuileries de Verdun-sur-le-Doubs, elle sera réalisée en tuiles plombifères noires des tuileries de Premières). Les travaux prennent du retard ce qu'expose ainsi, dès 1824, Papinot qui signale celui pris par l'homologation des adjudications (8 mois perdus), la rareté de la main-d'oeuvre ("Les travaux du canal qui sont survenus ensuite et ceux extraordinaires qui se font dans toute la France ayant rendu les ouvriers extrêmement rares, nous n'avons pu, malgré les prix très élevés que nous leur donnons, nous en procurer autant qu'il en aurait fallu pour donner aux travaux toute l'activité désirable") et l'exiguïté de la carrière retenue ("Ne prenant la pierre que dans une seule carrière très resserrée et très difficile à exploiter, il était impossible d'y placer autant d'ouvriers qu'il en aurait fallu pour tirer dans un délai si court une masse de pierre aussi considérable"). En décembre 1825, l'achèvement de la maçonnerie (acrotère notamment) dépend d'ailleurs de la pose de la charpente... Le 24 février 1826, Vallot évoque les chapiteaux de la colonnade : le modèle réalisé par le sculpteur (Bornier) n'est pas satisfaisant "en ce que les feuilles sont trop plates et ne produisent aucun effet" mais l'architecte n'est pas encore arrivé à se procurer "une épreuve d'un des chapiteaux antiques de la galerie d'architecture à l'école royale des Beaux-Arts". Le 3 septembre, Jean-Baptiste Plantar, "dernier sculpteur des Bâtiments du roi" (résidant à Paris, 58 rue du Bas), expédie au maire un modèle de chapiteau. Il se voit confier, le 24 octobre suivant, la sculpture des chapiteaux, tant extérieurs qu'intérieurs, et un an plus tard celle "en pierre tendre, bois, plâtre et carton pierre de l'intérieur de la salle et du foyer" (le coût total de son intervention sera de 26 472,80 F). La décoration intérieure autre que sculpture est attribuée aux frères Moench dits Munich, la fourniture du mobilier, du lustre et des miroirs à l'ébéniste parisien Jean-Jacques Werner, celle des décors de scène et de la machinerie à Ciceri et son associé Lèbe-Gigun (leur devis de 96 796 F avait été validé le 22 mars 1822). La réception des travaux a lieu le 17 septembre 1828 et l'inauguration le 4 novembre, jour de la fête du roi Charles X. Suivant un état établi par Vallot le 15 novembre 1828, le théâtre aura finalement coûté 624 559 F (un état postérieur donnera le chiffre de 631 879 F).
Le théâtre au 19e siècle
Des travaux complémentaires sont réalisés en 1832 pour améliorer la sécurité en cas d'incendie (répondant avec dix ans de retard aux observations du conseil des Bâtiments civils), avec le creusement d'un puits au sous-sol et la mise en place d'une pompe alimentant des réservoirs dans le comble. L'éclairage au gaz est adopté en 1839 pour une partie du bâtiment puis étendu en 1848 à la façade et aux salles recevant du public, bureaux et corps de garde. Un équipement important est aménagé à proximité en 1846 : un magasin à décors. L'architecte voyer François Papinot écrivait dès 1833 : "Le défaut de magasin et le peu d'emplacement qu'offrent les côtés du théâtre [de la scène] obligent de placer plusieurs décorations les unes sur les autres et c'est le frottement qu'elles éprouvent en les retirant de leurs cases qui détruit la peinture." Il revient à la charge en 1846 signalant que "tout le matériel de la scène, se composant de dix-huit décorations complètes et de quantité d'accessoires, se trouve entassé derrières les coulisses" d'où l'usure des peintures due aux frottements et le risque encouru : "cette masse de toiles et de châssis servirait d'aliment au feu si il venait à prendre au théâtre et aggraverait les sinistres." Il propose donc de créer un magasin en aménageant un étage dans l'ancienne église Saint-Etienne, devenue halle au blé. Les travaux sont adjugés le 20 août 1846 au charpentier Pierre Lamblot (un projet sera établi en 1896 pour un nouveau magasin à l'angle du boulevard de la Trémouille et de la rue Robert Tissot).La salle est rénovée en 1855 (peintures, rideaux, tapisseries et revêtement des sièges étaient dès 1853 considérés comme défraîchis). Le devis du 26 mai 1855, rédigé par les architectes dijonnais Jean-Philippe Suisse et Jean Alphée Cyprien Scheffer, présente les travaux nécessaires pour la remettre à neuf mais aussi en modifier la disposition. Cette question de l'organisation des lieux est déjà ancienne. En 1838, à la demande de la commission du théâtre, l'architecte voyer Papinot notait : "il faudrait agrandir cette salle, élever les baignoires et changer la division des loges", bref faire des travaux que la disposition des poteaux soutenant les balcons rendrait trop coûteux. En 1855, pour leur part, Suisse et Scheffer écrivent : "La salle du théâtre de Dijon est grande, mais la disposition des places laisse à désirer, les étages étant très espacés, trop de vide existe entre les spectateurs ce qui rend l'aspect triste, et la salle même complette ne paraît pas garnie. Bien que les places qui existent paraissent suffisantes, elles font défaut les jours de représentation suivie ; enfin on regrette que la première galerie soit impraticable vu son peu de largeur ; qu'il y ait aussi peu de loges de quatre personnes et surtout que celles closes ne soient pas plus nombreuses." Ils proposent d'élargir la première galerie du côté du parterre, de subdiviser les premières en 10 loges de 4 places et 6 de 6 places (dont 4 closes), et de créer une nouvelle galerie (46 places) en avant et en contrebas des loges des secondes et un amphithéâtre (112 places) au droit du foyer (la commission du théâtre évalue le gain potentiel à 200 places). La charpente et certains planchers seront également réparés. Ces transformations impliquent la réfection complète de l'ornementation d'autant que, trouvant sans intérêt l'aspect de l'arc d'avant-scène et du plafond plat, les architectes proposent de modifier ce dernier en abaissant la corniche et en créant une coupole "mi-plate", d'où la réalisation d'une nouvelle peinture en trompe-l'oeil par le peintre décorateur Charles Cambon.
Modifications et rénovations au 20e siècle et au début du 21e
Par la suite, le bâtiment fait l'objet, sous la direction de l'architecte de la ville, de divers remaniements dictés par les nécessités de la sécurité, du progrès et du confort : pose de deux paratonnerres en 1867, installation en 1900 de l'électricité en remplacement du gaz, modifications en 1934 par Georges Parisot (avec notamment la reconstruction en béton armé du 1er balcon et de la fosse d'orchestre), réaménagement de la scène en 1953-1954 par Georges Gendrot (avec surélévation de la partie nord du bâtiment et remplacement des tuiles plates par des ardoises, installation d'un jeu d'orgues, etc.). Un nouveau magasin de décors est édifié en 1964, au 21 bis avenue de Marbotte, par la société La Construction (24 rue Dom Plancher, à Dijon) suivant un projet de 1961 du même Gendrot, assisté par l'architecte Devalière. En service à partir de 1966, il succède à un édifice créé rue Pierre Curie dans la première moitié du 20e siècle. Le théâtre bénéficie en 1970 d'une rénovation complète (à l'exception de la scène) sous la direction de Jean-François Devalière et Michel Grangy, et avec l'assistance du cabinet Artec (6 rue du Bas Meudon, à Issy-les-Moulineaux) pour le lot chauffage-climatisation et les réparations à la charpente. La rénovation s'accompagne notamment de l'installation d'une climatisation, de la suppression d'une partie des loges du 1er balcon (les cinq loges axiales, de 6 places, sont maintenues) et du renouvellement de la décoration de la salle, du foyer et du bar du 3e balcon, des sièges et luminaires, et de travaux de sonorisation avec mise en place d'une télévision en circuit fermé permettant aux choeurs en coulisse et à l'organiste au 3e étage de suivre sur écran le chef d'orchestre. Le théâtre rouvre ses portes le 3 novembre 1970 (avec 1 006 places).L'édifice est protégé au titre des monuments historiques en 1975 (inscription des façades et toitures). En 2002, le théâtre se rapproche de la salle de concert l'Auditorium pour former avec elle le Duo Dijon, une structure rebaptisée en 2008 Opéra de Dijon, produisant concerts, opéras et spectacles de danse, et labellisée Théâtre lyrique d'intérêt national en 2017. Après une remise en état en 2005 (remplacement des fauteuils et suppression des places borgnes et des dernières loges du 1er balcon, ramenant la capacité à 692 places) et la création d'un ascenseur en 2008 ou 2010, la Ville débute à partir de 2021 une nouvelle rénovation sur plusieurs années, sous la direction de l'architecte du patrimoine Fabien Drubigny : aménagement de la partie arrière (loges, équipements techniques et extension supérieure) puis du corps antérieur et finalement de l'espace scénique.
Historique
Désireuse de remplacer la Comédie créée rue Buffon en 1812, la Ville obtient du roi, le 20 mai 1786, la concession de l'ancien couvent des jacobines installé à proximité du palais des ducs et états de Bourgogne. L'architecte de l'Intendance de Paris Jacques Cellerier, originaire de Dijon, élabore un projet qui demeure sans suite du fait de l'opposition de l'évêque puis de la Révolution. La municipalité revient à la charge au tournant du siècle et en 1803, elle choisit pour son théâtre la place de la Sainte-Chapelle (en cours de démolition). Cellerier rédige un nouveau projet pour une salle de spectacle "plus large de dix pieds que celle des Variétés, boulevard Montmartre" (salle parisienne dont il est l'auteur avec Alavoine), d'une capacité de 1 256 personnes, avec un plan en U, des loges d'avant-scène, deux balcons et un poulailler. Sa proposition est adoptée le 20 septembre 1809 et les travaux sont adjugés le 10 août à l' "architecte-ingénieur" Louis Alexandre François Reux. La première pierre est posée le 2 décembre 1810. Des problèmes liés à l'imprécision des plans et le retard de la Ville à le payer conduisent dès 1811 Reux à arrêter le chantier puis, après sa mise en faillite, il obtient en février 1812 la résiliation de l'adjudication. Le chantier est arrêté pendant quelques années. Cellerier étant décédé en 1814, la Ville choisit pour le remplacer Simon Vallot, architecte et ingénieur en chef des Ponts et Chaussées, successeur de Cellerier au Conseil des Travaux publics de la Seine. Vallot apporte en 1821 diverses modifications, changeant notamment la forme de la salle pour améliorer la visibilité depuis les loges et ajoutant des escaliers et des sorties. L'adjudication des travaux est homologuée fin janvier 1823 et la maçonnerie est confiée à Papinot Frères et Gaudriot, qui doivent commencer par araser au niveau du sol les départs de murs existants. En décembre 1825, l'achèvement de la maçonnerie est conditionné à la pose de la charpente. La sculpture des chapiteaux est confiée le 24 octobre 1826 au sculpteur parisien Jean-Baptiste Plantar, la décoration intérieure (autre que sculpture) aux frères Moench dits Munich, la fourniture du mobilier, du lustre et des miroirs à l'ébéniste parisien Jean-Jacques Werner, celle des décors de scène et de la machinerie à Ciceri et son associé Lèbe-Gigun. La réception des travaux a lieu le 17 septembre 1828 et l'inauguration le 4 novembre.
Des travaux complémentaires sont réalisés en 1832 pour améliorer la sécurité en cas d'incendie, avec le creusement d'un puits au sous-sol et la mise en place d'une pompe alimentant des réservoirs dans le comble. L'éclairage au gaz est adopté en 1839 pour une partie du bâtiment puis étendu en 1848 à la façade et aux salles recevant du public, bureaux et corps de garde. Un magasin à décors est aménagé en 1846 dans l'ancienne église Saint-Etienne, devenue halle au blé. La salle est rénovée en 1855 suivant une proposition des architectes Jean-Philippe Suisse et Jean Alphée Cyprien Scheffer : ils font modifier la disposition des galeries et des loges, ce qui nécessite de refaire entièrement l'ornementation, et font crééer une coupole "mi-plate" décorée d'une nouvelle peinture en trompe-l'oeil due au peintre décorateur Charles Cambon. Par la suite, le bâtiment fait l'objet, sous la direction de l'architecte de la ville, de divers remaniements dictés par les nécessités de la sécurité, du progrès et du confort : pose de deux paratonnerres en 1867, installation en 1900 de l'électricité en remplacement du gaz, modifications en 1934 par Georges Parisot (avec notamment la reconstruction en béton armé du 1er balcon et de la fosse d'orchestre), réaménagement de la scène en 1953-1954 par Georges Gendrot (avec surélévation de la partie nord du bâtiment et remplacement des tuiles plates par des ardoises, installation d'un jeu d'orgues, etc.). Le théâtre bénéficie en 1970 d'une rénovation complète (à l'exception de la scène) sous la direction de Jean-François Devalière et Michel Grangy : installation d'une climatisation, suppression d'une partie des loges du 1er balcon et renouvellement de la décoration de la salle, du foyer et du bar du 3e balcon, des sièges et luminaires, etc. Le théâtre rouvre ses portes le 3 novembre 1970 (avec 1 006 places). L'édifice est protégé au titre des monuments historiques en 1975 (inscription des façades et toitures). En 2002, le théâtre se rapproche de la salle de concert l'Auditorium pour former avec elle le Duo Dijon, une structure rebaptisée en 2008 Opéra de Dijon, produisant concerts, opéras et spectacles de danse, et labellisée Théâtre lyrique d'intérêt national en 2017. Après une remise en état en 2005 (remplacement des fauteuils et suppression des places borgnes et des dernières loges du 1er balcon, ramenant la capacité à 692 places) et la création d'un ascenseur en 2008 ou 2010, la Ville débute à partir de 2021 une nouvelle rénovation sur plusieurs années, sous la direction de l'architecte du patrimoine Fabien Drubigny : aménagement de la partie arrière (loges, équipements techniques et extension supérieure) puis du corps antérieur et finalement de l'espace scénique.
- 1ère moitié 19e siècle
- 3e quart 19e siècle
- 3e quart 20e siècle
Date de naissance : 11/11/1742 - date de décès : 03/1814
Cellerier, Jacques (1742-1814), ou Célérier Jacques Kaufmann. Architecte originaire de Dijon, pensionnaire du roi à Rome, nommé ingénieur de la généralité de Paris. Auteur de nombreuses demeures privées, il s'inspire de l'Antiquité gréco-romaine et illustre bien le courant néo-classique. (Source : <span style="font-style:italic;">Encyclopédie universalis</span>, https://www.universalis.fr/encyclopedie/jacques-cellerier/)
Date de naissance : 02/03/1772 - date de décès : 09/12/1847
Valot, Simon (1772-1847). Elève de Jean-Nicolas-Louis Durand à l'école Polytechnique. Grand prix de Rome en 1800, pensionnaire de la villa Médicis de 1805 à 1808. Ingénieur des Ponts et Chaussées en 1804, professeur d'architecture à l'école des Ponts et Chaussées à partir de 1811, membre du Conseil des Travaux publics de la Seine en 1820 (en remplacement de Cellerier). Demeure 8 rue du Jardinet à Paris en 1821.(Sources : Wikipédia)
Date de naissance : 06/04/1764 - date de décès : 25/11/1823
Reux, Louis Alexandre François (1764-1823). Architecte et entrepreneur en charge de la construction du théâtre de Dijon. Architecte départemental et du service des Ponts et Chaussées du Vaucluse en 1815.(Source : https://gw.geneanet.org/aadonker?n=reux&oc=&p=louis+alexandre+francois)
Date de naissance : 1790 - date de décès : 1879
Plantar, Jean-Baptiste (1790-1879). Elève de Jean-François Mouret (1777-1820), dont il reprend l'atelier à sa mort accidentelle. "Dernier sculpteur des Bâtiments du roi" (résidant à Paris, 58 rue du Bas), il pratique également les arts industriels en travaillant avec le bronzier Thomire ou le fondeur Ducel. Auteur en 1845-1846 d'un <span style="font-style:italic;">Cours d’ornement</span>, il semble cesser son activité dans les années 1850.(Source : https://blog.bibliotheque.inha.fr/fr/posts/plantar.html)
Date de naissance : 09/07/1807 - date de décès : 25/10/1882
Suisse, Jean-Philippe (1807-1882). Architecte du département de la Côte-d'Or de 1850 à 1872 et architecte diocésain de Dijon de 1850 à 1873. Père de l'architecte Charles Suisse (1846-1906). (Source : Wikipédia)
Date de naissance : 11/09/1820 - date de décès : 24/02/1867
Scheffer, Jean Alphée Cyprien (1820-1867). Né le 11 septembre 1820 à Auxonne et mort le 24 février 1867 à Dijon. Fils du géomètre Floréal Scheffer (né le 12 mars 1794 à Paris et mort en 1838 à Auxonne où il était architecte voyer depuis 1819). Elève architecte à l'Ecole Royale des Beaux-Arts à Paris en 1846. Nommé en 1856 architecte de la ville de Dijon, où il réside place Saint-Pierre en 1861. (Sources : https://gw.geneanet.org/jdglor?lang=fr&pz=didier+yannick&nz=glories&p=jean+alphee+cyprien&n=scheffer et https://gw.geneanet.org/arduen08?n=scheffer&oc=&p=floreal).
Date de naissance : 12/10/1903 - date de décès : 19/08/1996
Gendrot, Georges Pierre Marie (1903-1996). Pavillon Bourgogne-Franche-Comté à l'Exposition internationale de Paris en 1937 avec Roger Barade. Architecte adjoint de la ville de Dijon (4 rue du Lycée) en 1942, architecte de la ville en 1953.(Source : https://gw.geneanet.org/huahine689?n=gendrot&oc=&p=georges+pierre+marie)
Date de naissance : 1926 - date de décès : 21/11/2021
Devalière, Jean-François (1926-2021). Architecte en chef de la ville de Dijon en 1991.
Date de naissance : 05/04/1936
Grangy, Michel. Né en 1936 à Saint-Maur-des-Fossés. Architecte municipal de Dijon jusqu'en 1995 (il a débuté comme architecte adjoint en 1968). (Source : fonds Michel Grangy 1969-1991 aux Archives municipales de Dijon : https://archivesmunicipalesdijon.files.wordpress.com/2020/05/ir_80z.pdf)
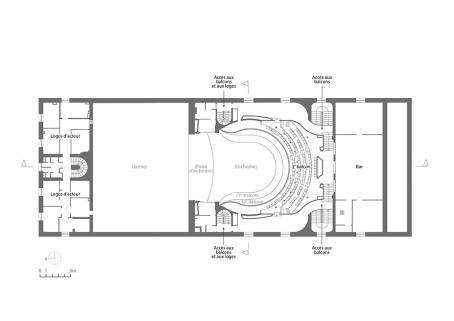
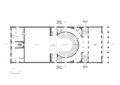
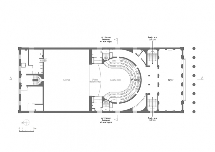
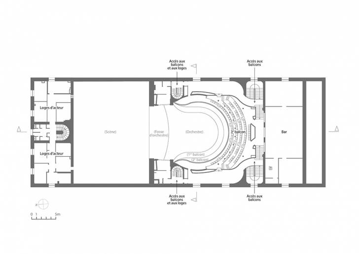
Description
Le bâtiment, en pierre de taille et mesurant 61 m sur 23, présente trois niveaux au sud et cinq au nord. Il est formé de quatre corps. A l'arrière d'un portique de huit colonnes corinthiennes, le corps en façade comporte un sous-sol (voûté en berceau), un rez-de-chaussée (vestibule) et un étage carré (foyer) ouverts de baies en plein cintre, un étage d'attique (bar) et un étage de comble. Il se prolonge vers le nord par la salle (2e corps) au plan en U qui, outre un sous-sol et un étage de comble (à charpente en bois), comporte trois balcons et des loges d'avant-scène ; elle dispose d'une fosse d'orchestre occultable (pouvant accueillir au maximum 40 à 45 musiciens) et compte 305 places à l'orchestre, 164 au 1er balcon, 93 au 2e, 116 au 3e et 14 dans les loges, soit 692 places en tout. Le corps suivant, rehaussé en 1953-1954 (avec des murs enduits), abrite la scène, établie sur deux étages de sous-sol (correspondant aux 1er et 2e dessous) et dont le comble (à charpente métallique) sert de cintres. Elle mesure 19,50 m de largeur sur 15,20 m de profondeur et 16 m sous porteuses (l'ouverture du cadre de scène est de 10,80 m x 7,50 m). Au nord, le dernier corps (loges d'acteur, bureaux et services) totalise huit niveaux : sous-sol, rez-de-chaussée, cinq étages carrés et étage de comble. Les dessertes sont assurées par trois escaliers tournants en maçonnerie (deux accessibles depuis le vestibule au sud et un au centre du corps nord), plus deux autres en charpente au niveau des loges d'avant-scène ; un ascenseur est présent dans le corps nord. Le théâtre est couvert par un toit à longs pans, croupes et ardoises ; la moitié nord (scène et loges d'acteur), plus élevée de deux niveaux, présente un pignon découvert au sud.
- calcaire
- pierre de taille
- enduit
- ardoise
- sous-sol
- 5 étages carrés
- étage de comble
- voûte en berceau
- élévation ordonnancée
- toit à longs pans, croupe
- pignon découvert
- escalier dans-oeuvre, escalier tournant à retours avec jour, en maçonnerie
- escalier dans-oeuvre, escalier tournant, en charpente
- ascenseur
- restauré
Source(s) documentaire(s)
-
Archives municipales de Dijon : K 74 bis Salle de spectacle prévue sur l'emplacement du couvent des Jacobines sur les plans de l'architecte Cellerier. Acquisition du terrain, inventaire du mobilier de l'église, etc. 1786-1789.
Archives municipales de Dijon : K 74 bis Salle de spectacle prévue sur l'emplacement du couvent des Jacobines sur les plans de l'architecte Cellerier. Acquisition du terrain, inventaire du mobilier de l'église, etc. 1786-1789.Lieu de conservation : Archives municipales, Dijon - Cote du document : K 74 bis -
Archives municipales de Dijon : 4 M 7/2-15. Salles de spectacle. 1794-1878.
Archives municipales de Dijon : 4 M 7/2-15. Salles de spectacle. 1794-1878.Lieu de conservation : Archives municipales, Dijon - Cote du document : 4 M 7/2-15 -
Archives municipales de Dijon : série W Archives publiques postérieures au 10 juillet 1940. Cotation provisoire.
Archives municipales de Dijon : série W Archives publiques postérieures au 10 juillet 1940. Cotation provisoire.Lieu de conservation : Archives municipales, Dijon - Cote du document : série W -
Archives municipales, Dole : 1 M 157 Notes sur les théâtres de Dijon et Dole, suite à deux visites le 7 avril 1922 et le 10 janvier 1930.
Archives municipales, Dole : 1 M 157 Notes sur les théâtres de Dijon et Dole, suite à deux visites le 7 avril 1922 et le 10 janvier 1930.Lieu de conservation : Archives municipales, Dole - Cote du document : 1 M 157 -
Foyer du nouveau théâtre. 19 novembre 1828.
Foyer du nouveau théâtre. Journal de Dijon et de la Côte-d’Or, 17e année, n° 91, mercredi 19 novembre 1828, p. 361-362. -
Devis conditionnel et cahier des charges pour la construction d'une salle de spectacles sur la place Saint-Etienne, en la ville de Dijon. 1810.
Devis conditionnel et cahier des charges pour la construction d'une salle de spectacles sur la place Saint-Etienne, en la ville de Dijon. 1810.Lieu de conservation : Bibliothèque municipale, Dijon - Cote du document : Fonds Milsand
-
Nouveau plan de la ville et des environs de Dijon [... par] de Beaurain géographe ordinaire du Roy. Corrigé et augmenté en 1767.
Nouveau plan de la ville et des environs de Dijon dédié à son altesse sérénissime Monseigneur le Duc par son très heumble et très obéissant serviteur de Beaurain géographe ordinaire du Roy. Corrigé et augmenté en 1767. Dessin en couleur imprimé, 1767. 53 x 70 cm, éch. de 700 pieds de France [4,8 cm], 1000 palmes romaines [4,9 cm], 900 pieds d’Espagne [5,4 cm]. A Paris chez le sieur Desnos, ingénieur géographe rue Saint-Jacques au Globe 1767. En haut : "Veüe de Dijon du cotté de la venüe de Paris. Dessiné sur les lieüx par André Gambu arpent[eu]r juré du Roy, de Dijon".Lieu de conservation : Archives municipales, Dijon - Cote du document : 4 Fi 29 -
[1er projet de salle de spectacle de Cellerier à l'emplacement du couvent des jacobines, place Royale]. S.d. [1785].
[1er projet de salle de spectacle de Cellerier à l'emplacement du couvent des jacobines, place Royale]. Dessin (plume, lavis), s.n. [par Cellerier]. S.d. [1785]. Sans éch.- N° 1er. Ville de Dijon. Plan général de la Place royale sur le quel est indiqué et lavé en rouge le projet d’une salle de spectacle dans l’emplacement de l’ancien couvent des Dames Jacobines avec les rues qui envelopperont cette salle. 31 x 47 cm. (4 Fi 2869)- Ville de Dijon. Esquisse développée d’un projet de décoration de la Place royale suivant le plan n° 1er. 20,5 x 73,5 cm. (4 Fi 2888)Lieu de conservation : Archives municipales, Dijon - Cote du document : 4 Fi 2869, 4 Fi 2888 -
Ville de Dijon [plan de situation et de distribution de la salle de spectacle, dans l'axe de la place Royale (2e projet de Cellerier)]. S.d. [1786 ?].
Ville de Dijon [plan de situation et de distribution de la salle de spectacle, dans l'axe de la place Royale (2e projet de Cellerier)]. Dessin (plume, lavis), s.n. [par Cellerier]. S.d. [1786 ?]. 60 x 86, 5 cm, éch. de 30 toises (pour 22 cm).Lieu de conservation : Archives municipales, Dijon - Cote du document : 4 Fi 2879 -
[2e projet de salle de spectacle à l'emplacement du couvent des jacobines, par Cellerier : élévation]. S.d. [1786 ?].
[2e projet de salle de spectacle à l'emplacement du couvent des jacobines, par Cellerier : élévation]. Dessin (plume, lavis), s.n. [par Cellerier]. S.d. [1786 ?]. 47 x 59 cm, éch. de 12 toises.Lieu de conservation : Bibliothèque municipale, Dijon - Cote du document : L Est. 5027 AQ-I 1 -
Plan du terrain des Jacobines et projet de salle de spectacle. S.d. [1786 ?].
Plan du terrain des Jacobines et projet de salle de spectacle. Dessin (plume, lavis), s.n. [par Cellerier]. S.d. [1786 ?]. 57 x 84,5 cm, éch. de 30 toises (pour 22 cm).Lieu de conservation : Archives municipales, Dijon - Cote du document : 4 Fi 2871 -
Plan général de l’ancien couvent des dames jacobines [...] sur lequel est lavée en rouge plus foncée la masse d’une salle de spectacles [... 3e projet de Cellerier]. 5 décembre 1787.
Plan général de l’ancien couvent des dames jacobines, dont partie a été concédé à la ville de Dijon par arrêt du conseil du roi du 20 may 1786 et partie a été acquise par lad ville des créancier desdites dames en vertu du même arrêt, sur lequel est lavée en rouge plus foncée la masse d’une salle de spectacles dont l’emplacement a été arrêté par Mgr l’intendant en vertu de la délibération des Mrs les officiers municipaux du 29 9bre 1767 [3e projet de Cellerier]. Dessin (plume, lavis), par l’architecte Cellerier. Dijon le 5 décembre 1787. 70,5 x 49 cm, sans éch.Lieu de conservation : Archives municipales, Dijon - Cote du document : 4 Fi 2870 -
[3e projet de salle de spectacle par Cellerier à l'emplacement du couvent des jacobines, place Royale]. 5 décembre 1787.
[3e projet de salle de spectacle par Cellerier à l'emplacement du couvent des jacobines, place Royale]. Dessin (plume, lavis), s.n. [par Cellerier]. S.d. [1787].- [Plan du rez-de-chaussée (variante)]. 71,5 x 63,5 cm, éch. de 12 toises (pour 32,5 cm). (4 Fi 2875). (Un double existe : 4 Fi 2881).- [Plan du 1er balcon]. 71,5 x 64 cm, éch. de 12 toises (pour 32,5 cm). (4 Fi 2876). (Un double existe : 4 Fi 2886).- [Elévation]. Par l'architecte Cellerier. 49 x 68 cm, sans éch. (4 Fi 2883)Lieu de conservation : Archives municipales, Dijon - Cote du document : 4 Fi 2875, 4 Fi 2876, 4 Fi 2883 -
[Variante du 3e projet de salle de spectacle par Cellerier à l'emplacement du couvent des jacobines, place Royale]. S.d. [1787].
[Variante du 3e projet de salle de spectacle par Cellerier à l'emplacement du couvent des jacobines, place Royale]. Dessin (plume, lavis), s.n. [par Cellerier]. S.d. [1787].- Plan du rez de chaussée de la salle de spestacle [sic] projettée sur l’emplacement du terrain appartenant à la ville dont l’entrée est sur la Place royale. 83 x 63 cm, éch. de 20 toises (pour 40 cm). (4 Fi 2874)- Ville de Dijon. Plan des premières loges et partie des secondes. 64 x 63,5 cm, éch. de 16 toises (pour 32,2 cm). (4 Fi 2877)- Ville de Dijon. Plan des troisièmes loges. 65 x 63, 5 cm, éch. de 16 toises (pour 32 cm). (4 Fi 2880)- [Elévation]. 46 x 100 cm, éch. de 72 pieds (pour 24,2 cm). (4 Fi 2882)Lieu de conservation : Archives municipales, Dijon - Cote du document : 4 Fi 2874, 4 Fi 2877, 4 Fi 2880, 4 Fi 2882 -
[Projet de salle de spectacle par Cellerier]. S.d. [1803 ?].
[Projet de salle de spectacle par Cellerier]. Dessin (plume, lavis), s.n. [par Cellerier]. S.d. [1803 ?]. Inscription évoquant thermidor an 11 (juillet-août 1803).- [Plan au rez-de-chaussée]. 65,5 x 48, 5 cm, éch. de 12 toises (pour 24 cm). (4 Fi 2878)- Ville de Dijon. Coupe sur le longueur de la salle de spectacle. 55 x 85 cm, 1/100. (4 Fi 2792)- 3ème projet. Coupe sur le largeur de la salle de spectacle proposée pour la ville de Dijon. 45 x 57 cm, 1/100. (4 Fi 2793)Lieu de conservation : Archives municipales, Dijon - Cote du document : 4 Fi 2878, 4 Fi 2792, 4 Fi 2793 -
Projet d'un théâtre à construire dans l'église Saint-Jean, à Dijon [d'après Pierre Joseph Antoine]. S.d. [décennie 1800].
Projet d'un théâtre à construire dans l'église Saint-Jean, à Dijon [d'après Pierre Joseph Antoine]. Dessin imprimé, par P. L. Baudot, s.d. [décennie 1800]. Publié dans : Baudot, Pierre Louis. Sur le théâtre de Dijon. Paris : Impr. de Mme Huzard, 1809, folio 142. - [Plan]. Ech. de 120 pieds et 40 m. Mentions : "Antoine inv" et "La couleur brune désigne les constructions à conserver. Le rouge désigne les nouvelles constructions." - [Façade antérieure]. Mentions : "Antoine inv" et "Baudot del".Lieu de conservation : Bibliothèque municipale, Dijon - Cote du document : Ms. 1082 fol. 142 -
Principale façade du théâtre projeté sur le terrain de la Ste Chapelle de Dijon par Mr Antoine [...] S.d. [décennie 1800].
Principale façade du théâtre projeté sur le terrain de la Ste Chapelle de Dijon par Mr Antoine, ancien ingénieur en chef, membre de différentes académies. Dessin, par P. J. Antoine. S.d. [décennie 1800]. Ech. de 10 m. Mention : "Antoine delt et sculpt". Publié dans : Baudot, Pierre Louis. Sur le théâtre de Dijon. Paris : Impr. de Mme Huzard, 1809, folio 143.Lieu de conservation : Bibliothèque municipale, Dijon - Cote du document : Ms.1082 fol. 143 -
Etendue superficielle de plusieurs théâtres. S.d. [décennie 1800].
Etendue superficielle de plusieurs théâtres. Dessin (plume, lavis), s.n. S.d. [décennie 1800]. Ech. de 300 pieds et 100 m. Publié dans : Baudot, Pierre Louis. Sur le théâtre de Dijon. Paris : Impr. de Mme Huzard, 1809, folio 144.De gauche à droite et de haut en bas : Odéon de Paris, Bordeaux et Lyon sur la 1re ligne, Besançon, Autun et projet dans l'église Saint-Jean de Dijon sur la 2e ligne, ancienne Comédie et projet à l'emplacement de la Sainte-Chapelle à Dijon sur la 3e ligne.Lieu de conservation : Bibliothèque municipale, Dijon - Cote du document : Ms. 1082 fol. 144 -
Projet d'une salle de Comédie pour la ville de Dijon, [par E. Cailliet]. 1806-1807.
Projet d'une salle de Comédie pour la ville de Dijon. Dessin (plume, lavis), par E. Cailliet. Chalon-sur-Saône 1806-1807.- Coupe sur la longueur. 26 décembre 1806. Echelles de 5 toises et de 10 m. (L Est. BA-III 2)- Coupe sur le travers. 12 janvier 1807. Echelles de 4 toises et de ? m. (L Est. BA-III 3)- [Elévation]. 26 décembre 1806. Echelles de 5 toises et de 10 m. (L Est. BA-III 1)Lieu de conservation : Bibliothèque municipale, Dijon - Cote du document : L Est. BA-III 1 à 3 -
[Projet pour le théâtre de Dijon, par Saint-Père]. 1807.
[Projet pour le théâtre de Dijon]. Dessin (plume, lavis), par Saint-Père. 1807.Lieu de conservation : Bibliothèque municipale, Dijon - Cote du document : L Est. BA-III 4 -
Salle de spectacle de Dijon projetée sur la place St Etienne. 26 janvier 1810.
Salle de spectacle de Dijon projetée sur la place St Etienne. Dessin sur calque, s.n. [par l'architecte Cellerier]. 26 janvier 1810. Echelle de 12 toises.- Plan du rez-de-chaussée.- 1er étage.- Plan du second et troisième étage.- Coupe sur la longueur de la salle.- Coupe sur la largeur de la salle de spectacle projetée pour la ville de Dijon.- Elévation principale de la salle de spectacle à construire à Dijon, sur la place St Etienne.- Elévation de derrière de la salle.- Salle de spectacle de Dijon. Elévation latérale.Accès internet : https://www.inha.fr/fr/ressources/outils-documentaires/conseil-des-batiments-civils-conbavil/interroger-conbavil.html (fiche détaillée n° 15360, rapport du 26 janvier 1810) -
Esquisse de la vue-perspective du théâtre de Dijon. 1811.
Esquisse de la vue-perspective du théâtre de Dijon. Dessin imprimé (gravure en taille douce coloriée), gravé par Caumont d'après un dessin de Cellerier. 1811. 14 x 20 cm.Lieu de conservation : Bibliothèque municipale, Dijon - Cote du document : L Est. AQ-I 9 -
Théâtre de Dijon, terminé le 4 novembre 1828 par les soins et sous la Mairie de Mr le Marquis de Courtrivon. S.d. [19e siècle].
Théâtre de Dijon, terminé le 4 novembre 1828 par les soins et sous la Mairie de Mr le Marquis de Courtrivon. Dessin (gravure), par F. Bourjat. S.d. [19e siècle]. Lith. Noëllat Fils. 24,5 x 32 cm.Lieu de conservation : Archives municipales, Dijon - Cote du document : 14 Fi 139 -
Salle de spectacle. Dessin de la rampe d'escalier à placer sur le limon du perron du bâtiment des acteurs. 24 août 1831.
Salle de spectacle. Dessin de la rampe d'escalier à placer sur le limon du perron du bâtiment des acteurs. Dessin (plume, lavis), par le voyer Papinot. Dijon le 24 août 1831. 20 x 33 cm, 1/25.Lieu de conservation : Archives municipales, Dijon - Cote du document : 4 M 7/6 -
Projet de candélabre à exécuter en fonte pour la salle de spectacle. 24 août 1831.
Projet de candélabre à exécuter en fonte pour la salle de spectacle. Dessin (plume), par le voyer Papinot. Dijon le 24 août 1831. 34 x 20,5 cm, éch. d'un pouce par pied.Lieu de conservation : Archives municipales, Dijon - Cote du document : 4 M 7/6 -
[Lustre pour la salle]. S.d. [1838].
[Lustre pour la salle]. Dessin sur calque collé sur papier (crayon de papier), s.n. [par la Manufacture d'Appareils pour l'Eclairage au Gaz de Lacarrière, 6 rue Neuve Saint-Laurent à Paris ?]. S.d. [1838]. 41 x 26 cm, éch. de 6 pieds.Lieu de conservation : Archives municipales, Dijon - Cote du document : 4 M 7/9 -
Projet d'établissem[e]nt d'un magasin de décors dans le fond de la halle aux blé. 21 mai 1846.
Projet d'établissem[e]nt d'un magasin de décors dans le fond de la halle aux blé. Dessin (plume), par l'architecte voyer Papinot. Dijon le 21 mai 1846. 41 x 23 cm, 1/100.Lieu de conservation : Archives municipales, Dijon - Cote du document : 4 M 7/14 -
Ville de Dijon. Restauration du théâtre. 28 mai 1855.
Ville de Dijon. Restauration du théâtre. Dessin (plume, lavis), par les architectes Suisse et Scheffer. Dijon le 28 mai 1855.- Ville de Dijon. Restauration et appropriation nouvelle du théâtre. Plans. 68 x 53 cm, 1/100. (4 Fi 722).- Plan du plafond. 26 mai 1855. 57 x 44,5 cm, 1/50. (4 Fi 721).- Coupe de la face opposée à la scène. 44,5 x 57 cm, 1/50. (4 Fi 723).Lieu de conservation : Archives municipales, Dijon - Cote du document : 4 Fi 721-723 -
Construction d'un magasin pour les décors du théâtre. 1er juillet 1896.
Construction d'un magasin pour les décors du théâtre. Dessin (tirage, lavis), par l'architecte de la ville [illisible]. Dijon le 1er juillet 1896. 1/100.- Plan d’ensemble. 44 x 72 cm.- Façade sur le boulevard [et] Coupe sur AB du plan. 40 x 73,5 cm.Lieu de conservation : Archives municipales, Dijon - Cote du document : 4 M 7/14 -
536. - Dijon. Théâtre municipal. S.d. [1er quart 20e siècle, après 1903].
536. - Dijon. Théâtre municipal. Carte postale, s.n. S.d. [1er quart 20e siècle, après 1903]. L. V. éd.Lieu de conservation : Archives municipales, Dijon - Cote du document : 6 Fi 651 -
Affiche pour la Dame aux Camélias, avec Sarah Bernhardt, le 13 octobre 1909.
Affiche pour la Dame aux Camélias, avec Sarah Bernhardt, le 13 octobre 1909.Lieu de conservation : Archives municipales, Dijon - Cote du document : 5 R -
Gd Théâtre municipal de Dijon. Programme officiel. Saison 1910-1911.
Gd Théâtre municipal de Dijon. Programme officiel. Saison 1910-1911. Dessin imprimé, par Brigodiot. 1910. Ed. La Société fermière de Programmes officiels (80 rue de la Liberté, Dijon). Couverture du programme de la saison 1910-1911.Lieu de conservation : Archives municipales, Dijon - Cote du document : 5 R 1 -
Ville de Dijon. Relevé du théâtre municipal. 1933.
Ville de Dijon. Relevé du théâtre municipal. Dessin sur calque (crayon de papier, lavis), s.n. 1933. 1/50.- Plan du 1er étage de la salle. 7. Dijon le 17 mars 1933. 60 x 59,5 cm. (53 Fi 372)- Plan de la 1ère galerie. 28 bis. S.d. 62 x 85,5 cm, 1/20. (53 Fi 373)- Plan du 2ème étage. 8. Dijon le 27 mars 1933. 63,5 x 63 cm. (53 Fi 374)- Plan du 3ème étage de la salle. Dijon le 10 avril 1933. 61 x 73,5 cm. (53 Fi 375)Lieu de conservation : Archives municipales, Dijon - Cote du document : 53 Fi 372-375 -
Ville de Dijon. Théâtre municipal. Plafond. Dessous premier balcon [coupe]. 18 juillet 1935.
Ville de Dijon. Théâtre municipal. Plafond. Dessous premier balcon [coupe]. Dessin sur calque (crayon de papier), par l'architecte de la ville Eugène [illisible]. Dijon le 18 juillet 1935. 38 x 60 cm, 1/10.Lieu de conservation : Archives municipales, Dijon - Cote du document : 53 Fi 371 -
Ville de Dijon. Théâtre municipal. Plafond de la salle. S.d. [1935 ?].
Ville de Dijon. Théâtre municipal. Plafond de la salle. Dessin sur calque (crayon de papier), s.n. S.d. [1935 ?]. 56 x 49,5 cm, sans éch.Lieu de conservation : Archives municipales, Dijon - Cote du document : 53 Fi 370 -
Théâtre municipal de Dijon. Plan de la 3e galerie et de son amphithéâtre. 24 septembre 1935.
Théâtre municipal de Dijon. Plan de la 3e galerie et de son amphithéâtre. Dessin sur calque (crayon de papier), s.n. 24 septembre 1935. 65 x 104 cm, 1/20.Lieu de conservation : Archives municipales, Dijon - Cote du document : 53 Fi 376 -
Dijon-Spectacles [programme officiel du théâtre municipal]. 1937.
Dijon-Spectacles [programme officiel du théâtre municipal]. Dessin imprimé, par G. Saby. 1937. Couverture du programme de la saison 1937-1938.Lieu de conservation : Archives municipales, Dijon - Cote du document : 5 R 1 -
Grand Théâtre de Dijon. Programme officiel. 24 novembre 1945.
Grand Théâtre de Dijon. Programme officiel. Dessin imprimé, par Asselineau. 2 novembre 1945. Ed. Avenir Publicité. Couverture du programme de la saison 1945-1946.Lieu de conservation : Archives municipales, Dijon - Cote du document : 5 R 1 -
Théâtre de Dijon. Plan de la scène. S.d. [1953 ?].
Théâtre de Dijon. Plan de la scène. Dessin sur calque (crayon de papier), s.n. S.d. [1953 ?]. 60 x 71 cm, 1/33.Lieu de conservation : Archives municipales, Dijon - Cote du document : 53 Fi 378 -
Ville de Dijon. Projet de surélévation de la scène du théâtre municipal. Plan du 4ème étage. 6 EX 7. S.d. [1953 ?].
Ville de Dijon. Projet de surélévation de la scène du théâtre municipal. Plan du 4ème étage. 6 EX 7. Dessin sur calque (crayon de papier, lavis), s.n. S.d. [1953 ?]. 65 x 66 cm,1/50.Lieu de conservation : Archives municipales, Dijon - Cote du document : 53 Fi 377 -
Avant projet d'un magasin de décors du théâtre [21 bis avenue de Marbotte]. 26 mai 1961.
Avant projet d'un magasin de décors du théâtre [21 bis avenue de Marbotte]. Dessin (tirage), s.n. Dijon le 26 mai 1961. 43,5 x 69,5 cm, 1/200.Lieu de conservation : Archives municipales, Dijon - Cote du document : 4 M 7/13-15 -
Magasin de décors du théâtre [21 bis avenue de Marbotte]. 1961-1962.
Magasin de décors du théâtre [21 bis avenue de Marbotte]. Dessin (tirage bleu, crayon de couleur), s.n., Georges Gendrot architecte en chef de la ville et J.-F. Devalière architecte. Dijon le 1er juillet 1961.- Plan de situation. BMS. Par le service du plan. Août 1960. 63 x 61 cm, 1/10 000.- Plan de masse. BMM. Modifié le 5 décembre 1962. 30 x 40 cm, 1/500.- Façades et coupes. BM Fc. Modifié le 5 décembre 1962. 61 x 111 cm, 1/100.- Rez de chaussée. Premier étage. BMp. Modifié le 5 décembre 1962. 54 x 124,5 cm, 1/100.- Toiture. BMt. 51,5 x 97 cm, 1/100.Lieu de conservation : Archives municipales, Dijon - Cote du document : 4 M 7/13-15 -
[Photographies de l'intérieur du théâtre avant et pendant la rénovation de 1970]. S.d. [1969-1970].
[Photographies de l'intérieur du théâtre avant et pendant la rénovation de 1970]. Photographie, s.n. S.d. [1969-1970]. Tirages noir et blanc.Lieu de conservation : Archives municipales, Dijon - Cote du document : Versement 1780 W 9 (24/97). [1970-1978] -
Rénovation du théâtre municipal. 8 décembre 1969.
Rénovation du théâtre municipal. Dessin (tirage), par J.-F. Devalière architecte en chef de la Ville et M. Grangy architecte adjoint. Dijon le 8 décembre 1969.- Sous-sol. T 32 00. 65 x 91 cm, 1/50.- Orchestre. T 32 01. 70,5 x 109,5 cm, 1/50.- 1ère galerie. T 32 02. 65 x 109,5 cm, 1/50.- 2ème galerie. T 32 03. Par P.C. 64,5 x 109,5 cm, 1/50.- 3ème galerie. T 32 04. 65 x 109,5 cm, 1/50.- Plan et coupes du foyer. T 32 05. Par J.H. 56 x 81 cm, 1/50.- Coupe longitudinale. T 32 06. 40,5 x 72 cm, 1/100.- Coupe transversale et coupes partielles. T 32 07. 61,5 x 81 cm, 1/50 et 1/20. (Existe en version scannée).- Plafond de la salle. T 32 08. Par P.C. 58,5 x 51 cm, 1/50. [Existe aussi sur calque : 53 Fi 370]- Orchestre. Implantation des fauteuils. T 32 20. Par P.C. 66 x 120 cm, 1/20.- 1ère galerie. Implantation des fauteuils. T 32 21. Par P.C. 67,5 x 120 cm, 1/20.- 2ème galerie. Implantation des fauteuils. T 32 22. Par P.C. 64,5 x 122 cm, 1/20.- 3ème galerie. Implantation des fauteuils. T 32 23. Par P.C. 64 x 129,5 cm, 1/20. - Banques des vestiaires. Détail. T 32 D01. Par P.C. 65,5 x 105 cm, 1/10 et 1/20.- Bar. Détail. T 32 D05. Par M.M. 45 x 97 cm, 1/50.- Rideaux. Détail. T32 D06. 35 x 103 cm, 1/50.Lieu de conservation : Archives municipales, Dijon - Cote du document : Versement 1373 W 24 (28/92) -
Services techniques de la ville de Dijon, direction Architecture Bâtiments Ateliers. Place du théâtre (théâtre municipal). Bâtiment A. 18 décembre 1969.
Services techniques de la ville de Dijon, direction Architecture Bâtiments Ateliers. Place du théâtre (théâtre municipal). Bâtiment A. Dessin sur calque (tirage), par Artec. 18 décembre 1969. 1/50 et 1/1 000 (plan de situation).- Sous-sol. Plan d’ensemble. 104. 59,5 x 145 cm. (26 Fi 238).- Rez-de-chaussée. Plan d’ensemble. 105. 57,5 x 155 cm. (26 Fi 239).- 1ère galerie. Plan d’ensemble. 106. 59,5 x 133 cm. (26 Fi 240).- 2ème galerie. Plan d’ensemble. 107. 59,5 x 138 cm. (26 Fi 241).- 3ème galerie. Plan d’ensemble. 108. 57 x 133,5 cm. (26 Fi 242).- Com[b]les. Vue en plan. 113. 46 x 105,5 cm. (26 Fi 243).- Coupe transversale. 119. (Plan scanné).- Coupe transversale de la scène. 120. (Plan scanné).Lieu de conservation : Archives municipales, Dijon - Cote du document : 26 Fi 238-243 -
Théâtre municipal de Dijon [plan de repérage des places]. S.d. [1970 ?].
Théâtre municipal de Dijon [plan de repérage des places]. Dessin imprimé, s.n. S.d. [1970 ?]. 44 x 50,5 cm, sans éch.Lieu de conservation : Archives municipales, Dijon - Cote du document : Versement 1780 W 9 (24/97). [1970-1978].
-
Base Conbavil. Dépouillement analytique des procès-verbaux des séances du Conseil des Bâtiments civils (1795-1840).
Base Conbavil. Dépouillement analytique des procès-verbaux des séances du Conseil des Bâtiments civils (1795-1840). Base accessible sur le site de l'Institut national d'Histoire de l'Art : https://www.inha.fr/fr/ressources/outils-documentaires/conseil-des-batiments-civils-conbavil.html
-
Baudot, Pierre Louis. Sur le théâtre de Dijon. 1809.
Baudot, Pierre Louis. Sur le théâtre de Dijon. Paris : Impr. de Mme Huzard, 1809. In 8° : ill. ; 24 cm.Lieu de conservation : Bibliothèque municipale, Dijon - Cote du document : Ms.1082 (fol. 128-147) -
Bazin, Jean-François. Le tout Dijon. 2003.
Bazin, Jean-François. Le tout Dijon. Dijon : Editions Cléa, 2003. 966 p. : ill. ; 23 cm. -
Chabeuf, Henri. Dijon. Monuments et souvenirs, 1894.
Chabeuf, Henri. Dijon. Monuments et souvenirs. Dijon : Damidot, 1894. In-4°. -
Degroise, Marie-Hélène ; Doussot, Joëlle. La vie musicale et théâtrale à Dijon au temps de Mozart. 1992.
Degroise, Marie-Hélène ; Doussot, Joëlle. La vie musicale et théâtrale à Dijon au temps de Mozart. Association pour le Renouveau du Vieux Dijon. Bulletin de liaison, n° 4, 2e trimestre 1992, p. 17-28. -
Giroux, Henri. Le théâtre de Dijon au XVIIIe siècle. 1973-1975.
Giroux, Henri. Le théâtre de Dijon au XVIIIe siècle. Mémoires de l'Académie des Sciences, Arts et Belles-Lettres de Dijon, t. CXXII, 1973-1975, p. 177-203. : ill. -
Hugonnet-Berger, Claudine ; Maulmin, Pascale de ; Sonnet, Bernard. Théâtres en Bourgogne : architectures du spectacle 1800-1940. 1996.
Hugonnet-Berger, Claudine ; Maulmin, Pascale de ; Sonnet, Bernard. Théâtres en Bourgogne : architectures du spectacle 1800-1940 / Service régional de l'Inventaire général, Direction régionale des Affaires culturelles de Bourgogne ; photogr. Michel Rosso ; carte Alain Morelière. Dijon : Direction régionale des Affaires culturelles, 1996. 28 p. : ill. ; 23 cm. (Itinéraires du Patrimoine ; 124). -
Jolimont, T. de. Description historique et vues pittoresques des monuments les plus remarquables de Dijon, 1830.
Jolimont, T. de. Description historique et vues pittoresques des monuments les plus remarquables de Dijon. Paris : impr. A. Barbier, 1830. -
Milsand, Philibert. Notes et documents pour servir à l'histoire du théâtre de Dijon du 4 novembre 1828 au 25 avril 1887. 1888.
Milsand, Philibert. Notes et documents pour servir à l'histoire du théâtre de Dijon du 4 novembre 1828 au 25 avril 1887. Mémoires de la Société bourguignonne de Géographie et d'Histoire, t. IV, 1888, p. 139-312. -
Rabreau, Daniel. Apollon dans la ville. Essai sur le théâtre et l’urbanisme à l’époque des Lumières. 2008.
Rabreau, Daniel. Apollon dans la ville. Essai sur le théâtre et l’urbanisme à l’époque des Lumières. Paris : Éditions du patrimoine – Centre des monuments nationaux, 2008. 224 p. : ill. ; 28 cm. (Temps & espace des arts) -
Richard, Jean. Les projets de Cellerier pour la construction d'une salle de spectacle à Dijon, 1787-1788. 1958.
Richard, Jean. Les projets de Cellerier pour la construction d'une salle de spectacle à Dijon, 1787-1788. Mémoires de la Commission des Antiquités de la Côte-d'Or, t. XXIV, 1958, p. 257-267 : ill. -
Théâtre - Dijon. Dossier de protection au titre des Monuments historiques. 1974.
Théâtre - Dijon. Dossier de protection au titre des Monuments historiques. 1974.Lieu de conservation : Conservation régionale des monuments historiques, Dijon - Cote du document : Dossier de protection -
Trehorel, Clothilde. Le théâtre de Dijon de 1789 à 1810. 1999.
Trehorel, Clothilde. Le théâtre de Dijon de 1789 à 1810. Dijon : Université de Bourgogne, octobre 1999. Pagination multiple : ill. ; 30 cm. Maîtrise d'Histoire moderne sous la dir. de Mme Lamarre. -
Ville de Dijon. Histoire du Théâtre Municipal. 1986.
Ville de Dijon. Histoire du Théâtre Municipal. Dijon : Ville de Dijon, Direction des Affaires culturelles, 1986. [4 p.] : ill. ; 21 cm.
À voir
Informations complémentaires
Texte publié dans la collection des Itinéraires du Patrimoine : Hugonnet-Berger, Claudine ; Maulmin, Pascale de ; Sonnet, Bernard. Théâtres en Bourgogne : architectures du spectacle 1800-1940. Dijon : Direction régionale des Affaires culturelles, 1996, p. 18-20 : ill. (itinéraires du patrimoine ; 124).
De l'avis de l'historien dijonnais T. de Jolimont, l'ancienne « Salle de la Comédie », qui n'était autre qu'un jeu de paume devenu salle de spectacle en 1743, était « incommode, sans ornements et sans aucune espèce de dignité ». Le cartouche ailé et encadré de palmes, autrefois peint aux armes de France, qui signalait l'entrée de la cour de la Comédie est encore visible rue Buffon (n° 8 bis).
Le projet d'édifier un théâtre dont la Ville puisse s'enorgueillir naquit à la veille de la Révolution, mais difficultés et hésitations prolongèrent les débats jusqu'en 1807 : cette année-là, la municipalité fit à nouveau appel à Jacques Cellerier, auteur, entre 1785 et 1787, de trois projets demeurés sans suite. Sa ville natale allait enfin approuver son quatrième projet, daté du 20 septembre 1809. En août 1811, près d'un an après le début des travaux, l'architecte adjudicataire de la construction interrompit le chantier, la municipalité tardant trop à le payer. La conjoncture historique, défavorable, prolongera cette interruption jusqu'en 1819 : J. Cellerier étant mort entre temps, la Ville confia à J.-A. Alavoine le soin de modifier le projet jugé « incomplet et défectueux ». Pour des raisons d' « harmonie avec l'intérieur », Alavoine envisagea de supprimer les colonnes prévues en façade : le refus catégorique de la municipalité provoqua la démission de l'architecte. Son confrère Vallot, lui aussi originaire de Dijon, prit la relève et se contenta d'adapter des « dispositions intérieures nouvelles sur les fondations existantes » et modifia la courbe du plan des galeries afin d'améliorer la vision des spectateurs. Après l'approbation du projet, le 24 novembre 1821, et l'adjudication des travaux, le chantier reprit en 1822 pour s'achever en 1828. La Municipalité fit le choix du 4 novembre, jour de la fête du roi, pour inaugurer enfin son théâtre.
La colonnade formant portique, prévue par Cellerier dès 1785, s'apparente à celle du Grand-Théâtre de Bordeaux édifié par V. Louis en 1773-80. Spectateur de la première heure, T. de Jolimont écrivait en 1830 : « L'intérieur est garni de trois étages de loges, d'un rang de baignoires, d'une galerie et d'un amphithéâtre, d'un parterre spacieux et d'un parquet de huit rangs de stalles... au-dessus du vestibule d'entrée, soutenu par des colonnes, on trouve au niveau des premières loges un magnifique foyer qui occupe toute l'étendue de la principale façade, richement décoré de pilastres et corniches corinthiennes... » Ph. Milsand raconte que le parterre, sans sièges, disposait d'un grand poêle en fonte où l'on faisait souvent cuire marrons et pommes de terre. Un lustre à 51 becs, garni de cristaux, éclairait la salle : comme l'ensemble du mobilier, il avait été commandé à J.-J. Werner, décorateur et fabricant de meubles du roi. La rampe comptait 36 quinquets et l'orchestre disposait de 34 lampes.
Pour la machinerie de la scène et ses décors (palais grec, temple circulaire, prison, palais gothique...), la Ville avait fait appel à P.-L.-Ch. Ciceri et son associé A.-M. Lebe-Gigun. peintres-décorateurs parisiens. Ciceri avait acquis une grande renommée en peignant nombre de décors pour la Comédie-Française, l'Opéra de la rue de Richelieu (fermé en 1821) puis l'Opéra de la rue Le Pelletier. Contrairement à toute attente, ses travaux au théâtre de Dijon s'arrêtèrent là : à la suite d'un marché « mystérieusement conclu » avec le maire, il incomba aux frères Moench, peintres-décorateurs à Paris, d'exécuter le rideau peint d'avant-scène et les ornements de la salle. Le 26 mai 1855, les architectes dijonnais Suisse et Scheffer présentèrent un « devis des travaux nécessaires pour modifier les diverses places de la salle, changer la forme du plafond et remettre cette salle à neuf ». Ces remaniements impliquèrent la réfection complète de l'ornementation, confiée au peintre-décorateur parisien Charles Cambon dont la renommée atteignait celle de son maître Ciceri. Pour la « coupole mi-plate » substituée au plafond de la salle, l'artiste réalisa un décor en trompe-l'oeil, créant l'illusion d'un jardin bordé d'une balustrade et de sculptures (angelots tenant le portrait d'un compositeur ou d'un auteur dramatique). Le nouveau rideau, la peinture allégorique du plafond d'avant-scène, et quelques décors supplémentaires nécessaires aux spectacles seront également l'oeuvre de Cambon. Depuis l'installation de l'électricité en 1900 jusqu'à la rénovation complète du théâtre en 1969, la salle connaîtra divers remaniements dictés par les nécessités du progrès et du confort.
Devis conditionnel et cahier des charges pour la construction d'une Salle de Spectacles sur la place Saint-Etienne, en la Ville de Dijon.
Devis conditionnel des travaux de maçonnerie, charpente, couverture, plomberie, serrurerie, menuiserie, vitrerie, peinture, marbrerie et autres, à faire pour la construction d'une Salle de Spectacles, sur la place Saint-Etienne, dans la Ville de Dijon, dressé conformément aux plans, coupes, élévations, annexés audit Devis.
DESCRIPTION.
La nouvelle Salle sera établie sur une partie de l'emplacement de la Sainte-Chapelle démolie, et des maisons adjacentes. Elle sera isolée, et donnera sur la place Saint-Etienne, où sera sa principale entrée, ainsi que sur les rues de Lamonnoie, du Secret, et la promenade proposée.
Sa masse, ainsi qu'elle est indiquée au plan général, aura vingt-deux mètres six centimètres de largeur, sur cinquante-neuf mètres quarante-deux centimètres de longueur.
La face principale sera décorée d'un péristile de huit colonnes de l'ordre corinthien, avec entablement régulier surmonté d'un attique qui régnera, ainsi que l'entablement, au pourtour du monument ; les faces seront percées d'arcades, tant au rez de chaussée qu'au premier étage.
Le comble sera couvert en ardoises dans toute sa superficie, avec chéneaux régnans, au pourtour, dans l'intérieur.
Un vestibule, également orné de colonnes de l'ordre dorique, précédera la salle, et conduira aux deux escaliers qui desserviront les trois étages des loges.
Un troisième escalier, prenant du rez de chaussée, montera jusqu'aux troisièmes loges, et aura son entrée particulière par un petit vestibule.
L'intérieur de la salle sera composé de trois étages de loges, avec une disposition telle au-dessous des premières loges, qu'on puisse au besoin pratiquer et placer un rang de baignoires dans le pourtour du parterre. Au fond des troisièmes loges, sera un amphithéâtre de huit rangs de banquettes : la voussure au-dessus de l'amphithéâtre sera disposée de telle sorte qu'on puisse y pratiquer des petites loges.
La salle sera ornée de colonnes arabesques dans son pourtour jusqu'à l'avant-scène qui sera formée par quatre colonnes corinthiennes, couronnées d'un entablement qui régnera au pourtour de la salle. Le plafond sera en voussure, et ouvert dans le centre pour le passage du lustre.
Le théâtre sera disposé de manière à recevoir huit rues de trappes, depuis l'avant-scène jusqu'au mur du fond, qui le séparera des loges d'acteurs.
Un seul dessous occupera la superficie dudit théâtre pour le jeu des chariots et des treuils.
Il sera établi un pont, de chaque côté, pour le service des machines et des plafonds ; il sera pratiqué un plancher à claire-voie, sur les entraits, pour le même service.
Dans l'extrémité de l'édifice seront distribués au rez de chaussée le logement du concierge et un café, avec caves au-dessous. A la hauteur du théâtre sera d'un côté le foyer des acteurs, et de l'autre un magasin pour le service du théâtre. Dans les étages supérieurs seront placées les loges des acteurs, lesquelles seront desservies par un escalier qui conduira des caves au plancher supérieur du théâtre.
CONSTRUCTIONS.
CHAPITRE 1er.
Fouille des terres.
Sera faite la fouille des terres pour les fondations des quatre murs de face, à 1 mètre 95 centimètres de profondeur, où l'on suppose que se trouvera le terrain solide, sur 1 mètre 16 centimètres de largeur.
La fouille des murs qui doivent porter les colonnes du péristile aura 1 mètre 95 centimètres de hauteur, sur 1 mètre 84 centimètres de largeur.
La fouille des murs de refend aura la même profondeur, sur 97 centimètres de largeur.
La superficie du théâtre sera fouillée à 5 mètres 20 centimètres plus bas que le sol de la rue, et celle des caves sous le café et le logement du concierge, sera descendue à la même profondeur. La fouille des murs de face et de refend, dans les parties de l'édifice, sera à 50 centimètres au-dessous du sol des caves.
Sera faite la fouille des terres des fosses d'aisance, selon les dimensions indiquées sur le plan.
Les terres provenantes desdites fouilles seront conduites, hors de la porte Guillaume, au lieu du dépôt fixé par la Mairie.
Dans le cas où la mauvaise qualité du terrain exigeroit de descendre les fondations à une plus grande profondeur, il en sera pris attachement par l'Inspecteur chargé de suivre les travaux, pour en être tenu compte à l'Entrepreneur, sur l'estimation qui en sera faite d'avance.
CHAPITRE II.
Maçonnerie.
Qualité des matériaux.
La pierre dure sera tirée des carrières dites des Chartreux,
Les chapiteaux seront en pierre d'Asnières, bien choisie, ainsi que les modillons et rosaces de la corniche.
L'entablement sera fait en pierre la mieux choisie, et la plus égale de couleur, suivant les profils qui seront donnés par l'Architecte ; les joints de la simaise seront en mastic.
L'attique qui surmonte ledit entablement sera en pierre dans toute sa hauteur, tant sur la face principale que sur les deux retours.
Les caissons formés par les retours de l'architrave seront également en pierre dure, ainsi que la voûte qui occupera les cinq entrecollemens du milieu : les rosaces seront en pierre d'Asnières.
Les cinq marches qui, du sol du pavé, montent au péristile, seront dans leurs pourtours en pierre dure éprouvée à la gelée, taillées à la boucharde et posées à recouvrement sur un massif en maçonnerie de moellons et mortier : les joints seront garnis en mastic.
Le palier sera en dalles de même pierre.
Les murs de refend, formant les distributions intérieures de la salle, des foyers, magasins et loges d'acteurs, seront construits en maçonnerie de moellons, hourdés en mortier de chaux et sable, suivant les dimensions cotées aux plans. Les parties formant lits et les piédroits des portes principales seront également en pierre, ainsi que les parpaings qui doivent porter les pans de bois.
Les tuyaux des cheminées seront construits en brique de la meilleure qualité.
Les colonnes et pilastres du vestibule d'entrée, au rez de chaussée, seront de l'ordre dorique, et construites en pierre choisie, proprement taillée et layée.
Les marches montantes au parterre seront aussi en pierre, ainsi que les deux premières marches des escaliers.
Le pavement du vestibule sera fait en dalles de 8 centimètres d'épaisseur, posées sur un massif de moellons et mortier.
Légers ouvrages.
Seront faits les scellemens des entraits, solives, plateforme et autres pièces de bois portant sur les murs.
Les planchers du foyer public, du magasin au-dessus, du vestibule au-dessous et des corridors des loges, seront faits avec aire en bardeau pour porter le parquet et les carreaux, et plafonnés en plâtre. Les plafonds seront ornés de corniches dans le foyer et le vestibule, suivant les profils qui seront donnés par l'Architecte.
Les rampes des escaliers seront plafonnées, ainsi que les paliers et les planchers supérieurs.
Les corridors, le magasin au-dessus du vestibule et les gardes-robes seront carrelés en grands carreaux de terre cuite à six pans.
Les cloisons des corridors, des cabinets et autres petites pièces, seront hourdées et enduites en plâtre.
Sera fait le scellement des lambourdes du parquet du foyer public, avec aujets.
Les loges des acteurs, leur foyer, le magasin, les logemens du concierge et du limonadier seront plafonnés sans corniche, avec aire, et carrelés en carreaux de terre cuite du grand moule, ainsi que les corridors et paliers de l'escalier.
Seront faits les âtres des cheminées en grands carreaux carrés de terre cuite, et les contre-coeurs en brique.
Les cloisons de distribution des loges et autres pièces seront en briques sur champ, enduites des deux côtés.
Les murs dans le pourtour des corridors et des pièces de distribution seront enduits en plâtre.
Seront faits en plâtre tous les scellemens des pattes, gonds et gâches, plaques des cheminées, et autres nécessaires pour la construction et pour la pose des portes, croisées, chambranles et autres pièces de menuiserie.
Les chausses d'aisances à prendre depuis les voûtes des fosses d'aisances jusqu'aux derniers sièges, seront en boisseaux de terre cuite, bien vernissés, et enduits en plâtre.
CHAPITRE III.
Charpente.
Les bois qui seront employés pour la construction de la charpente seront sains, sans aubier, ni noeuds vicieux, proprement taillés et assemblés suivant les règles de l'art, et toisés aux us et coutume du pays. Il sera employé des bois de sapin pour les principales pièces du comble.
Le comble sera formé de douze fermes entières et de fermes de croupe.
Chaque ferme sera composée d'un entrait de 3o centim. à 35 centimètres de gros ; deux arbalétriers de 19 centimètres 325 millimètres ; deux sous-arbalétriers de 19 centimètres à 27 centimètres ; un faux entrait de 19 centimètres à 25 ; un poinçon de 19 centimètres à 25 ; deux esseliers de 16 centimètres à 19 ; deux clefs pendantes de 19 à 22 centim., et deux blochets de 19 à 22 centimètres.
Les pannes auront 19 centimètres sur 19 centimètres ; le faîtage 19 centimètres et 22 centimètres ; les esseliers de 16 et 19 centimètres ; les plates-formes de 11 et 33 centim., et les chevrons de 8 et 11 centimètres.
Les solives du plancher supérieur de la salle seront assemblées dans les lambourdes appliquées aux entraits, et retenues par des boulons et des étriers.
Les solives des planchers des loges seront assemblées dans les courbes qui portent les devantures.
Les planchers du vestibule et du foyer public seront composés de solives d'enchevêtrures, chevêtres et linçoirs dans lesquels s'assemblent les solives de remplissage.
Les pans de bois des corridors de la salle, composés de poteaux et linteaux feuillés, et sablières au-dessus portant plancher.
Les escaliers seront composés de limons en bois, refaits sur toutes faces, avec moulures sur les arêtes.
Les marches seront de bois de chêne sain, sans aubier, quarderonnées sur l'arête, et entaillées dans le limon.
Les cintres des caves seront fournis par le charpentier, et seront comptés comme étaies.
Tous les échafauds pour la construction de ladite salle seront fournis par le charpentier, et seront comptés comme étaies, dont il sera pris attachement par l'Inspecteur chargé de suivre les travaux.
Tous lesquels ouvrages de charpente bien et dûment exécutés suivant les règles de l'art.
CHAPITRE IV.
Couverture.
Sera couvert en ardoise de la meilleure qualité des carrières d'Angers, pesant 20 à 22 kilogrammes du cent, clouée sur volige de peuplier ou autre bois blanc, de 14 à 16 c. de large et de 14 à 16 millimètres d'épaisseur. Chaque volige sera arrêtée par trois clous sur chaque chevron, et espacée de 4 centimètres l'une de l'autre. Chaque ardoise sera arrêtée sur la volige par deux ou trois clous, avec paveau de 11 centimètres.
Le comble sera garni de huit lucarnes des dimensions portées aux plans. L'Entrepreneur sera chargé de préparer les pentis pour la pose des plombs.
Tous lesquels ouvrages de couverture exécutés suivant les règles de l'art.
CHAPITRE V.
Plomberie.
Le plomb qui sera employé pour les faîtages, chéneaux, noues, arêtiers, etc. ... sera laminé, doux, sans gersures ni soufflures : celui des faîtages aura 3 millim. d'épaisseur ; celui des chéneaux, 4 millimètres, posé à recouvrement et sans soudures ; les noquets pour les lucarnes auront 1 millimètre 2/3 d'épaisseur : le tout des superficies indiquées au devis estimatif. L'Entrepreneur ne pourra faire poser aucun plomb sans avoir fourni la facture reconnue par l'Inspecteur.
CHAPITRE VI.
Menuiserie.
Les bois qui seront employés pour les menuiseries seront secs, sains, sans aubier, pourriture, ni noeuds, tampons ni mastic, proprement dressés, corroyés, rabotés jusqu'au vif, en sorte qu'il ne reste aucun vestige des traits de sciage, le tout proprement assemblé à tenons et mortaises, languettes, rainures, élégies dans les bois, selon que l'art le requiert dans l'espèce de chacun desdits ouvrages.
Rez de chaussée.
Toutes les croisées du rez de chaussée seront cintrées par le haut en bois de chêne de 34 millimètres, dormant de 42 millimètres, et d'assemblage pour grands carreaux. Les cintres desdites croisées seront dormans et arrêtés avec pattes à scellement.
Toutes les portes à placard seront à deux ventaux en chêne, avec panneaux à grands cadres et embrevés avec chambranles et doubles chambranles profilés suivant les desseins qui en seront donnés.
Toutes les portes des loges seront pleines en sapin blanchi des deux côtés et emboîté en chêne haut et bas, avec moulures rapportées des deux côtés pour former panneaux. Dans le haut de chaque porte il sera percé un trou rond, avec châssis plein en sapin renfermant un carreau de verre dans son châssis, qui ferme le trou au moyen d'un contre-poids.
Premier étage.
Toutes les croisées de la salle, au pourtour de ladite salle, seront idem à celle du rez de chaussée, avec cintre, par le haut idem.
Les trois portes cintrées du foyer seront avec appui en chêne, assemblées à grands cadres, et idem par le haut que les croisées cintrées.
Les quatre croisées des trois escaliers seront avec bâtis en chêne, et châssis dormant idem, et à grands carreaux.
Toutes les portes des premières loges seront semblables à celles des baignoires.
Deuxième étage.
Toutes les croisées de l'attique seront en chêne, avec bâtis de 34 millimètres, dormant de 55 millim., assemblées pour quatre grands carreaux, arrêtées avec pattes à scellement. Toutes les portes des loges seront idem aux autres.
Dans l'intérieur de la salle, la devanture des loges sera faite en panneaux de sapin arasé, assemblés dans les montans et courbes en bois de hêtre, suivant les profils.
Le plafond sera fait en châssis.
Troisième étage.
Il sera fait six portes en sapin idem aux autres pour fermer les escaliers et cabinets.
Les seize portes pour les loges et les neuf portes dans le corps-de-logis du fond seront idem aux autres.
Dans les combles, les baies de lucarnes seront garnies de croisées à petits carreaux, assemblées à petits bois dormans de 34 millimètres.
Menuiserie du théâtre.
Les fermes, chariots, mâts, faux châssis, tambours du cintre et du dessous, les poulies et autres machines du théâtre.
CHAPITRE VII.
Serrurerie et gros fers.
Les fers qui seront employés pour les chaînes, ancres, tirans, harpons, manteaux de cheminée, linteaux, bandes de trémie, etc. etc. seront tirés des forges de Bourgogne de la meilleure qualité, lians, sans pailles ; ils seront employés dans les différentes parties de construction, et des dimensions indiquées au devis estimatif.
Les boulons pour les escaliers et les moises de la charpente, les étriers, les équerres, plates-bandes, etc. seront en fer doux, dit de roche, placés aux endroits indiqués au devis estimatif.
Les rampes des deux grands escaliers de l'intérieur de la salle seront à barreaux ronds de 23 millimètres de gros, assujettis sur un châssis en bandelettes pour recevoir une main courante.
Les rampes des petits escaliers seront à barreaux ronds de 19 millimètres de gros, avec plate-bande unie de 34 millimètres de large, et une lame de fer à sur le limon.
Les croisées des lucarnes des combles seront ferrées de fiches à boutons, d'équerres simples et de deux verrous. Les croisées cintrées du premier étage et du rez de chaussée seront ferrées de fiches à boutons, équerres doubles, pattes à scellement, verrous et poignées ; les cinq croisées du grand foyer public auront des espagnolettes de 19 millimètres de diamètre, avec poignées évidées.
Les portes des loges, dans l'intérieur de la salle, seront ferrées de pommelles en S et gonds à pointe, avec serrures à tour et demi, garnies de leurs gâches et ouvrantes avec la même clef.
Les portes des loges et du foyer des acteurs, du logement du concierge et du café, seront ferrées de fiches à vases, avec serrures à double tour, de 14 centimètres, garnies de leurs gâches.
La porte à deux ventaux du foyer public sera ferrée de six forts pivots, deux verrous à bascule, une serrure à double bouton en cuivre.
A la porte principale de l'entrée du vestibule, sera posée une serrure de sûreté, garnie de sa gâche.
Les portes battantes aux entrées du parterre et de l'orchestre, seront ferrées de pommelles, gonds, pivots et équerres.
Les banquettes des loges et du parterre seront ferrées chacune de deux fortes brisures à tête d'équerre, pour gagner la hauteur de la garniture desdites banquettes.
Il ne sera pas fait mention ici de la ferrure des chariots, des faux châssis, des treuils, mâts de perroquet, mandrins, poulies, etc. ..... nécessaires au jeu des machines du théâtre, parce qu'on ne connoît pas encore quelle sera la somme qu'il sera possible d'y appliquer par la suite, en ne faisant que le strict nécessaire.
La fourniture des rappointis, feutons, queues de carpes, clous à maçon, de bateaux, et autres nécessaires pour les corniches, les aires, les plafonds, tuyaux de cheminées, sera faite pour le compte de l'Entrepreneur de la maçonnerie, ou de l'Adjudicataire général.
Il en sera de même pour les pattes, broches, vis, clous de toutes espèces, nécessaires à la pose de la menuiserie.
Le contre-coeur de la cheminée du foyer public sera garni de plaques de fonte : dans toutes les autres cheminées des loges et du foyer des acteurs, il sera mis de simples plaques ordinaires.
CHAPITRE VIII.
Marbrerie.
La cheminée du foyer sera de marbre du pays, suivant les desseins qui seront donnés par l'Architecte ; les autres chambranles seront faits de la pierre du pays.
CHAPITRE IX.
Peinture d'impression.
Toutes les portes et croisées seront peintes en gris à l'huile, à deux couches ; les plafonds en blanc de détrempe, à deux couches, et les murs et corridors seront peints en couleur de pierre, à bonne colle et à deux couches, avec frise au bas, couleur fond de marbre, couronné d'un filet noir.
CHAPITRE X.
Décors.
Les décors des devantures des loges, de leur intérieur, du rideau de l'avant-scène, du foyer public, seront peints en détrempe, partie rechampis d'or et partie en camaïeu ; le tout d'après les desseins qui seront donnés par l'Architecte.
CHAPITRE XI.
Vitrerie.
Les verres qui seront employés pour le vitrage des croisées, seront tirés de l'Alsace et de Saint-Quirin.
Les cinq croisées du foyer, les trois portes-croisées dudit seront à grands carreaux en verre blanc de la manufacture de Saint-Quirin, et d'une belle eau.
Les autres croisées seront vitrées en grands carreaux de verre d'Alsace : le tout mastiqué.
CHAPITRE XII.
Poêlerie.
Il y aura trois poêles construits en brique revêtue de carreaux de faïence, garnis, dans l'intérieur, de plaques et conduits de chaleur. Les tuyaux montant le long des escaliers, seront en tôle.
CHAPITRE XIII.
Sculpture.
Les ouvrages de sculpture consistent dans huit chapiteaux de l'ordre corinthien des huit colonnes du portique, quatre chapiteaux-pilastres des angles de l'édifice et modillons de la corniche dudit portique, lesquels seront en pierre d'Asnières choisie, et exécutés sur les desseins en grand de l'Architecte.
Dans l'intérieur de la salle, les quatre chapiteaux des colonnes de l'avant-scène, ceux des petites colonnes du pourtour, les modillons de la corniche seront en pâte de carton, ainsi que le cartel des armes de l'Empire porté par deux renommées.
CHAPITRE XIV.
Ouvrages de tapisserie.
Ces ouvrages ont pour objet de fourniture et main d'oeuvre, de la toile pour les châssis du plafond de la salle, les devantures des appuis des loges ;
Le rideau d'avant-scène et ses plafonds, les garnitures des banquettes, des loges, du parterre, de l'orchestre et de l'amphithéâtre, et autres détails que le local exigera, et que l'on ne peut prévoir.
RÉCAPITULATION DES QUATORZE CHAPITRES DU DEVIS.
CHAPITRE 1er. Terrasses
CHAPITRE 2e. Maçonnerie
CHAPITRE 3e. Charpente
CHAPITRE 4e. Couverture
CHAPITRE 5e. Plomberie
CHAPITRE 6e. Menuiserie
CHAPITRE 7e. Serrurerie et gros fers
CHAPITRE 8e. Marbrerie
CHAPITRE 9e. Peinture d'impression
CHAPITRE 10e. Décors
CHAPITRE 11e. Vitrerie
CHAPITRE 12e. Poêlerie
CHAPITRE 13e. Sculpture
CHAPITRE 14e. Ouvrages de tapisserie
--------------------------------------------------
Cahier des charges pour la construction de la Salle de Spectacles à Dijon, d'après le Devis de Mr. Cellerier.
ARTICLE 1er.
Tous les ouvrages compris dans la présente adjudication, seront exécutés conformément aux plans, coupes, élévations, profils, dressés par Mr. Cellerier, sous la surveillance et la direction de l'Ingénieur désigné à cet effet.
S'il est quelques détails qui n'ont pas été prévus, ils seront donnés par cet Ingénieur : les ouvriers seront tenus de s'y conformer.
2.
L'Entrepreneur ne pourra faire aucun changement aux-dits plans, profils et épures, sous quelque prétexte que ce soit.
3.
Les changemens que pourroient nécessiter soit une meilleure construction, soit des raisons d'économie ou autres, seront arrêtés par Mr. l'Auditeur-Préfet, sur le rapport de l'Architecte-Directeur des travaux et l'avis de Mr. le Maire. L'Entrepreneur sera tenu de s'en charger, et il lui sera tenu compte, en plus ou en moins, proportionnellement au prix de la soumission et du devis estimatif, des augmentations ou diminutions d'ouvrages résultant desdits changemens.
4.
Demeurent exceptés de la présente adjudication, et réservés pour une nouvelle délivrance, les chapitres 10, 12 et 14 du devis, relatifs aux décors, poêleries, ouvrages en tapisserie, qui en conséquence ne seront point soumissionnés.
5.
L'Entrepreneur ne pourra employer dans la construction que ceux des matériaux qui auront été préalablement reconnus de bonne qualité par l'Architecte-Directeur.
6.
Il sera tenu de fournir, sans augmentation de prix ni répétition, les matériaux de toute espèce, leur transport, les outils, équipages et main-d'oeuvre nécessaires pour l'exécution des travaux.
7.
Il ne pourra sous-traiter, sous quelque prétexte que ce soit, pour aucune partie des ouvrages dont il s'agit, si ce n'est en vertu d'un arrêté de Mr. l'Auditeur-Préfet, pris sur l'avis de Mr. le Maire et le rapport de l'Architecte chargé de la direction des travaux.
8.
Il fournira un cautionnement en immeubles de la valeur de 50,000 francs ; il sera tenu de justifier, par un certificat du conservateur des hypothèques, que lesdits immeubles sont francs de toutes hypothèques, et de remettre à la Mairie, dans le délai de quinzaine à compter de l'homologation de l'adjudication, le bordereau de l'inscription qu'il prendra, à ses frais, au nom de la Ville, sur lesdits immeubles.
Il ne pourra obtenir main-levée de cette inscription, qu'à l'expiration du délai de la garantie légale.
9.
L'adjudication sera faite par voie de soumission. Les soumissions seront reçues jusqu'au 8 août inclusivement ; elles seront rédigées sur papier timbré, contiendront les noms, prénoms, professions et demeures des soumissionnaires, et feront connoître les biens offerts pour cautionnement, leur nature, consistance et situation. Le soumissionnaire y joindra le certificat du conservateur des hypothèques, constatant qu'ils ne sont point grevés, et un extrait en bonne forme de la matrice du rôle de la contribution foncière, constatant la valeur desdits biens.
Ces soumissions seront adressées sous enveloppe à la Mairie de Dijon.
10.
Toute compagnie sera admise à enchérir, à la condition qu'un de ses membres au moins justifiera qu'il est homme de l'art.
11.
Les enchérisseurs auront la faculté de comprendre dans leur soumission et les matériaux provenans de la démolition des maisons qui existent sur l'emplacement de la Salle, et ceux de la tour dite Saint-Nicolas, en par eux se chargeant des frais de ladite démolition.
Dans le cas où ces objets ne seroient pas compris dans la soumission acceptée, il en sera fait, sous la huitaine, une adjudication particulière, pour être, la démolition et l'enlèvement des matériaux, faits dans le délai de trois mois.
12.
Le soumissionnaire sera chargé d'exploiter des arbres de construction estimés à 15,000 francs, lesquels existent dans la promenade du Parc, et qui seront marqués à cet effet : l'exploitation et l'enlèvement desdits arbres seront faits avant le 1er. avril 1811. Ladite somme de 15,000 francs viendra en diminution de la première moitié du prix de l'adjudication, dont il sera parlé ci-après.
13.
Si le soumissionnaire se réservoit, comme faisant partie du prix des travaux, la jouissance de la Salle pendant un certain nombre d'années, la Ville aura la faculté de prendre cette jouissance, à quelqu'époque que ce soit, à la charge par elle de payer, pour chaque année de sa jouissance, audit soumissionnaire, le prix qu'il aura demandé par sa soumission pour raison de cette non-jouissance ; et, dans ce cas, la Ville aura la faculté de résilier, sans indemnité, les baux que l'Adjudicataire auroit passés de ladite Salle.
14.
Les travaux seront confectionnés et mis en état de réception dans le délai proposé par la soumission, sans néanmoins qu'il puisse excéder celui de trois années, à compter du 16 août de la présente année, époque à laquelle l'Adjudicataire sera tenu de les ouvrir.
15.
L'Adjudicataire emploîra un nombre suffisant d'ouvriers pour l'accélération des travaux.
Il sera tenu, 1°. de mettre et rendre les fondations hors du niveau du sol, et exécutées conformément au devis, le 1er. juin 1811 ;
2°. De confectionner le corps de bâtiment, consistant en maçonnerie, sculpture extérieure et charpente, gros fers, couverture et plomberie, pour le 1er. juillet 1812 ;
3°. Et de porter à sa perfection le surplus des ouvrages, à l'expiration du délai réglé par la soumission acceptée. Et ce, sous peine d'éprouver sur le montant du prix de l'adjudication une diminution de 100 francs par chaque jour de retard apporté à l'exécution de chacune des trois dispositions ci-dessus, sans préjudice de l'adjudication à la folle enchère à laquelle il seroit procédé, dans le cas où ce retard excéderoit le cours d'un mois.
Cette clause faisant partie du prix de l'adjudication, ne pourra, dans aucun cas, être réputée comminatoire, lors même que l'établissement et la construction des fondations nécessiteroient une augmentation de travaux, soit pour les creuser plus profondément que ne l'indique le devis, soit pour les construire au besoin sur pilotis.
16.
Le prix de l'adjudication sera payé par moitié. La première moitié sera soldée par quart de la manière suivante, savoir : le premier quart aussitôt que les travaux seront en activité, le second au 31 décembre 1810, le troisième au 31 juin 1811, le quatrième et dernier au 31 décembre, même année.
Quant à la deuxième moitié du prix, elle sera divisée en parties aliquotes qui n'excéderont pas 10,000 francs, mais qui seront rapprochées le plus possible de cette somme. La première partie sera payée le 1er. juillet 1812, la deuxième le 31 décembre de la même année, et ainsi de suite de six mois en six mois, jusqu'à l'entier acquittement.
17.
Ceux desdits paiemens qui seront affectés sur les fonds que la Ville de Dijon a en dépôt dans la caisse d'amortissement, seront faits conformément à l'article 4 de l'arrêté du Gouvernement du 19 ventôse an 10, en vertu d'une décision de Son Excellence le Ministre de l'intérieur, provoquée par Mr. l'Auditeur-Préfet, sur la pétition de l'Adjudicataire, le certificat de l'Architecte chargé de la surveillance des travaux, et une attestation de Mr. le Maire, qui, en légalisant les signatures desdits Adjudicataire et Architecte, s'expliquera sur le degré d'avancement des travaux.
Pour obtenir le premier des paiemens, et pour cette fois seulement, l'Adjudicataire joindra aux pièces ci-dessus mentionnées, et à ses frais, une expédition du procès-verbal d'adjudication.
Quant aux paiemens qui seront faits sur les fonds existans dans la caisse du Receveur de la Ville, ils auront lieu sur un mandat de Mr. le Maire, approuvé par Mr. l'Auditeur-Préfet, à la vue du certificat de l'Architecte-Directeur.
18.
Les terres des fouilles et les décombres provenans de la construction de l'édifice dont il s'agit, ne pourront être transportés ailleurs que dans le dépôt destiné à cet effet, et situé hors la porte Guillaume.
19.
L'Adjudicataire paiera comptant, entre les mains du Secrétaire de la Mairie, les frais d'affiches, de papier timbré, enregistrement des devis conditionnels et des plans, et ceux de l'adjudication. Il s'engagera en outre à faire tirer double copie des plans de Mr. Cellerier, lesquels seront collationnés en présence de l'adjudicataire, et reconnus et déclarés par lui conformes aux originaux qui resteront déposés au secrétariat de la Mairie : l'une des copies sera remise à la Préfecture.
II paiera également entre les mains du sieur Secrétaire, et ce par moitié, en deux années qui commenceront à compter du jour de l'adjudication, le cinquantième du prix d'icelle pour les honoraires de l'Architecte, auteur des devis et plans, et de l'Architecte-Directeur des ouvrages.
20.
Toutes contestations qui pourront survenir au sujet de l'exécution des ouvrages et des clauses ci-dessus, seront jugées administrativement.
Dijon, le 28 juin 1810.
Signé DURANDE, Maire.
Par le Maire :
Le Secrétaire en chef, signé DECHAUX.
--------------------------------------------------
Dijon, le 10 juillet 1810.
L'Auditeur au Conseil d'Etat, Baron de l'Empire, Prêfet du Departement de la Côte-d'or,
Vu notre arrêté du 29 novembre 1809 et notre lettre du même jour, contenant envoi à Son Excellence le Ministre de l'intérieur, des délibération, devis, plans et pièces, relatifs tant à la construction d'une nouvelle Salle de spectacles à Dijon, qu'à l'aliénation d'immeubles dont le prix seroit affecté à ladite construction ;
Le décret de Sa Majesté Impériale, du 13 mars dernier, qui autorise la Ville de Dijon à construire ladite Salle ; la lettre d'envoi de Son Excellence le Ministre de l'intérieur, du 5 avril dernier ;
La loi du 30 du même mois de mars, qui autorise ladite Ville à faire lesdites aliénations ; la lettre de Son Excellence, du 30 mai suivant, contenant le renvoi de toutes les pièces relatives auxdites construction et aliénations ;
Vu aussi le cahier des charges, clauses et conditions de l'adjudication qui doit avoir lieu pour la construction de ladite Salle de spectacles ;
Arrête que Mr. le Maire de la Ville de Dijon, après les publications et affiches nécessaires, procédera, par voie de soumission, à l'adjudication au rabais des ouvrages et fournitures relatifs à la construction de la Salle de spectacles dont il s'agit, conformément aux devis et conditions à la suite, et aux plans en onze feuilles, le tout visé par Nous ce jour : copie des devis et plans sera adressée à la Préfecture pour demeurer annexée à la minute du présent.
Arrête en outre que le procès-verbal de ladite adjudication sera, en double expédition, soumis à notre approbation.
Signé F. LECOUTEULX.
A Dijon, chez Bernard-Defay, Imprimeur de la Mairie. 1810.
Façades et toitures (cad. BP 26) : inscription par arrêté du 29 octobre 1975.
- théâtres de Bourgogne
- salles de spectacle de Bourgogne-Franche-Comté
- © Région Bourgogne-Franche-Comté, Inventaire du patrimoine
