SALLE DE SPECTACLE DITE LE KURSAAL
25 - Besançon
2 place du Théâtre
- Dossier IA25002029 réalisé en 2023
- Auteur(s) : Laurent Poupard
Historique
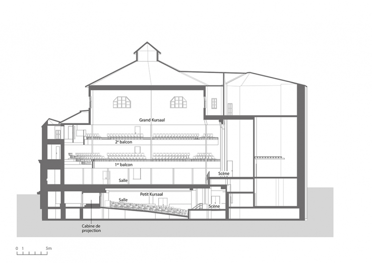
Constant Pellegrin fait bâtir vers 1881, au 1 rue Mairet, une maison et un café rapidement connu sous le nom de "Casino du Jardin", dans lequel il organise des concerts et des bals. Alors que la Compagnie des Bains Salins de la Mouillère crée un établissement thermal (édifié de 1891 à 1893), la veuve de Constant, Ernestine Mélanie Pellegrin, décide de remplacer son établissement par un "Kursaal-Cirque" associant une salle de spectacle circulaire et une brasserie (actuelle salle Proudhon). Les bâtiments existants sont détruits et la construction du Kursaal débute en janvier 1893, suivant le projet des architectes Claude (ou Claudius) Porte, à Lyon, et Louis Garin, à Besançon. Le décor est confié au peintre lyonnais Louis Bardey, qui le signe et inscrit la date 1893. L'établissement est inauguré à la fin de cette année, mais les travaux ne sont pas achevés : il manque encore notamment les sculptures destinées à orner la façade tandis que la brasserie est encore en cours de construction. La salle de spectacle s'étage sur quatre niveaux : la piste du cirque au sous-sol est entourée de gradins, qui se prolongent dans la galerie du rez-de-chaussée surélevé, surmontée par deux étages de balcons ; le parterre peut être fermé par un plancher amovible. La veuve Pellegrin ne pouvant rembourser ses financeurs, l'immeuble est vendu aux enchères le 21 février 1895 et acquis par la Ville le 14 mars suivant. La municipalité engage aussitôt des travaux de ferblanterie sur la toiture, pour pallier son inachèvement, et la Compagnie du Gaz installe un éclairage au gaz à l'aide de becs système Auer. La brasserie accueille l'école municipale de dessin - ou des Beaux-Arts - (ouverte en 1807 et succédant à l'académie royale de peinture et de sculpture fondée en 1773) et celle de musique (créée le 26 novembre 1860), pour lesquelles six salles de cours sont aménagées avant la fin de l'année (l'école de musique ne rejoindra les locaux qu'en 1898). Des travaux ont aussi lieu en 1900 pour améliorer la scène et sa machinerie (afin d'accueillir des spectacles le temps de la fermeture du théâtre), le foyer et l'isolation, laissée inachevée (cages d'escalier et loges d'acteurs) ; la charpente, les cloisons au niveau du gril et celle en bois séparant la salle de la scène sont ignifugées par la société L’Incombustibilité. La Ville concède la gestion de la salle de spectacle, en veillant à limiter la saison d'octobre à mars-avril (afin de ne concurrencer ni le théâtre ni le casino) et à privilégier les demandes des sociétés locales. Le Kursaal accueille des spectacles de cirque et de music-hall ("attractions, chants, danses, musique"), des projections cinématographiques, des réunions politiques, des bals, du "skating" (patinage à roulette), des matchs de catch et de boxe, etc. Le 27 mai 1919, le conseil municipal décide de remplacer l'appellation Kursaal par celle de "Salle des Variétés". Il fait aménager en 1929, au sous-sol de l'ancienne brasserie, une cuisine devant permettre l’organisation de banquets de 200 convives.
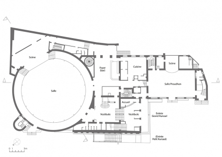
L'adoption en 1954 de nouvelles normes de sécurité conduit, dans un Kursaal vieillissant, à la fermeture du 2e balcon puis en 1970 de l'établissement en entier, dont la destruction est envisagée. Toutefois, l'attachement des Bisontins à leur Kursaal et le coût d'une construction neuve équivalente (18 000 000 F pour 7 200 m2 utiles environ) conduisent le conseil municipal, dans sa séance du 30 mars 1979, à valider le principe d'une restauration et le programme proposé par les services techniques municipaux (8 971 000 F). Ce programme intègre la reprise des toitures, la construction d'un nouveau logement pour le concierge, la réfection de la salle de spectacle et la création d'une nouvelle sous elle (au sous-sol), l'aménagement des salles de réunions dans l'ancienne brasserie, etc. Les travaux sont supervisés par l'ingénieur G. Simonin, du service d'architecture de la ville, assisté des cabinets des ingénieurs Jean et Jacques Cornet (Conseil électrique de Bourgogne et Franche-Comté) et Le Diset (Cetel : Centre d'Etudes techniques de l'Est). Les démolitions (gradins en bois, plancher, balcons, loges et scène) débutent en février 1981, les terrassements en fond de cirque sont achevés début mars, la dalle entre sous-sol et rez-de-chaussée est coulée à la mi-août, les deux balcons à la fin de l'année, le décor est refait ou restauré durant l'hiver (peintures de la fausse-coupole et de ses lunettes en janvier 1982, staffs et dorures le mois suivant tandis que le cadre de scène est en cours). Le gros-oeuvre de la 1re tranche (dallage et poutrage en béton armé précontraint) a été réalisé par la Sarl GTFC (Grand Travaux de Franche-Comté). La cuisine est aménagée entre mai 1982 et mars 1983, la salle Proudhon (ancienne brasserie) de la mi-octobre 1986 à février 1987. Le nouvel établissement, inauguré dès le 6 octobre 1982, se compose du Petit Kursaal au sous-sol (salle de spectacle de 375 places assises, avec cabine de projections et scène, et grande salle de réunion), du Grand Kursaal au-dessus (1 031 places assises - dont 269 au 1er balcon et 174 au 2e -, avec scène, arrière-scène, loges, foyer et bar), et du bâtiment Proudhon avec ses différente salles (celle du même nom étant dotée d'une petite scène). Le long mur aveugle du côté de la promenade Granvelle est orné en 1990 d'un décor d’arcatures en briques imaginé par Maurice Janin tandis que le hall est refait en milieu d'année suivante par l'architecte d'intérieur François Benedini.
En 2019, la fréquentation a été de 140 000 spectateurs. En 2023, le Kursaal est servi par une équipe de 12 personnes, sans compter les agents d'entretien (2,5 postes) ni les intermittents du spectacle appelés en renfort (environ 2 à 3 équivalents temps plein). Ouvert 300 jours par an et affichant un taux d'occupation proche de 100 %, il accueille plus de 400 manifestations : spectacles, congrès, formation, réunions d'entreprises, d'associations, conférences, etc. Sa capacité totale est de 2 486 places debout. Calculée en places assises, elle se répartie entre le Petit Kursaal (340) et la salle Colard (100) au sous-sol, le Grand Kursaal (1 032 - 450 aux balcons - dont 850 à 900 exploitables) au rez-de-chaussée, les salles Risset - ancien foyer - (50) et Ory (90) au 1er étage ; le bâtiment Proudhon accueille la salle Proudhon (120 places) au rez-de-chaussée, les salles Bidault (50), Thévenot (25) et Pellegrin (25) au 1er étage, le foyer de la danse (50) au 2e étage.
- 4e quart 19e siècle
- 4e quart 20e siècle
Date de naissance : 13/09/1834
Porte, Claude - ou Claudius - (1834-?). Né à Lyon le 13 septembre 1834. Père de l'architecte Paul Jules Porte (1871-1959). Sort de l'école des Beaux-Arts de cette ville en 1852. Il travaille chez les architectes Léo de 1850 à 1860 puis Philibert Bellemain jusqu'en 1870, avant d'ouvrir à cette date sa propre agence d'architecture. Admis en 1881 à la Société académique d'Architecture de Lyon, il en devient le président en 1907. Domicilié rue Mulet en 1886, rue Paul Chenavard en 1896. (Source : La grande médaille d'or de l'Association Provinciale des Architectes Français et son titulaire M. Cl. Porte. <span style="font-style:italic;">La construction lyonnaise</span>, 1er janvier 1905, p. 6-7 : ill.)
Date de naissance : 1858
Garin, Louis (1858-?). Architecte bisontin, actif en 1897 à Rougemont.
Simonin, G. Ingénieur au service d’architecture de la ville de Besançon en 1981.
Janin, Maurice. Décorateur formé à l’école des Beaux-Arts de Besançon de 1970 à 1976.
Description
Le site est principalement composé du bâtiment abritant l'entrée, le vestibule, le foyer et les escaliers, auquel sont accolés au nord celui dédié aux salles de spectacles et au sud le bâtiment Proudhon (ancienne brasserie). Les murs sont en moellons calcaires enduits, à l'exception de la façade antérieure du corps d'entrée, en pierres de taille, et de celle du bâtiment Proudhon, en pierres de taille au rez-de-chaussée, en pierres avec briques en remplissage au 1er étage carré, revêtu d'un essentage d'ardoises au 2e étage (ainsi que sur le mur sud). Le bâtiment d'entrée compte un sous-sol et un rez-de-chaussée surélevé puis un étage carré et deux étages de comble (dans le dôme) ou deux étages carrés et un étage en surcroît (sur les autres corps). Sa façade antérieure, à trois travées, est animée à l'étage par un balcon avec quatre colonnes en marbre de Sampans, d'inspiration corinthienne et supportant un entablement, surmonté par trois lucarnes attique en avant d'un dôme carré revêtu d'ardoises. Il accueille les escaliers principaux, droits et tournants à retours avec jour, en maçonnerie, ainsi que l'ascenseur. Il est coiffé de toits à longs pans et croupes, à couverture de tuiles mécaniques et ponctuellement de zinc. Le bâtiment des salles de spectacle (actuels Petit et Grand Kursaal) est de forme circulaire, avec une cage d'escalier hors-oeuvre au nord-ouest et au nord-est un corps accueillant la scène, les loges et divers locaux techniques. Outre le sous-sol, Il comporte un rez-de-chaussée surélevé, trois étages carrés (les deux balcons et le tambour de la fausse-coupole hexagonale) et un étage de comble (surmonté d'un lanterneau), desservi par un escalier en vis récent en béton et une échelle en bois. Les murs extérieurs du tambour sont protégés par des tuiles plates mécaniques et il est coiffé d'un toit hexagonal couvert de tuiles mécaniques. Le corps nord-est est à longs pans, pignon couvert à l'est et tuiles mécaniques ; le reste de la toiture a une couverture en zinc. Le bâtiment Proudhon a un sous-sol voûté d'arêtes (en briques), un rez-de-chaussée surélevé, deux étages carrés et un comble. Il est desservi par deux escaliers tournants à retours avec jour en pierre, le principal implanté dans-oeuvre au sud, le deuxième hors-oeuvre à l'est, dans un corps adossé coiffé d'un toit en pavillon. Ce toit et celui à longs pans et croupes du bâtiment ont une couverture de tuiles mécaniques. Le logement du concierge qui lui est accolé au sud-est est en pan de béton armé et parpaings de béton enduits, avec sous-sol, rez-de-chaussée et un étage carré coiffé d'une terrasse en béton.
- calcaire
- béton
- moellon
- pierre de taille
- pierre avec brique en remplissage
- pan de béton armé
- parpaing de béton
- enduit
- essentage de tuile
- essentage d'ardoise
- enduit
- ardoise
- tuile mécanique
- zinc en couverture
- béton en couverture
- sous-sol
- rez-de-chaussée surélevé
- 3 étages carrés
- étage de comble
- voûte d'arêtes en brique
- fausse coupole sans trompe à lunettes
- charpente en bois apparente
- élévation ordonnancée
- toit polygonal, croupe
- lanterneau
- dôme carré
- toit à longs pans, croupe
- pignon couvert
- noue
- toit à longs pans brisés, croupe
- toit en pavillon
- escalier dans-oeuvre, escalier droit, en maçonnerie
- escalier dans-oeuvre, escalier tournant à retours avec jour, en maçonnerie
- escalier dans-oeuvre, échelle, en charpente
- escalier dans-oeuvre, escalier en vis, en maçonnerie
- escalier hors-oeuvre, escalier tournant à retours avec jour, en maçonnerie
- ascenseur
- ornement architectural
Arcatures en briques sur le mur aveugle du côté de la promenade Granvelle (au-dessus de l'entrée du Petit Kursaal).
- maçonnerie
Arcatures en briques sur le mur aveugle du côté de la promenade Granvelle (au-dessus de l'entrée du Petit Kursaal).
Source(s) documentaire(s)
-
Archives municipales de Besançon : 1 D 198-248 bis Registres des délibérations du conseil municipal. Registres imprimés. 1873-1960.
Archives municipales de Besançon : 1 D 198-248 bis Registres des délibérations du conseil municipal. Registres imprimés. 1873-1960. Accès internet : https://memoirevive.besancon.fr/ark:/48565/q4l028dbvs3xLieu de conservation : Archives municipales, Besançon - Cote du document : 1 D 198-248 bis -
Archives municipales de Besançon : 4 M 93 [Décors du théâtre et construction d'un dépôt pour les stocker]. 1805-1937.
Archives municipales de Besançon : 4 M 93 [Décors du théâtre et construction d'un dépôt pour les stocker]. 1805-1937.Lieu de conservation : Archives municipales, Besançon - Cote du document : 4 M 93 -
Archives municipales de Besançon : 4 M 97-99 Kursaal. 1895-1930.
Archives municipales de Besançon : 4 M 97-99 Kursaal. 1895-1930.Lieu de conservation : Archives municipales, Besançon - Cote du document : 4 M 97-99 -
Archives municipales de Besançon : Ph 6001-109000 Photographies de l'Est Républicain (Bernard Faille). 1958-1985.
Archives municipales de Besançon : Ph 6001-109000 Photographies de l'Est Républicain (Bernard Faille). 1958-1985.Lieu de conservation : Archives municipales, Besançon - Cote du document : Ph 6001-109000 -
Archives municipales de Besançon : 2 R 19 Kursaal. Cirque. Locations, occupations. 1895-1902.
Archives municipales de Besançon : 2 R 19 Kursaal. Cirque. Locations, occupations. 1895-1902.Lieu de conservation : Archives municipales, Besançon - Cote du document : 2 R 19 -
Archives municipales de Besançon : 2 R 42 Salle de variété du Kursaal. 1898-1946.
Archives municipales de Besançon : 2 R 42 Salle de variété du Kursaal. 1898-1946.Lieu de conservation : Archives municipales, Besançon - Cote du document : 2 R 42 -
Archives municipales de Besançon : 5 S 55 Kursaal : affiches. 1895-1902.
Archives municipales de Besançon : 5 S 55 Kursaal : affiches. 1895-1902.Lieu de conservation : Archives municipales, Besançon - Cote du document : 5 S 55 -
Archives municipales de Besançon : 52 W GB 33 Déplacement du CNR (Conservatoire national de région) au Kursaal. 1973-1974.
Archives municipales de Besançon : 52 W GB 33 Déplacement du CNR (Conservatoire national de région) au Kursaal. 1973-1974.Notamment : Demenge, Michel ; Lacroix, Paul. Conservatoire national de région de Besançon. Modification et actualisation de l'étude d'avril 1973. Février 1974.Lieu de conservation : Archives municipales, Besançon - Cote du document : 52 W GB 33 -
Archives municipales de Besançon : 345 W 236 Kursaal : entretien, réfection, fonctionnement. 1895-1970.
Archives municipales de Besançon : 345 W 236 Kursaal : entretien, réfection, fonctionnement : plans (du plancher), correspondance, inventaires du mobilier. 1895-1970.Lieu de conservation : Archives municipales, Besançon - Cote du document : 345 W 236 -
Archives municipales de Besançon : 655 W 155-171 Kursaal. 1922-1991.
Archives municipales de Besançon : 655 W 155-171 Kursaal. 1922-1991.Lieu de conservation : Archives municipales, Besançon - Cote du document : 655 W 155-171 -
Proudhon [fiche technique]. Mars 2021.
Proudhon [fiche technique]. Besançon : Kursaal, mars 2021. 7 p. : ill. ; 30 cm. -
Le Grand Kursaal. Fiche technique. 10 décembre 2021.
Le Grand Kursaal. Fiche technique. Besançon : Kursaal, 10 décembre 2021. 12 p. : ill. ; 30 cm. -
Le Petit Kursaal. Fiche technique. 21 décembre 2022.
Le Petit Kursaal. Fiche technique. Besançon : Kursaal, 21 décembre 2022. 12 p. : ill. ; 30 cm.
-
[Plan cadastral napoléonien] Section K, de la Ville Sud-Ouest en quatre feuilles, 2e feuille, 1834.
[Plan cadastral napoléonien] Section K, de la Ville Sud-Ouest en quatre feuilles, 2e feuille, du n° 288 à 840, levée à l’échelle d’1 à 1250, par Mr Berçot Géomêtre, dessin (plume, lavis), s.d. [1834], 68 x 101 cm, échelle 1:1250 (graphique), orienté.Lieu de conservation : Archives départementales du Doubs, Besançon - Cote du document : 3 P 57 / K -
Kursaal Cirque Besançon. Programme du dimanche 10 décembre 1893.
Kursaal Cirque Besançon. Programme du dimanche 10 décembre 1893. Affiche (gravure sur papier), s.n. 1893.Lieu de conservation : Musée du Temps, Besançon - Cote du document : Inv. 2011.0.136 -
[Plan au rez-de-chaussée surélevé]. S.d. [1895].
[Plan au rez-de-chaussée surélevé]. Dessin imprimé, s.n. S.d. [1895]. Ech. 1/200. Plan imprimé au verso de l'affiche du 15 janvier 1895 annonçant la vente sur saisie du Kursaal.Lieu de conservation : Archives municipales, Besançon - Cote du document : 2 Fi 751 -
Kursaal-Cirque. Plan du rez-de-chaussée. S.d. [1895 ?].
Kursaal-Cirque. Plan du rez-de-chaussée. Dessin (plume), s.n. S.d. [1895 ?]. 60 x 93 cm, 1/100.Lieu de conservation : Archives municipales, Besançon - Cote du document : 2 Fi 749 -
Kursaal-cirque. Plan du plancher démontable. 16 juin 1895.
Kursaal-cirque. Plan du plancher démontable. Dessin sur calicot, par l’architecte de la ville [Gribling]. Besançon le 16 juin 1895. 102,5 x 107 cm, 1/20.Lieu de conservation : Archives municipales, Besançon - Cote du document : 345 W 236 -
[Affiche annonçant le "4me et Dernier Grand Bal Paré Masqué et Travesti" donné à la mi-carême de l'année 1897 (1909 ?)].
[Affiche annonçant le "4me et Dernier Grand Bal Paré Masqué et Travesti" donné à la mi-carême de l'année 1897 (1909 ?)]. Dessin imprimé, s.n. S.d. [1897 ?].Lieu de conservation : Archives municipales, Besançon - Cote du document : 5 Fi 26 -
Le Kursaal et Ecole des Beaux-Arts. S.d. [fin 19e siècle début 20e siècle, entre 1897 et 1903].
Le Kursaal et Ecole des Beaux-Arts. Carte postale, s.n. S.d. [fin 19e siècle début 20e siècle, entre 1897 et 1903].Lieu de conservation : Bibliothèque municipale, Besançon - Cote du document : CP-B-P60-0024 -
12 - Besançon - Le Kursaal. [1er quart 20e siècle, avant 1908].
12 - Besançon - Le Kursaal. Carte postale, s.n. [1er quart 20e siècle, avant 1908]. Teulet éd. à Besançon. Série "Excursion en Franche-Comté". Porte la date 25 août 1908 (tampon) au verso.Lieu de conservation : Bibliothèque municipale, Besançon - Cote du document : CP-B-P60-0001 -
2 - Vente de Charité au Kursaal - 1913.
2 - Vente de Charité au Kursaal - 1913. Carte postale, s.n. Louys Bauer impr. à Dijon. Porte la date 29 juin 1916 [?] (tampon) au recto ; Bauer utilise un casque Adrian comme logotype à partir de 1916.Lieu de conservation : Bibliothèque municipale, Besançon - Cote du document : CP-B-P60-0014 -
2920. Besançon - Le Kursaal. [1er quart 20e siècle, avant 1914].
2920. Besançon - Le Kursaal. Carte postale, s.n. [1er quart 20e siècle, avant 1914]. L.V. et Cie. Porte la date 6 janvier 1914 (tampon) au verso.Lieu de conservation : Bibliothèque municipale, Besançon - Cote du document : CP-B-P46-0534 -
1075. Besançon - Le Kursaal et l'Ecole des Beaux-Arts (à gauche, statue du peintre Chantran). S.d. [1er quart 20e siècle, après 1909].
1075. Besançon - Le Kursaal et l'Ecole des Beaux-Arts (à gauche, statue du peintre Chantran). Carte postale, s.n. S.d. [1er quart 20e siècle, après 1909]. L. Gaillard-Prêtre éd. à Besançon. Série "Excursion en Franche-Comté".Lieu de conservation : Bibliothèque municipale, Besançon - Cote du document : CP-B-P60-0002 -
F.B. - 30 - En Franche-Comté - Besançon - Le Kursaal. S.d. [1er quart 20e siècle].
F.B. - 30 - En Franche-Comté - Besançon - Le Kursaal. Carte postale, s.n. S.d. [1er quart 20e siècle]. Aqua Photo, Paris. Porte la date 29 juin [illisible] (tampon) au recto.Lieu de conservation : Bibliothèque municipale, Besançon - Cote du document : CP-B-P60-0020 -
[Schéma de la salle pour la location des places]. S.d. [2e quart 20e siècle ?].
[Schéma de la salle pour la location des places]. Dessin imprimé (tirage), s.n. S.d. [2e quart 20e siècle ?]. 51 x 62 cm, sans éch.1306 places assises : 732 au rez-de-chaussée (528 à l’orchestre, 172 au "pourtour" [sous le balcon] et 32 dans les loges), 398 au 1er balcon (dont 53 dans les loges) et 176 au 2e balconLieu de conservation : Archives municipales, Besançon - Cote du document : 345 W 236 -
Croquis de la Salle des Variétés indiquant les pierres restant à sculpter. S.d. [juillet 1930].
Croquis de la Salle des Variétés indiquant les pierres restant à sculpter. Dessin (plume, crayon de papier), par le sculpteur Laithier. S.d. [juillet 1930]. 27 x 21 cm, sans éch.Lieu de conservation : Archives municipales, Besançon - Cote du document : 4 M 98 -
Salle des variétés. 8 novembre 1941.
Salle des variétés. Dessin (tirage), par le chef du service d’architecture [-]. 8 novembre 1941. 1/100.- Sous-sol. 42,5 x 75 cm. (655 W 163)- Plan du 2e étage. 49 x 60 cm. (345 W 236)Lieu de conservation : Archives municipales, Besançon - Cote du document : 345 W 236 et 655 W 163 -
Salle des Variétés. Projets de réfection charpente-plancher de la piste de danse, d’aménagement d’une salle de conférence [...] Novembre 1956.
Salle des Variétés. Projets de réfection charpente-plancher de la piste de danse, d’aménagement d’une salle de conférence - 400 places dans les sous-sols (ancien cirque). Dessin (tirage, crayon de couleur), par le chef du service d’architecture [-]. Novembre 1956. 1/100.- Plan des sous-sols. 57 x 62,5 cm.- Coupe. 42 x 70,5 cm.Lieu de conservation : Archives municipales, Besançon - Cote du document : 655 W 164 -
[Exemples de manifestations organisées au Kursaal]. 1958-1985.
[Exemples de manifestations organisées au Kursaal]. Photographie, par Bernard Faille. 1958-1985.Notamment : - Bal au Kursaal. 1958. (Ph 7075).- Boxe : Lombardet - Muller au Kursaal. Février 1959. (Ph 8034).- Election reine des miss au Kursaal. Mars 1959. (Ph 8267).- Assemblée d'officiels au Kursaal. 1959. (Ph 9309).- Escrime Kursaal, challenge de la montre. Mars 1960. (Ph 9648).- Assemblée générale de la CGA [Confédération générale de l'Agriculture] au Kursaal. Mars 1960. (Ph 9579).- Journée de grève : meeting Kursaal. Mars 1969. (Ph 35391 ; voir aussi Ph 35392, 35401, 35402).- 3 jours exposition du livre 8 reportages. Avril 1985. (Ph 104847 ; voir aussi Ph 104843-104846, 104848-104854, 104862, 104866-104868).Lieu de conservation : Bibliothèque municipale, Besançon - Cote du document : Photographies de l’Est Républicain (Bernard Faille) -
Plan régulier de la Salle des Variétés - Kursaal - place du Théâtre [plan-masse à l'échelle 1/200]. Mai 1968.
Plan régulier de la Salle des Variétés - Kursaal - place du Théâtre [plan-masse à l'échelle 1/200]. Dessin (tirage), par le Cabinet d'Etudes Topographiques J. Breton et R. Callier. Mai 1968. 48 x 85 cm, 1/200.Lieu de conservation : Archives départementales du Doubs, Besançon - Cote du document : 46 W 6 -
Plan régulier de la Salle des Variétés - Kursaal - place du Théâtre [plan-masse à l'échelle 1/500 avec indication des bâtiments à démolir]. Mai 1968.
Plan régulier de la Salle des Variétés - Kursaal - place du Théâtre [plan-masse à l'échelle 1/500 avec indication des bâtiments à démolir]. Dessin (tirage), s.n. [Cabinet d'Etudes Topographiques J. Breton et R. Callier]. Mai 1968. 42 x 59,5 cm, 1/500. Extrait de : Demenge, Michel ; Lacroix, Paul. Conservatoire national de région de Besançon. Modification et actualisation de l'étude d'avril 1973. Février 1974, p. 45.Lieu de conservation : Archives départementales du Doubs, Besançon - Cote du document : 52 WGB 33 -
Le Kursaal. Avant-projet de transformation. Janvier 1968.
Le Kursaal. Avant-projet de transformation. Dessin (tirage), par Anibat. Besançon janvier 1968. 43 x 65 cm, 1/100. Porte la mention (sur la couverture) : "Remis par M. Boucton le 16.1.68".- Sous sol, 38 parkings.- R. de Ch, 42 parkings.- 1er étage, salle de bal.- 2ème étage, 6 salles de réunion ou conférence.- Coupe longitudinale.Lieu de conservation : Archives municipales, Besançon - Cote du document : 2 Fi 750 -
[Projet de cheminement piétonnier du quai Vauban à la citadelle]. Novembre 1968.
[Projet de cheminement piétonnier du quai Vauban à la citadelle]. Dessin (tirage en couleur), par l'architecte Paul Lacroix. Novembre 1968. 26 x 76 cm, sans éch.Extrait de : Lacroix, Paul. Ville de Besançon. Proposition d'aménagement de la place Granvelle à l'emplacement du Kursaaal [Kursaal 1]. 7 novembre 1968.Lieu de conservation : Archives municipales, Besançon - Cote du document : 655 W 164 -
Conservatoire national de région. Esquisse avril 1973.
Conservatoire national de région. Esquisse avril 1973. Dessin (tirage), par les architectes Michel Demenge et Paul Lacroix. Avril 1973. 21 x 59,5 cm, 1/500. Extrait de : Conservatoire national de région de la musique, de l’art lyrique et de la danse. Programme esquisse, avril 1973.- Rez de chaussée. (P. 61-62.)- Etage. (P. 59.)- Curetage. (P. 69)Lieu de conservation : Archives municipales, Besançon - Cote du document : 52 W GB 33 -
Schémas d'utilisation de la salle et des auditoires mobiles. Avril 1973.
Schémas d'utilisation de la salle et des auditoires mobiles. Dessin (tirage), par les architectes Michel Demenge et Paul Lacroix. Avril 1973. 21 x 59,5 cm, sans éch. Extrait de : Conservatoire national de région de la musique, de l’art lyrique et de la danse. Programme esquisse, avril 1973.- Utilisation simultanée de 4 salles [et] Utilisation simultanée de 2 salles. (P. 63)- 1 salle pleine [et] 1 salle comble. (P. 64)Lieu de conservation : Archives municipales, Besançon - Cote du document : 52 W GB 33 -
[Conservatoire national de région]. Variante : l'ilot rénové. Février 1974.
[Conservatoire national de région]. Variante : l'ilot rénové. Dessin (tirage), par les architectes Michel Demenge et Paul Lacroix. Février 1974. 21 x 59,5 cm, 1/1 000. Extrait de : Conservatoire national de région de la musique, de l’art lyrique et de la danse. Programme esquisse, avril 1973, p. 70.Lieu de conservation : Archives municipales, Besançon - Cote du document : 52 W GB 33 -
Kursaal. Projet de restauration. Janvier 1979.
Kursaal. Projet de restauration. Dessin (tirage, feutre), par P. Blin. Janvier 1979. 1/100.N° 1B. Sous-sol. 47,5 x 88 cm.N° 2B. Rez-de-chaussée. 46,5 x 104 cm.N° 3B. 1er étage. 47,5 x 100,5 cm.N° 4B. 2ème étage. 48,5 x 90,5 cm.N° 5B. Coupe. 43,5 x 83 cm.Lieu de conservation : Archives municipales, Besançon - Cote du document : 655 W 161 -
Kursaal. Implantation. Plan de masse. Juin 1979.
Kursaal. Implantation. Plan de masse. Dessin (tirage), par l’architecte P. Blin, dessiné par V.C. Juin 1979. 44 x 102,5 cm, 1/2 500 et 1/250.Lieu de conservation : Archives municipales, Besançon - Cote du document : 655 W 161 -
Kursaal. Etat des lieux. Juin 1979.
Kursaal. Etat des lieux. Dessin (tirage), par P. Blin. Janvier 1979. 1/100.N° 1. Sous-sol. 59 x 82 cm.N° 2. Rez-de-chaussée. 58,5 x 104 cm.N° 3. 1er étage. 58,5 x 104 cm.N° 4. 2ème étage. 58,5 x 104 cm.N° 5. Coupe transversale. 43 x 83 cm.N° 6. Façades côté cour. 42,5 x 92 cm.N° 7. Façades sud-ouest, nord-ouest. 42 x 120,5 cm.Lieu de conservation : Archives municipales, Besançon - Cote du document : 655 W 161 -
Kursaal. Logement du concierge. Juin 1979.
Kursaal. Logement du concierge. Dessin (tirage), par l’architecte P. Blin, dessiné par V.C. Juin 1979. 1/500.- N° 1. Etat des lieux. Plans et coupes. 74,5 x 149,5 cm.- N° 2. Etat projeté. Plans, coupes, façades. 49 x 165 cm.Lieu de conservation : Archives municipales, Besançon - Cote du document : 655 W 161 -
Kursaal. Projet de restauration. Avril 1980.
Kursaal. Projet de restauration. Dessin (tirage), par V.C. Avril 1980, mis à jour le 22 octobre 1980. 1/500.N° 3. Rez-de-chaussée. 85 x 164,5 cm.N° 4. 1er étage. 84 x 164 cm.N° 5. 2e étage. 84 x 163,5 cm.N° 6. Combles. Mis à jour le 23 octobre 1980. 84,5 x 164 cm.N° 7. Coupe AA. Modifié le 28 août 1980. 64,5 x 146 cm.Lieu de conservation : Archives municipales, Besançon - Cote du document : 655 W 160 -
[Le Kursaal avant et pendant les travaux]. 1980-1982.
[Le Kursaal avant et pendant les travaux]. Photographies, par Jean-Paul Tupin et Gabriel Vieille. 1980-1982.Notamment :[Charpente supportant la piste de danse], par Tupin, octobre 1980.[Machinerie en bois sur le gril], s.n., s.d. [1980 ?].[Cage de scène], s.n., novembre 1980. Tirage en couleur.[Terrassement mécanique au sous-sol], par Tupin, février 1981.Coffrage de la dalle et mise en tension, par Vieille, août 1981.Lieu de conservation : Archives municipales, Besançon - Cote du document : 655 W 164 -
Inauguration Kursaal. Octobre 1982.
Inauguration Kursaal. Photographie, par Bernard Faille. Octobre 1982. (Voir aussi Ph 93248-93253, 93255, 93256, 93258, 93259, 93474-93480).Lieu de conservation : Bibliothèque municipale, Besançon - Cote du document : Photographies de l’Est Républicain (Bernard Faille), Ph 93247 et 93257 -
Projet de restauration [projet d’une salle de cinéma au-dessus de la salle Proudhon]. Octobre 1984.
Projet de restauration [projet d’une salle de cinéma au-dessus de la salle Proudhon]. Dessin (tirage), par P. Saillard. Octobre 1984. 1/500.- 1er étage. Plan. 36,5 x 92 cm.- 1er étage. Coupe. 30 x 74,5 cm.Lieu de conservation : Archives municipales, Besançon - Cote du document : 655 W 163 -
Kursaal - Salle Proudhon. Aménagement du grand hall. Avant projet sommaire. S.d. [1991].
Kursaal - Salle Proudhon. Aménagement du grand hall. Avant projet sommaire. Dessin (tirage), par le B.E. Benedini. S.d. [1991]. 1/500.- [Plan]. 67 x 42 cm.- Elévation AA. 26,5 x 68,5 cm.Lieu de conservation : Archives municipales, Besançon - Cote du document : 655 W 170 -
[Kursaal. Aménagement du grand hall]. S.d. [1991].
[Kursaal. Aménagement du grand hall]. Dessin (tirage), s.n. [par le B.E. Benedini]. S.d. [1991]. Sans éch.- [Coupe]. 42 x 29,5 cm.- Kursaal. Entrée. Perspective. 29,5 x 42 cm.- Kursaal. Hall. Perspective. 42 x 29,5 cm.Lieu de conservation : Archives municipales, Besançon - Cote du document : 655 W 170 -
[Projet de décor du mur du côté de la promenade Granvelle]. S.d. [1991].
[Projet de décor du mur du côté de la promenade Granvelle]. Dessin, s.n. [par Maurice Janin]. S.d. [1991].Lieu de conservation : Archives municipales, Besançon - Cote du document : 655 W 171
-
Coindre, Gaston. Mon vieux Besançon : histoire pittoresque et intime d'une ville. 3e éd, 1933
Coindre, Gaston. Mon vieux Besançon : histoire pittoresque et intime d'une ville. 3e éd. - Besançon : Jacques et Demontrond, 1933. -
[Exposition. Besançon, Archives municipales. 2015]. Un dimanche à Besançon-les-Bains. Les loisirs du Second Empire au Front Populaire (1851-1936). 2015.
[Exposition. Besançon, Archives municipales. 2015]. Un dimanche à Besançon-les-Bains. Les loisirs du Second Empire au Front Populaire (1851-1936). Besançon : Archives municipales de Besançon, 2015. 86 p. : ill. ; 21 cm. -
[Exposition. Besançon, Archives municipales. 2017]. Besançon de papier. Projets d'urbanisme oubliés du XVIIIe à la fin du XXe siècle. 2017.
[Exposition. Besançon, Archives municipales. 2017]. Besançon de papier. Projets d'urbanisme oubliés du XVIIIe à la fin du XXe siècle. Besançon : Archives municipales de Besançon, 2017. 115 p. : ill. ; 21 cm. -
[Exposition. Besançon, Musée d'Histoire, Palais Granvelle. 1983]. Chronique d'un Kursaal de Province. 1983.
[Exposition. Besançon, Musée d'Histoire, Palais Granvelle. 1983]. Chronique d'un Kursaal de Province. Besançon : Musée d'Histoire de Besançon, 1983. 58 p. : ill. ; 20 cm. -
La grande médaille d'or de l'Association provinciale des Architectes français et son titulaire lyonnais M. Cl. Porte. 1er janvier 1905.
La grande médaille d'or de l'Association provinciale des Architectes français et son titulaire lyonnais M. Cl. Porte. La Construction lyonnaise, 1er janvier 1905, p. 6-7 : ill. -
Le Kursaal-Cirque. 1er septembre 1893.
Le Kursaal-Cirque. Les Gaudes, 6e année, n° 212, 1er septembre 1893, p. 2. Document accessible en ligne à l'adresse : https://memoirevive.besancon.fr/ark:/48565/zxbws5v0l716 -
Meusy, Jean-Jacques. Cinémas de France, 1894-1918. Une histoire en images. 2009.
Meusy, Jean-Jacques. Cinémas de France, 1894-1918. Une histoire en images. Paris : Arcadia éditions, 2009. 295 p. : ill. ; 32 cm. -
Le nouveau Kursaal. Septembre 1982.
Le nouveau Kursaal. Besançon Votre Ville, n° 56, septembre 1982, p. 14-15 : ill. -
Simonin, G. Variétés - Kursaal. Sa restauration. S.d. [1981].
Simonin, G. Variétés - Kursaal. Sa restauration. Dans : Mutuelle des Employés municipaux de la Ville de Besançon. Besançon Municipaux 81. Paris : Impr. Le Tigre, s.d. [1981], p. 33-37 : ill.
-
Foucher, Jean (témoignage oral)
Foucher, Jean. Directeur du Kursaal à Besançon à partir de septembre 2016.
À voir
Informations complémentaires
Le Kursaal-Cirque. Les Gaudes, 6e année, n° 212, 1er septembre 1893, p. 2.
LE KURSAAL-CIRQUE
Les constructions n'en sont pas terminées : aujourd'hui la salle de spectacle seule est livrée au public, bien que la décoration, à laquelle on travaille activement, n'en soit pas entièrement achevée.
Tous les soirs, du reste, depuis l'ouverture, le cirque fait bonne recette, grâce au succès des artistes, écuyères, gymnastes, etc., engagés par Mme Pellegrin et grâce aussi à la salle elle-même, absolument remarquable comme disposition, comme élégance, ampleur, aération et commodités de toutes sortes.
L'ensemble des constructions se compose d'un vaste corps de bâtiment avec étage très élevé, sur cour ; en retour d'équerre, à l'extrémité de ce bâtiment, s'élève la façade du cirque qui sera réellement grandiose, avec large escalier formant perron, étage à colonnes et fronton écussonné aux armes de la ville et par-dessus le tout un dôme avec belvédère surmonté d'un phare électrique.
La salle de spectacle, située derrière cet avant-corps, contient 2 650 places numérotées : avec celles debout, on estime à plus de 3 000 le nombre des spectateurs qu'elle est susceptible de recevoir ; ses dimensions sont d'environ 27 mètres de diamètre et 25 d'élévation : elle est divisée en 4 étages : les stalles, à 4 rangs de strapontins, les premières et deuxièmes galeries à 3 rangs, la troisième galerie à 2 rangs, avec passage circulaire. Six colonnes supportent la coupole formant un hexagone dont l'un des côtés, à partir de la première galerie, s'ouvre largement pour la scène : cet espace, les jours de représentation de cirque, est occupé par 7 rangées de strapontins en gradins, et par l'orchestre ; en dessous se trouve l'entrée des chevaux et du personnel du cirque.
Pour les représentations d'opérette, un vaste plancher de 620 mètres carrés viendra s'adapter au-dessus de la piste et des stalles. Nous retrouverons même dans ce cirque les naumachies, attractions qu'il y a 15 et 16 siècles les citoyens de Vesontio trouvaient à leur théâtre situé sur le versant du mont Cœlius.
En effet, tout est disposé pour, à certains jours, pouvoir monter et remplir d'eau en très peu de temps un vaste bassin au-dessus de la piste. L'eau ne manque pas : on trouve de tous côtés et à tous les étages, des robinets munis de leurs tuyaux d'incendie et de la lance.
On parvient à chacun des étages par des escaliers spéciaux, entièrement en pierre, chaque étage est aussi pourvu d'une buvette, de commodités et de cabinets de toilette garnis de glaces, et des menus objets que réclame la toilette féminine.
En outre, un vaste foyer s'ouvre sur la première galerie et tout autour des stalles règne un promenoir très large donnant accès sous la scène et dans les écuries. Même un bureau de tabac sera établi dans le vestibule.
L'aération de la salle ne laisse rien à désirer : sans parler de l'ouverture ménagée au-dessus du lustre, l'air échauffé et vicié peut s'échapper par un treillage circulaire et par six larges fenêtres ouvertes dans le dôme, tandis que les bouches de chaleur des 3 calorifères distribuent, d'en bas, en hiver la chaleur et en été l'air froid chassé de la glacière.
L'éclairage est fait entièrement à l'électricité, d'abord par un lustre superbe, copié sur celui du théâtre Bellecour à Lyon, puis par six lampes et par des faisceaux de lumières fixés aux six colonnes de la salle ; la décoration de celle-ci est très belle, nous signalerons spécialement les douze grandes figures, hautes de 3 mètres, peintes de chaque côté des six fenêtres du dôme et représentant soit Pierrot, soit Arlequin et Colombine, soit des athlètes, des jongleurs, des écuyères, des clowns et des danseuses.
Ces figures ont été brossées en moins de 15 jours par M. Bardey (1), décorateur lyonnais, assisté de M. Girin.
Quant aux décors, ils sont en zinc, et repliants, en sorte que leur mise en place, leur enlèvement et magasinage se font avec une grande facilité.
Nous aurons à reparler plus tard du bâtiment de droite encore en construction. Disons seulement qu'il reçoit en ce moment en sous-sol la machinerie (2). Le rez-de-chaussée comprendra les cuisines, le restaurant et la brasserie, à l'étage sera le cercle avec salle de 6 billards, salle d'armes, etc.
Les devis ont été dressés par MM. Claudius Poste de Lyon, et Louis Garin, architecte à Besançon
Notes
(1) Louis Bardey, élève de l'école des beaux-arts de Lyon, peintre décorateur issu d'une famille franc-comtoise.
Ses principaux travaux sont : les décorations du Palais Saint-Pierre, du Musée du Commerce, du Palais du Commerce, de la Préfecture, à Lyon ; celles du Casino d'Uriage, de la Chapelle de Pesmes, près Montrambert, etc., etc.
(2) (Dynamos de la maison Paul Démange et Sâtre de Lyon). En creusant près des fondations de la cheminée, on a mis à découvert il y a moins d'un mois, un puits, au revêtement de briques romaines ; il peut alimenter d'eau la machine à vapeur.
L’adjudication aura lieu aux enchères publiques, le JEUDI VINGT ET UN FEVRIER mil huit cent quatre-vingt-quinze, à l'audience des criées du tribunal civil de première instance de Besançon, séant au palais de justice de ladite ville, salle desdites audiences, dès les neuf heures du matin.
On fait savoir à tous ceux qu'il appartiendra :
Qu'en vertu et exécution :
1° D'un procès-verbal de saisie immobilière, dressé par Me Morel, huissier à Besançon, les dix-neuf et vingt mars mil huit cent quatre-vingt-quatorze, enregistré, dénoncé et transcrit au bureau des hypothèques de Besançon, le vingt-trois mars mil huit cent quatre-vingt-quatorze, vol. 171, n° 15 ;
2° D'un jugement rendu sur requête par le tribunal civil de Besançon, le trois janvier mil huit cent quatre-vingt-quinze, enregistré et mentionné au bureau des hypothèques de Besançon, en marge de la saisie,
A la requête de :
1° Mme Marguerite RAQUIN, veuve de M. Claude-Antoine GERIN, rentière, demeurant à Lyon, boulevard de la Croix-Rousse, 90 ;
2° M. Jacques-Anne-Antoine CHAZOT, clerc de notaire, demeurant à Lyon, quai de Tilsitt, 12 ;
3° Mme Marguerite MOINE, épouse divorcée de M. Antoine TROUILLEUX, propriétaire, demeurant à Vareille, commune d’Ambérieux (Ain),
Créanciers saisissants, ayant pour avoué constitué Me A. Postansque ;
Et :
1° Mme Ernestine-Mélanie RIVIER, propriétaire-négociante, veuve de M. Paul-François-Constant PELLEGRIN, demeurant à Besançon, débitrice saisie ;
2° M. Théodore VIOLET, agréé au Tribunal de commerce de Besançon, y demeurant, agissant en qualité de liquidateur judiciaire de Mme Pellegrin susnommée,
Ayant Me Maire pour avoué.
Il sera procédé, aux jour, heure et lieu susindiqués, à la vente des immeubles dont la désignation suit :
Un vaste immeuble connu communément sous le nom de KURSAAL-CIRQUE et comprenant :
1° Un vaste terrain, sis rue Mairet, n° 1, en nature de propriété bâtie, d'une contenance approximative de deux mille cent soixante-quinze mètres carrés, n° 669 et 754, section K, classe 1, et touchant au nord-est les propriétés Allard, Rousseau, Zani, Lesterlin et Corne ; à l’ouest, Lebon, Magdanel, Péchaud, Marchal, Gounand, Boigeault, Boutoux, Petit ; au sud-ouest, Lebault et la rue Mairet, et à l'ouest, la rue Mairet et l'héritage Miot ;
2° Un important établissement, bâti sur ce terrain en pierres de taille, maçonnerie et briques, dit Kursaal-Cirque, comprenant : Trois grands corps de bâtiments, ci-après désignés, avec bâtisses secondaires, le tout d'une seule agglomération, dont l'entrée principale est rue Mairet.
1° Un corps de bâtiment de forme rectangulaire en pierres, couvert en tuiles, élevé en prolongement sur grandes caves voûtées formant la partie est-sud du Kursaal-Cirque, avec façade principale au-devant de la grande cour d’entrée et comprenant notamment au rez-de-chaussée : grande salle de café, brasserie, petite scène pour concerts, chambres, accessoires, bureaux, entrepôt, locaux non achevés pour cercle à l'étage et combles au-dessus.
Contre le pignon opposé à la façade principale sont adossés des bâtiments secondaires en briques et charpente avec toiture en tuiles, destinés à recevoir les machines tant pour le chauffage que pour l'éclairage, la grande cheminée cylindrique en briques et accessoires, la loge du concierge, etc.
2° Un autre corps de bâtiment contigu au précédent, formant avec celui-ci un angle droit et constituant toute la longueur du Kursaal-Cirque de droite à gauche, comprenant : Vestibules d'entrées avec foyer, hall, locaux pour cercle, laboratoire, cuisine, arrière-cuisine, appartements et accessoires. Il est élevé sur un sous-sol, sur emplacement pour écurie et cave, d'un rez-de-chaussée, deux étages et combles au-dessus, avec magnifique façade sur la grande cour au droit de la rue Mairet.
3° Un troisième corps de bâtiment à la suite du précédent, de forme rectangulaire comprenant établis, cirque, salle de concert et de spectacles ; divers locaux et accessoires comprenant principalement : au rez-de-chaussée, cirque, piste, garde-corps, quatre rangs de gradins fixés en amphithéâtre, pourvus de stalles adhérentes ou fauteuils à sièges mobiles, marqués avec initiales K C. Un plancher démontable, supporté par une forte charpente, le sépare de la salle de théâtre qui forme l'étage.
Dans la salle de spectacle, contenant deux mille cinq cents places environ, richement décorée, se trouvent notamment : quatre rangs de gradins en amphithéâtre, parterre, loges, première et deuxième galerie, scène, tous les décors et accessoires ; et en dehors, matériel de machines : trois herses avec poulies, cordages et moufles, manœuvrées au moyen d'un gril à proximité ; loges d'artistes, locaux de service, cabinets d'aisances, bouches à incendie et tous autres accessoires.
Un calorifère pour le service général de l'établissement est installé à côté du cirque.
Sont formellement exceptés de ladite vente :
1° Une bande de terrain au joignant de la rue Mairet, quelle qu'en soit la superficie, que Mme veuve Pellegrin a cédée à la ville de Besançon en vue de l'élargissement projeté de cette rue, suivant acte administratif du 2 novembre 1894 enregistré,
2° Et généralement tous les objets se trouvant ou pouvant se trouver dans le compartiment des machines et dans le compartiment voisin, lesdits objets consistant en :
Deux chaudières tôle et fer, système Parent, de Lyon, demi-tubulaire à foyer extérieur, établies sur terre-plein maçonné, cinq outils en fer et tous accessoires, un chaval pompe [sic] pour l’alimentation des chaudières et tous accessoires avec conduites, objets de transmission et tous accessoires, un récipient en tôle avec couvercle et accessoires pour le service des chaudières, deux machines à vapeur horizontales avec garde-corps établis sur maçonnerie, de chacune vingt-cinq chevaux assorties de leur condensateur avec transmission pour dynamo ; outillage d’entretien et autres accessoires, système P. Demange et Sare, de[…] Deux dynamos, système Gantz et Cie nos 922 et 927, de 15[… am]pères et 110 volts, avec tous accessoires, un appareil con[…] au tableau de distribution de la lumière électrique […]
[…] bronzé ; deux grands lustres en cuivre rouge, à huit becs électrique et huit becs à gaz ordinaire chacun ; six appliques en cuivre rouge à deux becs chacune ; sept grandes glaces encastrées dans la boiserie. Sur la petite scène : trois appliques en cuivre à un bec électrique ; un lustre et cinq becs semblables ; la draperie de cette petite scène et celle de la glace ; deux becs électriques dans les cabinets d'aisances.
Cent trente-six chaises, bois brun, siège bois, marque K C ; vingt-huit guéridons marbre, pied fonte bronzée ; trois tables marbre rectangulaires, pied fonte bronzée ; trois tables rectangulaires noyer, pieds tournés ; un porte-habits et chapeaux ; deux porte-éponge métal, pied bronzé ; une table de salie à manger en chêne ; six chaises cannées bois noir ; deux guéridons fer, pied fonte ; quatre lustres en cuivre à quatre becs.
Deux guéridons marbre, pied fonte bronzée ; deux chaises dossier brun, siège bois, meuble de salle à manger, dessus marbre avec étagère ; une chaise de jardin ; escalier en chêne sculpté ; une lampe à électricité en cuivre.
Dix-sept chaises, dossier brun, siège bois ; une table rectangulaire noyer, pieds tournés ; rideaux de fenêtre ; un lustre en cuivre doré à cinq becs électriques.
Dans une petite salle attenante à la brasserie, quinze chaises, dossier brun, siège bois ; une table noyer pieds tournés ; rideaux de fenêtre ; une applique à gaz en cuivre.
Trois cent soixante-six verres taillés, apéritifs et café ; trente verres mousseline à Bordeaux, neuf verres mousseline pour restaurant, soixante-quinze verres mousseline à liqueur, quarante et un verres mousseline madère, vingt-quatre verres mousseline vermout quatre cent quatre-vingt-quinze bocks quart, quarante-quatre bocks demi, quatre-vingt-seize verres citron, soixante-dix-neuf carafes ordinaires, trente-neuf carafes taillées, cinq porte-cigares, neuf porte-allumettes ; quatre-vingts bouteilles diverses liqueurs en vidange, cinq cent quarante soucoupes diverses, quatre cent vingt-six sous-bocks quart, treize sous-bocks demi, cent quatre-vingt-huit soucoupes, sucrier, dix-sept pots au lait porcelaine (marqués K C) ; quarante et une demi-tasses café avec soucoupes (marquées K C); six tasses à café au lait avec soucoupes (marquées K C) ; banquette de comptoir, seize petites soupières (marquées K C) ; dix moutardiers (marqués K C) ; sept assiettes émaillées ; machine à nettoyer les couteaux, vingt-six plateaux assortis métal (marqués K C) ; vingt deux carafons à cognac, trente et un verres taillés à cerises, huit flacons à fleur d'oranger, vingt-huit coupes mousseline à Champagne, seize coupes taillées à Champagne, neuf plats, sept assiettes, une saucière, deux bols ; service porcelaine blanche filets jaune et noir et aux initiales du Kursaal-Cirque, comprenant: cinq cent soixante-dix-huit assiettes plates et creuses, vingt-cinq saladiers, quarante-huit petites soupières, soixante et onze petits plats creux, dix-huit plats divers, neuf salières, six moutardiers, treize fruitiers et encore cent treize-assiettes ; six tapis de cartes, deux damiers, un jacquet, six vieux jeux de cartes (marqués K C), un presse-carte, un timbre, deux cent cinquante jetons longs et ronds ; un comptoir, dessus marbre, à cinq tiroirs et porte ; buffet-étagère chêne, avec quatre armoires à deux portes dans le bas ; la plupart de ces objets portent la marque K C. Douze tapis de table en laine verte ; un meuble glacière chêne, système Cubain frères, de Paris ; un timbre d'appel en cuivre ; l'installation en chêne de la pompe à bière et accessoires, appareil réfrigérant, garni d’étain avec éviers et égouttoirs adhérents en chêne, à des gradins semblables ; deux étagères à colonnettes, cuivre doré ; buffets intérieurs et robinets nickelés ; fauteuil bois à trois places pour comptoir, appuyé contre rampe pleine en chêne ; une lyre à deux becs électriques ; un autre bec semblable, six kilos de plaques pour numérotage et accessoires, grand vitrage entre laboratoire et cuisine avec buffets et tiroirs.
Deux casseroles et deux plats cuivre, trois passoires, casserole, trois plats fer-blanc, écumoire, louche et écuelle à frire, trois cuillères en bois, boîte à café en tôle, deux percolateurs, deux cafetières en cuivre, deux bains-marie, six bouillottes, un bain-marie sans bouillotte, balance avec poids, pilon en grès, quatre pots fonte, sept bassines fonte émaillée, cinq casseroles, marmite en fonte, boîte à sel, sept boîtes à thé et épices, buste de la république en terre, sept plats à escargots, huit coquetiers métal, seau à charbon, tamis, poêle à frire, râpe à fromage, cinq pots, trois plats, deux saladiers, table avec billot, pot à café grès, panier à pain, deux chaises cannées bois noir, six casseroles, treize soucoupes, deux gamelles à soldat, dix-neuf petits plats, deux théières, deux pots, quatre compotiers, sept bols, soixante-quatre assiettes, huit bouillottes cassées, moulin à café argenterie (marqué K C), deux seaux à glace, quatre-vingt-dix cuillères à café ruolz (marquées K C), soixante-quatre cuillères à café métal ordinaire (marquées Casino du Jardin), soixante et onze cuillères à absinthe ruolz (marquées K C), dix théières, trois verseuses métal blanc (marquées K C), vingt-quatre fourchettes à huîtres, douze à escargots, six sucriers ruolz (marqués K C), bols à punch avec plateau métal, deux écuelles à bière en métal, vingt-huit cuillères, trente-sept fourchettes (marquées K C), six louches et cuillères à punch ruolz (marquées K C), six fourchettes et sept cuillères métal argenté (marquées K C), trois huiliers métal avec carafes (marqués K C), soixante-neuf couteaux manche noir, sept couteaux manche blanc (marqués K C), soixante-dix cuillères et soixante et une fourchettes métal ordinaire (marquées Casino du Jardin), deux casse-noix, deux corbeilles papiers à pain, grand fourneau en fer et tôle, de quatre-vingt-dix centimètres sur deux mètres, bouilloire, séchoir, et percolateur en cuivre, gril et réchaud à gaz montés sur massif en briques, étouffoir cylindrique, rayonnages de l'arrière-cuisine, étagère à trois rayons,
Linge : Vingt-sept nappes, cent soixante-dix serviettes, douze torchons, vingt-deux tabliers.
Trois cent quatre-vingt-onze chaises, dossier brun, siège bois, cinq chaises, dossier brun, siège bois, sans initiales ; soixante-trois guéridons fer, pied fonte bronzée, cent cinquante-cinq chaises de jardin, bureau de contrôle, sapin peint, deux tables noyer, pieds tournés cassés, deux chaises de chef d’orchestre, bois noir, six lampes à arcs, monture cuivre, à la hauteur des premières galeries ; au plafond, un grand lustre doré à six lampes à arcs ; deux autres à dix becs chacun, à incandescence, adapt[…]s aux deux colonnes de l’avant-scène, quatre girandoles à […]une cinq becs, tableau de distribution de la lumière pour […]ue, quarante becs électriques à la rampe de scène, […]ses, l’une à dix becs électriques et deux à quatorze becs chacune. Les tentures de l'entrée des galeries et des vestiaires, à chaque étage. Au parterre de la salle, quarante fauteuils en velours rouge-grenat, sièges à bascules, d'environ cent trente places et les loges. Tous les fauteuils en bois à bascule, fixés dans les quatre rangs des premières galeries, ainsi que les bancs en bois des deux gradins de la deuxième galerie, décors montés, autres non placés, quatre tambours à décors, quatre échelles et trois planches à décors,
Deux lustres en cuivre nickelé de chacun cinq becs électriques, deux becs appliques à gaz en cuivre.
Dans la salle de jeu et vestibule.
Huit guéridons marbre, pied fonte, quatre chaises, dossier et siège bois brun, trois lustres en cuivre doré de six becs électriques chacun.
Onze guéridons fer pied fonte bronzée. Vingt-cinq tables noyer pieds tournées, dix chaises dossier et siège bois noir sans initiales. Trois lustres en cuivre de chacun quatre becs électriques et quatre becs à gaz. Un bec électrique applique au vestiaire.
Onze guéridons fer, pied fonte bronzée. Porte-éponge en métal (cassé), comptoir dessus marbre. Rafraîchissoir, cinq chaises jardin. Rayonnage tapis peint. Quatre lampes à incandescence avec réflecteurs.
Deux guéridons marbre, pieds cassés. Grillage en fer.
Vieilles cuvettes, pendule, pendule ancienne, moules. Tapis de scène. Tapis et rideaux pour danse serpentine. Commode et cheminées appliques, six portemanteaux, glace cadre noir. Cinq cuvettes et trois brocs fer-blanc, vingt-cinq chaises dessus brun, siège bois, vingt trois chaises de jardin, trois guéridons fer, trente-trois appliques à un bec électrique. Trois autres becs à incandescence. Neuf rayonnages sapin.
Baignoire. Trois lustres à gaz à quatre becs. Une vieille voiture, lot de bois et planches aux entrepreneurs. Dix-neuf guéridons fer pied fonte. Deux chaises de jardin. Une chaise de bois brun. Toutes les stalles, avec fauteuils en bois avec sièges à bascules, tant ceux démontés et déposés dans le pourtour que ceux fixés sur les quatre rangs de gradins du cirque, soit cent cinquante-neuf, d'environ sept cent dix-neuf places sur le cercle de la piste, en bois garni. Dans la piste, trois piles de gradins en sapin en comprenant soixante-sept, des barrières circulaires et la rampe, les barrières d'orchestre, le tout en sapin et démontable, tous accessoires. Au-dessus, le plancher mobile avec sa charpente, qui sépare la salle du cirque de la salle du théâtre.
Vingt-quatre carafes ordinaires, dix taillées. Deux cent soixante-douze bocks quart et demi, cent soixante verres à cerises, cinquante verres à liqueur, quarante et une grandes soucoupes, tasses au lait, et quinze tasses marquées K C, cent dix verres à vin et à café, quinze soucoupes à tabac, vingt pots au lait et vingt presses à citron, quatre-vingt-cinq tasses à café et soixante-huit soucoupes, trente-neuf soucoupes à champagne, cent cinquante verres à vermout, six cent soixante-huit soucoupes bocks, deux cent quatre-vingt-huit soucoupes liqueurs diverses. Vieux buffet, cinq tabourets, table bois et cheva1 pantomime.
Vieilles portes, planches, fenêtres, deux bois de lit.
Treize tables en fer. Trois tonneaux. Lot fer et ferraille. Lot bois boiserie. Pied de table fonte et petite turbine. Trois grils de chauffage, ouverture de calorifère, vingt-sept fûts vides.
Un bureau de sapin raboté, un banc, plusieurs tréteaux.
Seize portes prêtes à poser, et vingt-quatre cadres de portes, le tout en sapin.
Et tous autres objets et effets réputés immeubles par destination, attachés ou incorporés à l'immeuble du Kursaal-Cirque ci-devant décrits, tous ceux destinés à son usage, affectés à son service ou nécessaires à son exploitation, toutes ses aisances, appartenances et dépendances sans exception ni réserve, et tous les droits immobiliers saisissables, de quelque nature qu'ils soient, afférents audit immeuble, étant bien stipulé que la présente énumération n'est faite qu'à titre de renseignements, mais sans aucune garantie de la part des poursuivants et des vendeurs, qui ne pourront être ni recherchés ni inquiétés à ce sujet.
II est en outre déclaré que tous ceux du chef desquels il pourrait être requis des inscriptions pour cause d'hypothèques légales devront les faire inscrire au bureau des hypothèques de Besançon avant la transcription du jugement d'adjudication, sous peine de forclusion.
Le cahier des charges, clauses et conditions de la vente, dressé par Me Postansque, avoué poursuivant, est déposé au greffe du tribunal civil de Besançon, où tout amateur peut en prendre connaissance.
Pour tous renseignements, s'adresser soit à Me TREVOUX, notaire à Lyon, rue de la République, n° 30 ;
A Me GAGER, avoué près le tribunal civil de Lyon, rue de l'Hôtel de Ville, n° 37 ;
A M. PORTE, architecte à Lyon ;
A Me VIOLET, agréé, place Saint-Pierre, n° 1, à Besançon ;
A Me MAIRE, avoué près le tribunal, rue Mégevand, n° 27.
Et pour visiter, avec l’autorisation de Me Violet, agréé, de Me Maire, ou Me Postansque, avoués, s’adresser au gardien du Kursaal-Cirque, sur les lieux.
Fait et rédigé à Besançon, le quinze janvier mil huit cent quatre-vingt-quinze, par l’avoué poursuivant soussigné.
Signé : A. POSTANSQUE.
Cahier des clauses administratives particulières (C.C.A.P.), 22 octobre 1980
Maître de l’ouvrage : Ville de Besançon
Objet du marché : Variétés Kursaal. Restauration générale
1.2. - Tranches et lots
Les travaux sont répartis en 3 tranches et les différents lots sont indiqués ci-après :
1ère tranche (A. logement du concierge
(B. Salle de variétés et annexes
Lot n° 1 - Démolition - Gros oeuvre
Béton armé - Documents CETEL
Lot n° 2 - Chauffage - " BELLUCI
Lot n° 3 - Electricité - " CORNET
Lot n° 4 - Menuiserie
Lot n° 5 - Plâtrerie Peintures - Staffs restauration
Lot n° 6 - Faux plafonds Isolation
Lot n° 7 - Carrelages - Faïences
Lot n° 8 - Revêtements collés
Lot n° 9 - Plomberie-sanitaires
Lot n° 10 - Couverture - Zinguerie
Lot n° 11 - Serrurerie
Lot n° 12 - Etanchéité
Lot n° 13 - Ascenseur-Monte plats
Lot n° 14 - Téléphone )
Lot n° 15 - Eclairage Scénique ) Documents CORNET
Lot n° 16 - Sonorisation )
Lot n° 17 - Vitrerie - Miroiterie
Lot n° 18 - Sièges de salle de spectacles
Lot n° 19 - Tenture - Rideaux de scène
Lot n° 20 - Sécurité Incendie
Lot n° 21 - Protection des bois
Lot n° 22 - Aménagement Vestiaire Signalisation
2ème tranche C. Salles d'Associations
Lots n° 1, 2, 3, 4, 5, 6, 7, 8, 9, 10, 11,
14, 17, 18, 19, 20, 22
3ème tranche D. Salle du sous sol
Lots n° 1, 2, 3, 4, 5, 6, 7, 8, 9, 10, 11,
14, 15, 16, 17, 18, 19, 20, 22
Additif du 8 janvier 1981
Les lots 14 (téléphonie), 15 (éclairage scénique), 16 (sonorisation) et 18 (sièges de salles de spectacle) seront traités ultérieurement.
Le Grand Kursaal. Fiche technique. Besançon : Kursaal, 10 décembre 2021. 12 p. : ill. ; 30 cm.
Le Petit Kursaal. Fiche technique. Besançon : Kursaal, 21 décembre 2022. 12 p. : ill. ; 30 cm.
Proudhon [fiche technique]. Besançon : Kursaal, mars 2021. 7 p. : ill. ; 30 cm.
Rare témoin des bâtiments dédiés à l'art circassien, le Kursaal est toujours une salle de spectacle et a conservé son décor d'origine.
- salles de spectacle de Bourgogne-Franche-Comté
- cirque
- brasserie (restaurant)
- cour
- conciergerie
- © Région Bourgogne-Franche-Comté, Inventaire du patrimoine
