FORT SAINT-ANDRÉ
39 - Salins-les-Bains
Fort Saint-André - Fort Saint-André - chemin du Fort Saint-André
- Dossier IA39002036 réalisé en 2021 revu en 2023
- Auteur(s) : Guillaume Gézolme
Présentation
Au 14e siècle, une tour est érigée par les comtes de Bourgogne. Après la guerre de Dix ans (1634-1644), le sommet du mont est fortifié, sous le commandement du surintendant des fortifications de Bourgogne, Duchamp, pour protéger la place de Salins en cas de nouvelle d'attaque française. Seul le front sud-ouest est militarisé : une fois le parapet achevé, des casernements et un mur d'enceinte équipé de créneaux et de meurtrières sont bâtis. Ce fort est achevé en 1647. Salins est une place forte stratégique dans le système défensif face au royaume de France.
La conquête du fort par les troupes royales et sa reconstruction
Le fort est conquis une première fois le 20 avril 1668 par les armées de Louis XIV, commandées par le duc du Luxembourg. Mandaté par le roi pour reconstruire les fortifications de Salins, Vauban n'a pas le temps cependant de mener à bien cette entreprise. La signature du traité d'Aix-la-Chapelle en mai 1668 réattribue le comté de Bourgogne (future Franche-Comté) à Charles II, roi d’Espagne. La forteresse est dès lors restaurée et modernisée et une demi-lune est construite en avant d'un parapet érigé en 1638. La paix est éphémère, et un nouveau siège est mené en 1674 par le duc de la Feuillade sur ordre du roi de France. Il débute le 4 juin et le fort est pris dix jours plus tard. Une grande partie des fortifications sont détruites ainsi que les casernes.Dès la prise de la place de Salins le 21 juin 1674 (capitulation de la ville et des forts), le roi Louis XIV donne l'ordre de reconstruire le fort Saint-André. Vauban s’attèle à la réalisation des plans, reprenant le tracé en quadrilatère des ingénieurs espagnols. Il dessine une citadelle et propose d'élever une nouvelle escarpe avec parapet, de creuser des fossés larges et profonds autour de la plate-forme et de limiter l'accès à un seul point, au sud-ouest avec la construction d'une contrescarpe. La première pierre est posée le 18 octobre 1674 par l’Intendant Camus de Beaulieu. Les travaux sont dirigés durant plusieurs mois par François de la Motte-Villibert, comte d'Aspremont, ingénieur du roi et gouverneur de Salins, en l’absence de Vauban, envoyé par le roi dans les Flandres. D'aspremont souhaite réaliser des flancs superposés, mais ce projet est abandonné au retour de Vauban en 1675. Le fort est bastionné sur ses ailes sud-ouest et ouest, les autres ailes étant naturellement inattaquables. Vauban renforce le front sud-ouest par une demi-lune avec un pont-levis et corps de garde. Les casernes sont édifiées en 1677 (date portée). Avec la création de la chapelle, le fort devient une paroisse. Il peut accueillir jusqu'à 660 hommes et supporter un siège de 45 jours. Vauban revient en 1679 pour constater la fin des travaux des forts de Salins.
Le fort Saint-André : une prison
Dès 1682, le fort sert de lieu de détention. A l'instar du château de Joux, des prisonniers politiques y sont incarcérés. En 1735, la route y menant est pavée jusqu'alors accessible par des sentiers difficiles et escarpés. Dans un mémoire de M de Cormontaigne (1746) portant sur les fortifications de la ville et des forts, le fort est dit être "le meilleur qu'il y ait en Franche-Comté pour l'aisance de la deffensive". En 1792, des commissaires de la Convention nationale inspectant la frontière du territoire se rendent au fort Saint-André. Lors de leur visite, ils sont rassurés sur son état général, capable de supporter un siège. Les bâtiments compris dans l'enceinte méritent néanmoins des restaurations alors que sont nécessaires la réparation de brèches et de parapets à certains endroits des remparts. Les commissaires approuvent aussi l'approvisionnement en armes du fort. Pendant la Révolution, la citadelle est transformée totalement en prison. Renommé fort égalité, le fort reprend son nom d’origine en 1799. Au cours de la guerre d'Espagne (1808-1814), près de 600 personnes y sont emprisonnées.Derniers faits d'armes et ultimes améliorations
En 1813, Saint-André est réarmé et accueille une garnison de 120 hommes mais l'invasion des Autrichiens en 1814, le met en péril, le commandant en place (Roudy) déposant les armes en janvier 1815. Quatre grandes brèches sont ouvertes au niveau de la courtine sud-ouest, les portes et parapets détruits et la plupart des bâtiments pillés et saccagés. Le fort échappe à sa destruction totale grâce aux Salinois qui consentent à payer le tribut demandé par les Autrichiens : les notables locaux rachètent les bâtiments pour 4 000 francs. Certaines sources attribuent ce sauvetage au général Marulaz qui noua une relation cordiale avec Jean 1er, prince de Liechtenstein à l’issue, de sa reddition au siège de Besançon. Le fort bénéficie de réparations urgentes, montrant que Vauban s’était bien appuyé sur les tracés de l'ingénieur Duchamp en 1674. Lors du retour de Napoléon Bonaparte au pouvoir en 1815 (appelé communément l'épisode des 100 jours), la 7e coalition (réunissant l'Autriche, la Prusse, le Royaume-Uni, les Russes, l'Espagne, la Suède et des état allemands) envahit Salins et bombarde lourdement le fort Saint-André, qui se rend deux jours plus tard.Redevenus place forte royale, Salins et ses forts (Saint-André, Bracon et Belin) sont intégrés au plan de défense du Jura voulu par le roi Louis XVIII et dont le général Haxo a la charge. En 1817, la Direction du Génie de Besançon via son Comité des Fortifications rédige un mémoire sur l'état de la place après l'invasion autrichienne. Des trois forts, Saint-André est le moins dégradé mais d’importants travaux sont à prévoir : réparer les brèches présentes sur le front d'attaque, reconstruire les parapets ainsi que l’ensemble des ponts et portes permettant l’accès au fort. Un état des lieux du système défensif du fort met en avant la nécessité de bâtir un ouvrage avancé (une lunette) sur le glacis, à 500 m de là pour empêcher l'ennemi d'installer de l'artillerie. Enfin, seule la poudrière est à l'épreuve de la bombe. Pour y remédier, le lieutenant-colonel en charge du fort propose au Comité du Génie d’établir des casemates le long de la courtine pour y loger une garnison. Ce projet nécessite de démolir le logement de l’aumônier et le bâtiment de la salle d'arme qui seraient transférés à gauche de la caserne appelée V. Les murs pignons des casernes seraient davantage défendus en les épaississant et en les voûtant. Le comité décide le 19 juillet 1825 d'ajourner indéfiniment l’exécution de la lunette projetée en avant du fort. En 1828, le chef de bataillon du Génie en chef De Rochelle, estime le fort et ses bâtiments en bon état et prêts à résister à des assauts ennemis. Mais en 1843, le grand arceau du mur d'enceinte (façade est des remparts) menace ruine de même que le pilier qui le soutient. Le capitaine chef du Génie, Chavelet, propose le 26 février 1844 de re-maçonner le milieu du pilier et la voûte de l'arceau.
Les multiples restaurations n’empêchent pas le site de redevenir un lieu de détention en 1851, d'autant que le fort n'est pas entretenu sous le second Empire. Il résiste au siège des prussiens en 1871, tenant jusqu’à la signature de l'armistice (28 janvier). Son ultime amélioration est la construction de trois salles casematées le long de la courtine (intérieur du fort), équipées de cheminées d'aérations. Malgré l'acte de bravoure de 1871, le déclassement du fort intervient en 1889. A cette période, il prit le nom de Fort Préval en référence à deux généraux salinois portant le même nom. Le site conserve une garnison jusqu'en 1919.
Le fort au 20e siècle
En mai 1922, le fort est acheté par la ville de Salins au service du Domaine (dépendant de l’État). Sa première reconnaissance historique intervient la même année : il figure parmi les Sites et monuments naturels de caractère historique. La ville, ne pouvant assurer l'entretien des lieux, décide de le louer par un bail emphytéotique de 99 ans. Un premier bail semble être accordé à la Société anonyme des Eaux minérales en décembre 1922, bail repris par l'armée qui souhaite y organiser un centre de vacance. Il accueille des colonies de vacance à partir de 1924, et à nouveau à partir de 1953, en tant que centre de colonie pour l'Action Sociale des forces armées. Ces colonies sont interrompues avec l’occupation du fort par le service de Santé de l'Armée française (de septembre 1939 à juin 1940) puis par celle des forces allemandes. Cette période est marquée par une forte dégradation des bâtiments, avec notamment un incendie le 13 février 1942. Le site est dans un état de délabrement avancé après l’occupation allemande : le pont (de la porte monumentale) est en toujours en place mais les portes métalliques ont été découpées au niveau des gonds et la seconde porte, en chêne, arrachée est à terre. L'ensemble des bâtiments sont à l'abandon et celui du Gouverneur qui a subi l'incendie est dans un piètre état (Il abritait la chambre historique dit "chambre Vauban").En 1960, un poste de relais (construction de 10m2) est installé a proximité de la chapelle et un mât aérien est fixé sur le toit de l'édifice. Vers 1974, des campagnes de restauration sont menées pour consolider les remparts longeant l'accès au fort et à l'est, derrière la chapelle.
Le fort est classé Monument historique le 5 juillet 1993. Actuellement, les locataires (bail emphytéotique de la mairie) en rénovent et consolident les parties détériorées, afin de rendre le site accessible au public.
Historique
Au 14e siècle, une tour est érigée par les comtes de Bourgogne. Après la guerre de Dix ans (1634-1644), le sommet du mont est fortifié, sous le commandement du surintendant des fortifications de Bourgogne, Duchamp. Le fort est conquis une première fois le 20 avril 1668 par les armées de Louis XIV. Lors de la seconde conquête de la province en 1674, un nouveau siège est mené par le duc de la Feuillade sur ordre du roi de France, le 4 juin. Lle fort est pris dix jours plus tard. Une grande partie des fortifications sont détruites ainsi que les casernes. dès la prise des lieux, Vauban s’attèle à la réalisation des plans, reprenant le tracé en quadrilatère des ingénieurs espagnols. La première pierre est posée le 18 octobre 1674 par l’Intendant, Germain-Michel Camus de Beaulieu. Vauban revient en 1679 pour constater la fin des travaux du fort de Saint-André. Dès 1682, le fort sert de lieu de détention. En 1735, la route y menant est pavée jusqu'alors accessible uniquement par des sentiers difficiles et escarpés. Dans un mémoire de M de Cormontaigne (1746) portant sur les fortifications de la ville et des forts, le fort est dit être "le meilleur qu'il y ait en Franche-Comté pour l'aisance de la deffensive". Pendant la Révolution, la citadelle est transformée totalement en prison. Renommé fort égalité, le fort reprend son nom d’origine en 1799. Le fort est restauré suite aux attaques de l'armée autrichienne en 1815, travaux en partie supervisés par le général Haxo. Le site redevient un lieu de détention en 1851. Le déclassement du fort intervient en 1889. A cette période, il prit le nom de Fort Préval en référence à deux généraux salinois portant le même nom. Le site conserve une garnison jusqu'en 1919. En mai 1922, le fort est acheté par la ville de Salins au service du Domaine (dépendant de l’État). Le fort est classé Monument historique le 5 juillet 1993.
- 4e quart 17e siècle
- 1ère moitié 18e siècle
- 19e siècle
- 20e siècle
Date de naissance : 15/05/1633 - date de décès : 30/03/1707
Le Prestre, Sébastien (1633 - 1707) dit Marquis de Vauban. Ingénieur et architecte militaire. Né le 15 mai 1633 à Saint-Léger de Fougeret (Yonne) devenu Saint-Léger-Vauban en 1667, mort à Paris le 30 mars 1707. il est nommé ingénieur du roi en 1653. En 1668, alors maréchal de camp, Louvoie lui confie l’organisation des places fortes. Il est nommé commissaire des fortifications du royaume en 1678, lieutenant général en 1688<span style="vertical-align:super;"> </span>et maréchal de France en 1703.
Date de naissance : 24/06/1774 - date de décès : 25/06/1838
Haxo, François-Nicolas-Benoît (1774 - 1838). Ingénieur militaire français. Il devient général en 1810 et sert Napoléon 1er lors de la campagne de Russie. II commande le génie dans la Garde royale lors du retour de l'Empereur. En 1819, Haxo est nommé au poste d'inspecteur général des fortifications frontalières. Il participe à la restauration et la construction de nombreuses fortifications à partir de 1828, notamment à Grenoble, Besançon (forts de Bregille et Chaudanne), Belfort (Citadelle, camp du Vallon, fort des Barres, mur d'enceinte des faubourgs…), Briançon (fort du Château), Dunkerque, Saint-Omer, Sedan. Ses projets aboutiront aussi à la réalisation du fort de l'Écluse (fort d'en haut) dans l'Ain et du fort des Rousses dans le Jura. Il a travaillé en définitive sur près de soixante sites.
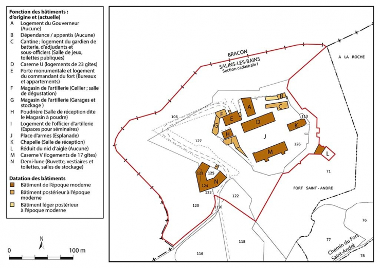
Description
Juché à 600 m d’altitude, le fort Saint-André est construit au somment d'un éperon rocheux, lui servant de rempart naturel sur les ailes est, nord et ouest, le tout formant ainsi un quadrilatère irrégulier. Seul le front sud-ouest est exposé donc non protégé. L'accès au fort s'effectue depuis cette face.
L'aile sud dispose d'un système défensif perfectionné, composé d'une demi-lune avec glacis et fossé puis d'un front bastionné avec courtine. Cette architecture est caractéristique du premier système développé par Vauban. La courtine est appareillée en pierre calcaire en bossage et est flanquée de deux demi-bastions casematés comprenant chacun une fausse braie ; elle porte en son centre la devise du Roi "Nec Pluribus Impar". Lors de la construction du fort, un corps de garde a été implanté au pied du bastion ouest. Le front est dipose d'une fausse-braie et un nid d'aigle avec réduit aménagé et casematé sur un promontoire rocheux. Chaque extrémité de ce quadrilatère est ainsi flanquée d'un bastion. L'accès au fort se fait par le front ouest lui-même bastionné.
La porte d'entrée monumentale, dont les ornements font référence au Roi soleil, ouvre sur un passage voûté qui traverse le bâtiment du commandant. A l’intérieur de la citadelle s'articulent plusieurs bâtiments, tous construits en pierre de taille et couverts de tuiles (hormis la poudrière). Un chemin de ronde fait le tour de l'enceinte et des traverses permettent d'atteindre les demi-bastions du front d'attaque et leurs casemates.
Vers la place d'armes se trouve la poudrière épaulée par des contreforts. D'anciens magasins d'artillerie, l'ancien édifice abritant la salle d'armes et le logement de l’officier d'artillerie et trois casemates complètent la distribution de cette partie adossée à la courtine. Depuis l'esplanade, les deux bâtiments de casernement se font face et sont parfaitement symétriques. Ils pouvaient accueillir jusqu'à 500 hommes. A l’extrémité est de l'ancienne place d'armes se situe la chapelle, contemporaine de la construction du fort.
- calcaire
- calcaire
- pierre de taille
- moellon
- bossage
- tuile
- système bastionné
- sous-sol
- rez-de-chaussée
- 1 étage carré
- étage de comble
- étage en surcroît
- élévation à travées
- toit à longs pans, croupe
Source(s) documentaire(s)
-
Service Historique de la Défense, Vincennes : GR 4 Vr 83. Atlas. Places de Besançon, Blamont, Salins et château de Joux. 1755.
Service Historique de la Défense, Vincennes : GR 4 Vr 83. Atlas. Places de Besançon, Blamont, Salins et château de Joux. - Recueil qui renferme les plans de quatre places de la direction du Comté de Bourgogne avec le détail de tous les bâtiments militaires qui en dépendent. Par Louis-Jean-Baptiste Joblot. 1755.Lieu de conservation : Archives du Génie, Vincennes - Cote du document : GR 4 Vr 83 -
Service Historique de la Défense, Vincennes : GR 4 Vr 86. Atlas. Place de Salins, fort Saint-André et fort Belin. 1835-1848.
Service Historique de la Défense, Vincennes : GR 4 Vr 86. Atlas. Place de Salins, fort Saint-André et fort Belin. 1835-1848.Lieu de conservation : Archives du Génie, Vincennes - Cote du document : GR 4 Vr 86 -
Service Historique de la Défense, Vincennes : 1 VH 1611-1620. Projets des travaux à effectuer aux fortifications et aux bâtiments militaires de la place. Mémoire, états, correspondance, cartes, plans. 1677-1875.
Service Historique de la Défense, Vincennes : 1 VH 1611-1620. Projets des travaux à effectuer aux fortifications et aux bâtiments militaires de la place. Mémoire, états, correspondance, cartes, plans. 1677-1875.- 1 VH 1611 :1 677-1799- 1 VH 1612 : 1800-1817- 1 VH 1613 : 1818-1821- 1 VH 1614 : 1822-1826- 1 VH 1615 : 1827-1831- 1 VH 1616 : 1832-1835- 1 VH 1617 : 1835-1838- 1 VH 1618 : 1839-1845- 1 VH 1619 : 1846-1853- 1 VH 1620 : 1854-1875Lieu de conservation : Ministère de la Défense, Service historique de la Défense, Vincennes - Cote du document : 1 VH 1611-1620 -
Service Historique de la Défense, Vincennes : 1 VK 215-333. Minutes des avis de fonds destinés aux travaux exécutés dans les places. 1840-1885.
Service Historique de la Défense, Vincennes : 1 VK 215-333. Minutes des avis de fonds destinés aux travaux exécutés dans les places. 1840-1885.Lieu de conservation : Ministère de la Défense, Service historique de la Défense, Vincennes - Cote du document : 1 VK 215-333 -
Archives municipales, Salins-les-Bains : ACS 998. Forts, bâtiments et terrains militaires. Registre compilant les extraits de délibération relatifs à la vie militaire de Salins. 1810-1897.
Archives municipales, Salins-les-Bains : ACS 998. Forts, bâtiments et terrains militaires. Registre compilant les extraits de délibération relatifs à la vie militaire de Salins. 1810-1897.Lieu de conservation : Archives municipales, Salins-les-Bains - Cote du document : ACS 998 -
Archives municipales, Salins-les-Bains : ACS 1306. Anciens bâtiments militaires désaffectés. Généralité. - Réparation et entretien : procès verbaux d'adjudication. An II- 1982.
Archives municipales, Salins-les-Bains : ACS 1306. Anciens bâtiments militaires désaffectés. Généralité. - Réparation et entretien : procès verbaux d'adjudication. An II - 1982.Lieu de conservation : Archives municipales, Salins-les-Bains - Cote du document : ACS 1306 -
Archives municipales, Salins-les-Bains : ACS 1307. Fort Saint-André - Acquisition, location, vente, baux. 1922 -1982.
Archives municipales, Salins-les-Bains : ACS 1307. Fort Saint-André - Acquisition, location, vente, baux. 1922 -1982.Lieu de conservation : Archives municipales, Salins-les-Bains - Cote du document : ACS 1307 -
Archives municipales, Salins-les-Bains : ACS 1308. Fort Saint-André - Réparations et entretien. 1922-1980.
Archives municipales, Salins-les-Bains : ACS 1308. Fort Saint-André - Réparations et entretien. 1922-1980.Lieu de conservation : Archives municipales, Salins-les-Bains - Cote du document : ACS 1308
-
Plans des villes de Franche-Comté. S.d [1668].
Plans des villes de Franche-Comté. Atlas (17 planches manuscrites peintes sur parchemin), s.n. S.d [1668]. Echelle : 320 x 410 mm.Lieu de conservation : Ministère de la Défense, Service historique de la Défense, Vincennes - Cote du document : atlas 103 -
Siège de Salins. S.d [vers 1674].
Siège de Salins. Gravure, par Adam-François Van der Meulen (peintre) et Baudoin (graveur). S.d. [vers 1674]. 50 x 131 cm (dessin uniquement; avec cadre : 87 x 170 cm).Lieu de conservation : Musée de la Grande Saline, Salins-les-Bains -
Plan du fort St-André. 28 février 1693.
Plan du fort St-André. Dessin (plume, lavis), par Robelin fils. 28 février 1693. Echelle de 10 toises (profils).Lieu de conservation : Ministère de la Défense, Service historique de la Défense, Vincennes - Cote du document : GR 1 V H 1611 -
Plans des bâtimens à l'usage de l'artillerie au comté de Bourgogne, levés après les travaux de 1756.
Plans des bâtimens à l'usage de l'artillerie au comté de Bourgogne, levés après les travaux de 1756. Papier, s.n. 1756. 580 × 310 mm (18 feuillets doubles de plans au lavis, avec des volets mobiles pour la figuration des étages supérieurs).Lieu de conservation : Bibliothèque municipale, Besançon - Cote du document : Ms 496 -
Le Jura Français. Salins-les-Bains - Fort Saint-André. S.d.
Le Jura Français. Salins-les-Bains - Fort Saint-André. Carte postale. S.d. B.F éd, Paris-Lux.Lieu de conservation : Collection particulière -
Salins-les-Bains (Jura). Vue aérienne du fort Saint-André. S.d.
Salins-les-Bains (Jura). Vue aérienne du fort Saint-André. Carte postale. S.d.Lieu de conservation : Collection particulière -
Salins-les-Bains (Jura). Le fort de Saint-André et le bourg de Salins. S.d.
Salins-les-Bains (Jura). Le fort de Saint-André et le bourg de Salins. Carte postale. S.d. Combier Ed, Mâcon.Lieu de conservation : Collection particulière -
Salins-les-Bains (Jura). Le front est du fort. S.d.
Salins-les-Bains (Jura). Le front est du fort. Carte postale. S.d.Lieu de conservation : Collection particulière -
Salins-les-Bains. Les remparts du fort Saint-André (1623). S.d.
Salins-les-Bains. Les remparts du fort Saint-André (1623). Carte postale. S.d. Figuet éd, Salins.Lieu de conservation : Collection particulière -
Salins-les-Bains (Jura). L'entrée du fort Saint-André. S.d.
Salins-les-Bains (Jura). L'entrée du fort Saint-André. Carte postale. S.d. David Mauvas éd.Lieu de conservation : Collection particulière -
Salins-les-Bains (Jura). Entrée du fort au pont levis. S.d.
Salins-les-Bains (Jura). Entrée du fort au pont levis. Carte postale. S.d.Lieu de conservation : Collection particulière -
Salins-les-Bains (Jura). Fort Saint-André - Le chemin de ronde. S.d. [1er quart 20e siècle].
Salins-les-Bains (Jura). Fort Saint-André - Le chemin de ronde. Carte postale. S.d. [1er quart 20e siècle]. Figuet éd, Salins.Lieu de conservation : Collection particulière -
Salins-les-Bains (Jura). L'ancienne chapelle du fort Saint-André. S.d.
Salins-les-Bains (Jura). L'ancienne chapelle du fort Saint-André. Carte postale. S.d [1ère moitié 20e siècle]. Librairie David Mauvas éd.Lieu de conservation : Collection particulière -
Salins-les-Bains (Jura). Colonie de Vacances du Fort Saint-André [le bâtiment abritant la salle d'armes de l'artillerie]. S.d.
Salins-les-Bains (Jura). Colonie de Vacances du Fort Saint-André [le bâtiment abritant la salle d'armes de l'artillerie]. Carte postale. S.d.Lieu de conservation : Collection particulière -
Salins-les-Bains (Jura). Un coin du camp - Intérieur du Fort Saint-André. [Cantine, logement du gardien de batterie, chambres d'adjudants et de sous-officiers]. S.d.
Salins-les-Bains (Jura). Un coin du camp - Intérieur du Fort Saint-André. Carte postale. S.d. Édition ,Photo Maitre.Lieu de conservation : Collection particulière -
Salins-les-Bains (Jura). Intérieur du fort Saint-André [place d'armes]. S.d.
Salins-les-Bains (Jura). Intérieur du fort Saint-André [place d'armes]. Carte postale. S.d. Combier éd, Mâcon.Lieu de conservation : Collection particulière -
Portraits sur médaillon représentant le commandu du fort Belin (Brichard) et le commandant du fort Saint-André (Fouleux),.1887.
Portraits sur médaillon représentant le commandant du fort Belin (Brichard) et le commandant du fort Saint-André (Fouleux). Moulage, cuivre. 1887. Musée des Techniques et cultures comtoises de Salins-les-Bains ( devenue Musée de la Grande Saline). 43,6 cm (diamètre).Lieu de conservation : Musée de la Grande Saline, Salins-les-Bains -
LE JURA 848 - Salins-les-Bains - La Porte-Haute. S.d.
LE JURA 848 - Salins-les-Bains - La Porte-Haute. Carte postale. S.d. B.F "Lux" éd.Lieu de conservation : Musée de la Grande Saline, Salins-les-Bains -
SALINS-les-BAINS (Jura) - Vue aérienne 12719 - Fort Saint-André - Au fond, Fort Belin. S.d [ avant 1955].
SALINS-les-BAINS (Jura) - Vue aérienne 12719 - Fort Saint-André - Au fond, Fort Belin. Carte postale. S.d [avant 1955]. CIM (Combier à Mâcon) éd. Porte la date du 23 janvier 1955 au verso.Lieu de conservation : Musée de la Grande Saline, Salins-les-Bains
-
Barde, Yves. Vauban, ingénieur et homme de guerre. 2006.
Barde, Yves. Vauban, ingénieur et homme de guerre. Précy-sous-Thil : Ed de l'Armançon, 2006. -
Blandin, Patrick. Dossier de protection du fort Saint-André, à Salins-les-Bains, 1980.
Blandin, Patrick. Dossier de protection du fort Saint-André, à Salins-les-Bains. - Besançon : Drac de Franche-Comté, Conservation régionale des Monuments historiques, 1980.Lieu de conservation : Conservation régionale des Monuments historiques, Besançon -
Bornecque, Robert. Les places fortes en montagne (1983).
Bornecque, Robert. Les places fortes en montagne. Vauban et l'architecture militaire. - Caisse nationale des monuments historiques et des sites, 1983. Numéro spécial de Monuments historiques.Lieu de conservation : Région Bourgogne-Franche-Comté, Inventaire et Patrimoine, Besançon - Cote du document : F.HA 695 -
Chauve, Pierre. Les sites franc-comtois fortifiés par Vauban. 2004.
Chauve, Pierre. Les sites franc-comtois fortifiés par Vauban. Vauban à Besançon et en Franche-Comté. Besançon : Association pour la Renaissance du Vieux Besançon, 2004, n° 8. -
Le Hallé, Guy. Histoire des fortifications en Franche-Comté et pays de l'Ain. 1991.
Le Hallé, Guy. Histoire des fortifications en Franche-Comté et pays de l'Ain. Amiens : Martelle, 1991. 223 p. -
Pinault, L. Notice historique sur le fort Saint-André de Salins-les-Bains (Jura). 1932.
Pinault, L. Notice historique sur le fort Saint-André de Salins-les-Bains (Jura). Salins : Impr. du Salinois, 1932. -
[Exposition. Besançon. 1980]. Vauban et ses successeurs en Franche-Comté : trois siècles d'architecture militaire : exposition. Besançon, 1980.
[Exposition. Besançon. 1980]. Vauban et ses successeurs en Franche-Comté : trois siècles d'architecture militaire : l'environnement et la Direction régionale des affaires culturelles de Franche-Comté. Besançon : Délégation régionale à l'architecture et à l'environnement, 1981. 248 p. : ill. ; 30 cm.
À voir
Informations complémentaires
Parties du fort non classées (cad. I 70, 71 106 à 108) : inscription par arrêté du 8 octobre 1991 ; Ensemble des fortifications et bâtiments du fort, à l'exception des parties récemment modifiées (intérieur des bâtiments X, N et H, tours de sanitaires du casernement V) (cad. I 70, 71, 106 à 108) : classement par arrêté du 5 juillet 1993
- fortifications royales et nationales en Bourgogne-Franche-Comté
- fossé
- bastion
- courtine
- casemate
- chemin de ronde
- escalier indépendant
- © Région Bourgogne-Franche-Comté, Inventaire du patrimoine
