MAISON 29 AVENUE EUGÈNE COLLIN DITE VILLA DES PINS
58 - Saint-Honoré-les-Bains
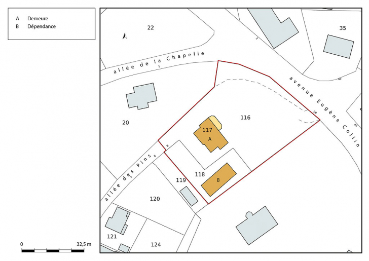
29 avenue Eugène Collin
- Dossier IA58001243 réalisé en 2019
- Auteur(s) : Fabien Dufoulon
Historique
Marie-Louis-Antonin d'Espeuilles acquiert le terrain dès 1866, mais il n'y fait construire la demeure qu'en 1885-1886. La villa se situe alors dans le parc thermal, avant le lotissement de sa partie orientale ("Les Garennes"). La famille l'a sans doute conçue dès l'origine comme un petit château où les hôtes de marque sont hébergés. Le coût total de la construction s'élève à 38.867 francs, auquel s'ajoute celui de l'ameublement (13.282 francs). En exil, la reine Isabelle II d'Espagne y a séjourné (1903) tout comme la reine Ranavalona III de Madagascar. La Villa des Pins devient la propriété de la Société anonyme des Eaux thermales de Saint-Honoré en 1900. Elle constitue l'annexe de l'Hôtel du Parc lorsque la Société acquiert ce dernier après la Première Guerre mondiale. En 1924, la villa et l'hôtel sont acquis par la Société anonyme hôtelière et immobilière. En 1970, ils sont vendus aux enchères. La villa est alors acquise par le propriétaire actuel, Jean-Charles Boizot, qui y fait faire des travaux en vue la création de chambres pour des enfants curistes. De cette époque datent notamment la grande lucarne rampante, qui remplace deux anciennes petites lucarnes côté nord-est, et l'escalier extérieur en vis côté sud-est. La grande baie du rez-de-chaussée de la façade sud-ouest est également récente. Elle remplace une baie à l'origine de la même largeur que celle de l'étage.
- 4e quart 19e siècle
Description
La villa présente un plan rectangulaire. Chaque façade est toutefois animée par un ressaut qui forme un avant-corps et un arrière-corps. Elle est construite en moellon calcaire enduit sur un étage de soubassement en pierre de taille. Un soin particulier a été accordé aux encadrements des baies et des portes et aux chaînes d'angles qui soulignent les ressauts des façades : la pierre de taille, utilisée seule au rez-de-chaussée, est associée à la brique à l'étage. La cheminée en brique en façade nord-est et l'allège en brique de la grande baie du rez-de-chaussée en façade sud-ouest sont des transformations récentes. La villa est couverte d'un toit à longs pans brisés, à croupe brisée et à égout retroussé formant un avant-toit porté par des consoles en bois peint. Le toit est en ardoise, comme à l'origine. Il est percé de huit petites lucarnes couvertes de toit à égout retroussé et d'une grande lucarne rampante. Les portes et les baies sont couvertes d'arc segmentaire. L'entrée principale se situe sur le côté nord-ouest de la villa, ce qui facilite la descente des visiteurs depuis les véhicules qui arrivent par l'actuelle avenue Eugène Collin, montent le chemin jusqu'à la villa et repartent par les allées du parc (actuelle allée des Pins). Elle donne sur l'escalier dans-œuvre construit dans l'angle ouest. La villa est double en profondeur. Les pièces du rez-de-chaussée surélevé de la façade nord-est correspondent sans doute dès l'origine à des salons et une salle à manger. Celles situées à l'arrière, dotées de leur propre entrée, doivent être de service. Les deux pièces de l'avant-corps de la façade nord-est s'ouvrent sur une loggia hors-œuvre en bois. Cette loggia est aujourd'hui dotée d'un escalier extérieur qui n'existait pas à l'origine.
- calcaire
- brique
- bois
- moellon
- enduit
- ardoise
- plan rectangulaire régulier
- étage de soubassement
- rez-de-chaussée surélevé
- 1 étage carré
- étage de comble
- élévation à travées
- toit à longs pans brisés, croupe brisée
- escalier dans-oeuvre,
- baie avec arc segmentaire
Source(s) documentaire(s)
-
Archives départementales de la Nièvre. Cadastre de la commune de Saint-Honoré-les-Bains. [1832-1951].
Archives départementales de la Nièvre. Cadastre de la commune de Saint-Honoré-les-Bains. [1832-1951].- Atlas parcellaire (1832) : 3 PP 246- État de section (1832) : 3 P 246/1- Matrices cadastrales des propriétés bâties et non bâties : 3 P 246/2 (folio 1 à 380), 3 P 246/3 (folio 381 à 780), 3 P 246/4 (folio 781 à 1168)- Matrice cadastrale des propriétés bâties (1882-1914) : 3 P 246/5- Matrice cadastrale dite « matrice noire » des propriétés bâties : 3 P 246/6- Matrices cadastrales des propriétés non bâties : 3 P 246/7, 3 P 246/8, 3 P 246/9Lieu de conservation : Archives départementales de la Nièvre, Nevers - Cote du document : 3 P 246 -
Documents relatifs à la vente aux enchères de la Villa des Pins, de l'Hôtel du Parc, de l'Hôtel du Morvan, de l'Hôtel Thermal et du Casino de Saint-Honoré-les-Bains.
Collection particulière : Jean-Charles Boizot. Documents relatifs à la vente aux enchères de la Villa des Pins, de l'Hôtel du Parc, de l'Hôtel du Morvan, de l'Hôtel Thermal et du Casino de Saint-Honoré-les-Bains.Lieu de conservation : Collection particulière : Jean-Charles Boizot, Saint-Honoré-les-Bains
-
Vue de la colline des Garennes avec la Villa des Pins et la Villa La Rouveyre. [Vers 1900].
[Vue de la colline des Garennes avec la Villa des Pins et la Villa La Rouveyre] / [auteur inconnu]. [Vers 1900]. Photographie.Lieu de conservation : Collection particulière : Jean-Charles Boizot, Saint-Honoré-les-Bains -
Saint-Honoré-les-Bains. Villa des Pins. [Vers 1900].
Saint-Honoré-les-Bains. Villa des Pins / [auteur inconnu]. [S.l.] : [s.n.], [vers 1900]. Carte postale.Lieu de conservation : Collection particulière : Jean-Charles Boizot, Saint-Honoré-les-Bains
-
Delarue, Monique, Ducros, Henri, Fréguin, Michel, Olivier, Henri. Saint-Honoré-les-Bains. 2005.
Delarue, Monique. Ducros, Henri. Fréguin, Michel. Olivier, Henri. Saint-Honoré-les-Bains. Saint-Cyr-sur-Loire : Alan Sutton, 2005. Mémoire en images, ISSN 1355-5723. 128 p. ISBN 2-84253-539-1.
À voir
Informations complémentaires
- thermalisme en Bourgogne-Franche-Comté (le)
- dépendance
- © Région Bourgogne-Franche-Comté, Inventaire du patrimoine
