FERME ET ATELIER DIT TAILLANDERIE BOBILLIER PUIS NICOD, PUIS ATELIER D'OUTILLAGE DE VICTOR DREZET
25 - Les Gras
Le Dessus de la Fin - Dessus de la Fin - 3 rue le Dessus de la Fin
- Dossier IA00013894 réalisé en 1974 revu en 2017
- Auteur(s) : Gilbert Poinsot, Laurent Poupard
 
                                          Historique
Comme l'indiquent la date 1571 et la représentation d'une lame de faux, gravées sur l'un des rouleaux chanfreinés de l'entrée de la cave, une taillanderie est attestée là dès le troisième quart du 16e siècle. Il est vraisemblable que le bâtiment sert alors de ferme et d'habitation et que les ateliers sont établis de l'autre côté de la route, sur le ruisseau du Théverot (future taillanderie Nicod, exploitée par cette famille dès 1750 au moins). Il semble reconstruit au 17e siècle pour sa partie sud : le millésime 1694 (en remploi) est visible sur le piédroit droit du bûcher du grand tué. La partie nord, elle, est édifiée dans la deuxième moitié du 18e siècle ainsi que l'attestent deux dates : 1772 gravée sur un des piédroits du four dans le grand tué et 1776 inscrite avec les initiales PB, sur le linteau d'une ancienne porte dans l'angle nord-est du mur pignon oriental ; l'extension occidentale peut également dater de la fin du 18e siècle ou du début du siècle suivant. Ces dernières constructions sont l'oeuvre de Philippe Bobillier (1731-1820), dit chaudronnier au Dessus de la Fin. Bobillier est alors propriétaire des bâtiments reportés sur le plan cadastral de 1816 (maison A 71 et hangar A 70), ainsi que d'une chaudronnerie sur le Théverot (A 42, future scierie Garnache). Ces biens sont repris par son fils Philippe Emmanuel (1763-1834), "fabricant de cuivre" et maire des Gras en 1823, dont le fils Philippe (Philippe Albin 1791-?) achètera en 1835 la chaudronnerie de Port-Lesney, dans le jura. Philippe Emmanuel est propriétaire des "deux martinets à forger le cuivre" situés en aval (cadastrés A 49-50, futur atelier d'Ernest Voynnet, et A 42).
Il cède vers 1823 la maison et le hangar à François Xavier Nicod (1754-1837), frère du taillandier Claude Antoine Nicod (établi aux 5 et 6 place de la Libération). Déclaré "fabricant de faulx" au Dessus de la Fin, François Xavier possède la taillanderie voisine (A 65 à 67, avec le bassin de retenue A 58). Signalée dans un inventaire des forges à martinet de 1772, cette dernière était alors dirigée par Pierre François Nicod (1729-1810), le père de François Xavier, et produisait annuellement 300 à 350 t de quincaillerie. C'était en 1797 la plus importante taillanderie de la commune avec 12 000 faux fabriquées par an. En 1812, un même bâtiment abrite le logement et l'atelier, équipé de trois feux de forges et de cinq petits martinets ; les soufflets sont actionnés par deux roues hydrauliques verticales, les martinets par une seule roue. Le faible débit du ruisseau (en partie alimenté par la fonte des neiges) ne permet cependant à l'établissement de fonctionner que quatre mois par an, et le moulin à blé et la scierie qui lui sont attachés, établis juste en aval, ont recours à un bassin de retenue. En 1823, il consomme annuellement 5,5 t de fer fin des forges de la Ferrière-sous-Jougne (commune de Jougne), 2 t d’acier de Styrie (Autriche) et 600 stères de bois de sapin pour fabriquer, avec 15 personnes (dont deux bûcherons et un charbonnier), 8 000 faux (2 000 sont destinées pour l’exportation). En 1834-1835, sa production est toujours de 8 000 faux avec 11 ouvriers. Reprise vers 1828 par Pierre François Nicod (1787-1846), le fils de François Xavier, l'affaire est cédée vers 1840. Les ateliers sont acquis par les frères Bobillier : Isidore (François Isidore, 1799-1875), qui sera maire dans les années 1840, et Sylvain (1814-?), tous deux fils d’Etienne François Bobillier (1758-1817) et exploitant la taillanderie juste en amont (au 6 rue le Dessus de la Fin). Ils passent ensuite, vers 1876, à Narcisse Jacquet (1842-1902) qui développe la scierie, la dote d’un chantier au bois puis transforme vers 1896 le bâtiment de la forge ou le remplace par un autre à usage de scierie et d’habitation. L’établissement est ensuite repris par ses fils Henri (1879-1940), qui sera maire dans les années Trente, et Laurent (1884-1938), lesquels lui ajoutent une parqueterie. Arrêté vers 1939, il est de nouveau exploité jusqu'en 1947 par un M Morel. Ce sont ensuite les fils de Laurent, Narcisse et Pierre, qui le reprennent. Ils démolissent le bâtiment de la parqueterie en 1951 et ferment le site en 1956. Le dernier bâtiment subsistant est détruit en 1986.
Pour sa part, la ferme connaît différents propriétaires après Nicod (Pierre Philippe Moyse de 1841 à 1845 environ, Claude François Pourchet ensuite, vers 1858 ses descendants, François Isidore Garnache-Chatgris vers 1863) puis elle est achetée en 1888 par le cultivateur Florimond Drezet (1846-1925). Ce dernier y élève quelques vaches et y tient un café, fermé à sa mort en 1925. Deux de ses fils - Fernand (1898-1973), qui s'établira dans les années 1960 au 3 rue de Pontarlier, et Victor (1883-1963), dit mécanicien - y fabriquent de l'outillage pour les horlogers, dont des outils au dixième et au douzième. Victor travaille seul dans le bâtiment (dont la toiture en tavaillons a été refaite en tuiles en 1903) puis avec deux de ses fils, Michel (1922-1998) et Robert (1923-1986). Ces derniers maintiennent l'atelier jusqu'à sa mort en 1963 ; Robert Drezet poursuivra alors la fabrication dans sa maison, au 13 rue les Saules, puis s'associera avec son fils Hubert dans la Sarl Drezet R & H qui s'installera sur la commune de Grand'Combe-Châteleu (au 14 les Grands Saules). Le bâtiment n'abrite ensuite plus d'activité productive (mais il a conservé au rez-de-chaussée un petit feu de forge et son soufflet en cuir). Modifié en 1976 (la partie gauche de la façade orientale a été reprise en parpaings de béton) et 2013 (suppression du petit tué), il est en cours de rénovation.
- 3e quart 16e siècle
- 4e quart 17e siècle
- 3e quart 18e siècle
- 4e quart 18e siècle
Description
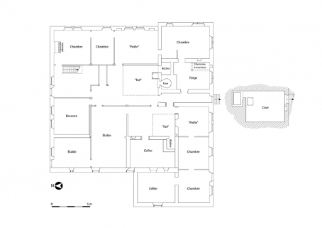
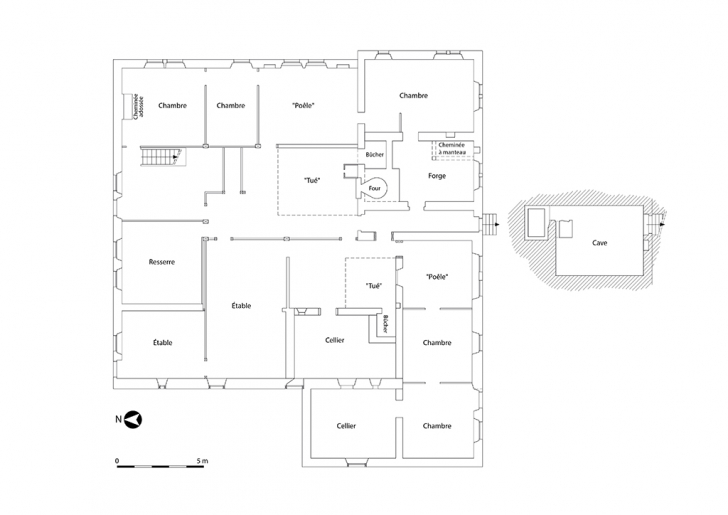
Le bâtiment a des murs en moellons calcaires partiellement enduits, protégés à l'étage carré (sauf sur la façade orientale) par un essentage de planches ; les pignons sont en pan de bois, également essenté de planches. Incomplet, le sous-sol est en partie voûté en plein cintre et accessible par un escalier extérieur droit en pierres. L'entrée centrale au sud donne sur un couloir voûté en berceau plein cintre qui distribue le rez-de-chaussée, l'étage carré (surmonté d'un comble) étant desservi par un escalier dans-oeuvre en bois et, à l'ouest, par une rampe d'accès (levée de grange). Au rez-de-chaussée, certaines des baies de la partie 17e (sud) sont moulurées, celles de la partie 18e (nord et extension ouest ?) ont un linteau délardé en arc segmentaire ; des fenêtres jumelées (fenêtres horlogères) sont visibles sur les façades orientale et méridionale, une fenêtre multiple sur la façade orientale signale l'emplacement de l'atelier. Le toit est à longs pans, pignons couverts et tuiles mécaniques ; seule en émerge la souche du grand tué (grande cheminée), le petit ayant été détruit. La bâtiment conserve encore un feu de forge et son soufflet.
- calcaire
- bois
- moellon
- pan de bois
- enduit partiel
- essentage de planches
- tuile mécanique
- sous-sol
- 1 étage carré
- étage de comble
- voûte en berceau plein-cintre
- élévation à travées
- toit à longs pans, pignon couvert
- escalier de distribution extérieur, escalier droit, en maçonnerie
- escalier dans-oeuvre, escalier droit, en charpente
- rampe d'accès
- ferme à tué double
- grange haute
- baie horlogère
- baie multiple
- faux
Une lame de faux, évoquant la taillanderie, est gravée en cuvette sur le deuxième rouleau de l'entrée de la cave.
- sculpture
Une lame de faux, évoquant la taillanderie, est gravée en cuvette sur le deuxième rouleau de l'entrée de la cave.
Source(s) documentaire(s)
- 
                                                                              Archives départementales du Doubs : 3 P 298 Cadastre de la commune des Gras, 1814-1967.
                                                                                                                    
 Archives départementales du Doubs : 3 P 298 Cadastre de la commune des Gras, 1814-1967. - 3 P 298 : Atlas parcellaire (11 feuilles), dessin (plume, lavis), par les géomètres du cadastre Vergne et Garcin, 1816. - 3 P 298/1 : Registre des états de sections (1816-1818). - 3 P 298/2, 5 : Matrice cadastrale des propriétés bâties et non bâties, 1822-1875. - 3 P 298/3-4 : Matrice cadastrale des propriétés bâties et non bâties, 1876-1914. - 3 P 298/6 : Matrice cadastrale des propriétés bâties, 1882-1910. - 3 P 298/7 : Matrice cadastrale des propriétés non bâties, 1914-1967. - 3 P 298/8 : Matrice cadastrale des propriétés bâties, 1911-1967.Lieu de conservation : Archives départementales du Doubs, Besançon - Cote du document : 3 P 298
- 
                                                                              Archives départementales du Doubs à Besançon : 7 S 55 Cours d'eau et usines. Régime des eaux. Moulins-usines (1805-1919).
                                                                                                                    
 Archives départementales du Doubs à Besançon : 7 S 55 Cours d'eau et usines. Régime des eaux. Moulins-usines (1805-1919).Lieu de conservation : Archives départementales du Doubs, Besançon
- 
                                                                              Notice sur les fabriques de la commune des Gras, pour être adressée à monsieur le sous-préfet de Pontarlier  en exécution de sa lettre du 17 mars 1823, dressé sur les renseignements qui lui ont été produits par les fabricans, par Garnache, le 9 avril 1823.
                                                                                                                    
 Notice sur les fabriques de la commune des Gras, pour être adressée à monsieur le sous-préfet de Pontarlier en exécution de sa lettre du 17 mars 1823, dressé sur les renseignements qui lui ont été produits par les fabricans, par Garnache, le 9 avril 1823. Photocopie d'un document conservé aux Archives départementales du Doubs.Lieu de conservation : Collection particulière : Louis Girard, Grand’Combe-Châteleu
- 
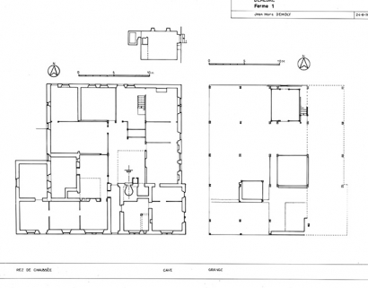
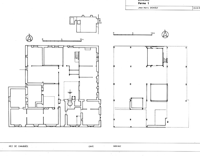
                                                                              25 Les Gras, lieu-dit le Dessus de la Fin. Demeure : ferme 1. Rez-de-chaussée, Cave [et] Grange, 24 août 1976
                                                                                                                    
 25 Les Gras, lieu-dit le Dessus de la Fin. Demeure : ferme 1. Rez-de-chaussée, Cave [et] Grange, dessin sur calque, par Jean-Marc Demoly, 24 août 1976, 1/100, 55 x 77,5 cmLieu de conservation : Région Bourgogne-Franche-Comté, Inventaire et Patrimoine, Besançon
- 
                                                                              Guichard, Jean-Marie. Recherches généalogiques.
                                                                                                                    
 Guichard, Jean-Marie. Recherches généalogiques. Accessibles en ligne sur le site de Geneanet : http://gw.geneanet.org/
- 
                                                                              Jeannier, Gaby. Atelier Drezet Jean-Marie, 2008.
                                                                                                                    
 Jeannier, Gaby. Atelier Drezet Jean-Marie. - Les Gras : Télé Châteleu, 2008. 1 DVD vidéo monoface (18 mn 07 s) : coul., son ; 12 cm. Reportage et montage : Gaby Jeannier.
- 
                                                                              Garneret, Jean. Le martinet et la faux en Franche-Comté. 1960.
                                                                                                                    
 Garneret, Jean. Le martinet et la faux en Franche-Comté. Actes du colloque sur l'artisanat (Besançon, 10-12 juin 1960). Annales littéraires de l'Université de Besançon, vol. 45, Les Belles Lettres, 1961, p. 67-85.
- 
                                                                              Laithier, René. Fabricants d’outils pour horlogers bijoutiers de la commune des Gras. Les artisans de la fin du 19e à la fin du 20e siècle, 1990.
                                                                                                                    
 Laithier, René. Fabricants d’outils pour horlogers bijoutiers de la commune des Gras. Les artisans de la fin du 19e à la fin du 20e siècle. - 1990. 4 f. dactyl. Porte la mention : "Liste non exhaustive établie en 1990, par René Laithier, les Epaisses, Les Gras".Lieu de conservation : Collection particulière : Rémy Cerf, Les Gras
- 
                                                                              Vegliante, Gianfranca. L’artisanat dans le canton de Morteau au XIXe siècle, 1976.
                                                                                                                    
 Vegliante, Gianfranca. L’artisanat dans le canton de Morteau au 19e siècle. – Besançon : Faculté des Lettres, 1976. 164 f. dactyl. ; 30 cm. Mém. Maîtrise : Histoire : Besançon : 1976.
- 
                                                                              Drezet, Jean-Marie (témoignage oral)
                                                                                                                    
 Drezet, Jean-Marie. Fils du fabricant d'outillage Victor Drezet. Les Gras.
- 
                                                                              Petitjean, Guy (témoignage oral)
                                                                                                                    
 Petitjean, Guy. Ancien propriétaire de la maison Georges Vernier, commerce de fournitures et outils d'horlogerie. Les Gras.
À voir
Informations complémentaires
Sur le plan cadastral de 1816, plusieurs bâtiments sont représentés, au Dessus de la Fin, entre la route de Grand’Combe-Châteleu et le Théverot : d’amont en aval, l’écurie (cadastrée A 62) de Jean-Louis Bonnet et sa maison (A 64, démolie en 1852) puis la taillanderie de François Xavier Nicod (Pierre François Xavier, 1754-1837), consistant en un bâtiment (A 65 forge) à usage de « fabrique de faulx, charbonnière et aisance », une scierie (A 66) et une « charbonnière » (A 67), sans oublier le bassin de retenue (« écluse A 58 ») et des terrains en nature de rocher (A 57), pré (A 59 et 60) et jardin (A 68 et 73).
Quatre corps de bâtiments sont aussi dessinés à l’ouest de la route : un hangar (A 61) et une maison (A 63) appartenant au curé de Mamirolle Pierre François Thomas (descendant des Bobillier par sa mère), ainsi que la maison (A 71) et un autre hangar (A 70) propriétés de Philippe Bobillier père, exploitant une chaudronnerie en aval sur le Théverot.
S’inscrivant dans la lignée de ces fabriques de faux et faucilles implantées dans le val de Morteau au 16e siècle, la taillanderie Nicod est exploitée dès 1750 au moins. Elle est de nouveau acensée le 31 mars 1768 par le prieur de Morteau aux Nicod, famille de taillandiers présente du 17e au 19e siècle dans une quinzaine de villages du Haut-Doubs. Le premier forgeron connu de cette lignée semble être Claude Nicod, signalé vers 1650 à La Longeville, dont les descendants s’installeront à Maison-du-Bois (exploitant la plus importante taillanderie du département au milieu du 19e siècle), Montbenoît, Vuillafans, Syam, aux Gras, à Malbuisson, Métabief, Loray, Plaimbois-du-Miroir, au Russey, etc.
Signalée dans un inventaire des forges à martinet en 1772, la taillanderie des Gras est alors dirigée par Pierre François Nicod (1729-1810), le père de François Xavier, et produit annuellement 300 à 350 t de quincaillerie. Le même inventaire fait état de la forge de Pierre Bobillier (1731-1810), beau-frère de Pierre François Nicod, laquelle est implantée juste en amont et réalise, elle, 250 à 300 t de quincaillerie. Ce sont en 1797 les deux plus importantes taillanderies de la commune, produisant la première 12 000 faux par an et la deuxième (alors tenue par le fils de Pierre, Etienne-François Bobillier) 6 000 faux par an. Notons qu’une autre branche de la grande famille Bobillier exploite en 1812 « deux martinets à forger le cuivre », soit deux chaudronneries : celle (A 49 et A 50) bâtie en 1809 par Philippe Emmanuel (vers 1763-1834) juste en aval, aux Saules, et celle (A 42, future scierie Garnache) plus en aval encore, aux mains de son père Philippe (1731-1820).
Dans sa demande en autorisation de maintien en activité de son établissement, en date du 27 août 1812, Pierre François Nicod précise :
« 1° Le fer et l’acier propres à la fabrication des faux et autres instrumens aratoires en fait de taillanderie, sont les seules substances qui sont traitées dans l’usine de l’impétrant.
2° Cette usine consiste en un seul bâtiment ne faisant qu’un avec celui d’habitation, et où se trouvent établis trois feux, et cinq petits martinets propres à tirer, élargir et finir les faux ; lesquels martinets se meuvent alternativement et à volonté, par un seul et même cylindre, ou arbre à une roue ; deux autres roues font mouvoir les soufflets de trois fournaises.
3° Le fer et l’acier qui sont les seules matières à traiter, se tirent, savoir : le fer des forges des Départements du Doubs et de la Haute-Saône, et l’acier vient de l’Allemagne par la voie du commerce.
4° Le charbon de sapin et de hêtre est le combustible que l’on consomme dans l’usine, il en faut annuellement environ cent à cent vingt bannettes, ou neuf cent soixante vans de forge : ce charbon provient environ un tiers des forêts appartenantes propriétairement à l’impétrant dans le canton de Morteau, et les deux autres tiers sont achetés en plus grande partie des particuliers de la Principauté de Neuchâtel.
5° Comme l’usine ne roule que par le moyen de l’eau du ruisseau des Gras, et du bief de la Dreuve, dont le confluant est au dessus et très-proche de l’usine, et qui ne sont l’un et l’autre alimentés en grande partie que par la fonte des neiges ; cette usine n’est roulante qu’environ quatre mois de l’année, à diverses reprises, sur tout encore en raison du peu de pente qu’offre le court espace de terrain qui sépare cette usine de l’usine supérieure.
6° Enfin, dans le même bâtiment il existe un moulin à blé, et plus bas au joignant une scierie, qui sont l’un et l’autre mus par les mêmes eaux retenues dans un étang, et qui ont été établis en vertu des permissions renfermées et rappelées dans l’acte sus-énoncé. »
Le maire des Gras, Philippe Emmanuel Bobillier, indique dans un état de 1823 que la fabrique de faux de François Xavier Nicod consomme annuellement 5,5 t de "fer fin taillandier en barres" des forges de la Ferrière-sous-Jougne (commune de Jougne), 2 t d’acier "à 3 points véritable ancienne fabrique de Styrie" (Autriche) et 600 stères de bois de sapin pour fabriquer 8 000 faux (dont 2 000 pour l’exportation). Elle emploie 15 personnes, dont deux bûcherons et un charbonnier, et le coût de la main-d’œuvre entre pour 0,60 à 0,75 F dans le prix d’une faux, vendue entre 2,40 F et 3 F. Elle se voit récompenser par une médaille de bronze en 1825.
La propriété de François Xavier passe vers 1828 à son fils Pierre François (1787-1846). En 1834-1835, sa production est toujours de 8 000 faux avec 11 ouvriers.
L’affaire est acquise une dizaine d’années plus tard, vers 1839, par les frères Bobillier : Isidore (François Isidore, 1799-1875), qui sera maire dans les années 1840, et Sylvain (1814-?). Tous deux sont les fils d’Etienne François Bobillier (1758-1817), maître taillandier et négociant (maire des Gras en 1816), qui exploitait la taillanderie juste en amont (au 6 rue le Dessus de la Fin : maison cadastrée B 9, deux « charbonnières » B 8 et B 12, « forge et fabrique de faux » B 11 et scierie B 7), elle-même tenue auparavant par son père Pierre (1731-1810) et fondée par leurs ancêtres en 1506. Cet établissement employait annuellement, en 1823, 4 t de fer fin, 1,5 t d’acier et 400 stères de bois pour produire 6 000 faux avec 11 personnes (par la suite, Isidore en fabriquera 6 000 avec 8 ouvriers).
Isidore et Sylvain Bobillier cèdent vers 1850 le site à Xavier Jacquot, qui semble démolir partiellement la forge et modifier la scierie avant de leur rétrocéder le tout vers 1860 (?).
Le site est acquis vers 1876 par Narcisse Jacquet (1842-1902), qui développe la scierie et la dote d’un chantier au bois. Vers 1896, il transforme le bâtiment de la forge ou le remplace par un autre à usage de scierie et d’habitation (seul à subsister en 1969). L’établissement est repris par son fils, Laurent (1884-1938), puis par les enfants de ce dernier Narcisse et Pierre. Fermé en 1956 et laissé à l’abandon, il est détruit en 1986.
Sources et bibliographie
Archives départementales du Doubs :
- 3 P 298 Cadastre de la commune des Gras, 1814-1967
- 7 S 55 Cours d'eau et usines. Régime des eaux. Moulins-usines (1805-1919)
Garneret, Jean. Le martinet et la faux en Franche-Comté. Actes du colloque sur l'artisanat (Besançon, 10-12 juin 1960). - Annales littéraires de l'Université de Besançon, vol. 45, Les Belles Lettres, 1961, p. 67-85.
Guichard, Jean-Marie. Recherches généalogiques (accessibles en ligne sur le site de Geneanet : http://gw.geneanet.org/). Familles Bobillier, Jacquet et Nicod, aux Gras (consultation : 10 avril 2017)
Monneret, Christian. Recherches généalogiques (accessibles en ligne sur le site de Geneanet : http://gw.geneanet.org/). Famille Jacquot, aux Gras (consultation : 10 avril 2017)
Vegliante, Gianfranca. L’artisanat dans le canton de Morteau au XIXe siècle. – Besançon : Faculté des Lettres, 1976. 164 f. dactyl. ; 30 cm. Mém. Maîtrise : Histoire : Besançon : 1976.
Drezet Jean-Marie (témoignage oral), 13 avril 2017
- patrimoine industriel du Doubs
- atelier de fabrication
- logement
- étable à vaches
- grange
- forge
- jardin potager
- rampe d'accès
- © Région Bourgogne-Franche-Comté, Inventaire du patrimoine
 
                   
                   
                   
                   
                      ![Cadastre de la commune des Gras. Atlas parcellaire, 1816, section A 1ère feuille [détail : les Saules et le Dessus de la Fin], 1/2 500. © Région Bourgogne-Franche-Comté, Inventaire du patrimoine Cadastre de la commune des Gras. Atlas parcellaire, 1816, section A 1ère feuille [détail : les Saules et le Dessus de la Fin], 1/2 500. © Région Bourgogne-Franche-Comté, Inventaire du patrimoine](/sites/default/files/styles/inventaire_thumbnail/public/phototheque/IVR43_20182500132NUC4A.jpg) 
                       
                       
                       
                                                                 
                                                                 
                                                                 
                                                                 
                                                                 
                                                                 
                          ![Cadastre de la commune des Gras. Atlas parcellaire, 1816, section A 1ère feuille [détail : les Saules et le Dessus de la Fin], 1/2 500. © Région Bourgogne-Franche-Comté, Inventaire du patrimoine Cadastre de la commune des Gras. Atlas parcellaire, 1816, section A 1ère feuille [détail : les Saules et le Dessus de la Fin], 1/2 500. © Région Bourgogne-Franche-Comté, Inventaire du patrimoine](/sites/default/files/styles/inventaire_liste/public/phototheque/IVR43_20182500132NUC4A.jpg) 
                           
                           
                           
                           
                           
                           
                           
                           
                           
                           
                           
                           
                           
                           
                           
                           
                           
                           
                           
                           
                           
                           
                           
                           
                           
                           
                           
                           
                           
                           
                           
                           
                           
                           
                           
                           
                           
                           
                           
                           
                           
                           
                           
                           
                                                  ![Cadastre de la commune des Gras. Atlas parcellaire, 1816, section A 1ère feuille [détail : les Saules et le Dessus de la Fin], 1/2 500. © Jérôme Mongreville / Région Bourgogne-Franche-Comté, Inventaire du patrimoine - 2018 Cadastre de la commune des Gras. Atlas parcellaire, 1816, section A 1ère feuille [détail : les Saules et le Dessus de la Fin], 1/2 500. © Jérôme Mongreville / Région Bourgogne-Franche-Comté, Inventaire du patrimoine - 2018](/sites/default/files/styles/phototheque_vertical/public/phototheque/IVR43_20182500132NUC4A.jpg) 
                                                   
                                                   
                                                   
                                                   
                                                   
                                                   
                                                   
                                                   
                                                   
                                                   
                                                   
                                                   
                                                   
                                                   
                                                   
                                                   
                                                   
                                                   
                                                   
                                                   
                                                   
                                                   
                                                   
                                                   
                                                   
                                                   
                                                   
                                                   
                                                   
                                                   
                                                   
                                                   
                                                   
                                                   
                                                   
                                                   
                                                   
                                                   
                                                   
                                                   
                                                   
                                                   
                                                   
                                                  