MAISON 27 AVENUE EUGÈNE COLLIN DITE VILLA LA ROUVEYRE
58 - Saint-Honoré-les-Bains
27 avenue Eugène Collin
- Dossier IA58001225 réalisé en 2019
- Auteur(s) : Fabien Dufoulon
Historique
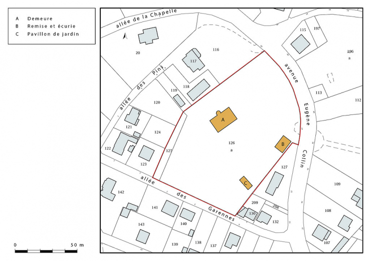
Le docteur François Eugène Collin, médecin-inspecteur à l'établissement thermal, joue un rôle déterminant dans la promotion des eaux de Saint-Honoré-les-Bains, en publiant notamment deux guides à destination des médecins et des malades en 1865 et 1872. Il est d'abord logé au manoir de La Queuldre, ancienne maison seigneuriale dépendant du château de La Montagne. Vers 1880, il acquiert de Jean Mathé l'Aîné un premier terrain (parcelle 515) situé en bordure de la nouvelle avenue (actuelle avenue Eugène Collin) qui monte aux Garennes et au Bourg. L'acquisition de morceaux de terrains avoisinants (parcelles 516, 532 et 535 au début des années 1880 et parcelle 519 au début des années 1900) lui permet de créer un vaste domaine qui s'étend encore aujourd'hui jusqu'à l'allée des Garennes. Il y fait construire une imposante demeure (52 ouvertures) qui doit être achevée en 1883-1884. Cette demeure constitue la première villa de ce secteur du quartier thermal. Le projet initial pourrait ne pas avoir comporté de tour, comme le suggère son implantation et le raccord maladroit avec la façade nord-ouest : les baies de la travée de gauche sont antérieures à la tour, qui vient en effet gêner leur dégagement. Toutefois, une photographie indique la présence de la tour dès 1883. L'ajout de cette dernière est donc intervenu à la fin du chantier, comme au Pavillon Blanc du Castel des Loges quelques années plus tôt. Il n'est d'ailleurs pas impossible que la tour de ce dernier ait influencé François Eugène Collin. Dans le parc de la villa sont construits un bâtiment servant de remise et d'écurie et un pavillon de jardin. Un bassin d'agrément est également conservé. On sait aussi qu'un petit château d'eau se situait près du pignon sud-ouest, mais il n'en subsiste aucune trace. François Eugène Collin partage la demeure avec son fils Henry, également médecin de la station thermale et auteur d'un important guide (1888) sur celle-ci. Henry meurt en 1891 et François Eugène en 1902.
Pierre Walsdorff, maître d'hôtel à Saint-Honoré-les-Bains, acquiert la villa dans le premier quart du 20e siècle. Il en fait un hôtel à la fin des années 1930. Pendant la Seconde Guerre mondiale, la famille de Charles Matton loue la demeure qu'elle doit un temps partager avec un régiment de l'armée allemande. Cette cohabitation est évoquée cinquante ans plus tard par le cinéaste dans La Lumière des étoiles mortes (1994). Une maquette de la maison fait partie du fonds Charles Matton versé à la Bibliothèque nationale de France en 2006.
La demeure redevient une maison de médecins (docteur Fonquernie, docteur Blondy et docteur Vergé) dans la seconde moitié du 20e siècle. De cette époque date l'aménagement de l'étage de soubassement en cabinet médical. La distribution actuelle du rez-de-chaussée et des étages date également de cette époque ; on sait en effet que la configuration de la cage d'escalier et l'escalier lui-même ne correspondent plus à l'état de la fin du 19e siècle. Plus récemment, des travaux ont porté sur la couverture de la tourelle (entièrement reprise) et la terrasse située contre le pignon nord-est.
- 4e quart 19e siècle
Date de naissance : 12 août 1825 - date de décès : 23 août 1902
Docteur en médecine, originaire de Billom (Puy-de-Dôme). Docteur en médecine en 1852. Médecin des salles militaires de l'hôpital de Billom à partir de 1854. Médecin à Saint-Honoré-les-Bains, inspecteur des eaux de l'établissement thermal, à partir de 1860. Il est l'auteur de plusieurs ouvrages qui ont contribué à faire connaître la station thermale de Saint-Honoré-les-Bains et les vertus de ses eaux, publiés des années 1860 aux années 1880. Son fils Henry Collin le seconde dans ses activités jusqu'à sa mort en 1891.
Maître d'hôtel à Saint-Honoré-les-Bains.
Date de naissance : 13 septembre 1933 - date de décès : 19 novembre 2008
Plasticien, peintre, photographe, producteur, écrivain.
Description
La villa est construite en moellon de granite enduit. Les encadrements des baies, les lucarnes, les chaînes d'angles et les bordures de pignons sont en pierre de taille calcaire. L'édifice s'élève sur quatre niveaux (étage de soubassement, rez-de-chaussée, étage carré et étage de comble) et il est couvert d'un toit à longs pans en ardoise qui ne couvrent pas les pignons. Construite hors-œuvre contre la façade nord-ouest, une tour abritant un escalier en vis est couverte d'un toit conique en ardoise. Elle donne à la villa un caractère néo-gothique, que l'on retrouve dans les ouvertures rectangulaires. Les encadrements des grandes baies du rez-de-chaussée et de l'étage sont chanfreinés et les autres baies sont couvertes d'un linteau en accolade. Le pignon est percé d'un oculus quadrilobé et un ornement trilobé orne le fronton de la lucarne centrale de la façade principale. Une archivolte rectangulaire couvre enfin la porte d'entrée. Dans le pignon sud-ouest, la baie de droite de l'étage est factice.
La distribution intérieure est relativement simple. La travée centrale est traversante ; elle sert de hall et de cage d'escalier. On y accède principalement par la porte de la façade sud-est qui est précédée d'un perron et surmontée d'une marquise. On peut également y accéder par une porte secondaire en façade nord-ouest. À l'origine, des pièces de réception devaient sans doute être disposées de part et d'autre du hall, et les chambres de la famille aménagées à l'étage. La présence de l'escalier en vis hors-œuvre, qui dessert uniquement l'étage de comble depuis l'extérieur, est la principale originalité de la distribution intérieure. Le propriétaire a souhaité créer un étage totalement indépendant du reste de la villa. Les vitraux qui ornent les baies de la tour font douter qu'il s'agisse à l'origine de logements pour les domestiques. On peut en revanche penser à un appartement destiné à des invités, curistes séjournant dans la station.
Le jardin possède deux entrées ; la principale donne sur l'avenue Eugène Collin et la secondaire sur l'allée des Garennes. Elles doivent permettre aux véhicules de traverser le jardin sans avoir à faire demi-tour. Le bâtiment abritant la remise et l'écurie se situe près de l'entrée principale. La partie nord du jardin est la plus boisée. Les essences sont variées. L'un des deux grands sequoias d'origine, bien visibles sur les photographies anciennes, a été récemment abattu. Le bosquet d'arbres près de l'avenue au nord abrite un bassin agrémenté d'un petit pont en ciment faux-bois. La partie sud du jardin est traversée par une allée bordée d'alignements d'arbres qui constitue, depuis l'entrée secondaire, une perspective vers la villa. De part et d'autre se situent une pelouse et un verger. Près de ce dernier, un pavillon de jardin est précédé d'une salle de verdure.
- granite
- moellon
- enduit
- ardoise
- plan rectangulaire régulier
- étage de soubassement
- rez-de-chaussée
- 1 étage carré
- étage de comble
- élévation à travées
- toit à longs pans, pignon découvert
- toit conique
- escalier dans-oeuvre, escalier tournant à retours avec jour, en charpente
- escalier hors-oeuvre, escalier en vis avec jour, en charpente
- baie rectangulaire
- oculus
Source(s) documentaire(s)
-
Archives départementales de la Nièvre. Cadastre de la commune de Saint-Honoré-les-Bains. [1832-1951].
Archives départementales de la Nièvre. Cadastre de la commune de Saint-Honoré-les-Bains. [1832-1951].- Atlas parcellaire (1832) : 3 PP 246- État de section (1832) : 3 P 246/1- Matrices cadastrales des propriétés bâties et non bâties : 3 P 246/2 (folio 1 à 380), 3 P 246/3 (folio 381 à 780), 3 P 246/4 (folio 781 à 1168)- Matrice cadastrale des propriétés bâties (1882-1914) : 3 P 246/5- Matrice cadastrale dite « matrice noire » des propriétés bâties : 3 P 246/6- Matrices cadastrales des propriétés non bâties : 3 P 246/7, 3 P 246/8, 3 P 246/9Lieu de conservation : Archives départementales de la Nièvre, Nevers - Cote du document : 3 P 246
-
Saint-Honoré-les-Bains. Villa La Rouveyre. 1883.
Saint-Honoré-les-Bains. Villa La Rouveyre / [auteur inconnu]. 1883. Photographie.Lieu de conservation : Collection particulière : château de La Montagne, Saint-Honoré-les-Bains -
Saint-Honoré-les-Bains. Villa de la Rouveyre. [Première moitié du 20e siècle].
Saint-Honoré-les-Bains. Villa de la Rouveyre / [auteur inconnu]. [S.l.] : [s.n.], [première moitié du 20e siècle]. Carte postale.Lieu de conservation : Collection particulière -
Saint-Honoré-les-Bains. La Rouveyre. [Vers 1940].
Saint-Honoré-les-Bains. La Rouveyre / [auteur inconnu]. [S.l.] : [s.n.], [vers 1940]. Carte postale.Lieu de conservation : Collection particulière
-
Collin, François Eugène. Charleuf, Marie Pierre Gilbert. St-Honoré-les-Bains (Nièvre). Guide médical et pittoresque. 1865.
Collin, François Eugène. Charleuf, Marie Pierre Gilbert. St-Honoré-les-Bains (Nièvre). Guide médical et pittoresque. Moulins : Imprimerie C. Desrosiers, 1865. -
Saint-Honoré Thermal, première année, n°1, 1er mai 1901.
Saint-Honoré Thermal, première année, n°1, 1er mai 1901. -
Hommage au Docteur Eugène Collin. 2002.
Hommage au Docteur Eugène Collin. In : L’info de St-Ho, n°3, janvier 2002, p. 3-4. -
Delarue, Monique, Ducros, Henri, Fréguin, Michel, Olivier, Henri. Saint-Honoré-les-Bains. 2005.
Delarue, Monique. Ducros, Henri. Fréguin, Michel. Olivier, Henri. Saint-Honoré-les-Bains. Saint-Cyr-sur-Loire : Alan Sutton, 2005. Mémoire en images, ISSN 1355-5723. 128 p. ISBN 2-84253-539-1.
À voir
Informations complémentaires
- thermalisme en Bourgogne-Franche-Comté (le)
- © Région Bourgogne-Franche-Comté, Inventaire du patrimoine
