MAISON 1 RUE DE LA CHAUME DITE VILLA COMOY OU LES TERRASSES
58 - Saint-Honoré-les-Bains
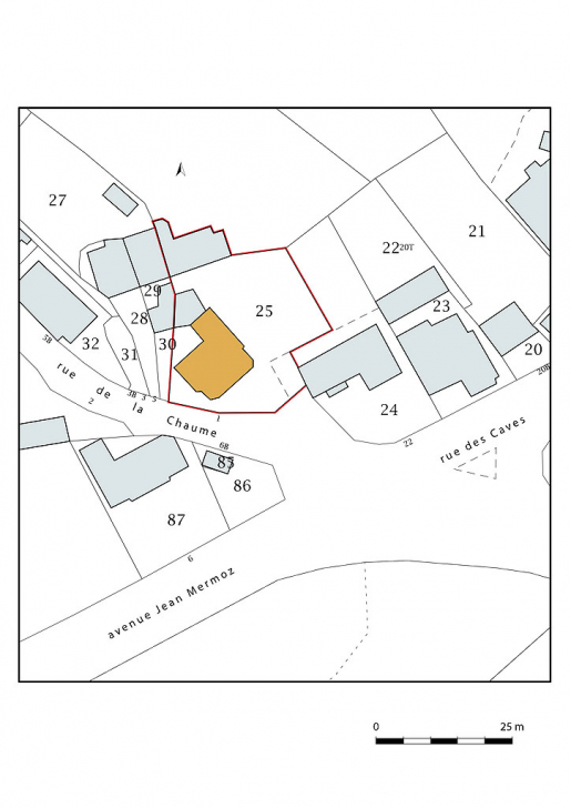
1 rue de la Chaume
- Dossier IA58001237 réalisé en 2019
- Auteur(s) : Fabien Dufoulon
Historique
La villa est la propriété du docteur André Pierre Philippe Comoy, originaire de Decize, médecin à Saint-Honoré-les-Bains et auteur de Saint-Honoré-les-Bains, eaux sulfureuses arsenicales, guide pittoresque et médicale (1889). En 1879, il acquiert deux terrains (parcelles 647 et 649). Sur le second, il fait bâtir une maison à 22 ouvertures en 1882. Le nom de l'architecte est inconnu. Celui d'Andoche Parthiot a été avancé, mais l'hypothèse n'a pas pu être vérifiée jusqu'à présent. La maison est bien connue grâce à une photographie datant de 1883 et par des cartes postales plus tardives. Elle est très tôt surnommée "Les Terrasses". Le docteur Comoy y reçoit ses patients curistes. La propriété passe à son fils, Ernest Comoy, médecin à Saint-Honoré-les-Bains, vers 1911. René Fouchard, également médecin, acquiert la demeure vers 1928. Les extérieurs ont été assez lourdement transformés dans le seconde moitié du 20e siècle (création de grandes lucarnes rampantes dans la toiture, couverture des deux terrasses et remplacement des fermetures des baies).
- 4e quart 19e siècle
Date de naissance : 1848
Médecin à Saint-Honoré-les-Bains (58). Il est l'auteur d'un ouvrage sur la station thermale : <span style="font-style:italic;">Saint-Honoré-les-Bains, eaux sulfureuses arsenicales, guide pittoresque et médicale</span> [1889].
Date de naissance : 07/07/1821 - date de décès : 25/04/1900
Andoche Parthiot (7 juillet 1821-24 avril 1900). Architecte né à Moux (Nièvre). Élève de l’École des Beaux-Arts de Paris, section architecture (promotion 1846). Il est l'élève de Guillaume-Abel Blouet, Charles-Félix Saint-Père et Jacques-Henri-Thomas Trouillet. Architecte de la ville de Château-Chinon. Interventions dans plusieurs églises de la Nièvre (Montsauche-les-Settons, Sainte-Péreuse, Ouroux, Saint-Honoré-les-Bains, Mont-et-Marré, Arleuf, Château-Chinon) et de Côte-d'Or (Savilly). Architecte de l'établissement thermal de Saint-Honoré-les-Bains.
Description
La demeure est composée principalement d'un corps de bâtiment avec une tour formant un avant-corps. Le premier est couvert d'un toit à longs pans et la seconde d'un toit à quatre pans en ardoise. Les grandes lucarnes rampantes sont des ajouts tardifs. Les pignons sont couverts, et celui exposé au nord-est conserve encore des éléments de charpente apparente (sous-arbalétriers, cercles). La tour est encadrée par deux corps en rez-de-chaussée avec terrasses en couverture, elles-même aujourd'hui couvertes par deux auvents. Les angles de l'avant-corps sont à pans coupés au rez-de-chaussée. Ils sont soulignés à l'étage par des pilastres corniers en pierre de taille surmontés d'une corniche-architravée. De part et d'autre de la façade, des pans coupés associent la brique et la pierre (chaînes de pierre harpées). La porte de la travée centrale est couverte d'un arc segmentaire, et toutes les baies en façade sont rectangulaires. La Villa Comoy se distingue des autres villas du quartier thermal par son ouverture sur l'espace public. Son architecte a exploité sa situation en hauteur en aménageant des terrasses qui constituent de véritables espaces à vivre avec vue sur les Garennes. La façade se distingue également par son décor en pierre sculptée, rare ailleurs. Ce décor est conservé (balustres des terrasses, chapiteaux des pilastres encadrant la baie centrale et lucarne de la travée centrale). Il semble inspiré de l'art de la Renaissance.
Deux murs de refend transversaux divisent le rez-de-chaussée en trois travées. La travée centrale correspond à la tour en façade. La porte d'entrée donne accès à un vestibule et de là, à la cage d'escalier située au fond, et aux travées latérales. La travée de gauche est composée de deux pièces disposées en profondeur qui correspondent à l'ancien cabinet du médecin. La travée de droite est également composée de deux pièces, sans doute à l'origine un salon et une salle à manger. Un étroit couloir passant derrière la cage d'escalier permet de relier les deux parties. Toutes les chambres à coucher sont situées à l'étage. Elles desservent les terrasses en façade. Sur le côté nord-est de la demeure, un corps en rez-de-chaussée est aujourd'hui couvert d'un toit en appentis. Il a pu être couvert d'une terrasse à l'origine.
- calcaire
- moellon
- enduit
- ardoise
- plan symétrique
- étage de soubassement
- rez-de-chaussée
- 1 étage carré
- étage de comble
- élévation à travées
- toit à longs pans
- toit à plusieurs pans
- escalier dans-oeuvre, escalier en équerre, en charpente
- baie rectangulaire
- baie avec arc surbaissé
- sculpture
Source(s) documentaire(s)
-
Archives départementales de la Nièvre. Cadastre de la commune de Saint-Honoré-les-Bains. [1832-1951].
Archives départementales de la Nièvre. Cadastre de la commune de Saint-Honoré-les-Bains. [1832-1951].- Atlas parcellaire (1832) : 3 PP 246- État de section (1832) : 3 P 246/1- Matrices cadastrales des propriétés bâties et non bâties : 3 P 246/2 (folio 1 à 380), 3 P 246/3 (folio 381 à 780), 3 P 246/4 (folio 781 à 1168)- Matrice cadastrale des propriétés bâties (1882-1914) : 3 P 246/5- Matrice cadastrale dite « matrice noire » des propriétés bâties : 3 P 246/6- Matrices cadastrales des propriétés non bâties : 3 P 246/7, 3 P 246/8, 3 P 246/9Lieu de conservation : Archives départementales de la Nièvre, Nevers - Cote du document : 3 P 246
-
Saint-Honoré-les-Bains. Villa Comoy. 1883.
Saint-Honoré-les-Bains. Villa Comoy / [auteur inconnu]. 1883. Photographie.Lieu de conservation : Collection particulière : château de La Montagne, Saint-Honoré-les-Bains
-
Delarue, Monique, Ducros, Henri, Fréguin, Michel, Olivier, Henri. Saint-Honoré-les-Bains. 2005.
Delarue, Monique. Ducros, Henri. Fréguin, Michel. Olivier, Henri. Saint-Honoré-les-Bains. Saint-Cyr-sur-Loire : Alan Sutton, 2005. Mémoire en images, ISSN 1355-5723. 128 p. ISBN 2-84253-539-1.
À voir
Informations complémentaires
- thermalisme en Bourgogne-Franche-Comté (le)
- © Région Bourgogne-Franche-Comté, Inventaire du patrimoine
