MAISON 5 RUE DE GRAMMONT
70 - Luxeuil-les-Bains
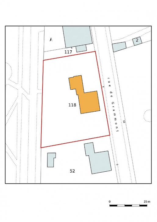
5 rue de Grammont
- Dossier IA70001160 réalisé en 2020
- Auteur(s) : Fabien Dufoulon
Historique
Le terrain est d'abord occupé par la maison Boulangier, qui date au moins du milieu du 18e siècle comme l'indiquent plusieurs plans relatifs à l'établissement thermal et à ses abords. Elle est plus précisément connue par le plan géométrique de l'embranchement des routes de Plombières et Saint-Loup à Luxeuil de 1788. Cette première maison, l'une des plus proches de l'établissement thermal, semble avoir joué un rôle important dans l'hébergement des baigneurs dès le 18e siècle. Les listes des étrangers de l'époque révolutionnaire confirment que la famille Boulangier est régulièrement l'hôte de curistes. L'édifice, qui appartient à Pierre Gérard puis Victor Pierrey au 19e siècle, est incendié autour de 1870. En 1872, le préfet propose l'acquisition du terrain, pour agrandir le parc thermal et lui donner une entrée sur la rue de Grammont, au ministre de l'Agriculture et du Commerce qui refuse. La maison (26 ouvertures) est construite par Gustave Paris, médecin, en 1873. La façade principale porte le chiffre du couple propriétaire au-dessus de la fenêtre du premier étage de la travée centrale (PD). La villa est contemporaine de la maison voisine, qui appartient alors également à un médecin. Elle appartient encore à la veuve de Gustave Paris pendant l’Entre-deux-guerres. L’État refuse l'ouverture d'un passage dans la haie séparant le jardin et le parc thermal en 1876.
- 3e quart 19e siècle
Description
La maison est construite en moellon calcaire enduit, et elle est couverte d'ardoise. Le décor extérieur consiste en sculptures en pierre calcaire (travée centrale de la façade principale) et en garde-corps en ferronnerie.
- calcaire
- moellon
- enduit
- ardoise
- plan rectangulaire régulier
- sous-sol
- 1 étage carré
- élévation à travées
- fleur
- feuille
- cuir découpé
- pot
- sculpture
- ferronnerie
Source(s) documentaire(s)
-
Archives départementales de la Haute-Saône. Cadastre de la commune de Luxeuil-les-Bains. [1827-1934].
Archives départementales de la Haute-Saône. Cadastre de la commune de Luxeuil-les-Bains. [1827-1934].- Atlas parcellaire (1827)- État de section (1833) : 3 P 146- Matrices cadastrales des propriétés bâties et non bâties (1829-1914) : 3 P 1114 (folio 1 à 518), 3 P 1115 (folio 519 à 915), 3 P 1116 (folio 916 à 1311)- Matrices cadastrales des propriétés bâties : 3 P 2264 (folio 1 à 639), 3 P 2265 (folio 640 à 753)- Matrices cadastrales dites "matrices noires" des propriétés bâties (1911-1934) : 3 P 3917 (folio 1 à 505), 3 P 3918 (folio 505 à 791)- Matrices cadastrales dites "matrices noires" des propriétés non bâties (1914-1934) : 3 P 3914 (folio 1 à 492), 3 P 3915 (folio 493 à 1091), 3 P 3916 (folio 1092 à 1225)Lieu de conservation : Archives départementales de la Haute-Saône, Vesoul -
Archives départementales de la Haute-Saône. 311 E dépôt 272. Biens communaux [1749-1781]. Voirie [1757-1788]. Édifices publics et édifices particuliers [1777-1780].
Archives départementales de la Haute-Saône. 311 E dépôt 272. Biens communaux [1749-1781]. Voirie [1757-1788]. Édifices publics et édifices particuliers [1777-1780].Lieu de conservation : Archives départementales de la Haute-Saône, Vesoul - Cote du document : 311 E dépôt 272 -
Archives départementales de la Haute-Saône. 311 E dépôt 314. Police [1791-1931].
Archives départementales de la Haute-Saône. 311 E dépôt 314. Police [1791-1931]. Casino de Luxeuil : autorisation, police des feux (1854-1923). Règlement pour les auberges et les hôtels qui logent des étrangers (1831, 1929) ; listes des étrangers qui logent dans les hôtels et qui fréquentent les thermes de Luxeuil (1792-an IX).Lieu de conservation : Archives départementales de la Haute-Saône, Vesoul - Cote du document : 311 E dépôt 314 -
Archives départementales de la Haute-Saône. 311 E dépôt 355. Édifices publics.
Archives départementales de la Haute-Saône. 311 E dépôt 355. Édifices publics. Abattoir public : construction, achat de terrains (1829-1831, 1881-1891) avec plans. Bains de Luxeuil : location, entretien, travaux de réparation, aménagement, etc. avec plans (1779-1945).Lieu de conservation : Archives départementales de la Haute-Saône, Vesoul - Cote du document : 311 E dépôt 355 -
Archives départementales de la Haute-Saône. 5 M 165. Établissement thermal de Luxeuil [1861-1872].
Archives départementales de la Haute-Saône. 5 M 165. Établissement thermal de Luxeuil [1861-1872]. Domaine : ouverture d’une route dans la forêt domaniale du Banney, dans le but de procurer de nouvelles promenades aux étrangers qui fréquentent les bains (1861-1867). Projet d’acquérir le terrain Pierry attenant à l’établissement thermal (1872).Lieu de conservation : Archives départementales de la Haute-Saône, Vesoul - Cote du document : 5 M 165 -
Archives départementales de la Haute-Saône. 5 M 169. Établissement thermal de Luxeuil [1857-1935].
Archives départementales de la Haute-Saône. 5 M 169. Établissement thermal de Luxeuil [1857-1935]. Parc, travaux à exécuter (1857-1926), construction d’urinoir (1864), projet d’éclairage au gaz (1863), installation d’un transformateur électrique (1927-1929), dégradations commises (1917), demandes d’autorisations d’ouvrir des portes et d’établir une borne-fontaine dans le mur du parc (1875-1913), demandes d’établissement de baraques marchandes, d’un atelier de photographie, d’un tir (1866-1872), demandes d’autorisations pour organiser des fêtes, tir de feux d’artifice, et y établir des jeux (1863-1935), accident survenu à la glacière (1899), projet de démolition (1935).Lieu de conservation : Archives départementales de la Haute-Saône, Vesoul - Cote du document : 5 M 169
-
Plan géométrique de l'embranchement des routes de Plombières et Saint-Loup à Luxeul [sic]. [1788].
Plan géométrique de l'embranchement des routes de Plombières et Saint-Loup à Luxeul [sic] où l'on voit l'emplacement de différens jardins et maisons aboutissants sur les embranchements / [auteur inconnu]. [1788]. Dessin à l'encre et à l'aquarelle sur papier. 53 x 42 cm. Paraphé ne varietur par l'intendant Caumartin de Saint-Ange le 23 juin 1788.Lieu de conservation : Archives départementales de la Haute-Saône, Vesoul - Cote du document : 311 E dépôt 272 -
Plan d'une partie des bains et de la bifurcation des routes de Luxeuil à Fougerolles et à Saint-Loup. 28 mars 1864.
Plan d'une partie des bains et de la bifurcation des routes de Luxeuil à Fougerolles et à Saint-Loup, dressé par le soussigné architecte de la Ville de Luxeuil, pour être joint à la défense au Conseil de Préfecture de la Haute-Saône contre un procès-verbal de l'administration des Ponts-et-Chaussées, qui demande la suppression d'un escalier (a) composé de trois marches qui donne accès à l'intérieur du bureau d'octroi (c) / [Félix-Hercule] Grandmougin. 28 mars 1864. Dessin. 58 x 47 cm.Lieu de conservation : Archives départementales de la Haute-Saône, Vesoul - Cote du document : 311 E dépôt 355
À voir
Informations complémentaires
- thermalisme en Bourgogne-Franche-Comté (le)
- © Région Bourgogne-Franche-Comté, Inventaire du patrimoine
