LES SALLES DE SPECTACLE DE DOLE
39 - Dole
- Dossier IA39002062 réalisé en 2022
- Auteur(s) : Laurent Poupard
Historique
L'activité théâtrale est attestée à Dole dès le 16e siècle, notamment au sein du collège des jésuites. En 1740, la Ville achète un ancien magasin à poudre, datant du 15e siècle et situé entre deux écuries militaires au long de la rue du Mont-Roland. Elle le transforme en salle de spectacle - la Comédie - bien que le lieu (une pièce rectangulaire voûtée) ne s'y prête que moyennement. Le 8 juillet 1754, la Ville impose à un directeur de troupe nommé Lubis ou Labis de trouver une nouvelle écurie pour 40 chevaux en remplacement de celle qu'il doit aménager en théâtre (l'ancien magasin à poudre). Des transformations conséquentes (création de loges) ont lieu sous la direction de l'architecte Antoine Louis Attiret, à l'aide d'un emprunt autorisé en 1762. Déclaré en 1788 vétuste "et dangereux pour les spectateurs qui le fréquentent", le bâtiment est rénové au début du 19e siècle par l'architecte voyer Augustin Derriey. La salle étant jugée "beaucoup trop restreinte, soit pour les spectateurs, soit pour l'orchestre où 15 à 16 musiciens peuvent à peine se placer", la Ville cherche en 1833 à la convertir en château d'eau et à en aménager une autre dans l'ancien couvent des cordeliers, ce qui entraîne l'opposition des magistrats du tribunal installé là. Le projet établi par l'architecte voyer André Amoudru suscite de nombreuses demandes de modifications par le Conseil des Bâtiments civils, auquel il est soumis en juillet 1834, entraînant son abandon par la Ville. Le 16 février 1839, l'écroulement de l'une des écuries endommage la toiture de la Comédie et conduit la municipalité à se rendre propriétaire des bâtiments pour les démolir. Elle décide alors de construire une nouvelle salle, de 800 places, dont le programme est donné le 4 mai par Amoudru. Le projet de l'ingénieur architecte Jean-Baptiste Martin, de Besançon, est retenu à l'issue d'un concours. L'adjudication des travaux a lieu le 17 août 1840, l'inauguration le 4 juillet 1843. Le théâtre (30 rue du Mont-Roland, cadastré 2022 BI 24) accueille au fil du temps de nombreuses manifestations, réunions, cérémonies, concerts, conférences (de 1880 aux années 1970), etc., mais l'aménagement en 1900 dans la halle aux grains d'une salle des fêtes (qui a disparu depuis) permet de le recentrer sur sa destination initiale.
Le cinématographe fait son apparition à Dole en mai 1899, lors de la fête de la Pentecôte, sur le cours Saint-Mauris. C'est d'abord une attraction foraine dans laquelle se distinguent, de 1901 à la Première Guerre mondiale, Louis Bracco et son "Salon du Cinématographe Lumière" (une baraque de 22 m sur 7, avec une locomobile actionnant une dynamo de 15 ch). Des séances ont lieu en plein air, à la terrasse de cafés, notamment place Jules Grévy (café Lajonchère, hôtels de la Cloche et de la Ville de Lyon). Les établissements se rattachent à l'un des deux grands réseaux existants. Tout d'abord celui de Charles Pathé avec en novembre 1907 le Cinéma Pathé de la Brasserie de Tantonville (19 Grande Rue) - auparavant café-concert des Variétés - auquel succède le 4 décembre 1909 le Grand Cinéma Pathé (salle des fêtes de l'hôtel de Genève, rue Carondelet), tous deux appartenant à Edouard Rémy, puis en juin 1911 le Cinéma Pathé de l'hôtel de la Cloche (place Grévy) de Justin Pannaux (avec projection en salle à partir du 7 octobre). Le réseau de Léon Gaumont, un peu plus tard : le Franco-Cinéma Gaumont ouvre en octobre 1913 dans la chapelle des cordeliers, sur l'initiative de Bessie Mac Ginnis, veuve Van Vorst (née en 1873 à New York, Etats-Unis), et d'Henri Mortier. Le paysage cinématographique est assez mouvant jusqu'à la fin de la Grande Guerre : le Grand Cinéma Pathé devient Central Cinéma (il fermera en 1919) tandis que le Cinéma Pathé de la Brasserie de Tantonville est remplacé le 19 février 1916 par le Cinéma Franco-Belge (dû à Mme Merken, une Belge tenant auparavant un cinéma forain cours Saint-Mauris), qui ferme en mai 1918, renaît sous le nom de Modern'Cinéma et disparaît en 1919.
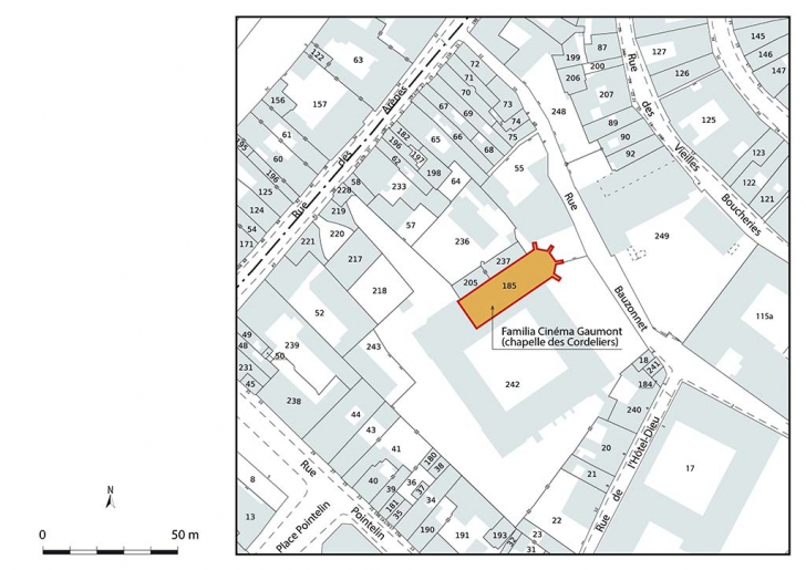
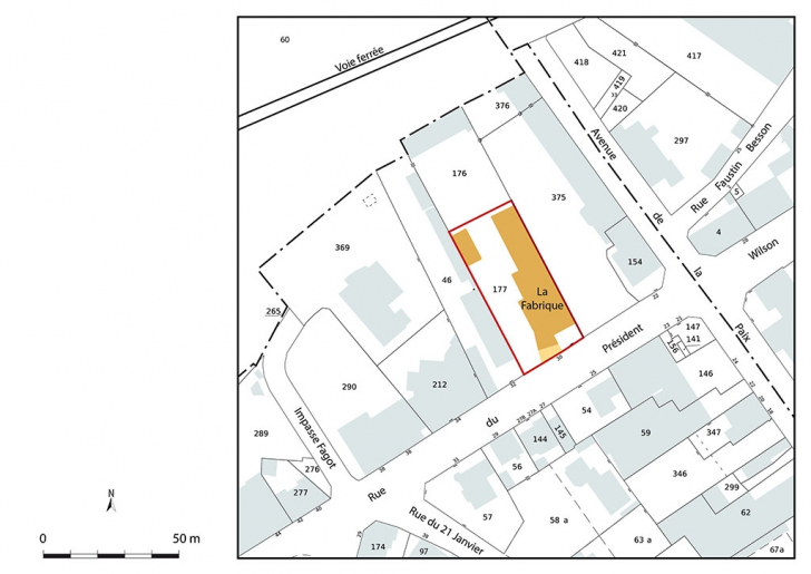
1919 voit l'ouverture du cinéma des Familles ou cinéma du Cercle Catholique - le Foyer (30 boulevard Wilson, 2022 BL 177) -, créé à la veille de la Première Guerre mondiale dans le patronage Saint-Joseph du Cercle catholique et inauguré en octobre. Autre ouverture la même année, le 29 ou le 30 août, dans la chapelle des Cordeliers (39 rue des Arènes, 2022 BH 185) : le Familia Cinéma Gaumont, exploité par Justin Pannaux. Délaissant celui de l'hôtel de la Cloche, ce dernier fait également construire un nouveau Cinéma Pathé (12 rue du 21 janvier, 2022 BL 169, 243), de 900 places, qui ouvre le 9 octobre 1920, et il met en place un réseau de correspondants locaux permettant des projections en milieu rural. Pannaux est également membre de la société des Amis de la Musique, qui achète et rénove en 1924 le Familia Gaumont (lequel ferme définitivement début 1926). En août 1929, il remplace l'appellation de son établissement de la rue du 21 Janvier par celle d'Omnium, puis d'Omnia Cinéma, et rénove en 1930 la salle, qui en novembre passe au sonore (c'est la première du département) avec une installation RCA (Radio Corporation of America, société créée en 1919 par la General Electric). Le Foyer ne devient parlant qu'en 1935-1936 alors que le théâtre, rénové en 1922-1923, accueille des projections sonores pour compenser sa baisse d'activité. En effet, le 14 août 1935 est fondée la Société doloise de Représentations cinématographiques (SDRC), qui transforme en cabine fermée l'une des loges et l'équipe de deux projecteurs de type 70 fournis par la société Pathé-Consortium-Cinéma (6 rue Francoeur, à Paris). L'établissement accueille des projections de films du 4 octobre 1935 au 3 mai 1936 mais l'expérience est arrêtée à la fin de la saison du fait d'un déficit croissant. La SDRC fait alors construire un cinéma derrière l'hôtel de la Cloche (3 avenue de Northwich, 2022 AX 119), qui (re)prend le nom de Modern'Cinéma et ouvre le 31 décembre 1936 sous la direction d'Eugène Girardin : salle de 25,50 m sur 12 en pan de fer et hourdis de briques creuses, 600 places au parterre et 150 au balcon, bar.
La structure cinématographique doloise se stabilise alors avant-guerre avec trois cinémas permanents : le Foyer - qui deviendra le Vox dans les années 1960 - (300 places), l'Omnia (800 à 900 places) et le Modern'Cinéma (750 places). Deux nouveaux établissements voient le jour dans les années 1960. Intégré au centre paroissial Saint-Jean-l'Evangéliste (9 rue Jean XXIII, 2022 BT 579), bâti de 1960 à 1964 sur des plans de l'architecte Anton Korady, le Régent est une salle de spectacle de 478 places, disposant d'une scène de 8 m sur 4. La Maison des Jeunes et de la Culture (place Barberousse) est édifiée peu après, en 1969 ; elle a sa propre salle art et essai, le Studio, d'une capacité déclarée de 270 places en 1980, 214 en 1990. Le Régent semble fermer en 1977, le Vox avant 1980. La Ville crée en 1979 son Centre d'Animation culturelle (CAC) qu'elle établit en 1980 dans le bâtiment du Vox, doté d'une salle de spectacle de 270 places et d'une galerie d'exposition. De nouveau fermé, ce lieu rouvrira le 25 octobre 1996 sous l'appellation la Fabrique. L'Omnia, exploité dans les années 1960 et 1970 par la SA Omnia Rex, passe, comme le Modern'Cinéma, aux mains de la famille Sadosky. Celle-ci les rénove, le Modern passant à 380 places en 1980 et l'Omnia, transformé en complexe les Tanneurs, à 680 places réparties dans trois salles (250 pour la salle 1, 320 pour la salle 2 et 110 pour la salle 3). Elle ferme le Modern au cours de cette décennie et, construisant un nouveau bâtiment entre 1983 et 1989, agrandit les Tanneurs qui compte en 1990 trois salles supplémentaires (de 146, 99 et 263 places).
En ce premier quart du 21e siècle, Dole compte quatre grandes salles de spectacle. Dernier cinéma, les Tanneurs totalise 1 037 fauteuils en 2019 et oeuvre avec la MJC, dont le bâtiment de la place Barberousse a été démoli l'année précédente. Il vient de changer plusieurs fois de propriétaires : Cap'Cinéma, CGR en 2017, Majestic au début 2019. Ce dernier groupe, appartenant à Jean-Claude Tupin, programme à courte échéance son transfert sur la rive gauche du Doubs, à l'emplacement des anciens abattoirs (rue du Général Béthouard). L'agence francilienne Linéaire A (108 avenue de la République, à Bagnolet), de Damien Deby, y prévoit, outre deux restaurants, 1 916 sièges répartis dans 10 salles (une de 450 places, une de 306, trois de 200, une de 160 et quatre de 100). La Fabrique a été rénovée par l'agence d'architecture doloise Thierry au cours du deuxième semestre 2015 et inaugurée le 6 février 2016, avec une capacité de 230 places. Pour sa part, le théâtre municipal, restauré à partir de 2014, a rouvert ses portes le 28 novembre 2021. Il abrite l'association Scènes du Jura, née en 1997 de la fusion des théâtres de Dole et de Lons-le-Saunier, labellisée Scène nationale en 2013, qui assure sa programmation. Dernière salle bâtie : la Commanderie (2 rue d'Azans, 2022 BY 484), édifiée de 2002 à 2006 suivant les plans de l'architecte Brigitte Métra (créatrice en 2003 de l'agence Métra et Associés, 33 avenue Paul Doumer à Paris). D'abord envisagée comme salle de sport, la salle est finalement un équipement polyvalent, doté d'un cadre de scène de 18 m sur 7, de parois mobiles et de tribunes escamotables, pour une jauge de 500 à 2 900 places selon le dispositif scénique et le type de spectacle.
- 2e quart 19e siècle
- 1er quart 20e siècle
- 2e quart 20e siècle
- 3e quart 20e siècle
- 1er quart 21e siècle
- 4e quart 20e siècle
Martin, Jean-Baptiste : ingénieur architecte à Besançon au début du 19e siècle. A travaillé à des projets d'aménagement de théâtres parisiens auprès des architectes Debret et Duban, et a obtenu en 1836 le 2e prix du concours pour la construction de celui du Mans. Auteur des théâtres de Dole et de Gray.
Date de naissance : 1879 - date de décès : 1951
Pannaux, Justin (1879-1951). Propriétaire exploitant de cinéma à Dole.
Société doloise de Représentations cinématographiques. Société créée à Dole le 14 août 1935 par divers commerçants, réunis autour du mécanicien Baudoin, de l'imprimeur Eugène Goeury (directeur du journal <span style="font-style:italic;">L'Action jurassienne</span>) et du photographe Eugène Girardin, afin d'organiser des projections au théâtre municipal. Elle fait bâtir en 1936 le Modern'Cinéma (3 avenue de Northwich).
Date de naissance : 22/11/1924 - date de décès : 20/06/2016
Sadosky, Robert (1924-2016). Industriel, fondateur de la la Société jurassienne de Panification (par la suite Elancia) à Tavaux et du cinéma les Tanneurs à Dole.
Date de naissance : 25/03/1954
Métra, Brigitte (née en 1954). Architecte. Collaboratrice de Jean Nouvel en 1987. Créatrice en 2003 de l'agence Métra et Associés (33 avenue Paul Doumer à Paris).
Description
Le théâtre et la Fabrique (ancien cinéma le Foyer) sont des bâtiments en pierre ; le Modern'Cinéma fait appel au pan de fer et les Tanneurs au pan de béton armé, tous deux avec hourdis de briques ; l'ancien Régent (centre paroissial Saint-Jean) est en béton, de même que la Commanderie (avec plaquage de roches calcaires) qui fait aussi appel à un mur-rideau côté ville.
Source(s) documentaire(s)
-
Archives municipales de Dole : 1 M 155 Théâtre municipal. Construction, ravalement de façades. 1827-1974.
Archives municipales de Dole : 1 M 155 Théâtre municipal. Construction, ravalement de façades. 1827-1974.Lieu de conservation : Archives municipales, Dole - Cote du document : 1 M 155 -
Archives municipales de Dole : 1 M 157 Théâtre municipal. Appropriation. 1923-1924.
Archives municipales de Dole : 1 M 157 Théâtre municipal. Appropriation. 1923-1924.- Cote du document : 1 M 157 -
Archives municipales de Dole : 2 R 6 Cinéma. 1913-1947.
Archives municipales de Dole : 2 R 6 Cinéma. 1913-1947.Lieu de conservation : Archives municipales, Dole - Cote du document : 2 R 6 B -
Archives municipales de Dole : 12 Z 18 Local du CAC. 1979-1982.
Archives municipales de Dole : 12 Z 18 Local du CAC. 1979-1982.Lieu de conservation : Archives municipales, Dole - Cote du document : 12 Z 18
-
17. Dole - Le Tribunal [ancien couvent des cordeliers]. S.d. [1re moitié 20e siècle].
17. Dole - Le Tribunal [ancien couvent des cordeliers]. Carte postale, s.n. S.d. [1re moitié 20e siècle]. B.F. éd. à Chalon-sur-Saône.Lieu de conservation : Archives municipales, Dole - Cote du document : VEL/CP/3/59 -
Le cinéma forain de M. Beuchot de Fraisans en 1908.
Le cinéma forain de M. Beuchot de Fraisans en 1908. Carte postale. Publiée dans : Club des jeunes Historien. Histoire du spectacle cinématographique à Dole, 1895-1945, 1981, p. 11.Lieu de conservation : Archives municipales, Dole - Cote du document : PHO 50/1 -
Cinéma forain Beuchot à Fraisans (1908) : façade.
Cinéma forain Beuchot à Fraisans (1908) : façade. Photographie.Lieu de conservation : Archives municipales, Dole - Cote du document : PHO 50/3 -
Cinéma forain Beuchot : façade agrandie (vers 1910).
Cinéma forain Beuchot : façade agrandie (vers 1910). Photographie.Lieu de conservation : Archives municipales, Dole - Cote du document : PHO 50/4 -
En 1911, Justin Pannaux installe le cinématographe Pathé à la salle des fêtes de l'hôtel de la Cloche.
En 1911, Justin Pannaux installe le cinématographe Pathé à la salle des fêtes de l'hôtel de la Cloche. Photographie. Publiée dans : Club des jeunes Historien. Histoire du spectacle cinématographique à Dole, 1895-1945, 1981, p. 19.Lieu de conservation : Archives municipales, Dole - Cote du document : PHO 50/8 -
Installation d'une salle de cinématographe dans l'ancienne chapelle des Cordeliers. S.d. [1913].
Installation d'une salle de cinématographe dans l'ancienne chapelle des Cordeliers. Dessin (plume), s.n. S.d. [1913]. 21 x 30 cm, sans échelle.Lieu de conservation : Archives municipales, Dole - Cote du document : 2 R 6 -
Cinéma Pathé (Pannaux), r. du 21 Janvier : façade (v. 1920).
Cinéma Pathé (Pannaux), r. du 21 Janvier : façade (v. 1920). Photographie. Publiée dans : Bienmiller, Daniel. Dole et la naissance du cinéma parlant, p. 336.Lieu de conservation : Archives municipales, Dole - Cote du document : PHO 50/9 -
Façade de l'Omnia-cinéma, avec le personnel (v. 1930)
Façade de l'Omnia-cinéma, avec le personnel (v. 1930). Photographie. Publiée dans : Club des jeunes Historien. Histoire du spectacle cinématographique à Dole, 1895-1945, 1981, p. 31.Lieu de conservation : Archives municipales, Dole - Cote du document : PHO 50/10 -
La salle de l'Omnia équipée pour le "parlant" (v. 1930).
La salle de l'Omnia équipée pour le "parlant" (v. 1930). Photographie. Publiée dans : Club des jeunes Historien. Histoire du spectacle cinématographique à Dole, 1895-1945, 1981, p. 71.Lieu de conservation : Archives municipales, Dole - Cote du document : PHO 50/11 -
Modern'Cinéma Dole. Plan de situation. S.d. [1936].
Modern'Cinéma Dole. Plan de situation. Dessin (tirage, lavis), s.n. [Société doloise des Représentations cinématographiques]. S.d. [1936]. 30 x 32 cm, sans échelle.Lieu de conservation : Archives municipales, Dole - Cote du document : 2 R 6 -
Modern-Cinéma [plan et coupes]. S.d. [1936].
Modern-Cinéma [plan et coupes]. Dessin (tirage), par l'architecte [signé illisible : M. Hobert ou Robert ?]. S.d. [1936]. Sans échelle.- Plan parterre. 45 x 99,5 cm. (Le même existe sans titre ; 44 x 96,5 cm).- Coupe longitudinale. 36 x 63,5 cm.- Coupe transversale. 37,5 x 46 cm.Lieu de conservation : Archives municipales, Dole - Cote du document : 2 R 6 -
Façade de l'Omnia-cinéma (r. du 21 Janvier) vers 1945.
Façade de l'Omnia-cinéma (r. du 21 Janvier) vers 1945. Photographie.Lieu de conservation : Archives municipales, Dole - Cote du document : PHO 50/12 -
Foule devant l'Omnia-cinéma (r. du 21 Janvier) v. 1945.
Foule devant l'Omnia-cinéma (r. du 21 Janvier) v. 1945. Photographie.Lieu de conservation : Archives municipales, Dole - Cote du document : PHO 50/14 -
Prises de vues aériennes de l'IGN (20e siècle)
Prises de vues aériennes de l'IGN (20e siècle). Consultables en ligne via le site du Géoportail (www.geoportail.gouv.fr)
-
Cauquil, Nathalie. A Dole, le projet du cinéma se précise pour 2020. 17 juillet 2019.
Cauquil, Nathalie. A Dole, le projet du cinéma se précise pour 2020. La Voix du Jura, 17 juillet 2019, ill. Accès internet : https://actu.fr/bourgogne-franche-comte/dole_39198/a-dole-projet-cinema-se-precise-2020_25970078.html -
Ingelaere, Benoît. Jura. Bientôt à Dole, un cinéma de 1886 places avec le plus grand écran de Bourgogne - Franche-Comté. 21 janvier 2020.
Ingelaere, Benoît. Jura. Bientôt à Dole, un cinéma de 1886 places avec le plus grand écran de Bourgogne - Franche-Comté. La Voix du Jura, 21 janvier 2020, ill. Accès internet : https://actu.fr/bourgogne-franche-comte/dole_39198/jura-dole-multiplexe-cinema-plus-grand-ecran-bfc-majestic_30919689.html -
Lamarre, François. Dole : La Commanderie entre visibilité et disparition. 25 juillet 2007.
Lamarre, François. Dole : La Commanderie entre visibilité et disparition. Les Echos, 25 juillet 2007, ill. Accès internet : https://www.lesechos.fr/2007/07/dole-la-commanderie-entre-visibilite-et-disparition-535971
-
Annuaire du cinéma Bellefaye
Annuaire du cinéma Bellefaye. Paris : Bellefaye, 1948-2015.Titres :Annuaire du cinéma. [1948]-1963.Annuaire du cinéma et télévision. 1964-1985Annuaire du cinéma, télévision, vidéo. 1986-2005.Annuaire du cinéma et de l'audiovisuel. 2006-2015.Numérique à partir de 2016. -
Annuaire général de la Cinématographie et des Industries qui s'y rattachent
Annuaire général de la Cinématographie et des Industries qui s'y rattachent. Paris : Cinémagazine, 1922-...Suite de : Almanach du Cinéma. Paris : Cinémagazine-édition, 1922-1924. -
Bienmiller, Daniel. Aux origines... du théâtre municipal. 18 avril 1985.
Bienmiller, Daniel. Aux origines... du théâtre municipal. Le Nouveau Journal de Dole, 18 avril 1985, ill. -
Bienmiller, Daniel. Dole et la naissance du cinéma parlant. 1985.
Bienmiller, Daniel. Dole et la naissance du cinéma parlant. Société d'Emulation du Jura. Travaux présentés en... 1985, Lons-le-Saunier, 1987, p. 335-351 : ill. -
Brigitte Métra, Salle de spectacle, La Commanderie, Dole (39). Avril 2007.
Brigitte Métra, Salle de spectacle, La Commanderie, Dole (39). Technique & Architecture, n° 489, avril 2007, p. 84-87 : ill. Dossier : Programme musiques / Concert halls. -
Club des jeunes Historiens (Amis de la Bibliothèque, des Archives et du Musée de Dole). Histoire du spectacle cinématographique à Dole, 1895-1945. 1981.
Club des jeunes Historiens (Amis de la Bibliothèque, des Archives et du Musée de Dole). Histoire du spectacle cinématographique à Dole, 1895-1945 / avec le concours de Daniel Bienmiller, Claude Laurent. Dole : Impr. typographique doloise, 1981. 73 [i. e. 36] p. : ill. ; 29,5 cm. -
Gay, Annie ; Theurot, Jacky. Dole pas à pas. 1985.
Gay, Annie ; Theurot, Jacky. Dole pas à pas. Roanne : Editions Horvath, 1985. 263 p. : ill. ; 28 cm. -
Pidoux de la Maduère, Pierre André. Le Vieux Dole : Histoire pittoresque, artistique et anecdotique d'une ancienne capitale. 1929.
Pidoux de la Maduère, Pierre André. Le Vieux Dole : Histoire pittoresque, artistique et anecdotique d'une ancienne capitale. Paris : Guenegaud, 1975. 4 t. en 2 vol., 675 [i. e. 679] p. : ill. ; 23 cm. Réimpr. de l'éd. publiée en 1929 chez Sequania à Besançon. -
Rittaud-Hutinet, Jacques. Des tréteaux à la scène : le théâtre en Franche-Comté du Moyen Age à la Révolution. 1988.
Rittaud-Hutinet, Jacques. Des tréteaux à la scène : le théâtre en Franche-Comté du Moyen Age à la Révolution. Besançon : Cêtre, 1988. 349 p. : ill. ; 23 cm. -
Rousset, Alphonse. Dictionnaire géographique, historique et statistique des communes [...] du Jura, 1853-1858
Rousset, Alphonse. Dictionnaire géographique, historique et statistique des communes [...] du Jura. - Besançon : Bintot ; Lons-le-Saunier : Robert, 1853-1858. 6 t. en 6 vol. -
Le théâtre de Dole : une élégante architecture du XIXe siècle. Septembre 2017.
Le théâtre de Dole : une élégante architecture du XIXe siècle. Cahiers dolois, n° 14, septembre 2017, p. 1-16 : ill. Numéro spécial des Cahiers dolois consacré au théâtre. -
Le théâtre de Dole. Un espace privilégié de la vie culturelle doloise aux XIXe et XXe siècles. Décembre 2017.
Le théâtre de Dole. Un espace privilégié de la vie culturelle doloise aux XIXe et XXe siècles. Cahiers dolois, n° 15-16, décembre 2017, p. 1-16 : ill. Numéro spécial des Cahiers dolois consacré au théâtre.
À voir
Informations complémentaires
- salles de spectacle de Bourgogne-Franche-Comté
- © Région Bourgogne-Franche-Comté, Inventaire du patrimoine
