CINÉMA LE FOYER PUIS VOX, ACTUELLEMENT SALLE DE SPECTACLE LA FABRIQUE
39 - Dole
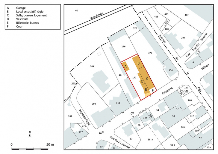
30 boulevard du Président Wilson
- Dossier IA39002061 réalisé en 2022
- Auteur(s) : Laurent Poupard
Historique
Les bâtiments semblent construits dans le dernier quart du 19e siècle ou au début du 20e. Occupés par le patronage Saint-Joseph du Cercle catholique, ils sont tenus en 1911 par "un groupe de jeunes gens catholiques" (signalés là à partir de 1903) et accueillent, à la veille de la Première Guerre mondiale, le Cinéma des Familles. Inauguré en octobre 1919, celui-ci fonctionne d'octobre à fin mars et diffuse des films "d'excellent moralité". Il compte 400 places en 1930-1931 et dispose d'une scène. L'établissement, qui passe au sonore fin 1935 (la première séance a lieu le 3 octobre), est connu sous le nom de cinéma Le Foyer, cinéma du Cercle catholique ou Cercle du Foyer. Il prend l'appellation de cinéma Vox au cours des années 1960 et ferme avant 1980 (c'est alors une salle en gradins, d'une capacité de 300 places, dotée d'une scène de 14 m sur 9). La Ville le rénove pour le mettre à la disposition du Centre d'Animation culturelle de Dole et de la Région jurassienne, créé en 1979. Le nouveau Vox, inauguré le 20 septembre 1980, comporte une salle de spectacle de 270 places (lieu de création et de diffusion théâtrale), une galerie d'exposition et une cafétéria. De nouveau fermé, il rouvre le 25 octobre 1996 sous l'appellation la Fabrique. Il est rénové par l'agence d'architecture doloise Thierry au cours du deuxième semestre 2015 et connaît une nouvelle inauguration le 6 février 2016, avec une capacité de 230 places. L'administration des Scènes du Jura - Scène nationale (née en 1997 du rapprochement des théâtres de Lons-le-Saunier et de Dole) s'y installe jusqu'au début de l'année 2022, lorsqu'elle rejoint le théâtre municipal dont la restauration vient de s'achever.
- limite 19e siècle 20e siècle
Description
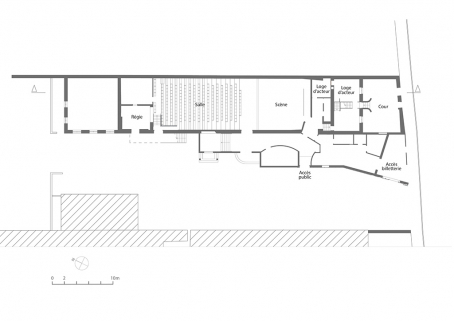
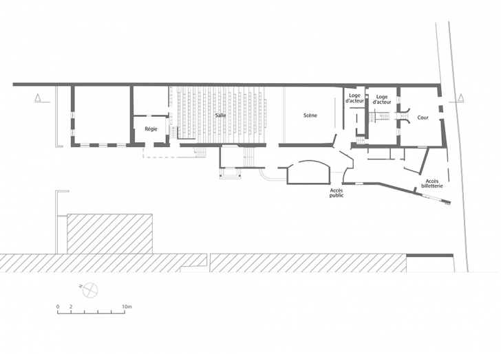
Le bâtiment principal, aux murs de moellons calcaires, est couvert d'un toit à longs pans, pignons couverts et tuiles mécaniques. Il s'organise en deux corps. Celui au nord, qui accueille la régie, est plus élevé et desservi par un escalier extérieur droit métallique. Celui au sud abrite la salle (en gradins) et la scène (de plain-pied). Son extrémité méridionale (côté rue) est occupée par un logement, doté d'une petite cave et d'un étage carré desservi par un escalier tournant en bois. Le corps d'entrée et bureau, avec toit à un pan en béton, et le vestibule, protégé par un toit en appentis, sont plus récents et réalisés en béton enduit.
- calcaire
- béton
- moellon
- enduit partiel
- enduit
- tuile mécanique
- béton en couverture
- sous-sol
- 1 étage carré
- comble à surcroît
- fausse voûte en berceau segmentaire en béton armé
- élévation à travées
- toit à longs pans, pignon couvert
- toit à un pan
- appentis
- escalier dans-oeuvre, escalier tournant, en charpente
- escalier de distribution extérieur, escalier droit, en charpente métallique
Source(s) documentaire(s)
-
Archives municipales de Dole : 12 Z 18 Local du CAC. 1979-1982.
Archives municipales de Dole : 12 Z 18 Local du CAC. 1979-1982.Lieu de conservation : Archives municipales, Dole - Cote du document : 12 Z 18
-
Ancien cinéma Vox. Salle de spectacle. Coupe longitudinale. 28 avril 1979.
Ancien cinéma Vox. Salle de spectacle. Coupe longitudinale. Dessin (tirage), par l'adjoint technique [illisible], Ville de Dole Services techniques, Bureau d’Architecture. 28 avril 1979. 29,5 x 83 cm, 1/50.Lieu de conservation : Archives municipales, Dole - Cote du document : 12 Z 18 -
La salle du Foyer en 1925 depuis l'écran.
La salle du Foyer en 1925 depuis l'écran. Publiée dans : Club des jeunes Historien. Histoire du spectacle cinématographique à Dole, 1895-1945, 1981, p. 39.Lieu de conservation : Archives municipales, Dole - Cote du document : PHO 50/6 -
La salle du Foyer en 1926 depuis la salle.
La salle du Foyer en 1926 depuis la salle. Publiée dans : Club des jeunes Historien. Histoire du spectacle cinématographique à Dole, 1895-1945, 1981, p. 39. -
Cabine du Cinéma du Foyer (1926).
Cabine du Cinéma du Foyer (1926). Publiée dans : Club des jeunes Historien. Histoire du spectacle cinématographique à Dole, 1895-1945, 1981, p. 39.Lieu de conservation : Archives municipales, Dole - Cote du document : PHO 50/7
-
Roy, Régine. La Fabrique s’apprête à accueillir son premier spectacle. 11 janvier 2016.
Roy, Régine. La Fabrique s’apprête à accueillir son premier spectacle. Le Progrès, édition Jura Nord - Dole [en ligne], 11 janvier 2016 [consultation du 18 mars 2022]. Accès internet : https://www.leprogres.fr/jura/2016/01/11/la-fabrique-s-apprete-a-accueillir-son-premier-spectacle
-
Annuaire du cinéma Bellefaye
Annuaire du cinéma Bellefaye. Paris : Bellefaye, 1948-2015.Titres :Annuaire du cinéma. [1948]-1963.Annuaire du cinéma et télévision. 1964-1985Annuaire du cinéma, télévision, vidéo. 1986-2005.Annuaire du cinéma et de l'audiovisuel. 2006-2015.Numérique à partir de 2016. -
Annuaire général de la Cinématographie et des Industries qui s'y rattachent
Annuaire général de la Cinématographie et des Industries qui s'y rattachent. Paris : Cinémagazine, 1922-...Suite de : Almanach du Cinéma. Paris : Cinémagazine-édition, 1922-1924. -
Bienmiller, Daniel. Dole et la naissance du cinéma parlant. 1985.
Bienmiller, Daniel. Dole et la naissance du cinéma parlant. Société d'Emulation du Jura. Travaux présentés en... 1985, Lons-le-Saunier, 1987, p. 335-351 : ill. -
Club des jeunes Historiens (Amis de la Bibliothèque, des Archives et du Musée de Dole). Histoire du spectacle cinématographique à Dole, 1895-1945. 1981.
Club des jeunes Historiens (Amis de la Bibliothèque, des Archives et du Musée de Dole). Histoire du spectacle cinématographique à Dole, 1895-1945 / avec le concours de Daniel Bienmiller, Claude Laurent. Dole : Impr. typographique doloise, 1981. 73 [i. e. 36] p. : ill. ; 29,5 cm.
-
Ferroli, Maxime (témoignage oral)
Ferroli, Maxime. Archiviste municipal. Dole.
À voir
Informations complémentaires
- salles de spectacle de Bourgogne-Franche-Comté
- © Région Bourgogne-Franche-Comté, Inventaire du patrimoine
