HÔTEL DE VILLE, ACTUELLEMENT ESPACE CULTUREL JEAN-PIERRE PINCEMIN (THÉÂTRE MUNICIPAL ET CONSERVATOIRE)
89 - Villeneuve-sur-Yonne
25 rue Carnot
- Situé dans : Peinture monumentale
- Dossier IA89002110 réalisé en 2022
- Auteur(s) : Laurent Poupard
Présentation
Deux ordonnances royales autorisent, les 24 novembre 1824 et 10 octobre 1829, la municipalité de Villeneuve-sur-Yonne (alors Villeneuve-le-Roi) à acquérir des maisons afin de construire au long de la Grande Rue un hôtel de ville abritant également une justice de paix et une prison. Un projet est rédigé le 15 avril 1834 par Louis Victor Jubin (ou Jubin-Mondin), entrepreneur de bâtiment et représentant d'une famille d'entrepreneurs (avec son père François Pierre, son frère François Louis et son beau-père Pierre Mondin). La proposition est approuvée le 1er mai suivant par le conseil municipal, qui prévoit d'en assurer le financement par diverses ressources, notamment la vente des murs de fortification de la ville et du terrain des chemins de ronde. Toutefois, le 19 août, le rapporteur du Conseil des Bâtiments civils, Jean Marie Biet, émet de sérieuses réserves sur un projet jugé médiocre. Il écrit : "Le bâtiment doit renfermer une grande salle dite électorale, laquelle servira en même temps aux grandes réunions, bals, concerts et même aux représentations dramatiques. A cet effet il [l'architecte] a fait entrer dans la composition du 1er étage une grande pièce de 9 m sur 13 de profondeur ; mais il est à remarquer que le plancher de cette salle est d'une seule volée sans points d'appui intermédiaires ; car on ne peut compter comme l'auteur l'a fait sur l'auxiliaire des cloisons légères qui forment la distribution du rez-de-chaussée". Plus loin, il évoque des escaliers mal placés et inexécutables ("Il n'est point de chaumière où l'escalier ne soit mieux combiné que ceux-ci, ils sont intolérables pour un édifice public"), une façade "d'un goût suranné", etc. Il propose des modifications, notamment pour la grande salle : "il serait dans l'intérêt de la commune de traiter cette salle le plus convenablement que l'espace le permet, parce que plus elle offrira de commodités et plus la ville aura de chances à en retirer avantage par location ; aussi il [Biet lui-même] lui a donné plus de hauteur que le projet et il a indiqué un rang de loges qu'il serait facile d'y pratiquer sans grands frais". Le coût de l'édifice serait porté de 19 500 F à une fourchette de 24 à 30 000 F. La municipalité en tient compte et le devis estimatif dressé par Jubin le 1er juillet 1835 s’élève à 31 546 F, ramenés lors de l'adjudication le 27 décembre 1835 à 24 128 F du fait du rabais de 23,5 % consenti par les frères François et Silvain Lavaud, d'Avrolles.
Jubin est missionné pour suivre les travaux. Les démolitions doivent débuter le 15 mars 1836, la couverture être achevée le 15 octobre et le bâtiment le 1er août 1837. La réalité sera tout autre. Déjà, des modifications sont apportées au projet : conservation partielle des caves existantes (qui seront temporairement remplies de terre afin de servir de cintre pour la réalisation des voûtes) et construction en pierre de taille de la façade entière et non d'une partie seulement ("le devis [initial] de la construction de la bâtisse pour la mairie fait élever en pierre de taille l'avant-corps de cet édifice et […] les deux côtés seront construits en moellon qui sera recouvert en plâtre où des lignes tracées figureront des pierres […] des graves inconvénients naîtront de cette construction attendu que le plâtre étant sujet à travailler il est très probable que de temps à autres plusieurs portions se détacheront et que ces parties ne seront plus en harmonie avec l'avant-corps"). Jubin signale dès août 1836 que le chantier a pris du retard : "Enfin aujourd'hui qu'il y a déjà plus de 4 mois que les travaux de construction sont commencés, nous sommes à peine arrivés à 2 m 60 centimètres au-dessus du 1er plancher, il reste encore environ trois mètres de hauteur de maçonnerie à faire, la corniche et le fronton, qui sont des travaux assé [sic] longs à tailler et poser". Il rappelle que le planning initial doit être tenu sinon les pluies abondantes et le gel, fréquents en fin d'année, compromettront la solidité des murs. Jetant la responsabilité de ce retard sur un manque d'anticipation dans les commandes de matériaux et un défaut d'organisation des adjudicataires, il préconise de faire appel - à leurs frais - à un piqueur afin de le seconder. Ceux-ci répliquent en mettant en doute sa probité (l'un de leurs concurrents malheureux étant son frère), mentionnent les changements qu'il a demandés, évoquent une crue exceptionnelle de l'Yonne qui a empêché le transport par bateau d'une partie de la pierre tirée de Passy (près de Tonnerre), etc. Le 29 novembre, un tiers de l'édifice seulement est couvert. Les frères Lavaux font faillite le 13 avril 1837 alors que "la carcasse de cette construction et une partie des murs intérieurs [sont] seulement faits, tout l'intérieur et les ravalements extérieurs [restant] encore à faire". Le bâtiment n'est toujours pas fini en novembre 1837 (l'étage reste ouvert à tous vents) et Jubin rédige un devis de 7 350 F pour son achèvement. Le sous-préfet le valide le 20 juin 1838 à l'exception de la partie concernant le théâtre (2 923 F), qui ne sera réalisée que s'il reste suffisamment d'argent. La première partie est adjugée le 1er juillet au menuisier Michel Chareyre, la deuxième (théâtre) le 25 juillet 1840 à l'entrepreneur Henri Olivier Langlois. Cette dernière prévoit une scène agrandie par un encorbellement sur la cour (où elle s'appuie sur le mur mitoyen) et surmontée au nord par une petite passerelle, deux loges d'avant-scène (mesurant 1,50 x 1,30 cm), une galerie suspendue dont le centre sera occupé par cinq loges (larges de 1,10 m). Les derniers aménagements (1 200 F suivant un devis du 1er août 1842), qui concernent "les travaux à faire dans la salle du conseil servant de bibliothèque, dans la loge des actrices, le foyer et le théâtre", sont adjugés le 16 octobre 1842 à Charles Bezançon et Michel Chemovek fils. A noter que dans certains ouvrages, la mairie et/ou le théâtre sont attribués à Benoît Alexandre Bourla, auteur du décor du théâtre de Joigny.
De nouvelles modifications ont lieu en 1873-1874. Le 14 mars 1873, la municipalité valide l'achat de la maison au 19 Grande Rue, contiguë à la mairie au sud, pour établir "un cabinet pour Mr le juge de paix, un bureau pour le commissaire de police et un logement pour le concierge de la mairie" (ce bâtiment sera démoli lors du bombardement du 16 juin 1940). Le 21 septembre 1874, elle approuve un devis de 3 000 F pour la remise en état du théâtre, devis concernant 30 consoles en fer forgé et le "grillage du plafond", la réfection de la galerie et des bancs, des travaux de peinture (salle et scène, loges d'acteur, foyer et couloirs), la réparation des décors de scène, des rideaux de fond, des frises et des "peintures du plafond", des travaux de tapisserie (restauration de 20 banquettes, garnitures des loges et cinq strapontins), le déplacement d'éléments de l'éclairage au gaz et des modifications au lustre. L'hôtel de ville est restauré en 1896 suivant le projet élaboré le 20 janvier par l'architecte Léon Rousseau, de Sens. Le point le plus délicat est, suivant l'avis du Conseil départemental des Bâtiments civils (le 5 mars), la consolidation du plancher de la salle de spectacle. Les travaux adjugés le 28 juin doivent être achevés dans les trois mois. Des imprévus nécessitent la rédaction d'un devis supplémentaire comportant, notamment, la "consolidation du plancher au dessus de la salle de théâtre et [la] réfection de l'aire du grenier" ainsi que l' "appropriation de la salle du conseil et [la] consolidation de son plancher". La réception définitive est prononcée le 13 mai 1898. Au tournant du siècle, la municipalité achète la demeure contiguë au nord-ouest, rue Joubert, afin d'agrandir le bâtiment et d'y installer "une salle de réunion pour les sociétés musicales, la Caisse d'Epargne et deux dépôts d'archives". Rousseau élabore un projet articulé autour de la reconstruction de cette maison. Il la dote de trois étages et d'un escalier qui permet aussi la desserte de "la galerie supérieure de la salle de théâtre", tout en fournissant un dégagement et une issue en cas d’incendie. Le 16 février 1901, il remet son projet, validé par le conseil municipal le 29 mars et par le Conseil départemental des Bâtiments civils le 2 mai suivant, avec cette réserve que l'escalier devra être réalisé en maçonnerie et non en bois. Les travaux sont adjugés le 21 juin à des artisans locaux (la maçonnerie à l'entrepreneur Théophile Roy) et doivent être achevés d'ici la fin de l'année. Ils sont reçus provisoirement le 10 octobre 1903 et définitivement l'année suivante.
La grille tarifaire établie en 1925 permet de connaître la capacité du théâtre : 348 places, soit 8 places (à 2 F) dans 2 loges, 100 (à 1,50 F) dans la galerie, 80 (à 1 F) à l'orchestre, 130 (à 0,75 F) au parterre assis et 30 (à 0,50 F) au parterre debout. Le personnel à rémunérer à chaque représentation se compose du concierge (8 F), du machiniste (6 F), du tapissier décorateur (5 F), du gazier et du caissier (4 F chacun). La salle reste polyvalente : elle accueille ainsi des bals dans les années 1960. En 1978, la mairie est transférée dans l'ancienne demeure Gau des Voves (au 99 rue Carnot) qui, achetée par la commune en 1948, avait été convertie en collège et cantine scolaire. Le bâtiment est alors dédié au seul théâtre et, en 2001, le plafond de la salle est orné d'une peinture suivant un dessin de J.-P. Pincemin, qui vit à Villeneuve-sur-Yonne dans les années 1990. Accueillant à partir de 2004 les services culturels, il est baptisé espace culturel Jean-Pierre Pincemin le 18 septembre 2010. Le conservatoire de musique, dont le local a été incendié en décembre 2012, s'y installe l'année suivante. En 2017, le cabinet Gyssels Architecte, de Sens, élabore un projet de réaménagement et de mise en accessibilité : le rez-de-chaussée est affecté au conservatoire et une extension vitrée, abritant escalier et ascenseur, est créée en avant de la façade sud. Les travaux, débutés en septembre 2017, s'achèvent en 2019. Le théâtre, d'une capacité de 125 places, est géré de 2004 à 2016 par la compagnie Archipel puis, après les travaux, à partir du 1er janvier 2021 par les Chantiers du Théâtre (6 personnes présentes régulièrement en 2022, 1,7 ETP). Utilisé environ 180 jours par an, il accueille 25 représentations pour une douzaine de spectacles, plus deux séances de cinéma par mois assurées par l'association de cinéma itinérant Panoramic (créée début 1991).
Historique
Deux ordonnances royales, les 24 novembre 1824 et 10 octobre 1829, autorisent la municipalité de Villeneuve-sur-Yonne (alors Villeneuve-le-Roi) à acquérir des maisons afin de construire au long de la Grande Rue un hôtel de ville abritant également une justice de paix et une prison. Le projet rédigé le 15 avril 1834 par l’entrepreneur Louis Victor Jubin (ou Jubin-Mondin) est approuvé le 1er mai par le conseil municipal. Le 19 août suivant, le rapporteur du Conseil des Bâtiments civils, Jean Marie Biet, préconise des modifications pour la façade, les escaliers et la grande salle à l’étage, qui pourrait servir de théâtre. Ces changements intégrés, les travaux sont adjugés le 27 décembre 1835 aux frères François et Silvain Lavaud, d'Avrolles. Les démolitions débutent en mars 1836 mais les entrepreneurs font faillite en avril 1837. Le 20 juin 1838, le sous-préfet valide le devis présenté par Jubin pour l’achèvement du bâtiment : une première partie est adjugée le 1er juillet 1838 au menuisier Michel Chareyre, la deuxième (théâtre) le 25 juillet 1840 à l'entrepreneur Henri Olivier Langlois. Cette dernière prévoit une scène agrandie par un encorbellement sur la cour (où elle s'appuie sur le mur mitoyen), deux loges d'avant-scène et un balcon dont le centre sera occupé par cinq loges. Les derniers aménagements sont adjugés le 16 octobre 1842 à Charles Bezançon et Michel Chemovek fils. A noter que dans certaines publications, la mairie et/ou le théâtre sont attribués à Benoît Alexandre Bourla, auteur du décor du théâtre de Joigny.
Le 14 mars 1873, la municipalité valide l'achat de la maison au 19 Grande Rue, contiguë à la mairie au sud, pour établir "un cabinet pour Mr le juge de paix, un bureau pour le commissaire de police et un logement pour le concierge de la mairie" (ce bâtiment sera démoli lors du bombardement du 16 juin 1940). Le 21 septembre 1874, elle approuve un devis de 3 000 F pour la remise en état du théâtre. L'hôtel de ville est restauré en 1896 suivant le projet élaboré le 20 janvier par l'architecte Léon Rousseau, de Sens. Au tournant du siècle, la municipalité achète la demeure contiguë au nord-ouest, rue Joubert, afin d'agrandir le bâtiment et d'y installer "une salle de réunion pour les sociétés musicales, la Caisse d'Epargne et deux dépôts d'archives". Rousseau élabore alors un projet articulé autour de la reconstruction de cette maison, ; ce projet est adopté par le conseil municipal le 29 mars 1901 et les travaux sont adjugés le 21 juin suivant. En 1978, le départ des services municipaux permet de dédier le bâtiment au seul théâtre (avec une jauge de 348 places, dont 100 au balcon). Le plafond de la salle est orné en 2001 d'une peinture suivant un dessin de Pincemin. Accueillant à partir de 2004 les services culturels, le lieu est baptisé le 18 septembre 2010 espace culturel Jean-Pierre Pincemin. Le conservatoire de musique s'y installe en 2013 puis le bâtiment est réaménagé de 2017 à 2019 par le cabinet Gyssels Architecte, de Sens, qui crée une extension vitrée, abritant escalier et ascenseur. Le théâtre, d'une capacité de 125 places, est géré à partir du 1er janvier 2021 par les Chantiers du Théâtre (6 personnes présentes régulièrement en 2022, 1,7 ETP). Utilisé environ 180 jours par an, il accueille 25 représentations pour une douzaine de spectacles, plus deux séances de cinéma par mois assurées par l'association de cinéma itinérant Panoramic (créée début 1991).
- 2e quart 19e siècle
- 4e quart 19e siècle
- 1er quart 20e siècle
- 1er quart 21e siècle
Date de naissance : 24/05/1800
Jubin, Louis Victor (1800-?). Aussi connu sous le nom de Jubin-Mondin en accolant à son nom le patronyme de sa femme, Véronique Mondin. Entrepreneur de bâtiment né à Villeneuve-le-Roi le 24 mai 1800. Fils de François Pierre Jubin (?-1807), frère de François Louis Jubin (1795-1862) et gendre de Pierre Mondin, tous également entrepreneurs de bâtiment.
Date de naissance : 26/05/1785 - date de décès : 30/04/1857
Biet, Jean Marie Dieudonné, dit Léon Marie Dieudonné (1785-1857). Architecte. Elève de l'École polytechnique en 1802, de l'école des Beaux-Arts de Paris en 1807. Entre en 1820 au Conseil des Bâtiments civils, dont il est nommé inspecteur général en 1837. Membre fondateur de la Société centrale des Architectes français en 1840.(Source : https://fr.wikipedia.org/wiki/Jean_Marie_Dieudonn%C3%A9_Biet)
Date de naissance : 13/10/1863 - date de décès : 17/08/1909
Rousseau, Charles Léon (1863-1909). Elève de L. Pascal à l'école des Beaux Arts de Paris, qu'il rejoint en avril 1883 (et où son frère Marcel étudie aussi à partir de 1884). Diplôme d'architecte le 15 juin 1893. Architecte à Sens en 1900.(Sources : https://gw.geneanet.org/frblin?n=rousseau&oc=&p=charles+leon et https://agorha.inha.fr/ark:/54721/1e787bd0-5413-4521-9e16-eef9e8577690)
Date de naissance : 07/04/1944 - date de décès : 16/05/2005
Pincemin, Jean-Pierre (1944-2005). Peintre, graveur et sculpteur autodidacte. Il travaille d'abord en usine comme tourneur puis devient critique d'art dans les années 1960. Après une première exposition en 1968, il rejoint le mouvement Supports-Surfaces. Il occupe, de la fin des années 1980 au début 2000, à Sens une ancienne friche industrielle au Moulin du Roy (rue Eugène Delaporte), où il accueille d'autres artistes.(Source : https://fr.wikipedia.org/wiki/Jean-Pierre_Pincemin)
Gyssels Architecte. Cabinet créé en 2006 et établi à Sens (5, rue Cécile de Marsangy). Dirigé par Jean-Benoît Gyssels, architecte DPLG, et Marjorie Gyssels, infographiste.
Description
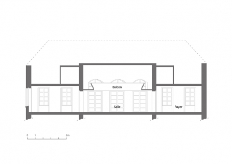
L'hôtel de ville est composé de trois corps de bâtiments principaux : la mairie, son extension de 1901 (donnant rue Joubert) et celle de 2017 (place Louis VII). Les deux premiers ont des murs en moellons calcaires enduits (en briques pour l'extension ?) ; la façade antérieure de la mairie est en pierre de taille tandis que son mur latéral gauche (au sud) est habillé par une résille métallique. Ils comportent un sous-sol, avec voûtes en berceau sous la mairie. Cette dernière a un étage carré, réservé au foyer du public et au théâtre, et un comble à surcroît, desservis par trois escaliers en bois : un tournant et deux droits (accès au balcon et au comble). L'extension de 1901 a un étage carré, un en surcroît et un escalier tournant en pierre. Ces deux corps sont chacun coiffés d'un toit à croupes couvert d'ardoises, avec métal sur les terrassons de l'extension. Le corps du 2017 a un mur-rideau protégeant l'accueil, un ascenseur et un escalier métallique tournant à retours avec jour.
- calcaire
- calcaire
- fer
- pierre de taille
- moellon
- pan de fer
- enduit
- essentage de tôle
- mur-rideau
- ardoise
- métal en couverture
- sous-sol
- 1 étage carré
- comble à surcroît
- voûte en berceau plein-cintre
- voûte en berceau segmentaire
- charpente en bois apparente
- élévation ordonnancée
- toit à longs pans, croupe
- noue
- toit à longs pans brisés
- escalier dans-oeuvre, escalier tournant, en maçonnerie en charpente
- escalier dans-oeuvre, escalier droit, en charpente
- ascenseur
- représentation non figurative
- peinture
Source(s) documentaire(s)
-
Archives départementales de l'Yonne : 2 O 4162 Villeneuve-sur-Yonne. Hôtel de ville. 1824-1936.
Archives départementales de l'Yonne : 2 O 4162 Villeneuve-sur-Yonne. Hôtel de ville. 1824-1936.Lieu de conservation : Archives départementales de l'Yonne, Auxerre - Cote du document : 2 O 4162 -
Archives départementales de l'Yonne : 2 O 4165 Villeneuve-sur-Yonne. Autres bâtiments civils et équipement. 1808-1937.
Archives départementales de l'Yonne : 2 O 4165 Villeneuve-sur-Yonne. Autres bâtiments civils et équipement. 1808-1937.Lieu de conservation : Archives départementales de l'Yonne, Auxerre - Cote du document : 2 O 4165
-
Projet de mairie pour Villeneuve le Roi. Yonne. Août 1834.
Projet de mairie pour Villeneuve le Roi. Yonne. Dessin sur calque (plume), s.n. [par Louis Victor Jubin, corrigé par Jean Marie Biet ?]. Août 1834. Ech. de 10 m.Lieu de conservation : Archives nationales, Paris - Cote du document : F/21/1908 -
Villeneuve-sur-Yonne - L'Hôtel-de-Ville. [Limite 19e siècle 20e siècle, avant 1906].
Villeneuve-sur-Yonne - L'Hôtel-de-Ville. Carte postale, s.n. [Limite 19e siècle 20e siècle, avant 1906]. Librairie-imprimerie Bénéton éd., Villeneuve-sur-Yonne. Porte la date 24 août 1906 (tampon) au verso.Lieu de conservation : Collection particulière : Julie Mechin, Villeneuve-sur-Yonne -
Villeneuve-sur-Yonne - Hôtel de Ville. [1er quart 20e siècle, avant 1913].
Villeneuve-sur-Yonne - Hôtel de Ville. Carte postale, s.n. [1er quart 20e siècle, avant 1913]. Edition des Grands Economats français. Porte la date 26 juillet 1913 (tampon) au verso.Lieu de conservation : Archives départementales de l'Yonne, Auxerre - Cote du document : 2 Fi 7613 -
Villeneuve-sur-Yonne - L'Hôtel de Ville. S.d. [1re moitié 20e siècle].
Villeneuve-sur-Yonne - L'Hôtel de Ville. Carte postale, s.n. S.d. [1re moitié 20e siècle]. Collection P. R. - S.Lieu de conservation : Collection particulière : Julie Mechin, Villeneuve-sur-Yonne -
Villeneuve-sur-Yonne - La rue Carnot (Route Nationale) - Porte de Joigny (côté intérieur). [Milieu 20e siècle, avant 1956].
Villeneuve-sur-Yonne - La rue Carnot (Route Nationale) - Porte de Joigny (côté intérieur). Carte postale, s.n. [Milieu 20e siècle, avant 1956]. Simili-bromure A. Breger Frères, Paris. Porte les dates 23 juillet 1956 (manuscrite) et 26 juillet 1956 (tampon) au verso.Lieu de conservation : Collection particulière : Julie Mechin, Villeneuve-sur-Yonne
-
Base Conbavil. Dépouillement analytique des procès-verbaux des séances du Conseil des Bâtiments civils (1795-1840).
Base Conbavil. Dépouillement analytique des procès-verbaux des séances du Conseil des Bâtiments civils (1795-1840). Base accessible sur le site de l'Institut national d'Histoire de l'Art : https://www.inha.fr/fr/ressources/outils-documentaires/conseil-des-batiments-civils-conbavil.html
-
David de Pénanrun, Louis-Thérèse ; Roux, François ; Delaire, Edmond Augustin. Les architectes élèves de l'École des beaux-arts (1793-1907). 2e éd. 1907.
David de Pénanrun, Louis-Thérèse ; Roux, François ; Delaire, Edmond Augustin. Les architectes élèves de l'École des beaux-arts (1793-1907). 2e éd. Paris : Librairie de la Construction moderne, 1907. [1 f.]-XII-484 p. ; 25 cm. -
Pinon, Pierre. Une ville s'équipe : Joigny sous la Restauration et la Monarchie de Juillet. 1986.
Pinon, Pierre. Une ville s'équipe : Joigny sous la Restauration et la Monarchie de Juillet. Dans : Archéologie, histoire et folklore du nord de l'Yonne : actes du 56e congrès de l'Association bourguignonne des Sociétés savantes, Villeneuve sur Yonne, 31 mai - 2 juin 1985. Villeneuve-sur-Yonne : Amis du Vieux Villeneuve, 1986.
-
Linguinou, Antoine (témoignage oral)
Linguinou, Antoine. Directeur de l'association Les Chantiers du Théâtre. Villeneuve-sur-Yonne.
À voir
Informations complémentaires
Ces observations du rapporteur du projet, Jean marie Biet, sont transmises au préfet de l'Yonne par une lettre du ministre de l'Intérieur en date du 10 septembre 1834 (Archives départementales de l'Yonne : 2 O 4162).
« Ce projet a donné lieux de la part du conseil des bâtiment civils aux observations suivantes :
1° Dans un désir de régulariser l’édifice, l’auteur a cru devoir se mettre en retraite d’un alignement indiqué par les Ponts et Chaussées, d’où il résulte que le bâtiment sera masqué par les maisons attenantes, et qu’il y aura perte de terrain, quoique l’exiguité de l’emplacement demanderait qu’on mis toute la superficie à profit ;
2° Le bâtiment doit renfermer une grande salle dite électorale, laquelle servira en même tems aux grandes réunions, bals, concerts et même aux représentations dramatiques. A cet effet il a fait entrer dans la composition du 1er étage une grande pièce de 9 m sur 13 de profondeur ; mais il est à remarquer que le plancher de cette salle est d’une seule volée sans points d’appui intermédiaires ; car on ne peut compter comme l’auteur l’a fait sur l’auxiliaire des cloisons légères qui forment la distribution du rez-de-chaussée, constructions fragiles dont il faudrait même débarrasser la partie centrale de l’étage inférieur pour lui procurer l’air et la lumière dont elle manque ;
3° Les escaliers sont mal placés, point en vue, et qui pis est inexécutables car aucun d’eux n’a d’échappée suffisante entre les marches et les planchers supérieurs. Il n’est point de chaumière où l’escalier ne soit mieux combiné que ceux-ci, ils sont intolérables pour un édifice public. Les plans et la coupe démontrent suffisamment ce que la distribution totale du bâtiment a de défectueux ;
4° Le dessin de la façade est d’un goût suranné, elle est surmontée d’un comble en trois parties figurant trois pavillons qui n’existent pas dans le plan ; outre que cette toiture serait d’un mauvais effet, elle serait sujette à beaucoup d’inconvéniens à cause de ses chéneaux où les eaux et la neige finiraient tôt ou tard par occasionner des infiltrations. Cependant, il est bon de remarquer que cette charpente, dans son espèce, n’est pas mal combinée ce qui fait présumer que l’auteur du projet pourrait bien être plutôt charpentier qu’architecte.
Pour réformer ce projet, il ne faudrait rien moins que le recomposer entièrement. »
Le rapporteur, Biet, propose des modifications, appuyées par une esquisse de plan : « soutenir le plancher de la grande salle qui est susceptible de recevoir une grande affluence non par des cloisons légères mais par des piliers qu’il est même convenable de faire en maçonnerie pour diminuer les chances de l’incendie. »
« Il lui a semblé ensuite nécessaire de faire emploi de la totalité du terrain pour donner à la grande salle les dimensions le plus amples possibles ; à cet égard il a pensé qu’il serait dans l’intérêt de la commune de traiter cette salle le plus convenablement que l’espace le permet, parce que plus elle offrira de commodités et plus la ville aura de chances à en retirer avantage par location ; aussi il lui a donné plus de hauteur que le projet et il a indiqué un rang de loges qu’il serait facile d’y pratiquer sans grands frais. »
« L’esquisse supprime les colonnes saillantes au devant de la porte d’entrée, c’est une nécessité en se mettant à l’alignement ; une porte ajustée ne coûterait pas plus et serait d’un style plus sévère. »
La dépense initiales était estimée à 19 500 F, ce qui était suffisant pour une construction avec des cloisons légères, mais elle doit être revue car il faudrait des murs plus solides et, de ce fait, être portée à 24 000 F à 30 000 F.
"Devis de travaux à faire au nouvel hôtel de ville pour la construction de cases pour les bureaux, ainsi que pour le cabinet de m le maire, construction d'une grande armoire au fond du secrétariat pour les archives, fourniture d'un poële en fayence, id. de fauteuils, chaises, bancs, bureaux etc. ; construction dans la salle de la justice de paix d'un siège, gradins, bancs, bureaux, etc. et fourniture d'’un poële en fayence avec balustrade autour, pose dans le corps de garde du lit de camp, du poële, ratelier, table et bancs, de la construction de deux rampes d'escaliers et de leur cage au grenier, couloir, etc. ; de la construction des croisées du premier au nombre de onze, de la construction d'un théâtre, avec renfoncement au fond de la scène, galerie au pourtour de la salle, portes intérieures du 1er étage et badigeonage des différentes pièces, etc." (Archives départementales de l'Yonne : 2 O 4162).
Escaliers
"il sera fait pour le petit escalier montant aux loges d'acteur une rampe en fer composée d'un pilastre en fonte, de bareaux en tringle de 0,016 de diamètre […] et d'une main courante en fer demi rond, le pilastre portera une boule en cuivre de huit centimètres de diamètre, elle sera peinte en noir […]Au grand escalier, il sera fait une rampe en fer et fonte, composée savoir d'un pilastre en fer posé sur la marche en pierre, il sera de la plus belle espèce de ces pilastres de rampe, il sera surmonté d'une boule en cuivre de onze centimètres de diamètre, les bareaux seront en tringle de vingt trois millimètres de diamètre, ils seront ornés de chacun un chapiteau un piton à vis, base et rosace en fonte douce et parfaitement moulé (du n° 14 des magasins de Mr Calle à Paris) […]", avec main courante en bois de noyer et peinture à l'huile couleur bronze vernie.
1er étage
"Il sera posé trois portes croisées pour le bacon, elles auront chacune quatre mètres quinze centimètres de hauteur sur un mètre quatre vingt centimètres de largeur" (portes en deux parties avec séparation entre les deux par le chevestre du plancher des loges) ;"il sera fourni et posé trois portes au deux venteaux dont une pour l'entrée du foyer et deux pour la salle de spectacle […] il sera posé une porte à double chambranle à panneaux et embrasement à l'ouverture dormant de la loge des femmes au garde-meuble, elle aura deux mètres de hauteur sur soixante dix centimètres de largeur […]
il sera posé une porte à la baie de communication du garde-meuble au théâtre, elle sera de même que celle-ci-dessus, seulement elle n'aura qu'un chambranle et pas d'embrasement, elle aura deux mètres de hauteur sur un mètre de largeur […]
il sera posé une porte à la baie donnant du théâtre sur le petit escalier […]
il sera posé une porte pour le passage sous le théâtre, elle sera pleine de même que celle-ci-dessus, elle aura un mètre trente centimètres de hauteur sur soixante de largeur […]
il sera posé une porte dormant du paillé [palier] du grand escalier sur le théâtre, elle aura deux mètre de hauteur sur quatre vingt centimètres de largeur".
Théâtre
"Pour former le théâtre, il sera fait un prolongement de deux mètres à la scène, pris au dépens de la cour et jusqu'au mur Benoit qui devra servir de mur d'appui, ce prolongement aura deux mètres vingt centimètres du nud du dehors du pignon au dehors de la cloison qui en formera la fond, il aura sept mètres de largeur près le pignon de la salle et trois mètres vingt centimètres au fond, ainsi qu'il est figuré au plan, il aura trois mètres trente cinq centimètres de hauteur du dessus de son plancher (qui sera dans le même plan que celui du théâtre) au dessous de son plafond, il sera formé d'un poteau cornier qui supportera son angle nord-ouest" […] et de trois poutrelles dont une extrémité est scellée dans le mur Benoît et l'autre dans le pignon de la salle, pignons et deux pans élevés en briques de 11 cm d'épaisseur ;"Le théâtre aura neuf mètres de largeur ou la largeur de la salle sur trois mètres quatre vingt dix centimètres de longueur à partir du nud intérieur du pignon à la corde de l'arc qui forme l'avant-scène, cet arc aura soixante centimètres de flèche […] il sera ménagé des jours pour les quinquets et le souffleur […] on ménagera une porte de soixante centimètres de largeur pour s'’introduire sous le théâtre […]
il sera posé une petite échelle de meunier composée de six marches et contremarches comme elle est figurée au plan, pour le passage du théâtre au garde-meuble […]
il sera posé une barrière à claire voie pour former l'enceinte des musiciens, on se servira de celle qui sert de barre au tribunal de paix […]
il sera fait trois bancs d'assemblage à dossier […]
il sera posé entre les bancs dont il vient d'être parlé six autres bancs en bois blanc […]
il sera fait deux loges d'avant-scène, elles auront un mètre cinquante centimètre de largeur mesuré au nud du mur et un mètre trente au devant sur un mètre trente de saillie ou de profondeur, elles seront biaises au mur et disposées comme au plan, elles auront les premières chacune deux issues […] il y aura aussi un plancher d'établi aux premières à cinquante au dessus du parquet de la salle […]
il sera fait une galerie autour de la salle et qui se joindra par ses extrémités aux deux loges d'avant-scène ;
elle sera établie à deux mètres soixante centimètres de hauteur du niveau du parquet au dessous de son plafond. Le plancher aura vingt centimètres d'épaisseur compris plafond et plancher, l'appui aura quatre vingt centimètres de hauteur, le jour entre l'appui et la frise sera de un mètre cinquante cinq centimètres et la frise aura soixante cinq centimètres de hauteur [… les lambourdes] seront supportées à leur extrémité par la cloison des loges d'avant-scène et aux points intermédiaires par dix barres de suspension en fer très doux […]
l'appui de la galerie sera formé de menuiseries en volige assemblées à rainure et languette […]
il sera sur lad. galerie et à ses dépends formé cinq loges de face de un mètre dix centimètres de largeur mesurés sur l'appui, elles seront construites en menuiserie de bois blanc de vingt cinq millimètres d'épaisseur assemblées à rainure et languette […] il sera posé sur le reste de la galerie un banc dans les parties droites et deux dans les parties courbes comme dans les loges […]
Petite galerie au dessus du théâtre pour le service dud. [au nord] […]"
- salles de spectacle de Bourgogne-Franche-Comté
- © Région Bourgogne-Franche-Comté, Inventaire du patrimoine
