MAISON
25 - Besançon
- Dossier IA25002031 réalisé en 2023
- Auteur(s) : Laurent Poupard
Historique
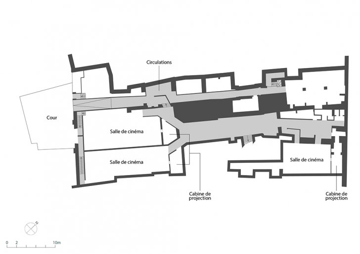
En 1752, le conseiller au parlement Pierre François Marie Hugon (Hugon d’Argicourt, 1723-1792), fait reconstruire cette maison de trois travées, avec baie(s) boutiquière(s) au rez-de-chaussée. Elle appartient en 1835, avec son jardin (K 728), à la veuve Moutrille, peut-être Jeanne Baptiste Coldre (1771-1853), négociante à Besançon, mariée en 1794 avec Jean-Baptiste Xavier Moutrille (1771- ?), receveur des droits réunis à Prades en 1818. Cette dame est aussi propriétaire à cette date de l’immeuble voisin (hôtel Foraisse), au n° 64 (tous deux sont réunis en une même parcelle K 730). Elle en loue une partie au négociant Camille Miot (1832-1908), marchand de nouveautés établi en 1866 aux 62 et 64 Grande Rue. Bâtiments et jardin passent en 1870 au notaire Victor Delavelle (1826-1907), conseiller municipal puis maire de 1881 à 1884. Un partage intervient en 1900 : Delavelle conserve le n° 64 et la société Miot et Eydoux (magasin Au Bon Marché) achète le n° 62 (qui serait aussitôt agrandi ?). Cette affaire est dissoute en 1926 et le bâtiment passe à la Société française des Nouvelles Galeries réunies, SA dont le siège se trouve au 66 rue des Archives à Paris. Il est alors réuni aux deux maisons portant les n° 58 et 60 Grande Rue. Cet ensemble est repris juste après la Deuxième Guerre mondiale par la société La République de l’Est, établie au 15 rue Proudhon, éditrice du journal du même nom (elle sera remplacée en 1960 par Les Dépêches du Doubs puis en 1973 par L’Est Républicain). La halle du Bon Marché est convertie en 1947 par Léon Fritz, patron du Central et du Rex à Besançon, en cinéma dont l'entrée principale est établie au rez-de-chaussée de la maison. Le site devenant multisalle en 1976, une nouvelle salle est aménagée au sous-sol (plus deux autres sous la halle) et les constructions existant entre la maison et la halle sont modifiées et réunies sous un même toit en appentis. Le cinéma ferme en 2004. En 2023, la maison abrite un magasin d'habits et les bureaux de L'Est Républicain, qui occupent aussi une partie des bâtiments aux n° 58 et 60.
Période(s)
Principale :
- 3e quart 18e siècle
Date(s)
1752 :
daté par source
Auteur(s) & personnalité(s)
Date de naissance : 1723 - date de décès : 1792
Hugon ou Hugon d’Argicourt, Pierre François Marie (1723-1792). Conseiller au parlement de Besançon.(Source : https://gw.geneanet.org/pierfit?lang=fr&p=pierre+francois+marie&n=hugon)
Description
La maison présente une façade en pierre de taille sur la Grande Rue. Elle compte un sous-sol (salle de cinéma voûtée en berceau plein-cintre), deux étages carrés et un étage en surcroît, desservis par les escaliers du n° 58 et du n° 60 (et l'ascenseur de ce dernier). Elle est couverte d'un toit à longs pans et tuiles plates.
Murs :
- calcaire
- pierre de taille
Toit :
- tuile plate
Etages :
- sous-sol
- 2 étages carrés
- étage en surcroît
Couvrement :
- voûte en berceau plein-cintre
Elévation :
- élévation à travées
Couvertures :
- toit à longs pans
Escalier :
- escalier dans-oeuvre,
Source(s) documentaire(s)
-
3 P 57 Cadastre de la commune de Besançon, 1835-1976
3 P 57 Cadastre de la commune de Besançon, 1835-1976- 3 P 845/1-9 : Atlas parcellaire (1833-1834)- 3 P 57/1-3 : Registre des états de sections (1835)- 3 P 57/4-18 : Matrice cadastrale des propriétés bâties et non bâties (1835-1914)- 3 P 57/32-41 : Matrice cadastrale des propriétés bâties (1882-1910)- 3 P 57/76-116 : Matrice cadastrale des propriétés bâties (1911-1965)Lieu de conservation : Archives départementales du Doubs, Besançon - Cote du document : 3 P 57
-
St Pierre. Requête de M Hugon [projet de façade]. 1752.
St Pierre. Requête de M Hugon [projet de façade]. Dessin (plume, lavis), s.n. 1752. Ech. de 4 toises de roi.Lieu de conservation : Archives municipales, Besançon - Cote du document : DD 19/17-19 -
[Plan cadastral napoléonien] Section K, de la Ville Sud-Ouest en quatre feuilles, 2e feuille, 1834.
[Plan cadastral napoléonien] Section K, de la Ville Sud-Ouest en quatre feuilles, 2e feuille, du n° 288 à 840, levée à l’échelle d’1 à 1250, par Mr Berçot Géomêtre, dessin (plume, lavis), s.d. [1834], 68 x 101 cm, échelle 1:1 250 (graphique), orienté.Lieu de conservation : Archives départementales du Doubs, Besançon - Cote du document : 3 P 57 / K -
Vue extérieure des magasins du "Bon Marché" à Besançon. S.d. [1895].
Vue extérieure des magasins du "Bon Marché" à Besançon. Dessin imprimé, par Henriette et Durand. S.d. [1895]. Publié dans : Une visite aux magasins du "Bon Marché" à Besançon. Journal de géographie industrielle & commerciale, 1895, p. 3.
-
Estavoyer, Lionel ; Gavignet, Jean-Pierre. Besançon (Doubs) : ses rues, ses maisons, 1989
Estavoyer, Lionel ; Gavignet, Jean-Pierre. Besançon (Doubs) : ses rues, ses maisons / dess. Jean Garneret. Nouv. éd. rev. et augm. - Besançon : Cêtre, 1989. 239 p. : ill. ; 22 cm. -
Tatu, Michèle ; Bépoix, Denis. Histoires du cinéma à Besançon 1895-1995. 1995.
Tatu, Michèle ; Bépoix, Denis. Histoires du cinéma à Besançon 1895-1995. Vesoul : Erti Editeur, 1995.110 p. : ill. ; 24 cm. -
Une visite aux magasins du "Bon Marché" à Besançon. 1895.
Une visite aux magasins du "Bon Marché" à Besançon. Journal de géographie industrielle & commerciale, 1895, série C n° 122, p. 2-3 : ill.
À voir
Informations complémentaires
Thématiques :
- salles de spectacle de Bourgogne-Franche-Comté
Aire d’étude et canton :
Bourgogne-Franche-Comté
Dénomination :
maison
Parties constituantes non étudiées :
- magasin de commerce
- cinéma
- © Région Bourgogne-Franche-Comté, Inventaire du patrimoine
