Maisons (19e siècle) aux n° 10 à 14 Petit Quai. Maisons (AI 44 à 48).
39, Morez
N° de l’illustration : 20103900584NUC2A
Date : 2010
Auteur : Yves Sancey
Reproduction soumise à autorisation du titulaire des droits d'exploitation
- © Région Bourgogne-Franche-Comté, Inventaire du patrimoine
Maison avec atelier (19e siècle) aux n° 35 et 35 bis rue de la République. Maison (AD 211) bâtie vers 1840.
39, Morez, 35 et 35 bis rue de la République
N° de l’illustration : 20033900146X
Date : 2003
Auteur : Yves Sancey
Reproduction soumise à autorisation du titulaire des droits d'exploitation
- © Région Bourgogne-Franche-Comté, Inventaire du patrimoine
Plan de répartition typologique des maisons et des immeubles : sections AB et AC. Montage de feuilles cadastrales, 1980, sections AB et AC, échelle 1:1000 réduite à 1:2500.
39, Morez
N° de l’illustration : 20103900216NUDA
Date : 2010
Auteur : André Céréza
Reproduction soumise à autorisation du titulaire des droits d'exploitation
- © Région Bourgogne-Franche-Comté, Inventaire du patrimoine
Plan de répartition typologique des maisons et des immeubles : section AD. Extrait du plan cadastral, 1980, section AD, échelle 1:1000 réduite à 1:2500.
39, Morez
N° de l’illustration : 20103900218NUDA
Date : 2010
Auteur : André Céréza
Reproduction soumise à autorisation du titulaire des droits d'exploitation
- © Région Bourgogne-Franche-Comté, Inventaire du patrimoine
Plan de répartition typologique des maisons et des immeubles : section AE. Extrait du plan cadastral, 1980, section AE, échelle 1:1000 réduite à 1:3000.
39, Morez
N° de l’illustration : 20103900219NUDA
Date : 2010
Auteur : André Céréza
Reproduction soumise à autorisation du titulaire des droits d'exploitation
- © Région Bourgogne-Franche-Comté, Inventaire du patrimoine
Plan de répartition typologique des maisons et des immeubles : section AI, partie est. Extrait du plan cadastral, 1980, section AI, échelle 1:1000 réduite à 1:3000.
39, Morez
N° de l’illustration : 20103900220NUDA
Date : 2010
Auteur : André Céréza
Reproduction soumise à autorisation du titulaire des droits d'exploitation
- © Région Bourgogne-Franche-Comté, Inventaire du patrimoine
Plan de répartition typologique des maisons et des immeubles : section AI, partie ouest. Extrait du plan cadastral, 1980, section AI, échelle 1:1000 réduite à 1:3000.
39, Morez
N° de l’illustration : 20103900221NUDA
Date : 2010
Auteur : André Céréza
Reproduction soumise à autorisation du titulaire des droits d'exploitation
- © Région Bourgogne-Franche-Comté, Inventaire du patrimoine
Plan de répartition typologique des maisons et des immeubles : section AK. Extrait du plan cadastral, 1980, section AK, échelle 1:1000 réduite à 1:3000.
39, Morez
N° de l’illustration : 20103900222NUDA
Date : 2010
Auteur : André Céréza
Reproduction soumise à autorisation du titulaire des droits d'exploitation
- © Région Bourgogne-Franche-Comté, Inventaire du patrimoine
Plan de répartition typologique des maisons et des immeubles : section AV. Extraits du plan cadastral, 1980, section AV, 1:1000 réduit à 1:2500, et de la carte topographique à 1:25 000, I.GN., 1998, 3327E Morez-Les Rousses.
39, Morez
N° de l’illustration : 20103900217NUDA
Date : 2010
Auteur : André Céréza
Reproduction soumise à autorisation du titulaire des droits d'exploitation
- © Région Bourgogne-Franche-Comté, Inventaire du patrimoine
Plan de localisation des maisons et immeubles avec fenêtres lunetières ou fenêtres multiples : sections AB et AC. Montage de feuilles cadastrales, 1980, sections AB et AC, échelle 1:1000 réduite à 1:2500.
39, Morez
N° de l’illustration : 20103900223NUDA
Date : 2010
Auteur : André Céréza
Reproduction soumise à autorisation du titulaire des droits d'exploitation
- © Région Bourgogne-Franche-Comté, Inventaire du patrimoine
Plan de localisation des maisons et immeubles avec fenêtres lunetières ou fenêtres multiples : section AD. Extrait du plan cadastral, 1980, section AD, échelle 1:1000 réduite à 1:2500.
39, Morez
N° de l’illustration : 20103900189NUDA
Date : 2010
Auteur : André Céréza
Reproduction soumise à autorisation du titulaire des droits d'exploitation
- © Région Bourgogne-Franche-Comté, Inventaire du patrimoine
Plan de localisation des maisons et immeubles avec fenêtres lunetières ou fenêtres multiples : section AE. Extrait du plan cadastral, 1980, section AE, échelle 1:1000 réduite à 1:3000.
39, Morez
N° de l’illustration : 20103900196NUDA
Date : 2010
Auteur : André Céréza
Reproduction soumise à autorisation du titulaire des droits d'exploitation
- © Région Bourgogne-Franche-Comté, Inventaire du patrimoine
Plan de localisation des maisons et immeubles avec fenêtres lunetières ou fenêtres multiples : section AI. Extrait du plan cadastral, 1980, section AI, échelle 1:1000 réduite à 1:3100.
39, Morez
N° de l’illustration : 20103900197NUDA
Date : 2010
Auteur : André Céréza
Reproduction soumise à autorisation du titulaire des droits d'exploitation
- © Région Bourgogne-Franche-Comté, Inventaire du patrimoine
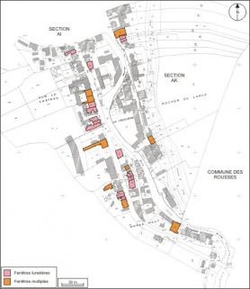
Plan de localisation des maisons et immeubles avec fenêtres lunetières ou fenêtres multiples : section AK. Extrait du plan cadastral, 1980, section AK, échelle 1:1000 réduite à 1:3000.
39, Morez
N° de l’illustration : 20103900201NUDA
Date : 2010
Auteur : André Céréza
Reproduction soumise à autorisation du titulaire des droits d'exploitation
- © Région Bourgogne-Franche-Comté, Inventaire du patrimoine
Plan géométrique d'un chemin contesté [... : détail des anciennes maisons du quai Aimé Lamy], 1748.
39, Morez
-
Dessin (plume, lavis), 17 décembre 1748, échelle graphique de 15 perches. Le n° 18 désigne le ruisseau de Sur le Puits, par Fournier, Jean-Gaspard
Lieu de conservation : Musée de la Lunette, Morez
N° de l’illustration : 20103900100NUC2A
Date : 2010
Auteur : Yves Sancey
Reproduction soumise à autorisation du titulaire des droits d'exploitation
- © Région Bourgogne-Franche-Comté, Inventaire du patrimoine
Projet à discuter relatif à la forme qu'il convient d'adopter pour l'établissement de galeries et de latrines dans les façades des maisons de la rue des Promenades du côté de la rivière, 1849.
39, Morez
-
Dessin (plume, lavis), 10 juin 1849, échelle 1:100, par Ponard, Vital (architecte)
Lieu de conservation : Archives communales, Morez - Cote du document : O 56.1
N° de l’illustration : 20103900070NUC2A
Date : 2010
Auteur : Yves Sancey
Reproduction soumise à autorisation du titulaire des droits d'exploitation
- © Région Bourgogne-Franche-Comté, Inventaire du patrimoine
41 - Morez (Jura) - Vue Générale, La Roche de Trélarce, 1er quart 20e siècle.
39, Morez
-
Carte postale, s.d. [1er quart 20e siècle]
N° de l’illustration : 20103900131NUC2A
Date : 2010
Auteur : Yves Sancey (reproduction)
Reproduction soumise à autorisation du titulaire des droits d'exploitation
- © Région Bourgogne-Franche-Comté, Inventaire du patrimoine
[La rue de la République au niveau de la place Notre-Dame], 1er quart 20e siècle.
39, Morez
-
Photographie, s.d. [1er quart 20e siècle], plaque de verre 13 x 18 cm, par Manias, Jules (?, photographe)
Lieu de conservation : Région Bourgogne-Franche-Comté, Inventaire et Patrimoine, Besançon
N° de l’illustration : 20063900299PY
Date : 2006
Auteur : Jérôme Mongreville
Reproduction soumise à autorisation du titulaire des droits d'exploitation
- © Région Bourgogne-Franche-Comté, Inventaire du patrimoine
Plan [du moulin Chavin et du quartier de la place du Marché] fait par Pierre Augustin Roche de Morez, 1782.
39, Morez place Henri Lissac
-
Dessin (plume, lavis), s.d. [1782], échelle graphique de 50 [toises], par Roche, Pierre-Augustin
Lieu de conservation : Archives communales, Morez - Cote du document : O 8.5
N° de l’illustration : 20103900107NUC2A
Date : 2010
Auteur : Yves Sancey
Reproduction soumise à autorisation du titulaire des droits d'exploitation
- © Région Bourgogne-Franche-Comté, Inventaire du patrimoine
[La rue de la République vers la fontaine à la Diane], 1er quart 20e siècle.
39, Morez
-
Photographie, s.d. [1er quart 20e siècle], plaque de verre 13 x 18 cm, par Manias, Jules (?, photographe)
Lieu de conservation : Région Bourgogne-Franche-Comté, Inventaire et Patrimoine, Besançon
N° de l’illustration : 20063900311PY
Date : 2006
Auteur : Jérôme Mongreville
Reproduction soumise à autorisation du titulaire des droits d'exploitation
- © Région Bourgogne-Franche-Comté, Inventaire du patrimoine
Maisons (18e siècle) aux n° 177 et 179 rue de la République.
39, Morez, 179 rue de la République
N° de l’illustration : 20033900465V
Date : 2003
Auteur : Yves Sancey
Reproduction soumise à autorisation du titulaire des droits d'exploitation
- © Région Bourgogne-Franche-Comté, Inventaire du patrimoine
Maison (18e siècle) au n° 182 rue de la République. Maison (AK 22) avec deux baies de commerce et portant la date 1797 sur la fenêtre centrale.
39, Morez
N° de l’illustration : 20033900372X
Date : 2003
Auteur : Yves Sancey
Reproduction soumise à autorisation du titulaire des droits d'exploitation
- © Région Bourgogne-Franche-Comté, Inventaire du patrimoine
Maison et immeuble (18e et 19e siècles) aux n° 1 et 3 rue de la Paix. Bâtiments (AD 82 à 85) avec ateliers signalés par des fenêtres multiples et des fenêtres lunetières (sous le toit à droite). Le linteau de la porte de droite (3 rue de la Paix) porte l'inscription : C 1726 M.
39, Morez
N° de l’illustration : 20033900179X
Date : 2003
Auteur : Yves Sancey
Reproduction soumise à autorisation du titulaire des droits d'exploitation
- © Région Bourgogne-Franche-Comté, Inventaire du patrimoine
Habitations (19e siècle) aux n° 1 et 3 rue Raspail. Maison et immeuble (AE 67 à 69).
39, Morez
N° de l’illustration : 20033900264X
Date : 2003
Auteur : Yves Sancey
Reproduction soumise à autorisation du titulaire des droits d'exploitation
- © Région Bourgogne-Franche-Comté, Inventaire du patrimoine
Maison (19e siècle) au n° 146 rue de la République. Maison (AI 204) du premier quart du 19e siècle présentant le même type de moulures pour l'encadrement de sa porte qu'aux n° 116, 132 et 173 de la rue.
39, Morez
N° de l’illustration : 20103900617NUC2A
Date : 2010
Auteur : Yves Sancey
Reproduction soumise à autorisation du titulaire des droits d'exploitation
- © Région Bourgogne-Franche-Comté, Inventaire du patrimoine
Immeubles (19e siècle) aux n° 135 et 137 rue de la République. Immeubles (AE 104 et 105) face à la place Jean Jaurès. Celui avec atelier, à gauche au n° 135, a été bâti durant la décennie 1830.
39, Morez, 135 rue de la République
N° de l’illustration : 20033900312X
Date : 2003
Auteur : Yves Sancey
Reproduction soumise à autorisation du titulaire des droits d'exploitation
- © Région Bourgogne-Franche-Comté, Inventaire du patrimoine
Maisons (19e siècle) aux n° 87 à 91 rue de la République. Maisons (AE 61 à 63) joignant la rue Fenandre.
39, Morez
N° de l’illustration : 20033900269X
Date : 2003
Auteur : Yves Sancey
Reproduction soumise à autorisation du titulaire des droits d'exploitation
- © Région Bourgogne-Franche-Comté, Inventaire du patrimoine
Maison (19e siècle) au n° 3 rue des Promenades. Maison (AI 33).
39, Morez
N° de l’illustration : 20033900707X
Date : 2003
Auteur : Yves Sancey
Reproduction soumise à autorisation du titulaire des droits d'exploitation
- © Région Bourgogne-Franche-Comté, Inventaire du patrimoine
Maison (19e siècle) au n° 211 rue de la République. Maison (AK 100) avec essentage de tôle sur le mur sud.
39, Morez
N° de l’illustration : 20033900357X
Date : 2003
Auteur : Yves Sancey
Reproduction soumise à autorisation du titulaire des droits d'exploitation
- © Région Bourgogne-Franche-Comté, Inventaire du patrimoine
Immeuble avec atelier (19e siècle) aux n° 129 à 133 rue de la République. Immeuble (AE 107) face à la place Jean Jaurès, bâti au début de la décennie 1830.
39, Morez, 129-133 rue de la République
N° de l’illustration : 20033900304X
Date : 2003
Auteur : Yves Sancey
Reproduction soumise à autorisation du titulaire des droits d'exploitation
- © Région Bourgogne-Franche-Comté, Inventaire du patrimoine
Maison (20e siècle) au n° 13 rue de l'Industrie. Maison (AE 20) avec des baies en arc segmentaire à encadrement en briques.
39, Morez
N° de l’illustration : 19913900909X
Date : 1991
Auteur : Jérôme Mongreville
Reproduction soumise à autorisation du titulaire des droits d'exploitation
- © Région Bourgogne-Franche-Comté, Inventaire du patrimoine
Immeuble avec atelier (19e siècle) aux n° 141-143 rue de la République. Immeuble (AE 99 à 101) bâti en 1836 puis agrandi en 1863-1864 (deux travées à gauche). C'est le seul immeuble repéré doté d'un entresol.
39, Morez, 141-143 rue de la République
N° de l’illustration : 20003900393X
Date : 2000
Auteur : Jérôme Mongreville
Reproduction soumise à autorisation du titulaire des droits d'exploitation
- © Région Bourgogne-Franche-Comté, Inventaire du patrimoine
Maison (20e siècle) au n° 13 rue de l'Industrie : élévation postérieure. Maison (AE 20) avec des baies en arc segmentaire à encadrement en briques.
39, Morez
N° de l’illustration : 19913900960ZA
Date : 1991
Auteur : Jérôme Mongreville
Reproduction soumise à autorisation du titulaire des droits d'exploitation
- © Région Bourgogne-Franche-Comté, Inventaire du patrimoine
Maison (20e siècle) au n° 15 rue de l'Industrie. Maison (AE 19) avec des baies en arc segmentaire à encadrement en briques.
39, Morez
N° de l’illustration : 19913900910X
Date : 1991
Auteur : Jérôme Mongreville
Reproduction soumise à autorisation du titulaire des droits d'exploitation
- © Région Bourgogne-Franche-Comté, Inventaire du patrimoine
Maison de notable (19e siècle) au n° 6 rue Lamartine. Maison (AE 145) servant autrefois de logement patronal pour l'usine de lunetterie J.-B. Jacquemin (1 à 8 rue de l'Industrie). Lanternon de la poste au premier plan, à l'avant de la salle des fêtes.
39, Morez, 1, 1 bis, 4 à 8 rue de l' Industrie
N° de l’illustration : 20103900668NUC2A
Date : 2010
Auteur : Yves Sancey
Reproduction soumise à autorisation du titulaire des droits d'exploitation
- © Région Bourgogne-Franche-Comté, Inventaire du patrimoine
Maison de notable (1907-1908) au n° 8 rue de la République. Maison (AB 68).
39, Morez, 8 rue de la République
N° de l’illustration : 20033900107X
Date : 2003
Auteur : Yves Sancey
Reproduction soumise à autorisation du titulaire des droits d'exploitation
- © Région Bourgogne-Franche-Comté, Inventaire du patrimoine
Immeuble avec atelier (18e siècle) au n° 161 rue de la République : murs de soutènement des jardins.
39, Morez, 161 rue de la République
N° de l’illustration : 20103900169NUC2A
Date : 2010
Auteur : Yves Sancey
Reproduction soumise à autorisation du titulaire des droits d'exploitation
- © Région Bourgogne-Franche-Comté, Inventaire du patrimoine
Vue d'ensemble plongeante, depuis l'ouest.
39, Morez, 5 avenue Charles de Gaulle
N° de l’illustration : 20033900245X
Date : 2003
Auteur : Yves Sancey
Reproduction soumise à autorisation du titulaire des droits d'exploitation
- © Région Bourgogne-Franche-Comté, Inventaire du patrimoine
Maison (18e siècle) devenue immeuble avec atelier au n° 3 place Lissac. Maison (AI 210) portant la date 1771.
39, Morez
N° de l’illustration : 20033900573X
Date : 2003
Auteur : Yves Sancey
Reproduction soumise à autorisation du titulaire des droits d'exploitation
- © Région Bourgogne-Franche-Comté, Inventaire du patrimoine
Immeubles (19e siècle) aux n° 129 à 135 rue de la République : élévation postérieure. Immeubles (AE 104 à 106) vus depuis leurs jardins, au nord-est.
39, Morez
N° de l’illustration : 20103900667NUC2A
Date : 2010
Auteur : Yves Sancey
Reproduction soumise à autorisation du titulaire des droits d'exploitation
- © Région Bourgogne-Franche-Comté, Inventaire du patrimoine
Immeuble (19e siècle) au n° 153 rue de la République. Immeuble (AI 75) avec balcon filant.
39, Morez
N° de l’illustration : 20033900728X
Date : 2003
Auteur : Yves Sancey
Reproduction soumise à autorisation du titulaire des droits d'exploitation
- © Région Bourgogne-Franche-Comté, Inventaire du patrimoine
Immeuble avec atelier (19e siècle) au n° 155 rue de la République. Immeuble (AI 76) avec porte cochère et, à l'étage, un balcon filant accessible par deux portes-fenêtres, chacune surmontée d'une corniche.
39, Morez
N° de l’illustration : 20033900727X
Date : 2003
Auteur : Yves Sancey
Reproduction soumise à autorisation du titulaire des droits d'exploitation
- © Région Bourgogne-Franche-Comté, Inventaire du patrimoine
Immeuble (19e siècle) au n° 160 rue de la République. Immeuble (AI 194, 195).
39, Morez
N° de l’illustration : 20103900655NUC2A
Date : 2010
Auteur : Yves Sancey
Reproduction soumise à autorisation du titulaire des droits d'exploitation
- © Région Bourgogne-Franche-Comté, Inventaire du patrimoine
Immeuble (19e siècle) au n° 4 rue de la Tannerie. Immeuble (AI 254) avec coursière et atelier signalé par des fenêtres lunetières. A gauche, façade postérieure de la maison au n° 174 rue de la République.
39, Morez
N° de l’illustration : 20103900602NUC2A
Date : 2010
Auteur : Yves Sancey
Reproduction soumise à autorisation du titulaire des droits d'exploitation
- © Région Bourgogne-Franche-Comté, Inventaire du patrimoine
Immeubles (19e siècle) aux n° 3 et 5 rue Pasteur : élévation postérieure (donnant sur les n° 30 à 34 quai Jobez). Immeubles (AI 20 et 21) bâtis vers 1875. Celui de droite (au n° 3) comptait un atelier.
39, Morez, 5 rue Pasteur
N° de l’illustration : 20103900565NUC2A
Date : 2010
Auteur : Yves Sancey
Reproduction soumise à autorisation du titulaire des droits d'exploitation
- © Région Bourgogne-Franche-Comté, Inventaire du patrimoine
Immeuble (19e siècle) au n° 120 rue de la République. Immeuble (AI 28) de la décennie 1860, à l'angle de la rue Ernest Merlin. Occupé à l'origine par le " Cercle de Morez ", il servit de lieu d'exposition pour l'usine de meubles Gauthier.
39, Morez
N° de l’illustration : 20033900800V
Date : 2003
Auteur : Yves Sancey
Reproduction soumise à autorisation du titulaire des droits d'exploitation
- © Région Bourgogne-Franche-Comté, Inventaire du patrimoine
Immeuble (19e siècle) au n° 120 rue de la République : détail de la corniche. Immeuble (AI 28) de la décennie 1860, à l'angle de la rue Ernest Merlin.
39, Morez
N° de l’illustration : 20103900478NUC2A
Date : 2010
Auteur : Yves Sancey
Reproduction soumise à autorisation du titulaire des droits d'exploitation
- © Région Bourgogne-Franche-Comté, Inventaire du patrimoine
Immeuble (19e siècle) au n° 137 rue de la République : caves en rez-de-chaussée. Immeuble (AE 104).
39, Morez
N° de l’illustration : 20033900316X
Date : 2003
Auteur : Yves Sancey
Reproduction soumise à autorisation du titulaire des droits d'exploitation
- © Région Bourgogne-Franche-Comté, Inventaire du patrimoine
Immeuble (19e siècle) au n° 14 rue des Promenades : corps de bâtiment secondaire donnant sur le n° 10 Petit Quai. Immeuble (AI 44) avec verrière éclairant la cage d'escalier.
39, Morez
N° de l’illustration : 20033900687X
Date : 2003
Auteur : Yves Sancey
Reproduction soumise à autorisation du titulaire des droits d'exploitation
- © Région Bourgogne-Franche-Comté, Inventaire du patrimoine
Immeuble (19e siècle) au n° 14 rue des Promenades : l'escalier et sa verrière. Immeuble (AI 44).
39, Morez
N° de l’illustration : 20033900689X
Date : 2003
Auteur : Yves Sancey
Reproduction soumise à autorisation du titulaire des droits d'exploitation
- © Région Bourgogne-Franche-Comté, Inventaire du patrimoine
Coursières.
39, Morez, 161 rue de la République
N° de l’illustration : 20103900167NUC2A
Date : 2010
Auteur : Yves Sancey
Reproduction soumise à autorisation du titulaire des droits d'exploitation
- © Région Bourgogne-Franche-Comté, Inventaire du patrimoine
Maison (19e siècle) au n° 3 rue de la Concorde : passerelle.
39, Morez
N° de l’illustration : 20103900176NUC2A
Date : 2010
Auteur : Yves Sancey
Reproduction soumise à autorisation du titulaire des droits d'exploitation
- © Région Bourgogne-Franche-Comté, Inventaire du patrimoine
Immeuble (19e siècle) au n° 145 rue de la République : fontaine, escalier isolé et mur de soutènement. Immeuble (AI 69).
39, Morez, 145 rue de la République
N° de l’illustration : 20033900754X
Date : 2003
Auteur : Yves Sancey
Reproduction soumise à autorisation du titulaire des droits d'exploitation
- © Région Bourgogne-Franche-Comté, Inventaire du patrimoine
Vue d'ensemble du jardin, depuis l'est. La maison, au centre, est moins élevée que les deux bâtiments qui l'encadrent.
39, Morez, 163 rue de la République
N° de l’illustration : 20033900612X
Date : 2003
Auteur : Yves Sancey
Reproduction soumise à autorisation du titulaire des droits d'exploitation
- © Région Bourgogne-Franche-Comté, Inventaire du patrimoine
Immeuble avec atelier (19e siècle) au n° 21 rue Emile Zola : essentage de tôle. Immeuble (AK 85).
39, Morez
N° de l’illustration : 20103900579NUC2A
Date : 2010
Auteur : Yves Sancey
Reproduction soumise à autorisation du titulaire des droits d'exploitation
- © Région Bourgogne-Franche-Comté, Inventaire du patrimoine
Maisons (20e siècle) aux n° 6, 8 et 12 rue de la Paix : toits en carène. Maisons (AE 44, 51 et 52).
39, Morez
N° de l’illustration : 20103900672NUC2A
Date : 2010
Auteur : Yves Sancey
Reproduction soumise à autorisation du titulaire des droits d'exploitation
- © Région Bourgogne-Franche-Comté, Inventaire du patrimoine
Maison (19e siècle ?) au n° 3 place Jules Girod : fenêtre avec deux arcs en accolade. Maison (AB 64).
39, Morez
N° de l’illustration : 20033900098X
Date : 2003
Auteur : Yves Sancey
Reproduction soumise à autorisation du titulaire des droits d'exploitation
- © Région Bourgogne-Franche-Comté, Inventaire du patrimoine
Maison avec atelier (18e siècle ?) au n° 150 rue de la République : linteau coiffé d'un arc en accolade. Maison (AI 525). L'arc en accolade se trouve sur la façade postérieure.
39, Morez
N° de l’illustration : 20103900586NUC2A
Date : 2010
Auteur : Yves Sancey
Reproduction soumise à autorisation du titulaire des droits d'exploitation
- © Région Bourgogne-Franche-Comté, Inventaire du patrimoine
Immeuble avec atelier (18e siècle) au n° 3 rue de la Paix : date 1726 sur le linteau de la porte d'entrée. Immeuble (AD 84 et 85).
39, Morez
N° de l’illustration : 20033900180X
Date : 2003
Auteur : Yves Sancey
Reproduction soumise à autorisation du titulaire des droits d'exploitation
- © Région Bourgogne-Franche-Comté, Inventaire du patrimoine
Immeuble avec atelier (18e siècle) au n° 3 place Henri Lissac : porte d'entrée. Maison devenue immeuble (AI 210).
39, Morez
N° de l’illustration : 20033900574X
Date : 2003
Auteur : Yves Sancey
Reproduction soumise à autorisation du titulaire des droits d'exploitation
- © Région Bourgogne-Franche-Comté, Inventaire du patrimoine
Immeuble avec atelier (18e siècle) au n° 3 place Henri Lissac : linteau daté 1771. Maison devenue immeuble (AI 210).
39, Morez
N° de l’illustration : 20033900575X
Date : 2003
Auteur : Yves Sancey
Reproduction soumise à autorisation du titulaire des droits d'exploitation
- © Région Bourgogne-Franche-Comté, Inventaire du patrimoine
Maison avec atelier (18e siècle) aux n° 17 et 19 rue Wladimir Gagneur : porte d'entrée. Maison (AK 56, 57). L'imposte de la porte est coiffée d'un linteau délardé en arc segmentaire.
39, Morez
N° de l’illustration : 20033900379X
Date : 2003
Auteur : Yves Sancey
Reproduction soumise à autorisation du titulaire des droits d'exploitation
- © Région Bourgogne-Franche-Comté, Inventaire du patrimoine
Maison avec atelier (18e siècle) aux n° 17 et 19 rue Wladimir Gagneur : linteau daté 1788. Maison (AK 56, 57). L'imposte de la porte est coiffée d'un linteau délardé en arc segmentaire.
39, Morez
N° de l’illustration : 20033900380X
Date : 2003
Auteur : Yves Sancey
Reproduction soumise à autorisation du titulaire des droits d'exploitation
- © Région Bourgogne-Franche-Comté, Inventaire du patrimoine
Maison avec atelier (19e siècle) au n° 13 rue de la Concorde : porte d'entrée. Maison (AD 77).
39, Morez
N° de l’illustration : 20033900177X
Date : 2003
Auteur : Yves Sancey
Reproduction soumise à autorisation du titulaire des droits d'exploitation
- © Région Bourgogne-Franche-Comté, Inventaire du patrimoine
Maison avec atelier (19e siècle) au n° 13 rue de la Concorde : linteau daté 1808. Maison (AD 77). Rare exemple de décor sur le linteau.
39, Morez
N° de l’illustration : 20033900176X
Date : 2003
Auteur : Yves Sancey
Reproduction soumise à autorisation du titulaire des droits d'exploitation
- © Région Bourgogne-Franche-Comté, Inventaire du patrimoine
Immeuble avec atelier (19e siècle) au n° 39 rue de la République : fenêtres lunetières. Immeuble (AD 47) : façade postérieure.
39, Morez
N° de l’illustration : 20033900164X
Date : 2003
Auteur : Yves Sancey
Reproduction soumise à autorisation du titulaire des droits d'exploitation
- © Région Bourgogne-Franche-Comté, Inventaire du patrimoine
Fenêtres lunetières de l'aile sud.
39, Morez, 161 rue de la République
N° de l’illustration : 20103900168NUC2A
Date : 2010
Auteur : Yves Sancey
Reproduction soumise à autorisation du titulaire des droits d'exploitation
- © Région Bourgogne-Franche-Comté, Inventaire du patrimoine
Immeuble avec atelier (18e siècle) au n° 3 place Henri Lissac : fenêtres multiples. Immeuble (AI 210) : élévation sud du corps en retour contre la façade postérieure.
39, Morez
N° de l’illustration : 20033900576X
Date : 2003
Auteur : Yves Sancey
Reproduction soumise à autorisation du titulaire des droits d'exploitation
- © Région Bourgogne-Franche-Comté, Inventaire du patrimoine
Immeuble avec atelier (18e siècle) au n° 80 rue de la République : fenêtres multiples.
39, Morez
N° de l’illustration : 20103900178NUC2A
Date : 2010
Auteur : Yves Sancey
Reproduction soumise à autorisation du titulaire des droits d'exploitation
- © Région Bourgogne-Franche-Comté, Inventaire du patrimoine
Immeubles (19e siècle) aux n° 21 à 33 quai Aimé Lamy : fenêtres. Immeubles (AI 120, 121, 123 à 125, 371 et 489).
39, Morez
N° de l’illustration : 20103900337NUC2A
Date : 2010
Auteur : Yves Sancey
Reproduction soumise à autorisation du titulaire des droits d'exploitation
- © Région Bourgogne-Franche-Comté, Inventaire du patrimoine
Maisons et immeubles (du 18e au 20e siècle) aux n° 170 à 184 rue de la République : fenêtres. Maisons et immeubles (AI 249, 250, 252 et 253, AK 23, 251, 262 et 264).
39, Morez
N° de l’illustration : 20103900657NUC2A
Date : 2010
Auteur : Yves Sancey
Reproduction soumise à autorisation du titulaire des droits d'exploitation
- © Région Bourgogne-Franche-Comté, Inventaire du patrimoine
Chiffres peints sur les piédroits de fenêtres.
39, Morez, 5 rue de la Concorde
N° de l’illustration : 20103900177NUC2A
Date : 2010
Auteur : Yves Sancey
Reproduction soumise à autorisation du titulaire des droits d'exploitation
- © Région Bourgogne-Franche-Comté, Inventaire du patrimoine
Serlienne.
39, Morez, 116 rue de la République
N° de l’illustration : 20103900166NUC2A
Date : 2010
Auteur : Yves Sancey
Reproduction soumise à autorisation du titulaire des droits d'exploitation
- © Région Bourgogne-Franche-Comté, Inventaire du patrimoine
Maison au n° 18 rue Wladimir Gagneur : fenêtres du dernier étage et baies aérant le comble (façade postérieure). Maison faisant partie de l'usine de produits chimiques puis tannerie Brasier.
39, Morez, 18 à 26 rue Wladimir Gagneur
N° de l’illustration : 20033900381X
Date : 2003
Auteur : Yves Sancey
Reproduction soumise à autorisation du titulaire des droits d'exploitation
- © Région Bourgogne-Franche-Comté, Inventaire du patrimoine
Immeuble (19e siècle) au n° 224 rue de la République : fenêtre du dernier étage et baie aérant le comble. Immeuble (AK 125).
39, Morez
N° de l’illustration : 20103900479NUC2A
Date : 2010
Auteur : Yves Sancey
Reproduction soumise à autorisation du titulaire des droits d'exploitation
- © Région Bourgogne-Franche-Comté, Inventaire du patrimoine
Maison (19e siècle) au n° 222 rue de la République : baie tréflée aérant le comble. Maison (AK 126).
39, Morez
N° de l’illustration : 20103900474NUC2A
Date : 2010
Auteur : Yves Sancey
Reproduction soumise à autorisation du titulaire des droits d'exploitation
- © Région Bourgogne-Franche-Comté, Inventaire du patrimoine
Immeuble (19e siècle) au n° 33 rue de la République : enseigne et baie de commerce. Immeuble (AD 41).
39, Morez
N° de l’illustration : 20033900153X
Date : 2003
Auteur : Yves Sancey
Reproduction soumise à autorisation du titulaire des droits d'exploitation
- © Région Bourgogne-Franche-Comté, Inventaire du patrimoine
Immeuble (19e siècle) au n° 33 rue de la République : partie gauche de l'enseigne en béton. Immeuble (AD 41).
39, Morez
N° de l’illustration : 20033900154X
Date : 2003
Auteur : Yves Sancey
Reproduction soumise à autorisation du titulaire des droits d'exploitation
- © Région Bourgogne-Franche-Comté, Inventaire du patrimoine
Immeuble (19e siècle) au n° 33 rue de la République : partie centrale de l'enseigne en béton. Immeuble (AD 41).
39, Morez
N° de l’illustration : 20033900155X
Date : 2003
Auteur : Yves Sancey
Reproduction soumise à autorisation du titulaire des droits d'exploitation
- © Région Bourgogne-Franche-Comté, Inventaire du patrimoine
Immeuble (19e siècle) au n° 33 rue de la République : partie droite de l'enseigne en béton. Immeuble (AD 41).
39, Morez
N° de l’illustration : 20033900156X
Date : 2003
Auteur : Yves Sancey
Reproduction soumise à autorisation du titulaire des droits d'exploitation
- © Région Bourgogne-Franche-Comté, Inventaire du patrimoine
Immeuble (18e siècle) au n° 158 rue de la République : baie de commerce et devanture de magasin. Immeuble (AI 196, 197).
39, Morez
N° de l’illustration : 20103900427NUC2A
Date : 2010
Auteur : Yves Sancey
Reproduction soumise à autorisation du titulaire des droits d'exploitation
- © Région Bourgogne-Franche-Comté, Inventaire du patrimoine
Maison avec atelier (19e siècle) au n° 50 rue de la République : baie de commerce et devanture de magasin. Maison (AE 2).
39, Morez
N° de l’illustration : 20103900428NUC2A
Date : 2010
Auteur : Yves Sancey
Reproduction soumise à autorisation du titulaire des droits d'exploitation
- © Région Bourgogne-Franche-Comté, Inventaire du patrimoine
Immeuble avec atelier (19e siècle) au n° 2 rue Victor Hugo : baies de commerce. Immeuble (AI 208).
39, Morez
N° de l’illustration : 20033900614X
Date : 2003
Auteur : Yves Sancey
Reproduction soumise à autorisation du titulaire des droits d'exploitation
- © Région Bourgogne-Franche-Comté, Inventaire du patrimoine
Maison avec atelier (19e siècle) au n° 3 rue Raspail : balcon et couronnement métallique. Maison (AE 68 et 69).
39, Morez
N° de l’illustration : 20033900267X
Date : 2003
Auteur : Yves Sancey
Reproduction soumise à autorisation du titulaire des droits d'exploitation
- © Région Bourgogne-Franche-Comté, Inventaire du patrimoine
Maison avec atelier (19e siècle) au n° 3 rue Raspail : couronnement métallique. Maison (AE 68 et 69).
39, Morez
N° de l’illustration : 20033900268X
Date : 2003
Auteur : Yves Sancey
Reproduction soumise à autorisation du titulaire des droits d'exploitation
- © Région Bourgogne-Franche-Comté, Inventaire du patrimoine
Immeuble avec atelier (19e siècle) au n° 123 rue de la République : balcon et enseigne en forme de pince-nez. Immeuble (AE 109).
39, Morez
N° de l’illustration : 20033900281XA
Date : 2003
Auteur : Yves Sancey
Reproduction soumise à autorisation du titulaire des droits d'exploitation
- © Région Bourgogne-Franche-Comté, Inventaire du patrimoine
Immeuble avec atelier (19e siècle) au n° 151 rue de la République : balcon. Immeuble (AI 74).
39, Morez
N° de l’illustration : 20033900732X
Date : 2003
Auteur : Yves Sancey
Reproduction soumise à autorisation du titulaire des droits d'exploitation
- © Région Bourgogne-Franche-Comté, Inventaire du patrimoine
Immeuble (19e siècle) au n° 153 rue de la République : balcon filant. Immeuble (AI 75).
39, Morez
N° de l’illustration : 20033900730X
Date : 2003
Auteur : Yves Sancey
Reproduction soumise à autorisation du titulaire des droits d'exploitation
- © Région Bourgogne-Franche-Comté, Inventaire du patrimoine
Immeuble (19e siècle) au n° 153 rue de la République : motif du garde-corps du balcon. Immeuble (AI 75).
39, Morez
N° de l’illustration : 20033900683X
Date : 2003
Auteur : Yves Sancey
Reproduction soumise à autorisation du titulaire des droits d'exploitation
- © Région Bourgogne-Franche-Comté, Inventaire du patrimoine
Immeuble (19e siècle) au n° 21 quai Aimé Lamy : balcon. Immeuble (AI 371).
39, Morez
N° de l’illustration : 20033900550X
Date : 2003
Auteur : Yves Sancey
Reproduction soumise à autorisation du titulaire des droits d'exploitation
- © Région Bourgogne-Franche-Comté, Inventaire du patrimoine
Immeuble (19e siècle) au n° 21 quai Aimé Lamy : motif central du garde-corps du balcon. Immeuble (AI 371).
39, Morez
N° de l’illustration : 20033900554X
Date : 2003
Auteur : Yves Sancey
Reproduction soumise à autorisation du titulaire des droits d'exploitation
- © Région Bourgogne-Franche-Comté, Inventaire du patrimoine
Immeuble (19e siècle) au n° 21 quai Aimé Lamy : motif du garde-corps du balcon. Immeuble (AI 371).
39, Morez
N° de l’illustration : 20033900553X
Date : 2003
Auteur : Yves Sancey
Reproduction soumise à autorisation du titulaire des droits d'exploitation
- © Région Bourgogne-Franche-Comté, Inventaire du patrimoine
Immeuble avec atelier (18e siècle) au n° 13 quai Aimé Lamy : porte d'entrée à décor Art déco. Immeuble (AI 134).
39, Morez
N° de l’illustration : 20033900557X
Date : 2003
Auteur : Yves Sancey
Reproduction soumise à autorisation du titulaire des droits d'exploitation
- © Région Bourgogne-Franche-Comté, Inventaire du patrimoine
Immeuble avec atelier (18e siècle) au n° 13 quai Aimé Lamy : décor de ferronnerie Art déco. Immeuble (AI 134).
39, Morez
N° de l’illustration : 20103900484NUC2A
Date : 2010
Auteur : Yves Sancey
Reproduction soumise à autorisation du titulaire des droits d'exploitation
- © Région Bourgogne-Franche-Comté, Inventaire du patrimoine
Immeuble avec atelier (18e siècle) au n° 13 quai Aimé Lamy : décor de ferronnerie Art déco (imposte). Immeuble (AI 134).
39, Morez
N° de l’illustration : 20033900558X
Date : 2003
Auteur : Yves Sancey
Reproduction soumise à autorisation du titulaire des droits d'exploitation
- © Région Bourgogne-Franche-Comté, Inventaire du patrimoine