FROMAGERIE DES FRUITIÈRES RÉUNIES
25 - Trévillers
8, 11 rue des Fruitières
- Dossier IA25001156 réalisé en 2013
- Auteur(s) : Laurent Poupard
Présentation
La première fromagerie
Une activité fromagère est attestée sur le territoire communal dès 1825 et en 1847, 65 000 litres de lait y sont transformés en 7 500 kilogrammes d'emmental. A la fin du 19e siècle, la fromagerie est installée dans un local loué. Le bail arrivant à échéance, la commune décide de faire construire un bâtiment adapté. Plans et devis (de 16 000 F) en sont dressés le 29 août 1902 par Charles-Frédéric Surleau (1841-1932), architecte à Montbéliard. La commission départementale d'architecture résume sa proposition : "au rez-de-chaussée, une cuisine, une laiterie, une cave chaude et une cave froide ; à l’étage, le grenier de la fruitière et le logement du gérant composé de deux chambres et d’une cuisine ; une citerne sera accolée au bâtiment, au droit de la cave froide, et une cave pour le gérant, au droit de la cuisine de la fruitière". Les travaux sont adjugés le 18 décembre à François Quadri, entrepreneur à Saint-Hippolyte, moyennant un rabais de 9 %. Ils sont reçus provisoirement le 5 juillet 1904, définitivement le 10 novembre 1905.En 1912, arguant du doublement de la production laitière depuis la création de la fruitière, le conseil municipal décide la construction d'une cave à lait attenante au bâtiment et l'aménagement d'une chambre de domestique. L'entrepreneur Joseph Perucchi se charge des travaux en 1913, suivant les plans dressés par l'architecte maîchois Lucien Bourgeot. Nouvelles campagnes de travaux dans les années 1920. L'architecte Jules Cannelle, de Charquemont, explique dans son devis du 29 mai 1922 (d'un montant de 20 790 F) : "La fromagerie de Trévillers appartenant à la commune se trouve actuellement trop petite en raison de l'amélioration apportée dans la fabrication des fromages. On y fait de l'Emmenthal au lieu de gruyère ce qui nécessite plus de place et l'apport du lait a beaucoup augmenté depuis la guerre. De plus il y a beaucoup de réparations à faire à l'intérieur." L'escalier est donc transféré à l'extérieur et une cave à fromages (9,50 x 5,80 m) bâtie au sud, dans le rocher, par Jean Brusa, entrepreneur à Maîche. La fruitière est alimentée en eau potable en 1926 puis, ses dépendances étant devenue insuffisantes, la municipalité fait construire en 1929, de l’autre côté de la route, une remise en bois réunissant garage, dépôt de charbon, grenier et porcherie (pour quatre bêtes). Le projet est signé par Marcel Hézard, architecte à Montbéliard (7 avenue du Maréchal Joffre) et réalisé par l’entrepreneur maîchois Raoul Lacoste. L'établissement est alors déjà important, traitant à cette date un million de litres de lait.
La deuxième fromagerie
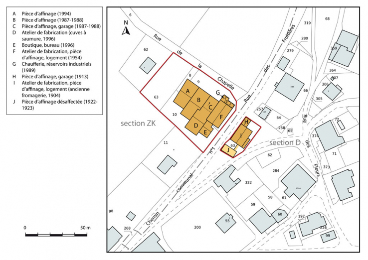
Il en travaille 1,5 million en 1951 si bien que les installations ne sont plus adaptées. Les 32 producteurs se constituent officiellement, le 31 décembre 1951, en société coopérative agricole de fromagerie et achètent à la commune locaux et matériel. Ils font étudier l'agrandissement des locaux existants (15 x 11 m) par l'architecte Louis Gorce, établi au 3 place René Payot à Besançon, missionné par le service du Génie rural. Celui-ci propose la création, au sud-ouest et dans leur prolongement, d'un nouveau bâtiment (9,50 x 11,10 m). Ce projet, d'un montant de 13,5 millions F, ne se concrétise pas. L'architecte en propose une autre version où le bâtiment est transporté de l'autre côté de la route, à l'emplacement de la remise. La nouvelle fromagerie entre en activité en 1954, l'ancienne étant transformée en cave d'affinage. En 1976, une cuve multiple et un nouveau système de pressage sont achetés à la fromagerie Overney, d'Is-en-Bassigny en Haute-Marne (à laquelle la fromagerie de Charquemont prend également une cuve multiple). Deux réservoirs (tanks) de 12 000 l chacun sont aussi installés, l'un pour le lait, l'autre pour le petit lait.Le 1er avril 1981, la coopérative absorbe celle de Ferrières-le-Lac : elle compte de ce fait 28 producteurs et traite 3 millions de litres de lait (pour 2 162 000 l en 1980). Ce sont 3,6 millions de litres qui sont collectés en 1985 et vendus au fromager Étienne Perrot, lequel les convertit en emmental grand cru : 21 meules (soit 17 000 kg de lait) par jour en période de pointe (les 4,7 millions traités en 1987 permettront la fabrication de 400 tonnes de fromage). L'équipement se compose en 1985 de matériel Guérin (société fondée par Pierre Guérin en 1949 et installée à Niort en 1962) : une cuve de fabrication de 6 000 l avec soutirage par gravité, matériel de moulage et pressage, cuves à saumure ("bains de sel") pour 15 à 18 meules, deux tanks (réservoirs extérieurs). Le fromager, qui affine la totalité de la fabrication (à 70 % vendue à Rungis), dispose de pièces d'affinage en sous-sol (deux caves chaudes de 150 places chacune et une froide de 150 places) et dans l'ancien bâtiment (une cave froide de 200 places) mais il doit aussi louer une cave dans la commune de Plains-et-Grands-Essarts.
La coopérative envisage donc une modernisation et une extension : construction d'une chaufferie pour le générateur à vapeur au gaz remplaçant celui au fuel, de nouveaux bains de sel permettant d'immerger des fromages sur palettes, de caves supplémentaires en sous-sol et dans le prolongement de celles existantes (la capacité totale sera portée à 2 180 meules), d’un garage pour le camion de ramassage, installation de deux tanks supplémentaires, etc. Éventuellement, une salle de pressage serait aussi aménagée et une deuxième cuve de fabrication de 6 000 l acquise (elle sera effectivement achetée à la société Guérin). La société confie l'élaboration du projet conjointement à l'architecte Jacques Huguenot (24B rue de Chalezeule à Besançon) et à la Direction départementale de l'Agriculture et de la Forêt du Doubs. Les travaux de terrassement ont lieu fin 1986, la construction (par l'entreprise Jean-Patrick Clauzel, d'Épenoy) et les aménagements intérieurs de mai 1987 au milieu de 1988 ; la chaufferie est réalisée en 1989.
Aujourd'hui
La société, qui absorbe les fromageries des Bréseux (1987), de Cernay-l'Église et Thiébouhans (1988), et de Montandon (1989), prend alors la dénomination de "Fruitières réunies". Elle réunit 66 producteurs en 1989, pour une collecte totale de plus de 8 millions de litres de lait (6 millions l'année d'avant) avec une pointe journalière de 28 000 l en mai. E. Perrot est alors assisté par trois aides.De nouvelles modifications ont lieu à la fin du 20e siècle, dues à l'agence Artica de Dole, créée en 1993 et gérée par l'architecte Claude Meynier : construction de caves d'affinage au nord-ouest en 1994, d'un local pour de grandes cuves à saumure (la durée de trempe est de 3 h pour le comté, 12 à 24 h pour le gruyère, 48 à 72 h pour l'emmental) et d'une boutique en 1996. A cette date, Perrot cesse d'acheter le lait de la coopérative, qui passe alors en gestion directe et embauche comme fromager Gilles Sanchez. La production est progressivement orientée vers la fabrication du comté et du gruyère.En 2012, les 8 millions de litres de lait collectés chez 41 sociétaires ont permis la fabrication de 800 t de fromage (500 de comté et 300 de gruyère, avec une production journalière variant de 45 à 60 meules), de 12 à 13 t de beurre et de crème. Le personnel compte quatre personnes et un apprenti à la fabrication et en cave, un poste et demi de chauffeur pour le ramassage, un livreur et cinq vendeuses à temps complet (sur place, à Valentigney et sur le marché de Montbéliard). L'équipement comprend une cuve de 6 000 l et deux de 5 000 l des Établissements Chalon-Megard (Montréal-la-Cluse, Ain), une installation de soutirage par pompe à caillé et répartiteur de 14 places (permettant la fabrication de 14 meules) de la même société, un système de pressage de 60 places (avec un manège de 40 places et 20 places en mobile) dû à Rouhier de Sancey-le-Grand (Doubs), écrémeuse et baratte, réservoirs extérieurs pour le stockage de 30 000 l de lait et autant de sérum, etc. En juillet 2013, les pièces d'affinage sont en cours de réaménagement.
Historique
La commune, dans laquelle une activité fromagère est attestée dès 1825, confie la construction d'une fromagerie à l'architecte Charles-Frédéric Surleau, de Montbéliard, qui rend plans et devis en 1902 (atelier et caves au rez-de-chaussée, logement à l'étage). Les travaux sont reçus provisoirement le 5 juillet 1904. Des extensions ont lieu ensuite, suivant les plans de plusieurs architectes : en 1913 Lucien Bourgeot de Maîche (cave à lait attenante au bâtiment et chambre de domestique), en 1922-1923 Jules Cannelle de Charquemont (cave à fromages au sud), en 1926 (alimentation en eau), en 1929 Marcel Hézard de Montbéliard (remise en bois de l’autre côté de la route, réunissant garage, dépôt de charbon, grenier et porcherie). Le 31 décembre 1951, les 32 producteurs (qui apportent 1,5 million de litres de lait) se constituent en société coopérative agricole de fromagerie et achètent à la commune les locaux et le matériel. Ils font agrandir le site par l'architecte Louis Gorce, de Besançon, missionné par le service du Génie rural, qui propose la création d'un nouveau bâtiment de l'autre côté de la route, à l'emplacement de la remise. La nouvelle fromagerie entre en activité en 1954, l'ancienne étant transformée en cave d'affinage. En 1976, une cuve multiple et un nouveau système de pressage sont achetés à la fromagerie Overney, d'Is-en-Bassigny en Haute-Marne, tandis que sont installés deux réservoirs (tanks) de 12 000 l chacun.
Le 1er avril 1981, la coopérative absorbe celle de Ferrières-le-Lac : elle compte de ce fait 28 producteurs et traite 3 millions de litres de lait. Ce sont 3,6 millions de litres qui sont collectés en 1985 et vendus au fromager Étienne Perrot, lequel les convertit en emmental grand cru. L'équipement se compose en 1985 de matériel Guérin : une cuve de 6 000 l avec soutirage par gravité, matériel de moulage et pressage, cuves à saumure pour 15 à 18 meules. Le fromager, qui affine la totalité de la fabrication, dispose de pièces d'affinage en sous-sol (deux caves chaudes de 150 places chacune et une froide de 150 places) et dans l'ancien bâtiment (une cave froide de 200 places) mais il doit aussi en louer une dans la commune de Plains-et-Grands-Essarts. La coopérative envisage donc une modernisation et une extension : construction d'une chaufferie pour le générateur à vapeur au gaz remplaçant celui au fuel, de nouveaux bains de sel, de caves supplémentaires (en sous-sol et dans le prolongement de celles existantes), d’un garage pour le camion de ramassage, installation de deux tanks supplémentaires, etc. La société confie l'élaboration du projet conjointement à l'architecte Jacques Huguenot, de Besançon, et à la Direction départementale de l'Agriculture et de la Forêt du Doubs. La construction débute fin 1986 (terrassement) et s'achève au milieu de 1988 ; la chaufferie est réalisée en 1989.
La société, qui absorbe les fromageries des Bréseux (1987), de Cernay-l'Église et Thiébouhans (1988), et de Montandon (1989), prend alors la dénomination de "Fruitières réunies". Elle réunit 66 producteurs en 1989, pour une collecte totale de plus de 8 millions de litres de lait. De nouvelles modifications ont lieu à la fin du 20e siècle, dues à l'agence Artica de Dole : construction de caves d'affinage au nord-ouest en 1994, d'un local pour de grandes cuves à saumure et d'une boutique en 1996. A cette date, la coopérative passe en gestion directe et embauche comme fromager Gilles Sanchez. La production est progressivement orientée vers la fabrication du comté et du gruyère. En 2012, les 8 millions de litres de lait collectés chez 41 sociétaires ont permis la fabrication de 800 t de fromage (500 de comté et 300 de gruyère) et de 12 à 13 t de beurre et de crème. Le personnel compte quatre personnes et un apprenti à la fabrication et en cave, un poste et demi de chauffeur pour le ramassage, un livreur et cinq vendeuses à temps complet. L'équipement comprend une cuve de 6 000 l et deux de 5 000 l des Établissements Chalon-Megard (Montréal-la-Cluse, Ain), une installation de soutirage par pompe à caillé et répartiteur de 14 places de la même société, un système de pressage de 60 places dû à Rouhier de Sancey-le-Grand (Doubs), écrémeuse et baratte, réservoirs extérieurs pour le stockage de 30 000 l de lait et autant de sérum, etc. En juillet 2013, les pièces d'affinage sont en cours de réaménagement.
- 1er quart 20e siècle
- 3e quart 20e siècle
- 4e quart 20e siècle
- 2e quart 20e siècle
Date de naissance : 22/09/1841 - date de décès : 01/01/1932
Surleau, Charles-Frédéric (1841-1932). Né à Digoin (Saône-et-Loire) puis scolarisé à Montbéliard. Ingénieur formé à l'Ecole des Arts et Manufactures, il travaille pour la Compagnie des Chemins de Fer du Nord. Il s'établit ensuite architecte à Montbéliard et construit plusieurs écoles dans cette région (à Audincourt, Montbéliard, etc.), des édifices religieux (synagogue de Montbéliard, temple des Fesches-le-Châtel, etc.), l'hôpital de Montbéliard, des fromageries, etc. (Sources : <span style="font-style:italic;">Laissez vous conter... les hommes célèbres du Pays de Montbéliard</span> et https://gw.geneanet.org/proceed?n=surleau&oc=7&p=charles+frederic)
Cannelle, Jules. Architecte à Charquemont en 1922.
Date de naissance : 26/12/1894 - date de décès : 31/10/1984
Hézard, Lucien Marcel (1894-1984). Né à Montbard, mort à Montbéliard. Elève de Gustave Umbdenstock. Formé à l'Ecole des Beaux-Arts entre 1914 et 1919. Architecte à Montbéliard entre 1929 et 1938, et en 1967, et à Neuilly-sur-Seine (Hauts-de-Seine) en 1949. Chevalier de la Légion d'honneur à titre militaire. (Sources : agorha.inha.fr et https://gw.geneanet.org/mlebastard?n=hezard&oc=&p=lucien+marcel)
Huguenot, Jacques. Architecte établi en 1986 au 24B rue de Chalezeule, à Besançon.
Bourgeot, Lucien. Architecte à Maîche en 1912.
Gorce, Louis. Architecte DPLG établi au milieu du 20e siècle au 3 place René Payot, à Besançon.
Artica ou Atelier d'Etudes architecturales. Agence créée en 1993 par l'architecte Claude Meynier à Dole.
Description
Les bâtiments de la première moitié du 20e siècle et la fromagerie des années 1950 sont en moellons calcaires enduits et coiffés de toits à longs pans recouverts de tuiles mécaniques. Les autres constructions font appel au béton (armé ou parpaing de béton) ou au pan de fer, enduit ou protégé par un essentage (de planches pour la boutique, de tôle pour ceux des années 1990), avec toit à longs pans à couverture de ciment amiante (mais le garage a un toit en appentis et tôle plate). Les deux fromageries comptent chacune un étage de soubassement et un rez-de-chaussée surélevé, surmontés d'un comble à surcroît pour l'ancienne, d'un étage carré et d'un étage de comble pour la nouvelle (dotée d'escaliers tournants en béton). L'extension au nord de la première (cave à fromages) est en rez-de-chaussée, de même que la plupart des bâtiments récents. La terrasse en béton de la chaufferie supporte les réservoirs extérieurs.
- calcaire
- béton
- béton
- fer
- moellon
- béton armé
- parpaing de béton
- pan de fer
- enduit
- enduit
- essentage de planches
- essentage de tôle
- tuile mécanique
- ciment amiante en couverture
- métal en couverture
- béton en couverture
- étage de soubassement
- rez-de-chaussée surélevé
- 1 étage carré
- étage de comble
- toit à longs pans, pignon couvert
- appentis
- escalier dans-oeuvre, escalier tournant à retours, en maçonnerie
- énergie électrique achetée
Source(s) documentaire(s)
-
Archives départementales du Doubs : 581 O 4 Administration communale. Trévillers. Fromagerie (1902-1930).
Archives départementales du Doubs : 581 O 4 Administration communale. Trévillers. Fromagerie (1902-1930).Lieu de conservation : Archives départementales du Doubs, Besançon - Cote du document : 581 O 4 -
Archives départementales du Doubs : 3 P 572/4 Matrice cadastrale des propriétés bâties de la commune de Trévillers (1882-1910).
Archives départementales du Doubs : 3 P 572/4 Matrice cadastrale des propriétés bâties de la commune de Trévillers (1882-1910).Lieu de conservation : Archives départementales du Doubs, Besançon - Cote du document : 3 P 572/4 -
Archives départementales du Doubs : 3 P 572/6 Matrice cadastrale des propriétés bâties de la commune de Trévillers (1911-1938).
Archives départementales du Doubs : 3 P 572/6 Matrice cadastrale des propriétés bâties de la commune de Trévillers (1911-1938).Lieu de conservation : Archives départementales du Doubs, Besançon - Cote du document : 3 P 572/6 -
Archives départementales du Doubs : 1538 W 101 Direction départementale de l'Agriculture et de la Forêt du Doubs. Service Appui technique et ingénierie (1939-1956).
Archives départementales du Doubs : 1538 W 101 Direction départementale de l'Agriculture et de la Forêt du Doubs. Service Appui technique et ingénierie (1939-1956).Lieu de conservation : Archives départementales du Doubs, Besançon - Cote du document : 1538 W 101 -
Archives départementales du Doubs : 1895 W 32 Direction départementale de l'Agriculture et de la Forêt du Doubs. Service Appui technique et ingénierie (1986-1991).
Archives départementales du Doubs : 1895 W 32 Direction départementale de l'Agriculture et de la Forêt du Doubs. Service Appui technique et ingénierie (1986-1991).Lieu de conservation : Archives départementales du Doubs, Besançon - Cote du document : 1895 W 32
-
1542. Trévillers - Route des Plains [la fromagerie vue de trois quarts droite], 1ère moitié 20e siècle (après 1913).
1542. Trévillers - Route des Plains [la fromagerie vue de trois quarts droite], carte postale, s.n., s.d. [1ère moitié 20e siècle, après 1913]. Publiée dans : Vuillet, Bernard. Entre Doubs et Dessoubre. Tome III. Autour de Charquemont et Damprichard. - Les Gras : B. Vuillet, Villers-le-Lac : G. Caille, 1991, p. 218. -
Prises de vues aériennes de l'IGN (20e siècle).
Prises de vues aériennes de l'IGN (20e siècle). Consultables en ligne via le site du Géoportail (www.geoportail.gouv.fr). -
Fromagerie de Trévillers. « État actuel » [plans et élévations], 1951.
Fromagerie de Trévillers. « État actuel » [plans et élévations], dessin (tirage), par l’architecte Louis Gorce, s.d. [1951], 39 x 33 cm, échelle 1/200.- Façade nord [et] Rez-de-chaussée.- Façade est, Façade ouest [et] Étage.Lieu de conservation : Archives départementales du Doubs, Besançon - Cote du document : 1538 W 101 -
Commune de Trévillers (Doubs). Agrandissement & aménagement de la fromagerie [plans et coupes de détail], 20 juillet 1951.
Commune de Trévillers (Doubs). Agrandissement & aménagement de la fromagerie [plans et coupes de détail], dessin (tirage à l’ammoniaque), par l’architecte Louis Gorce, Besançon le 20 juillet 1951, 71 x 78 cm, échelles 1/50, 1/20 et 1/10.Lieu de conservation : Archives départementales du Doubs, Besançon - Cote du document : 1538 W 101 -
Commune de Trévillers (Doubs). Agrandissement & aménagement de la fromagerie [coupes et élévations], 30 juillet 1951.
Commune de Trévillers (Doubs). Agrandissement & aménagement de la fromagerie [coupes et élévations], dessin (tirage à l’ammoniaque), par l’architecte Louis Gorce, Besançon le 30 juillet 1951, 80 x 112,5 cm, échelle 1/50.Lieu de conservation : Archives départementales du Doubs, Besançon - Cote du document : 1538 W 101 -
Direction départementale de l’Agriculture et de la Forêt du Doubs. Société coopérative de Fromagerie de Trévillers. Projet de construction d’une chaufferie et d’une salle des machines, 28 février 1981.
Direction départementale de l’Agriculture et de la Forêt du Doubs. Société coopérative de Fromagerie de Trévillers. Projet de construction d’une chaufferie et d’une salle des machines, dessin (tirage, crayon de couleur), s.n., Besançon le 28 février 1981, 29,5 x 42 cm, échelle 1/100.- Coupe.- Sous-sol [et] Rez-de-chaussée [plans].- [Élévation antérieure].- [Élévation latérale gauche].- [Élévation postérieure].Lieu de conservation : Archives départementales du Doubs, Besançon - Cote du document : 1895 W 32 -
Société coopérative de fromagerie [de] Trévillers. Extension du bâtiment fromagerie. 2235-1. État actuel [plans et élévations], mars 1986.
Société coopérative de fromagerie [de] Trévillers. Extension du bâtiment fromagerie. 2235-1. État actuel [plans et élévations], dessin (tirage), par l'architecte Jacques Huguenot, mars 1986, 64,5 x 122 cm, sans échelle.Lieu de conservation : Archives départementales du Doubs, Besançon - Cote du document : 1895 W 32 -
Société coopérative de fromagerie [de] Trévillers. Extension du bâtiment fromagerie [plans et élévations], 7 avril 1987.
Société coopérative de fromagerie [de] Trévillers. Extension du bâtiment fromagerie [plans et élévations], dessin (tirage), par l'architecte Jacques Huguenot, modifié le 7 avril 1987.- 2235-2. État projeté rez-de-chaussée [plan], 74 x 102 cm, échelle 1/50.- 2235-3. État projeté sous-sol [plan], dessin (tirage, stylo à bille), 74 x 102,5 cm, échelle 1/50.- 2235-5. Façades, 53 x 111 cm, échelle 1/100.Lieu de conservation : Archives départementales du Doubs, Besançon - Cote du document : 1895 W 32
-
Monnet, Bruno ; Sichler, Guy. Charquemont, Fournet-Blancheroche, 1770-1890, 2012.
Monnet, Bruno ; Sichler, Guy. Charquemont, Fournet-Blancheroche, 1770-1890. - [S.l.] : Association Pages d'histoire, 2012. 435 p. : ill. ; 30 cm. -
P., A. Trévillers. Modèle de rationalisation, la fromagerie intéresse les Japonais, 14 novembre 1990.
P., A. Trévillers. Modèle de rationalisation, la fromagerie intéresse les Japonais. Le Pays, 14 novembre 1990, ill. -
Parrenin, Dominique. [Mémoires d'un président de coopérative fromagère], 2001.
Parrenin, Dominique. [Mémoires d'un président de coopérative fromagère]. - S.l. [Maîche], s.d. [2001]. 15 p. dactyl. ; 30 cm. -
Vuillet, Bernard. Entre Doubs et Dessoubre. Tome III. Autour de Charquemont et Damprichard, 1991.
Vuillet, Bernard. Entre Doubs et Dessoubre. Tome III. Autour de Charquemont et Damprichard, d'après la collection de cartes postales de Georges Caille. - Les Gras : B. Vuillet, Villers-le-Lac : G. Caille, 1991. 243 p. : cartes postales ; 31 cm.
-
Parrenin, Dominique (témoignage oral)
Parrenin, Dominique. Président de la société coopérative de fromagerie de Trévillers de 1974 à 2001. Maîche. -
Sanchez, Gilles (témoignage oral)
Sanchez, Gilles. Fromager à Trévillers.
À voir
Informations complémentaires
- patrimoine industriel du Doubs
- atelier de fabrication
- pièce d'affinage
- pièce de séchage
- boutique
- bureau
- chaufferie
- garage
- réservoir industriel
- logement d'ouvriers
- © Région Bourgogne-Franche-Comté, Inventaire du patrimoine
