ÉGLISE PAROISSIALE SAINT-LAURENT
21 - Montmain
- Dossier IA00071051 réalisé en 1985 revu en 1987
- Auteur(s) : Elisabeth Réveillon
Historique
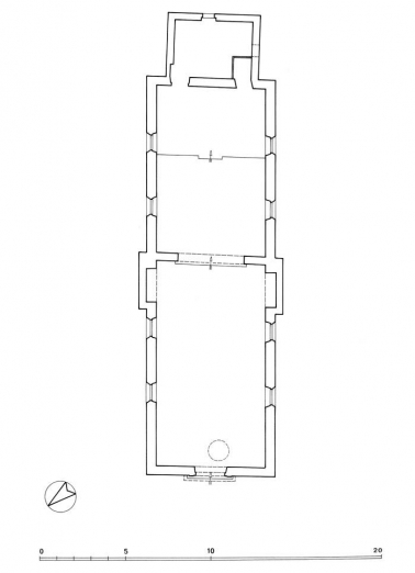
Eglise construite au début du 18e siècle, armoiries des familles Valon et Tenarre, seigneurs du lieu, sur la clé de l'arcade du choeur
Période(s)
Principale :
- 1er quart 18e siècle
Auteur(s) & personnalité(s)
Description
Murs :
- brique
- calcaire
- moellon
Toit :
- tuile plate
- ardoise
Plan :
- plan allongé
Etages :
- 1 vaisseau
Décors :
- sculpture
armes des familles Valon et Tenare, support : clé de l'arcade du choeur
À voir
Informations complémentaires
Thématiques :
- Saône navigable en Bourgogne-Franche-Comté (la)
Aire d’étude et canton :
Bourgogne-Franche-Comté
Dénomination :
église paroissiale
Parties constituantes non étudiées :
- cimetière
- © Région Bourgogne-Franche-Comté, Inventaire du patrimoine
