USINE D'HORLOGERIE (USINE D'ÉBAUCHES DE MONTRE ET DE FOURNITURES POUR L'HORLOGERIE) PARRENIN PUIS DE LA FABRIQUE DE FOURNITURES DE BONNÉTAGE
25 - Villers-le-Lac
2 rue des Combottes
- Dossier IA25001445 réalisé en 2015
- Auteur(s) : Laurent Poupard
Historique
Située à l'entrée du village du côté de Morteau, l'usine conçue par la Sarl CDA Architectes (Conception, Design et Architecture, au 24 rue Georges Picot à Toulouse, cabinet fondé en 1986) est bâtie en 1990 par l'entreprise toulousaine GA (aujourd'hui GA Smart Building, au 8 chemin de la Terrasse à Toulouse), réputée fondée en 1875 par les familles Guiraudie et Auffeve, originaire de Normandie et installée à Toulouse dans les années 1940. Elle a été commandée par la société Remex International Precision Time LTD, de Hong Kong, qui a repris en 1977 la fabrique d'ébauches de montre Parrenin, alors centenaire : son fondateur Hippolyte Parrenin avait fait construire en 1876-1877 au centre du village (5-9 rue Hippolyte Parrenin) sa propre usine, dans laquelle il avait transféré les ateliers de l'ancienne maison Dupommier et Marguet Frères. Placée en redressement judiciaire en 1974, la SA des Etablissements Parrenin, dont Remex International était le principal client, était en difficulté malgré son association en 1964-1965, au sein de Lorfrance, avec l'Horlogerie de Savoie (Lorsa), d'Annemasse. Remex International reprend donc la société Parrenin et la convertit à la fabrication de modules quartz analogiques, dont le premier sort en décembre 1980. Toute une famille de calibres est développée en coopération avec le Cetehor : HP 6553 (5 1/2 - 6 3/4 lignes), HP 6640 B (11 1/2 lignes), HP 6653 et HP 6060 (6 3/4 - 8 lignes), HP 6870 (8 3/4 lignes), HP 6881 (10 1/2 lignes). La SA Parrenin (au capital de 13 200 000 F en 1990) produit 9,2 millions d'ébauches et mouvements de montre en 1988 puis 10,5 en 1989, consommant pour cela 60 t de laiton, 12,1 d'aciers alliés (inox), 11 d'acier, 2,125 de plastique et 0,3 de nickel. En 1990, elle emploie 115 personnes et a une production mensuelle de 900 000 ébauches (pour un CA de 10 millions de F), exclusivement à quartz (elle arrête cette année-là la production des mouvements mécaniques). Elle vend 85 % de sa production à Remex International (alimentant ses 350 salariés de Hong Kong) et les 15 % restant en Europe, ce qui la place en 10e position des entreprises franc-comtoises exportatrices. Pour obtenir ce résultat, la société a dû réorganiser sa fabrication, d'où la construction du nouvel établissement. Auteur du premier micromoteur français pour montres à quartz analogiques (conçu avec le Cetehor), Parrenin envisage des recherches dans le domaine des plastiques et la réalisation d'une chaîne d'assemblage automatique de mouvements de montre. Elle cesse cependant son activité en 1992 et en informe ainsi la municipalité : "Dans l'impossibilité de faire face à l'agressivité de la concurrence japonaise, la société Remex de Hong Kong a décidé d'arrêter l'assemblage et la vente des mouvements de montres quartz analogiques. Remex absorbant la totalité de notre fabrication d'ébauches, par voie de conséquence, nous nous voyons contraints de cesser notre activité. Cette décision a été entérinée par notre Conseil d'Administration le 6 avril 1992." Le site est racheté cette même année par la société SMH (Société suisse de Microélectronique et d'Horlogerie SA, né en 1985 de la fusion de la SSIH - Société suisse de l'Industrie horlogère SA - et de l'Asuag - Allgemeine Schweizerische Uhrenindustrie AG), qui deviendra le groupe Swatch en 1998. Nivarox Far, autre filiale de la SMH, vient également, en 1991, d'acquérir en totalité les sociétés Régis Mainier et Cie et Vuillemin, de Bonnétage, spécialisées à leur création en 1936 dans la fabrication des roues d'échappement à cylindre et à ancre (l'Asuag avait dès 1966 pris une participation dans leur capital). Elle les réunit cette même année 1991 pour former la Fabrique de Fournitures de Bonnétage, transférée dans l'usine de Villers-le-Lac en 1996. La FFB (SAS au capital de 291 580 € en 2010, porté à 4 561 275 € en 2014) compte 113 salariés en janvier 2012, avant le rapatriement des ateliers de sa filiale la Sefea (Société européenne de Fabrication d'Ebauches d'Annemasse, 57 salariés). En 2016, elle demeure spécialisée dans la fabrication de composants pour l'horlogerie.
- 4e quart 20e siècle
CDA Architectes (Conception, Design et Architecture) : cabinet fondé en 1986. Etabli à Toulouse : au 24 rue Georges Picot en 1990, au 8 chemin de la Terrasse en 2016
Description
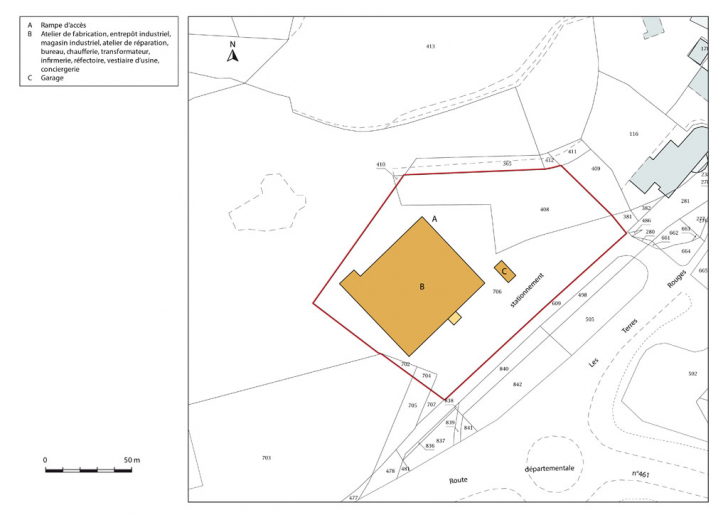
L'usine (61 x 43 m) a des murs en dalles de béton précontraint, avec un mur-rideau en verre en façade antérieure et un essentage partiel en acier sur les façades latérales et sur la façade postérieure. Elle est coiffée de toits à faible pente (6 %) en bacs acier nervurés. Elle comporte un étage de soubassement, un rez-de-chaussée surélevé et un étage carré ; le rez-de-chaussée est desservi en façade par un escalier monumental conduisant à une entrée tout aussi monumentale, et dans l'angle nord par une rampe d'accès. Dans le projet de 1989, le soubassement accueille chaufferie, transformateur, stockages, traitement des eaux, infirmerie, conciergerie, cafétéria et réfectoire, vestiaires et sanitaires, au rez-de-chaussée surélevé magasins et contrôle, fabrication, mécanique, rectifiage et découpage, comptabilité et expédition, au 1er étage décolletage et injection plastique, taillage et chassage, traitements divers (galvaniques, thermiques et mécaniques), contrôle, vestiaires et sanitaires.
- béton
- métal
- pan de béton armé
- béton précontraint
- pan de métal
- mur-rideau
- essentage de tôle
- acier en couverture
- étage de soubassement
- rez-de-chaussée surélevé
- 1 étage carré
- élévation ordonnancée
- escalier de distribution extérieur, escalier droit, en maçonnerie
- escalier dans-oeuvre,
- rampe d'accès
- énergie électrique achetée
Source(s) documentaire(s)
-
2 M 7 Etablissements Parrenin. Construction, 1990-1994
Etablissements Parrenin. Construction, 1990-1994Lieu de conservation : Archives communales, Villers-le-Lac - Cote du document : 2 M 7
-
[Plan-masse et de situation avec nivellement et plantations], s.d. [1989-1990]
[Plan-masse et de situation avec nivellement et plantations], dessin (photocopie), s.n. [par CDA Architectes], s.d. [1989-1990], 31 x 42 cm, sans échelleLieu de conservation : Archives communales, Villers-le-Lac - Cote du document : 2 M 7
-
Binétruy, René. Historique de deux entreprises horlogères qui ont marqué le Haut-Doubs - Neuchâtel - le Jura et Berne : HP - ISA, 8 juillet 2008
Binétruy, René. Historique de deux entreprises horlogères qui ont marqué le Haut-Doubs - Neuchâtel - le Jura et Berne : HP - ISA. - 8 juillet 2008. 28 p. ; 30 cm. -
C., D. Aux Ets Parrenin, de Villers-le-Lac : pas de licenciement dans l'immédiat, 5 décembre 1974
C., D. Aux Ets Parrenin, de Villers-le-Lac : pas de licenciement dans l'immédiat. Le Comtois, jeudi 5 décembre 1974, ill. -
Chatelain, Emma. ETA SA Manufacture Horlogère Suisse (Granges), 2009
Chatelain, Emma. ETA SA Manufacture Horlogère Suisse (Granges). In Dictionnaire du Jura, 2009. Article consultable en ligne : http://www.diju.ch/f/notices/detail/7117/Schild (consultation : 16 janvier 2015) -
GA. 3 questions à Kader Guettou, 2 juin 2015
GA. 3 questions à Kader Guettou. Invest in Bordeaux, 2 juin 2015. Document accessible par internet : http://www.invest-in-bordeaux.fr/ga-3-questions-a-kader-guettou/ -
Hugue, Didier. Swatch transfère l’activité de sa filiale savoyarde Sefea dans le Doubs, 10 janvier 2012
Hugue, Didier. Swatch transfère l’activité de sa filiale savoyarde Sefea dans le Doubs. L'Usine nouvelle, 10 janvier 2012. Document accessible sur internet : http://www.usinenouvelle.com/article/swatch-transfere-l-activite-de-sa-filiale-savoyarde-sefea-dans-le-doubs.N166178 -
Humbert, Gérard. Parrenin : le suisse SMH est (très) intéressé, 20 mai 1992
Humbert, Gérard. Parrenin : le suisse SMH est (très) intéressé. L'Est républicain, 20 mai 1992, ill. -
Les pionniers de l'horlogerie à Villers-le-Lac, 2e semestre 1988
Les pionniers de l'horlogerie à Villers-le-Lac. Horlogerie ancienne, Revue de l'Association française des Amateurs d'Horlogerie ancienne, n° 24, 2e semestre 1988, p. 37-53 : ill. -
V., R. Pour une nouvelle image. Extension de l'usine Parrenin SA à Villers-le-Lac, s.d. [1990]
V., R. Pour une nouvelle image. Extension de l'usine Parrenin SA à Villers-le-Lac. Article de journal, s.d. [1990] : ill.Lieu de conservation : Archives communales, Villers-le-Lac - Cote du document : 2 M 7 -
Viennet, Jean-Pierre. Le pays des horlogers : trois siècles d'histoire franco-suisse, 2015
Viennet, Jean-Pierre. Le pays des horlogers : trois siècles d'histoire franco-suisse. - Villers-le-Lac : Musée de la Montre, 2015. 271 p. : ill. ; 28 cm. -
Vuez, Jean-Claude. Hippolyte Parrenin pionnier méconnu, 2015
Vuez, Jean-Claude. Hippolyte Parrenin pionnier méconnu. - S.d. [2015]. 11 f. dactyl. ; 30 cm. -
Vuez, Jean-Claude. Hippolyte Parrenin, pionnier méconnu, 2015
Vuez, Jean-Claude. Hippolyte Parrenin, pionnier méconnu. In Viennet, Jean-Pierre. Le pays des horlogers : trois siècles d'histoire franco-suisse. - Villers-le-Lac : Musée de la Montre, 2015, p. 130-131 : ill.
À voir
Informations complémentaires
- patrimoine industriel du Doubs
- atelier de fabrication
- entrepôt industriel
- magasin industriel
- atelier de réparation
- transformateur
- chaufferie
- vestiaire d'usine
- bureau
- infirmerie
- réfectoire
- conciergerie
- garage
- stationnement
- rampe d'accès
- © Région Bourgogne-Franche-Comté, Inventaire du patrimoine
