THÉÂTRE MUNICIPAL
58 - Nevers
8 place des Reines de Pologne
- Dossier IA58000001 réalisé en 1996 revu en 2024
- Auteur(s) : Pascale de Maulmin, Claudine Hugonnet-Berger, Laurent Poupard
Présentation
Le théâtre de Nevers a connu une construction longue et compliquée. Longue puisqu’elle s’est étalée sur 15 ans et compliquée parce qu’à plusieurs reprises, l’Histoire avec un grand H est venue contrecarrer l’avancement des travaux. Sa vie a ensuite été marquée par quatre grandes restaurations. Les deux premières se sont accompagnées d’un changement radical de décoration de la salle qui, en 75 ans, a donc présenté trois aspects différents.
1) La construction (1809-1824)
A la fin du 18e siècle, Nevers a sa Comédie : une salle de spectacle bâtie en 1765 par l’ingénieur des ponts et chaussées Martin rue des Quatre Vents (à l’emplacement de l’actuel n° 4). Mais c’est une salle privée et la municipalité veut son propre théâtre, un théâtre à sa mesure. Elle l’explique ainsi : « à l’avantage de contribuer pour beaucoup à l’embellissement de la ville et de procurer au public la commodité dont il est privé dans la salle actuelle, le projet de construction dont il s’agit, réunira l’avantage bien plus précieux encore de faire cesser le danger dont les spectateurs sont journellement menacés d’être étouffés dans cette ancienne Salle, en cas d’incendie ou autre accident qui causerait du tumulte et de l’effroi ».Le maire Louis Gaspard Dard d’Espinay confie la rédaction d’un projet à l’architecte Delaporte, qui conçoit « une salle de spectacle dans le goût moderne », avec un café et un foyer pour le public. Elle est prévue pour un emplacement précis : le Petit Château, aussi appelé la Gloriette, qui a été acheté par la Ville. Cet édifice achevé au début du 17e siècle par Charles 1er Gonzague a perdu bien de sa superbe depuis. Le projet de Delaporte est accepté à la mi-1805 par le conseil municipal et par l’ingénieur des Ponts et Chaussées Georges Lebrun (1750-1817), personnage important pour l’histoire du théâtre. Fils d’ingénieur militaire, Georges Gardeur-Lebrun est entré en 1776 dans le corps des ponts et chaussées, dont il s’est aussitôt mis en congés pour participer, comme capitaine du Génie, à la guerre d’indépendance américaine. Il a ensuite fait carrière comme ingénieur des ponts et chaussées et s’est installé à Nevers en 1795. Lorsqu’il prendra sa retraite en 1814, il sera ingénieur en chef du département de la Nièvre. Il se sera beaucoup investi dans la conception et la construction du théâtre, dont il aura organisé et suivi le chantier en sus de son travail.
Donc la Ville veut son théâtre mais elle n’a pas l’argent pour concrétiser son projet. Qu’à cela ne tienne : un certain nombre de Neversois décident de se constituer en société pour financer la construction. Le 20 juillet 1805, le maire soumet leur proposition au préfet, avec cet argumentaire : « Depuis longtems, on désire une Salle de Spectacle ; et le commencement d’une Dinastie est le moment de s’occuper des arts, et d’élever des monumens qui retrace le bonheur et la tranquilité public » [sic]. Par cette expression « le commencement d’une dynastie », Dard d’Espinay rappelle le contexte historique national : Napoléon Bonaparte s’est proclamé empereur le 2 décembre 1804 et, sous le nom de Napoléon 1er, il est alors en guerre contre une bonne partie de l’Europe, sur laquelle il enchaîne les victoires. Deux autres acteurs majeurs de la construction interviennent. Le premier est le préfet Adrien Godard d’Aucour comte de Plancy, en poste dans la Nièvre de mai 1808 à décembre 1810. Le deuxième est le maire Antoine-Joseph de Chabrol de Chaméane, qui occupe cette fonction de maire de 1808 à 1816 (il sera également conseiller général et député).
C’est le préfet qui relance le projet. Il encadre la constitution de la société d’actionnaires qui, le 1er janvier 1809, réunit 74 « capitalistes ». Lors de sa première séance, le 6 mai 1809, elle se donne un bureau dont le président est le préfet et le vice-président le maire. Le rapporteur expose son objet : « En vous réunissant pour contribuer par Souscription, à la Construction d’une Salle de Spectacle, vous n’entendez certainement pas faire une spéculation de commerce, et encore moins vous soumettre à des Lois gênantes et rigoureuses. Vous n’avez eu que des vues d’embellissement, d’utilité pour la Ville, de plaisir et d’agrément pour vous ». La dépense étant estimée à 80 000 F, 320 actions de 250 F chacune seront émises, dont le règlement sera exigible par dixième de six semaines en six semaines ce qui permettra de payer des acomptes réguliers aux entrepreneurs. La Ville est autorisée à céder le Petit Château à la société mais elle aura la faculté de racheter ces actions ; de son côté, la société a l’obligation de construire la salle de spectacle dans un certain délai. Le problème est qu’à la date du 6 mai 1809, les 320 actions n’ont pas encore toutes été souscrites : il y en a seulement 195 (un peu moins des deux tiers), représentant un capital de 48 750 F. Parmi les souscripteurs le préfet lui-même (quatre actions), le maire (quatre actions), l’ingénieur Lebrun (deux actions), etc.
Le 6 mai 1809, Lebrun présente le rapport de la commission des travaux sur le futur emplacement de la salle. Plusieurs ont été examinés et le Petit Château reste le plus intéressant : déjà parce qu’il appartient à la Ville, ensuite parce que le site est vaste ce qui permettra de faciliter le stationnement, de procurer plusieurs sorties à la salle et de l’isoler pour réduire les risques liés aux incendies, enfin parce que le public profitera de l’environnement agréable fourni par la promenade voisine. L’assemblée des actionnaires valide ce choix et les plans du théâtre, avec pour ces derniers un changement important : la proposition de Delaporte est abandonnée au profit d’une autre due à Lebrun lui-même. Dans ce nouveau projet, la partie ouest du Petit Château sera démolie et son sous-sol sera modifié avec maintien de certains murs et construction de nouvelles salles voûtées, directement accessibles depuis la rue des Ouches. Le théâtre aura 590 places, réparties entre le parterre et deux niveaux de galeries. Il s’inscrira suivant un axe grossièrement nord sud, avec le vestibule au sud côté promenade et la scène au nord, dominant la rue (sa disposition actuelle). La scène sera encadrée par deux ailes, celle à l’ouest devant accueillir une salle de bal et un café, celle à l’est une société littéraire.
Bien que l’ensemble des 80 000 F ne soit pas encore réuni, les terrassements débutent en mai 1809 et la démolition de l’aile ouest du Petit Château en juin. La pose de la première pierre (rappelée par une plaque commémorative) n’a toutefois lieu que le 25 novembre, ce que le maire explique ainsi : « D’après l’usage ordinaire, Messieurs, elle aurait dû être placée dans la fondation. Mais dans le tems, M. Deplancy observa qu’il vaudrait mieux attendre pour cette cérémonie l’époque de la conclusion de la paix. Cette nouvelle, si vivement attendue, est enfin arrivée et nous permet, en nous livrant à l’allégresse qu’elle inspire, de saisir cette circonstance pour consacrer d’une manière plus solennelle le dévouement et le désintéressement que vous montrés, Messieurs, en élevant un monument si nécessaire à la Ville. » La paix vient en effet d’être conclue le 14 octobre 1809, par le traité de Schönbrunn, entre la France et l’Autriche vaincue, associée au Royaume-Uni au sein de la cinquième coalition.
Fondations et voûtes sont achevées en janvier 1810 mais dès février, Lebrun signale qu’il ne reste plus assez d’argent pour achever la construction. Il fait donc terminer le gros-oeuvre afin de couvrir ce qui a déjà été réalisé, puis les travaux s’arrêtent. Les entrepreneurs demandent à être payés. Une nouvelle souscription d’actions est ouverte, sans grand succès, et le 21 juillet 1811, l’assemblée des actionnaires est priée de se prononcer sur le sujet. « A l’instant les mesures les plus contradictoires sont proposées simultanément ; les opinions les plus divergentes se croisent, se heurtent en tout sens ; et dans l’impossibilité de discuter méthodiquement au plan quelconque, l’assemblée se sépare, après trois heures de débats et sans avoir rien prononcé sur l’objet important pour lequel elle avait été convoquée. » Le seul résultat tangible est la démission de son président. C’est l’impasse et le chantier est à l’arrêt.
Le 18 août 1811, le vice-président réunit la commission de construction pour évoquer une autre possibilité : déléguer l’achèvement de la salle de spectacle à un entrepreneur privé. Justement, l’un d’eux vient de se manifester. Il s’appelle Bernardin Lago et il est né à Castelletto Stura, dans la province de Coni en Italie. Il est peintre décorateur et s’intéresse particulièrement au théâtre de Nevers : il avait en effet déjà candidaté en 1809 pour son décor, fort du travail qu’il avait exécuté dans les salles de spectacle de Mons et Bruxelles en Belgique, d’Avesnes et Bourges en France. Il s’était de nouveau manifesté en janvier 1811, évoquant ses projets pour les salles de Saint-Etienne et de Saint-Amand. Il rédige un devis estimatif de 37 000 livres comprenant la réalisation de la salle, de la décoration intérieure et de la scène, avec sa machinerie et ses décors. Le 27 août 1811, Lago fait une offre : il déclare avoir trouvé des financeurs et propose de régler les entrepreneurs et d’achever les travaux dans un délai de cinq mois à condition que les actionnaires lui donnent leurs actions. L’offre reste sans suite.
Les entrepreneurs portent plainte cette même année 1811 car leur situation n’est pas brillante. La lettre adressée par l’un d’eux au maire commence ainsi : « C’est un infortuné, que partout le malheur poursuit ». Il déclare qu’après avoir travaillé deux années « dans vos travaux de la salle des spectacle - ayant sacrifié tout ce temps-là et le peu d’avance que j’avais », il se trouve dans « la position la plus critique », « les deux bras coupés », « n’ayant point d’occupation, poursuivit par les maladies, ayant une mère impotente de tous ses membres - pas le sou pour avoir les premières nécessités de la vie ». La commission des travaux finit par leur donner en 1813 les maigres fonds restants. Le 1er juin 1813, l’assemblée générale demande au nouveau préfet de bien vouloir accepter la présidence de la société. Celui-ci est le baron Joseph Fiévée, journaliste, écrivain et agent secret de Napoléon. Il présente à la société la sommation faite par le maire afin que les travaux soient terminés au plus tôt sinon la vente du Petit Château sera annulée. La majorité des actionnaires décide alors de renoncer purement et simplement à ses actions, qu’elle remet à la Ville. Avec plus ou moins d’allant ou de soulagement, comme pour Duverne-Marancy qui écrit : « Je vous remercie, Monsieur, d’avoir bien voulu approuver de votre nom l’intention où j’ai toujours été de céder à la mairie les actions que j’ai payées pour la construction d’une salle que j’espère bien peu voir finir. Mais je n’en entendrai plus parler et cela me fait bien plaisir. » Quatre actionnaires résistent, ce qui incite le maire, le 2 septembre 1813, à demander à l’avocat Garilland de les assigner au tribunal civil. Avec succès : l'un d'eux, le contrôleur des Droits réuni Bernard, obtempère le mois suivant, mais en pestant : « Je ne m’attendais pas à me voir traduit devant les tribunaux pour une affaire de comédie. Je comptais qu’elle ne serait pour moi qu’un sujet de plaisir et de délassement. Je vois de plus en plus qu’il n’est rien au monde dont on doive s’étonner. »
En 1813, la Ville est donc seule propriétaire d’un théâtre dans lequel tout reste à faire. Bernardin Lago, qui a déjà passé bien du temps sur ce dossier, souhaiterait se voir confier au minimum la décoration. Il vient donc régulièrement aux nouvelles et donne des siennes. Ainsi le 26 août : « voyant que les salles de comédie resteront suspendues et que je ne pouvais pas employer mes faibles talents pour elles, je me suis donné à peindre des saints et des vierges de manière que je suis devenu le restaurateur des église du département de la Loire. Voilà 9 à 10 églises que je viens de décorer à [la] grande satisfaction de MM les curés et paroissiens qui [n’ont] jamais eu des églises si brillantes, et à ma satisfaction particulière parce qu’elles ont fait bouillir la marmite ».
C’est finalement le préfet qui débloque la situation. Il trouve des crédits pour payer les entrepreneurs, lesquels s’engagent à achever les travaux. Mais une nouvelle fois, l’Histoire s’en mêle et les paiements cessent sans que les dettes n’aient été remboursées. Lago résume la situation le 1er décembre 1814 dans une lettre au maire : « Les grands événements qui ont eu lieu […] ont sans doute arrêté pour un moment l’exécution des travaux publics dans l’intérieur du Royaume et je présume bien qu’il ne vous a pas été possible de réaliser votre projet d’achèvement de la salle de spectacle de votre ville. » Il évoque bien entendu le contexte politique particulier de l’année 1814, marqué le 6 avril par l’abdication de l’empereur Napoléon 1er et la restauration de la monarchie avec l’avènement au trône du comte de Provence, sous le nom de Louis XVIII.
Ce contexte mouvementé se poursuit l’année suivante avec l’épisode des Cent-Jours qui voit Napoléon tenter de reprendre le pouvoir. Le préfet en expose les conséquences pour la construction : « Le reste du secours allait être soldé pour éteindre la dette arriérée quand les événements du 20 mars empêchèrent le versement de ce solde et anéantirent les ressources. » Le 20 mars 1815, Napoléon entre dans Paris, quittée la veille par Louis XVIII, mais il est battu à Waterloo le 18 juin. Les vainqueurs occupent une partie de la France, qui est ramenée à ses frontières de 1790 et se voit imposer le paiement d’une forte indemnité (700 millions F). Dans ce contexte, les travaux du théâtre, qui avaient repris au début de l’année, s’arrêtent de nouveau, d’autant que le 22 juillet, les soldats autrichiens entrent dans Nevers. Ils sont 15 000 à la fin du mois, dans une ville de 12 000 habitants. L’occupation dure 89 jours. Elle cesse début octobre mais elle a été marquée par de nombreuses réquisitions et des exactions en tous genres.
Après ce coup d’arrêt brutal, il faut attendre encore sept ans pour qu’enfin la Ville trouve des crédits à affecter à l’achèvement de sa salle de spectacle. En 1822, le nouveau maire est Albert de Bouillé. Il demande à Porteurrat, son architecte voyer (le directeur des services techniques), un détail estimatif des travaux à faire, que celui-ci rédige avec l’incontournable Bernardin Lago. Le projet de Lebrun est un peu modifié et les travaux sont adjugés le 10 janvier 1823. Pour sa part, Lago passe le 28 octobre 1823 une convention avec le maire pour la décoration de la salle et la machinerie de scène. On ne sait pas à quoi ressemblait exactement cette décoration : a-t-elle respecté le dessin de Porteurrat ? A-t-elle aussi respecté le cahier des charges qui prévoyait un papier bleu parsemé d’étoiles dorées, des draperies aux deux loges d’avant-scène en taffetas bleu garni de franges dorées, des banquettes recouvertes de toile verte ?
Toujours est-il que la salle de spectacle est officiellement inaugurée le 6 janvier 1824. Lago est donc arrivé à réaliser son projet, au bout de quinze ans, mais il meurt cette même année 1824 ! Un bilan de la fin des années 1830 signalera que le coût du théâtre, estimé 80 000 F à l’origine, a en fait atteint 144 000 F soit un dépassement de budget de près de 45 % (mais sur 15 ans).
2) La réfection de 1853
Un quart de siècle après sa création, le théâtre nécessite des réparations et un bon rafraîchissement. Le maire Jean Desveaux demande en 1844 une estimation des travaux à Hippolyte Paillard. Ce dernier est l’architecte de la Ville mais il sera aussi au cours de sa carrière architecte diocésain et architecte départemental de la Nièvre. Pour la décoration, le maire prend contact en 1845 avec le peintre décorateur parisien Saint-Léon. De son vrai nom Antoine Victor Barbereau (1813-1891), celui-ci est issu d’une famille liée au monde du spectacle : son père est directeur de théâtre, son frère et sa soeur sont artistes dramatiques.Desveaux revient sur le sujet au début de 1848, lorsque le conseil municipal a trouvé et voté les crédits. Il demande à Paillard d’actualiser sa proposition, qui comprend notamment la construction de sept loges d’acteur dans le corps abritant le café (à l’ouest), la restauration du foyer et de son ameublement, et la réparation de la salle avec reprise d’une partie de sa décoration. Saint-Léon est de nouveau contacté. Il présente en 1850 ses références, en l’occurrence les décors exécutés pour les théâtres de Rochefort, Tours, Blois et La Châtre ; il a en outre reconstruit la salle du théâtre d’Orléans et de celui de Gray. Il vient à Nevers en janvier 1851 et il envoie un devis le 17 février suivant pour des travaux qui vont bien au-delà d’une simple rénovation puisque la cage de scène et la salle doivent être entièrement refaites. Jugeant la salle « trop étroite et trop écrasée », il propose d’en rehausser le plafond, proposition acceptée.
Le projet a cependant du mal à se concrétiser, perturbé une nouvelle fois par l’histoire de France. En effet le maire explique au peintre le 23 mars 1852 : « La position financière de la ville loin de s’améliorer est devenue plus difficile à cause des derniers événements politiques : on ne peut donc, pour le moment encore, donner suite au projet en question ». Les événements politiques évoqués sont la prise de pouvoir par Louis-Napoléon Bonaparte : le futur Napoléon III avait été élu président de la République le 10 décembre 1848 mais il n’avait pas le droit d’exercer un deuxième mandat. Il fomente donc le 2 décembre 1851 un coup d’Etat qui lui permet de changer la constitution.
Le 19 octobre 1852, enfin, le conseil municipal vote pour la restauration de la salle de spectacle un budget de 40 000 F. Les travaux sont réalisés en 1853, par les entreprises habituellement employées à l’entretien des édifices communaux mais aussi en recourant aux militaires. En effet, le maire écrit le 13 mai une lettre au colonel du 15e régiment d’infanterie de ligne, stationné en ville : « Par suite des nombreux travaux qui s’exécutent à Nevers, les ouvriers menuisiers manquent. L’entrepreneur de la restauration de la salle de spectacle ne peut faute de bras pousser avec activité ses travaux. Pour obvier à cet inconvénient, j’ai pensé qu’il pourrait se trouver des menuisiers dans le bataillon que vous commandez à Nevers. » Il y en a cinq et le maire demande si trois d’entre eux pourraient travailler à la salle de spectacle. Demande bien évidemment acceptée. L’éclairage est modernisé à cette date avec l’installation de brûleurs à gaz mais les quinquets sont conservés pour la scène où le gaz est jugé trop dangereux.
Nous n’avons pas trouvé dans le Journal de la Nièvre de compte-rendu de l’inauguration de la salle mais le numéro du samedi 17 décembre 1853 annonce les spectacles du lendemain dont une « Représentation extraordinaire. La Case de l’Oncle Tom, drame nouveau […] à grand spectacle, décors nouveaux de M. Saint-Léon ». A quoi ressemble le théâtre en ce milieu du 19e siècle ? L’extérieur, qui n’a pas été modifié, est connu par une photographie des années 1890. En plan, au rez-de-chaussée, une porte dans le vestibule conduit aux loges du public et au parterre ; les loges d’acteurs sont sur la scène. Même système de loges pour le public aux 1re et 2e galeries, qui ont un accès direct au foyer ; le café se trouve au 1er étage de l’aile gauche (ouest). Les loges d’avant-scène sont encadrées de colonnes et ornées d’atlantes ou de cariatides.
3) La restauration de 1898-1899
Une dernière campagne de restauration intervient à la toute fin du 19e siècle. Elle est en partie motivée par l’évolution des normes en matière de sécurité (notamment incendie), évolution qui constituera à l’avenir un facteur essentiel dans la décision d’engager des travaux.Ce souci de sécurité en matière d’incendie est particulièrement marqué à cette époque qui, pour la seule décennie 1870 et sans compter les théâtres parisiens brûlés durant la Commune, a vu disparaître en France six établissements à Paris, Lyon, Marseille, Saint-Brieuc et Rouen ; à Lyon, le théâtre des Célestins brûle en 1871 et de nouveau en 1880. L’incendie du Ring à Vienne le 8 décembre 1881 marque les esprits, avec ses 899 victimes. En France, c’est celui du théâtre des Italiens (l’Opéra-Comique ou salle Favart) à Paris le 25 mai 1887 (76 victimes), qui fait bouger les choses : éclairage électrique et rideau de fer deviennent obligatoires dans tous les théâtres. Le 3 octobre 1887, le conseil municipal nomme en son sein une commission chargée d’étudier la sécurité incendie dans le théâtre. Celle-ci préconise de désencombrer la scène, d’où partent la plupart des feux, et d’accroître les dégagements nécessaires pour l’évacuation des gens en ouvrant quatre nouvelles portes : deux dans le vestibule et deux dans les murs latéraux. Deux échelles de secours en fer seront aussi fixées sur le mur latéral est afin donner accès à la cour depuis les galeries du haut. Ces travaux sont réalisés en 1888.
Ils sont toutefois jugés insuffisants, d’autant que la salle a besoin d’une bonne rénovation. La municipalité fait appel à Charles Brazeau (1858-1924), né à Orléans mais architecte à Nevers depuis le début de la décennie 1890. Brazeau rend le 10 avril 1894 un rapport sur les grosses réparations à faire et la restauration de la salle. Il préconise d’une part l’établissement d’un rideau métallique coupe-feu entre la scène et la salle, d’autre part le remplacement des échelles de secours par des escaliers extérieurs métalliques associés à des balcons continus. Pour ces derniers, il s’adresse à la société parisienne Moreau Frères, qui est intervenue au théâtre du Palais Royal et qui envoie des dessins techniques.
Brazeau dessine son premier projet en avril 1894, avec sur chaque mur latéral des balcons extérieurs et en façade un balcon et une marquise. Cette proposition est acceptée par le conseil municipal. Le projet est ensuite, comme pour tout édifice public, soumis au Conseil des Bâtiments civils, à Paris, qui critique le manque de largeur des balcons et la complication des escaliers : « Voit-on des foules s’engouffrant avec précipitation dans ces escaliers de 0m80 de large ? Ce serait un écrasement. » Il demande aussi la suppression de la marquise vitrée « afin d’éviter les accidents qui ne manqueraient pas de se produire si le public effrayé se précipitait de cette terrasse sur le vitrage », et il propose de la remplacer par un porche surmonté d’une terrasse.
Brazeau modifie donc son projet, le 30 avril, en ajoutant vers la scène deux escaliers hors-œuvre et en façade un porche encadré par deux escaliers. Le 2 mai, le rapporteur du Conseil des Bâtiments civils approuve les modifications mais pose la question de l’utilité de ces derniers escaliers, qui lui paraissaient superflus dans la mesure où il y en aura déjà quatre bien dimensionnés et bien situés ; par ailleurs, la façade du bâtiment gagnerait assurément à ce que la terrasse ne soit pas plus large qu’elle. D’où un dernier projet, approuvé par le Conseil de Bâtiments civils le 16 juin 1897.
Entre-temps, le programme a pris de l’ampleur. Comme la façade doit être modifiée par l’adjonction d’un porche, Brazeau dessine plusieurs projets destinés à lui donner un air plus majestueux : il réunit les trois travées centrales sous un même dôme et individualise les deux travées latérales par un fronton et un toit en pavillon ; dans un autre, le dôme est supprimé et remplacé par un toit à brisis et terrasson, l’axe central étant marqué par une statue ; dans une version plus simple, le toit n’est pas touché et le décor se concentre au rez-de-chaussée sur la façade du porche ; la version finale conserve un toit simple mais individualise les deux travées latérales par des frontons interrompus et des inscriptions.
L’auteur d’un l’article publié le 5 novembre 1899 dans Le Journal de la Nièvre évoquera la façade d’origine en indiquant que son architecture « d’une simplicité par trop exagérée n’indiquait qu’imparfaitement la destination de l’édifice qu’elle renfermait ». Ce n’est plus le cas après les travaux et le décor ajouté à l’étage : clés saillantes sur les arcs en plein cintre, pilastres engagés avec leurs chapiteaux, entablement et attique encadré par deux doubles frontons superposés. L’ensemble de la sculpture extérieure est l’œuvre d’un sculpteur local, François Franc. Brazeau lui a fourni les modèles, dont certains sont conservés aux Archives départementales (têtes de personnages animant les chapiteaux).
A l’intérieur, la reprise du décor de la salle va bien au-delà d’une simple rénovation. Le lot 11 Peinture en décors et dorure est confié à des spécialistes. Il est divisé en trois parties. La première, le staff, concerne les garde-corps des galeries et les devants des loges, les cariatides, les frises et les moulures. Le Parisien Léopold Flandrin est le moins cher si bien qu’il obtient le marché. Dans sa première offre, le 17 juin 1898, Flandrin propose de décorer les loges d’entrecolonnes avec « culs-de-lampe et guirlandes, un motif cartouche et enfant au-dessus, 2 feuilles aux angles, moulures ornées au haut et au bas ». Mais le 8 juillet, il envoie un nouveau dessin « en remplacement des motifs à enfants. Il est vrai que dans la plupart des cas les enfants sont toujours mal assis et font un effet un peu gauche, nous pourrions donc avec avantage les remplacer par le cartouche à palmes donc je vous envoie le croquis ». C’est ce cartouche qui sera réalisé. Flandrin modifie aussi le décor envisagé pour le garde-corps du premier balcon. Le 7 février 1899, il écrit : « je me suis aperçu que les ornements que j’avais prévus pour ce balcon feraient très-mauvais effet sur ce profil. Les femmes cariatides paraîtraient cassées ainsi d’ailleurs que les motifs à lyre. Je crois qu’il serait préférable d’adopter un genre de décoration ne présentant pas cet inconvénient, par exemple des masques avec guirlande les reliant […] » Brazeau accepte mais opte finalement pour un motif associant cartouches et trophées d’instruments de musique. Le garde-corps de la troisième galerie est orné de paires d’enfants tenant un cartouche, parfois décoré d’une tête, et surmonté de cariatides. L’architecte en avait donné une esquisse, que Flandrin concrétise.
La deuxième partie du lot 11 est la Peinture décorative, attribuée le 20 décembre 1898 à Emile Vernon. Artiste peintre à Tours, il vient d’achever le plafond et le rideau de scène du théâtre de Châtellerault. A Nevers, il va réaliser le plafond, la frise d’avant-scène et d’autres frises dont une grande au-dessus du rideau. Sans plus de façon, Vernon fixe ses toiles au plafond directement sur celles de son prédécesseur, Saint-Léon. Il achève son chantier rapidement et il est réglé le 9 mai 1899. L’article du Journal de la Nièvre du 5 novembre 1899 décrit son travail : « Le plafond, oeuvre de M. E. Vernon, artiste-peintre, élève de MM. Bouguereau et Truphème, dont on a pu déjà apprécier le talent à Nevers, est composé de quatre groupes de figures allégoriques représentant l’Agriculture et l’Industrie nivernaises, la Poésie, la Musique et les Arts, planant dans un ciel aux colorations riches et harmonieuses. Dans sa Curieuse histoire de Nevers, Raoul Toscan en 1935 en a une autre lecture : « Cet élève de Bouguereau, fidèle aux amours de son maître, installa un peu partout des déesses fessues et poitrinantes qui, le soir de la première, firent se promener, dans ce jardin des Muses, les jumelles complaisantes des vieux messieurs. » Revenons à l’article de 1899 : « A signaler aussi les panneaux formant le complément du plafond du côté de la scène […] L’un de ces panneaux représente la première comédie humaine (Eve tentée par le Serpent) ; une autre figure le premier drame (Caïn s’enfuyant après le meurtre d’Abel) […] » Il ajoute : « Au-dessus du rideau, une frise représentant des enfants jouant avec un masque de tragédie est d’une charmante originalité. »
L’inauguration a lieu le 4 novembre 1899. Le journaliste du Journal de la Nièvre peut s’exclamer : « M. Brazeau, l’architecte directeur des travaux, a fait de notre salle de spectacle une véritable bonbonnière, du meilleur goût et du plus gracieux effet […] »
4) Les restaurations suivantes : 1978-1980 et 2015-2018
Le théâtre, qui est l'objet de travaux de remise en état en 1960 et 1961, continue, malgré sa vétusté, de donner des spectacles dans l'attente de l'ouverture de la maison de la culture (qui n'est effective qu'en juin 971). Ce sont encore des problèmes de sécurité et de non-conformité aux normes qui conduisent à sa fermeture en juillet 1971. Le maire fait appel à deux scénographes, Camille Demangeat et l’architecte Michel Rioualec, pour l'adapter à l’accueil de manifestations musicales, en particulier de musique de chambre. En 1978, la cage de scène est entièrement refaite et la fosse d’orchestre agrandie. L’inauguration officielle a lieu le 26 septembre 1978, avec une jauge de 319 à 351 places.A la demande du maire Pierre Bérégovoy, l’édifice est protégé au titre des Monuments historiques le 17 juin 1993 (par un arrêté qui prend en compte les façades, les toitures et la salle). A noter que le soubassement n’est pas concerné. Il est transformé pour accueillir le PAC des Ouches, structure créée en 1989 pour soutenir les pratiques artistiques et culturelles des jeunes. Un studio de répétition et d’enregistrement est aménagé ainsi que des salles destinées à des expositions, des petits concerts, des répétitions théâtrales, etc. Le PAC fermera en 2019.
En 2004, le conseil municipal demande au cabinet BL Associés d’étudier remise aux normes et restauration intérieure. Il souhaite que le lieu retrouve sa destination de théâtre à l’italienne mais en abaissant la scène et en supprimant sa pente, difficilement compatible avec les spectacles de danse. L’établissement est fermé en 2010. La restauration débute en février 2015 mais l’année suivante, des sondages révèlent la présence au plafond de la toile de Saint-Léon sous celle de Vernon. Les spécialistes préconisent en mars-avril 2017 de déposer les toiles pour les restaurer. Dont acte. Le théâtre ouvre ses portes le samedi 6 octobre 2018.
Historique
La Comédie (4 rue des Quatre Vents) montrant ses limites à la fin du 18e siècle, la Ville de Nevers demande à l'architecte Louis Pierre François Delaporte de rédiger un projet pour une nouvelle salle de spectacle. Le 29 juillet 1805, le préfet valide le principe d'un financement par souscription et le 24 août suivant, la municipalité et l'ingénieur des ponts et chaussées Georges Lebrun approuvent le projet, conçu pour réutiliser l'emplacement du Petit Château. Situé au nord-est du palais ducal, cet hôtel, aussi connu sous le nom de Gloriette, avait été construit par la famille de Gonzague-Nevers : Louis IV (1539-1595) à la fin du 16e siècle puis son fils Charles 1er (1580-1637) au début du 17e siècle. Une société d'actionnaires se constitue le 6 mai 1809, présidée par le préfet Adrien de Plancy et avec pour vice-président le maire Antoine Joseph de Chabrol-Chaméane. Ses statuts sont officialisés le 15 septembre 1810 et le 15 juillet 1811, la Ville lui rétrocède le Petit Château. C'est toutefois un autre projet de théâtre qui est retenu : celui de Lebrun, prévoyant la destruction de la partie occidentale du Petit Château (en très mauvais état), la reprise de son sous-sol avec construction de salles voûtées directement accessibles depuis la rue des Ouches, l'aménagement de la scène au nord (du côté de cette rue) - où sont maintenus une partie des murs - encadrée par deux ailes (avec un café dans celle à l'ouest) et la création d'une salle de 590 places (dotée de galeries), dont le vestibule ouvre sur une promenade au sud. Les démolitions débutent en mai-juin 1809, sous la surveillance de Jacques Bastonneau, entrepreneur de la charpente nommé inspecteur des travaux. Repoussée à la fin de la guerre contre l'Autriche et le Royaume-Uni (5e Coalition), la cérémonie de pose de la première pierre (rappelée par une plaque commémorative) a lieu le 25 novembre, alors que les voûtes de l'étage de soubassement sont bien avancées ou achevées. Celle de la pose de la première ardoise de la couverture a lieu le 25 septembre suivant. Toutefois, les fonds venant à manquer, le chantier s'arrête alors que seul le gros oeuvre est réalisé. Le peintre décorateur Bernardin Lago, qui avait envoyé le 4 octobre 1809 une proposition pour le décor de la salle, établit le 27 avril 1811 un devis estimatif de près de 37 000 livres pour l'achèvement du théâtre. La société n'ayant pas respecté son engagement de construire l'édifice dans le temps imparti, ses membres se voient en 1813 contraints d'abandonner leurs actions à la Ville. Le préfet Fiévée trouve des crédits pour régler les ouvriers et relancer le chantier mais ses efforts sont contrecarrés par les événements de 1814 et 1815 (abdication de Napoléon 1er, épisode des Cent Jours et occupation d'une partie de la France - dont Nevers - par les vainqueurs). Les aménagements intérieurs sont réalisés en 1822 et 1823 sous la direction de l'architecte voyer Porteurrat, assisté de Lago chargé du décor et de la machinerie. La salle est finalement inaugurée le 6 janvier 1824.
Si un escalier reliant le niveau du théâtre à la rue des Ouches est créé en 1843, il est question l'année suivante de travaux dans l'édifice même. L'architecte voyer Hippolyte Paillard présente un projet de restauration, actualisé en 1848, qui concerne la salle, le foyer et les loges. La Ville choisit le peintre décorateur Saint-Léon (de son vrai nom Antoine Victor Barbereau), qui propose en 1851 de refaire entièrement l'intérieur (seule la cage de scène sera conservée). Les travaux ne se font qu'en 1853 (Ils seront provisoirement reçus le 12 janvier 1854), dans un contexte de pénurie d'ouvriers obligeant le maire à se tourner vers l'armée pour obtenir menuisiers et peintres, et l'éclairage au gaz est installé dans la salle (il faudra attendre 1874 pour la scène). La sécurité incendie est à l'origine de nouveaux travaux en 1888 avec, d'une part, l'aménagement d'un magasin à décors en soubassement côté cour pour désencombrer la scène et, d'autre part, la création de nouvelles issues de secours : ouverture de nouvelles portes et mise en place d'échelles métalliques contre les murs gouttereaux, modification des escaliers donnant accès au foyer, etc. Ces aménagements ne sont pas suffisants si bien que la Ville commande une étude à l'architecte Charles Brazeau. Ce dernier rend le 10 avril 1894 un rapport comprenant, outre la restauration de la salle, des mesures de sécurité incendie : l'établissement d’un rideau de fer entre la scène et la salle, la construction de cheminements extérieurs (balcons et escaliers métalliques) et d'une marquise. Les plans sont soumis en 1897 au Conseil des Bâtiments civils et modifiés en fonction des observations de Guadet, avec la création d'escaliers hors-oeuvre vers la scène et le remplacement de la marquise par un porche surmonté d'une terrasse. Les travaux sont réalisés en 1898 et 1899, et l’inauguration a lieu le 4 novembre 1899.
La terrasse est refaite en 1913 et l'électricité installée à la fin de la Première Guerre mondiale (l'installation sera refaite en 1930). Le théâtre est touché lors du bombardement du 16 juillet 1944 (sans que l'on connaisse l'étendue des dégâts). Il est fermé le 7 juillet 1971 du fait de problèmes de sécurité. Sa restauration est confiée à deux scénographes, Camille Demangeat (de Villeneuve-sur-Yonne) et l’architecte Michel Rioualec (à Sceaux), chargé de l'adapter pour qu'il puisse accueillir des manifestations musicales (musique de chambre et autres). La cage de scène est entièrement refaite et la fosse d'orchestre agrandie (elle peut accueillir 20 à 25 musiciens). Débutant fin mai 1978, les travaux sont reçus en septembre 1980 et le théâtre, dont la jauge varie de 319 à 351 places, est inauguré le 26 septembre. Les façades sont rénovées en 1984 et le soubassement accueille en 1989 le PAC des Ouches, structure destinée à soutenir les pratiques artistiques et culturelles des jeunes, d'où l'aménagement des pièces en salles de concert, de répétition et d'exposition (ce lieu ferme en 2019). Le théâtre est protégé au titre des Monuments historiques le 17 juin 1993. Il ferme en 2010 pour raison de sécurité. Une étude avait été commandée en septembre 2004 au cabinet BL Associés, représenté par l'architecte Jacques Lichnerowicz, pour la restauration du site qui doit retrouver sa vocation initiale. Le chantier, qui ouvre en février 2015, est placé sous la direction de l’architecte et urbaniste Patrice Warnant. Il est retardé par la découverte de la toile de Saint-Léon sous celle de Vernon, toutes deux sont déposées en 2017. La scène est abaissée de 30 cm et rebâtie à neuf en béton armé, à plat ; l’équipement est modernisé ; les réfections touchent le foyer, la salle (revêtements muraux et sol), les loges d’acteurs. Le théâtre ouvre finalement ses portes le samedi 6 octobre 2018, avec une jauge de 334 places. En 2024, il est animé par une équipe de six personnes et accueille en moyenne des spectacles trois jours par semaine.
- 1er quart 19e siècle
- 3e quart 19e siècle
- 4e quart 19e siècle
- 4e quart 20e siècle
- 1er quart 21e siècle
Date de naissance : 11/05/1750 - date de décès : 03/03/1817
Gardeur-Lebrun, Georges Auguste Philippe (1750-1817) dit Lebrun, Georges. Fils d'un ingénieur militaire (ingénieur de la ville de Metz de 1752 à 1786), Georges Lebrun est né à Metz le 11 mai 1750. Entré dans le corps des ponts et chaussées en 1776, il se met en congés l'année suivante pour participer à la guerre d'indépendance américaine, comme capitaine du Génie. Il fait ensuite carrière comme ingénieur des ponts et chaussées et s'installe à Nevers en 1795. Lorsqu'il prend sa retraite en 1814, il est ingénieur en chef du département de la Nièvre. Il décède à Nevers le 3 mars 1817.(Sources : https://fr.wikipedia.org/wiki/Georges_Gardeur-Lebrun et https://www.leonore.archives-nationales.culture.gouv.fr/ui/notice/154332)
Porteurrat. Architecte de la Ville de Nevers ("voyer municipal") dans les années 1820.
- date de décès : 1824
Lago, Bernardin. Peintre-décorateur né au 18e siècle à Castelletto Stura (province de Coni, Italie) et mort à Coni en 1824. Auteur de décors de théâtre à Mons et Bruxelles en Belgique, Avesnes, Bourges et Nevers (en 1823).
Date de naissance : 18/07/1801 - date de décès : 28/12/1866
Paillard, Pierre Hippolyte (1801-1866). Architecte formé à l’Ecole nationale supérieure des Beaux-Arts. Architecte diocésain, architecte de la Ville de Nevers et architecte départemental de la Nièvre. Prend sa retraite le 1er janvier 1864. (Sources : https://www.musee-orsay.fr/fr/ressources/repertoire-artistes-personnalites/pierre-paillard-96146 et https://gw.geneanet.org/yanidom?n=paillard&oc=&p=pierre+hippolyte)
Date de naissance : 1858 - date de décès : 1924
Brazeau, Charles (1858-1924). Né à Orléans en 1858. Architecte à Nevers (14 rue Saint-Gildard) de 1893 à 1924. Ses papiers personnels et professionnels sont conservés aux Archives départementales de la Nièvre (11 J 1-83).(Source : Linsolas, Jean-Marie. <span style="font-style:italic;">La restauration du théâtre de Nevers à la fin du XIXe siècle</span>. 2016.)
Date de naissance : 12/06/1905 - date de décès : 07/02/1985
Demangeat, Camille (1905-1985). Architecte de formation. Décorateur et scénographe d'équipement. Chef machiniste au théâtre Pigalle et au théâtre de la Renaissance, à Paris. Travaille avec Louis Jouvet puis au Théâtre national populaire (TNP), dont il démissionne en 1954. Fonde le Bureau d'Etudes scénographiques. Travaille avec Michel Rioualec à la restauration du théâtre de Sens en 1978. Demeure alors à Beaujard, commune de Villeneuve-sur-Yonne. (Sources : https://data.bnf.fr/fr/14676203/camille_demangeat/ et Dubouilh, Sandrine. Une architecture pour le théâtre populaire 1870-1970. Paris : AS Sceno+, 2012, p. 129-131.)
Rioulaec, Michel. Architecte, scénographe. Travaille avec Camille Demangeat à la restauration du théâtre de Sens en 1978, de celui de Nevers en 1979-1980. Alors domicilié au 10 rue Pierre Curie, à Sceaux
Warnant, Patrice. Architecte et urbaniste, fondateur en 1995 de l’atelier ABWw (15 rue du Fer, Nevers). Architecte à Nevers depuis 1980.
Description
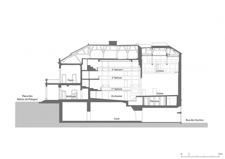
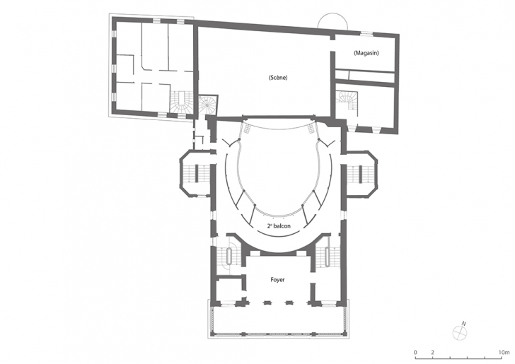
La façade antérieure est en pierre de taille, les autres élévations en moellons calcaires enduits. Le bâtiment comprend un étage de soubassement, dont la partie centrale est voûtée en berceau plein cintre (la salle principale s'achevant par un cul-de-four), accessible depuis la rue des Ouches qu'un escalier extérieur droit en maçonnerie relie au niveau du théâtre. Le rez-de-chaussée surélevé est surmonté de trois étages carrés (les trois galeries de la salle), desservis par des escaliers tournants à retours avec jour en maçonnerie (deux dans oeuvre vers le vestibule et deux hors oeuvre vers la scène), et d'un comble à surcroît. La salle a un plan en U et, outre ses galeries, elle comporte des loges d'avant-scène et des loges de fond (ou d'entre-colonnes). La scène a un dessous ; les différents niveaux de la cage de scène et les passerelles sont reliés par un escalier en vis métallique. L'aile occidentale (côté jardin) est réservée aux huit loges d'acteur, pouvant accueillir 15 à 20 personnes (au rez-de-chaussée et à l'étage carré, desservi par un escalier à retours en charpente) ; l'aile orientale (côté cour) accueille au soubassement un magasin et un studio d'enregistrement, au rez-de-chaussée un magasin, à l'étage l'administration distribuée par un escalier en vis en charpente. Au sud, le vestibule est surmonté du foyer du public, qui donne sur la terrasse au-dessus du porche. Des toits à longs pans et croupes protègent les corps de bâtiment ; celui sur le corps principal est à longs pans brisés, avec croupe brisée sur le foyer du public au sud, demi-croupe sur la scène au nord. Les deux cages d'escalier hors oeuvre sont coiffées d'un toit polygonal, l'échauguette sur le rue des Ouches d'un toit conique.
- calcaire
- moellon
- pierre de taille
- enduit
- ardoise
- étage de soubassement
- rez-de-chaussée surélevé
- 3 étages carrés
- comble à surcroît
- voûte en berceau plein-cintre
- cul-de-four
- élévation ordonnancée
- toit à longs pans brisés, croupe brisée
- toit à longs pans, croupe
- demi-croupe
- toit conique
- croupe polygonale
- escalier dans-oeuvre, escalier tournant à retours avec jour, en maçonnerie en charpente
- escalier dans-oeuvre, escalier en vis sans jour, en charpente en charpente métallique
- escalier de distribution extérieur, escalier droit, en maçonnerie
- restauré
Source(s) documentaire(s)
-
Archives départementales de la Nièvre : 11 J Fonds Charles Brazeau, architecte à Nevers. 1893-1924.
Archives départementales de la Nièvre : 11 J Fonds Charles Brazeau, architecte à Nevers. 1893-1924.Lieu de conservation : Archives départementales de la Nièvre, Nevers - Cote du document : 11 J -
Archives municipales de Nevers : 4 M 203/33-37 Petit théâtre. An II-1947.
Archives municipales de Nevers : 4 M 203/33-37 Petit théâtre. An II-1947.- 4 M 203/33 Construction d’une salle de spectacle dans le local communal du petit château : actes administratifs, règlement, actions nominatives, devis, factures, plan, correspondance. An II-1811.- 4 M 203/34 Construction d’une salle de spectacle : société des actionnaires, registre des délibérations (1809-1811), liste des actionnaires : registre (1809). 1809-1811.- 4 M 203/35 Construction d’une salle de spectacle : mémoires de travaux, entretien, devis, factures, croquis, affiche, correspondance. 1812-1829.- 4 M 203/36 Salle de spectacle : inventaire des décors et objets accessoires et mobiliers, chauffage, restauration, éclairage, bail du local à café, réparation des décors, reconstruction d’escalier, ameublement du foyer. 1833-1869.- 4 M 203/37 Eclairage électrique, acquisition de décors, travaux de réfection et appropriation, inventaire des meubles, fourniture de mobilier de scène, chauffage central, location du café, concession du théâtre. 1822-1947.Lieu de conservation : Archives municipales, Nevers - Cote du document : 4 M 203/33-37 -
Archives municipales de Nevers : 5 M 204/5 Edifices communaux. 1865-1955.
Archives municipales de Nevers : 5 M 204/5 Edifices communaux. 1865-1955.Lieu de conservation : Archives municipales, Nevers - Cote du document : 5 M 204/5 -
Archives municipales de Nevers : 265 W 22 Théâtre municipal, rénovation, réaménagement, mise en conformité, lots 1-9. 1976-1983.
Archives municipales de Nevers : 265 W 22 Théâtre municipal, rénovation, réaménagement, mise en conformité, lots 1-9. 1976-1983.Lieu de conservation : Archives municipales, Nevers - Cote du document : 265 W 22 -
Archives municipales de Nevers : 557 W 108-112 Petit théâtre, restauration. 2002-2014.
Archives municipales de Nevers : 557 W 108-112 Petit théâtre, restauration. 2002-2014.Lieu de conservation : Archives municipales, Nevers - Cote du document : 557 W 108-112 -
Archives municipales de Nevers : 646 W 339-347 Théâtre municipal. 1928-1985.
Archives municipales de Nevers : 646 W 339-347 Théâtre municipal. 1928-1985.Liasse 646 W 339 éliminée après la consultation.Lieu de conservation : Archives municipales, Nevers - Cote du document : 646 W 339-347 -
Archives municipales de Nevers : non coté Maison de la culture, maison des sports, construction. 1959-1972.
Archives municipales de Nevers : non coté Maison de la culture, maison des sports, construction. 1959-1972.Lieu de conservation : Archives municipales, Nevers - Cote du document : non coté -
Théâtre municipal de Nevers [dossier technique]. Mai 2024.
Théâtre municipal de Nevers [dossier technique]. Nevers : Théâtre municipal, mai 2024. 9 p. : ill. ; 30 cm.
-
Veüe du Palais du Duc de Nevers [et du Petit Château]. 1612.
Veüe du Palais du Duc de Nevers [et du Petit Château]. Dessin (mine de plomb, lavis), par Etienne Martellange. 1612. Document accessible en ligne : https://gallica.bnf.fr/ark:/12148/btv1b6937454s.itemLieu de conservation : Bibliothèque nationale, Paris -
Plan de la ville de Nevers levé en 1759. 1843.
Plan de la ville de Nevers levé en 1759. Dessin (plume, lavis), par le conducteur des ponts et chaussées Gallois. 1843. 110 x 149,5 cm, éch. de 90 toises. Nota dans le cartouche : "D'après les brouillons trouvés dans les archives des Ponts et Chaussées, ce Plan aurait été commencé en 1750 et terminé en 1759".Lieu de conservation : Musée de la faïence et des beaux-arts, Nevers - Cote du document : NP 716 -
[Plan d’une cave rue des Ouches]. S.d. [1808].
[Plan d’une cave rue des Ouches]. Dessin (plume), s.n. S.d. [1808]. 22,5 x 17 cm, sans éch.Lieu de conservation : Archives municipales, Nevers - Cote du document : 4 M 203/35 -
[Projet de salle de spectacle : plans et coupe]. S.d. [1809 ?].
[Projet de salle de spectacle : plans et coupe]. Dessin (plume, crayon de papier), s.n. [par l’ingénieur Lebrun ?]. S.d. [1809 ?]. - N° 1er Plan des fondements. 66,5 x 52,5 cm, éch. de 36 pieds [pour 18 cm]. - N° 2ème Plan du rez de chaussée. 66 x 79 cm, éch. de 6 toises [pour 18 cm]. - N° 3 Plan des premières loges et des parties lattérales pour le logement des acteurs et pour le magasin des décorations. 63,5 x 72,5 cm, sans éch. - N° 4 Coupe de l’escalier qui communique de la rue des Ouches à la cour de la salle. Dessin (crayon de papier). 37,5 x 53 cm, sans éch. - N° 5 Coupe sur la longueur de la salle de spectacle à partir du bas des voûtes jusqu’au deuxième étage. Dessin (plume). 54,5 x 51,5 cm, sans éch. Indication en haut à droite : Profil de la charpente du bâtiment latéral pour servir de magasin de décoration.Lieu de conservation : Archives municipales, Nevers - Cote du document : 4 M 203/37 -
Plan de l’emplacement du petit château de la ville de Nevers [...] 20 juillet 1810.
Plan de l’emplacement du petit château de la ville de Nevers [...] Dessin (plume), par Jacques Bastonneau [?]. 20 juillet 1810. 58,5 x 42 cm, éch. approximative 1/130.Lieu de conservation : Archives municipales, Nevers - Cote du document : 4 M 203/37 -
[Plan au rez-de-chaussée]. S.d. [décennie 1820 ?].
[Plan au rez-de-chaussée]. Dessin (tirage bleu, gouache ?), s.n. S.d. [décennie 1820 ?]. 43,5 x 38 cm, sans éch. Retirage d’un plan de 1822 environ : [Croquis de plan intérieur de la salle de spectacle, avec une coupe donnant la pente du parterre et l'élévation d'une loge d'avant-scène].Lieu de conservation : Archives départementales de la Nièvre, Nevers - Cote du document : 11 J 68 -
[Croquis de plan intérieur de la salle de spectacle, avec une coupe donnant la pente du parterre et l'élévation d'une loge d'avant-scène]. S.d. [vers 1822].
[Croquis de plan intérieur de la salle de spectacle, avec une coupe donnant la pente du parterre et l'élévation d'une loge d'avant-scène]. Dessin (crayon de papier), s.n. S.d. [vers 1822]. 39,5 x 29 cm, sans éch.Lieu de conservation : Archives municipales, Nevers - Cote du document : 4 M 203/35 -
Plan de la salle des spectacles. 23 octobre 1822.
Plan de la salle des spectacles. Dessin (plume), par le voyer municipal Porteurrat. Nevers le 23 octobre 1822. Sans éch. - N° 1er. Plan du rez-de-chaussée de la salle des spectacles. 66 x 49,5 cm. - N° 2. Plan des 1ères loges, Coupe de la salle sur la ligne AB du plan N° 1er [et] Elévation du Manteau d'Arlequin. 66 x 50 cm.Lieu de conservation : Archives municipales, Nevers - Cote du document : 4 M 203/37 -
Section C dite du Croux. Feuille unique [plan cadastral napoléonien]. S.d. [1835].
Section C dite du Croux. Feuille unique [plan cadastral napoléonien]. Dessin (plume, lavis), s.n. [par le géomètre du cadastre Hippolyte Bec]. S.d. [1835]. 87,5 x 98 cm, 1/1 250.Lieu de conservation : Archives municipales, Nevers - Cote du document : G 59/9 -
Projet de restauration de la salle de spectacle de la ville de Nevers. 9 avril 1851.
Projet de restauration de la salle de spectacle de la ville de Nevers. Dessin sur calque collé sur papier (plume, lavis), par l’architecte de la ville Paillard. Nevers le 9 avril 1851.- Plan du rez-de-chaussée. 56 x 44,5 cm, 1/100. - Plan du 1er étage. 55 x 44 cm, sans éch. - Plan du 2ème étage. 54 x 43 cm, sans éch. - Coupe transversale [et] Coupe longitudinale. 55,5 x 45 cm, sans éch.Lieu de conservation : Archives municipales, Nevers - Cote du document : 4 M 203/37 -
Plan du rez-de-chaussée et du 1er étage du logement du concierge du théâtre de Nevers. S.d. [1863].
Plan du rez-de-chaussée et du 1er étage du logement du concierge du théâtre de Nevers. Dessin sur calque (plume), s.n. [par l'architecte Paillard]. S.d. [1863]. 30 x 27,5 cm, sans éch. [1/100]. Mauvais état : calque coupé en 3 morceaux.Lieu de conservation : Archives municipales, Nevers - Cote du document : 4 M 203/36 -
Théâtre du Palais Royal. M Sédille, architecte. S.d. [décennie 1880].
Théâtre du Palais Royal. M Sédille, architecte. Dessin (tirage bleu), s.n. [par Paul Sédille]. S.d. [décennie 1880].- Ensemble et détails de la marquise au-dessus du vestibule. 64,5 x 96,5 cm, 1/10 et 1/5.- Galerie du 1er étage. 30,5 x 170 cm, 1/20.- Galerie des 2e et 3e étages 30,5 x 170 cm, sans éch. [1/20]- Galerie du 4ème étage. 28,5 x 169,5 cm, sans éch. [1/20]- Elévation sur la rue Montpensier [et] Coupe suivant AB. 34 x 54,5 cm, 1/100.- Elévation des galeries vitrées sur le rue Montpensier et escaliers d’accès. Dessin (tirage, lavis). 101,5 x 69,5 cm, 1/20.- Escalier allant de la 1ère galerie à la passerelle de la marquise. 66 x 102 cm, 1/10.Lieu de conservation : Archives départementales de la Nièvre, Nevers - Cote du document : 11 J 81 -
Etablissement d’un sous-sol sous le magasin de décors. 10 janvier 1888.
Etablissement d’un sous-sol sous le magasin de décors. Dessin sur calicot (plume, lavis), par le voyer municipal Michel. Nevers le 10 janvier 1888. 42,5 x 61,5 cm, 1/50.Lieu de conservation : Archives municipales, Nevers - Cote du document : 4 M 203/37 -
[Projet avec marquise, balcons et escaliers extérieurs]. S.d. [1894].
[Projet avec marquise, balcons et escaliers extérieurs]. Dessin sur calque (crayon de papier), s.n. [par Brazeau]. S.d. [1894]. Sans éch.- Plan du 1er étage (Foyer et 2es). 60 x 36 cm. - Balcons à hauteur des 3es galeries (à hauteur des 1res même plan). 48,5 x 35 cm.Lieu de conservation : Archives départementales de la Nièvre, Nevers - Cote du document : 1 J 68 -
[Projet avec marquise, balcons et escaliers extérieurs : élévations antérieure et latérale droite]. S.d. [1894].
[Projet avec marquise, balcons et escaliers extérieurs : élévations antérieure et latérale droite]. Dessin (crayon de papier), s.n. [par Brazeau]. S.d. [1894]. 40 x 57 cm, sans éch.Lieu de conservation : Archives départementales de la Nièvre, Nevers - Cote du document : 11 J 68 -
Ville de Nevers. Théâtre. Projet de balcons et escaliers extérieurs et de marquise. Façade latérale. 10 avril 1894.
Ville de Nevers. Théâtre. Projet de balcons et escaliers extérieurs et de marquise. Façade latérale. Dessin (plume), s.n. [par Brazeau]. Nevers le 10 avril 1894. 47 x 62 cm, 1/50.Lieu de conservation : Archives départementales de la Nièvre, Nevers - Cote du document : 11 J 68 -
[Projet de façade avec marquise et escaliers latéraux]. 10 avril 1894 modifié le 20 janvier 1897.
[Projet de façade avec marquise et escaliers latéraux]. Dessin sur calque (plume), s.n. [par Brazeau]. 10 avril 1894 modifié le 20 janvier 1897. 43 x 56,5 cm, 1/50.Lieu de conservation : Archives départementales de la Nièvre, Nevers - Cote du document : 11 J 68 -
Théâtre. Projet de marquise vitrée et d’escaliers extérieurs. 20 janvier 1897.
Théâtre. Projet de marquise vitrée et d’escaliers extérieurs. Dessin (crayon de papier, crayon de couleur), s.n. [par Brazeau]. 20 janvier 1897. 1/100.- Plan du Rez-de-chaussée. 63 x 42 cm. - Plan au niveau des Premières. 63,5 x 40 cm. - Plan à hauteur des Deuxièmes et Foyer. 63,5 x 40 cm. Existe aussi sous forme de croquis : 57,5 x 41,5 cm, sans éch. - Plan à hauteur des Troisièmes. 66 x 46 cm. - Façade latérale. Dessin (plume). 50 x 68 cm, 1/50.Lieu de conservation : Archives départementales de la Nièvre, Nevers - Cote du document : 11 J 68 -
Restauration du Théâtre. Projet d’escaliers de dégagement en cas d’incendie. 30 avril 1897.
Restauration du Théâtre. Projet d’escaliers de dégagement en cas d’incendie. Dessin sur calque (crayon de papier, crayon de couleur), par l’architecte Brazeau. 30 avril 1897. 1/100.- Plan du Rez-de-chaussée. 54,5 x 36 cm. - Plan au niveau des Premières. 54 x 35,5 cm. - Plan des 2èmes et Foyer. 54 x 35 cm. - Plan à hauteur des Troisièmes. 53,5 x 35,5 cm.Lieu de conservation : Archives départementales de la Nièvre, Nevers - Cote du document : 11 J 68 -
Théâtre. Projet d’escaliers de dégagement et de terrasse en avant de la façade. [Mai-juin] 1897.
Théâtre. Projet d’escaliers de dégagement et de terrasse en avant de la façade. Dessin sur calque (plume), par l’architecte Brazeau. [Mai-juin] 1897. 1/100.- Plan du Rez-de-chaussée. 68 x 43 cm. - Plan au niveau des Premières. Dessin sur calque (plume, crayon de papier). 58 x 42 cm. - Plan des Deuxièmes et du Foyer. 58,5 x 42 cm. - Plan à hauteur des Troisièmes. 58,5 x 42 cm. Existe aussi sous forme de tirage bleu : 58,5 x 39 cm.Lieu de conservation : Archives départementales de la Nièvre, Nevers - Cote du document : 11 J 68 -
Théâtre. Projet de construction d’escaliers latéraux et d’une terrasse en avant de la façade. [Mai-juin] 1897.
Théâtre. Projet de construction d’escaliers latéraux et d’une terrasse en avant de la façade. Dessin sur calque (plume), par Brazeau. [Mai-juin] 1897. 47 x 66,5 cm, 1/50.- Façade principale. - Façade latérale [droite].Lieu de conservation : Archives départementales de la Nièvre, Nevers - Cote du document : 11 J 68 -
[Projet de façade avec porche, encadré par deux pavillons, et dôme carré]. S.d. [fin 1897 ou début 1898].
[Projet de façade avec porche, encadré par deux pavillons, et dôme carré]. Dessin sur calque (plume), s.n. [par Brazeau]. S.d. [fin 1897 ou début 1898]. 48 x 65 cm, sans éch. Existe aussi sous forme d'esquisse au crayon de papier.Lieu de conservation : Archives départementales de la Nièvre, Nevers - Cote du document : 11 J 68 -
[Profil de toiture]. S.d. [1898 ?].
[Profil de toiture]. Dessin sur calque (crayon de papier), s.n. [par Brazeau ?]. S.d. [1898 ?]. 32 x 40 cm, sans éch.Lieu de conservation : Archives départementales de la Nièvre, Nevers - Cote du document : 11 J 68 -
Ville de Nevers. Restauration du Théâtre. Façade principale [projet de façade avec porche, encadré par deux pavillons, et toit brisé]. 1er avril 1898.
Ville de Nevers. Restauration du Théâtre. Façade principale [projet de façade avec porche, encadré par deux pavillons, et toit brisé]. Dessin sur calque (plume), par Brazeau. Nevers le 1er avril 1898. 46 x 65 cm, 1/50.Lieu de conservation : Archives départementales de la Nièvre, Nevers - Cote du document : 1 J 68 -
Théâtre de Nevers. Projet de restauration de la façade p[rinci]pale [plans]. 1er avril 1898.
Théâtre de Nevers. Projet de restauration de la façade p[rinci]pale [plans]. Dessin sur calque (plume), par Brazeau. Nevers le 1er avril 1898. 29 x 43 cm, 1/50.- Plan du rez-de-ch[auss]ée. - Plan du 1er étage. Plans reproduits en réduction en tirage bleu : Théâtre de Nevers. Projet de restauration de la façade principale. Plan du rez-de-ch[auss]ée [et] Plan du 1er étage. Dessin (tirage bleu), par Brazeau. Nevers le 1er avril 1898. 61 x 44 cm, 1/50.Lieu de conservation : Archives départementales de la Nièvre, Nevers - Cote du document : 11 J 68 -
Nevers. Théâtre. Escaliers latéraux [plan et élévation]. 4 avril 1898.
Nevers. Théâtre. Escaliers latéraux [plan et élévation]. Dessin sur calque (crayon de papier, crayon de couleur, plume), par Brazeau. Nevers le 4 avril 1898. 43,5 x 56 cm, 1/20 (plan) et 1/50 (élévation).Lieu de conservation : Archives départementales de la Nièvre, Nevers - Cote du document : 11 J 68 -
Ville de Nevers. Théâtre. Projet de restauration de la façade principale. Elévation [avec porche et toit brisé]. Septembre 1898.
Ville de Nevers. Théâtre. Projet de restauration de la façade principale. Elévation [avec porche et toit brisé]. Dessin sur calque (plume), par Brazeau. Nevers septembre 1898. 46 x 66,5 cm, 1/50.Lieu de conservation : Archives départementales de la Nièvre, Nevers - Cote du document : 11 J 68 -
Théâtre de Nevers. Détails de la façade (partie supérieure). 10 décembre 1898.
Théâtre de Nevers. Détails de la façade (partie supérieure). Dessin sur calque (plume), par l’architecte Brazeau. Nevers le 10 décembre 1898. 46 x 53 cm, 1/20.Lieu de conservation : Archives départementales de la Nièvre, Nevers - Cote du document : 11 J 68 -
Théâtre de Nevers. Détails de la terrasse [plan, coupe et élévation]. 14 décembre 1898.
Théâtre de Nevers. Détails de la terrasse [plan, coupe et élévation]. Dessin sur calque (plume), par Brazeau. Nevers le 14 décembre 1898. 73,5 x 52 cm, 1/200.Lieu de conservation : Archives départementales de la Nièvre, Nevers - Cote du document : 11 J 68 -
[Elévation latérale droite du porche]. Dessin (plume), s.n. [par Brazeau]. S.d. [14 décembre 1898].
[Elévation latérale droite du porche]. Dessin (plume), s.n. [par Brazeau]. S.d. [14 décembre 1898]. 46 x 68 cm, sans éch.Lieu de conservation : Archives départementales de la Nièvre, Nevers - Cote du document : 11 J 68 -
[Croquis de plan et coupe de l’escalier pour le concierge]. S.d. [1898 ?].
[Croquis de plan et coupe de l’escalier pour le concierge]. Dessin (plume), s.n. [par Brazeau]. S.d. [1898 ?]. 31 x 20 cm, sans éch.Lieu de conservation : Archives départementales de la Nièvre, Nevers - Cote du document : 11 J 68 -
Théâtre de Nevers [implantation des loges et des sièges]. 18 janvier 1899.
Théâtre de Nevers [implantation des loges et des sièges]. Dessin sur calque (plume), par Brazeau. Nevers 18 janvier 1899. 1/50.- Rez-de-ch[auss]ée. 41 x 44,5 cm. Existe sous forme de brouillon - Premières. 42,5 x 36 cm. Existe sous forme de brouillonLieu de conservation : Archives départementales de la Nièvre, Nevers - Cote du document : 11 J 68 -
Théâtre de Nevers [plan de location des places]. S.d. [4e quart 19e siècle].
Théâtre de Nevers [plan de location des places]. Dessin (plume), par A. Bouveault. S.d. [4e quart 19e siècle]. 47,5 x 62,5 cm, sans éch.Lieu de conservation : Archives départementales de la Nièvre, Nevers - Cote du document : 54 J 208 -
[Vue d'ensemble du théâtre avant sa transformation par Brazeau]. S.d. [4e quart 19e siècle, avant 1898].
[Vue d'ensemble du théâtre avant sa transformation par Brazeau]. Photographie, s.n. S.d. [4e quart 19e siècle, avant 1898]. Tirage N&B 10 x 15 cm collé sur carton 18 x 24 cm.Lieu de conservation : Archives départementales de la Nièvre, Nevers - Cote du document : 1 J 49 -
[Vue d'ensemble du théâtre après sa transformation par Brazeau]. S.d. [1er quart 20e siècle].
[Vue d'ensemble du théâtre après sa transformation par Brazeau]. Photographie, s.n. S.d. [1er quart 20e siècle]. Tirage N&B 10 x 15 cm collé sur carton 18 x 24 cm.Lieu de conservation : Archives départementales de la Nièvre, Nevers - Cote du document : 1 J 49 -
Services techniques. Théâtre. Projet d’éclairage électrique. 10 février 1930.
Services techniques. Théâtre. Projet d’éclairage électrique. Dessin (tirage, lavis), par le directeur des Services techniques [Calos ?]. Nevers le 10 février 1930. 1/100.- N° 1. Plan des sous-sols. 42,5 x 62,5 cm. - N° 2. Plan du rez-de-chaussée. 44,5 x 42,5 cm. - N° 3. Plan du 1er étage. 44,5 x 42 cm. - N° 4. Plan des 1ères, 2èmes et 3èmes galeries. 35 x 71,5 cm.Lieu de conservation : Archives municipales, Nevers - Cote du document : 4 M 203/37 -
Petit théâtre [vue de la salle de spectacle depuis la scène]. 1935.
Petit théâtre [vue de la salle de spectacle depuis la scène]. Photographie, par Pierre Premery. 1935. Négatif N&B.Lieu de conservation : Archives municipales, Nevers - Cote du document : 9 Fi 124 -
Ville de Nevers. Théâtre municipal [plans état actuel et projet de parterre et d'orchestre]. 1960.
Ville de Nevers. Théâtre municipal [plans état actuel et projet de parterre et d'orchestre]. Dessin (tirage à l'ammoniaque), s.n. 1960. 1/50.- Rez de chaussée. Etat actuel. Mars 1960. 84,5 x 69,5 cm. - 1er étage. Etat actuel. Avril 1960. 84 x 69 cm. - Orchestre et parterre. Projet. Avril 1960. 61,5 x 69 cm. 166 fauteuils, 10 strapontinsLiasse 646 W 339 éliminée après la consultation.Lieu de conservation : Archives municipales, Nevers - Cote du document : 646 W 339 -
Ville de Nevers. Théâtre municipal. Mise en conformité. 1976.
Ville de Nevers. Théâtre municipal. Mise en conformité. Dessin (tirage), par Camille Demangeat et Michel Rioualec. 1976. 1/50. Mention : DOE [dossier des ouvrages exécutés].- 1A. Plan des dessous de scène. Coupe transversale sur baie scène. Coupe longitudinale partielle. Mai 1976, modifié le 20 août 1976, 4 juillet 1977, 2 janvier 1981. 77,5 x 122,5 cm. - 2A. Plan de la scène. Plan de la salle. Tour d’incendie. Mai 1976, modifié le 20 août 1976, 2 janvier 1981. 79 x 122,5 cm. - 3A. Foyer du public. Plan du 1er balcon. Tour d’incendie. Vide de scène. Mai 1976, modifié le 20 août 1976, 4 juillet 1977, 2 janvier 1981. 78,5 x 122 cm. - 4A. Vide du foyer. Plan du 2ème balcon. Tour d’incendie. Vide de scène. 20 août 1976, modifié le 4 juillet 1977, 2 janvier 1981. 78 x 122 cm. - 5A. Plan du 3ème balcon. Passerelle de service de scène. Tour d’incendie. 20 août 1976, modifié le 4 juillet 1977, 2 janvier 1981. 79 x 147,5 cm. - 6B. Coupe longitudinale. 20 août 1976, modifié le 4 juillet 1977, 2 janvier 1981. 74 x 156 cm. - 7A. Chaufferie. Plan. Coupe longitudinale. 20 mai 1978, modifié le 2 janvier 1981. 48 x 110,5 cm.Lieu de conservation : Archives municipales, Nevers - Cote du document : 646 W 344 -
Ville de Nevers. Théâtre municipal. Chauffage central. Octobre 1978.
Ville de Nevers. Théâtre municipal. Chauffage central. Dessin (tirage à l'ammoniaque), par Camille Demangeat et Michel Rioualec. Octobre 1978. 71 x 11 cm, 1/50.- SC 2. Implantation. Plan de la scène. Loges. - SC 3. Implantation. Plan du 1er balcon. - SC 4. Implantation. Plan du 2ème balcon. - SC 5. Implantation. Plan du 3ème balcon.Lieu de conservation : Archives municipales, Nevers - Cote du document : 646 W 342 -
Ville de Nevers. Théâtre municipal [réfection des façades]. 1983.
Ville de Nevers. Théâtre municipal [réfection des façades]. Dessin (tirage), par le Directeur général des Services techniques municipaux C. Mallet, dessiné par P. Millot, vérifié par l’architecte H. Novel. Nevers 1983. 1/50.- Façade principale. Dressé par Novel. 12 janvier 1983. 42,5 x 84 cm. - Façade principale. Etat actuel. 12 janvier 1983. 60 x 84 cm. - Façade principale. Relevé de l’état actuel. Dressé par Novel. 31 janvier 1983. 42,5 x 84 cm. - Façade ouest. Etat actuel. 8 février 1983. 59,5 x 84,5 cm. - Façade est. Etat actuel. 11 février 1983. 59,5 x 84 cm.Lieu de conservation : Archives municipales, Nevers - Cote du document : 646 W 347 -
[Photographies des Services techniques à différentes dates]. S.d. [2e moitié 20e siècle].
[Photographies des Services techniques à différentes dates]. Photographie, s.n. S.d. [2e moitié 20e siècle]. Tirages N&B et couleur.Lieu de conservation : Archives municipales, Nevers - Cote du document : 6 Fi 3327-3382, 3388-3390 -
Théâtre de Nevers. Etat des lieux. S.d. [octobre 2005].
Théâtre de Nevers. Etat des lieux. Dessin (tirage en couleur), s.n. S.d. [2005]. 42 x 30 cm, sans éch. Plans intégrés dans un rapport du cabinet BL Associés daté d'octobre 2005.- Sous-sol. - Dessous de scène. - Rez-de-chaussée. - 1er Balcon. - 2ème Balcon. - 3ème Balcon. - Pavillon Est. - Coupe. - Pavillon Est. Coupe.Lieu de conservation : Archives municipales, Nevers - Cote du document : 557 W 109 -
[Photographies lors de la campagne de travaux de 2015-2018].
[Photographies lors de la campagne de travaux de 2015-2018]. Photographie en couleur, s.n. 2015-2018.Lieu de conservation : Ville de Nevers, Services techniques
-
Avant l’inauguration, vendredi soir, du petit Théâtre, une amicale manifestation a marqué la fin des travaux. 24 septembre 1980.
Avant l’inauguration, vendredi soir, du petit Théâtre, une amicale manifestation a marqué la fin des travaux. Le Journal du Centre, 24 septembre 1980, ill. -
Charrier, Jean-Bernard ; Chabrolin, Madeleine ; Harris, Jean-Pierre ; Stainmesse, Bernard. Histoire de Nevers. 2ème partie : Des 1815 à nos jours. 1984.
Charrier, Jean-Bernard ; Chabrolin, Madeleine ; Harris, Jean-Pierre ; Stainmesse, Bernard. Histoire de Nevers. 2ème partie : Des 1815 à nos jours. Le Coteau : Horvath, 1984. 2 vol. ; ill. ; 26 cm. (Histoire des villes de France) -
Congrès de la Fédération des Sociétés savantes du Centre de la France (72 ; 2016 ; Nevers). Le théâtre, un monument dans la ville. 2017.
Congrès de la Fédération des Sociétés savantes du Centre de la France (72 ; 2016 ; Nevers). Le théâtre, un monument dans la ville. Des tréteaux à la scène, implantation et rôle du théâtre dans la vie citadine (histoire, sociologie, bâtiments, décors, pièces, troupes...). Nevers : Société nivernaise des Lettres, Sciences et Arts, 2017. 132 p. : ill. Bulletin de la Société nivernaise des Lettres, Sciences et Arts, n° 62, 2016. -
Francillon, Jacques ; Le Riche, Noël. La ville de Nevers réhabilite son théâtre. 2016.
Francillon, Jacques ; Le Riche, Noël. La ville de Nevers réhabilite son théâtre. In : Congrès de la Fédération des Sociétés savantes du Centre de la France (72 ; 2016 ; Nevers). Le théâtre, un monument dans la ville. Nevers : Société nivernaise des Lettres, Sciences et Arts, 2017, p. 51-56 : ill. Bulletin de la Société nivernaise des Lettres, Sciences et Arts, n° 62, 2016. -
Hugonnet-Berger, Claudine ; Maulmin, Pascale de ; Sonnet, Bernard. Théâtres en Bourgogne : architectures du spectacle 1800-1940. 1996.
Hugonnet-Berger, Claudine ; Maulmin, Pascale de ; Sonnet, Bernard. Théâtres en Bourgogne : architectures du spectacle 1800-1940 / Service régional de l'Inventaire général, Direction régionale des Affaires culturelles de Bourgogne ; photogr. Michel Rosso ; carte Alain Morelière. Dijon : Direction régionale des Affaires culturelles, 1996. 28 p. : ill. ; 23 cm. (Itinéraires du Patrimoine ; 124). -
Joly, Jean-Mathias. Gros travaux pour le Petit théâtre. 4 janvier 2005.
Joly, Jean-Mathias. Gros travaux pour le Petit théâtre. Le Journal du Centre, 4 janvier 2005, p. 5 : ill. -
Lechat, François. Nevers pas à pas. 1988.
Lechat, François. Nevers pas à pas. Paris : Imprimerie Clerc, 1988. 346 p. : ill. ; 31 cm. -
Linsolas, Jean-Marie. La restauration du théâtre de Nevers à la fin du XIXe siècle. 2016.
Linsolas, Jean-Marie. La restauration du théâtre de Nevers à la fin du XIXe siècle. In : Congrès de la Fédération des Sociétés savantes du Centre de la France (72 ; 2016 ; Nevers). Le théâtre, un monument dans la ville. Nevers : Société nivernaise des Lettres, Sciences et Arts, 2017, p. 38-50 : ill. Bulletin de la Société nivernaise des Lettres, Sciences et Arts, n° 62, 2016. -
Maugis, Agathe. Le théâtre de Nevers. 2016.
Maugis, Agathe. Le théâtre de Nevers. In : Congrès de la Fédération des Sociétés savantes du Centre de la France (72 ; 2016 ; Nevers). Le théâtre, un monument dans la ville. Nevers : Société nivernaise des Lettres, Sciences et Arts, 2017, p. 15-23 : ill. Bulletin de la Société nivernaise des Lettres, Sciences et Arts, n° 62, 2016. -
Maulmin, Pascale de. Théâtre municipal - Nevers [dossier de protection au titre des Monuments historiques]. 1991-1993.
Maulmin, Pascale de. Théâtre municipal - Nevers [dossier de protection au titre des Monuments historiques]. 1991-1993.Lieu de conservation : Conservation régionale des monuments historiques, Dijon - Cote du document : Dossier de protection -
N., J. de la. Le théâtre de Nevers. 5 novembre 1899.
N., J. de la. Le théâtre de Nevers. Le Journal de la Nièvre, 69e année, n° 259, dimanche 5 novembre 1899, p. 2. Document accessible en ligne : https://archives.nievre.fr/ark:/60877/zlbjg98f5nch/91994a41-487d-4ab5-aa8c-42a7c7d17e31 -
Théâtre de Nevers. 7 novembre 1899.
Théâtre de Nevers. L’Observateur du Centre. Journal socialiste, 11e année, n° 45, mardi 7 novembre 1899, p. 2. Document accessible en ligne : https://gallica.bnf.fr/ark:/12148/bpt6k2373438s/f2.item -
Toscan, Raoul. La Curieuse histoire de Nevers. 1934-1935.
Toscan, Raoul. La Curieuse histoire de Nevers. Paris : Éditions de la Revue du Centre, 1934-1935. 2 vol., 316-301 p. : ill. dépl. h.t. ; XX cm. -
Payet, Lara. Et le rideau se lève sur le petit théâtre. 8 septembre 2018.
Payet, Lara. Et le rideau se lève sur le petit théâtre. Le Journal du Centre, samedi 8 septembre 2018, p. 2-3 : ill. -
Souverain, Dominique. Objectif juillet 2018 pour le théâtre. 29 août 2017.
Souverain, Dominique. Objectif juillet 2018 pour le théâtre. Le Journal du Centre, mardi 29 août 2017, p. 7 : ill. -
Vallet, Cécile. Le théâtre de Nevers : un équipement culturel au service de tous. 2016.
Vallet, Cécile. Le théâtre de Nevers : un équipement culturel au service de tous. In : Congrès de la Fédération des Sociétés savantes du Centre de la France (72 ; 2016 ; Nevers). Le théâtre, un monument dans la ville. Nevers : Société nivernaise des Lettres, Sciences et Arts, 2017, p. 24-37 : ill. Bulletin de la Société nivernaise des Lettres, Sciences et Arts, n° 62, 2016.
-
Gacoing, Vincent (témoignage oral)
Gacoing, Vincent. Chef du service Spectacle vivant à la Ville de Nevers.
À voir
Informations complémentaires
Le rapport de Lebrun, au nom de la commission provisoire des travaux, est inséré dans le registre des délibérations des actionnaires, lors de la séance du 6 mai 1809. (Archives départementales de la Nièvre : 4 M 203/34).
« Rapport
Les souscripteurs pour la construction d’une salle de spectacle à Nevers, n’étoient pas d’accord sur l’emplacement à choisir pour former cet établissement. Les uns le désiroient à la place des provisions, ou à celle de la hâlle aux bled, d’autres à l’ancien palais de justice rue de la revenderie, quelques uns à St Martin, plusieurs autres au petit château ; et enfin, sur les représentations de la famille Aimé, propriétaire de la salle actuelle, on croyoit devoir examiner de nouveau ce dernier local pour juger s’il étoit susceptible des agrandissements et améliorations qu’on proposoit d’y faire.
Dans cette incertitude Monsieur le Préfet ayant réuni chez lui dans le commencement du mois d'avril, quelques-uns des actionnaires pour délibérer tant sur le choix de l'emplacement de la salle, que sur les moyens de finance, on convint de nommer, et l'on nomma, des commissaires pour présenter leurs vues sur ces deux objets.
Chargés d'examiner les différens emplacemens dont on vient de parler sous le point de vue de la facilité des abords, et sous celui de l'économie dans la construction de la salle, les commissaires pour cet objet se sont réunis quelques jours après, et les nottes sur les locaux indiqués, qu'ils mettent sous vos yeux, sont le résultat, tant des visites qu'ils ont faittes sur les lieux, que de leurs observations et réflexions.
Note 1ere. Place des Provisions
L'impossibilité de trouver une autre place pour établir le marché permanent qui se tient sur celle-ci, suffiroit sans doute pour écarter toute idée d'y construire la salle ; mais l'incommodité et le peu de largeur des débouchés qui y aboutissent, joint à la dépense énorme qu’entraîneroit l'acquisition de plusieurs maisons indispensables, et la construction des bâtimens de la salle, ont déterminé les commissaires à rejetter ce projet.
Note 2e. Place de la hâlle au Bled
Les abords d'une salle construite sur cette place seroient sans contredit de la plus grande facilité, et la proximité des promenades rendroit sa situation extrêmement agréable dans les beaux jours. Mais les commissaires ont pensé que la dépense de construction d'un bâtiment isolé, qui devroit présenter de tous les côtés une sorte de décorations, seroit trop considérable, et qu'il convenoit mieux de laisser à sa destination actuelle une place dont l'étendue n'est quelques fois pas suffisante pour contenir les voitures qui y amènent des denrées, et à laquelle rien ne pourroit suppléer si l'on en diminuoit la superficie.
Note 3e. Ancien Palais de Justice [Tour de l’Horloge, rue François Mitterrand]
L'ancien palais de justice appartient à un particulier qui y a fait des distributions et des constructions propres à lui procurer un revenu assez considérable. L'acquisition en seroit chère, et sa situation sur la grande route, dans une de ses parties les plus étroites, rendroit les abords incommodes pour les piétons comme pour les voitures.
Notte 4e. Eglise de St Martin
La situation de St Martin est peut-être celle qui aurait le mieux convenu aux habitans des différens quartiers de la ville. A une distance à peu près égale de la porte de la Barre et du pont, de la porte de Paris et du ravelin, elle peut être regardée comme au centre de la partie la plus habitée de Nevers. Les abords en seroient faciles pour tout le monde. La cour d'entrée devenue une place présenteroit un contours facile aux voitures et un emplacement suffisant pour les remiser vis-à-vis du péristile de l'entrée. L'emplacement de l'église est assez vaste pour y construire une salle suffisante avec toutes ses dépendances. Mais les difficultés et les lanteurs qu'il faudroit essuyer pour en obtenir la propriété, les dépenses qu'il faudroit faire tant pour l'acquisition du local, appartenant au Domaine, et de la maison Chevallier, dont on ne pourroit pas se passer, que pour démolition, fouille de cave, et construction de la salle, ont déterminé les commissaires à vous proposer de renoncer à cet établissement, malgré tous les avantages qu'il présente d'ailleurs.
Note 5e. Le Petit-Château
Les hâbitans des quartiers de la Barre et de Nièvre trouveront sans doute cet emplacement trop loing d’eux, et très incomode dans les tems de pluies et de gelées. Mais ceux d'entre eux qui fréquentent le spectacle ne seront pas arrêtés par la distance peu considérable qu'il y a de la salle actuelle au Petit Château ; et d'un autre côté les habitans de Croux et des abords du pont profiteront des avantages que les premiers auront perdu. Il y aura compensation.
L'emplacement du Petit Château appartient à la commune. Elle peut en disposer dès ce moment. Elle permet à une société d'actionnaires d'y construire à ses frais une salle de spectacle, en se réservant le droit de racheter les actions suivant un mode qui sera convenu ; et au bout d'un tems déterminé la commune devient propriétaire de la salle construite sur son fonds. Il n'y a aucune difficulté dans cette transaction, et les administrateurs auront fait le bien de la ville.
Ce premier avantage d'éviter les lenteurs et les dépenses d'acquisition, joint à celui de trouver une partie des bâtimens nécessaires toute fondée, la facilité de se procurer un abord agréable et une vaste cour dans laquelle les voitures pourront circuler et s’y remiser sans incommoder ni inquiéter les piétons, la possibilité d'isoler la salle, de lui procurer plusieurs sorties comodes, et d'en former un point de vue agréable au fond de la promenade qui y conduit, tous ces avantages ont déterminé les commissaires à vous proposer d'adopter cet emplacement pour établir la salle de spectacle ; et dans la persuasion où l'on est qu'il paroitra convenable à la majorité des actionnaires, on y a adapté le plan qu'on vous présente, et l'on y a joint un apperçu assez exact de la dépense entraîneroit son exécution.
Note 6e. Salle des spectacles actuelle
D'après les représentations qu'avoit faites la famille Aimé, propriétaire de la salle actuelle, les propositions qu'elles faisoit de l'agrandir et la mission que vous aviez donnée aux commissaires, leur premier soin a été de visiter cette salle. M. Aimé la leur a fait voir dans tous ses détails, et leur a expliqué en quoi consisteroit les améliorations qu'il proposoit d’y faire. Elles se borneroient à élargir le théâtre seulement d'un côté d'environ quatre pieds, sans donner plus de largeur à tout le reste de la salle, et par conséquent sans procurer le moyen d'élargir l'avant scène qui est beaucoup trop étroite. Dans cet état de choses, les accès de la salle d'ailleurs ne pouvant être rendus ni plus comodes, ni plus convenables qu'ils ne le sont, les commissaires vous proposent d'abandonner toute idée de s'en occuper.
État par apperçu des dépenses à faire pour la construction d'une salle de spectacle sur une partie de l'emplacement du Petit Château
Maçonnerie, fouilles et carrelages | 21.780 [livres] |
Charpente pour combles et planchers | 21.020 |
Couverture en ardoise, 250 toises à 24 s | 6.000 |
Menuisiers | 5.000 |
Plâtre, plafonds et briquetages | 4.000 |
Peinture d'impression et de décor | 2.000 |
Vitrerie | 250 |
Pavé | 1.266 |
Serrurerie | 4.500 |
Pour fermes et coulisses consistant en 8 ou 9 sujets, une somme de | 10.800 |
Et pour le rideau celle de | 1.000 |
Total | 77.816 [livres] |
État du nombre des spectateurs que chacune des parties de la salle peut contenir
Désignation des parties | Nombre de places | Leur prix | Produit total de chaque place |
Parquet | 170 | 1 [livre] 5 [sols] | 212 [livres] 10 [sols] |
Amphithéâtre | 100 | 2 | 200 |
Premières loges | 110 | 2 | 220 |
Les six loges de l'avant scène | 48 | 2 | 96 |
Secondes loges | 162 | 15 [sols] | 121 [livres] 10 [sols] |
Total des spectateurs et du produit | 590 | 850 |
L’ingénieur en chef du département de la Nièvre
Signé LeBrun »
Devis estimatif des travaux de peintures et constructions pour restaurer la Salle de Spectacle de la Ville de Nevers, y compris les matériaux du théâtre (sauf le plancher), les devantures des loges, les cloisons et les banquettes pour y être réemployés convenablement
Peinture d'art Les plafonds de la salle et de l'avant-scène (toiles, châssis et marouflages), les corniches, sur plâtre ; les avant-scènes, colonnes, devantures des 3mes, 2mes et 1ères loges (sur toile), la devanture de la galerie (sur plâtre), les rideaux, draperies et manteau d'arlequine (toile châssis) 3800
Peinture de bât[imen]ts Les dorures des moulures des 3mes, des chapiteaux, des colonnes, des bases, des frontons, des consoles et balustres ; les marbres aux avant-scènes, les fonds des 3mes et du parterre, et les corridors 800
Cuivre estampé Plafonds : oves, pirouettes et culots.
Pilastres des avant-scènes : cordes, raie-de-cœur, pirouette.
Secondes : oves, raie-de-cœur, rinceaux.
Premières : feuille.
Prem[ière] galerie : oves, pirouettes, bande à coquilles, 6 motifs de séparations, 7 motifs milieu.
Avant-scène : modillons, raie-de-cœurs, pirouettes, oves, feuilles allemandes, feuilles, coins.
Attique sur le théâtre : raie-de-cœur 1600
Carton-pierre Pilastres des avant-scènes, consoles, 10 chapiteaux et bases des colonnes, 9 frontons à enfants saillants, cartouches et rinceaux, 14 balustres [incomplet]
Papier-peint Fonds des premières, secondes, avant-scène, et séparations des loges 600
Devantures des premières loges, en volige et toile à 8 F le mètre : 22 mètres 176
des secondes id id id id avec plinthe, 26 mètres 208
des troisièmes, en volige et toile, à 15 F le mètre, 26 mètres (avec corniches, moulures, piédesteaux) 890
Avant-Scène Devantures, corniches, moulures, frontons, socles, piédestaux, encadrements des 1ères, 2èmes, 3èmes et baignoires, et quatre colonnes 1200
Séparations Pleines, demi pleines, en voliges, aux 1ères et 2èmes 440
Chariots 16 chariots à 90 F l'un 1440
Planchers Plancher fixe, 40 trappes, 20 trapillons, 56 costières, 32 frises, ensemble 164 mètres de surface à 5 F le mètre 820
Dessous 16 chapeaux de ferme avec feuillures pour les tiroirs 450
128 montants pour supporter les chapeaux 350
8 plats-bords pour les chemins de fer 100
256 supports pour soutenir les plats-bords 100
démontage et remontage des charpentes sous le plancher fixe 300
Chemin de fer 95 mètres à 6 francs le mètre 570
Ferronnerie 24 grands crochets plats, 12 moyens id id, 32 petits id id, pour tenir l'écartement des fermes 200
68 pitons quarrés rivés sur forte tôle id
ferrures des costières 100
Total 15304
Horizon Un fond à réélargir, deux coulisses, une bande de terre, une de mer, quatre frises 760
Prison Un fond, quatre coulisses, deux frises 476
Rustique décor fermé de deux plans, avec 12 appliques 800
Molière id 900
Salon simple décor fermé de deux plans, cheminé, 3 fenêtres et un plafond pour les deux salons 576
Nota. Le tout rendu prêt à être équipé. - Je retoucherai les décors conservés.
Total 3712
1e Galerie Divan de 22 mètres en élastique, velours, bras en fer rond et dossier tout compris 1120
1ères Loges 34 chaises tournées, en hêtre verni, garnies en élastique et velours à 15 francs l’aune 510
34 chaises à dossier en cerisier, paille fine à 7 F l’une 238
Secondes 52 mètres banquettes à 2 F 50 le mètre
Troisièmes 78 id
Parterre 60 id
[total des trois] 475
Parquet 10 id id en velours à 14 F 50 145
10 id id à dossier en velours à 25 F le m 250
20 id stalles garnies en velours, bras en fer rond à 28 F 50 le mètre 570
Appui des 1ères galeries, 1ères loges et 2èmes 432
Total 3740
Salle 15304
Décors 3712
Tapisserie 3740
Total général 22756
LE THÉÂTRE DE NEVERS
Le théâtre de Nevers, complètement remis à neuf, va ouvrir ses portes ce soir samedi, après dix-huit mois d'interruption.
Cette période, qui a peut-être paru très longue à beaucoup, n'a pas été inutilement employée : M. Brazeau, l’architecte directeur des travaux, a fait de notre salle de spectacle une véritable bonbonnière, du meilleur goût et du plus gracieux effet, tout en restant dans les limites qu'il ne pouvait dépasser.
Tous ceux qui ont pu se rendre un compte détaillé, ces jours-ci, des embellissements et des améliorations apportés au vieux bâtiment municipal, sont d'avis qu'il était matériellement impossible d'en mieux tirer parti.
M. Brazeau et ses collaborateurs, peintres, sculpteurs, tapissiers, etc., ont droit à nos félicitations, - et le public, nous en sommes persuadé, ne se fera pas faute de ratifier notre jugement.
Hier soir, à la répétition générale de l'orchestre, la salle étant éclairée comme pour le spectacle, nous avons pu nous livrer à un examen plus complet ; en quelques lignes nous allons faire une description de notre théâtre :
Le plafond, oeuvre de M. E. Vernon, artiste-peintre, élève de MM. Bouguereau et Truphème, dont on a pu déjà apprécier le talent à Nevers, est composé de quatre groupes de figures allégoriques représentant l'Agriculture et l'Industrie nivernaises, la Poésie, la Musique et les Arts, planant dans un ciel aux colorations riches et harmonieuses.
A signaler aussi les panneaux formant le complément du plafond du côté de la scène, dont la couleur plus soutenue fait une transition heureuse entre l'éclat lumineux du plafond et le ton plus sombre du nouveau rideau de scène également remarquable. L'un de ces panneaux représente la première comédie humaine (Eve tentée par le Serpent) ; une autre figure le premier drame (Caïn s'enfuyant après le meurtre d'Abel) ; le panneau du milieu se compose d'une figure allégorique tenant un cartouche sur lequel est inscrit la devise : Omne Labore.
Au-dessus du rideau, une frise représentant des enfants jouant avec un masque de tragédie est d'une charmante originalité.
La façade des loges et des balcons est peinte d'un ton crème d'une exquise fraîcheur tempérée par des rechampis verts et rosés d'une nuance fine et délicate et rehaussé d'ors rutilant sous la lumière du lustre et des girandoles. Elle se détache en clair sur le fond rouge sombre des intérieurs des loges, et forme avec le plafond un ensemble harmonieux.
Un rideau-réclame (genre Paris) complète l'ensemble de la restauration de la salle et servira de distraction au public pondant les entr'actes.
Parmi les modifications apportées à la décoration intérieure, à signaler encore les nouveaux balcons des quatre principales loges, la disposition heureuse de la tenture de ces loges et le cadre de scène surmonté d'une allégorie de la Ville de Nevers.
Les anciennes stalles d'orchestre, fixes, ont disparu et sont allées former les quatre premiers rangs du parterre. Elles ont été remplacées par de confortables fauteuils se relevant à bascule et laissant ainsi plus d'espace à la circulation.
La facilité des allées et venues a été augmentée partout où cela était possible : un couloir central a été formé dans toute la longueur du parterre au moyen de strapontins se relevant automatiquement ; les colonnes gênant l'entrée aux fauteuils d'orchestre et aux baignoires ont disparu, etc.
Les artistes ont des loges parfaitement quoique simplement aménagées, et, en cas de danger, ils ont à leur disposition un escalier par où ils pourraient rapidement gagner la petite cour derrière le Palais.
Une herse supplémentaire éclaire la scène ; les décors ont été retouchés et plusieurs nouveaux viendront compléter la collection.
Le foyer du public a été mis en communication directe avec le couloir des premières par deux escaliers de quelques marches. Ce foyer, d'une exiguïté regrettable n'a, malheureusement pu être agrandi, mais la terrasse remplaçant le balcon de jadis en formera une annexe importante qui ne sera pas à dédaigner par les beaux temps. Par contre, en cas de pluie, cette terrasse servira d'abri au public attendant l'ouverture des portes du théâtre.
La construction de la terrasse a entraîné la restauration de la façade principale, dont l'architecture d'une simplicité par trop exagérée n'indiquait qu'imparfaitement la destination de l'édifice qu'elle renfermait.
Chacun a suivi, pour ainsi dire au jour le jour, avec intérêt et curiosité, la restauration de cette façade : des pilastres ont été dégagés dans la masse, des chapiteaux, bases, clefs, etc., incrustés dans la façade existante ; une fine corniche a été taillée dans l'ancienne, deux frontons sont venus couronner les avant-corps et le tout a été surmonté d'un attique finement profilé. Les sculptures des frontons et des chapiteaux aux motifs variés sont dus [sic] au ciseau de M. Franc, sculpteur nivernais.
Enfin deux escaliers nouveaux, en pierre, larges et spacieux, flanquent les façades latérales et, desservant tous les étages du théâtre permettraient une évacuation rapide de la salle en cas de danger ; tout ce qui concerne le service d'incendie a été réglé avec une scrupuleuse attention, et les sapeurs-pompiers sont au courant des moyens mis à leur disposition pour combattre efficacement le feu, si par malheur il venait à éclater
J. de la N.
Rappelons le programme des trois soirées de réouverture :
Ce soir samedi 4 novembre, représentation de gala avec le concours de la Comédie-Française :
1° La Joie fait peur, comédie en un acte, de Mme Emile de Girardin.
Mme Pierson, Mlle Muller, M. de Féraudy, sociétaires de la Comédie-Française, joueront les rôles qu'ils interprètent à la Comédie-Française.
2° L'Ami Fritz, comédie en trois actes, de Erckmann-Chatrian.
Mme Muller et M. de Féraudy joueront les rôles qu'ils interprètent à la Comédie-Française.
Demain dimanche 5, deuxième représentation de gala, avec le concours de Mlle Renée du Minil, sociétaire de la Comédie-Française :
Denise, comédie en quatre actes, d'Alexandre Dumas fils.
Prix des places : loges de face et de côté, 5 fr. ; fauteuils de balcon, 5 fr. ; fauteuils d'orchestre, 4 fr. ; deuxièmes loges de face et de côté, 3 fr. ; baignoires et chaises d'orchestre, 3 fr. ; pourtour, deuxièmes galeries et parterre numéroté, 2 fr. ; parterre, 1 fr. 50 ; troisièmes loges, 1 fr. ; troisièmes galeries, 0 fr. 75 ; amphithéâtre, 0 fr. 50.
Lundi 6 novembre, représentation populaire : avec également le concours de Mlle Renée du Minil, sociétaire de la Comédie-Française :
La Dame aux Camélias, comédie en cinq actes, d'Alexandre Dumas fils.
Prix des places : loges de face et de côté, 3 fr. 50 ; fauteuils de balcon, 3 fr. ; fauteuils d'orchestre, 3 fr. ; deuxièmes loges de face et de côté, 2 fr. 50 ; baignoires et chaises, 2 fr. 50 ; pourtour, deuxième galerie et parterre numéroté, 1 fr. 50 ; parterre, 1 fr. 25 ; troisièmes loges, 1 fr. ; troisièmes galeries, 0 fr. 75 ; amphithéâtre, 0 fr. 50.
Bureaux, à sept heures et demie, rideau, à huit heures et demie chaque soir.
Extrait de : Toscan, Raoul. La Curieuse histoire de Nevers. Paris : Éditions de la Revue du Centre, 1934-1935, vol. 2, 1935, chap. IX. Le théâtre de Nevers (p. 193- 212 : ill.).
P. 202-204 :
« Mais les choses s'usent à force de servir... De nouveau, la question des réparations se pose pour notre théâtre. D'autre part, l'incendie de l'Opéra-Comique, à Paris (1887) avait attiré l'attention des administrations sur les services de sauvetage. Notre petite salle, coincée entre une école et le Palais ducal semblait promettre, en cas de sinistre, une épouvantable catastrophe. L'année 1887, dans nos assemblées compétentes, fut, concernant le théâtre, pleine d'escaliers de fer, de rideaux métalliques, de dégagements et de casques de pompiers. Pour un peu, on aurait reculé le palais des Ducs pour donner de l'air à notre théâtre. Cependant, personne ne songea que le plateau, ou plutôt la réserve aux décors était posée sur un baril de poudre, exactement les caves débouchant les « fossés de Queylus », caves louées, d'une part à l'artillerie, d'autre part à un cafetier qui en avait fait un réservoir d'alcool. Notre petit parlement rouvrit la discussion et l'on finit par régler tout cela. Ce règlement mit à sec le budget des « réparations » et ce n'est qu'en 1897 que l'on adopta, en principe, le beau projet de M. Brazeau, architecte de la ville, projet qui sommeillait depuis trois ans dans une boîte à oubli.
En février 1898, on se mit donc à l'œuvre et, en 1899, le théâtre apparut tel à peu près que nous le voyons aujourd'hui avec sa terrasse-péristyle, ses escaliers de chaque côté du vestibule, son parterre surbaissé, ses balcons ventrus, ses avant-scènes officielles bien drapées, ses girandoles, ses décorations de staf et son beau plafond peint par Emile Vernon. Cet élève de Bouguereau, fidèle aux amours de son maître, installa un peu partout des déesses fessues et poitrinantes qui, le soir de la première, firent se promener, dans ce jardin des Muses, les jumelles complaisantes des vieux messieurs.
M. Hippolyte Pigalle, maire de Nevers, avait tenu à fêter solennellement la réouverture de la bonbonnière municipale et c'est, en effet, tout simplement la Comédie-Française en personne qu'il nous offrit le 4 novembre 1899. Le premier soir, on eut La Joie fait peur et L'Ami Fritz, interprétés par Mesdames Blanche Pierson et Muller et M. de Feraudy. Le lendemain, car il y eut un lendemain, Madame Renée du Minil fut une Dame aux Camélias tout à fait émouvante. On pleura beaucoup.
Mais je ne vous ai pas parlé du lustre. Ce théâtre avait un lustre magnifique qui d'ailleurs gênait considérablement les spectateurs du poulailler. La municipalité l'avait acquis en 1835. Il était nanti de vingt-quatre becs, à huile bien entendu, qui, plus tard, reçurent le gaz. Il était orné de cristaux et avait coûté sept cents francs. Il fallut ajouter vingt-huit francs pour l'emballage. La caisse pesait deux cent cinq kilogs. Le 8 juillet 1835, les messageries Faure Baulieu avisèrent par lettre de voiture que le lustre « à la garde de Dieu et sous la conduite de Léonard... » serait déposé à la porte du magasin indiqué. L'envoi fait par diligence accélérée mit huit jours pour arriver à Nevers...
Ce vieux lustre, que l'on avait renforcé de stalactites de cristal lors de la réouverture de 1899, était fort beau c'est entendu, mais il fut trouvé terriblement incommode par nos amis les Américains. Lorsque, en 1917, durant la grande guerre, les Sammies vinrent s'installer à Nevers, on leur donna le théâtre pour qu'en fins de manoeuvres ils puissent se distraire un peu. Le gaz servait toujours à l’éclairage. Ils n'eurent point tort d'apprécier que nous retardions un peu. Par politesse, ils ne le dirent point, mais ils installèrent l’électricité. C'est après cela que notre lampe merveilleuse fut reléguée dans une resserre, aucun soldat des United-States n'ayant eu souci de l'emporter comme sou-ve-nir. II y a comme cela des quantité de choses fort simples qu'on ne se décide jamais à faire.
Dans le même ordre d'idées on avait tout prévu sauf le chauffage de cette salle. On avait renoncé à se servir d'un calorifère archaïque à soufflerie qui projetait dans la salle une sorte de bise méphitique. La scène, au surplus, n'était pas chauffée du tout. Au foyer des artistes, le maigre petit poêle voyait se précipiter vers lui, entre deux scènes pathétiques, de pauvres artistes soucieuses de se défiger un brin, et nous eûmes ainsi, un soir plus rude d'hiver, la représentation inattendue d'une pièce de Racine, dont toutes les interprètes pour ne pas risquer la fluxion de poitrine avaient revêtu par dessus leur péplum des manteaux de fourrure de la meilleure coupe 1900.
Les dames de la ville qui ne voulaient pas manquer la Tournée Baret arrivaient, frileuses, dans l'antique fiacre de leur remise. Elles sortaient de là emmitouflées de zibelines qu'elles conservaient dans leur loge. Le cocher leur apportait, en sus, la bouillotte de la voiture et une bonne couverture de cheval pour se mettre sur les genoux. En suçant des pastilles Géraudel on pouvait ainsi tenir le coup jusqu'à minuit.
En 1925, cette situation restait inchangée. Une des premières réalisations de M. Perin, lorsqu'il devint maire de Nevers, fut d'installer le chauffage central. on se demanda alors comment on avait pu s'en passer si longtemps ! »
Texte publié dans la collection des Itinéraires du Patrimoine : Hugonnet-Berger, Claudine ; Maulmin, Pascale de ; Sonnet, Bernard. Théâtres en Bourgogne : architectures du spectacle 1800-1940. Dijon : Direction régionale des Affaires culturelles, 1996, p. 15, 23-24 : ill. (itinéraires du patrimoine ; 124).
Le théâtre de Nevers est situé à proximité du palais ducal. Les étapes de sa construction et de sa décoration sont bien connues grâce aux documents conservés aux Archives municipales : plans, coupes et élévations du bâtiment, édifié entre 1809 et 1823, mais profondément remanié jusqu'à nos jours. Sous l'Ancien Régime, la ville de Nevers ne possède pas de salle de spectacle. En thermidor de l'an XIII, David d'Espinay, maire de Nevers réunit son conseil municipal et adopte le projet de construction d'une salle de spectacle.
Les travaux débutèrent en 1809 sous l'administration du maire, Chabrol de Chaméane. La 2ème tranche de travaux se poursuivit jusqu'en juillet 1815. Après un abandon de sept ans, la 3ème tranche de travaux s'acheva en 1823 sous le mandat municipal de A. de Bouille. En 1844, la restauration complète de la salle de spectacle fut décidée. Le 9 décembre 1852 un marché est passé, pour l'ameublement et les décors, entre la ville et Antoine Victor Barbereau, artiste décorateur des théâtres de l'Odéon à Paris, de Rochefort, Tours, Blois, Orléans et chargé de la construction du théâtre de Gray en Haute-Saône. En 1864, une partie des décors est réparée par Besson, entrepreneur, et l'escalier situé sous la salle de spectacle est réparé par Roussel. Le foyer du théâtre est meublé en 1869. En 1898, la ville passe un marché avec Emile Vernon, peintre de Tours, pour le plafond peint de la salle de spectacle. Les travaux de 1913 concernent surtout la façade : péristyle, corniche, agrafes, chapiteaux, frontons et inscriptions des cartouches.
Enfin, le théâtre est endommagé par le bombardement aérien du 16 juillet 1944 qui affecte lourdement le centre historique de Nevers. Le théâtre ne correspondant plus aux normes de sécurité est fermé en 1971. De grands travaux de rénovation sont menés jusqu'en 1980, date de sa réouverture.
La façade du théâtre présente un grand péristyle, avec entablement et balustrade, de grandes baies cintrées, des cartouches mentionnant musique, théâtre et poésie et des frontons circulaires avec des cartouches décorés d'instruments de musique. Elle a conservé la pureté de l'architecture néo-classique du début du XIXe siècle. La salle de spectacle, quant à elle, illustre encore bien le goût du Second Empire.
Théâtre municipal de Nevers [dossier technique]. Nevers : Théâtre municipal, mai 2024. 9 p. : ill. ; 30 cm.
Façades et toitures, ancienne salle des spectacles (cad. BL 71) : inscription par arrêté du 17 juin 1993.
- théâtres de Bourgogne
- salles de spectacle de Bourgogne-Franche-Comté
- salle du théâtre
- chaufferie
- bureau
- porche
- © Région Bourgogne-Franche-Comté, Inventaire du patrimoine
