SCIERIE THIÉBAUD
25 - Labergement-Sainte-Marie
5 rue de Mouthe
- Dossier IA25001532 réalisé en 2016
- Auteur(s) : Raphaël Favereaux
Historique
Mentionné à la fin du 17e siècle, le moulin appartient au siècle suivant à l’abbaye du Mont-Sainte-Marie. En 1786, les religieux décident de reconstruire le moulin 100 mètres en amont sur le Doubs. Il comprend deux bâtiments : l’un à usage de moulin et scierie (72 pieds de longueur sur 38 pieds de largeur) et le second, situé à l’ouest, à usage de moulin à écorces et ribe (24 pieds de longueur sur 22 de largeur). Le moulin est alimenté par un bassin de retenue (15 pieds sur 31), via un canal d’amenée de 141 pieds de longueur. Il est affermé à Jacques Louis Rousselet pour une durée de 9 ans.
Vendu comme Bien national, le moulin est acquis par les frères Jean-Joseph et Jean-François Loye le 16 août 1796. D’après le procès-verbal de vente, le moulin est équipé de deux paires de meules, d’une ribe, d’une scie verticale et d’une scie circulaire, d’une huilerie et d’un moulin à écorces. Après avoir reconstruit leur barrage en 1800, les frères Loye cèdent leur moulin à Jean-Baptiste Lamy. Il reste en indivision dans la famille Lamy jusqu’à sa vente en août 1843 à Jean-Pierre Jacquin. En 1850, celui-ci agrandit le moulin à écorces dans l’intention d’ajouter un petit atelier de forge. En 1859, l’établissement hydraulique comprend deux paires de meules, une scie verticale et une scie circulaire, mises en jeu par quatre roues. Il tombe dans l’indivision jusqu’au rachat des parts par Emile Jacquin en 1886. Le 3 octobre 1887, les frères Donat-Just, Just-Maximin et Modeste-Joseph Moureaux acquièrent le moulin pour 6600 francs. Il se compose de "deux châssis, une batteuse, un moulin à blé et une scie circulaire […]" et "d'un petit pavillon contigu, comprenant forge, moulin à blé et grenier". Il semble que l’activité de la scierie se développe à cette époque.
En 1891, Modeste-Joseph Moureaux rachète les parts de ses frères, et exploite la scierie seul jusqu’à sa mort en 1901. Sa veuve et ses enfants (Emile, Henriette, Thérèse et Adrienne) héritent de l’établissement, jusqu’au rachat des parts par Emile en 1913. Ce dernier apporte un certain nombre de modifications : installation d’un châssis vertical à lames multiples en 1913, remplacement des deux roues en dessous par une turbine en 1926, suppression d’une paire de meules et de la batteuse. Ouvrier à la scierie, Constant Thiébaud épouse en 1919 Thérèse Moureaux et devient marchand de bois et exploitant de scierie à Malbuisson et Remoray. L’établissement emploie trois scieurs dans l’entre-deux-guerres, contre une vingtaine pendant la Première Guerre (y compris les voituriers et bûcherons). A la mort d’Emile Moureaux en 1942, Constant rachète les parts de sa belle-sœur Henriette et devient propriétaire de la scierie. René, fils de Constant, reprend la scierie en 1951. Vers 1960, il transforme l’ancien moulin à écorces et la forge en logement et supprime la paire de meules existante. Le châssis multilame de marque Ballyet Frères (Pontarlier, 7 rue Montrieux : IA00014380), pouvant accueillir des grumes de 80 cm de diamètre (et un maximum de 28 lames de 27 mm), est remplacé par un châssis vertical multilame provenant de la scierie Guyon, à Mouthe.
Au début des années 1980, la scierie produit annuellement environ 1500 m3 de pièces de charpente et menuiserie en bois résineux (planches, lattes, chevrons, bastaings, madriers, lambourdes, lambris, voliges, etc.). Au moment de la cessation d’activités en 1987, la scierie emploie un ouvrier scieur et deux bûcherons. Dans les années 1990, le fils de René Thiébaud a installé un moteur diesel de camion (Saviem) de 120 chevaux pour continuer le sciage occasionnel. Le matériel est encore en place en 2016.
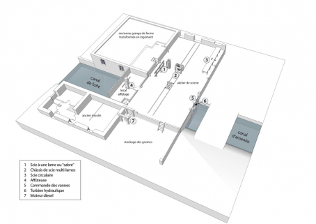
Le matériel de sciage et d’entretien
- un châssis vertical multilame de marque Socolest (Valdoie, 90), datant de 1953, acheté d’occasion en 1962 pour la somme de 21 000 francs (avec son chariot et 250 lames). Il peut accueillir au maximum 26 lames de 27 mm ;- un châssis monolame vertical dit « sabre » daterait des années 1890-1900, et proviendrait des aciéries de Longwy ;
- une scie circulaire, fabriquée par les Ateliers d’Orléans, daterait des années 1890-1900, et servait de déligneuse ;
- deux affûteuses et une meule.
Les moteurs
- une turbine provient des Fonderies et Ateliers de Construction de l’Est, des Ets Darnel-Bosshardt, Dijon. Installée en 1926 sous une chute d’un mètre, de type Francis, elle développe une puissance de 25 ch. Elle actionnait via des courroies les meules et le matériel de la scierie ;- un moteur diesel de la Compagnie Lilloise des Moteurs, d’une puissance de 25 chevaux, installé en 1948 comme moteur auxiliaire et arrêté en 1963 ;
- un moteur électrique de 16 chevaux, installé en 1962, permettant d’actionner la scie circulaire.
- 4e quart 18e siècle
- 2e quart 19e siècle
Description
Pourvu d’une ossature en bois bardée de planches, l’atelier de scierie est couvert d’un toit à longs pans en tuile mécanique. Les logements ouest (ancien moulin) et est sont construits en moellon de calcaire enduit, à un étage carré, et couverts de toits à longs pans en tuile mécanique. Le linteau de la porte du logement oriental est gravé de l’inscription PJ 1850 [Pierre Jacquin]. Une plaque de cheminée de ce logement, mentionnée en 1983, portait l’inscription « Jean-Baptiste Lamy – 1820 ».
- calcaire
- moellon
- enduit
- essentage de planches
- tuile mécanique
- en rez-de-chaussée
- 1 étage carré
- énergie hydraulique produite sur place turbine hydraulique
- énergie thermique produite sur place moteur thermique à combustion interne
Source(s) documentaire(s)
-
3 P 322/2 Matrice des propriétés foncières bâties (19e siècle)
Archives départementales du Doubs, Besançon, 3 P 322/2 Matrice des propriétés foncières bâties (19e siècle)Lieu de conservation : Archives départementales du Doubs, Besançon - Cote du document : 3 P 322/2 -
3 P 322/3 Matrice des propriétés bâties (1882-1910)
Archives départementales du Doubs, Besançon, 3 P 322/3 Matrice des propriétés bâties (1882-1910)Lieu de conservation : Archives départementales du Doubs, Besançon - Cote du document : 3 P 322/3 -
3 P 322/5 Matrice des propriétés bâties (1911-1965)
Archives départementales du Doubs, Besançon, 3 P 322/5 Matrice des propriétés bâties (1911-1965)Lieu de conservation : Archives départementales du Doubs, Besançon - Cote du document : 3 P 322/5 -
EAC 857/O/4 Moulins et usines (1801-1834)
Archives départementales du Doubs, Besançon, EAC 857 O 4 Moulins et usines (1801-1834)Lieu de conservation : Archives départementales du Doubs, Besançon - Cote du document : EAC 857/O/4 -
EAC 3452/HH/15 Moulin (1698-1786)
Archives départementales du Doubs, Besançon, EAC 3452/HH/15 Moulin (1698-1786)Lieu de conservation : Archives départementales du Doubs, Besançon - Cote du document : EAC 3452/HH/15 -
EAC 3452/HH/16 Moulin (1791-1796)
Archives départementales du Doubs, Besançon, EAC 3452/HH/16 Moulin (1791-1796)Lieu de conservation : Archives départementales du Doubs, Besançon - Cote du document : EAC 3452/HH/16 -
EAC 3432/DD Moulin (1786)
Archives départementales du Doubs, Besançon, EAC 3432/DD Moulin (1786)Lieu de conservation : Archives départementales du Doubs, Besançon - Cote du document : EAC 3432/DD -
7 S 60 Cours d'eau et usines (1819-1906)
Archives départementales du Doubs, Besançon, 7 S 60 Cours d'eau et usines (1819-1906)Lieu de conservation : Archives départementales du Doubs, Besançon - Cote du document : 7 S 60
-
Oïba Rahmani. La scierie Thiébaud à Labergement-Sainte-Marie. Etude ethnologique, 1983.
Oïba Rahmani. La scierie Thiébaud à Labergement-Sainte-Marie. Etude ethnologique, 1983, 61 f. + annexes / IUATP-Université de Franche-Comté/CILAC
À voir
Informations complémentaires
- patrimoine industriel du Doubs
- bief de dérivation
- atelier de fabrication
- logement
- vanne
- © Région Bourgogne-Franche-Comté, Inventaire du patrimoine
