MOULIN, PUIS SCIERIE GARCET NISIUS ET CIE, PUIS USINE DE MEUBLES (USINE DE MOBILIER SCOLAIRE) MEUGNIOT, ACTUELLEMENT DELAGRAVE
70 - Froideconche
La Corveraine - Vallée du Breuchin - 118 avenue de la Vallée du Breuchin
- Dossier IA70000252 réalisé en 2008
- Auteur(s) : Raphaël Favereaux
Historique
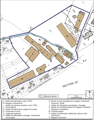
Deux moulins, propriétés des sieurs Ferry et Marchal, figurent sur un plan d'arpentement de 1793, à 100 m d'intervalle sur le Morbief. En 1828, Philippe Tetard, associé à Noblot, convertit l'un de ses moulins en un tissage de laine. Celui-ci ferme en 1831. Par arrêté préfectoral du 21 août 1838, messieurs Kohler et Ribert sont autorisés à établir une fonderie de fonte de seconde fusion et un atelier de construction mécanique. Le moulin d'amont, devenu la propriété d'Antoine Mol en 1846, est réglementé le 19 décembre 1849 ; il sert alors de moulin à écorces. Le moulin d'aval, non réglementé et propriété de la veuve Moll, abrite en 1852 la "pointerie" de monsieur Parrot. Une fabrique de tubes en papier pour l'industrie textile, dite "tuberie", est attestée sur le site en 1871. Vraisemblablement fondée par Auguste Gunther, de Cernay (68), associé en 1873 au sieur Ganeval, cette fabrique apparaît en 1875 sous le nom de fabrique de tubes en papier Cardon. L'entreprise d'Auguste Gunther est alors transférée dans la commune voisine de Fontaine-lès-Luxeuil (étudiée IA70000185). Vers 1883, la veuve Moll cède ses deux établissements. Le moulin d'aval est acquis par Alfred Colle, propriétaire de la filature établie 700 m en aval (étudiée IA70000251). L'industriel substitue une turbine aux trois roues à palettes afin de mettre en activité, vers 1893, un atelier de filature annexe. L'usine d'amont est vendue à messieurs Garcet et Nisius, qui remplacent la roue à palettes par une turbine et implantent une scierie en 1883, complétée d'un séchoir et d'un magasin en 1884. L'usine est achetée vers 1890 par Alfred Meugniot. Il y annexe un "chantier de bois" et fait construire une "usine" (atelier de scierie ?) en 1891, complétée d'un atelier de menuiserie et d'une maison en 1893. Une autre habitation et un hangar sont édifiés vers 1905. Dès ses débuts, cette usine est liée à l'éditeur parisien Delagrave, qui fournit non seulement les manuels scolaires, mais aussi le matériel de "salle d'asile" : fournitures de papeterie, articles et instruments divers, puis mobilier de classe (pupitres, bancs, tables). Le moulin d'aval est racheté au début du 20e siècle par la menuiserie, alors que le moulin d'amont laisse place à une conciergerie. Appelée menuiserie mécanique Meugniot frères en 1903, elle est qualifiée en 1918 de fabrique de matériel scolaire. L'usine fabrique en 1929 près de 15 000 tables d'école. Elle est agrandie vers 1930 : construction d'ateliers et extension du chantier de bois. L'entreprise Meugniot est reprise en 1938 par la société Delagrave. Elle possède alors une capacité maximale de production de 2 200 m3 par an. En 1965, l'usine produit 40 000 tables-bancs, ainsi que des bureaux, armoires, sièges, tableaux, et utilise le hêtre local et le contreplaqué. Elle connaît à cette époque une nouvelle phase d'extension : des ateliers (fabrication, conditionnement) et magasins industriels sont édifiés vers l'ouest, à l'emplacement du chantier de bois ; un nouvel atelier de mécano-soudure est construit et un bâtiment industriel (actuel atelier de fabrication de fauteuils de spectacle) est acquis sur la rive droite du Morbief. Vers 1990 est bâti un nouveau magasin de stockage et d'expédition. En 1997, la production annuelle atteint 60 000 tables, 120 000 chaises et 20 000 meubles divers. Par la suite, le panneau de bois aggloméré remplace progressivement le bois brut. En 2008, l'usine produit principalement du mobilier scolaire, mais fournit aussi les collectivités, l'administration et, depuis 1996, des fauteuils de spectacle. Un incendie a détruit en 2008 la salle des machines et la chaufferie.
Installation d'une machine à vapeur vers 1890. Une turbine est attestée en 1893. Une machine à vapeur de 100 ch, une turbine de 12 ch et un moteur à gasoil de 8 ch sont attestés en 1938.
La fabrique de tubes en papier emploie 9 hommes et 12 femmes en 1875. La menuiserie mécanique emploie une quarantaine de personnes en 1893, et 45 en 1903, 50 ouvriers en 1918, 80 en 1931, 150 en 1967 et 130 en 2008.
- 4e quart 19e siècle
- 20e siècle
Description
Construit en moellon de grès enduit, l'atelier de fabrication originel comprend un rez-de-chaussée et un étage carré, couvert de quatre travées de sheds. Un second atelier datant de la fin du 19e ou du début du 20e siècle est bâti en moellon de grès enduit, couvert d'un toit en tôle. Les autres bâtiments industriels (magasins, entrepôts et ateliers) sont en rez-de-chaussée, parpaing de béton et enduit, charpente métallique, couverts de toits à longs pans en tôle ou en tuile mécanique. Construit en moellon, pierre de taille de grès et enduit, le moulin d'aval comprend un rez-de-chaussée, aujourd'hui converti en magasin de stockage, et un étage en surcroît transformé en logement, couvert d'un toit à demi-croupes et tuile mécanique. Le logement patronal comprend un rez-de-chaussée surélevé et un étage carré. La conciergerie est bâtie en moellon de grès enduit et pan de bois hourdée de brique silico-calcaire. La cheminée en brique est encore en place. Sept logements ouvriers sont construits sur l'avenue de la Vallée du Breuchin, dont cinq maisons individuelles.
- grès
- béton
- bois
- brique
- brique silico-calcaire
- grès
- pierre de taille
- parpaing de béton
- pan de bois
- moellon
- pan de bois
- enduit
- enduit
- tuile mécanique
- fer en couverture
- verre en couverture
- rez-de-chaussée surélevé
- 1 étage carré
- étage en surcroît
- charpente métallique apparente
- énergie hydraulique
- énergie thermique
- énergie électrique
- produite sur place
- produite sur place
- produite sur place
- achetée
À voir
Informations complémentaires
- patrimoine industriel de la Haute-Saône
- atelier de fabrication
- entrepôt industriel
- magasin industriel
- logement patronal
- logement d'ouvriers
- conciergerie
- bureau
- cheminée d'usine
- bief de dérivation
- transformateur
- © Région Bourgogne-Franche-Comté, Inventaire du patrimoine
