MOULIN À FARINE, PUIS USINE DE PAPETERIE OUTHENIN-CHALANDRE FILS ET CIE, PUIS PAPETERIES DE FRANCE, ACTUELLEMENT CENTRALE HYDROÉLECTRIQUE
70 - Savoyeux
1, 3, 5, 7 Grande-Rue
- Dossier IA70000357 réalisé en 2008
- Auteur(s) : Raphaël Favereaux
Historique
Un moulin figure sur la carte de Cassini (1760). Incendié en 1814, il est acquis en 1817 - ainsi que le château et son domaine - par Aimé François Tramoy, propriétaire du moulin de Gray (IA00076885). Le moulin est entièrement reconstruit en 1823-1824. Il s'agit d'un bâtiment formant un fer à cheval irrégulier, sur quatre étages, et doté des derniers perfectionnements. Il est équipé de cinq roues hydrauliques mettant en jeu six paires de meules (chaque roue en actionnant deux), deux "mécaniques à nettoyer le blé avec les cribles et cylindres accessoires et une pompe rotative". Il peut produire 40 000 hl de farine par an. L'arrêté préfectoral du 30 avril 1844 autorise Tramoy à "remplacer les roues de son moulin et à modifier le mécanisme intérieur de l'usine".
Malgré un arrêté présidentiel du 6 décembre 1850 qui autorise le maintien de l'activité, le moulin est vendu en 1854 à la société Outhenin-Chalandre Fils et Cie, laquelle fait construire une papeterie, mise en service au début de l'année 1857. Le contrat passé en juillet 1855 entre la société et MM. Joffrin Antoine, et Robert, entrepreneurs carriers à Dampierre-sur-Salon, mentionne la fourniture de "matériaux en taille et moellon nécessaires à la construction de deux bâtiments annexés au moulin de Savoyeux pour le convertir en papeterie". Issu d'une famille d'imprimeurs installée à Besançon, Claude Antoine Joseph Outhenin, et son père, avaient acquis en 1834 le moulin à papier de Geneuille (25) pour le transformer en papeterie (étudiée IA25001640), équipée d'une machine à papier. La société Outhenin-Chalandre Fils et Cie est constituée le 1er septembre 1837. Une usine de pâte à papier est fondée à Chevroz (25) en 1846 (étudiée IA25001680). Une troisième papeterie est fondée en 1875 à Deluz (25) (étudiée IA25000591), et une seconde usine de pâte à papier est implantée dans la commune voisine de Seveux en 1877 (étudiée IA70000351). La papeterie de Savoyeux est dotée d'une machine à papier qui, pour la première fois en France, réalise un collage à la gélatine, plus résistant et permettant d'utiliser une plus forte proportion de chiffons de coton. Le régime hydraulique de l'établissement est fixé par décret impérial le 18 mars 1857, modifié en 1868 et en 1908. La matrice cadastrale signale un agrandissement de l'usine et la construction d'un logement vers 1865, ainsi que celle d'un vaste logement ouvrier vers 1890 au centre du village. D'autres extensions sont mentionnées dans la dernière décennie du 19e siècle (hangar, scierie et forge, magasin, bureau, cheminée et bâtiment de la machine à vapeur).
L'entreprise est transformée en société anonyme en 1922. Cette année-là, les cinq usines produisent 350 t de pâte et 650 t de papier par mois. L'usine de Savoyeux produit alors du papier destiné à l'impression des "titres et des chèques, avec filigranes clairs ou ombrés et gélatinés". En 1930, la société Outhenin-Chalandre fusionne avec la société grenobloise des Papeteries de France. En 1957, l'usine produit 140 t de papier par mois, principalement du papier à lettres. Lorsque la papeterie ferme ses portes en 1975, elle produit annuellement 3000 t de papier fin et de luxe. Elle est occupée quelques années par la Papeterie de Mandeure (25) (étudiée IA25000932), puis jusqu'en 1998 par deux entreprises de menuiserie. Achetée par un particulier, la centrale hydroélectrique est toujours en activité. Le reste des bâtiments est aujourd'hui désaffecté, la cheminée ayant été abattue au début des années 1980.
Le moulin reconstruit en 1824 est équipé de 6 tournants (paires de meules) à triple harnais, deux mécaniques à nettoyer le blé avec cribles et cylindres, et une pompe, mis en jeu par 5 roues hydrauliques. A sa mise en service, la papeterie est équipée de matériel anglais : 4 cylindres défileurs, 6 cylindres raffineurs, une machine à papier de 2,10 m de largeur, une machine à coller à la gélatine, une sécherie et une coupeuse. L'arrêté préfectoral du 15 décembre 1856 autorise l'utilisation de deux chaudières et d'une machine à vapeur de 20 ch pour la mise en jeu de la machine à papier. Elles seront remplacées par une chaudière et une machine à vapeur de 50 ch en vertu d'un arrêté préfectoral du 16 mars 1861. Vers 1900, deux turbines développent une puissance de 350 ch. En 1918, la puissance hydraulique atteint 180 ch.
La papeterie emploie 72 hommes, 70 femmes et 55 enfants en 1893, 100 ouvriers en 1960, et 53 à la fermeture en 1975.
- 1er quart 19e siècle
- 3e quart 19e siècle
- 4e quart 19e siècle
Description
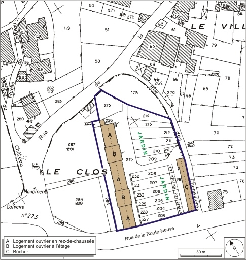
Les bâtiments industriels sont construits en moellon de calcaire enduit et couverts de toit à longs pans en tuile plate et tuile mécanique. L'atelier de fabrication donnant sur la Grande-Rue et construit dans les années 1850 comprend deux étages carrés et un étage de comble. Ses larges baies, ainsi que celles des ateliers et magasins longeant la Saône, sont couvertes d'arc segmentaire en pierre de taille calcaire à bossage rustique. Les pavillons construits symétriquement sur la façade postérieure sont couverts de toits à croupe rehaussés de lanterneaux. La salle de la machine à vapeur est édifiée en brique. Le logement ouvrier consiste en un long corps de bâtiment alternant trois logements en rez-de-chaussée et deux à un étage. Chacun d'eux abritait trois appartements. Il est construit en moellon de calcaire enduit, couvert de toits à longs pans et tuile mécanique.
- calcaire
- brique
- calcaire
- moellon
- pierre de taille
- enduit
- enduit
- tuile mécanique
- tuile plate
- 2 étages carrés
- étage de comble
- énergie hydraulique produite sur place turbine hydraulique
- énergie thermique produite sur place
- énergie électrique achetée
- énergie électrique produite sur place
Source(s) documentaire(s)
-
Savoyeux (Haute-Saône). - Les Papeteries.
Savoyeux (Haute-Saône). - Les Papeteries. Carte postale, C.L.B. éd., s.n., s.d. [fin 19e ou début 20e siècle].Lieu de conservation : Archives départementales de la Haute-Saône, Vesoul - Cote du document : 11 Fi 481/1 -
Plan produit à l'appui de la demande de Mrs Outhenin-Chalandre Fils et Cie [...] vue en élévation de la maison commune et du bâtiment projeté de Mr Chalandre.
Plan produit à l'appui de la demande de Mrs Outhenin-Chalandre Fils et Cie [...] vue en élévation de la maison commune et du bâtiment projeté de Mr Chalandre. Papier, plume, lavis, s.n., s.d. [1861].Lieu de conservation : Archives départementales de la Haute-Saône, Vesoul - Cote du document : 481 E dépôt 63/05 -
Plan général de la papeterie de Savoyeux - Papeteries Outhenin-Chalandre.
Plan général de la papeterie de Savoyeux - Papeteries Outhenin-Chalandre. Plan, échelle 1:200, 1928.Lieu de conservation : Collection particulière -
Papeteries de France - Savoyeux. Chiffons - Sortes courantes [planche d'échantillons de pièces de coton], août 1937.
Papeteries de France - Savoyeux. Chiffons - Sortes courantes [planche d'échantillons de pièces de coton], août 1937.Lieu de conservation : Archives départementales de la Haute-Saône, Vesoul - Cote du document : 113 J 27
-
Prouteaux, Albert. Guide pratique de la fabrication du papier et du carton, 1885
Prouteaux, Albert. Guide pratique de la fabrication du papier et du carton. Nouv. éd. - Paris : J. Hetzel et Cie, 1885. 357 p. : 8 pl. ; 18 cm. (Bibliothèque des professions industrielles, agricoles et commerciales. Série G, Arts et métiers ; 18) -
Suchaux, Louis. Annuaire statistique et historique du département de la Haute-Saône
Suchaux, Louis. Annuaire statistique et historique du département de la Haute-Saône.
À voir
Informations complémentaires
- patrimoine industriel de la Haute-Saône
- atelier de fabrication
- atelier de conditionnement
- atelier de réparation
- magasin industriel
- entrepôt industriel
- bâtiment d'eau
- salle des machines
- logement d'ouvriers
- logement
- garage
- © Région Bourgogne-Franche-Comté, Inventaire du patrimoine
