LYCÉE TECHNIQUE COMMERCIAL MIXTE LE GRAND CHÊNOIS, ACTUELLEMENT LYCÉE GÉNÉRAL ET TECHNOLOGIQUE LE GRAND CHÊNOIS
25 - Montbéliard
rue Pierre Donzelot
- Dossier IA25000887 réalisé en 2012
 - Auteur(s) : Raphaël Favereaux, Philippe Mairot
 
                                          Historique
Implanté au nord du lycée Viette (IA25000889), l'établissement du Grand Chênois est construit en 1973 par l'architecte A. Bourdon. Il a pour vocation d'accueillir le lycée technique commercial, initialement installé dans les locaux du lycée des Huisselets (IA25000888), jugés alors vétustes et mal adaptés. Le lycée est bâti sur un terrain de 7 ha acquis par la ville de Montbéliard pour un coût total de 9,10 millions de francs. Le procédé de constructions industrialisées Fiorio est adopté et mis en oeuvre par la Société de Construction Industrielle du Bâtiment, d'Etupes (25). Le "lycée commercial mixte" est conçu pour un effectif de 756 élèves (110 externes, 436 demi-pensionnaires et 210 internes), et ouvre ses portes en septembre 1973. Il est officiellement remis au District Urbain du Pays de Montbéliard le 30 janvier 1976, année d'aménagement des premiers espaces verts. L'effectif passe de 669 élèves en 1973 à 845 en 1976. Une cantine scolaire est édifiée en 1989 au nord du site, d'après des plans des architectes Jean-Pierre Varin et Jean-Claude Miny. L'année suivante un nouveau bâtiment d'externat (actuel "Quartier latin") construit, assurant la jonction entre les bâtiment de logements et d'administration. Entre 1998 et 2002, le lycée bénéficie d'une restructuration complète menée par Jean-Pierre Varin et Jean-Claude Miny : création de passerelles entre les bâtiments, nouveau CDI, nouvelle salle des professeurs et préau transformé en un hall couvert. Une partie du bâtiment d'internat a été convertie en salles de cours (bâtiment "Digital"). L'établissement s'est ouvert dès 1979 aux filières post-baccalauréat (BTS), puis aux filières dites classiques en 1982. En 2007, il est certifié comme "institution participant au réseau du système des écoles associées à l'UNESCO". Le lycée accueille aujourd'hui 1200 élèves (950 élèves en pré-bac et 250 étudiants), il dispose d'une demi-pension d'un petit internat mixte. Les filières post-baccalauréat sont à dominantes tertiaires. Il accueille 1200 élèves en 2012.
- 3e quart 20e siècle
 - 4e quart 20e siècle
 
Date de naissance : 17/12/1915 - date de décès : 15/11/1990
Bourdon, André (1915-1990). Architecte. Né à Maisons-Laffitte. Associé dans le cadre d'un cabinet d'architectes à son frère René, établi au 1 rue Glück à Paris. Les deux frères sont architectes en chef des Bâtiments civils et Palais nationaux. René (1913-2006) construit en 1966 avec son frère le lycée Xavier Marmier de Pontarlier ; André bâtit celui du Grand Chénois à Montbéliard en 1973. Il travaille au sein du groupe des architectes français du nucléaire au côté de Claude Parent, Jean Dubuisson, Paul Andreu, etc. On ne sait avec certitude lequel des deux construit l'internat du lycée professionnel Louis Garnier à Audincourt en 1968 ou s'ils oeuvrent à deux. L'un d'eux est second grand prix de Rome en 1953. (Source : https://agorha.inha.fr/ark:/54721/cab25f41-01b6-4b44-b17f-45fd22516efb)
Jean-Pierre Varin, architecte. 2e moitié du 20e siècle-21e siècle. Diplômé en 1968, basé à Besançon.
Description
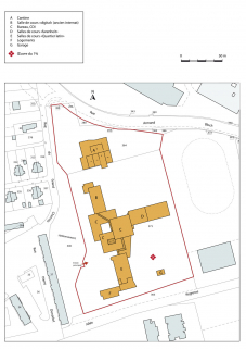
Le lycée est implanté sur un terrain légèrement pentu, au sud de la ville. De plan rectangulaire, tous les bâtiments sont construits en béton armé, avec hourdis en parpaing de béton et enduit, et sont couverts de terrasse. Les bâtiments d'externat, rebaptisés Digital (D), Farenheit (C) et Quartier latin (B), sont pourvus de trois étages carrés. Le bâtiment administratif, réhabilité, est en rez-de-chaussée, avec une partie dotée d'un étage carré. Sa structure en béton armé est bardée de tôle et la toiture en terrasse ajourée par une verrière. La circulation entre les bâtiments s'effectue par un système de passerelles disposées autour du bâtiment d'accueil et d'administration (A). Quatre "placettes", disposées en diagonale dans la cour et délimitées par du mobilier métallique et en pierre, ont vraisemblablement été aménagées dans le cadre de la procédure du 1 % artistique, bien qu'on n'en connaisse pas l'auteur.
- béton
 - béton armé
 - parpaing de béton
 - enduit
 - essentage de tôle
 
- béton en couverture
 - matériau synthétique en couverture
 
- rez-de-chaussée
 - 3 étages carrés
 
- élévation à travées
 
- escalier tournant à retours avec jour,
 - escalier tournant à retours sans jour,
 
Source(s) documentaire(s)
- 
                                                                              2 W 486 Lycée technique et polyvalent Jules Viette et lycée Grand Chénois, Montbéliard (1971 -1992)
                                                                                                                    
Lycée technique et polyvalent Jules Viette et lycée Grand Chénois, Montbéliard (1971 -1992)Lieu de conservation : Région Franche-Comté, Archives, Besançon - Cote du document : 2 W 486 - 
                                                                              2 w 487-490 lycée d'enseignement technologique nationalisé mixte le Grand Chénois, Montbéliard (1971-1992)
                                                                                                                    
Lycée d'enseignement technologique nationalisé mixte le Grand Chénois, Montbéliard (1971-1992)Lieu de conservation : Région Franche-Comté, Archives, Besançon - Cote du document : 2 w 487-490 - 
                                                                              1317 W 151 Lycée Technique Commercial Mixte de Montbéliard (1974 - 1978)
                                                                                                                    
Lycée technique commercial mixte de Montbéliard (1974 - 1978)Lieu de conservation : Archives départementales du Doubs, Besançon - Cote du document : 1317 W 151 - 
                                                                              1242 W 122 Lycées de Montbéliard
                                                                                                                    
Lycée Cuvier, Viette et Grand Chénois etc. (correspondances diverses, tracts)Lieu de conservation : Archives départementales du Doubs, Besançon - Cote du document : 1242 W 122 - 
                                                                              12 W 50 Lycée le Grand Chénois
                                                                                                                    
Lycée le Grand Chénois (liste des plans de construction envoyés le 6 septembre 1977. Modification de la voie d’accès. Aménagement des espaces verts.Lieu de conservation : Archives communales, Montbéliard - Cote du document : 12 W 50 - 
                                                                              349 W 12 lycée Grand Chénois (2000)
                                                                                                                    
lycée Grand Chénois (appel d’offre du 12 mai 2000 pour un réaménagement et une extension du bâtiment administration et CDI)Lieu de conservation : Région Franche-Comté, Archives, Besançon - Cote du document : 349 W 12 - 
                                                                              2 W 267 Lycée Grand Chénois
                                                                                                                    
Lycée Grand Chénois (Construction bâtiment restauration et demi-pension)Lieu de conservation : Région Franche-Comté, Archives, Besançon - Cote du document : 2 W 267 - 
                                                                              97 W 5 Lycées le Grand Chénois et Huisselets
                                                                                                                    
Lycée le Grand Chénois et Huisselets 1992 (extension)Lieu de conservation : Région Franche-Comté, Archives, Besançon - Cote du document : 97 W 5 - 
                                                                              620 W 35 : Travaux sanitaire internat (2006)
                                                                                                                    
Travaux sanitaire internat (2006)Lieu de conservation : Région Franche-Comté, Archives, Besançon - Cote du document : 620 W 35 
À voir
Informations complémentaires
- lycées publics de Franche-Comté
 
- cour
 - chaufferie
 - préau
 - cantine
 - internat
 - logement
 - stationnement
 - garage
 - bureau
 
- © Région Bourgogne-Franche-Comté, Inventaire du patrimoine
 
                                                                
                                                                
                          
                          
                          
                          
                          
                          
                          
                          
                          
                          
                          
                          
                          
                          
                          
                          
                          
                          
                          
                          
                          
                          
                          
                          
                          
                          
                          
                          
                                                  
                                                  
                                                  
                                                  
                                                  
                                                  
                                                  
                                                  
                                                  
                                                  
                                                  
                                                  
                                                  
                                                  
                                                  
                                                  
                                                  
                                                  
                                                  
                                                  
                                                  
                                                  
                                                  
                                                  
                                                  
                                                  
                                                  
                                                  