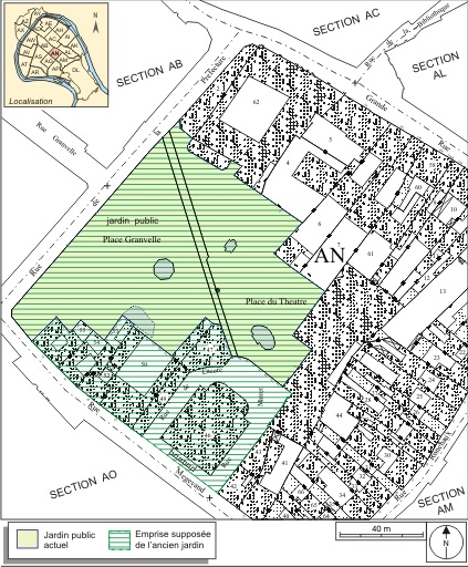
Plan masse et de situation. Extrait du plan cadastral, 1974, section AN.
25, Besançon rue de la Préfecture, lieudit : îlot Granvelle
-
Extrait du plan cadastral, 1974, section AN.
N° de l’illustration : 20072500068NUDA
Date : 2007
Auteur : André Céréza
Reproduction soumise à autorisation du titulaire des droits d'exploitation
- © Région Bourgogne-Franche-Comté, Inventaire du patrimoine
Vue d'ensemble depuis le kiosque à musique.
25, Besançon rue de la Préfecture, lieudit : îlot Granvelle
N° de l’illustration : 20022500063XA
Date : 2002
Auteur : Jérôme Mongreville
Reproduction soumise à autorisation du titulaire des droits d'exploitation
- © Région Bourgogne-Franche-Comté, Inventaire du patrimoine
Vue d'ensemble depuis le kiosque à musique.
25, Besançon rue de la Préfecture, lieudit : îlot Granvelle
N° de l’illustration : 20022500065XA
Date : 2002
Auteur : Jérôme Mongreville
Reproduction soumise à autorisation du titulaire des droits d'exploitation
- © Région Bourgogne-Franche-Comté, Inventaire du patrimoine
Vue d'ensemble depuis le kiosque à musique avec la partie haute de la rue de la Préfecture.
25, Besançon rue de la Préfecture, lieudit : îlot Granvelle
N° de l’illustration : 20022500067XA
Date : 2002
Auteur : Jérôme Mongreville
Reproduction soumise à autorisation du titulaire des droits d'exploitation
- © Région Bourgogne-Franche-Comté, Inventaire du patrimoine
Vue d'ensemble de la partie située le long de la rue de la Préfecture.
25, Besançon rue de la Préfecture, lieudit : îlot Granvelle
N° de l’illustration : 20022500061XA
Date : 2002
Auteur : Jérôme Mongreville
Reproduction soumise à autorisation du titulaire des droits d'exploitation
- © Région Bourgogne-Franche-Comté, Inventaire du patrimoine
Vue d'ensemble avec la partie haute de la rue de la Préfecture.
25, Besançon rue de la Préfecture, lieudit : îlot Granvelle
N° de l’illustration : 20022500056XA
Date : 2002
Auteur : Jérôme Mongreville
Reproduction soumise à autorisation du titulaire des droits d'exploitation
- © Région Bourgogne-Franche-Comté, Inventaire du patrimoine
Vue d'ensemble depuis la partie haute de la rue de la Préfecture.
25, Besançon rue de la Préfecture, lieudit : îlot Granvelle
N° de l’illustration : 20022500058XA
Date : 2002
Auteur : Jérôme Mongreville
Reproduction soumise à autorisation du titulaire des droits d'exploitation
- © Région Bourgogne-Franche-Comté, Inventaire du patrimoine
Kiosque : vue éloignée.
25, Besançon rue de la Préfecture, lieudit : îlot Granvelle
N° de l’illustration : 20082500195NUC2A
Date : 2008
Auteur : Jérôme Mongreville
Reproduction soumise à autorisation du titulaire des droits d'exploitation
- © Région Bourgogne-Franche-Comté, Inventaire du patrimoine
Kiosque : vue d'ensemble, de face.
25, Besançon rue de la Préfecture, lieudit : îlot Granvelle
N° de l’illustration : 20082500192NUC2A
Date : 2008
Auteur : Jérôme Mongreville
Reproduction soumise à autorisation du titulaire des droits d'exploitation
- © Région Bourgogne-Franche-Comté, Inventaire du patrimoine
Vue d'ensemble du kiosque depuis la droite.
25, Besançon rue de la Préfecture, lieudit : îlot Granvelle
N° de l’illustration : 20082500191NUC2A
Date : 2008
Auteur : Jérôme Mongreville
Reproduction soumise à autorisation du titulaire des droits d'exploitation
- © Région Bourgogne-Franche-Comté, Inventaire du patrimoine
Kiosque : vue de face avec la montée d'escalier.
25, Besançon rue de la Préfecture, lieudit : îlot Granvelle
N° de l’illustration : 20082500194NUC2A
Date : 2008
Auteur : Jérôme Mongreville
Reproduction soumise à autorisation du titulaire des droits d'exploitation
- © Région Bourgogne-Franche-Comté, Inventaire du patrimoine
Kiosque : détail de la montée d'escalier.
25, Besançon rue de la Préfecture, lieudit : îlot Granvelle
N° de l’illustration : 20082500193NUC2A
Date : 2008
Auteur : Jérôme Mongreville
Reproduction soumise à autorisation du titulaire des droits d'exploitation
- © Région Bourgogne-Franche-Comté, Inventaire du patrimoine
Vue d'ensemble de la grotte artificielle.
25, Besançon rue de la Préfecture, lieudit : îlot Granvelle
N° de l’illustration : 20092500188NUC2A
Date : 2009
Auteur : Yves Sancey
Reproduction soumise à autorisation du titulaire des droits d'exploitation
- © Région Bourgogne-Franche-Comté, Inventaire du patrimoine
Détail de la grotte artificielle de trois quarts droit.
25, Besançon rue de la Préfecture, lieudit : îlot Granvelle
N° de l’illustration : 20092500972NUC2A
Date : 2009
Auteur : Yves Sancey
Reproduction soumise à autorisation du titulaire des droits d'exploitation
- © Région Bourgogne-Franche-Comté, Inventaire du patrimoine
Vue rapprochée de la grotte artificielle.
25, Besançon rue de la Préfecture, lieudit : îlot Granvelle
N° de l’illustration : 20092500970NUC2A
Date : 2009
Auteur : Yves Sancey
Reproduction soumise à autorisation du titulaire des droits d'exploitation
- © Région Bourgogne-Franche-Comté, Inventaire du patrimoine
Détail de la grotte artificielle.
25, Besançon rue de la Préfecture, lieudit : îlot Granvelle
N° de l’illustration : 20092500971NUC2A
Date : 2009
Auteur : Yves Sancey
Reproduction soumise à autorisation du titulaire des droits d'exploitation
- © Région Bourgoge-Franche-Comté, Inventaire du Patrimoine
Borne fontaine dite fontaine wallace : vue d'ensemble éloignée.
25, Besançon rue de la Préfecture, lieudit : îlot Granvelle
N° de l’illustration : 20082500189NUC2A
Date : 2008
Auteur : Jérôme Mongreville
Reproduction soumise à autorisation du titulaire des droits d'exploitation
- © Région Bourgogne-Franche-Comté, Inventaire du patrimoine
Borne fontaine dite fontaine wallace : vue d'ensemble.
25, Besançon rue de la Préfecture, lieudit : îlot Granvelle
N° de l’illustration : 20082500190NUC2A
Date : 2008
Auteur : Jérôme Mongreville
Reproduction soumise à autorisation du titulaire des droits d'exploitation
- © Région Bourgogne-Franche-Comté, Inventaire du patrimoine
Borne fontaine dite fontaine wallace : détail de deux cariatide.
25, Besançon rue de la Préfecture, lieudit : îlot Granvelle
N° de l’illustration : 20082500187NUC2A
Date : 2008
Auteur : Jérôme Mongreville
Reproduction soumise à autorisation du titulaire des droits d'exploitation
- © Région Bourgogne-Franche-Comté, Inventaire du patrimoine
Borne fontaine dite fontaine wallace : détail d'une tête de cariatide.
25, Besançon rue de la Préfecture, lieudit : îlot Granvelle
N° de l’illustration : 20082500188NUC2A
Date : 2008
Auteur : Jérôme Mongreville
Reproduction soumise à autorisation du titulaire des droits d'exploitation
- © Région Bourgogne-Franche-Comté, Inventaire du patrimoine
Détail de l'ancien portail d'entrée de l'église du couvent des Carmes, de face.
25, Besançon rue de la Préfecture, lieudit : îlot Granvelle
N° de l’illustration : 20092500168NUC2A
Date : 2009
Auteur : Yves Sancey
Reproduction soumise à autorisation du titulaire des droits d'exploitation
- © Région Bourgoge-Franche-Comté, Inventaire du Patrimoine
Détail du pilier central de l'ancien portail d'entrée de l'église du couvent des Carmes.
25, Besançon rue de la Préfecture, lieudit : îlot Granvelle
N° de l’illustration : 20092500169NUC2A
Date : 2009
Auteur : Yves Sancey
Reproduction soumise à autorisation du titulaire des droits d'exploitation
- © Région Bourgogne-Franche-Comté, Inventaire du patrimoine
Monument dédié à Victor Hugo [1re moitié 20e siècle].
25, Besançon rue de la Préfecture, lieudit : îlot Granvelle
-
Besançon (Doubs), promenade Granvelle : monument dédié à Victor Hugo. Photographie, [1re moitié 20e siècle] par Jules Manias
Lieu de conservation : Région Bourgogne-Franche-Comté, Inventaire et Patrimoine, Besançon - Cote du document : Fonds Manias
N° de l’illustration : 20062500863PY
Date : 2006
Auteur : Christiane Roussel
Reproduction soumise à autorisation du titulaire des droits d'exploitation
- © Région Bourgogne-Franche-Comté, Inventaire du patrimoine
Monument dédié à Victor Hugo : vue d'ensemble de trois quarts droit.
25, Besançon rue de la Préfecture, lieudit : îlot Granvelle
N° de l’illustration : 20082500209NUC2A
Date : 2008
Auteur : Jérôme Mongreville
Reproduction soumise à autorisation du titulaire des droits d'exploitation
- © Région Bourgogne-Franche-Comté, Inventaire du patrimoine
Monument dédié à Victor Hugo : de trois quarts droit, vue rapprochée.
25, Besançon rue de la Préfecture, lieudit : îlot Granvelle
N° de l’illustration : 20082500211NUC2A
Date : 2008
Auteur : Jérôme Mongreville
Reproduction soumise à autorisation du titulaire des droits d'exploitation
- © Région Bourgogne-Franche-Comté, Inventaire du patrimoine
Monument dédié à Victor Hugo : vue de la statue de trois quarts droit.
25, Besançon rue de la Préfecture, lieudit : îlot Granvelle
N° de l’illustration : 20082500208NUC2A
Date : 2008
Auteur : Jérôme Mongreville
Reproduction soumise à autorisation du titulaire des droits d'exploitation
- © Région Bourgogne-Franche-Comté, Inventaire du patrimoine
Monument dédié à Victor Hugo : détail du buste de la statue de trois quarts droit.
25, Besançon rue de la Préfecture, lieudit : îlot Granvelle
N° de l’illustration : 20082500207NUC2A
Date : 2008
Auteur : Jérôme Mongreville
Reproduction soumise à autorisation du titulaire des droits d'exploitation
- © Région Bourgogne-Franche-Comté, Inventaire du patrimoine
Monument dédié à Victor Hugo : de dos.
25, Besançon rue de la Préfecture, lieudit : îlot Granvelle
N° de l’illustration : 20082500210NUC2A
Date : 2008
Auteur : Jérôme Mongreville
Reproduction soumise à autorisation du titulaire des droits d'exploitation
- © Région Bourgogne-Franche-Comté, Inventaire du patrimoine
Monument dédié à Victor Hugo : détail du socle en porphyre vert fourni par la graniterie du Pont de Miellin.
25, Besançon rue de la Préfecture, lieudit : îlot Granvelle
N° de l’illustration : 20202500160NUC4A
Date : 2020
Auteur : Pierre-Marie Barbe-Richaud
Reproduction soumise à autorisation du titulaire des droits d'exploitation
- © Région Bourgogne-Franche-Comté, Inventaire du patrimoine
Porphyre vert de la graniterie du Pont de Miellin : socle du monument dédié à Victor Hugo, Besançon (promenade Granvelle).
N° de l’illustration : 20202500162NUC4A
Date : 2020
Auteur : Pierre-Marie Barbe-Richaud
Reproduction soumise à autorisation du titulaire des droits d'exploitation
- © Région Bourgogne-Franche-Comté, Inventaire du patrimoine
Monument dédié à Victor Hugo : détail du socle en porphyre vert fourni par la graniterie du Pont de Miellin.
25, Besançon rue de la Préfecture, lieudit : îlot Granvelle
N° de l’illustration : 20202500159NUC4A
Date : 2020
Auteur : Pierre-Marie Barbe-Richaud
Reproduction soumise à autorisation du titulaire des droits d'exploitation
- © Région Bourgogne-Franche-Comté, Inventaire du patrimoine
Monument dédié au peintre Théobald Chartran : vue d'ensemble.
25, Besançon rue de la Préfecture, lieudit : îlot Granvelle
N° de l’illustration : 20082500204NUC2A
Date : 2008
Auteur : Jérôme Mongreville
Reproduction soumise à autorisation du titulaire des droits d'exploitation
- © Région Bourgogne-Franche-Comté, Inventaire du patrimoine
Monument dédié au peintre Théobald Chartran : détail du buste et de l'inscription.
25, Besançon rue de la Préfecture, lieudit : îlot Granvelle
N° de l’illustration : 20082500205NUC2A
Date : 2008
Auteur : Jérôme Mongreville
Reproduction soumise à autorisation du titulaire des droits d'exploitation
- © Région Bourgogne-Franche-Comté, Inventaire du patrimoine
Monument dédié au peintre Théobald Chartran : détail du buste.
25, Besançon rue de la Préfecture, lieudit : îlot Granvelle
N° de l’illustration : 20082500206NUC2A
Date : 2008
Auteur : Jérôme Mongreville
Reproduction soumise à autorisation du titulaire des droits d'exploitation
- © Région Bourgogne-Franche-Comté, Inventaire du patrimoine
Monument dédié à Adolphe Viel-Picard : vue d'ensemble, de face.
25, Besançon rue de la Préfecture, lieudit : îlot Granvelle
N° de l’illustration : 20082500200NUC2A
Date : 2008
Auteur : Jérôme Mongreville
Reproduction soumise à autorisation du titulaire des droits d'exploitation
- © Région Bourgogne-Franche-Comté, Inventaire du patrimoine
Monument dédié à Adolphe Viel-Picard : vue d'ensemble du côté du jardin public.
25, Besançon rue de la Préfecture, lieudit : îlot Granvelle
N° de l’illustration : 20082500203NUC2A
Date : 2008
Auteur : Jérôme Mongreville
Reproduction soumise à autorisation du titulaire des droits d'exploitation
- © Région Bourgogne-Franche-Comté, Inventaire du patrimoine
Monument dédié à Adolphe Viel-Picard : vue d'ensemble du côté de la rue.
25, Besançon rue de la Préfecture, lieudit : îlot Granvelle
N° de l’illustration : 20082500202NUC2A
Date : 2008
Auteur : Jérôme Mongreville
Reproduction soumise à autorisation du titulaire des droits d'exploitation
- © Région Bourgogne-Franche-Comté, Inventaire du patrimoine
Monument dédié à Adolphe Viel-Picard : vue du personnage situé au revers du buste, de face.
25, Besançon rue de la Préfecture, lieudit : îlot Granvelle
N° de l’illustration : 20082500199NUC2A
Date : 2008
Auteur : Jérôme Mongreville
Reproduction soumise à autorisation du titulaire des droits d'exploitation
- © Région Bourgogne-Franche-Comté, Inventaire du patrimoine
Monument dédié à Adolphe Viel-Picard : vue du groupe de statues, de face.
25, Besançon rue de la Préfecture, lieudit : îlot Granvelle
N° de l’illustration : 20082500201NUC2A
Date : 2008
Auteur : Jérôme Mongreville
Reproduction soumise à autorisation du titulaire des droits d'exploitation
- © Région Bourgogne-Franche-Comté, Inventaire du patrimoine
Monument dédié à Adolphe Viel-Picard : vue du personnage situé au revers du buste, de profil.
25, Besançon rue de la Préfecture, lieudit : îlot Granvelle
N° de l’illustration : 20082500197NUC2A
Date : 2008
Auteur : Jérôme Mongreville
Reproduction soumise à autorisation du titulaire des droits d'exploitation
- © Région Bourgogne-Franche-Comté, Inventaire du patrimoine
Monument dédié à Adolphe Viel-Picard : vue du groupe de personnages situé à gauche du buste, de face.
25, Besançon rue de la Préfecture, lieudit : îlot Granvelle
N° de l’illustration : 20082500198NUC2A
Date : 2008
Auteur : Jérôme Mongreville
Reproduction soumise à autorisation du titulaire des droits d'exploitation
- © Région Bourgogne-Franche-Comté, Inventaire du patrimoine
Monument dédié à Adolphe Viel-Picard : vue de la vieille femme située à gauche du buste, de profil.
25, Besançon rue de la Préfecture, lieudit : îlot Granvelle
N° de l’illustration : 20082500196NUC2A
Date : 2008
Auteur : Jérôme Mongreville
Reproduction soumise à autorisation du titulaire des droits d'exploitation
- © Région Bourgogne-Franche-Comté, Inventaire du patrimoine