IMMEUBLE ET CINÉMA LE SÉLECT
21 - Châtillon-sur-Seine
46 rue du Maréchal de Lattre
- Dossier IA21005812 réalisé en 2021
- Auteur(s) : Laurent Poupard
Historique
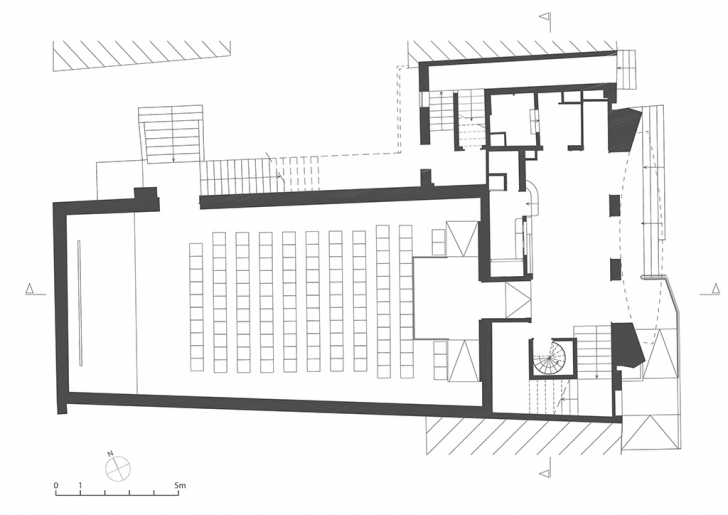
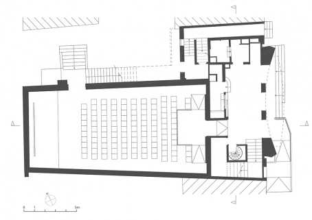
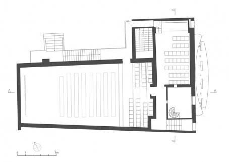
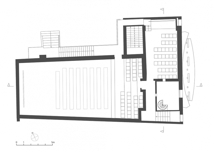
Le cinéma Le Sélect ouvre ses portes le 17 août 1954. Il s'élève au sein d'un quartier détruit par les bombardements des 15 mai et 15 juin 1940 et reconstruit sous la direction d'Henry Viollet. Le bâtiment respecte les préconisations de cet architecte : utilisation de la pierre et réalisation de toits pentus couverts de tuiles plates. Il accueille au rez-de-chaussée une salle de 365 places, équipée d'un projecteur de 16 mm, surmontée de deux niveaux de logements. Fermé le 21 mars 1982, il rouvre le 12 août 1983 après aménagement d'une deuxième salle (nouvelle jauge : 250 et 56 places) et passage au 35 mm. Une nouvelle fois fermé en 2009, il est acquis par la Ville qui confie sa modernisation à l'architecte dijonnais François Brandon, dont l'avant-projet détaillé est validé le 7 juillet 2011. Equipé pour la projection numérique, il ouvre de nouveau le 12 mars 2013. En 2021, il est géré en régie, comporte une salle de 140 places et une autre de 33 places, et dispose de deux projecteurs numériques NEC NC1200C.
- 3e quart 20e siècle
Description
Le cinéma comporte deux corps de bâtiments en équerre, avec un rez-de-chaussée surélevé sur un étage de soubassement desservi par un escalier tournant en béton. Le corps sur rue a une façade en moellons calcaires apparents, où l'entrée est marquée par un mur concave surmonté d'un auvent métallique. Il compte un étage carré et un étage en surcroît à usage d'habitation, protégés par un toit à longs pans, croupe au nord et couverture de tuiles mécaniques (couverture métallique au-dessus de la rangée de fenêtres de l'étage en surcroît). A l'intérieur, la cabine de projection est accessible par un escalier métallique en vis. Le corps en retour a des murs en béton enduit, un escalier extérieur en équerre et en béton, et un toit (avec croupe à l'ouest) en bac acier couvert d'un matériau d'étanchéité. Il abrite la grande salle (salle 1), dotée d'un balcon.
- calcaire
- béton
- moellon
- enduit
- tuile mécanique
- acier en couverture
- étage de soubassement
- rez-de-chaussée surélevé
- 1 étage carré
- étage en surcroît
- élévation à travées
- toit à longs pans, croupe
- escalier dans-oeuvre, escalier tournant à retours, en maçonnerie
- escalier dans-oeuvre, escalier en vis sans jour, en charpente métallique
- escalier de distribution extérieur, escalier en équerre, en maçonnerie
Source(s) documentaire(s)
-
Archives municipales de Châtillon-sur-Seine : cotation provisoire. Réhabilitation du cinéma. 2010-2012.
Archives municipales de Châtillon-sur-Seine : cotation provisoire. Réhabilitation du cinéma. Trois boîtes d'archives (versement des Services techniques). 2010-2012.Lieu de conservation : Archives municipales, Châtillon-sur-Seine - Cote du document : Cotation provisoire (ST 299, 300 et 302)
-
Le cinéma "le Select" de Châtillon sur Seine a rouvert ses portes ! 14 mars 2013.
Le cinéma "le Select" de Châtillon sur Seine a rouvert ses portes ! Châtillonais en Bourgogne [en ligne]. 14 mars 2013, ill. [consultation du 25 octobre 2021]. Accès internet : http://www.christaldesaintmarc.com/le-cinema-le-select-de-chatillon-sur-seine-a-rouvert-ses-portes-a79697627
-
Annuaire du cinéma Bellefaye
Annuaire du cinéma Bellefaye. Paris : Bellefaye, 1948-2015.Titres :Annuaire du cinéma. [1948]-1963.Annuaire du cinéma et télévision. 1964-1985Annuaire du cinéma, télévision, vidéo. 1986-2005.Annuaire du cinéma et de l'audiovisuel. 2006-2015.Numérique à partir de 2016. -
CAUE de Saône-et-Loire. Guide d'architecture en Bourgogne, 1893-2007. 2008.
CAUE de Saône-et-Loire. Guide d'architecture en Bourgogne, 1893-2007. Paris : Picard, 2008. 399 p. : ill. ; 25 cm.
-
Blondeau, Benoît (témoignage oral)
Blondeau, Benoît. Responsable des services techniques de la ville de Châtillon-sur-Seine.
À voir
Informations complémentaires
- salles de spectacle de Bourgogne-Franche-Comté
- © Région Bourgogne-Franche-Comté, Inventaire du patrimoine
