ÉGLISE PAROISSIALE SAINT-LÉGER
21 - Chivres
- Dossier IA00070933 réalisé en 1985 revu en 1987
- Auteur(s) : Elisabeth Réveillon
Historique
Choeur probablement du 13e siècle. Nef du 15e siècle, à entraits engoulés sculptés d'animaux fantastiques et vestiges de peintures murales représentant les apôtres et la colombe du Saint-Esprit. Au 18e siècle, adjonction de la sacristie. Armoiries du pape Léon XIII (1878-1903) et des évêques de Dijon Monseigneur Rivet (1838-1884) et Monseigneur Lecot (1886-1890) peints sur les entraits de la nef par le curé Jarlot
Période(s)
Principale :
- 13e siècle (?)
- 15e siècle
Secondaire :
- 18e siècle
Auteur(s) & personnalité(s)
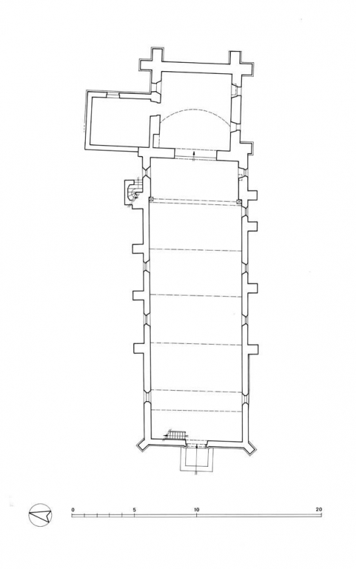
Description
Murs :
- brique
- enduit
Toit :
- tuile plate
- ardoise
Plan :
- plan allongé
Etages :
- 1 vaisseau
Couvrement :
- voûte en berceau segmentaire
- fausse voûte en berceau
Couvertures :
- toit à longs pans
- toit à deux pans
- flèche polygonale
Escalier :
- escalier hors-oeuvre,
- escalier tournant,
Représentations :
- Apôtre
- tête
- animal
- animal fantastique
- chimère
- dragon
- armoiries
sujet : animaux fabuleux, support : entraits de la nef ; sujet : apôtres et colombe du Saint-Esprit peints, support : arcade du choeur ; armes du pape Léon XIII et des évêques de Dijon Mgr Rivet et Mgr Lecot, support : entraits de la nef
Décors :
- peinture
- sculpture
sujet : animaux fabuleux, support : entraits de la nef ; sujet : apôtres et colombe du Saint-Esprit peints, support : arcade du choeur ; armes du pape Léon XIII et des évêques de Dijon Mgr Rivet et Mgr Lecot, support : entraits de la nef
À voir
Informations complémentaires
Thématiques :
- Saône navigable en Bourgogne-Franche-Comté (la)
Aire d’étude et canton :
Bourgogne-Franche-Comté
Dénomination :
église paroissiale
Parties constituantes non étudiées :
- cimetière
- © Région Bourgogne-Franche-Comté, Inventaire du patrimoine
