ÉGLISE PAROISSIALE SAINT-JEAN-BAPTISTE
71 - Verdun-sur-le-Doubs
- Dossier IA71000576 réalisé en 2002 revu en 2003
- Auteur(s) : Brigitte Fromaget
Historique
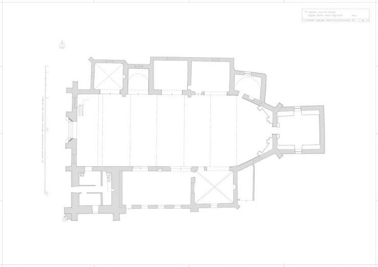
L'ancienne église fut détruite en 1592 pour bâtir un fort destiné à défendre la ville contre les ligueurs. Il en subsiste quelques vestiges dont le portail du 14e siècle, l'oculus du chevet transféré au pignon de la façade en 1684 et la base du clocher. Un mémoire du 18e siècle [A.D. 71, 11 G 29] retrace l'historique de l'édifice actuel : la reconstruction de la nef et du choeur sur les anciennes fondations est entreprise au début du 17e siècle ; en 1609, les échevins font un emprunt afin de poursuivre les travaux et, le 29 août 1612, Cirus de Thyard, évêque et comte de Chalon, consacre l'église en même temps que l'autel de la chapelle Saint-Pierre, fondée en 1410. Dans un acte de 1626, Guerrin Goy et sa femme déclarent avoir fait lambrisser le choeur de l'église, la nef ne le fut qu'en 1671 (mais en 1712 la foudre tomba sur le clocher qui brûla avec une partie de la nef). En 1601, la confrérie des treize (la Vierge et les douze apôtres) décide de rebâtir sa chapelle dont le lambrissage, jugé trop plat, est refait en 1670. La confrérie du Rosaire, établie dans l'église en 1638, fait construire une chapelle en 1643, avec des briques de Verdun et de la tuilerie de Ciel données par le marquis de Beaume, seigneur de Verdun. Le 6 juillet 1650, la confrérie des mariniers obtient l'autorisation de bâtir sans délais une chapelle Saint-Nicolas (actuellement du Sacré-Coeur), "et de faire dans le mur du choeur, vis à vis la chapelle du Rosaire, une ouverture où serait un grand cintre et une porte" (l'arcade remaniée par la suite est datée 1669). En 1679, une chapelle Saint-Claude (actuellement Saint-Joseph) est édifiée entre les chapelles Saint-Pierre et Saint-Nicolas ; une porte de communication avec cette dernière est percée en 1688. Deux veuves de la confrérie de Sainte-Anne font bâtir une chapelle voûtée au début du 18e siècle, l'une y est inhumée en 1724. En 1780 une nouvelle sacristie remplace l'ancienne, désaffectée, comme l'indiquent deux inscriptions gravées, sur le linteau d'une fenêtre droite : 1780 / Sr JOUANDON Mt Mn (nom du maître maçon qui a construit la sacristie maître maçon ?), et sur une pierre d'angle : Me JEAN LARDET / BACHELIER EN DROIT / CIVIL ET CANON / PRE.RE ET CURE DE / VERDUN AN 1780.
Période(s)
Principale :
- 14e siècle
- 15e siècle
- limite 15e siècle 16e siècle
- 17e siècle
- 1er quart 18e siècle
- 4e quart 18e siècle
Date(s)
1601 :
daté par source
1643 :
daté par source
1650 :
daté par source
1669 :
daté par source
1679 :
daté par source
1780 :
porte la date
Auteur(s) & personnalité(s)
Description
L'ancienne église fut détruite en 1592 pour bâtir un fort destiné à défendre la ville contre les ligueurs. Il en subsiste quelques vestiges dont le portail du 14e siècle, l'oculus du chevet transféré au pignon de la façade en 1684 et la base du clocher. Un mémoire du 18e siècle [A.D. 71, 11 G 29] retrace l'historique de l'édifice actuel : la reconstruction de la nef et du choeur sur les anciennes fondations est entreprise au début du 17e siècle ; en 1609, les échevins font un emprunt afin de poursuivre les travaux et, le 29 août 1612, Cirus de Thyard, évêque et comte de Chalon, consacre l'église en même temps que l'autel de la chapelle Saint-Pierre, fondée en 1410. Dans un acte de 1626, Guerrin Goy et sa femme déclarent avoir fait lambrisser le choeur de l'église, la nef ne le fut qu'en 1671 (mais en 1712 la foudre tomba sur le clocher qui brûla avec une partie de la nef). En 1601, la confrérie des treize (la Vierge et les douze apôtres) décide de rebâtir sa chapelle dont le lambrissage, jugé trop plat, est refait en 1670. La confrérie du Rosaire, établie dans l'église en 1638, fait construire une chapelle en 1643, avec des briques de Verdun et de la tuilerie de Ciel données par le marquis de Beaume, seigneur de Verdun. Le 6 juillet 1650, la confrérie des mariniers obtient l'autorisation de bâtir sans délais une chapelle Saint-Nicolas (actuellement du Sacré-Coeur), "et de faire dans le mur du choeur, vis à vis la chapelle du Rosaire, une ouverture où serait un grand cintre et une porte" (l'arcade remaniée par la suite est datée 1669). En 1679, une chapelle Saint-Claude (actuellement Saint-Joseph) est édifiée entre les chapelles Saint-Pierre et Saint-Nicolas ; une porte de communication avec cette dernière est percée en 1688. Deux veuves de la confrérie de Sainte-Anne font bâtir une chapelle voûtée au début du 18e siècle, l'une y est inhumée en 1724. En 1780 une nouvelle sacristie remplace l'ancienne, désaffectée, comme l'indiquent deux inscriptions gravées, sur le linteau d'une fenêtre droite : 1780 / Sr JOUANDON Mt Mn (nom du maître maçon qui a construit la sacristie maître maçon, ??), et sur une pierre d'angle : Me JEAN LARDET / BACHELIER EN DROIT / CIVIL ET CANON / PRE.RE ET CURE DE / VERDUN AN 1780.
Murs :
- brique
- calcaire
- moellon
- enduit
Toit :
- tuile plate
- tuile creuse
Plan :
- plan massé
Etages :
- 1 vaisseau
Couvrement :
- voûte en berceau
- voûte d'ogives
- voûte d'arêtes
- fausse voûte en berceau
- fausse voûte en cul-de-four
Escalier :
- escalier intérieur, escalier tournant, en charpente
Décors :
- sculpture
Ange musicien et personnage sur les culots du rouleau d'archivolte du portail, feuillages sur les chapiteaux recevant les rouleaux de la voussure. Ange porte-écu sur un corbeau du clocher.
À voir
Informations complémentaires
Aire d’étude et canton :
Verdun-sur-le-Doubs
Dénomination :
église paroissiale
- © Région Bourgogne-Franche-Comté, Inventaire du patrimoine
