ÉGLISE PAROISSIALE SAINT-ANTIDE
25 - Aubonne
rue de l' Église
- Dossier IA00013832 réalisé en 1973 revu en 1978
- Auteur(s) : Gilbert Poinsot
Historique
Travaux de septembre 1767 à novembre 1769 par Frick ; bénédiction le 8 novembre 1769
- 3e quart 18e siècle
Architecte (?). Maître d'oeuvre de la construction de l'église Saint-Antide d'Aubonne (Doubs). 1767-1769.
Description
- calcaire
- pierre de taille
- moellon
- enduit
- tuile mécanique
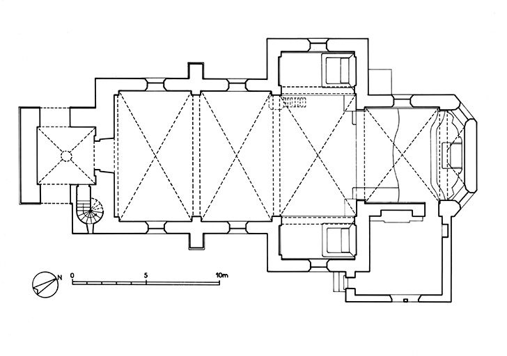
- plan en croix latine
- 1 vaisseau
- voûte d'arêtes
- élévation ordonnancée sans travées
- escalier demi-hors-oeuvre, escalier en vis sans jour,
À voir
Informations complémentaires
- enclos
- © Région Bourgogne-Franche-Comté, Inventaire du patrimoine
