DISTILLERIE DITE GRANDES DISTILLERIES PEUREUX
70 - Fougerolles
43 avenue Claude Peureux
- Dossier IA70000229 réalisé en 2006
- Auteur(s) : Raphaël Favereaux
Historique
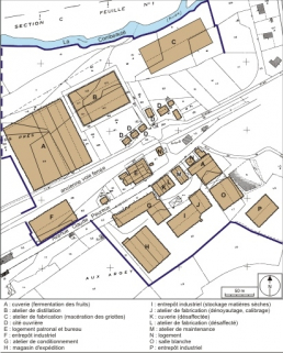
D'après un papier à en-tête de 1925, la distillerie Peureux aurait été fondée en 1864. La matrice cadastrale mentionne la construction d'une distillerie en 1889 au centre du bourg (K 426), par Auguste Peureux. Ce dernier acquiert en 1893 les bâtiments de l'ancienne distillerie Emile Vial et y transfère son activité. Une unité de production d'alcool de betteraves et d'alcool rectifié est construite vers 1899. La distillerie produit des eaux-de-vie et liqueurs (kirsch, prune, mirabelle, marc, crêmes de cassis), des apéritifs (absinthe, vermouth, rhum, madère, guignolet) et commercialise ses produits sous la marque la Cigogne. Une succursale est fondée à Saint-Denis en 1912, puis une seconde à Marseille après la Première Guerre mondiale. Des chais et divers entrepôts sont construits dans le premier quart du 20e siècle de part et d'autre de la route du Val d'Ajol (actuelle avenue Perreux). En 1925, la société est dénommée "Les Fils d'Auguste Peureux" (André et Edgar). Claude Peureux succède à son père André en 1948. Il créé en 1955 une spécialité, appelée griotte, puis en 1984 la griottine (griotte macérée dans un sirop à la liqueur et au kirsch), qui devient le produit-phare de l'entreprise. Vers 1960, les bureaux ont été agrandis et une petite cité de trois maisons ouvrière a été édifiée rue des Grands Prés. La société a racheté vers 2000 la distillerie fougerollaise Raspiller (étudiée IA70000235), mais les locaux de cette société ont été vendus en 2007. Les bâtiments et les installations ont été entièrement modernisées entre 1990 et 2005 : construction de nouveaux ateliers de distillerie, de conditionnement, d'expédition, de cuveries, etc. Outre la maison d'habitation et les bureaux, la distillerie conserve l'ancienne salle de distillation, la tour de rectification et un atelier de réparation construits vers 1900. La cheminée de la chaufferie a été détruite. Les Grandes Distilleries Peureux produisent des eaux-de-vie, sous la marque la Cigogne (kirsch, quetsch, mirabelle, framboise, poire, etc.), des liqueurs (cassis, cerise), des griottes, des griottines et de la vodka Perfect 1864. L'établissement transforme annuellement 10 000 t de fruits. Sa cuverie possède une capacité de 440 000 hl. La distillation s'effectue dans quatre alambics de 200 à 400 hl de contenance. Environ 4 millions de bouteilles d'eau-de-vie de fruits sont commercialisés chaque année. En 1931, la distillerie aurait été équipée de 6 alambics modernes par la ferblanterie Simon (Fougerolles). L'établissement conserve, dans l'ancienne salle de distillation, 4 alambics à vapeur de 10 hl de marque Egrot-Grangé (Paris, 75), datant de 1931, et 2 alambics de 100 hl. La distillerie emploie actuellement 53 personnes.
- 4e quart 19e siècle
- 1er quart 20e siècle
- 2e moitié 20e siècle
- 1er quart 21e siècle
Description
Site industriel (antérieurement) desservi par embranchement ferroviaire. L'ancien atelier de la distillerie et l'atelier de réparation sont construits en moellon de grès enduit, couverts de toits à longs pans en tuile mécanique. La tour de rectification compte deux étages carrés. Les maisons ouvrières sont en rez-de-chaussée surélevé et toit à croupes.
- grès
- béton
- moellon
- parpaing de béton
- enduit
- essentage de tôle
- tuile mécanique
- fer en couverture
- 2 étages carrés
- énergie thermique produite à distance
- énergie électrique achetée
Source(s) documentaire(s)
-
Les Fils d'Auguste Peureux.
Les Fils d'Auguste Peureux. Panneau publicitaire, carton, Imprimeries Réunies de Nancy, s.d. [début 20e siècle].Lieu de conservation : Ecomusée du Pays de la Cerise, Fougerolles
À voir
Informations complémentaires
- patrimoine industriel de la Haute-Saône
- atelier de fabrication
- atelier de conditionnement
- atelier de réparation
- chai
- magasin industriel
- entrepôt industriel
- logement patronal
- logement d'ouvriers
- bureau
- boutique
- © Région Bourgogne-Franche-Comté, Inventaire du patrimoine
