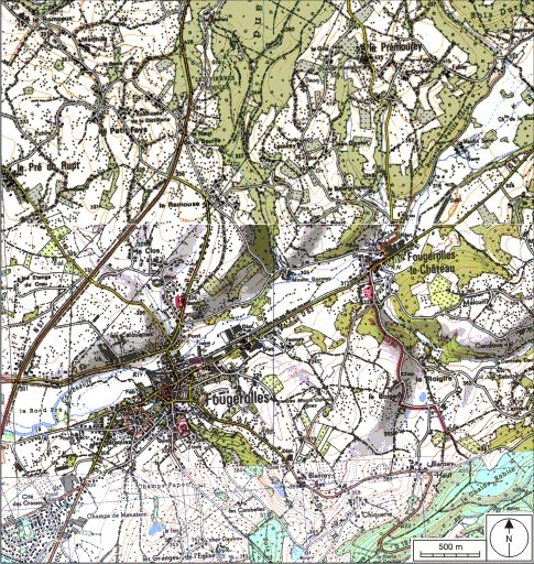
Carte de localisation. Carte topographique au 1:25000, I.G.N., Remiremont, 3519 O. SCAN 25 © IGN - 2008, Licence n°2008CISE29-68.
70, Fougerolles, 34, 36 rue du Champ Caillou
N° de l’illustration : 20087000142NUDA
Date : 2008
Auteur : André Céréza
Reproduction soumise à autorisation du titulaire des droits d'exploitation
- © Région Bourgogne-Franche-Comté, Inventaire du patrimoine
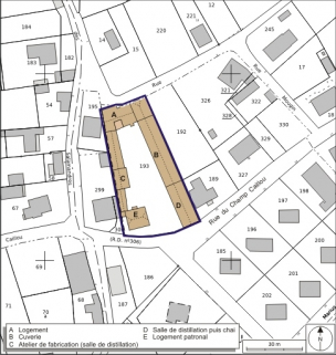
Plan-masse et de situation. Extrait du plan cadastral numérisé, 2008, section AH, 1:1000. Source : Direction générale des Finances Publiques - Cadastre ; mise à jour : 2008.
70, Fougerolles, 34, 36 rue du Champ Caillou
N° de l’illustration : 20087000243NUDA
Date : 2008
Auteur : André Céréza
Reproduction soumise à autorisation du titulaire des droits d'exploitation
- © Région Bourgogne-Franche-Comté, Inventaire du patrimoine
Vue depuis le sud.
70, Fougerolles, 34, 36 rue du Champ Caillou
N° de l’illustration : 20067000853NUCA
Date : 2006
Auteur : Jérôme Mongreville
Reproduction soumise à autorisation du titulaire des droits d'exploitation
- © Région Bourgogne-Franche-Comté, Inventaire du patrimoine
Vue de l'entrée.
70, Fougerolles, 34, 36 rue du Champ Caillou
N° de l’illustration : 20067000854NUCA
Date : 2006
Auteur : Jérôme Mongreville
Reproduction soumise à autorisation du titulaire des droits d'exploitation
- © Région Bourgogne-Franche-Comté, Inventaire du patrimoine
Portail et cour de la distillerie.
70, Fougerolles, 34, 36 rue du Champ Caillou
N° de l’illustration : 20067000855NUCA
Date : 2006
Auteur : Jérôme Mongreville
Reproduction soumise à autorisation du titulaire des droits d'exploitation
- © Région Bourgogne-Franche-Comté, Inventaire du patrimoine
Façade du chai, à l'entrée.
70, Fougerolles, 34, 36 rue du Champ Caillou
N° de l’illustration : 20097000326NUC2A
Date : 2009
Auteur : Jérôme Mongreville
Reproduction soumise à autorisation du titulaire des droits d'exploitation
- © Région Bourgogne-Franche-Comté, Inventaire du patrimoine
Logement et cuverie.
70, Fougerolles, 34, 36 rue du Champ Caillou
N° de l’illustration : 20097000327NUC2A
Date : 2009
Auteur : Jérôme Mongreville
Reproduction soumise à autorisation du titulaire des droits d'exploitation
- © Région Bourgogne-Franche-Comté, Inventaire du patrimoine
Salle de distillation moderne.
70, Fougerolles, 34, 36 rue du Champ Caillou
N° de l’illustration : 20097000325NUC2A
Date : 2009
Auteur : Jérôme Mongreville
Reproduction soumise à autorisation du titulaire des droits d'exploitation
- © Région Bourgogne-Franche-Comté, Inventaire du patrimoine
Cuverie. Cuves de fermentation en cours de démolition.
70, Fougerolles, 34, 36 rue du Champ Caillou
N° de l’illustration : 20097000328NUC2A
Date : 2009
Auteur : Jérôme Mongreville
Reproduction soumise à autorisation du titulaire des droits d'exploitation
- © Région Bourgogne-Franche-Comté, Inventaire du patrimoine
Détail d'une cuve en cours de démolition.
70, Fougerolles, 34, 36 rue du Champ Caillou
N° de l’illustration : 20097000329NUC2A
Date : 2009
Auteur : Jérôme Mongreville
Reproduction soumise à autorisation du titulaire des droits d'exploitation
- © Région Bourgogne-Franche-Comté, Inventaire du patrimoine
Logements.
70, Fougerolles, 34, 36 rue du Champ Caillou
N° de l’illustration : 20067000851NUCA
Date : 2006
Auteur : Jérôme Mongreville
Reproduction soumise à autorisation du titulaire des droits d'exploitation
- © Région Bourgogne-Franche-Comté, Inventaire du patrimoine
Logement patronal.
70, Fougerolles, 34, 36 rue du Champ Caillou
N° de l’illustration : 20067000852NUCA
Date : 2006
Auteur : Jérôme Mongreville
Reproduction soumise à autorisation du titulaire des droits d'exploitation
- © Région Bourgogne-Franche-Comté, Inventaire du patrimoine