CITÉ OUVRIÈRE DITE CITÉ DES CHALETS
25 - Bart
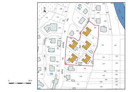
8 à 17 rue des Chalets
- Dossier IA25000948 réalisé en 2011
- Auteur(s) : Raphaël Favereaux
Historique
La cité ouvrière est construite pour le compte de la fonderie de Sainte-Suzanne (IA25001009) vers 1950. Elle se compose de cinq maisons jumelées établies à l'entrée du bourg de Bart.
- milieu 20e siècle
Description
Construite sur un plan en U, chaque maison se composait à l'origine de deux logements accolés. Bâtie sur une structure en bois, avec une isolation en panneau d'isorel et un bardage de planche, elle est couverte de toits à longs pans et croupes en tuile mécanique. Trois maisons sont construites en rez-de-chaussée, les deux autres comprennent un étage de soubassement pour racheter la déclivité du terrain.
- bois
- pan de bois
- essentage de planches
- tuile mécanique
- étage de soubassement
- en rez-de-chaussée
À voir
Informations complémentaires
- patrimoine industriel du Doubs
- © Région Bourgogne-Franche-Comté, Inventaire du patrimoine
