CITÉ OUVRIÈRE DES CYCLES PEUGEOT DITE CITÉS NOUVELLES DU MAROC
25 - Mandeure
Cités nouvelles
- Dossier IA25000929 réalisé en 2010 revu en 2011
- Auteur(s) : Raphaël Favereaux
Historique
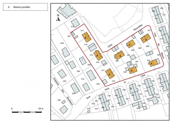
Cette cité a été construite en 1940-1941, vraisemblablement par la société immobilière de la SA des Cycles Peugeot (SACP), pour loger les contremaîtres de l'usine de Beaulieu. Il s'agit d'une extension de la cité du Maroc, puisque l'appellation "cités nouvelles du Maroc" figure sur la matrice cadastrale. Les habitations ont été cédées à des particuliers dans la seconde moitié du 20e siècle.
Période(s)
Principale :
- 2e quart 20e siècle
Description
La cité ouvrière se compose de huit maisons jumelles abritant chacune deux logements. Construites en moellon de calcaire enduit, elles possèdent un soubassement en pierre apparente, un rez-de-chaussée - éventuellement surélevé -, et un étage de comble. Cinq d'entre elles, de plan allongé, sont couvertes d'un toit à longs pans, alors que les trois autres, construites sur un plan plus massé, sont pourvues d'un toit à deux pans. Il s'agit du même type de maisons construites à la cité des rues Oehmichen - Franche-Comté - Bourgogne, à Valentigney (IA25000908).
Murs :
- calcaire
- moellon
- enduit
Toit :
- tuile mécanique
Etages :
- rez-de-chaussée surélevé
- étage de comble
- étage en surcroît
Source(s) documentaire(s)
-
3 P 368/14-17 Matrices des propriétés bâties (1910)
Archives départementales du Doubs, Besançon, 3 P 36814-17 Matrices des propriétés bâties (1910)Lieu de conservation : Archives départementales du Doubs, Besançon - Cote du document : 3 P 368/14-17
À voir
Informations complémentaires
Thématiques :
- patrimoine industriel du Doubs
Aire d’étude et canton :
Pays de Montbéliard (le)
Dénomination :
cité ouvrière
- © Région Bourgogne-Franche-Comté, Inventaire du patrimoine
