CHAPELLE DU COUVENT DES URSULINES PUIS THÉÂTRE MUNICIPAL, ACTUELLEMENT CINÉMA LE CYCLOPE
89 - Tonnerre
261 rue de l' Hôtel de Ville
- Dossier IA89002111 réalisé en 2022 revu en 2024
- Auteur(s) : Laurent Poupard
Historique
La chapelle du couvent des Ursulines date du 17e siècle ou de la première moitié du 18e siècle. En effet, à la demande des habitants, le 16 avril 1627, le comte Charles Henri de Clermont-Tonnerre autorise les Ursulines de Châtillon-sur-Seine à créer un couvent afin d'instruire les jeunes filles. Dix religieuses s'installent en ville le 19 mai suivant et achètent un terrain sur lequel débute en 1629 la construction du couvent (doté d'une chapelle provisoire). Elles agrandissent progressivement le site initial par l'acquisition des bâtiments environnants. L'édification d'un corps de logis, commencée en 1689, nécessite la destruction du choeur de la chapelle (un plan de 1700 montre que la chapelle se poursuit vers l'est par un corps plus bas). Des modifications semblent avoir lieu en 1709 (date portée sur la clef de voûte d'une porte rue de l'Hôtel de Ville) mais il faut attendre le 9 novembre 1749 pour que soit posée la première pierre du nouveau choeur, dont les stalles sont données par l'évêque de Langres Mgr de Montmorin. Les religieuses sont expulsées le 1er octobre 1792 (certaines ouvriront en 1805 un nouvel établissement près de l'église Notre-Dame). La chapelle, vidée de son mobilier, sert de salle de réunion à la Société populaire et parfois de salle de bal. En avril-mai 1802, le ministère de l'Instruction publique donne l'ensemble du site à la Ville, qui le convertit en collège (actuel lycée Chevalier d'Eon) et transforme la chapelle en théâtre. Elle l'aménage avec le mobilier (décorations, "amphithéâtre", gradins et sièges) du théâtre installé dans la maison Le Tellier Louvois (ancien château des comtes de Tonnerre). En 1810-1811, elle le fait réparer sous la direction de l'ingénieur en chef des Ponts et Chaussées Jacques Foucherot, qui signale qu'il faudrait aussi en relever le plafond et construire des bancs (le local est alors dit "salle des exercices publics"). Le bâtiment, comportant un balcon, des loges pour le sous-préfet et le maire, et des loges d'acteur, est rénové en 1890 sous la direction de l'architecte de la ville A. Charpentier. Le balcon est avancé, des décors de scène sont réalisés, 50 fauteuils et des banquettes achetés, etc. La capacité est de 406 places : 36 dans les loges, 50 à l'orchestre, 110 au parterre, 150 au balcon et 60 en amphithéâtre.
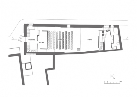
Le théâtre accueille aussi au tournant du 20e siècle des représentations cinématographiques, puis la Ville le donne à bail à des exploitants de cinéma. Ainsi, le 23 octobre 1919, l'établissement (totalisant 350 places) est loué à Joséphine Mathé, veuve de Pascal Justrabo, "directrice de cinémas" (5 rue des Goncourt, Paris). Celle-ci s'engage à réaliser les travaux de réparation consécutifs à l'incendie, mentionnés dans le devis de l'architecte Arthur Pelletier et comprenant notamment le remplacement de portes, la réparation de boiseries et parquets, la réalisation de peintures (en décor marbre, filets étrusques sur faux panneaux, etc.) et la rénovation des couvertures de banquettes. Elle prévoit aussi de substituer la lumière électrique à l'éclairage au gaz, en utilisant un groupe électrogène. Le peintre décorateur E. Bellier réalise en 1921 des retouches au décor de ciel du plafond, dégradé par l'humidité, et peint des guirlandes de roses, pilastres, frise, sculpture en grisaille au balcon. Mme Justrabo cède son bail à Georges Curtenelle le 10 novembre 1921, qui le transmet à Marcel Robert Conte le 15 octobre 1924. Ce dernier, "directeur du Cinéma-Théâtre de Tonnerre" (et habitant 50 boulevard Port Royal à Paris), propose le 1er février 1925 à la municipalité "d'installer complètement l'électricité sur la scène et dans les loges des artistes pour en faire profiter les tournées théâtrales". L'électricité doit être fournie par un groupe électrogène mais l'installation au gaz sera conservée en secours. En mars 1929, offrant de participer à l'installation définitive de l'électricité moyennant une augmentation de son loyer, il signale que la salle n'est utilisée pour le cinéma que les samedis et dimanches (la saison durant 48 semaines) et ajoute : "Le cinéma est devenu maintenant le spectacle démocratique par excellence, vu la modicité du prix des places. Partout, même dans les plus petits villages, il y a des salles installées avec un certain confort." Simultanément, l'Union des artistes dramatiques, lyriques, cinématographiques se plaint de l'état des locaux, "manquant de tout confort même élémentaire", sans WC ni prise d'eau dans les loges, avec "un seul poële dans la loge des dames, rien pour la loge des hommes, rien pour la scène"... Il faut donc prévoir des travaux. L'électrification du théâtre est réalisée en 1930, puis la Ville fait, en 1931, refaire le parquet et installer des sièges à bascule (214 fauteuils et 29 strapontins de la société Péghaire, 43 rue de Reuilly à Paris), alors que le cinéma devient parlant. Les façades sont également refaites en 1934, sous la direction de l'architecte municipal Gabriel Gervais : la façade principale est remodelée "de façon à rappeler la construction de l'Hôtel de Ville". La salle compte 450 places et dispose d'une scène de 6 m de large sur 8 de profondeur, avec une machinerie "très simplifiée". Le cinéma est, en 1942, signalé équipé pour des projections en 16 et en 35 mm. Il est exploité par M Mozer pendant les quatre décennies suivantes, avec une jauge de 394 places. Doté par la suite d'un deuxième escalier desservant le balcon (vraisemblablement refait), il fait l'objet en 2023 d'une rénovation lourde, conçue par l'agence parisienne Equipage Architecture : modification de la disposition intérieure, abaissement de la scène, disparition du balcon, création d'une salle en gradins et d'un espace d'exposition, mise aux normes des loges d'acteur, etc. La jauge passe de 149 places (dont 44 au balcon) à 134, dont 10 strapontins et 4 places handicapés. Rebaptisé Le Cyclope, le cinéma rouvre le 17 février 2024.
- 17e siècle
- 1ère moitié 18e siècle
- 1er quart 19e siècle
- 4e quart 19e siècle
- 2e quart 20e siècle
- 1er quart 21e siècle
Date de naissance : 05/02/1746 - date de décès : 16/09/1813
Foucherot, jacques (1746-1813). Architecte et ingénieur des Ponts et Chaussées. Elève de l'Académie d'Architecture à Paris de 1772 à 1775. Voyages en Grèce avec ou pour le duc de Choiseul-Gouffier, futur ambassadeur à Constantinople, en mai 1776 et 1780-1782. Ecole des Ponts et Chaussées de 1775 à 1784. Sous-ingénieur de la Généralité de Paris à Melun en 1784, ingénieur des Ponts et Chaussées à Tonnerre en 1793, nommé ingénieur en chef de 2ème classe le 10 mars 1809, de 1re classe le 1er mars 1812. Dirige une partie de la construction du canal de Bourgogne.(Source : https://cths.fr/an/savant.php?id=116148#)
Charpentier, A. Architecte voyer de la ville de Tonnerre en 1890.
Pelletier, Ernest Arthur. Architecte à Tonnerre en 1919.
Bellier, E. Peintre décorateur intervenant au cinéma-théâtre de Tonnerre en 1921.
Gervais, Gabriel. Architecte de la ville de Tonnerre dans les années 1930-1940.
Equipage Architecture. Cabinet d'architecture (Sarl) fondé en 1994 par Jean Pierre Laubal et Alain Jaouen. Etabli 4 rue Saint-Nicolas à Paris.
Description
Le cinéma est incorporé dans l'angle sud-ouest du lycée, dans le prolongement de l'aile bordant la rue de l'Hôtel de Ville dont il occupe partiellement l'étage en surcroît avec ses deux loges d'acteur (le lycée utilise pour sa part une partie de son étage de soubassement). Il est formé de deux corps de bâtiments, celui à l'ouest plus élevé, aux murs de moellons calcaires enduits et coiffés chacun d'un toit à longs pans, croupes et tuiles plates. Il comporte un étage de soubassement (dont la partie orientale est occupée par quatre salles voûtées en berceau), un rez-de-chaussée surélevé et un étage en surcroît (loges d'acteur à l'ouest), dont l'escalier en équerre en bois a été remplacé en 2023 par un en béton. La partie haute de la salle en gradins et la cabine de projection sont également desservies par un escalier en équerre en béton.
- calcaire
- moellon
- enduit
- tuile plate
- étage de soubassement
- rez-de-chaussée surélevé
- 1 étage carré
- voûte en berceau
- élévation à travées
- toit à longs pans, croupe
- noue
- escalier dans-oeuvre, escalier en équerre, en maçonnerie
Source(s) documentaire(s)
-
Archives municipales de Tonnerre : 7 M. Théâtre. An XI-1922.
Archives municipales de Tonnerre : 7 M. Théâtre. An XI-1922.Lieu de conservation : Archives municipales, Tonnerre - Cote du document : 7 M -
Archives municipales de Tonnerre : M 2. Théâtre municipal : travaux de réfection, plans. 1930-1936.
Archives municipales de Tonnerre : M 2. Théâtre municipal : travaux de réfection, plans. 1930-1936.Lieu de conservation : Archives municipales, Tonnerre - Cote du document : M 2 -
Archives municipales de Tonnerre : 2 R 6. Théâtres, cirques, cinémas. 1929-1940.
Archives municipales de Tonnerre : 2 R 6. Théâtres, cirques, cinémas. 1929-1940.Lieu de conservation : Archives municipales, Tonnerre - Cote du document : 2 R 6
-
Plan de Tonnerre en 1680.
Plan de Tonnerre en 1680. Dessin sur toile (plume, lavis), s.n. 99 x 178 cm, sans échelle.Lieu de conservation : Archives municipales, Tonnerre - Cote du document : N° d'inventaire PM89001351 -
[Plans et élévation du collège]. 1844.
[Plans et élévation du collège]. Dessin (plume, lavis), par l'architecte Viard-Hollier. Tonnerre le 4 novembre 1844. 28 x 42 cm, 1/200.- 1ère feuille. Plan du rez-de-chaussée des bâtimens du collège de Tonnerre.- 2ème feuille. Plan du 1er étage des bâtimens du collège de Tonnerre et du rez-de-chaussée sur la rue de la Comédie.- 3ème feuille. Plan du 2e étage des bâtimens du collège de Tonnerre et du 1er sur la rue de la Comédie.- 4ème feuille. Plan des greniers des bâtimens du collège de Tonnerre.- 5ème feuille. Elévation du collège sur la rue de la Comédie […] 36,5 x 48 cm, 1/100.Lieu de conservation : Archives municipales, Tonnerre - Cote du document : 19 M 1 -
[La rue de l'Hôtel de Ville et le théâtre municipal]. S.d. [entre 1900 et 1904].
[La rue de l'Hôtel de Ville et le théâtre municipal]. Photographie, s.n. S.d. [entre 1900 et 1904].Lieu de conservation : Musée municipal, Tonnerre -
[Plan d'implantation des fauteuils au rez-de-chaussée et au balcon]. S.d. [1930-1931 ?].
[Plan d'implantation des fauteuils au rez-de-chaussée et au balcon]. Dessin (crayon de papier, plume, feutre), s.n. S.d. [1930-1931 ?]. 27,5 x 100 cm, 1/33.Lieu de conservation : Archives municipales, Tonnerre - Cote du document : M 2 -
Grande fabrique spécialisée dans les fauteuils & strapontins pour théâtres, cinémas [...] Péghaire constructeur. S.d. [années 1920-1930].
Grande fabrique spécialisée dans les fauteuils & strapontins pour théâtres, cinémas, concerts, dancings, patronages et toutes salles de spectacle. Péghaire constructeur breveté S.G.D.G.. Maison fondée en 1891. Usine, bureau & salle d’exposition 43, rue de Reuilly, Paris (XIIe) [affiche et tarif]. S.d. [années 1920-1930]. 59,5 x 40 cm.Lieu de conservation : Archives municipales, Tonnerre - Cote du document : 7 M -
Ville de Tonnerre. Le théâtre municipal [réfection des façades]. 1933.
Ville de Tonnerre. Le théâtre municipal [réfection des façades]. Dessin (tirage), par l'architecte G. Gervais. Tonnerre le 10 mai 1933.- Réfection des façades. 67,5 x 54,5 cm, 1/50.- Détails de l'entrée principale. 54,5 x 69,5 cm, 1/10.- Détails de l'entrée latérale. 71 x 53,5 cm, 1/10.- [Variante pour la porte principale]. 39 x 29,5 cm, sans éch.Lieu de conservation : Archives municipales, Tonnerre - Cote du document : M 2 -
Le cinéma-théâtre de la ville de Tonnerre. Le plan du rez-de-chaussée. 1943.
Le cinéma-théâtre de la ville de Tonnerre. Le plan du rez-de-chaussée. Dessin (tirage), par l'architecte de la ville Gabriel Gervais. 1er octobre 1943. 27 x 41,5 cm, 1/50.Lieu de conservation : Archives municipales, Tonnerre - Cote du document : M 2
-
Equipage Architecture. Rénovation du cinéma-théâtre de Tonnerre. Phase APD. 2021.
Equipage Architecture. Rénovation du cinéma-théâtre de Tonnerre. Phase APD. S.l. [Paris] : s.n. [Equipage Architecture], novembre 2021. 22 p. : tout en ill.
-
Annuaire du cinéma Bellefaye
Annuaire du cinéma Bellefaye. Paris : Bellefaye, 1948-2015.Titres :Annuaire du cinéma. [1948]-1963.Annuaire du cinéma et télévision. 1964-1985Annuaire du cinéma, télévision, vidéo. 1986-2005.Annuaire du cinéma et de l'audiovisuel. 2006-2015.Numérique à partir de 2016. -
Annuaire général de la Cinématographie et des Industries qui s'y rattachent
Annuaire général de la Cinématographie et des Industries qui s'y rattachent. Paris : Cinémagazine, 1922-...Suite de : Almanach du Cinéma. Paris : Cinémagazine-édition, 1922-1924. -
Annuaire Général du Spectacle en France. 1942-1943.
Annuaire Général du Spectacle en France. 1942-1943. [Paris] : [Impr. spéciale des Guides du Commerce de Paris], 1943. 1052 p. : ill. ; 25 cm. -
Hardy, Ch. Histoire de la congrégation des Ursulines de Tonnerre 1627-1905. 1916.
Hardy, Ch. Histoire de la congrégation des Ursulines de Tonnerre 1627-1905. Bulletin de la Société des Sciences historiques et naturelles de l'Yonne, 1er semestre 1916, p. 6-71 : ill. -
Villetard, Magali. Le cinéma théâtre de Tonnerre. Note historique. 2022.
Villetard, Magali. Le cinéma théâtre de Tonnerre. Note historique. Tonnerre : Mairie de Tonnerre, octobre 2022. 6 p. : ill. ; 30 cm.
À voir
Informations complémentaires
- salles de spectacle de Bourgogne-Franche-Comté
- © Région Bourgogne-Franche-Comté, Inventaire du patrimoine
