CHAI PUIS SALLE DE SPECTACLE (SALLE H. DE BAHEZRE), ACTUELLEMENT CINÉMA NUITON
21 - Nuits-Saint-Georges
5 rue Thurot
- Dossier IA21005047 réalisé en 2011 revu en 2021
- Auteur(s) : GRAHAL, Laurent Poupard
Historique
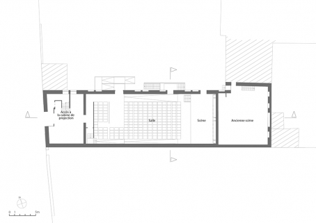
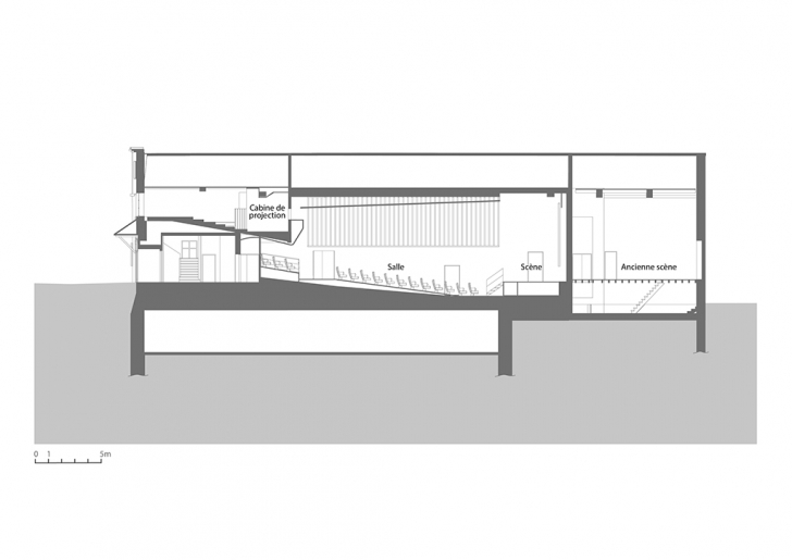
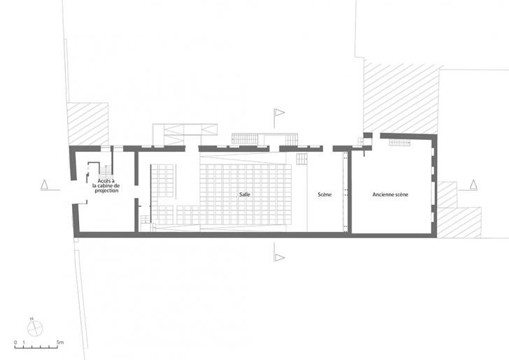
Le plan cadastral de 1827 figure deux bâtiments sur la parcelle G 841. Celui au sud, vraisemblablement reconstruit après 1827, est décrit en 1897 comme un "magasin" (de 27,45 m x 10,11 m) surmontant une grande cave ; celui au nord est une habitation accompagnée de dépendances. La propriété est achetée par la Ville en 1905 à Henri de Bahèzre, le magasin (entrepôt) étant loué depuis juin 1891 à un négociant en vins. Le bâtiment au nord est détruit pour céder la place à une école de garçons, dont la construction est stoppée par le Première Guerre mondiale. Le projet qui redémarre en 1926, sous la houlette de l'architecte Ch. Javelle (agence Javelle et Parizot, 64 rue Jean-Jacques Rousseau, Dijon), intègre l'entrepôt "pour l'affecter de façon définitive à une salle pour les oeuvres post-scolaires", ce qui permettrait d'éviter la dépense de "sommes assez considérables pour installer avec beaucoup de difficultés, tantôt sur un point, tantôt sur un autre, des concerts et autres fêtes" (séance du conseil municipal du 22 avril 1926). De plus, "le Cinéma, nouvelle force d'éducation populaire, pourra y être installé". Le bâtiment est agrandi vers l'est, pour faire jonction avec l'école, par l'entrepreneur dijonnais Félix Croze (25 rue Charles Poisot). D'une capacité de 715 places assises, il comprend un parterre (450 places), un balcon (265 places) et une scène (dans l'extension), dont les décors sont l'oeuvre d'Ernest Porcherot (32 rue de Montchapet, Dijon) ; la cabine de projection est aménagée dans l'arrière-scène, derrière le rideau de fond, la projection s'effectuant face à la salle sur un écran transparent (de 3,50 x 4,50 m). Les gros travaux s'achèvent en 1930 par la décoration de la façade : l'enseigne et les vitraux proposés par Defrance et Thénot (14 rue Faidherbe, Dijon) ne sont pas retenus, ils sont remplacés par un décor de mosaïque de Drupt (certainement Ulysse Drupt, à Dijon).
Par la suite, le cinéma est loué à un exploitant privé, qui doit le laisser gracieusement à disposition des sociétés locales et des oeuvres post-scolaires une vingtaine de jours par an, et le sous-sol (le "Caveau Nuiton") est, à partir du 16 novembre 1934, occupé par la Confrérie des Chevaliers du Tastevin. Des travaux sont effectués en 1948 (reconstruction de la cabine, achat d'appareils de projection 35 mm Etoile-Film à Lyon, etc.), en 1960 (rénovation de la salle et remplacement des fauteuils), en 1974 (fermeture de la scène par une cloison)... Le cinéma Nuiton, dirigé par André David et comptant 550 places en 1970, ferme en 1976. Repris par la Maison des Jeunes et de la Culture, créée en 1967, il fait l'objet de travaux sous la direction de l'architecte d'intérieur Roland Piau (73 rue Victor Puiseux, Lons-le-Saunier) et rouvre ses portes le 24 octobre 1984. L'aménagement de la cabine de projection, équipée d'un projecteur Strong Highlight de 1984 (Strong International, Toledo, Ohio), date-t-il de cette époque ? En novembre 2008, le bâtiment est orné sur sa façade latérale gauche d'une peinture évoquant le cinéma, due au peintre beaunois Alexis Laronze. Dernière rénovation en date : celle du premier semestre 2021 par l'atelier Correia Architectes et Associés (7 place de la République, Saulieu), touchant l'accueil et la salle (modification de la pente, remise en état du plateau, etc.), la jauge passant alors de 252 à 207 fauteuils. La MJC (3,5 permanents, 35 personnes à l'animation, 700 à 800 adhérents) poursuit l'exploitation du cinéma et du Caveau Nuiton, qui sert actuellement de salle de sport (tir à l'arc). L'équipement comprend, outre le projecteur argentique Strong, un projecteur numérique NEC NC2000C installé en 2018.
- 19e siècle
- 2e quart 20e siècle
- 1er quart 21e siècle
Date de naissance : 04/10/1867 - date de décès : 07/08/1947
Javelle, Charles François (1867-1947). Architecte, agence Javelle et Parizot, 64 rue Jean-Jacques Rousseau à Dijon en 1925. (Source : https://gw.geneanet.org/musquin?lang=fr&iz=5924&p=charles+francois&n=javelle. Consultation : 9 novembre 2021)
Correia Architectes et Associés. Agence d'architecture créée en 1996 par Claude Correia, lorsqu'il reprend celle de son employeur à Saulieu. 11 personnes en 2012.
Laronze, Alexis. Etudes dans une école de décoration à Reims. Peintre en décors et bâtiment à Beaune (21 avenue des Stades), établi en 1994.
Piau, Roland. Architecte d'intérieur établi au 73 rue Victor Puiseux, à Lons-le-Saunier, et spécialisé dans les salles de cinéma.
Description
Le bâtiment, aux murs de moellons calcaires enduits, est en rez-de-chaussée au-dessus d'un sous-sol voûté en berceau segmentaire. Il est protégé par un toit à longs pans et tuiles mécaniques, avec pignon découvert à l'ouest (côté rue) et couvert à l'est. Le fronton de la façade antérieure est orné de pilastres et d'une mosaïque portant les inscriptions : "Salle H. de Bahezre / oeuvres laïques / post. scolaires". L'accès au sous-sol s'effectue via un escalier droit et un escalier en vis, tous deux en béton et abrités dans un petit corps de bâtiment en retour au nord (en moellons calcaires apparents et coiffé d'un toit métallique à un pan), ou via un escalier extérieur droit récent, également en béton, contre le mur nord.
- calcaire
- moellon
- enduit
- tuile mécanique
- sous-sol
- en rez-de-chaussée
- voûte en berceau segmentaire
- toit à longs pans, pignon découvert
- pignon couvert
- noue
- toit à un pan
- escalier dans-oeuvre, escalier tournant à retours avec jour, en maçonnerie
- escalier hors-oeuvre, escalier droit, en maçonnerie
- escalier hors-oeuvre, escalier en vis sans jour, en maçonnerie
- escalier de distribution extérieur, escalier droit, en maçonnerie
- ornement en forme d'objet
Décor peint à l'extérieur, sur la façade latérale gauche, dans deux fenêtres murées : projecteur cinématographique, bobines de films, boîtes de cassettes vidéo et livres en rapport avec le cinéma.
- peinture
Décor peint à l'extérieur, sur la façade latérale gauche, dans deux fenêtres murées : projecteur cinématographique, bobines de films, boîtes de cassettes vidéo et livres en rapport avec le cinéma.
Source(s) documentaire(s)
-
Archives communales de Nuits-Saint-Georges : 4 M 1-9. Salle Henri de Bahèzre (cinéma Nuiton). 1905-1976.
Archives communales de Nuits-Saint-Georges : 4 M 1-9. Salle Henri de Bahèzre (cinéma Nuiton). 1905-1976.Lieu de conservation : Archives municipales, Nuits-Saint-Georges - Cote du document : 4 M 1-9
-
Ville de Nuits St Georges. Construction d'une école de garçons. Salle de lecture et de réunion pour les oeuvres posts-scolaires. 1er septembre 1925.
Ville de Nuits St Georges. Construction d'une école de garçons. Salle de lecture et de réunion pour les oeuvres posts-scolaires. Dessin (tirage), par l'architecte Ch. Javelle. 1er septembre 1925. 54,5 x 74 cm, 1/100Lieu de conservation : Archives municipales, Nuits-Saint-Georges - Cote du document : 4 M 2 -
Nuits-Saint-Georges : construction de l'école des garçons. S.d. [entre 1926 et 1930].
Nuits-Saint-Georges : construction de l'école des garçons. Photographie, par Jules Misserey. S.d. [entre 1926 et 1930]. Plaque de verre photographique (13 x 18 cm).Lieu de conservation : Musée de Nuits-Saint-Georges - Cote du document : 2009.2.35 -
Ville de Nuits-St-Georges. Salle Henri de Bahèzre. Parterre [et] Tribune [croquis de repérage des places]. S.d. [milieu 20e siècle ?].
Ville de Nuits-St-Georges. Salle Henri de Bahèzre. Parterre [et] Tribune [croquis de repérage des places]. Dessin imprimé, s.n. S.d. [milieu 20e siècle ?]. 36,5 x 46 cm, sans échelle.Lieu de conservation : Archives municipales, Nuits-Saint-Georges - Cote du document : 4 M 2 -
Salle des fêtes et caveau Nuiton à Nuits St Georges [plans et coupe]. S.d. [milieu 20e siècle].
Salle des fêtes et caveau Nuiton à Nuits St Georges [plans et coupe]. Dessin (tirage, crayon de couleur), s.n. S.d. [milieu 20e siècle].- Plan sur scène et balcon [et] Plan sur dessous de scène, salle et hall d'entrée. 73 x 101 cm, 1/50.- Chaufferie. 60 x 105 cm, 1/10.- Coupe. 74 x 101 cm, 1/50.Lieu de conservation : Archives municipales, Nuits-Saint-Georges - Cote du document : 4 M 5
-
Centre national du cinéma et de l'image animée. Géolocalisation des cinémas actifs en France [en ligne]. 2019
Centre national du cinéma et de l'image animée. Géolocalisation des cinémas actifs en France [en ligne]. Paris : CNC, 2019 [consultation : 3 juin 2021]. Accès internet : https://www.cnc.fr/cinema/etudes-et-rapports/statistiques/geolocalisation-des-cinemas-actifs-en-france -
Mignotte, Maud. La rénovation du Cinéma nuiton devrait commencer cette semaine. 18 janvier 2021.
Mignotte, Maud. La rénovation du Cinéma nuiton devrait commencer cette semaine. Le Bien public [en ligne]. 18 janvier 2021. Ill. [Consultation partielle le 10 novembre 2021].
-
Annuaire du cinéma Bellefaye
Annuaire du cinéma Bellefaye. Paris : Bellefaye, 1948-2015.Titres :Annuaire du cinéma. [1948]-1963.Annuaire du cinéma et télévision. 1964-1985Annuaire du cinéma, télévision, vidéo. 1986-2005.Annuaire du cinéma et de l'audiovisuel. 2006-2015.Numérique à partir de 2016.
-
Poure Rodolphe (témoignage oral)
Poure Rodolphe. Directeur de la MJC de Nuits-Saint-Georges.
À voir
Informations complémentaires
- salles de spectacle de Bourgogne-Franche-Comté
- © Région Bourgogne-Franche-Comté, Inventaire du patrimoine, Association pour les Climats de Bourgogne, GRAHAL
