VERRERIE DE LA SAULNAIRE, PUIS ORPHELINAT, ACTUELLEMENT LOGEMENT
70 - Malbouhans
La Saulnaire
- Dossier IA70000297 réalisé en 2007
- Auteur(s) : Raphaël Favereaux
 
                                          Historique
Célestin Grezely, maître-verrier à Miellin (70), acquiert en 1795 les terres de l'ancien domaine de Saulcy, à proximité des houillères de Ronchamp et Champagney, et y fait construire une verrerie. Le four à 8 pots (ou creusets), vraisemblablement mis en route en 1798, produit essentiellement du verre à vitre. Les logements ouvriers, situés de part et d'autre de l'entrée, ont été construits dans la première moitié du 19e siècle, après la réalisation du plan cadastral (1812). Ce dernier signale la présence d'un moulin à vent, au sud, et d'un moulin à eau, placé en aval de l'étang, et démoli en 1842. Célestin Grezely épouse une demoiselle Bolot, issue d'une famille de verriers établie à Miellin, puis à Malbouhans, et dont il a deux fils, Justin et Narcisse, lesquels poursuivent l'activité à la mort de leur père en 1830. La reconstruction des creusets du four, en 1846, occasionne 5 mois de chômage, et l'établissement de 2 fours de remplacement à la verrerie Bolot de Malbouhans. La consommation de bois annuelle s'élève à cette époque à 2200 stères. La verrerie Grezely frères est exploitée après 1848 par Jacques Worm, gendre de Justin. En 1869, la verrerie comprend un four à 8 pots, chauffé à la houille de Ronchamp, et un four pour l'étendage des manchons et le recuit du verre, chauffé au bois. Elle utilise du sable de Rilly-la-Montagne (51) et Velleminfroy (70), du calcaire blanc de Perrouse (70), du sulfate de soude de Gouhenans (70), et de la poussière de charbon de bois. Elle produit du verre à vitres, en feuilles de 1, 10 m x 0, 80 m, d'une épaisseur de 1, 5 et 4 mm, pour une valeur de 80 à 90 000 francs. La verrerie cesse son activité en 1880, mais une partie des bâtiments est convertie vers 1877 en orphelinat de jeunes filles. Une chapelle, datée de 1877 et accolée au logement principal, est construite à cette intention. L'établissement de bienfaisance passe entre les mains d'Anne-Marie Worm, fondatrice de l'orphelinat, puis de la société commerciale de Saint-Ouen en 1901, puis de l'ancienne Congrégation des Oblats de Saint-François de Sales en 1912, date de fermeture de l'orphelinat. Les bâtiments ont accueilli une colonie de vacances jusqu'au début des années 1970, et ont été acquis en 1975 par un exploitant forestier. Ils ont depuis été convertis en habitation, et les logements ouvriers sont en cours de réhabilitation. Le bâtiment du four, placé au centre, a disparu, et le logement principal et la chapelle sont en ruines. Une statistique industrielle de 1832 signale la présence de deux fours à 8 creusets, l'un pour la fabrication du verre à vitre, l'autre pour la fabrication du verre de gobeleterie, de quatre fours d'étendage et de quatre fours pour le séchage du bois. La présence d'un second four s'explique peut-être par le transfert de l'établissement voisin de Roye (70), dont Grezely, propriétaire depuis 1813, demande le transfert à la Saulnaire (permission accordée en 1833). Il ne semble pas que ce deuxième four ait perduré. La verrerie emploie 61 personnes en 1832, et 32 manouvriers et 8 verriers en 1869.
Période(s)
                                              
                          Principale :
                          
                                                                - 4e quart 18e siècle
- 1ère moitié 19e siècle
- 4e quart 19e siècle
Date(s)
                                                                                                                                                                                      
                              
                                1877 :                              
                                                              porte la date
                                                          
                                                      
                              
                                1877 :                              
                                                              daté par source
                                                          
                                                      
                              
                                1877 :                              
                                                              daté par travaux historiques
                                                          
                                                                        Description
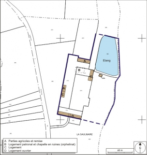
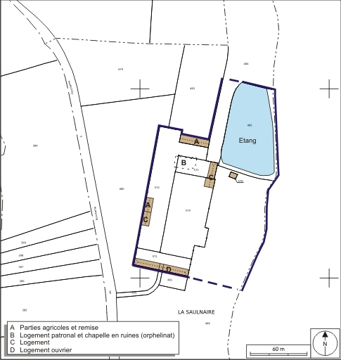
Implanté en bordure de forêt, l'atelier de la verrerie, aujourd'hui disparu, était placé au centre d'une cour rectangulaire close de murs. Les bâtiments subsistants (logements et parties agricoles) sont situés sur le pourtour de cet espace. Le côté sud est occupé par un long bâtiment, à usage de logement ouvrier, construit en moellon de grès, à un étage carré, toit à longs pans, croupes et tuile plate. Il est percé en son milieu d'une porte cochère surmontée d'un fronton triangulaire, constituant l'accès principal de la cour. Le logement oriental (directeur de la verrerie ?) est construit en pierre de taille de grès, à un étage carré. Egalement construite en pierre de taille de grès, d'après le style néogothique, la chapelle ne conserve que ses murs sur toute leur élévation. Le logement principal de l'orphelinat possède une façade en pierre de taille, à un étage carré, couronnée d'un fronton triangulaire percé d'un oculus. Les autres murs sont en moellon de grès.
                          Murs :
                          
                      - grès
- moellon
- pierre de taille
- enduit
                        Toit :
                        
                    - tuile mécanique
- tuile plate
                        Etages :
                        
                    - sous-sol
- 1 étage carré
À voir
Informations complémentaires
                      Thématiques :
                      
                  - patrimoine industriel de la Haute-Saône
                      Aire d’étude et canton :
                      Haute-Saône
                    
                  
                      Dénomination :
                      verrerie, orphelinat
                    
                  
                      Parties constituantes non étudiées :
                      
                  - logement d'ouvriers
- logement
- remise
- chapelle
- étang
- © Région Bourgogne-Franche-Comté, Inventaire du patrimoine
 
                   
                   
                   
                   
                       
                       
                       
                       
                                                                 
                                                                 
                           
                           
                           
                           
                           
                           
                           
                           
                           
                           
                           
                           
                           
                           
                           
                                                   
                                                   
                                                   
                                                   
                                                   
                                                   
                                                   
                                                   
                                                   
                                                   
                                                   
                                                   
                                                   
                                                   
                                                  