USINE MÉTALLURGIQUE, PUIS FONDERIE DITE FONDERIES DE SCEY-SUR-SAÔNE ET VY-LE-FERROUX, PUIS FONDERIE DE SCEY-SUR-SAÔNE
70 - Scey-sur-Saône-et-Saint-Albin
13 rue des Forges
- Dossier IA70000345 réalisé en 2008
- Auteur(s) : Raphaël Favereaux
Historique
Cette usine métallurgique, comprenant un haut fourneau et trois feux d'affinerie, est construite en vertu d'une autorisation accordée en 1693 à Emmanuel Louis de Bauffremont. L'établissement est tenu au cours du 18e siècle par divers maîtres de forge : J.B.F. Lefebvre en 1714, C. Arbilleur en 1720, J.P. Priqueler en 1723, J. Demay de 1738 à 1770. Son successeur, Martin, associé au banquier bisontin Fleur, avait fondé en 1767 le haut fourneau de Renaucourt (étudié IA70000359). L'usine est agrandie dans la seconde moitié du 18e siècle. Une demeure patronale est édifiée sous le fermage de Georges Lambert entre 1780 et 1783. La fonte est écoulée en Lorraine et en Alsace, et les fers sont expédiés dans la région stéphanoise et à l'arsenal de Toulon. En 1788, l'usine produit 500 t de fonte et 300 t de fer. Un martinet est établi vers 1800. La production atteint 500 t de fonte et 200 t de fer en 1811. L'ordonnance royale du 2 avril 1828 autorise le maintien de l'usine des princes de Bauffremont, consistant en un haut fourneau, trois feux d'affinerie, un feu de martinet, un laminoir, avec chaufferie et cisailles, deux gros marteaux et un martinet pour le cinglage et l'étirage du fer. Elle consomme annuellement 22 000 quintaux de minerai en grains et 36 000 stères de bois, pour une production de 8000 quintaux de fonte, dont 6000 sont convertis en fer. Le haut fourneau est éteint vers 1858, mais le laminoir et les feux de forge sont maintenus en activité. L'établissement est acquis en 1862 par J.B. de Buyer. Fermée en 1877 à cause de la diminution de la force motrice (due à la canalisation de la Saône), la forge est convertie en 1882 en fonderie de seconde fusion au sein de la Société anonyme des Fonderies de Scey-sur-Saône et Vy-le-Ferroux (étudié IA70000347). Acquise par cette société en 1883, l'usine est alors dirigée par Léon Poinsotte. De nouveaux ateliers construits en rez-de-chaussée remplacent les bâtiments de l'usine métallurgique. La société produit des appareils de chauffage (poêles, cuisinières), des articles de cuisine (marmites, gaufriers) et des pièces mécaniques. Vers 1912, l'usine dispose d'une puissance hydraulique de 90 ch, et produit annuellement 1400 t. Après avoir travaillé pendant la Première Guerre mondiale pour la Défense (fabrication d'obus et grenades), elle diversifie sa production (matériel agricole, poids à peser, châssis de balances) tout en continuant de fabriquer, dans l'entre-deux-guerres, des articles de cuisine et de chauffage et des fontes émaillées. L'activité de fonderie est ramenée en 1930 sur le site de Scey-sur-Saône, où le matériel est modernisé, et le site de Vy-le-Ferroux pratique l'émaillage et le montage. En 1938-1939, l'usine produit 491 t de pièces. Après la Seconde Guerre, elle fabrique essentiellement des pièces mécaniques de grosse taille et des pièces moulées à la machine en grande série. L'activité chauffage est arrêtée en 1952. L'usine est agrandie entre 1950 et 1956 au sud du canal, et l'entrepôt industriel (coke et sable) est converti en logement ouvrier. Dénommée Société des Fonderies de Scey-sur-Saône, l'établissement ferme ses portes vers 1982. Les bâtiments sont aujourd'hui occupés par une entreprise de récupération de métaux. L'activité se poursuit dans une nouvelle fonderie mise en service dès 1969 sur le canal de la Saône (commune de Chassey-lès-Scey). Intégrée au groupe international Dayton-Est et aujourd'hui connue sous le nom de Fiday Gestion, cette usine est spécialisée dans la fabrication de tambours et disques de freins pour poids lourds. Elle traite annuellement 60 000 tonnes de fonte liquide. Une fenderie est ajoutée en 1744. En 1802, l'usine comprend un haut fourneau, deux feux d'affinerie et un martinet. En 1822, le haut fourneau et deux des feux d'affinerie sont équipés de machines soufflantes mues par des roues hydrauliques. En 1826, un des deux martinets est remplacé par un laminoir à tôles. En 1883, l'usine se compose d 'une halle renfermant trois feux d'affinerie, un train de laminoir à 6 colonnes et un cylindre d'étirage à 10 colonnes ; d'une fonderie de cuivre établie dans la halle du haut fourneau ; d'un atelier des tours ; d'un atelier d'étamage (à deux fours) ; d'une machine soufflante (inactive) et de magasins. Mention de turbines en 1921. L'usine métallurgique emploie 25 ouvriers internes en 1802. La fonderie emploie 24 hommes, une femmes et 17 enfants en 1893, et 75 en 1981. La fonderie de Chassey-lès-Scey emploie 86 personnes en 1981 et 200 en 2008.
- 4e quart 17e siècle
- 4e quart 18e siècle
- 4e quart 19e siècle
- 3e quart 20e siècle
Description
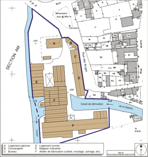
Les ateliers de fabrication sont construits en rez-de-chaussée, à pan de bois hourdé de brique, et couverts de toitures à longs pans en tuile mécanique. La nouvelle halle du milieu des années 1950 possède une structure en pan de fer hourdée de parpaing de béton. Elle est couverte d'un toit à longs pans en tuile mécanique ajouré d'un lanterneau. Construit en moellon de calcaire enduit, le logement patronal comprend un étage carré. Il est couvert d'un toit à croupes en ardoise. L'entrepôt industriel reconverti en logement ouvrier est bâti en moellon de calcaire, et couvert d'un toit à longs pans en tuile mécanique. Sa façade sur cour comprend un étage carré.
- calcaire
- brique
- béton
- bois
- moellon
- parpaing de béton
- pan de bois
- enduit
- tuile mécanique
- ardoise
- ciment amiante en couverture
- verre en couverture
- 1 étage carré
- énergie hydraulique produite sur place
- énergie électrique achetée
Source(s) documentaire(s)
-
Plan intérieur de l'usine de Scey-sur-Saône consistant en haut fourneau, forges et laminoir [...].
Plan intérieur de l'usine de Scey-sur-Saône consistant en haut fourneau, forges et laminoir [...]. Papier, plume, lavis, par le géomètre Chevillet, le 18 juillet 1826, échelle 1:100Lieu de conservation : Archives départementales de la Haute-Saône, Vesoul - Cote du document : 301 S 13 -
Elévation intérieure de l'usine de Scey-sur-Saône consistant en haut fourneau, forges et laminoir [...].
Elévation intérieure de l'usine de Scey-sur-Saône consistant en haut fourneau, forges et laminoir [...]. Papier, plume, lavis, par le géomètre Chevillet, le 18 mars 1826, échelle 1:100Lieu de conservation : Archives départementales de la Haute-Saône, Vesoul - Cote du document : 301 S 13 -
Vue aérienne de l'usine de Scey-sur-Saône.
Vue aérienne de l'usine de Scey-sur-Saône. Photogr., s.n., s.d. [vers 1960]. -
[Plan-masse de l'usine].
[Plan-masse de l'usine]. Papier, lavis, plume, 1823.Lieu de conservation : Collection particulière -
Plan géométrique des forges, haut fourneau, moulins et du sol [...].
Plan géométrique des forges, haut fourneau, moulins et du sol [...]. Papier, lavis, plume, levé le 31 mai 1823, 1:2000.Lieu de conservation : Archives départementales de la Haute-Saône, Vesoul - Cote du document : 301 S 13 -
Chargement automatique des cubilots par bennes à fond ouvrant.
Chargement automatique des cubilots par bennes à fond ouvrant. Photogr., s.n., s.d. [vers 1960]. -
Chantier de moulage mécanique. Au fond, trémies d'alimentation en sable.
Chantier de moulage mécanique. Au fond, trémies d'alimentation en sable. Photogr., s.n., s.d. [vers 1960]. -
Halle de moulage. Alimentation automatique des machines à mouler.
Halle de moulage. Alimentation automatique des machines à mouler. Photogr., s.n., s.d. [vers 1960]. -
Scey-sur-Saône - Fonderies de Scey-sur-Saône.
Scey-sur-Saône - Fonderies de Scey-sur-Saône. Carte postale, s.n., s.d. [fin 19e ou début 20e siècle].Lieu de conservation : Archives départementales du Doubs, Besançon - Cote du document : 6 Fi70482 18
À voir
Informations complémentaires
- patrimoine industriel de la Haute-Saône
- atelier de fabrication
- entrepôt industriel
- logement patronal
- logement d'ouvriers
- bureau
- conciergerie
- bief de dérivation
- © Région Bourgogne-Franche-Comté, Inventaire du patrimoine
