USINE MÉTALLURGIQUE DITE FORGES DE BELFORT, PUIS USINE DE TEINTURERIE, DE BLANCHIMENT ET D'IMPRESSION SUR ÉTOFFES STEINER ET CIE, ACTUELLEMENT LAITERIE INDUSTRIELLE DE LA CENTRALE LAITIÈRE DE FRANCHE-COMTÉ
90 - Belfort
32 avenue de Marseille
- Dossier IA90000127 réalisé en 2000 revu en 2001
- Auteur(s) : Raphaël Favereaux
Historique
Construites entre 1643 et 1655, les forges de Belfort deviennent, par donation royale, propriété de la famille Mazarin de 1659 à 1791. Elles sont acquises en l'an V par C. Antonin, J.F.P. Rossée et J.F. Viellard, et exploitées sous la raison sociale Viellard et Antonin. La production s'élève alors à 540 t de fer, pour 325 t en 1814. Le fourneau s'éteint vers 1830 et les forges sont cédées à la Cie des forges d'Audincourt (25) en 1833. L'activité métallurgique décline progressivement - la production atteint seulement 50 t de fer en 1857 -, tandis qu'une scierie fonctionne à la même époque. Les forges cessent toute activité vers 1860. En 1884, Charles Steiner, industriel à Ribeauvillé (68), soucieux de conserver sa clientèle française après l'annexion de l'Alsace, acquiert les bâtiments, qu'il agrandit pour y établir une teinturerie. L'étang des Forges fournit l'eau nécessaire aux opérations, et permet la production d'électricité. Spécialisée dans la teinture en rouge andrinople des tissus de coton, la société Steiner et Cie étend ensuite sa fabrication au blanchiment, à l'apprêt des tissus et aux impressions à la planche et au rouleau. En 1927, elle est dirigée par Camille Schlumberger, gendre de Ch. Steiner, et produit des cotonnades teintes et des tissus imprimés : indiennes fantaisies et toiles peintes dites Toiles de Jouy, reproduites par procédés mécaniques et chimiques. Société en commandite par actions en 1904, devenue SA Teinturerie et Impression Ch. Steiner vers 1932, puis Ateliers de Blanchiment et Teinturerie, l'usine est dirigée jusqu'à sa fermeture en 1958 ou 1959 par Jean Schlumberger. Elle exécute à cette époque, outre de la teinturerie, des impressions mécaniques sur tissus (coton, fibranne, rayonne et mixte) pour une production mensuelle de 350 000 m de tissus. En 1962, le site est occupé par la laiterie industrielle Abt, qui détruit des bâtiments (atelier d'impression), en modifie certains, et en reconstruit d'autres. Après une faillite en 1965, l'activité est reprise par la Centrale laitière de Franche-Comté (union de coopératives), qui achète l'ensemble en 1967. D'autres bâtiments ont été édifiés dans le dernier quart du 20e siècle, pour la fabrication, l'affinage et le conditionnement de l'emmental. Il subsiste deux logements ouvriers collectifs, dont l'un est antérieur au cadastre de 1827, et l'autre construit dans la seconde moitié du 19e siècle. Un fourneau, trois feux d'affinerie, un feu de chaufferie et une clouterie sont attestés en 1797. Deux chaudières et une machine à vapeur de 12 ch autorisées en 1860. 55 personnes vers 1790, 53 en 1887, 128 en 1889, 86 en 1935, 105 en 1938, 60 en 1952, 100 en 1980.
- 4e quart 19e siècle
- 2e moitié 20e siècle
Description
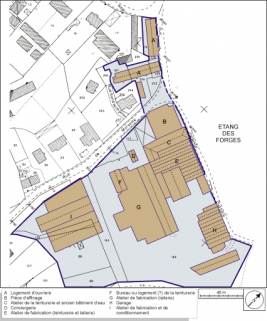
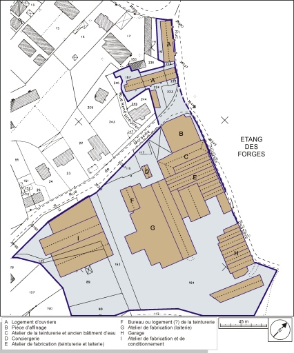
Il subsiste trois bâtiments de l'usine de teinturerie : un atelier de fabrication en brique, abritant l'ancien bâtiment d'eau, avec un toit à longs pans et à croupe couvert en tuile mécanique, et deux bâtiments indépendants (conciergerie et bureau ?) comprenant un étage carré. Les sheds des ateliers de la teinturerie ont été remplacés par des toits à longs pans en tuile mécanique. Les bâtiments de la laiterie (ateliers de fabrication et de conditionnement, pièces d'affinage, remise) sont en parpaing de béton enduit et en béton armé, avec des charpentes et essentages métalliques, couverts en tôle et en ciment amiante. Les logements ouvriers, situés aux n° 21 à 35 rue Auguste Bussière, sont en moellon de calcaire enduit, à un étage carré et toits à longs pans couverts en tuile mécanique.
- calcaire
- brique
- béton
- moellon
- parpaing de béton
- enduit
- essentage de tôle
- tuile mécanique
- fer en couverture
- ciment amiante en couverture
- 1 étage carré
- énergie hydraulique produite sur place
- énergie thermique produite sur place
- énergie électrique produite sur place
- énergie électrique achetée
Source(s) documentaire(s)
-
Belfort (Territoire) - L'Etang des Forges et la Chaîne des Vosges.
Belfort (Territoire) - L'Etang des Forges et la Chaîne des Vosges. Carte postale, Janin éd. (Maîche), s.d. [vers 1950].Lieu de conservation : Archives communales, Belfort - Cote du document : 4 Fi 475 -
Plan de l'usine de Belfort (Haut-Rhin) [plan de détail].
Plan de l'usine de Belfort (Haut-Rhin) [plan de détail]. Plan, calque, lavis, coul., échelle 1:50, s.d. [1860].Lieu de conservation : Archives départementales du Territoire de Belfort, Belfort - Cote du document : 8 S 92 -
Belfort - Les Forges.
Belfort - Les Forges. Carte postale, CLB éd., s.d. [fin 19e ou début 20e siècle].Lieu de conservation : Archives communales, Belfort - Cote du document : 4 Fi 610 -
Plan de l'intérieur de la forge de Belfort.
Plan de l'intérieur de la forge de Belfort. Plan, papier, plume, lavis, coul., échelle 1:100, s.d. [1860].Lieu de conservation : Archives départementales du Territoire de Belfort, Belfort - Cote du document : 7 S 99 -
Belfort. L'étang et le quartier des Forges et du Martinet.
Belfort. L'étang et le quartier des Forges et du Martinet. Carte postale, E. Mayer éd., s.d. [fin 19e ou début 20e siècle].Lieu de conservation : Archives départementales du Territoire de Belfort, Belfort - Cote du document : 8 Fi 10 (330-381) -
Plan de l'usine de Belfort (Haut-Rhin) [plan-masse et de situation].
Plan de l'usine de Belfort (Haut-Rhin) [plan-masse et de situation]. Plan, calque, lavis, coul., échelle 1:1000, s.d. [1860].Lieu de conservation : Archives départementales du Territoire de Belfort, Belfort - Cote du document : 8 S 92 -
[Plan-masse des forges de Belfort].
[Plan-masse des forges de Belfort]. Plan, papier, lavis, coul., échelle 1:500, s.d. [1847].Lieu de conservation : Archives départementales du Territoire de Belfort, Belfort - Cote du document : 8 S 92
À voir
Informations complémentaires
- patrimoine industriel du Territoire de Belfort
- atelier de fabrication
- bureau
- conciergerie
- pièce d'affinage
- atelier de conditionnement
- logement d'ouvriers
- étang
- garage
- © Région Bourgogne-Franche-Comté, Inventaire du patrimoine
