USINE D'HORLOGERIE FRITZ MARTI, PUIS FRITZ MARTI ET FILS, PUIS USINE DE PETITE MÉTALLURGIE FRITZ MARTI ET FILS, PUIS IPM, ACTUELLEMENT IPM FRANCE
25 - Vieux-Charmont
10 route de Belfort
- Dossier IA25001026 réalisé en 2012
- Auteur(s) : Raphaël Favereaux
Historique
La "fabrique d'horlogerie Fritz Marti" est construite en 1871, complétée en 1872-1873 par une fonderie et une menuiserie. La société d'horlogerie Fritz Marti et Cie est fondée en 1870 par Jean Frédéric Marti, dit "Fritz", neveu de Samuel Marti. Ce dernier, d'origine suisse, avait implanté vers 1831 une horlogerie de "gros volume" à Montbéliard (aujourd'hui détruite). Fritz Marti s'associe d'abord avec l'horloger Charles Martin, puis avec l'ingénieur civil Charles Coulern. Cette société "pour la fabrication d'horloges de gros et petits volumes" est dissoute en 1871, et reconstituée en 1874 sous le nom de Manufacture d'horlogerie de Charmont (articles de grosse horlogerie). Une maison et une loge de portier sont achevées en 1874. L'usine est régulièrement agrandie à la fin du 19e et au début du 20e siècle : "fabriques" (ateliers) en 1884, 1886, 1894 et 1899, atelier de dorage en 1891, réfectoire en 1899, magasin en 1900 et atelier de ferronnerie en 1907. Un premier logement patronal est bâti à l'ouest en 1888-1889, complété en 1899-1900 d'une seconde demeure construite au centre d'un parc. En 1900 est créée la société en nom collectif Fritz Marti et Fils, qui poursuit "les affaires industrielles et commerciales de M. Jean Frédéric Marti". Elle est dirigée par Frédéric Auguste Marti, fils de Fritz et ingénieur centralien, qui oriente la production vers la petite mécanique de précision pour l'automobile et la petite serrurerie. Après la Première Guerre mondiale, l'usine possède des ateliers où l'on effectue des travaux de "petite et moyenne mécanique, de décolletage, de tournage, de traitement des aciers spéciaux et de rectification, spécialement pour les besoins de l'automobile". Un nouvel atelier de fabrication et un transformateur électrique sont inaugurés en 1927. L'établissement est endommagé par un bombardement en 1943. Après la Seconde Guerre mondiale, l'usine se spécialise dans la mécanique de précision pour l'industrie automobile, aéronautique et navale. Elle abandonne la fabrication horlogère en 1955 mais conserve un petit atelier de réparation. De nouveaux ateliers sont construits au sud vers 1954, équipés de 400 machines-outils de haute précision. Outre les axes de piston, l'usine fabrique alors des roulements et butées à billes, des galets de roulements et des pièces de sécurité. L'usine est de nouveau agrandie vers 1963. En 1965, l'entreprise Fritz Marti et Fils fusionne avec la société de mécanique générale Goutterot et Marti (IA25001027), située à 200 m plus au nord, pour donner naissance à la société Industrielle de Précision Marti (IPM). En 1963, l'usine s'étend sur 5 ha, dont 8700 m² couverts, et produit quotidiennement 17 000 axes de piston, 30 000 galets et 20 000 pièces diverses de précision. Cette même année, une nouvelle usine est établie dans le Haut-Rhin à Sierentz. Dans les années 1970, le site se spécialise dans la fabrication d'axes de piston pour moteurs. Il est repris dans les années 1980 par l'équipementier automobile Floquet Monopole, qui fait construire un nouvel atelier de forge (frappe à froid) au début des années 1990. Cédée vers 1997 à la société américaine Dana Corporation, elle est vendue en 2002 à Burgess Norton. Fermée en 2005, l'usine connaît une grève mobilisatrice, avant d'être rachetée par l'entreprise allemande UKM. Elle produit selon les années entre 6 à 15 millions d'axes de piston de moteur pour l'industrie du transport.
Données sociales
L'usine emploie 60 ouvriers en 1886, 94 en 1912, 85 en 1926, 112 en 1930, 400 en 1958, 415 en 1963, 300 vers 1968, 250 en 1986 et 42 en 2012.
- 3e quart 19e siècle
- 4e quart 19e siècle
- 1er quart 20e siècle
- 2e quart 20e siècle
- 2e moitié 20e siècle
Description
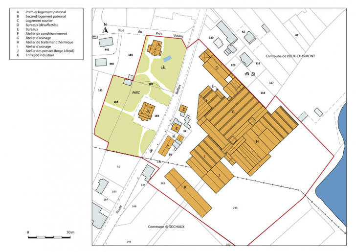
L'entrée du site est marquée par un édifice de plan rectangulaire, construit vers 1885, mais à usage originel inconnu. Bâti en moellon de calcaire enduit sur deux étages carrés, il est coiffé d'un toit en pavillon en tuile mécanique, et ses baies sont à encadrement de brique, couvertes d'arcs segmentaires. Il est flanqué d'un bâtiment de bureaux, vraisemblablement construit dans les années 1960, mais aujourd'hui désaffecté. Les ateliers de fabrication sont construits en rez-de-chaussée, à charpente métallique (poteaux d'acier et poutrelles à treillis), couverts de sheds en tuile mécanique. Les extensions des années 1950 possèdent une ossature métallique hourdée en parpaing de béton, couverte de sheds ou de toits à longs pans en ciment amiante. L'atelier de forge possède une ossature en acier, avec essentage et couverture métallique. Construit en moellon de calcaire enduit, le logement patronal comprend un sous-sol, un rez-de-chaussée surélevé, un étage carré et un étage de comble. La toiture à longs pans brisés et à croupes est couverte d'ardoise, et de zinc pour la partie sommitale.
- calcaire
- fer
- béton
- moellon
- pan de fer
- parpaing de béton
- enduit
- essentage de tôle
- tuile mécanique
- fer en couverture
- ciment amiante en couverture
- verre en couverture
- zinc en couverture
- ardoise
- sous-sol
- rez-de-chaussée surélevé
- 1 étage carré
- étage de comble
- 2 étages carrés
- énergie électrique
- achetée
Source(s) documentaire(s)
-
M 3038 Travail et main d’œuvre (1912)
Archives départementales du Doubs, Besançon, M 3038 Travail et main d’œuvre (1912)Lieu de conservation : Archives départementales du Doubs, Besançon - Cote du document : M 3038 -
M 3044 Travail et main d’œuvre, 1926-1930
M 3044 Travail et main d’œuvre, 1926-1930Lieu de conservation : Archives départementales du Doubs, Besançon - Cote du document : M 3044 -
3 P 615/2 Matrices XIXe siècle
Archives départementales du Doubs, Besançon, 3 P 615/2 Matrices 19e siècleLieu de conservation : Archives départementales du Doubs, Besançon - Cote du document : 3 P 615/2 -
3 P 615/3 Matrices des propriétés bâties (1882)
Archives départementales du Doubs, Besançon, 3 P 615/3 Matrices des propriétés bâties (1882)Lieu de conservation : Archives départementales du Doubs, Besançon - Cote du document : 3 P 615/3 -
3 P 615/5 Matrices des propriétés bâties (1910)
Archives départementales du Doubs, Besançon, 3 P 615/5 Matrices des propriétés bâties (1910)Lieu de conservation : Archives départementales du Doubs, Besançon - Cote du document : 3 P 615/5
-
Vue d'ensemble de l'atelier principal
Photogr., s.n., s.d. [1949]. In " L'Opinion économique et financière ", 1949, n°2, p. 61. -
Vue aérienne depuis l'est (usine d'horlogerie Fritz Marti).
Photogr., 1955.Lieu de conservation : Archives de la famille Marti -
Vue aérienne de l'usine depuis le sud-est (usine d'horlogerie Fritz Marti).
Photogr., s.d. [vers 1963], par Roger Henrard (photographe).Lieu de conservation : Archives de la famille Marti -
Vue aérienne de l'usine depuis le sud-ouest (usine d'horlogerie Fritz Marti).
Vue aérienne de l'usine depuis le sud-ouest (usine d'horlogerie Fritz Marti).Photogr., 1963, par Roger Henrard (photographe).Lieu de conservation : Archives de la famille Marti -
Vue aérienne de l'usine depuis le sud (usine d'horlogerie Fritz Marti).
Vue aérienne de l'usine depuis le sud (usine d'horlogerie Fritz Marti). Photogr., s.d. [vers 1963], par Roger Henrard (photographe)Lieu de conservation : Archives de la famille Marti -
Vue intérieure de l'atelier. Batterie de machines (à décolleter ?).
Vue intérieure de l'atelier. Batterie de machines (à décolleter ?). Photogr. Sabot, Montbéliard, s.d. [vers 1963].Lieu de conservation : Archives de la famille Marti -
Vue d'ensemble de l'atelier (usine d'horlogerie Fritz Marti).
Photogr. Sabot, Montbéliard, s.d. [vers 1963].Lieu de conservation : Archives de la famille Marti -
Vue intérieure de l'atelier. Batterie de presses.
Photogr. Sabot, Montbéliard, s.d. [vers 1963].Lieu de conservation : Archives de la famille Marti -
Vue intérieure de l'atelier. Machines à cisailler.
Photogr. Sabot, Montbéliard, s.d. [vers 1963].Lieu de conservation : Archives de la famille Marti -
Pièces décolletées.
Photogr. Sabot, Montbéliard, s.d. [vers 1963].Lieu de conservation : Archives de la famille Marti
-
Annuaire 1963. Association industrielle : Belfort, Montbéliard, Haute-Saône.
Annuaire 1963. Association industrielle : Belfort, Montbéliard, Haute-Saône. – Belfort : Association industrielle du Territoire de Belfort et des régions limitrophes, s.d. [1964], 139 p. -
Courtieu, Jean (dir.). Dictionnaire des communes du département du Doubs, 1982-1987.
Courtieu, Jean (dir.). Dictionnaire des communes du département du Doubs. - Besançon : Cêtre, 1982-1987. 6 t., 3566 p. : ill. ; 24 cm. -
La croissance industrielle et urbaine de la Porte d'Alsace : essai géographique sur la formation d'un espace régional en fonction de l'attraction industrielle, 1969.
Dézert, Bernard. La croissance industrielle et urbaine de la Porte d'Alsace : essai géographique sur la formation d'un espace régional en fonction de l'attraction industrielle. - Paris : Société d'Enseignement supérieur, 1969. -
Cusenier, Elisée. Les associations agricoles du Doubs, 1923
Cusenier, Elisée. Les associations agricoles du Doubs. Le département du Doubs. - [S.l.] : [s.n.], 1923, p. 29 : ill. N° spécial de « L’Illustration économique et financière », supplément du 4 août 1923. -
L'Opinion économique et financière : Franche-Comté, 1949.
L'Opinion économique et financière : Franche-Comté, juillet 1949, n° 2. -
Les patrons du Second Empire : Franche-Comté, 1991.
Mayaud, Jean-Luc. Les patrons du Second Empire : Franche-Comté. - Paris : Picard, 1991. -
Poletto, Elodie. L’architecture des « châteaux » des industriels dans le Pays de Montbéliard et dans ses environs (1850-1914), mémoire de maîtrise, 1996.
Poletto, Elodie. L’architecture des « châteaux » des industriels dans le Pays de Montbéliard et dans ses environs (1850-1914). - Strasbourg : Faculté des Sciences humaines, Mémoire de maîtrise, 1996. -
Renard, Louis. Le pays de Montbéliard, 1958.
Renard, Louis. Le pays de Montbéliard. - Montbéliard : Rayot-Depoutot, 1958, 238 p. -
Benoît, Maurice ; Gauthier, Jean [et al.]. La vie économique de Franche-Comté et du Territoire de Belfort, 1958.
Benoît, Maurice ; Gauthier, Jean [et al.]. La vie économique de Franche-Comté et du Territoire de Belfort. - Besançon : Impr. de l'Est, 1958.
À voir
Informations complémentaires
- patrimoine industriel du Doubs
- oeuvre située en partie sur la commune Sochaux
- © Région Bourgogne-Franche-Comté, Inventaire du patrimoine
