USINE DE PAPETERIE MOREL, PUIS TRÉFILERIE ET USINE DE DÉCOLLETAGE AMSTUTZ ET SIRCOULON, ACTUELLEMENT USINE DE TRANSFORMATION DES MÉTAUX FMX
25 - Meslières
44 Grande Rue
- Dossier IA25000993 réalisé en 2011
- Auteur(s) : Raphaël Favereaux
Historique
En 1671, Jean Vurpillot établit un moulin à papier sur un bief de dérivation du Gland. Ses fils lui succèdent en 1690, puis l'établissement est cédé à la famille Morel, de Montbéliard, jusqu'en 1748, puis vendu aux suisses Frédéric Blum et Jacques Hodel. Exploitée vers 1780 par Jean Nicolas et G.F. Morel, la papeterie produit annuellement 4 à 5000 rames de papier de tous types (pour écriture, impression, carte à jouer, papier à registre, à musique). En 1823, les héritiers de Morel vendent l'établissement à L.C. Leconte, propriétaire de la papeterie voisine de Glay (aujourd'hui détruite). Celui-ci cède ses usines en 1831 à ses enfants et à son gendre Lalance. A cette époque, la production totale - la papeterie de Glay ayant été convertie en fabrique de pâte à papier - atteint 12 000 rames, mais elle n'est plus que de 8000 rames en 1837. Malgré la construction d'une blanchisserie pour chiffons en 1845, la papeterie cesse son activité en 1847. Leconte et Lalance, associés au dénommé Vauchelet, demandent l'autorisation d'y établir des "ateliers pour la fabrication de broches, crapaudines, cylindres cannelés et autres articles à l'usage des filatures". Acquise vers 1852 par l'industriel Charles Laurent, l'usine est louée à la société Peugeot Frères qui y produit des moulins à café (34 ouvriers en 1861). Détruite par un incendie en 1858, elle est reconstruite peu après, avant d'être vendue à Henri Louis Juillard, qui fait bâtir en 1870 une boulangerie, vraisemblablement annexée à un moulin encore en activité, et un magasin et un logement en 1876. L'industriel s'associe alors avec Frédéric Amstutz pour exploiter sa "tréfilerie et fabrique de pignons". C'est ce dernier qui fait construire en 1873-1874 un logement ouvrier collectif, dénommé "caserne" sur la matrice cadastrale. En 1874-1875, H.L. Juillard fait construire une demeure patronale à l'est de l'usine, au lieu-dit les Truffières. Entre 1888 et 1908, l'usine connaît plusieurs extensions : "un hangar à farine, la loge du portier, un hangar à bois, le bâtiment des machines, un atelier de fabrication et un magasin de dégraissage". Charles-Emile Sircoulon fait construire sa demeure privée en 1899-1900 par l'architecte Charles-Frédéric Surleau, toujours au lieu-dit les Truffières. Devenue Juillard, Amstutz et Sircoulon en 1884, la société prend successivement pour nom Sircoulon et Amstutz en 1894, Sircoulon, Amstutz et Sandoz en 1909, SARL Amstutz et Sandoz en 1930, puis Ets Amstutz, Sandoz et Cie en 1934. A cette époque, l'usine fabrique des articles tréfilés et décolletés : rayons et écrous pour cycles et automobiles, pignons pour l'horlogerie, outillage à main, etc. L'usine est occupée entre le début des années 1950 et 2000 par les Ets Schligler, qui pratiquent le décolletage. En 1962, la production mensuelle atteint 50 t de rayons et 5 t d'écrous pour cycles et motos. Les bâtiments sont agrandis et modernisés dans les années 1970, le bief de dérivation est couvert et diverses constructions anciennes sont détruites (bâtiment de direction, bureau, magasins, atelier de menuiserie, conciergerie). Le site est acquis en 2000 par la société FMX, originaire de Montécheroux (25), qui pratique le découpage et l'emboutissage des métaux pour des sous-traitants de l'automobile (pots d'échappements, pièces de direction et outils de presse). Un nouvel atelier pour presses a été construit en 2003, agrandi en 2005. Une nouvelle extension est en cours en 2012.
Données techniques
En 1780, la papeterie utilise deux cuves, trois roues et neuf piles. Mention d'une machine à papier (?) après 1823. L'établissement compte une roue hydraulique et 22 "machines" en 1851. Une machine à vapeur est attestée en 1892.
Données sociales
La papeterie emploie 36 ouvriers vers 1830. L'usine emploie 204 ouvriers en 1912, 228 en 1926, 123 en 1930, 40 en 1962, et 64 en 2012.
- 2e quart 17e siècle
- 3e quart 19e siècle
- 4e quart 19e siècle
- 1er quart 20e siècle
- 3e quart 20e siècle
- 1er quart 21e siècle
Date de naissance : 22/09/1841 - date de décès : 01/01/1932
Surleau, Charles-Frédéric (1841-1932). Né à Digoin (Saône-et-Loire) puis scolarisé à Montbéliard. Ingénieur formé à l'Ecole des Arts et Manufactures, il travaille pour la Compagnie des Chemins de Fer du Nord. Il s'établit ensuite architecte à Montbéliard et construit plusieurs écoles dans cette région (à Audincourt, Montbéliard, etc.), des édifices religieux (synagogue de Montbéliard, temple des Fesches-le-Châtel, etc.), l'hôpital de Montbéliard, des fromageries, etc. (Sources : <span style="font-style:italic;">Laissez vous conter... les hommes célèbres du Pays de Montbéliard</span> et https://gw.geneanet.org/proceed?n=surleau&oc=7&p=charles+frederic)
Description
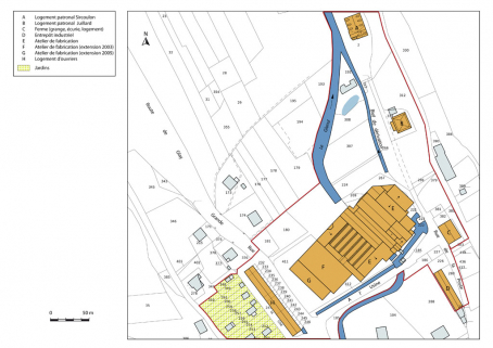
Modernisés dans les années 1970, les ateliers de fabrication sont en rez-de-chaussée, construits en parpaing de béton enduit et couverts de charpente métallique. Les toitures à longs pans ou en sheds sont couvertes de tuile mécanique ou en tôle. Il subsiste néanmoins un atelier, situé le long du bief de dérivation, construit en moellon de calcaire enduit. L'entrepôt industriel possède une ossature en bois, bardée de planches et couverte d'un toit à longs pans en tuile mécanique. L'édifice agricole - qui abritait grange, remise, écurie, et logement - est construit en moellon de calcaire enduit. Le logement comprend un étage carré et un étage de comble, ce dernier niveau étant pourvu d'une charpente en bois. Le logement ouvrier, de type "caserne", abrite 15 appartements contigus dits traversants. Il est construit en moellon de calcaire enduit, et comprend un sous-sol, un rez-de-chaussée surélevé (deux pièces) et un étage de comble (deux chambres). Le logement patronal construit pour Henri Louis Juillard, fréquemment appelé château Amstutz, est en moellon de calcaire enduit, et son élévation comprend un sous-sol, un rez-de-chaussée surélevé, un étage carré et un étage de comble. Il est couvert d'un toit à croupes et longs pans brisés en ardoise. Le second logement patronal, bâti d'après des plans de Surleau et connu sous le nom de château Sircoulon, possède la même élévation. La toiture à longs pans, couverte en ardoise, offre trois pignons soulignés d'un décor en bois ouvragé.
- calcaire
- béton
- fer
- bois
- moellon
- parpaing de béton
- pan de fer
- pan de bois
- enduit
- essentage de tôle
- essentage de planches
- ardoise
- tuile mécanique
- fer en couverture
- verre en couverture
- sous-sol
- rez-de-chaussée surélevé
- 1 étage carré
- étage de comble
- énergie hydraulique
- énergie thermique
- énergie électrique
- produite sur place
- produite sur place
- achetée
Source(s) documentaire(s)
-
M 2441 Industrie horlogère (1845-1874)
M 2441 Industrie horlogère (1845-1874)Lieu de conservation : Archives départementales du Doubs, Besançon - Cote du document : M 2441 -
M 3038 Travail et main d’œuvre (1912)
Archives départementales du Doubs, Besançon, M 3038 Travail et main d’œuvre (1912)Lieu de conservation : Archives départementales du Doubs, Besançon - Cote du document : M 3038 -
M 3044 Travail et main d’œuvre, 1926-1930
M 3044 Travail et main d’œuvre, 1926-1930Lieu de conservation : Archives départementales du Doubs, Besançon - Cote du document : M 3044
-
Plan monumental des grandes usines [...]. Tréfilerie d'acier, fabrique de pignons et fournitures pour l'horlogerie [...] Sircoulon et Amstutz [détail].
Dessin, s.d. [début 20e siècle], auteur inconnuLieu de conservation : Archives départementales du Territoire de Belfort, Belfort - Cote du document : 9 J 1 D 4-7 -
Document publicitaire Sircoulon, Amstutz et Sandoz
Document publicitaire Sircoulon, Amstutz et Sandoz. Papier, s.n., s.d. [début 20e siècle]Lieu de conservation : Collection particulière : B. Voisard -
Document publicitaire Sircoulon, Amstutz et Sandoz
Document publicitaire Sircoulon, Amstutz et Sandoz. Papier, s.n., s.d. [début 20e siècle]Lieu de conservation : Collection particulière : B. Voisard -
Document publicitaire Sircoulon, Amstutz et Sandoz
Document publicitaire Sircoulon, Amstutz et Sandoz. Papier, s.n., s.d. [début 20e siècle]Lieu de conservation : Collection particulière : B. Voisard -
Document publicitaire Sircoulon, Amstutz et Sandoz
Document publicitaire Sircoulon, Amstutz et Sandoz. Papier, s.n., s.d. [début 20e siècle]Lieu de conservation : Collection particulière : B. Voisard -
Meslières (Doubs) - Quartier des usines.
Carte postale, s.d. [début 20e siècle].Lieu de conservation : Collection particulière : B. Voisard -
Quartier des usines.
Carte postale, CLB éd., s.d. [début 20e siècle], auteur inconnuLieu de conservation : Collection particulière : B. Voisard -
Meslières - L'usine.
Carte postale, s.n., s.d. [fin 19e ou début 20e siècle], auteur inconnuLieu de conservation : Archives communales, Montbéliard - Cote du document : 20Fi -
Meslières - Avenue des platanes.
Carte postale, éd. Sircoulon, Amstutz et Sandoz, s.d. [après 1909], auteur inconnuLieu de conservation : Archives communales, Montbéliard - Cote du document : 20Fi
-
Annuaire 1963. Association industrielle : Belfort, Montbéliard, Haute-Saône.
Annuaire 1963. Association industrielle : Belfort, Montbéliard, Haute-Saône. – Belfort : Association industrielle du Territoire de Belfort et des régions limitrophes, s.d. [1964], 139 p. -
Annuaire du Doubs pour 1852. – Besançon : impr. Outhenin-Chalandre.
Annuaire du Doubs pour 1852. – Besançon : impr. Outhenin-Chalandre. -
Croissant-Barbier, Pierre et Anne. Barbier photographe. Valentigney et le Pays de Montbéliard. Les clichés centenaires d'Emile Barbier, 1996
Croissant-Barbier, Pierre et Anne. Barbier photographe. Valentigney et le Pays de Montbéliard. Les clichés centenaires d'Emile Barbier.- Valentigney : Bibliothèque Municipale, 1996. -
Poletto, Elodie. L’architecture des « châteaux » des industriels dans le Pays de Montbéliard et dans ses environs (1850-1914), mémoire de maîtrise, 1996.
Poletto, Elodie. L’architecture des « châteaux » des industriels dans le Pays de Montbéliard et dans ses environs (1850-1914). - Strasbourg : Faculté des Sciences humaines, Mémoire de maîtrise, 1996. -
Enquête régionale sur les bâtiments industriels 1979-1981.
Service régional d'Inventaire de Franche-Comté. Enquête régionale sur les bâtiments industriels 1979-1981.
À voir
Informations complémentaires
- patrimoine industriel du Doubs
- © Région Bourgogne-Franche-Comté, Inventaire du patrimoine
