USINE DE DÉCOLLETAGE BOHLY, PUIS FONDERIE CORBIN, PUIS USINE DE PETITE MÉTALLURGIE PERNOT
70 - Champagney
rue de la Fonderie
- Dossier IA70000163 réalisé en 2005
- Auteur(s) : Raphaël Favereaux
Historique
Une petite usine de quincaillerie est fondée en 1897 par Armand Bohly à l'emplacement de l'ancien moulin Agté. L'entreprise est transférée en 1904 à Mélisey. Le site est acquis en 1904 par Maxime Corbin, qui y fait construire une fonderie en 1905. L'établissement travaille surtout pour l'industrie automobile (Donnet-Zedel, Bugatti, Mathis, Panhard-Levassor, Chenard et Walker, Brazier, Delage, Hispano et Peugeot) et produit des pièces en aluminium, fonte de fer et bronze. Pendant la Première Guerre, l'usine fabrique des pistons pour l'industrie aéronautique. La fonderie ferme ses portes le 1er août 1936. Elle est achetée par le négociant belfortain de fournitures industrielles Borel, qui revend le matériel et entreprend la destruction des ateliers. En 1938, les frères Paul et Delphin Pernot acquièrent ce qui subsiste des bâtiments (soit le tiers de l'ensemble) et y implantent un atelier de décolletage, qui travaille pour l'industrie d'armement. La société Pernot poursuit son activité, en direction de l'industrie ferroviaire, jusqu'à la fin des années 1940. L'atelier, désaffecté depuis cette date, menace ruine. Deux turbines sont en service en 1905. La fonderie emploie 170 ouvriers en 1918, 240 dans les années 1920, 105 en 1931 et 75 en 1932.
- 1er quart 20e siècle
Description
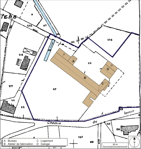
L'atelier de fabrication subsistant est construit en moellon de grès enduit et brique, couvert d'un toit à longs pans (partiellement éventré) et tuile mécanique. Le logement comprend un étage carré et un toit à croupes.
- grès
- brique
- moellon
- enduit
- tuile mécanique
- 1 étage carré
- énergie hydraulique
- produite sur place
Source(s) documentaire(s)
-
Champagney (Haute-Saône). Usine Corbin.
Champagney (Haute-Saône). Usine Corbin. Carte postale, s.d. [début 20e siècle].Lieu de conservation : Archives départementales du Doubs, Besançon - Cote du document : 6 Fi 70120 2
À voir
Informations complémentaires
- patrimoine industriel de la Haute-Saône
- atelier de fabrication
- logement
- garage
- bureau
- bief de dérivation
- © Région Bourgogne-Franche-Comté, Inventaire du patrimoine
