TISSAGE DE COTON ROCHET, PUIS ENTREPÔT COMMERCIAL DE LA SOCIÉTÉ ROBERT SHAW-MADEC, ACTUELLEMENT MAGASIN DE COMMERCE ET ATELIER DE MENUISERIE CARDOT
70 - Mélisey
54 à 58 route de Lure
- Dossier IA70000126 réalisé en 2005
- Auteur(s) : Raphaël Favereaux
Historique
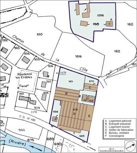
Un tissage de coton est fondé dans le premier quart du 20e siècle par Louis Rochet, vraisemblablement après la Première Guerre mondiale. Connu sous le nom de TCM, il est repris après la Seconde Guerre mondiale par les sociétés Boussac, puis Carraz. L'établissement ferme ses portes dans la décennie 1950. Vers 1959, les façades de l'usine, visibles depuis la rue, sont dissimulées par l'adjonction de bâtiments en béton armé à fonction de bureaux, vestiaires, etc. C'est à cette époque que l'usine est acquise par la Compagnie Européenne de Thermostats, filiale de la société Robert Shaw-Madec, fabricant d'articles de petite métallurgie (robinets de gaz, brûleurs et thermostats pour appareils ménagers) implanté à Servance (étudiée IA70000139). Il semble que le site n'ait servi que d'entrepôt industriel. Les locaux sont cédés en 1970 au groupe GFD (Générale de Forgeage et Décolletage), qui les utilise comme magasin de boulonnerie. La petite entreprise de menuiserie Cardot loue une partie des bâtiments en 1984, avant d'acheter l'ensemble en 1996 à GFI, successeur de GFD. Le site est actuellement occupé par cette entreprise, Cardot Guy Créations, ainsi que par un magasin de vente de produits de décoration. Une chaudière horizontale Renard (Ivry, 94) pour l'encolleuse, est autorisée en 1927 et une chaudière semi-tubulaire SACM (Belfort, 90) est autorisée en 1928.
- 1er quart 20e siècle
- 3e quart 20e siècle
Description
L'atelier de fabrication est construit en rez-de-chaussée, couvert de sheds et de tuile mécanique. Deux travées de sheds, implantées perpendiculairement aux premières sur l'arrière, sont en brique creuse. Entre 1958 et 1960, deux bâtiments à fonction sociale (bureaux, vestiaires) ont été édifiés contre les façades exposées au sud-est et au nord-est, donnant à l'usine un aspect résolument moderne. L'extension nord-est, en béton armé, possède un étage et est couverte d'un toit en appentis. Deux logements ouvriers collectifs ont été bâtis à l'arrière de l'usine. Le logement patronal, construit au nord sur les hauteurs, possède un étage carré, un étage de comble et un toit couvert d'ardoises. Il est environné d'un logement et d'une remise.
- grès
- brique creuse
- béton
- moellon
- béton armé
- enduit
- tuile mécanique
- ardoise
- verre en couverture
- 1 étage carré
- étage de comble
- énergie thermique produite sur place
- énergie électrique achetée
À voir
Informations complémentaires
- patrimoine industriel de la Haute-Saône
- atelier de fabrication
- entrepôt industriel
- logement patronal
- logement d'ouvriers
- conciergerie
- bureau
- © Région Bourgogne-Franche-Comté, Inventaire du patrimoine
