TISSAGE DE COTON MAX DOLLFUS, PUIS TISSAGE ET FILATURE DE COTON SCHWOB FRÈRES DITE USINE DU MOULIN, ACTUELLEMENT BUREAU, MÉDIATHÈQUE ET LOGEMENT
70 - Héricourt
rue de la 1 à 13 Tuilerie
- Dossier IA70000094 réalisé en 2005
- Auteur(s) : Raphaël Favereaux
Historique
En 1897, l'industriel mulhousien Max Dollfus fait construire un tissage de coton en rez-de-chaussée couvert de sheds, dont les métiers sont actionnés par une machine à vapeur. La cité ouvrière, dite des Polognes, est construite au début du 20e siècle. L'usine est acquise en 1909 par la société Schwob Frères, et complétée peu après d'une filature. Ces deux établissements, situés en partie sur l'emplacement de l'ancienne usine textile Niffenecker - dite le Moulin -, sont désignés sous l'appellation de tissage et filature du Moulin. Fermé en 1969, le tissage a été reconverti dans les années 1990 en Centre de Développement des Compétences et des Entreprises et en bureaux de l'ANPE. Dans les années 1970, la filature fabriquait des fils synthétiques (nylon et tergal) et artificiels (rayonne, fibrane), et traitait en moyenne 15 tonnes de coton par jour. Elle a cessé sa production en 1989 et a été rasée peu après, pour laisser place à une médiathèque, des logements locatifs, une résidence pour étudiants et les bureaux des Assedic. Présence de 250 métiers à tisser en 1900. Le tissage emploie 159 ouvriers en 1898 et 200 en 1900. En 1931, 225 personnes travaillent au tissage, contre 292 à la filature. Celle-ci emploie encore 180 personnes en 1977, et 140 en 1989.
- 4e quart 19e siècle
- 1er quart 20e siècle
Description
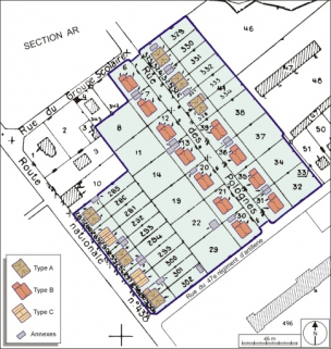
L'atelier de tissage est construit en moellon de calcaire enduit. Il est couvert de 13 travées de sheds en tuile mécanique et en tôle. La cité ouvrière, construite rue des Polognes et faubourg de Montbéliard, comprend 19 maisons de trois types différents. Le type A comprend 6 logements doubles (rez-de-chaussée surélevé, étage en surcroît) ; le type B comprend 11 logements doubles (rez-de-chaussée surélevé, étage de comble, toit à demi-croupes) et le type C comprend 2 logements doubles (de contremaître ?) à rez-de-chaussée surélevé et étage en surcroît.
- calcaire
- brique
- béton
- moellon
- parpaing de béton
- enduit
- tuile mécanique
- verre en couverture
- fer en couverture
- en rez-de-chaussée
- énergie thermique produite sur place
- énergie électrique achetée
Source(s) documentaire(s)
-
Vue aérienne depuis le sud-est.
Vue aérienne depuis le sud-est. Photogr., s.d. [milieu 20e siècle].Lieu de conservation : Médiathèque, Héricourt -
Le personnel devant l'entrée.
Le personnel devant l'entrée. Photogr., s.d. [début 20e siècle].Lieu de conservation : Médiathèque, Héricourt -
La cité ouvrière des Polognes en construction.
La cité ouvrière des Polognes en construction. Photogr., s.d. [début 20e siècle].Lieu de conservation : Médiathèque, Héricourt -
Ateliers de fabrication en rez-de-chaussée.
Ateliers de fabrication en rez-de-chaussée. Photogr., s.d. [début 20e siècle].Lieu de conservation : Médiathèque, Héricourt -
La cité ouvrière des Polognes.
La cité ouvrière des Polognes. Photogr., s.d. [début 20e siècle].Lieu de conservation : Médiathèque, Héricourt
À voir
Informations complémentaires
- patrimoine industriel de la Haute-Saône
- atelier de fabrication
- magasin industriel
- cité ouvrière
- © Région Bourgogne-Franche-Comté, Inventaire du patrimoine
