SCIERIE THIDRIC PUIS GAUME, OU GRANDE SCIERIE MÉCANIQUE DE MAÎCHE
25 - Maîche
rue de la Scierie, 2-6 rue de la Fin Yotte
- Dossier IA25001360 réalisé en 2013 revu en 2015
- Auteur(s) : Laurent Poupard
Historique
Léon Thidric (né le 3 février 1887 à Jézainville, Meurthe-et-Moselle, et maire de Maîche en 1921) bâtit en 1911-1912 une scierie-parqueterie de résineux et un logement patronal (cadastré 2015 AI 192, 6 rue Fin Yotte). L'établissement est animé par une machine à vapeur, utilisée jusque dans les années 1950, qui actionne également une génératrice électrique. Il est par la suite agrandi à plusieurs reprises : vers 1914, 1923 avec la construction d'une maison avec écurie au long de l'actuelle rue Pasteur (2015 AI 121) et 1926 (?). Pour l'étendre, Thidric achète à plusieurs reprises des terrains à l'avocat parisien Alain Ducreux, à l'origine à cet endroit d'un lotissement de 32 parcelles et de la villa Mascotte (2015 AI 71, 4 rue Fin Yotte), qui devient le bureau de l'entreprise. Cette dernière emploie 62 personnes en 1926 (Thidric est aussi signalé à la même date à Fournet-Blancheroche avec 22 ouvriers). A la suite d'importantes pertes dans une affaire forestière, elle est déclarée en liquidation judiciaire le 31 décembre 1928. Elle possède alors plusieurs bâtiment et chantiers. Le premier est la scierie proprement dite (762 m2, charpente en fer) contenant un moteur électrique, 6 châssis de scies verticales (1 à refendre et 1 à lames multiples, 4 alternatifs dont 3 à lames multiples), 4 scies circulaires et 2 ponts roulants manuels, et dans la partie atelier d'affûtage 2 moteurs électriques de 1 ch (1 à courant alternatif et 1 à courant continu), 1 machine à affûter, 1 à planer et 2 à écraser et rectifier les dents de scies à ruban. Le deuxième bâtiment servant de "parqueterie, chauffage, salle de machines, forges, ateliers de réparations, menuiserie et séchoir" (958 m2) comprend outre le matériel de forge une machine à vapeur Lanz de 120 ch, 3 raboteuses, 1 mortaiseuse, 2 scies circulaires, 3 dégauchisseuses, 1 toupie, 1 tenonneuse, 1 dynamo de 40 ch, 3 moteurs électriques (20, 12 et 7 ch) et 24 wagonnets pour séchoir. Le troisième est à usage de "hangards et garages, magasins à bois débité et local de scie à ruban" (389 m2, 1 moteur électrique de 44 ch et 1 scie à ruban Marcquol), le quatrième de "hangards à grumes, tronçonnage" (198 m2, 1 monorail avec palan). Sont aussi mis en vente la villa Mascotte (bureaux et logements, cadastrés 2015 AI 71, achetée le 25 septembre 1913 aux époux Ducreux), une autre villa à proximité (logement patronal, 2015 AI 192), les bâtiments au long de la rue Pasteur (habitations avec 3 logements de 4 pièces et 4 logements de 3 pièces, écuries, granges, etc.), divers terrains à Maîche plus un à Saint-Hippolyte au lieu-dit derrière les Vergers (cadastré A 130, 131 p et 132 p) "à usage de chantier et d'injection de poteaux électriques, raccordé à la voie ferrée P.L.M." (loué en 1927 à la Compagnie générale d'Entreprises électriques SA, 16 rue de la Baume à Paris). La vente aux enchères a lieu le 4 mai 1929.
Le site est repris par Hubert Gaume (comptable de Thidric) et Hippolyte Schell, associés au sein de la Grande Scierie mécanique de Maîche. L'entreprise se redresse et passe de 23 ouvriers en 1930 à 33 au début des années 1950 ; pour les loger, Gaume achète au cours de cette décennie l'un des bâtiments de la cité Rotschi, avenue du Maréchal Leclerc, et leur en rétrocède les logements. Le cadastre signale de nombreux agrandissements des années 1930 aux années 1990 (notamment bureaux et garages en 1971). Louis Gaume, qui a remplacé son père en 1956, est devenu PDG de la SA, poste auquel lui succède en 1985 son fils Hubert, l'autre fils (François) devenant directeur responsable de l'achat des grumes. L'importance des investissements nécessaires pour la modernisation de l'établissement conduit à la fin de 1999 au règlement judiciaire de la SA, qui est acquise en 2000 par la société Monnet-Sève, dirigée par Jean-Claude Sève. Cette dernière est issue d'un atelier de charpente et menuiserie créé en 1929 à Outriaz (Ain) par Célestin Monnet, auquel est adjointe une scierie que le fils de Célestin, Marius Monnet, et son beau-frère, Maurice Sève, vont développer à partir de 1942. Le groupe Monnet-Sève (SA au capital de 7,5 millions €) compte quatre scieries : à Maîche dans le Doubs, Outriaz et Saint-Vulbas (ouverte en 1992) dans l'Ain, Sougy-sur-Loire dans la Nièvre. En 2012, le responsable du site Dominique Feuvrier et son mécanicien Simon Lethier en reprennent l'exploitation, le groupe restant présent à hauteur de 40 % du capital. Traitant environ 60 000 m3 de bois par an (moitié de sapins et moitié d'épicéas), dont un tiers provient de Suisse et le reste du Haut-Doubs, la scierie est organisée autour de deux lignes de production : la première pour les commandes diversifiées (scie à ruban Bongioanni de 2011, de 110 cm de diamètre), dédiée aux grumes de gros diamètres et grandes longueurs (de 2,50 à 12,50 m de long) ; la deuxième ("canter") pour les commandes destinées à la grande distribution (produits standards et diamètres plus petits, de 18 à 33 cm). En 2013, elle compte 30 personnes travaillant en deux équipes.
Au fil du temps, certaine constructions ont été séparées de la scierie : la maison avec écurie rue Pasteur (détruite en 1996), la villa Mascotte (conservée par la famille Gaume) et l'autre villa (agrandie vers 1939 ?), qui abrite actuellement des logements. Sur la partie sud du terrain de cette dernière, la Société électrique de Morteau, Maîche et extensions a ouvert dans les années 1930 un site de maintenance et réparations, doté de logements, ateliers et garages : elle a fait édifier vers 1933 deux corps de bâtiment dans l'angle sud-est, prolongés vers l'ouest entre 1951 et 1958 puis par une aile en retour vers le nord entre 1958 et 1967, période durant laquelle sont aussi bâtis des garages (agrandis vers le nord aux cours de la décennie 1980 puis de la décennie suivante). La société Electricité de France a désaffecté le site au milieu des années 1970, à la suite d'un regroupement de services à Pont-de-Roide ou Montbéliard.
Description
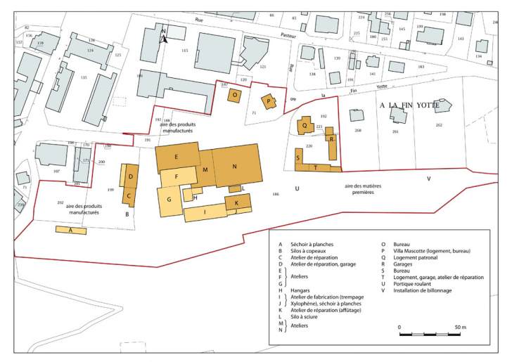
Le site industriel comporte de nombreux bâtiments. Ceux anciens (atelier de fabrication entre débitage et empilage, ateliers de réparation) ont des murs en moellons calcaires, parfois repris en parpaing de béton, matériau aussi utilisé pour l'atelier d'affûtage, les silos à sciure, le soubassement du bureau. Les ateliers de fabrication ont un structure en pan de fer ou pan de béton armé, avec essentage de tôles, de planches ou de matériau synthétique (onduline), et une charpente en bois ou en métal apparente (les deux ateliers de trempage, plus récents, ont soit une charpente en lamellé-collé, soit une charpente mixte alliant béton et fer). Les toits sont à longs pans et pignons couverts (un séchoir à planches et l'un des ateliers de trempage ont un toit à un pan). Ils sont protégés par une couverture métallique (l'atelier de réparation sud-ouest et le bureau font appel aux tuiles mécaniques). Tous ces bâtiments sont en rez-de-chaussée mais l'atelier de réparation nord-ouest compte aussi un étage de comble. Le bureau est du type chalet, avec des murs en pan de bois essenté de planches, et comporte étage de soubassement, rez-de-chaussée surélevé et étage de comble. Les deux villas ont des murs en moellons calcaires enduits et une couverture de tuiles plates mécaniques (chacune présente cependant au moins un corps en rez-de-chaussée protégé par une terrasse en béton). Elles sont coiffées de toitures aux formes compliquées, avec pignon couvert, croupe, demi-croupe, noue et même lanternon ou campanile (dont la flèche est protégée par un revêtement métallique) sur la villa Mascotte. Toutes deux ont un sous-sol, un rez-de-chaussée surélevé, un étage carré et un étage en surcroît, desservis par des escaliers dans-oeuvre. Les anciens bâtiments EDF font appel à la brique creuse (pour les plus anciens) et au béton enduits. Ils sont en rez-de-chaussée (avec éventuellement un étage de comble sur les plus anciens) et coiffés de toits à longs pans, pignon couvert (croupe pour le retour au nord) et tuiles mécaniques.
- calcaire
- béton
- béton
- fer
- bois
- brique creuse
- moellon
- parpaing de béton
- pan de béton armé
- pan de fer
- pan de bois
- enduit
- enduit
- essentage de planches
- essentage de matériau synthétique
- essentage de tôle
- essentage de planches
- enduit
- acier en couverture
- fer en couverture
- tuile mécanique
- tuile plate mécanique
- béton en couverture
- en rez-de-chaussée
- charpente métallique apparente
- charpente en bois apparente
- charpente mixte apparente
- toit à longs pans, pignon couvert
- croupe
- demi-croupe
- noue
- flèche carrée
- toit à un pan
- escalier de distribution extérieur,
- escalier dans-oeuvre,
- énergie thermique produite sur place
- énergie électrique produite sur place
- énergie électrique achetée
Source(s) documentaire(s)
-
Archives départementales du Doubs : M 1657 Etablissements classés (1927-1928).
Archives départementales du Doubs : M 1657 Etablissements classés (1927-1928).Lieu de conservation : Archives départementales du Doubs, Besançon - Cote du document : M 1657 -
Archives départementales du Doubs : M 3044 Travail et main d’œuvre, 1926-1930.
Archives départementales du Doubs : M 3044 Travail et main d’œuvre, 1926-1930.Lieu de conservation : Archives départementales du Doubs, Besançon - Cote du document : M 3044 -
Archives départementales du Doubs : 366 O 10 Administration communale. Maîche. Acquisitions (1820-1934).
Archives départementales du Doubs : 366 O 10 Administration communale. Maîche. Acquisitions (1820-1934).Lieu de conservation : Archives départementales du Doubs, Besançon - Cote du document : 366 O 10 -
Archives municipales, Maîche : Cadastre de la commune de Maîche [1812-1977].
Archives municipales, Maîche : Cadastre de la commune de Maîche [1812-1977].- Registre des états de sections (1812).- Matrices cadastrales des propriétés bâties et non bâties : Propriétés foncières [1826-1914].- Matrice cadastrale des propriétés bâties, 1883-1896 [1882-1910].- Matrice cadastrale des propriétés bâties [1911-1977].Lieu de conservation : Archives municipales, Maîche
-
Etablissements L. Thidric. Scierie – Parqueterie, Maîche (Doubs). Plan général des terrains, 1927.
Etablissements L. Thidric. Scierie – Parqueterie, Maîche (Doubs). Plan général des terrains, dessin (plume, calque), s.n., s.d. [1927], 64 x 100 cm, 1/250.Lieu de conservation : Archives départementales du Doubs, Besançon - Cote du document : M 1657 -
Plan annexé au cahier des charges dressé [...] le 18 avril 1929 [...], avril 1929.
Plan annexé au cahier des charges dressé par Me Bollet lors notaire à Maîche le 18 avril 1929 préalablement à l'adjudication du 4 mai 1929, dessin (plume, crayon de couleur), s.n., avril 1929, 29,5 x 41 cm, 1/1 000.Lieu de conservation : Archives départementales du Doubs, Besançon - Cote du document : 366 O 10 -
8. Maîche. - Quartier neuf [vue d'ensemble du quartier depuis le Mont Joie à l'ouest], 1er quart 20e siècle.
8. Maîche. - Quartier neuf [vue d'ensemble du quartier depuis le Mont Joie à l'ouest], carte postale, s.n., [1er quart 20e siècle], Impr. Wasner éd. à Maîche. Porte la date 23 août 1929 au verso. Publiée dans : Vuillet, Bernard. Entre Doubs et Dessoubre. Tome II. Autour de Maîche et Belleherbe, 1990, p. 72. -
175. Maîche - Quartier neuf [vu du clocher de l'église, au nord-ouest], 1er quart 20e siècle.
175. Maîche - Quartier neuf [vu du clocher de l'église, au nord-ouest], carte postale, par Ch. Simon, s.d. [1er quart 20e siècle], Ch. Simon éd. à Maîche et Ornans. Publiée dans : Vuillet, Bernard. Entre Doubs et Dessoubre. Tome II. Autour de Maîche et Belleherbe, 1990, p. 70. Egalement publiée dans : Simonin, Michel ; Choulet, Jean-Marie. Maîche hier et aujourd'hui, 1999, p. 62.Lieu de conservation : Collection particulière : Henri Ethalon, Les Ecorces -
1025. Maîche - Quartier neuf [scierie et villa depuis l'est], 1er quart 20e siècle.
1025. Maîche - Quartier neuf [scierie et villa depuis l'est], carte postale, par Ch. Simon, s.d. [1er quart 20e siècle], Ch. Simon éd. à Maîche et Ornans. Publiée dans : Simonin, Michel ; Choulet, Jean-Marie. Maîche hier et aujourd'hui, 1999, p. 62. -
117. Maîche - Scierie de Saint-Michel [scierie et villa depuis l'est], 1er quart 20e siècle.
117. Maîche - Scierie de Saint-Michel [scierie et villa depuis l'est], carte postale, par Ch. Simon, s.d. [1er quart 20e siècle], Ch. Simon éd. à Maîche, Impr. E. Le Deloy à Paris. Porte la date 19 janvier 1919 au verso. Publiée dans : Simonin, Michel ; Choulet, Jean-Marie. Maîche hier et aujourd'hui, 1999, p. 64.Lieu de conservation : Collection particulière : Henri Ethalon, Les Ecorces -
1899. Maîche - Scieries Thidric et Villa Mascotte [depuis l'est], 1er quart 20e siècle.
1899. Maîche - Scieries Thidric et Villa Mascotte [depuis l'est], carte postale, s.n., s.d. [1er quart 20e siècle], Gaillard-Prêtre éd. Borne successeur à L'Isle-sur-le-DoubsLieu de conservation : Collection particulière : Henri Ethalon, Les Ecorces -
1096. Maîche - Scierie Saint-Michel [depuis l'est], 1er quart 20e siècle.
1096. Maîche - Scierie Saint-Michel [depuis l'est], carte postale, s.n., s.d. [1er quart 20e siècle]. Publiée dans : Vuillet, Bernard. Entre Doubs et Dessoubre. Tome II. Autour de Maîche et Belleherbe, 1990, p. 72. -
226. Maîche - Scierie de Saint-Michel et Quartier neuf [vue d'ensemble depuis l'ouest], 1er quart 20e siècle.
226. Maîche - Scierie de Saint-Michel et Quartier neuf [vue d'ensemble depuis l'ouest], carte postale, par Ch. Simon, s.d. [1er quart 20e siècle], Ch. Simon éd. à Maîche. Publiée dans : Simonin, Michel ; Choulet, Jean-Marie. Maîche hier et aujourd'hui, 1999, p. 64.Lieu de conservation : Collection particulière : Henri Ethalon, Les Ecorces -
1081. Maîche - Quartier neuf [vue rapprochée depuis le clocher de l'église, au nord-ouest], 1er quart 20e siècle.
1081. Maîche - Quartier neuf [vue rapprochée depuis le clocher de l'église, au nord-ouest], carte postale, par Ch. Simon, s.d. [1er quart 20e siècle], Ch. Simon éd. à Maîche et Ornans, impr. E. Le Deloy à ParisLieu de conservation : Collection particulière : Henri Ethalon, Les Ecorces -
1525. Maîche - Quartier neuf [vu du clocher de l'église, au nord-ouest], 2e quart 20e siècle.
1525. Maîche - Quartier neuf [vu du clocher de l'église, au nord-ouest], carte postale, par Ch. Simon, s.d. [2e quart 20e siècle], C. Simon éd. à Maîche. Porte la date 17 avril 1932 au verso. Publiée dans : Simonin, Michel ; Choulet, Jean-Marie. Maîche hier et aujourd'hui, 1999, p. 62.Lieu de conservation : Collection particulière : Henri Ethalon, Les Ecorces -
Prises de vues aériennes de l'IGN (20e siècle).
Prises de vues aériennes de l'IGN (20e siècle). Consultables en ligne via le site du Géoportail (www.geoportail.gouv.fr).
-
Annuaire des Entreprises de France, le fichier national des chambres de commerce et d'industrie.
Annuaire des Entreprises de France, le fichier national des chambres de commerce et d'industrie.
-
Gioud, Antoine. L'exploitation et le sciage des bois dans le Jura français, 1952.
Gioud, Antoine. L'exploitation et le sciage des bois dans le Jura français. Revue de géographie de Lyon, vol. 27, n° 2, 1952, p. 99-131 : ill. -
Maîche au fil des siècles, 1999.
Maîche au fil des siècles. - Maîche : la Ville, 1999. 116 p. : ill. ; 30 cm. Numéro spécial du Bulletin municipal (n° 21). -
Simonin, Michel ; Choulet, Jean-Marie. Maîche hier et aujourd'hui, 1999.
Simonin, Michel ; Choulet, Jean-Marie. Maîche hier et aujourd'hui. - Maîche : Jardins de Mémoire, 1999. 101 p. : tout en ill. ; 30 x 31 cm. Recueil de cartes postales anciennes vis-à-vis de photographies récentes. -
Vuillet, Bernard. Entre Doubs et Dessoubre. Tome II. Autour de Maîche et Belleherbe, 1990.
Vuillet, Bernard. Entre Doubs et Dessoubre. Tome II. Autour de Maîche et Belleherbe, d'après la collection de cartes postales de Georges Caille. - Les Gras : B. Vuillet, Villers-le-Lac : G. Caille, 1990. 231 p. : cartes postales ; 31 cm.
-
Feuvrier, Dominique (témoignage oral)
Feuvrier, Dominique. Dirigeant de la scierie. Maîche. -
Simonin, Michel (témoignage oral)
Simonin, Michel. Ancien horloger, auteur de livres sur Maîche et l'horlogerie du Haut-Doubs. Maîche.
À voir
Informations complémentaires
- patrimoine industriel du Doubs
- aire des matières premières
- aire des produits manufacturés
- atelier de fabrication
- atelier de réparation
- bureau
- pièce de séchage
- silo
- poste de chargement
- stationnement
- logement
- logement
- garage
- cour
- © Région Bourgogne-Franche-Comté, Inventaire du patrimoine
