SCIERIE ET USINE DE MENUISERIE LALLOZ, PUIS LALLOZ-MENASSEYRE
70 - Luxeuil-les-Bains
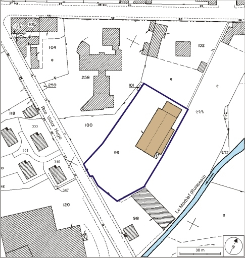
12 rue Victor Hugo
- Dossier IA70000272 réalisé en 2007
- Auteur(s) : Raphaël Favereaux
Historique
Antoine Lalloz fonde une scierie au sud de la rue Neuve (actuelle rue Victor Hugo) vers 1895. Il édifie une menuiserie de l'autre côté de la rue Neuve en 1898. Il s'associe vers 1920 avec L. Menasseyre, sous la société en nom collectif Lalloz-Menasseyre. Un séchoir est construit en 1931. Vers 1938, la scierie fabrique annuellement 300 t de meubles. L'entreprise s'oriente vers la fabrication de mobilier scolaire et de bureau. Elle cesse ses activités en 1955, et le site est occupé l'année suivante par la société de transports Lesire. Les bâtiments de la scierie et le séchoir ont été détruits, seul subsiste l'atelier de menuiserie daté de 1898, toujours utilisé par la société Lesire.
Une machine à vapeur est en fonction de 1910 à 1914. Une chaudière Singrünn (Epinal, 88) est autorisée en 1911 et une chaudière locomobile Flocker (Gassens, Allemagne) en 1914. La menuiserie utilise une dizaine de machines à bois vers 1930. Un moteur à gaz pauvre de 100 ch est en service en 1938.
L'entreprise emploie 50 ouvriers en 1931.
- 4e quart 19e siècle
Description
L'atelier de menuiserie, daté 1898 sur la façade antérieure, est construit en moellon de grès enduit, couvert d'un toit à longs pans.
- grès
- moellon
- enduit
- tuile mécanique
- 1 étage carré
- énergie thermique produite sur place
- énergie électrique achetée
À voir
Informations complémentaires
- patrimoine industriel de la Haute-Saône
- atelier de fabrication
- © Région Bourgogne-Franche-Comté, Inventaire du patrimoine
