SALLE DES FÊTES PUIS CINÉMA, ACTUEL CENTRE DRAMATIQUE NATIONAL
25 - Besançon
1 esplanade Jean-Luc Lagarce, 1 avenue Édouard Droz
- Dossier IA25002028 réalisé en 2023
- Auteur(s) : Fabien Dufoulon
Historique détaillé
La salle des fêtes constitue l'aile orientale du casino-restaurant construit à l'initiative de la Compagnie des Bains salins de la Mouillière d'après les plans de l'architecte Maurice Forien. Elle est inaugurée en juillet 1892. Elle connait deux changements de destination au cours du 20e siècle.
Salle des fêtes, salle de théâtre et salle de concert
Contrairement au reste de l'édifice, la salle des fêtes est couverte d'une charpente métallique, comme le précisent les documents du fonds Pateu. Cette charpente est conservée, mais le châssis vitré rétractable construit au-dessus de la salle a disparu. Il ne reste aujourd'hui rien de l'aménagement et des décors intérieurs, mis à part les loges avec leurs galeries et leur escalier (à l'arrière de la salle), ainsi qu'un vestige de peinture. Des photographies anciennes permettent toutefois de connaître la configuration de l'entrée et de la salle. La "salle des fêtes" sert de salle de théâtre et de salle de concert. En février 1892, l'administrateur de la Compagnie des Bains salins de la Mouillère demande au maire l'autorisation de faire appel à M. Fusenot, machiniste du théâtre municipal, pour qu'il s'occupe également du "théâtre du casino" pendant la saison thermale. De la même manière, il est proposé à M. Goud, chef d'orchestre du théâtre municipal, l'emploi de chef d'orchestre du casino.Cinéma (à partir de 1934)
Comme l'ensemble du casino-restaurant, la salle des fêtes est acquise par la Ville le 27 avril 1933. Le conseil municipal décide alors de confier l'exploitation à un concessionnaire différent de celui du casino-restaurant. Un bail d'une durée de neuf ans est signé avec l'industriel Ernest Fallet, qui s'engage à payer un loyer de 25.000 francs et à réaliser des travaux. D'après la délibération du conseil municipal du 17 octobre 1936, les engagements sont respectés : "En exécution de l'une des clauses du bail, M. Fallet a pourvu la salle, à ses frais, de fauteuils modernes, installé des tapis pour garnir les allées et les escaliers et fait poser des rideaux de scène, toutes installations qui, à l'expiration des neuf années de bail, doivent devenir de plein droit la propriété de la Ville". Pas moins de 900 fauteuils ("genre Pulmann") sont achetés, pour un montant de 135.000 francs. Fallet prévient la Ville qu'il a également acheté une installation de cinéma parlant (marque : Western Electric) dont il restera en revanche propriétaire, pour un montant de 200.000 francs.La Ville, qui se rend compte que la loi ne l'autorisait pas à dissocier la salle des fêtes du casino-restaurant, doit résilier le bail d'Ernest Fallet le 22 février 1937. Dans les faits, la résiliation n'a aucune conséquence, puisqu'il devient le sous-locataire du concessionnaire du casino-restaurant, la société Ferrier-Delpis (qui devient Ferrier et Compagnie, puis Société du Casino des Bains salins de la Mouillère). La guerre entraîne la fermeture du casino-restaurant en septembre 1939 et par conséquent la rupture de la convention entre la Ville et le concessionnaire. Les loyers sont donc de nouveau versés à la Ville à compter du 1er avril 1942. Le bail de Fallet doit se terminer théoriquement le 30 avril 1943, mais la Ville tolère qu'il reste occupant sans titre jusqu'en avril 1946.
Dans sa délibération du 14 juin 1947, le conseil municipal décide de mettre fin à la gestion en régie directe de l'établissement thermal. Il envisage désormais une concession d'un ensemble comprenant à la fois l'établissement thermal, le casino-restaurant et la salle des fêtes. Le 22 décembre 1947, il choisit comme concessionnaire la Société fermière de l'Établissement hydrominérale et du Casino de Besançon-la Mouillère (SARL dont les statuts sont déposés le 20 décembre 1947). Jean Steiner est président de son conseil d'administration. Le cahier des charges fixe la durée de la concession à 17 ans et 10 mois à compter du 1er mars 1948 et engage le concessionnaire à remettre en état l'établissement thermal dans un délais de cinq années. Les travaux de remise en état de la salle des fêtes, dont le coût est évalué à 3.763.500 francs dans un devis de l'architecte Boucton, sont financés par la Ville (délibération du 28 novembre 1949).
Centre dramatique national (à partir de 1976)
Un traité du 12 juillet 1966 attribue l'exploitation du casino-restaurant et de la salle des fêtes à la Société touristique et thermale de la Mouillère, au capital de 800.000 francs. Le cahier des charges prévoit que la salle des fêtes soit en priorité affectée à la réception de congrès. Dans les faits, elle sert exclusivement de salle de cinéma dans les années qui suivent. Dans sa délibération du 6 février 1976, le conseil municipal décide donc de dissocier définitivement la gestion du casino-restaurant et celle de la salle des fêtes, qui passe en régie directe avant d'être affectée durablement au Centre dramatique national (CDN) Besançon Franche-Comté (SARL créée sous l'impulsion d'André Mairal en 1972). Une note du 18 novembre 1976 rend compte des travaux auxquels il faut alors procéder : "la dépose des fauteuils et la démolition de la scène et du plancher", "la confection d’une dalle de béton", "l’aménagement de loges et sanitaires pour les artistes", "la réfection de la salle (tenture, peinture)", "la pose d’un rideau devant isoler le balcon", "la fourniture et la pose de gradins mobiles", etc.Des travaux ont lieu en 1983 selon un accord préalable entre la Ville et le CDN. La Ville en réalise les 2/3 (aménagement de l'arrière-scène et de l'atelier de couture, rehaussement des gradins, isolation thermique de la salle, agrandissement de la cabine sono). Les travaux s'élèvent à 430.000 francs, dont 144.000 francs pour les gradins. Ils sont conduits par les entreprises Cupillard et Hugenschmitt. Le procès-verbal de réception des travaux date du 3 septembre 1983. Le CDN se charge quant à lui de restaurer le cintre et de remplacer les fauteuils. Dans les années qui suivent, la toiture est entièrement refaite par l'entreprise Zani ; le procès-verbal de réception des travaux date du 11 mai 1990. L'édifice tel qu'il se présente aujourd'hui est le résultat d'une dernière campagne de travaux conduite par l'architecte Jean-Jacques Courvert (agence Domus) à partir de 1993. De cette époque date l'extension au nord de la salle, abritant un foyer-bar et des espaces techniques (au rez-de-chaussée) et des bureaux (à l'étage). D'autres travaux plus récents ont lieu en 2022, notamment pour l'accès des personnes à mobilité réduite (ascenseur).
Historique
La salle des fêtes constitue l'aile orientale du casino-restaurant construit à l'initiative de la Compagnie des Bains salins de la Mouillière d'après les plans de l'architecte Maurice Forien. Elle est inaugurée en juillet 1892. Il ne reste aujourd'hui rien de l'aménagement et des décors intérieurs de la salle des fêtes, mis à part les loges avec leurs galeries et leur escalier (à l'arrière de la salle) ainsi qu'un vestige d'une peinture. La "salle des fêtes" sert de salle de théâtre et de salle de concert. Comme l'ensemble du casino-restaurant, elle est acquise par la Ville le 27 avril 1933. Un bail est signé avec l'industriel Ernest Fallet, qui fait réaliser des travaux avant 1936 ("En exécution de l'une des clauses du bail, M. Fallet a pourvu la salle, à ses frais, de fauteuils modernes, installé des tapis pour garnir les allées et les escaliers et fait poser des rideaux de scène, toutes installations qui, à l'expiration des neuf années de bail, doivent devenir de plein droit la propriété de la Ville"). Pas moins de 900 fauteuils ("genre Pulmann") sont achetés, pour un montant de 135.000 francs. Fallet achète également une installation de cinéma parlant (marque : Western Electric) pour un montant de 200.000 francs. Après la guerre, la salle est remise en état par la Ville. En 1976, celle-ci l'affecte au Centre dramatique national (CDN) Besançon Franche-Comté. Des travaux ont lieu en 1983 selon un accord préalable entre la Ville et le CDN. La Ville réalise les 2/3 des travaux (aménagement de l'arrière-scène et de l'atelier de couture, rehaussement des gradins, isolation thermique de la salle, agrandissement de la cabine sono), s'élèvent à 430.000 francs, dont 144.000 francs pour les gradins. Ils sont conduits par les entreprises Cupillard et Hugenschmitt. Le procès-verbal de réception des travaux date du 3 septembre 1983. Le CDN se charge quant à lui de restaurer le cintre et de remplacer les fauteuils. Dans les années qui suivent, la toiture est entièrement refaite par l'entreprise Zani ; le procès-verbal de réception des travaux date du 11 mai 1990. L'édifice tel qu'il se présente aujourd'hui est le résultat d'une dernière campagne de travaux conduite par l'architecte Jean-Jacques Couvert (agence Domus) à partir de 1993. De cette époque date l'extension au nord de la salle, abritant un foyer-bar, des espaces techniques (au rez-de-chaussée) et des bureaux (à l'étage). Dans les années 2010, une petite salle est créée dans le sous-sol. D'autres travaux plus récents ont lieu en 2022, notamment pour l'accès des personnes à mobilité réduite (ascenseur).
- 4e quart 19e siècle
- 4e quart 20e siècle
Date de naissance : 1860 - date de décès : 1938
Architecte bisontin (1860-1938).
Jean-Jacques Couvert, architecte. Agence Domus.
Description
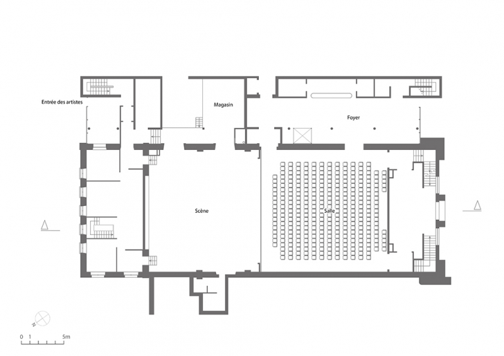
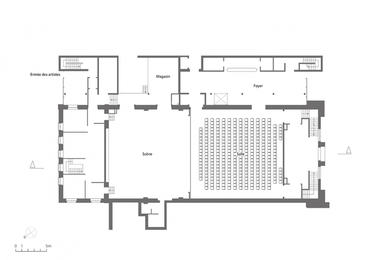
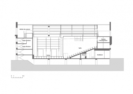
L'édifice a un plan rectangulaire. Il comprend un sous-sol, un grand vaisseau (salle) et trois étages (façade sur la rue de la Mouillère). Il est construit en pierre (pour la partie de 1892) et en béton (pour la partie de 1993). Les murs sont assez largement recouverts de parement de brique colorée. Les façades anciennes sont ornées de décors sculptés, en pierre et en céramique polychrome. Les deux pignons sont percés de grandes fenêtres thermales. La partie de 1892 est couverte d'un toit à longs pans en ardoise reposant sur une charpente métallique, l'extension de 1993 d'une terrasse. La largeur de la salle est d'environ 14 mètres ; celle de l'ouverture de scène d'environ 12 mètres. La scène a une profondeur de 12 mètres et une hauteur de 8 mètres. Elle est précédée d'un proscenium d'environ 3 mètres. La cage de salle principale comporte 278 fauteuils et 8 emplacements pour les PMR. L'intérieur a été entièrement repeint en noir au milieu des années 2010. L'ancienne régie fermée n'est plus utilisée. Une salle secondaire (40 places) est aménagée au sous-sol. Une dizaine de loges et un atelier de couture sont disposés à l'arrière de la scène.
- pierre
- béton
- brique émaillée
- ardoise
- plan rectangulaire régulier
- 1 vaisseau
- rez-de-chaussée
- 3 étages carrés
- élévation à travées
- toit à longs pans
- pignon découvert
- escalier dans-oeuvre, escalier tournant à retours sans jour, en maçonnerie
- escalier dans-oeuvre, escalier tournant à retours avec jour, en charpente métallique
- ascenseur
- sculpture
- céramique
- remanié
Source(s) documentaire(s)
-
Archives départementales du Doubs. 162 J 116. Fonds des entrepreneurs Pateu et Robert. Casino et salle des fêtes de Besançon (1891-1893).
Archives départementales du Doubs. 162 J 116. Fonds des entrepreneurs Pateu et Robert. Casino et salle des fêtes de Besançon (1891-1893).Lieu de conservation : Archives départementales du Doubs, Besançon - Cote du document : 162 J 116 -
Archives départementales du Doubs. 6 U 495. Tribunal de commerce. Compagnie des Bains salins de la Mouillère (1891), Société anonyme du Grand Hôtel (1892).
Archives départementales du Doubs. 6 U 495. Tribunal de commerce. Compagnie des Bains salins de la Mouillère (1891), Société anonyme du Grand Hôtel (1892), Société fermière de l'Établissement thermal et du Casino (1906), Société des Stations thermales balnéaires climatiques (1827), Société thermale, hôtelière et climatique de Salins-les-Bains et de Franche-Comté (1930), Société Ferrier-Delpis (1937).Lieu de conservation : Archives départementales du Doubs, Besançon - Cote du document : 6 U 495 -
Archives municipales de Besançon : 1 D 198-248 bis Registres des délibérations du conseil municipal. Registres imprimés. 1873-1960.
Archives municipales de Besançon : 1 D 198-248 bis Registres des délibérations du conseil municipal. Registres imprimés. 1873-1960. Accès internet : https://memoirevive.besancon.fr/ark:/48565/q4l028dbvs3xLieu de conservation : Archives municipales, Besançon - Cote du document : 1 D 198-248 bis -
Archives municipales de Besançon. 4 M 102-104. Établissement thermal et casino de la Mouillère (1892-1937).
Archives municipales de Besançon. 4 M 102-104. Établissement thermal et casino de la Mouillère (1892-1937).Lieu de conservation : Archives municipales, Besançon - Cote du document : 4 M 102-104 -
Archives municipales de Besançon. 3 Q 77. Établissement thermal des Bains salins de la Mouillère (1890-1942).
Archives municipales de Besançon. 3 Q 77. Établissement thermal des Bains salins de la Mouillère (1890-1942).Lieu de conservation : Archives municipales, Besançon - Cote du document : 3 Q 77 -
Archives municipales de Besançon. 2 R 63. Exploitation du cinéma du casino par M. Fallet (1945-1955).
Archives municipales de Besançon. 2 R 63. Exploitation du cinéma du casino par M. Fallet (1945-1955).Lieu de conservation : Archives municipales, Besançon - Cote du document : 2 R 63 -
Archives municipales de Besançon. 214 W 1-5, 99, 104. Casino.
Archives municipales de Besançon. 214 W 1-5, 99, 104. Casino.Lieu de conservation : Archives municipales, Besançon - Cote du document : 214 W 1-5, 99, 104 -
Archives municipales de Besançon. 655 W 78-80. Casino.
Archives municipales de Besançon. 655 W 78-80. Casino.Lieu de conservation : Archives municipales, Besançon - Cote du document : 655 W 78-80 -
Archives municipales de Besançon. 785 W 120. Casino.
Archives municipales de Besançon. 785 W 120. Casino.Lieu de conservation : Archives municipales, Besançon - Cote du document : 785 W 120 -
Archives municipales de Besançon. 793 W 9. Casino.
Archives municipales de Besançon. 793 W 9. Casino.Lieu de conservation : Archives municipales, Besançon - Cote du document : 793 W 9
-
Casino des Bains Salins de la Mouillère. Salle des fêtes, détail. 1er juin 1891.
Casino des Bains Salins de la Mouillère. Salle des fêtes, détail / Maurice Forien. 1er juin 1891. Diazographie. 41 x 38 cm. Échelle 1/50.Lieu de conservation : Archives départementales du Doubs, Besançon - Cote du document : 161 J 116 -
Compagnie des Bains salins de la Mouillère. Casino. Plan du rez-de-chaussée. [Vers 1891].
Compagnie des Bains salins de la Mouillère. Casino. Plan du rez-de-chaussée / [S.n.]. [Vers 1891]. Papier, dessin. 75 x 55 cm. Échelle 1/100.Lieu de conservation : Archives municipales, Besançon - Cote du document : 2 Fi 181 -
[Vue intérieure de la salle des fêtes avec disposition des places]. [Vers 1900].
[Vue intérieure de la salle des fêtes avec disposition des places] / [S.n.]. [Vers 1900]. Papier. 37,3 x 36,5 cm.Lieu de conservation : Archives municipales, Besançon - Cote du document : 2 Fi 1161 -
Besançon. Salle des fêtes du casino de la Mouillère. [Vue de la façade]. [Carte postale]. [Vers 1910].
Besançon. Salle des fêtes du casino de la Mouillère. [Vue de la façade]. [Carte postale]. Besançon : Gaillard-Prêtre, [vers 1910].Lieu de conservation : Archives municipales, Besançon - Cote du document : CP-B-P7-013 -
Besançon-les-Bains. Casino des Bains de la Mouillère. Entrée de la salle des fêtes. [Carte postale]. [Vers 1910].
Besançon-les-Bains. Casino des Bains de la Mouillère. Entrée de la salle des fêtes. [Carte postale]. [Besançon] : C.L.B., [vers 1910].Lieu de conservation : Archives municipales, Besançon - Cote du document : CP-B-P7-0165 -
Besançon. Casino de la Mouillère. [Vue intérieure de la salle des fêtes]. [Carte postale]. [Vers 1910].
Besançon. Casino de la Mouillère. [Vue intérieure de la salle des fêtes]. [Carte postale]. Besançon : Gaillard-Prêtre, [vers 1910].Lieu de conservation : Archives municipales, Besançon - Cote du document : CP-B-P7-015 -
Casino municipal. Étage 1. [Années 1970].
Casino municipal. Étage 1 / [s.n.]. [Années 1970]. Tirage. 77 x 44 cm. Échelle 1/100.Lieu de conservation : Centre dramatique national, Besançon -
Transformation de la salle de cinéma en salle polyvalente. Rez-de-chaussée, après travaux. 1976.
Ville de Besançon. Services techniques. Département du Doubs. Casino. Transformation de la salle de cinéma en salle polyvalente. Rez-de-chaussée, après travaux / [s.n.]. 1976. Tirage. Échelle 1/50. 128 x 54 cm.Lieu de conservation : Centre dramatique national, Besançon -
Casino municipal. Projet. Rez-de-chaussée. Mai 1980.
Ville de Besançon. Services techniques. Département du Doubs. Casino municipal. Projet. Rez-de-chaussée / Racine. Mai 1980, modifié en juin 1983. Tirage. Échelle 1/50. 128 x 54 cm.Lieu de conservation : Centre dramatique national, Besançon -
Casino municipal. Projet. Coupe AB. Février 1984.
Ville de Besançon. Services techniques. Département du Doubs. Casino municipal. Projet. Coupe AB / V.C. Février 1984. Tirage. Échelle 1/50. 128 x 54 cm.Lieu de conservation : Centre dramatique national, Besançon -
Nouveau Théâtre du Besançon. Restructuration de la grande salle et de l’accueil, création de locaux administratifs et techniques. Avant-projet détaillé, coupe longitudinale AA. 12 juin 1994.
Ville de Besançon. Département du Doubs. Nouveau Théâtre du Besançon. Restructuration de la grande salle et de l’accueil, création de locaux administratifs et techniques. Avant-projet détaillé, coupe longitudinale AA / Agence Domus, Jean-Jacques Couvert. 12 juin 1994. Tirage. Échelle 1/50. 126 x 60 cm.Lieu de conservation : Centre dramatique national, Besançon -
Nouveau Théâtre du Besançon. Restructuration de la grande salle et de l’accueil, création de locaux administratifs et techniques. Avant-projet détaillé, façade sud. 12 juin 1994.
Ville de Besançon. Département du Doubs. Nouveau Théâtre du Besançon. Restructuration de la grande salle et de l’accueil, création de locaux administratifs et techniques. Avant-projet détaillé, façade sud / Agence Domus, Jean-Jacques Couvert. 12 juin 1994. Tirage. Échelle 1/50. 117 x 55 cm.Lieu de conservation : Centre dramatique national, Besançon -
Nouveau Théâtre du Besançon. Restructuration de la grande salle et de l’accueil, création de locaux administratifs et techniques. Avant-projet détaillé, façade est. 12 juin 1994.
Ville de Besançon. Département du Doubs. Nouveau Théâtre du Besançon. Restructuration de la grande salle et de l’accueil, création de locaux administratifs et techniques. Avant-projet détaillé, façade est / Agence Domus, Jean-Jacques Couvert. 12 juin 1994. Tirage. Échelle 1/50. 149 x 52 cm.Lieu de conservation : Centre dramatique national, Besançon -
Nouveau Théâtre du Besançon. Restructuration de la grande salle et de l’accueil, création de locaux administratifs et techniques. Avant-projet détaillé, façade nord. 12 juin 1994.
Ville de Besançon. Département du Doubs. Nouveau Théâtre du Besançon. Restructuration de la grande salle et de l’accueil, création de locaux administratifs et techniques. Avant-projet détaillé, façade nord / Agence Domus, Jean-Jacques Couvert. 12 juin 1994. Tirage. Échelle 1/50. 113 x 47cm.Lieu de conservation : Centre dramatique national, Besançon -
Nouveau Théâtre du Besançon. Restructuration de la grande salle et de l’accueil, création de locaux administratifs et techniques. DCE, Plan salle et administration. Septembre 1994.
Ville de Besançon. Département du Doubs. Nouveau Théâtre du Besançon. Restructuration de la grande salle et de l’accueil, création de locaux administratifs et techniques. DCE, Plan salle et administration / Agence Domus, Jean-Jacques Couvert. Septembre 1994. Tirage. Échelle 1/50. 132 x 72 cm.Lieu de conservation : Centre dramatique national, Besançon
À voir
Informations complémentaires
- thermalisme en Bourgogne-Franche-Comté (le)
- © Région Bourgogne-Franche-Comté, Inventaire du patrimoine
