Plan-masse et de situation. Extrait du plan cadastral, 2021, section AB, 1/1 000 agrandi à 1/500.
21, Châtillon-sur-Seine place du 8 Mai
N° de l’illustration : 20222100088NUDA
Date : 2022
Auteur : Aline Thomas
Reproduction soumise à autorisation du titulaire des droits d'exploitation
- © Région Bourgogne-Franche-Comté, Inventaire du patrimoine
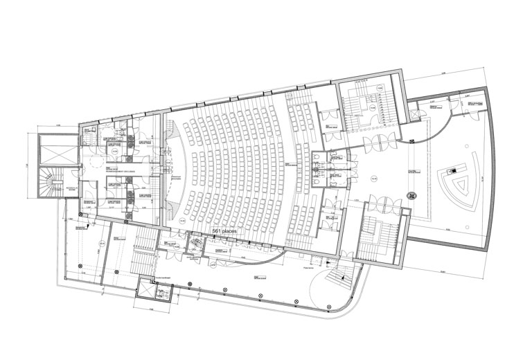
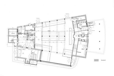
Plan schématique du niveau de la salle et de la scène. D'après des plans de S. Leydert (agence F. Brandon Architecte & Associés) en 2006.
21, Châtillon-sur-Seine place du 8 Mai
-
Théâtre Gaston Bernard. Place 8 mai 1945. 21400 Châtillon-sur-Seine. DOE. Dessin (tirage numérisé), par S. Leydert. 2 juin 2006. 1/50.- Plan RDC. Par Cathy Ch. 30 janvier 2006.- Plan - R+1. - Plan niveau R+2.- Coupe C1 C3.- Plan Entre-sol. (ventil.). Coupe C2.- Coupe C4 C5.- Coupe C6 C7 C8.- Façades. 1/100Documents établis en 2006 dans la phase de dossier des ouvrages exécutés (DOE). Connus sous une autre version en 2003 pour l'avant-projet sommaire (APS).
Lieu de conservation : Ville de Châtillon-sur-Seine, Services techniques
N° de l’illustration : 20212100420NUDA
Date : 2021
Auteur : Aline Thomas
Reproduction soumise à autorisation du titulaire des droits d'exploitation
- © Région Bourgogne-Franche-Comté, Inventaire du patrimoine
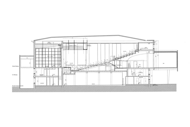
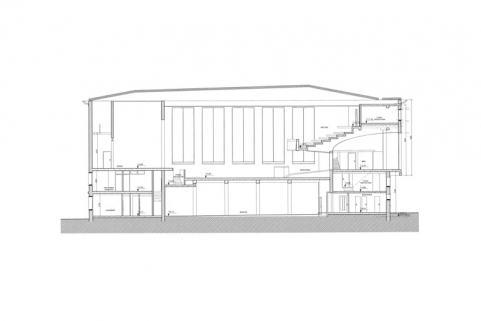
Coupe longitudinale schématique du bâtiment. D'après une coupe de S. Leydert (agence F. Brandon Architecte & Associés) en 2006.
21, Châtillon-sur-Seine place du 8 Mai
-
Théâtre Gaston Bernard. Place 8 mai 1945. 21400 Châtillon-sur-Seine. DOE. Dessin (tirage numérisé), par S. Leydert. 2 juin 2006. 1/50.- Plan RDC. Par Cathy Ch. 30 janvier 2006.- Plan - R+1. - Plan niveau R+2.- Coupe C1 C3.- Plan Entre-sol. (ventil.). Coupe C2.- Coupe C4 C5.- Coupe C6 C7 C8.- Façades. 1/100Documents établis en 2006 dans la phase de dossier des ouvrages exécutés (DOE). Connus sous une autre version en 2003 pour l'avant-projet sommaire (APS).
Lieu de conservation : Ville de Châtillon-sur-Seine, Services techniques
N° de l’illustration : 20212100421NUDA
Date : 2021
Auteur : Aline Thomas
Reproduction soumise à autorisation du titulaire des droits d'exploitation
- © Région Bourgogne-Franche-Comté, Inventaire du patrimoine
Marché couvert. Salle des fêtes. Plan du rez-de-chaussée. 15 novembre 1956 (modifié en 1957).
21, Châtillon-sur-Seine place du 8 Mai
-
Marché couvert. Salle des fêtes. Dessin (tirage), par les architectes A. Houillier et Ch. Loret. Paris le 15 novembre 1956 (modifié en 1957). 52,5 x 90 cm, 1/50.Ensemble de 21 plans dont :- Plan de masse et de situation. Canalisations. Sondages. 1 mai 57, 27 juil 57. 27 x 41,5 cm.- Plan du rez-de-chaussée. 1 mai 57, 20 mai 57, 27 juil 57, 30 déc 57. 65,5 x 87,5 cm.- Plan supérieur. 1 mai 57, 27 juil 57, 30 déc 57. 63,5 x 87,5 cm.- Plan intermédiaire. 1 mai 57, 27 juil 57, 30 déc 57. 44,5 x 55 cm.- Coupe GH. 1 mai 57, 20 mai 57, 27 juil 57, 30 déc 57. 45 x 108,5 cm.- Façade sur l’entrée. 1 mai 57, 20 mai 57, 27 juil 57, 30 déc 57. 44,5 x 91 cm.- Façade postérieure. 1 mai 57, 27 juil 57, 30 déc 57. 44,5 x 69,5 cm.- Façade côté foyer. 1 mai 57, 20 mai 57, 27 juil 57, 30 déc 57. 44,5 x 90 cm.- Façade latérale sud. 1 mai 57, 20 mai 57, 27 juil 57, 30 déc 57. 44,5 x 86,5 cm.- Plan sur toiture. 8 juillet 1957. 63,5 x 86,5 cm.- Ventilation. Coupe AB. 1 mai 57. 44,5 x 65 cm.- Ventilation. Coupe CD. 1 mai 57, 20 mai 57, 1 fév 58. 44 x 61 cm.- Ventilation. Coupe EF. 1 mai 57, 1 fév 58. 44 x 61 cm.
Lieu de conservation : Archives municipales, Châtillon-sur-Seine - Cote du document : Non coté
N° de l’illustration : 20212100341NUC4A
Date : 2021
Auteur : Pierre-Marie Barbe-Richaud
Reproduction soumise à autorisation du titulaire des droits d'exploitation
- © Région Bourgogne-Franche-Comté, Inventaire du patrimoine
Marché couvert. Salle des fêtes. Plan supérieur. 15 novembre 1956 (modifié en 1957).
21, Châtillon-sur-Seine place du 8 Mai
-
Marché couvert. Salle des fêtes. Dessin (tirage), par les architectes A. Houillier et Ch. Loret. Paris le 15 novembre 1956 (modifié en 1957). 52,5 x 90 cm, 1/50.Ensemble de 21 plans dont :- Plan de masse et de situation. Canalisations. Sondages. 1 mai 57, 27 juil 57. 27 x 41,5 cm.- Plan du rez-de-chaussée. 1 mai 57, 20 mai 57, 27 juil 57, 30 déc 57. 65,5 x 87,5 cm.- Plan supérieur. 1 mai 57, 27 juil 57, 30 déc 57. 63,5 x 87,5 cm.- Plan intermédiaire. 1 mai 57, 27 juil 57, 30 déc 57. 44,5 x 55 cm.- Coupe GH. 1 mai 57, 20 mai 57, 27 juil 57, 30 déc 57. 45 x 108,5 cm.- Façade sur l’entrée. 1 mai 57, 20 mai 57, 27 juil 57, 30 déc 57. 44,5 x 91 cm.- Façade postérieure. 1 mai 57, 27 juil 57, 30 déc 57. 44,5 x 69,5 cm.- Façade côté foyer. 1 mai 57, 20 mai 57, 27 juil 57, 30 déc 57. 44,5 x 90 cm.- Façade latérale sud. 1 mai 57, 20 mai 57, 27 juil 57, 30 déc 57. 44,5 x 86,5 cm.- Plan sur toiture. 8 juillet 1957. 63,5 x 86,5 cm.- Ventilation. Coupe AB. 1 mai 57. 44,5 x 65 cm.- Ventilation. Coupe CD. 1 mai 57, 20 mai 57, 1 fév 58. 44 x 61 cm.- Ventilation. Coupe EF. 1 mai 57, 1 fév 58. 44 x 61 cm.
Lieu de conservation : Archives municipales, Châtillon-sur-Seine - Cote du document : Non coté
N° de l’illustration : 20212100342NUC4A
Date : 2021
Auteur : Pierre-Marie Barbe-Richaud
Reproduction soumise à autorisation du titulaire des droits d'exploitation
- © Région Bourgogne-Franche-Comté, Inventaire du patrimoine
Marché couvert. Salle des fêtes. Ventilation. Coupe EF. 15 novembre 1956 (modifié en 1957 et 1958).
21, Châtillon-sur-Seine place du 8 Mai
-
Marché couvert. Salle des fêtes. Dessin (tirage), par les architectes A. Houillier et Ch. Loret. Paris le 15 novembre 1956 (modifié en 1957). 52,5 x 90 cm, 1/50.Ensemble de 21 plans dont :- Plan de masse et de situation. Canalisations. Sondages. 1 mai 57, 27 juil 57. 27 x 41,5 cm.- Plan du rez-de-chaussée. 1 mai 57, 20 mai 57, 27 juil 57, 30 déc 57. 65,5 x 87,5 cm.- Plan supérieur. 1 mai 57, 27 juil 57, 30 déc 57. 63,5 x 87,5 cm.- Plan intermédiaire. 1 mai 57, 27 juil 57, 30 déc 57. 44,5 x 55 cm.- Coupe GH. 1 mai 57, 20 mai 57, 27 juil 57, 30 déc 57. 45 x 108,5 cm.- Façade sur l’entrée. 1 mai 57, 20 mai 57, 27 juil 57, 30 déc 57. 44,5 x 91 cm.- Façade postérieure. 1 mai 57, 27 juil 57, 30 déc 57. 44,5 x 69,5 cm.- Façade côté foyer. 1 mai 57, 20 mai 57, 27 juil 57, 30 déc 57. 44,5 x 90 cm.- Façade latérale sud. 1 mai 57, 20 mai 57, 27 juil 57, 30 déc 57. 44,5 x 86,5 cm.- Plan sur toiture. 8 juillet 1957. 63,5 x 86,5 cm.- Ventilation. Coupe AB. 1 mai 57. 44,5 x 65 cm.- Ventilation. Coupe CD. 1 mai 57, 20 mai 57, 1 fév 58. 44 x 61 cm.- Ventilation. Coupe EF. 1 mai 57, 1 fév 58. 44 x 61 cm.
Lieu de conservation : Archives municipales, Châtillon-sur-Seine - Cote du document : Non coté
N° de l’illustration : 20212100343NUC2A
Date : 2021
Auteur : Pierre-Marie Barbe-Richaud
Reproduction soumise à autorisation du titulaire des droits d'exploitation
- © Région Bourgogne-Franche-Comté, Inventaire du patrimoine
Marché couvert. Salle des fêtes. Façade sur l'entrée. 15 novembre 1956 (modifié en 1957).
21, Châtillon-sur-Seine place du 8 Mai
-
Marché couvert. Salle des fêtes. Dessin (tirage), par les architectes A. Houillier et Ch. Loret. Paris le 15 novembre 1956 (modifié en 1957). 52,5 x 90 cm, 1/50.Ensemble de 21 plans dont :- Plan de masse et de situation. Canalisations. Sondages. 1 mai 57, 27 juil 57. 27 x 41,5 cm.- Plan du rez-de-chaussée. 1 mai 57, 20 mai 57, 27 juil 57, 30 déc 57. 65,5 x 87,5 cm.- Plan supérieur. 1 mai 57, 27 juil 57, 30 déc 57. 63,5 x 87,5 cm.- Plan intermédiaire. 1 mai 57, 27 juil 57, 30 déc 57. 44,5 x 55 cm.- Coupe GH. 1 mai 57, 20 mai 57, 27 juil 57, 30 déc 57. 45 x 108,5 cm.- Façade sur l’entrée. 1 mai 57, 20 mai 57, 27 juil 57, 30 déc 57. 44,5 x 91 cm.- Façade postérieure. 1 mai 57, 27 juil 57, 30 déc 57. 44,5 x 69,5 cm.- Façade côté foyer. 1 mai 57, 20 mai 57, 27 juil 57, 30 déc 57. 44,5 x 90 cm.- Façade latérale sud. 1 mai 57, 20 mai 57, 27 juil 57, 30 déc 57. 44,5 x 86,5 cm.- Plan sur toiture. 8 juillet 1957. 63,5 x 86,5 cm.- Ventilation. Coupe AB. 1 mai 57. 44,5 x 65 cm.- Ventilation. Coupe CD. 1 mai 57, 20 mai 57, 1 fév 58. 44 x 61 cm.- Ventilation. Coupe EF. 1 mai 57, 1 fév 58. 44 x 61 cm.
Lieu de conservation : Archives municipales, Châtillon-sur-Seine - Cote du document : Non coté
N° de l’illustration : 20212100345NUC2A
Date : 2021
Auteur : Pierre-Marie Barbe-Richaud
Reproduction soumise à autorisation du titulaire des droits d'exploitation
- © Région Bourgogne-Franche-Comté, Inventaire du patrimoine
Marché couvert. Salle des fêtes. Façade côté foyer. 15 novembre 1956 (modifié en 1957).
21, Châtillon-sur-Seine place du 8 Mai
-
Marché couvert. Salle des fêtes. Dessin (tirage), par les architectes A. Houillier et Ch. Loret. Paris le 15 novembre 1956 (modifié en 1957). 52,5 x 90 cm, 1/50.Ensemble de 21 plans dont :- Plan de masse et de situation. Canalisations. Sondages. 1 mai 57, 27 juil 57. 27 x 41,5 cm.- Plan du rez-de-chaussée. 1 mai 57, 20 mai 57, 27 juil 57, 30 déc 57. 65,5 x 87,5 cm.- Plan supérieur. 1 mai 57, 27 juil 57, 30 déc 57. 63,5 x 87,5 cm.- Plan intermédiaire. 1 mai 57, 27 juil 57, 30 déc 57. 44,5 x 55 cm.- Coupe GH. 1 mai 57, 20 mai 57, 27 juil 57, 30 déc 57. 45 x 108,5 cm.- Façade sur l’entrée. 1 mai 57, 20 mai 57, 27 juil 57, 30 déc 57. 44,5 x 91 cm.- Façade postérieure. 1 mai 57, 27 juil 57, 30 déc 57. 44,5 x 69,5 cm.- Façade côté foyer. 1 mai 57, 20 mai 57, 27 juil 57, 30 déc 57. 44,5 x 90 cm.- Façade latérale sud. 1 mai 57, 20 mai 57, 27 juil 57, 30 déc 57. 44,5 x 86,5 cm.- Plan sur toiture. 8 juillet 1957. 63,5 x 86,5 cm.- Ventilation. Coupe AB. 1 mai 57. 44,5 x 65 cm.- Ventilation. Coupe CD. 1 mai 57, 20 mai 57, 1 fév 58. 44 x 61 cm.- Ventilation. Coupe EF. 1 mai 57, 1 fév 58. 44 x 61 cm.
Lieu de conservation : Archives municipales, Châtillon-sur-Seine - Cote du document : Non coté
N° de l’illustration : 20212100344NUC2A
Date : 2021
Auteur : Pierre-Marie Barbe-Richaud
Reproduction soumise à autorisation du titulaire des droits d'exploitation
- © Région Bourgogne-Franche-Comté, Inventaire du patrimoine
Théâtre Gaston Bernard [...] APS. Plan RDC - Etat projet. 22 octobre 2003.
21, Châtillon-sur-Seine place du 8 Mai
-
Théâtre Gaston Bernard. Place 8 mai 1945. 21400 Châtillon-sur-Seine. APS. Dessin (tirage), par S. Leydert (agence F. Brandon Architectes & Associé). 22 octobre 2003. 29,5 x 63,5 cm, 1/100.- Plan RDC - Etat existant.- Plan R+1 - Etat existant.- Plan R+2 - Etat existant.- Plan RDC - Etat projet.- Plan R+1 - Etat projet.- Plan R+2 - Etat projet.- Coupe - Etat existant.- Coupe - Etat projet.- Façade - Etat existant. 84 x 61,5 cm.- Façade - Etat projet. 84 x 61 cm.Documents établis en 2003 pour l'avant-projet sommaire (APS). Connus sous une autre version en 2006 dans la phase de dossier des ouvrages exécutés (DOE).
Lieu de conservation : Archives municipales, Châtillon-sur-Seine - Cote du document : Non coté
N° de l’illustration : 20212100346NUC4A
Date : 2021
Auteur : Pierre-Marie Barbe-Richaud
Reproduction soumise à autorisation du titulaire des droits d'exploitation
- © Région Bourgogne-Franche-Comté, Inventaire du patrimoine
Théâtre Gaston Bernard [...] APS. Plan R+1 - Etat projet. 22 octobre 2003.
21, Châtillon-sur-Seine place du 8 Mai
-
Théâtre Gaston Bernard. Place 8 mai 1945. 21400 Châtillon-sur-Seine. APS. Dessin (tirage), par S. Leydert (agence F. Brandon Architectes & Associé). 22 octobre 2003. 29,5 x 63,5 cm, 1/100.- Plan RDC - Etat existant.- Plan R+1 - Etat existant.- Plan R+2 - Etat existant.- Plan RDC - Etat projet.- Plan R+1 - Etat projet.- Plan R+2 - Etat projet.- Coupe - Etat existant.- Coupe - Etat projet.- Façade - Etat existant. 84 x 61,5 cm.- Façade - Etat projet. 84 x 61 cm.Documents établis en 2003 pour l'avant-projet sommaire (APS). Connus sous une autre version en 2006 dans la phase de dossier des ouvrages exécutés (DOE).
Lieu de conservation : Archives municipales, Châtillon-sur-Seine - Cote du document : Non coté
N° de l’illustration : 20212100347NUC4A
Date : 2021
Auteur : Pierre-Marie Barbe-Richaud
Reproduction soumise à autorisation du titulaire des droits d'exploitation
- © Région Bourgogne-Franche-Comté, Inventaire du patrimoine
Théâtre Gaston Bernard [...] APS. Plan R+2 - Etat projet. 22 octobre 2003.
21, Châtillon-sur-Seine place du 8 Mai
-
Théâtre Gaston Bernard. Place 8 mai 1945. 21400 Châtillon-sur-Seine. APS. Dessin (tirage), par S. Leydert (agence F. Brandon Architectes & Associé). 22 octobre 2003. 29,5 x 63,5 cm, 1/100.- Plan RDC - Etat existant.- Plan R+1 - Etat existant.- Plan R+2 - Etat existant.- Plan RDC - Etat projet.- Plan R+1 - Etat projet.- Plan R+2 - Etat projet.- Coupe - Etat existant.- Coupe - Etat projet.- Façade - Etat existant. 84 x 61,5 cm.- Façade - Etat projet. 84 x 61 cm.Documents établis en 2003 pour l'avant-projet sommaire (APS). Connus sous une autre version en 2006 dans la phase de dossier des ouvrages exécutés (DOE).
Lieu de conservation : Archives municipales, Châtillon-sur-Seine - Cote du document : Non coté
N° de l’illustration : 20212100348NUC4A
Date : 2021
Auteur : Pierre-Marie Barbe-Richaud
Reproduction soumise à autorisation du titulaire des droits d'exploitation
- © Région Bourgogne-Franche-Comté, Inventaire du patrimoine
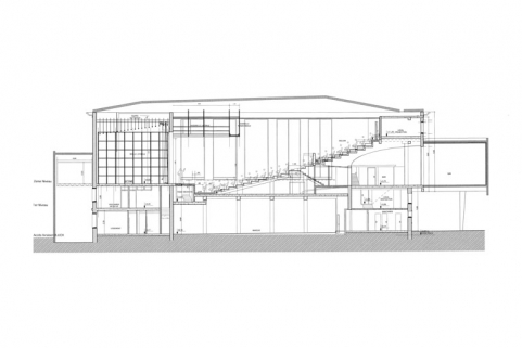
Théâtre Gaston Bernard [...] APS. Coupe - Etat existant. 22 octobre 2003.
21, Châtillon-sur-Seine place du 8 Mai
-
Théâtre Gaston Bernard. Place 8 mai 1945. 21400 Châtillon-sur-Seine. APS. Dessin (tirage), par S. Leydert (agence F. Brandon Architectes & Associé). 22 octobre 2003. 29,5 x 63,5 cm, 1/100.- Plan RDC - Etat existant.- Plan R+1 - Etat existant.- Plan R+2 - Etat existant.- Plan RDC - Etat projet.- Plan R+1 - Etat projet.- Plan R+2 - Etat projet.- Coupe - Etat existant.- Coupe - Etat projet.- Façade - Etat existant. 84 x 61,5 cm.- Façade - Etat projet. 84 x 61 cm.Documents établis en 2003 pour l'avant-projet sommaire (APS). Connus sous une autre version en 2006 dans la phase de dossier des ouvrages exécutés (DOE).
Lieu de conservation : Archives municipales, Châtillon-sur-Seine - Cote du document : Non coté
N° de l’illustration : 20212100349NUC4A
Date : 2021
Auteur : Pierre-Marie Barbe-Richaud
Reproduction soumise à autorisation du titulaire des droits d'exploitation
- © Région Bourgogne-Franche-Comté, Inventaire du patrimoine
Théâtre Gaston Bernard [...] APS. Coupe - Etat projet. 22 octobre 2003.
21, Châtillon-sur-Seine place du 8 Mai
-
Théâtre Gaston Bernard. Place 8 mai 1945. 21400 Châtillon-sur-Seine. APS. Dessin (tirage), par S. Leydert (agence F. Brandon Architectes & Associé). 22 octobre 2003. 29,5 x 63,5 cm, 1/100.- Plan RDC - Etat existant.- Plan R+1 - Etat existant.- Plan R+2 - Etat existant.- Plan RDC - Etat projet.- Plan R+1 - Etat projet.- Plan R+2 - Etat projet.- Coupe - Etat existant.- Coupe - Etat projet.- Façade - Etat existant. 84 x 61,5 cm.- Façade - Etat projet. 84 x 61 cm.Documents établis en 2003 pour l'avant-projet sommaire (APS). Connus sous une autre version en 2006 dans la phase de dossier des ouvrages exécutés (DOE).
Lieu de conservation : Archives municipales, Châtillon-sur-Seine - Cote du document : Non coté
N° de l’illustration : 20212100350NUC4A
Date : 2021
Auteur : Pierre-Marie Barbe-Richaud
Reproduction soumise à autorisation du titulaire des droits d'exploitation
- © Région Bourgogne-Franche-Comté, Inventaire du patrimoine
Façade antérieure, de trois quarts droite.
21, Châtillon-sur-Seine place du 8 Mai
N° de l’illustration : 20212100397NUC4A
Date : 2021
Auteur : Pierre-Marie Barbe-Richaud
Reproduction soumise à autorisation du titulaire des droits d'exploitation
- © Région Bourgogne-Franche-Comté, Inventaire du patrimoine
Façade antérieure : relief gravé en partie supérieure.
21, Châtillon-sur-Seine place du 8 Mai
N° de l’illustration : 20212100361NUC4A
Date : 2021
Auteur : Pierre-Marie Barbe-Richaud
Reproduction soumise à autorisation du titulaire des droits d'exploitation
- © Région Bourgogne-Franche-Comté, Inventaire du patrimoine
Façades postérieure et latérale gauche.
21, Châtillon-sur-Seine place du 8 Mai
N° de l’illustration : 20212100399NUC4A
Date : 2021
Auteur : Pierre-Marie Barbe-Richaud
Reproduction soumise à autorisation du titulaire des droits d'exploitation
- © Région Bourgogne-Franche-Comté, Inventaire du patrimoine
Façade latérale gauche : baies du marché.
21, Châtillon-sur-Seine place du 8 Mai
N° de l’illustration : 20212100398NUC4A
Date : 2021
Auteur : Pierre-Marie Barbe-Richaud
Reproduction soumise à autorisation du titulaire des droits d'exploitation
- © Région Bourgogne-Franche-Comté, Inventaire du patrimoine
Façades postérieure et latérale droite.
21, Châtillon-sur-Seine place du 8 Mai
N° de l’illustration : 20212100400NUC4A
Date : 2021
Auteur : Pierre-Marie Barbe-Richaud
Reproduction soumise à autorisation du titulaire des droits d'exploitation
- © Région Bourgogne-Franche-Comté, Inventaire du patrimoine
Marché.
21, Châtillon-sur-Seine place du 8 Mai
N° de l’illustration : 20212100360NUC4A
Date : 2021
Auteur : Pierre-Marie Barbe-Richaud
Reproduction soumise à autorisation du titulaire des droits d'exploitation
- © Région Bourgogne-Franche-Comté, Inventaire du patrimoine
Entrée du théâtre, avec la banque d'accueil et l'escalier principal.
21, Châtillon-sur-Seine place du 8 Mai
N° de l’illustration : 20212100386NUC4A
Date : 2021
Auteur : Pierre-Marie Barbe-Richaud
Reproduction soumise à autorisation du titulaire des droits d'exploitation
- © Région Bourgogne-Franche-Comté, Inventaire du patrimoine
Couloir desservant la salle et le foyer, vu depuis ce dernier (le palier de l'escalier principal se trouve au fond).
21, Châtillon-sur-Seine place du 8 Mai
N° de l’illustration : 20212100379NUC4A
Date : 2021
Auteur : Pierre-Marie Barbe-Richaud
Reproduction soumise à autorisation du titulaire des droits d'exploitation
- © Région Bourgogne-Franche-Comté, Inventaire du patrimoine
Foyer, desservi par le couloir au fond à droite.
21, Châtillon-sur-Seine place du 8 Mai
N° de l’illustration : 20212100378NUC4A
Date : 2021
Auteur : Pierre-Marie Barbe-Richaud
Reproduction soumise à autorisation du titulaire des droits d'exploitation
- © Région Bourgogne-Franche-Comté, Inventaire du patrimoine
Foyer.
21, Châtillon-sur-Seine place du 8 Mai
N° de l’illustration : 20212100377NUC4A
Date : 2021
Auteur : Pierre-Marie Barbe-Richaud
Reproduction soumise à autorisation du titulaire des droits d'exploitation
- © Région Bourgogne-Franche-Comté, Inventaire du patrimoine
Cage de scène, vue depuis le fond de la salle.
21, Châtillon-sur-Seine place du 8 Mai
N° de l’illustration : 20212100380NUC4A
Date : 2021
Auteur : Pierre-Marie Barbe-Richaud
Reproduction soumise à autorisation du titulaire des droits d'exploitation
- © Région Bourgogne-Franche-Comté, Inventaire du patrimoine
Salle, vue depuis la scène.
21, Châtillon-sur-Seine place du 8 Mai
N° de l’illustration : 20212100381NUC4A
Date : 2021
Auteur : Pierre-Marie Barbe-Richaud
Reproduction soumise à autorisation du titulaire des droits d'exploitation
- © Région Bourgogne-Franche-Comté, Inventaire du patrimoine
Salle, vue de trois quarts depuis le fond de la scène. Les projecteurs au 1er plan attendent d'être fixés sur des perches pour le prochain spectacle.
21, Châtillon-sur-Seine place du 8 Mai
N° de l’illustration : 20212100382NUC4A
Date : 2021
Auteur : Pierre-Marie Barbe-Richaud
Reproduction soumise à autorisation du titulaire des droits d'exploitation
- © Région Bourgogne-Franche-Comté, Inventaire du patrimoine
Salle : détail des sièges.
21, Châtillon-sur-Seine place du 8 Mai
N° de l’illustration : 20212100383NUC4A
Date : 2021
Auteur : Pierre-Marie Barbe-Richaud
Reproduction soumise à autorisation du titulaire des droits d'exploitation
- © Région Bourgogne-Franche-Comté, Inventaire du patrimoine
Projecteurs en attente de montage.
21, Châtillon-sur-Seine place du 8 Mai
N° de l’illustration : 20212100384NUC4A
Date : 2021
Auteur : Pierre-Marie Barbe-Richaud
Reproduction soumise à autorisation du titulaire des droits d'exploitation
- © Région Bourgogne-Franche-Comté, Inventaire du patrimoine
Pupitre de commande de la machinerie.
21, Châtillon-sur-Seine place du 8 Mai
N° de l’illustration : 20212100385NUC4A
Date : 2021
Auteur : Pierre-Marie Barbe-Richaud
Reproduction soumise à autorisation du titulaire des droits d'exploitation
- © Région Bourgogne-Franche-Comté, Inventaire du patrimoine