MOULIN À FARINE, PUIS USINE TEXTILE MÉQUILLET-NOBLOT ET CIE DITE USINE DE CHEVRET, ACTUELLEMENT IMMEUBLE À LOGEMENTS ET MAGASIN DE COMMERCE
70 - Couthenans
Chevret
- Dossier IA70000087 réalisé en 2004
- Auteur(s) : Raphaël Favereaux
Historique
Le moulin à farine de Chevret est vendu en 1809 à Jean-Georges Noblot, qui souhaite y entreprendre la fabrication de l'acier. Il est peu probable que ce petit établissement métallurgique ait vu le jour. En 1818, le moulin est acquis par la société Méquillet-Noblot et Cie, implantée dans la ville voisine d'Héricourt, et converti en filature de coton. Un atelier de fabrication est construit à cet usage, complété peu après d'un bâtiment comprenant un atelier de préparation (équipé d'un batteur pour l'épluchage du coton) et des logements. Le matériel, installé en 1819 et mu par une roue hydraulique, est mis en service en mars 1820. Vers 1833, l'établissement est réorganisé : il est complété d'un tissage - vraisemblablement équipé de métiers mécaniques mus par la force hydraulique - et le matériel de la filature est modernisé. La machine à vapeur de 12 ch, insuffisante, est mise au service d'un atelier de blanchiment en 1837. Ce dernier, ainsi qu'une partie de la filature, est détruit par un incendie en 1840. Un nouvel atelier en pierre de trois étages est édifié peu après. Il est isolé de la filature par "plusieurs murs qui règnent de bas en haut avec gradins sur le toit ", et pourvu d'une machine et d'un chauffage à vapeur. A l'emplacement de l'atelier de blanchiment incendié sont construits des ateliers de préparation. L'atelier de tissage est également réorganisé, et pourvu de nouveaux métiers mécaniques. De 1847 à 1855 environ, l'usine de Chevret produit des pièces en soie (teintes et imprimées dans la fabrique d'Héricourt). En 1862, elle délaisse l'activité de filature, au profit d'une nouvelle unité construite à Colombier-Fontaine (25) et ne conserve que l'activité de tissage. A partir de 1877, elle se spécialise dans le tissage du coton. Elle connaît des agrandissements successifs jusque dans les années 1880 (ateliers de fabrication, de préparation et de finition bâtis en rez-de-chaussée). Un atelier de blanchiment, destiné à produire des toiles blanches grâce au procédé au chlore, est construit vers 1883. Les matrices cadastrales signalent pour 1882 l'achèvement d'une maison - vraisemblablement le logement patronal -, d'une " écurie de luxe " et de la cité ouvrière au lieu-dit le Jonchet. A partir de 1922, toutes les machines du tissage sont actionnées par l'électricité. Les ateliers du tissage sont agrandis en 1929, équipés dans la décennie suivante de métiers automatiques. Le tissage mécanique cesse de fonctionner en 1966. Il est racheté par Georges Blum qui poursuit jusqu'en 1980, sous l'appellation de Manufacture de Chevret, une activité de confection. En 1990, un incendie détruit un bâtiment à étages qui abritait des bureaux et une ancienne forge. Le site est aujourd'hui occupé par un magasin de vêtements, un bar et des appartements, aménagés dans l'ancienne filature. En 1819, la filature est équipée de 4564 broches, complétée par 1200 broches en 1822, et d'un batteur Risler et Dixon (Cernay, 68). Elle acquiert en 1833-1834 des bancs à broches et des bancs d'étirage, une carde et quatre machines à parer. Une machine à vapeur de 16 ch, autorisée en 1834, est remplacée dès 1835 par une machine de marque Tamisier (Paris). Vers 1843 sont installées une machine à vapeur Jacques-André (Vieux-Thann, 68), des machines batteurs à l'anglaise de marque Stamm père et fils, à Thann (68), 12 machines à parer, bobinoirs, transmissions, ourdissoirs André Koechlin et Cie, à Mulhouse (68). 70 métiers mécaniques Jacques-André, à Thann (68) sont mis en place en 1845. En 1850, l'établissement comptabilise 6500 broches, une centaine de métiers mécaniques et environ 80 métiers à bras. En 1877, installation d'une nouvelle machine à vapeur et de nouveaux métiers à tisser Berger-André (Thann, 68). Acquisition de deux encolleuses Berger-André en 1882. Le nombre de métiers mécaniques passe de 152 en 1863, à 92 en 1877, puis 230 en 1882, 340 en 1885, 560 en 1890, 380 en 1894 et 360 en 1905. En 1912, l'us ine s'équipe de 10 métiers automatiques Gabler et d'une machine à appondre Barber et Colman. Elle acquiert deux encolleuses SACM en 1928 et 46 métiers 6/4 automatiques en 1935. L'usine emploie 170 hommes, 154 femmes et 33 enfants en 1852 ; 72 hommes, 60 femmes et 46 enfants en 1863 (292 en temps normal) ; 81 hommes, 48 femmes et 14 enfants en 1876 ; 160 hommes, 101 femmes et 34 enfants en 1893, et 246 en 1931.
Période(s)
Principale :
- 1ère moitié 19e siècle
- 4e quart 19e siècle
- 2e quart 20e siècle
Date(s)
1882 :
daté par source
1882 :
daté par travaux historiques
1929 :
daté par source
1929 :
daté par travaux historiques
Description
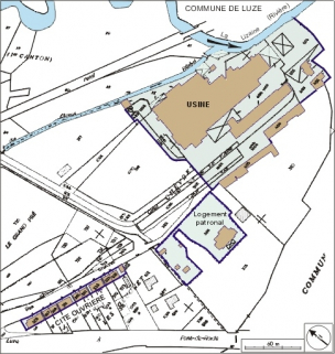
L'atelier de la filature comprend un étage de soubassement et trois étages carrés, couvert d'un toit à longs pans. L'extrémité est de ce bâtiment - appelée tour de séchage (?) - est couverte d'un toit en pavillon et tuile plate. Les ateliers du tissage sont construits en pierre enduite, en rez-de-chaussée couverts de sheds. Le logement patronal possède un étage carré et un étage de comble, couvert en ardoise.
Murs :
- grès
- calcaire
- moellon
- enduit
Toit :
- tuile mécanique
- tuile plate
- ardoise
- verre en couverture
Etages :
- étage de soubassement
- 3 étages carrés
Energie utilisée :
- énergie hydraulique produite sur place
- énergie thermique produite sur place
- énergie électrique achetée
Source(s) documentaire(s)
-
Vue aérienne du tissage depuis le sud-est.
Vue aérienne du tissage depuis le sud-est. Photogr., s.d. [milieu 20e siècle].Lieu de conservation : Médiathèque, Héricourt -
Vue du tissage de Chevret.
Vue du tissage de Chevret. Photogr., s.d. [vers 1950]. Dans : [Plaquette du 150e anniversaire de la société Méquillet-Noblot et Cie à Héricourt], p.28Lieu de conservation : Archives départementales de la Haute-Saône, Vesoul - Cote du document : 18 J 6 -
Atelier de confection.
Atelier de confection. Photogr., s.d. [vers 1980].Lieu de conservation : Collection particulière -
Environs d'Héricourt (Hte-Saône) - Usine de Chevret.
Environs d'Héricourt (Hte-Saône) - Usine de Chevret. Carte postale, La Fraternelle de Chagey éd., C. L. B., s.d. [fin 19e ou début 20e siècle].Lieu de conservation : Archives départementales de la Haute-Saône, Vesoul - Cote du document : 11 Fi 285/68 -
[Intérieur du tissage : atelier des métiers à tisser].
[Intérieur du tissage : atelier des métiers à tisser]. Photogr., s.d. [vers 1950]. Dans : [Plaquette du 150e anniversaire de la société Méquillet-Noblot et Cie à Héricourt], p.29Lieu de conservation : Archives départementales de la Haute-Saône, Vesoul - Cote du document : 18 J 6 -
Vue d'ensemble depuis l'ouest.
Vue d'ensemble depuis l'ouest. Photogr. [cliché inversé], s.d. [vers 1950].Lieu de conservation : Collection particulière -
Vue aérienne du tissage.
Vue aérienne du tissage. Photogr., s.d. [vers 1950].Lieu de conservation : Collection particulière -
[Intérieur du tissage : atelier d'ourdissage].
[Intérieur du tissage : atelier d'ourdissage]. Photogr., s.d. [vers 1950]. Dans : [Plaquette du 150e anniversaire de la société Méquillet-Noblot et Cie à Héricourt], p.29Lieu de conservation : Archives départementales de la Haute-Saône, Vesoul - Cote du document : 18 J 6
À voir
Informations complémentaires
Thématiques :
- patrimoine industriel de la Haute-Saône
Aire d’étude et canton :
Haute-Saône
Complément de localisation :
- oeuvre située en partie sur la commune Luze
Hydrographie :
dérivation de la Lizaine
Dénomination :
moulin à farine, usine textile
Parties constituantes non étudiées :
- atelier de fabrication
- entrepôt industriel
- transformateur
- logement patronal
- logement d'ouvriers
- salle de concert
- garage
- © Région Bourgogne-Franche-Comté, Inventaire du patrimoine
