MINE DE HOUILLE DU PUITS ARTHUR DE BUYER
70 - Magny-Danigon
Bois de la Nanue
- Dossier IA70000155 réalisé en 2006
- Auteur(s) : Raphaël Favereaux
Historique
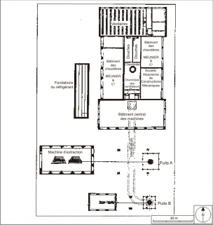
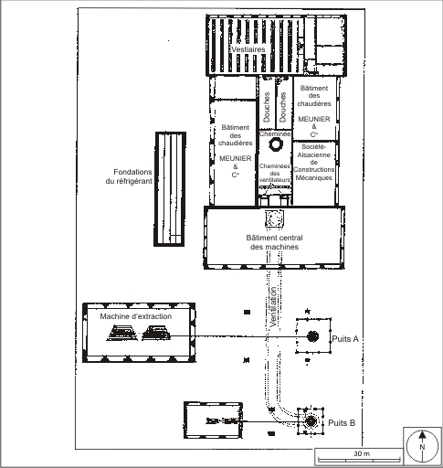
La Société des Houillères de Ronchamp décide en 1892 d'ouvrir un nouveau puits de mine. Autorisé en février 1893 et situé sur la commune voisine de Magny-Danigon, il est dénommé puits n°11, mais connu sous l'appellation Arthur de Buyer, du nom du président de la société. Les travaux commencent en 1894 et prévoient le fonçage de deux puits - un pour l'extraction et un pour l'aérage, le service et le secours -, chacun surmonté d'un chevalement métallique. Le 15 novembre 1900, le puits B atteint la profondeur de 860 m et le puits A celle de 1008 m, considérée comme un record en France à cette époque. Mis en exploitation en juillet 1904, il est prévu pour extraire 1000 tonnes de houille par journée de 10 heures. Ce puits ne donne cependant pas les résultats escomptés. L'exploitation stagne en 1909 ; elle est quasiment abandonnée en 1910, reprise en 1912, et de nouveau arrêtée entre 1914 à 1916. En 1927, une nouvelle machine d'extraction est mise en place, ce qui entraîne la construction d'une nouvelle salle à l'est. En 1928, la production atteint 87 500 t. L'exploitation se poursuivant toujours plus au nord-est, la liaison est effectuée en 1938 avec le puits du Magny (commune de Champagney), qui sert alors de puits de secours et d'aérage. Suite à la nationalisation de la société en 1946, cette dernière prévoit en 1950 la fermeture du puits. Un comité défense se constitue et ajourne cette décision, qui sera effective en janvier 1954. L'arrêté d'abandon de la concession est accordé le 10 juin 1958. Le puits est alors remblayé, une dalle coulée sur les ouvertures, les machines démontées et le chevalement ferraillé. Le site a ensuite accueilli diverses activités industrielles (fabrication de charbon de bois, stockage de déchets industriels), et a aussi essuyé divers incendies. Les bâtiments subsistants sont en ruines, envahis par la végétation, à l'exception des anciens vestiaires et de la cheminée, quoique tronquée et dégradée. En 1904, chaque puits est équipé d'une machine alimentée à la vapeur. Les installations comprennent également deux ventilateurs, deux compresseurs, deux génératrices de courant, une machine motrice de la condensation centrale et ses pompes. Les chaudières se composent de 16 générateurs semi-tubulaires de 200 m² de surface de chauffe et 6 générateurs à bouilleurs de 60 m². La machine d'extraction à vapeur comprend un tambour bicylindroconique de 4, 5 à 11 m de diamètre. La machine d'extraction électrique SACM (Mulhouse-Belfort), installée en 1927, nécessite le renforcement du chevalement. Celui-ci atteint 41 m de haut, et supporte 2 molettes à rayons et jantes en fonte de 6 m de diamètre. Introduction en 1938 d'une pelle mécanique Ingersoll à air comprimé, de type Eimco, montée sur rails. En 1937, le puits emploie 169 hommes au fond. Il emploie encore 201 ouvriers en 1951.
Période(s)
Principale :
- limite 19e siècle 20e siècle
- 2e quart 20e siècle
Date(s)
1894 :
daté par travaux historiques
1927 :
daté par travaux historiques
Description
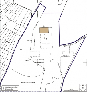
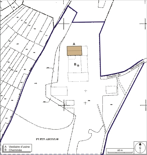
Le seul bâtiment ayant conservé sa couverture est le vestiaire (communément appelé salle des pendus). Il est construit en moellon de grès enduit et en brique, couvert d'une charpente métallique, à fermes segmentaires, et de tôle. Les pans de murs subsistants sont en moellon de grès enduit, antérieurement couverts de toits à longs pans en tuile mécanique. Les murs sont ajourés d'ouvertures semi-circulaires et de baies en plein-cintre à arcades de brique. La cheminée en brique, de section circulaire, possède une base octogonale.
Murs :
- grès
- brique
- pierre de taille
- moellon
- enduit
Toit :
- fer en couverture
Couvrement :
- charpente métallique apparente
Energie utilisée :
- énergie thermique
- énergie électrique
- produite sur place
- produite sur place
Source(s) documentaire(s)
-
Ronchamp (Hte-Saône) - Puits Arthur.
Ronchamp (Hte-Saône) - Puits Arthur. Carte postale, s.d. [avant 1913].Lieu de conservation : Collection particulière : J. Taiclet, Ronchamp -
Ronchamp. - Machine d'Extraction du Puits Arthur de Buyer, [avant 1923].
Ronchamp. - Machine d'Extraction du Puits Arthur de Buyer. Carte postale, A. Breger Frères édit., Paris, s.d. [avant 1923].Lieu de conservation : Collection particulière : J. Taiclet, Ronchamp -
Ronchamp - Puits Arthur de Buyer - Vue générale.
Ronchamp - Puits Arthur de Buyer - Vue générale. Carte postale, s.d. [fin 19e ou début 20e siècle].Lieu de conservation : Archives départementales de la Haute-Saône, Vesoul - Cote du document : 11 Fi 451/21 -
Ronchamp - Puits Arthur de Buyer - Le grand extracteur.
Ronchamp - Puits Arthur de Buyer - Le grand extracteur. Carte postale, Pariney édit., Ronchamp, s.d. [fin 19e ou début 20e siècle].Lieu de conservation : Collection particulière : J. Taiclet, Ronchamp -
Ronchamp (Hte-Saône). - Puits Arthur. Les ventilateurs.
Ronchamp (Hte-Saône). - Puits Arthur. Les ventilateurs. Carte postale, s.d. [fin 19e ou début 20e siècle].Lieu de conservation : Collection particulière : J. Taiclet, Ronchamp -
Ronchamp - Puits Arthur-de-Buyer - Vue d'ensemble [...], [fin 19e siècle ou début 20e siècle].
Ronchamp - Puits Arthur-de-Buyer - Vue d'ensemble [...]. Carte postale, Pariney édit, s.d. [fin 19e siècle ou début 20e siècle].Lieu de conservation : Collection particulière : J. Taiclet, Ronchamp -
Ronchamp (Haute-Saône) - Puits Arthur de Buyer, profondeur 1.100 mètres.
Ronchamp (Haute-Saône) - Puits Arthur de Buyer, profondeur 1.100 mètres. Carte postale, Pechin édit., Ronchamp, s.d. [fin 19e ou début 20e siècle].Lieu de conservation : Collection particulière : J. Taiclet, Ronchamp -
Vue du puits Arthur de Buyers au Magny d'Anigon.
Vue du puits Arthur de Buyers au Magny d'Anigon. Carte postale, s.d. [fin 19e siècle].Lieu de conservation : Collection particulière : J. Taiclet, Ronchamp -
Ronchamp - Puits Arthur de Buyer. Mineurs sortant de la fosse.
Ronchamp - Puits Arthur de Buyer. Mineurs sortant de la fosse. Carte postale, Pariney édit., Ronchamp, s.d. [fin 19e ou début 20e siècle].Lieu de conservation : Collection particulière : J. Taiclet, Ronchamp -
Plan-masse au début du 20e siècle.
Plan-masse au début du 20e siècle, mis au net A. Céréza, échelle 1:900. Dans : " Le puits Arthur de Buyer " / Jean-Jacques Parietti [...], p. 8.
À voir
Informations complémentaires
Thématiques :
- patrimoine industriel de la Haute-Saône
Aire d’étude et canton :
Haute-Saône
Dénomination :
mine
Parties constituantes non étudiées :
- cheminée d'usine
- vestiaire d'usine
- © Région Bourgogne-Franche-Comté, Inventaire du patrimoine
