LYCÉE LUMIÈRE
70 - Luxeuil-les-Bains
33 ter rue Grammont
- Dossier IA70000458 réalisé en 2012
- Auteur(s) : Philippe Mairot
Historique
L'ancien lycée du centre-ville Claude Mathy étant devenu trop petit, la décision de construire un nouveau bâtiment, envisagée dès 1976, abandonnée en 1978, fait l'objet d'une étude préalable en 1984 et d'études d'ingénierie en 1987. La Société de crédit immobilier de la Haute-Saône cède en 1988 les terrains de 9 ha acquis en 1979 pour la réalisation de deux lycées. Les architectes Jacques Tournier et Robert Richeton sont retenus et vont réaliser l'ensemble par tranches successives. Le lycée ouvre progressivement à partir de la rentrée de 1991, dans le bâtiment d'externat. Conformément au décret du 18 mai 1951, selon lequel "1 % des sommes consacrées pour chaque construction d'établissement scolaire ou universitaire devra financer la réalisation d'une œuvre d'art contemporaine intégrée au projet architectural, un avis "d'appel de candidature d'artistes est publié dans Le Moniteur du 7 juin 1991 et précise ainsi les thèmes de travail proposés par les architectes : "animation d'une rue intérieure par plusieurs types de créations sculpturales, picturales, céramiste, statique ou mobile sur le thème de l'eau. " Parmi 40 candidats, six concurrents (Gindre, Bertoux, Oligschlager, Millecamps, Debras, Homs) sont retenus pour être auditionnés par le jury. Le 2 décembre 1991, à l'unanimité, le jury propose de déclarer le concours infructueux et de relancer une nouvelle procédure. Dès le 4 décembre, l'architecte Robert Richeton rédige une nouvelle note en vue d'une nouvelle consultation. La commission d'appel d'offre du 23 décembre 1991 déclare le jury du 1% décoration infructueux. Le dossier reste sans suite. En 1992 sont construits la partie sud-ouest du bâtiment des enseignements scientifiques et l'entrée, incluant l'administration et des logements de fonction, ainsi que les bâtiments de restauration et du centre de documentation et d'information. Les parties centrales et nord-est des internats, destinés aux filles, sont construits en 1994 et la partie sud-ouest, destinée aux garçons l'est en 1996. Une extension au nord-est pour l'enseignement scientifique est édifiée en 1995. Les logements de fonction au nord-est sont élevés en 1996. Au sud-est, les bâtiments destinés aux enseignements technologiques et hôteliers sont bâtis en 1997 et accueillent l'ancien lycée professionnel d'hôtellerie et restauration (Lep) du Parc, dit aussi des sources, du nom de l'ancien Hôtel des sources, reconverti en établissement d'enseignement dans le périmètre du parc thermal. Le lycée est inauguré en 1997. Il a été conçu pour accueillir 1842 élèves. En 2012, il en accueille 1000. En 2013, après deux ans de travaux le cabinet d'architecte Petitcolin livre un atrium, et restructure les internats et leurs cours. Un rapprochement avec le lycée Beauregard dont il accueille déjà les internes et les demi-pensionnaires est en cours.
- 4e quart 20e siècle
Date de naissance : 19/10/1934
Tournier, Jacques (né en 1934). Architecte. Fils de Jean Tournier, architecte né à Paris en 1909. Etabli à Besançon, Associé aux architectes Lamarre-Benoit-Delin, société LBDT de 1971-1978 puis Delin et Tournier de 1978 à 1984. Avait son officine au 38 rue Mégevand, à Besançon, quoique toujours inscrit à l'ordre en Ile-de-France.(Source : Archives départementales de Yvelines, cote 100J1-565-archives privées, (1945-1985).
Robert Richeton, 82 rue Vanoise à Gray
Description
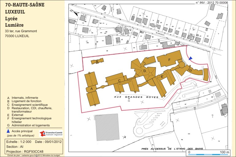
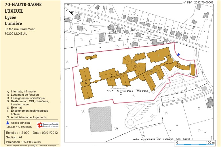
Dispersés dans un parc arboré en pente, les bâtiments sont reliés entre eux par des passages couverts et une galerie technique souterraine et sont répartis -grosso modo- sur un axe sud-est nord-ouest. Ils sont en béton enduit, ont des toitures à longs pans couverts en tuiles mécaniques, des terrasses de ciment et gravier, et des verrières. Ils sont desservis par des escaliers dans-oeuvre. Cinq d'entre eux sont équipés d'ascenseurs ou monte-charge. Face à une esplanade traitée en éventail, l'entrée du lycée est aménagée dans une tour vitrée, véritable signal de l'établissement, flanquée de façades en arc-de-cercle à essentage de matériau synthétique. Attenant au sud se trouvent des logements de fonction et l'administration, d'un étage carré, couverts d'un toit à longs pans. Attenant à l'est et se déployant vers le nord, à l'arrière, se trouvent tout d'abord le restaurant d'application, couvert par une terrasse, dont l'entrée donne sur cette même esplanade, puis les locaux d'enseignement professionnel et technologique de l'hôtellerie, couverts également par des terrasses. Sur la face nord-ouest de la tour, se trouve un bâtiment d'externat en forme de U tronqué ouvert vers le sud-ouest, comportant 3 étages carrés, dont les toits à longs pans sont couverts en tuiles mécaniques. Plus au nord-ouest sur ce même axe, le bâtiment comprenant la restauration, la chaufferie et le centre de documentation et d'information, occupant une position centrale, est relié à chacun des autres. En son centre, se trouve un haut vaisseau couvert d'une verrière en croupe polygonale, autour duquel sont installées trois niveaux de différentes salles vitrées et le centre de documentation et d'information : un espace y a été réservé dans l'attente d'une éventuelle oeuvre d'art au titre du 1 % artistique. Sur son flanc sud-ouest, les escaliers qui le relient à l'externat constituent des galeries couvertes aménagées en espaces de travail étagés. Des escaliers extérieurs et des bancs sont également disposés sur les pentes du terrain herbeux adjacent. Sur son coté nord-ouest, on trouve le bâtiment des enseignements scientifiques, en forme de U tronqué ouvert vers le sud-ouest, comportant 3 étages carrés, dont les toits à longs pans sont couverts en tuiles mécaniques. Une extension d'un étage carré le jouxte au nord-est, orientée selon l'axe principal nord-ouest sud-est, dont les toits à longs pans sont couverts en tuiles mécaniques. A l'extrémité nord-ouest de la parcelle, les deux bâtiments distaux des internats (dont la trame de 2, 57 m entre voiles de béton l'apparente davantage à des logements) sont couverts par des toits à deux pans portant des tuiles mécaniques, dont les lignes de faîte ne se rejoignent pas et sont reliées par une verrière verticale éclairant les cours. La partie nord-est compte quatre étages carrés et abrite l'infirmerie et le logement de l'infirmier (ère). Le bâtiment central à usage d'entrée pour les deux ailes comportant un étage carré, est vitré sur les côtés et couvert par une terrasse. Les logements de fonction, en rez-de-chaussée, sont disposés à l'extrémité nord-est de la parcelle, le long d'un axe nord-ouest sud-est. Ils ont des toits à longs pans, des pignons couverts, des noues, un étage de comble avec un balcon. Les logements alternent avec des garages.
- béton
- béton armé
- enduit
- essentage de matériau synthétique
- tuile mécanique
- ciment en couverture
- verre en couverture
- 2 vaisseaux
- 4 étages carrés
- charpente en bois apparente
- charpente métallique apparente
- élévation à travées
- escalier en vis, en charpente métallique
- en maçonnerie
- escalier tournant à retours avec jour,
- ascenseur
- monte-charge
Source(s) documentaire(s)
-
1616 W 72 (1976-1990)
(1976-1990) note au préfet du 18 01 1992 sur la dénomination du lycée Fertet.Lieu de conservation : Archives départementales de la Haute-Saône, Vesoul - Cote du document : 1616 W 72 -
1253 w 27 Luxeuil (1969-1975)
Luxeuil (1969-1975)Lieu de conservation : Archives départementales de la Haute-Saône, Vesoul - Cote du document : 1253 w 27 -
1242 W 117 Construction lycée polyvalent (1977-1978)
Construction lycée polyvalent (1977-1978)Lieu de conservation : Archives départementales du Doubs, Besançon - Cote du document : 1242 W 117 -
1242 W 128 Lycée (1978-1981)
Lycée Luxeuil (1978-1981)Lieu de conservation : Archives départementales du Doubs, Besançon - Cote du document : 1242 W 128
À voir
Informations complémentaires
- lycées publics de Franche-Comté
- internat
- logement
- chaufferie
- infirmerie
- cantine
- restaurant
- tour
- jardin
- jardin d'agrément
- parc
- escalier indépendant
- transformateur
- bureau
- © Région Bourgogne-Franche-Comté, Inventaire du patrimoine
